Rosas_Andres_Portfolio

Page 1

PORTAFOLIO

PROYECTOS

ANDRÉS ROSAS

ARQUITECTURA

Tésis:

Unidad

Unidad

2 HOJA DE VIDA Andrés Israel Rosas Palacios in +593 998108577 airp.arq@gmail.com www.linkedin.com/in/airp-crom-75473a12b EDUCACIÓN EXPERIENCIA TALLERES 2014-2021 24 de Junio de 1996 2016-2017 2021-2022 2022-2023 2022-2023 Título de Arquitecto Hábitat 3, la Conferencia de las Naciones Unidas sobre la Vivienda y el Desarrollo Urbano Sostenible Ilustración digital y recorrido virtual Consultorios pediátricos VM Architects Pasantías Diseño gráfico para un consultorio pedíatrico Diseño y decoración interior Práctica de Investigación Gestión de proyectos de servicio comunitario Prácticas en obra de construcción ESL Program BAQ 2016 Bachillerato en Ciencias Pontificia Universidad Católica del Ecuador-Quito Quito-Ecuador Proyecto PUCE-ICAM en Nayón Edificio Fortune Plaza, Edificio Opal, Edificio Canopus Proyectos Nexus on time y Vivienda Capelo Consultorio pedíatrico, especializado en endocrinología Consultorio pedíatrico, Pediatría Integral EC Área de vinculación, Pontificia Universidad Católica del Ecuador Área de vinculación, Pontificia Universidad Católica del Ecuador Grupo Hernán Garcés Pástor ARQUITECTOS
Educativa Julio Verne Colegio de Arquitectos del Ecuador, Quito-Ecuador 14 al 18 Noviembre de 2016
Educativa Julio Verne
Unidad Educativa Municipal de Portoviejo 17 al 20 Octubre de 2016 2013-2014 2016-2017 2021-2022 2007-2014 2021-2022 2019-2020 2019-2020 2018-2019

CURSOS

Curso de diseño de Interiores

CECAP, Guayaquil-Ecuador

Curso de Introducción interdisciplinar a la sostenibilidad

Universidad Politécnica de Valencia, Plataforma EDX

de Julio al 9 de Agosto de 2021

Ordenanzas Municipales y Procesos para Aprobación de Planos, Subdivisión y Propiedad Horizontal

al

Quito-Ecuador

de Mayo de

Curso de renderizado, photoshop y SketchUP

Quito-Ecuador

IDIOMAS PROGRAMAS

Español

Nativo

Inglés

Avanzado

Autodesk AutoCAD SketchUp Pro

Adobe Photoshop

Adobe Illustrator Lumion V-Ray NEXT Microsoft Office Pack

Adobe InDesign

Otras habilidades: Modelado 3d, dibujo a mano

3 HOJA DE VIDA
2022-2023
urbana
PINXCEL,
CAMICON,
29
24
28
2021
07 al 12 de Febrero de 2022 01 al 29 de Octubre de 2016 2021-2022 2021-2022 2016-2017
4 CONTENIDO

CONTENIDO

5 CONTENIDO
El Gran Bazar Centro de educación 6-11 Unidad Educativa 12-17 Consultorio 18-39 Consultorio Pediátrico Remodelación Suit Facultad 40-47 48-53 54-57 58-63 La Chilena Gastronómico Municipal de Portoviejo Pediátrico Endocrinología Condominios el Inca Ingeniería Aplicada

EL GRAN BAZAR

CHILENA

Ubicación

Quito, Ecuador

Año

PUCE-FADA

Quito-Ecuador Santiago Orbéa Andrés Rosas Ramiro Criollo

Profesor: Integrantes:

El proyecto esta ubicado en el Centro histórico de Quito, entre los sectores de la Merced, San Ro que y Gonzalez Suarez. Esta zona se caracteriza por la gran presencia de zonas comerciales, donde destacan la formal y la autonoma.

Con esta premisa, el proyecto propuesto por el ta ller fue el de buscar un espacio de uso libre, en el que, tanto los comerciantes, mayoristas y mi noristas puedan trabajar sin restricciones. Es de esta forma que se buscó un área en común para las 3 zonas de mayor conflicto, donde el pasaje Sanguña se destacó por estar conectado a los 3 barrios.

Tras definir el sector a intervenir, se destacaron 2 necesidades principales para el proyecto: la inclu sión de áreas verdes y la conservación de edifica ciones patrimoniales. Como resultado, se decidió crear un bazar, el cual se acoplara a los edificios existentes, respetando las estructuras patrimonia les, donde los comerciantes formales y autónomos puedan trabajar, brindando diversos productos, los cuales generen un nuevo foco de atracción.

6
LA
2019-2020
7 Mapa base resumen Fachada calle Cuenca El Gran Bazar CALLE MIDEROS CALLE CHILE FACHADA 1 CALLE CUENCA 0m 2m 5m 9m Uso Mixto Plazas MetroComercio autónomo mayor intensidad Protección baldío MovilidadPlazas Comercio Áreas verdesComercio autónomo menor intensidad Protección parcial Bodegas MetroVivienda Protección nula

Esquemas problemática

Fachadas patrimoniales

Esquemas propuesta

Construcciones agenas al patrimonio

Edificios patrimoniales Intervención propuesta

Planta intervención actual

Complemento edificios patrimoniales

Comercios formales

Apropiación comercio informal

Edificios patrimoniales

Mayor movimiento autónomo Propuesta de espacio público, áreas ver des y espacio recreativo.

Planta propuesta

Centros comerciales antiguos

8
9 N + 3.23m N +/- 0.00m N + 6.46m N + 9.69m N + 3.25m N +/- 0.00m N + 6.40m N + 0.50m 2,7 2,7 2,7 1,8 2,4 2,4 2,4 2,1 2,4 2,4 0,2 0,3 0,24 0,3 0,24 0,3 0,24 1,85 2,4 0,9 6,1 N + 3.23m N +/- 0.00m N + 3.25m N +/- 0.00m 2,7 2,72,4 2,42,4 0,3 0,24 2,4 N +/- 0.00m LEYENDA: 1 TRATAMIENTO DE PISO 1.1 BORDILLO DE HORMIGON ARMADO FUNDIDO IN SITU f'c 240 kg/cm² 1.2 ADOQUIN DE ALTO TRANCITO PREFABRICADO 20cm X 20cm X 8cm 1.3 CAPA DE ARENA DE NIVELACION Y MEJORAMIENTO DE TERRENO 5cm 1.4 JUNTA ENTRE ADOQUINES DELGADA 0.5cm 2 ANCLAJE Y CIMIENTACION 2.1 PLETINA DE ANCLAJE 40cm X 40cm X 1cm 2.2 VARILLA ROSCADA 1 2" DE AMARRE 2.3 PATINES ANGULARES DE SOPORTE 3 COLUMNA DE ESTRUCTURA METALICA 3.1 COLUMNA DE ESTRUCTURA METALICA PERFIL TIPO "H" 20cm X 20cm 3.2 PATIN DE PERFIL 20cm X 0.2cm 3.3 ALMA DE PERFIL 17cm X 0.9cm 4 MODULOS MOVILES 4.1 TABLERO INFERIOR 5 cm 4.2 BARREDERA DE TOL 10cm DE ALTURA 4.3 LLANTAS DE CAUCHO 10cm DE DIAMETRO 4.4 TABLERO LATERAL 5cm 4.5 TABLERO SUPERIOR 5cm 5 VIGA DE ESTRUCTURA METALICA 5.1 VIGA TRANSVERSAL DE ESTRUCTURA METALICA PERFIL TIPO "I" 15cm X 30cm 5.2 PATIN INFERIOR DE ESTRUCTURA METALICA 15cm X 0.2cm 5.3 ALMA DE PERFIL DE ESTRUCTURA METALICA 27cm X 0.1cm 5.4 PATIN SUPERIOR DE ESTRUCTURA METALICA 15cm X 0.2cm 6 TRATAMIENTO DE ENTREPISO 6.1 NIVEL INFERIOR DE LOSA DE ENTREPISO 6.2 DECK METALICO 6.3 LOSA DE ENTRPISO HORMIGON f'c 240 kg/cm² 6.4 NIVEL SUPERIOR DE LOSA DE ENTREPISO 6.5 DECK DE MADERA SUPERIOR 2cm 6.6 LISTON SUPERIOR DE MADERA TRANSVERSAL 5cm X 10cm 7 PASAMANO 7.1 TUBO HUECO 5cm X 5cm VERTICAL 7.2 TUBO HUECO 5cm X 5cm HORIZONTAL 8 MODULOS FIJOS DE COMERCIO 8.1 BLOQUE DE HORMIGON 10 cm X 20 cm X 40 cm 8.2 MORTERO DE PEGA 4 - 1 8.3 MORTERO DE ENLUCIDO 3 - 1 8.4 VIGA TRANSVERSAL 10cm X 10cm 8.5 VIGA LONGITUDINAL 5cm X 10cm 8.6 DECK DE MADERA SUPERIOR N +/- 0.00m N + 3.24m N + 6.41m 1,6221,94 1,94 1,92 1,7 2,502,60 0,3 5,7 2,502,60 0,3 5,7 2,40 4.1 4.2 4.4 4.3 2.1 2.2 3.1 3.2 3.3 2.3 5.2 5.3 5.4 5.1 7.1 7.2 6.1 6.2 6.3 6.4 6.5 6.6 4.5 8.1 8.2 8.3 8.4 8.5 8.6 El Gran Bazar Corte Fachada Corte constructivo
10 A B C D F G K L M N 3 4 5 6 7 1 2 LOCAL 11 LOCAL 12 A A PLANTA BAJA ESC 1:200 B C D F G J K L M 3 4 7 A A SEGUNDA PLANTA ESC 1:200 A C E D F G H L M N 1 2 N + 3.24m A A PRIMERA PLANTA ESC 1:200 Bloque 1 Planta baja Vista exterior bloque 1 Vista interior plaza interna Bloque 1 Piso 1 Bloque 1 Piso 2
11
El Gran
Bazar Propuesta planta baja

CENTRO DE EDUCACIÓN GASTRONÓMICO

Ubicación

Quito, Ecuador

Año

PUCE-FADA

El proyecto esta ubicado en el Centro histórico de Quito, en el sector de San Roque. En este proyec to, el estudio se enfocó en la creación de un es pacio, el cual brindase un refuerzo educativo a los habitantes de la zona y a los comerciantes.

Para empezar, se identificaron los distintos tipos de comercios existentes en la zona, donde des tacaron los de índole gastronómico. De esta for ma es que se dicidío implementar un espacio en focado a la gastronomía, donde se tomaran en cuenta 3 funciones principales: la educación, la producción y la venta.

El área de estudio se centraría en la enseñan za de diferentes tipos de platillos tipicos del país y de los ingredientes. La franja de producción se encargaría de la parte práctica, donde los estu diantes podrían practicar en los temas aprendidos en clase. Finalmente, la zona de venta buscaría la promoción y el emprendimiento de los distintos comerciantes, donde, mediante la implementación de diversas ferias, los practicantes podrían promo cionar sus productos ante el público.

12
2019-2020

Implantación

Esquema actividades

Despiece proyecto

13 Edu. Gastronómico
Enseñanza Producción Venta

Bloque Venta- Planta Baja

Bloque Producción- Planta Baja

Bloque Enseñanza- Planta Baja

Ilustración-Vista exterior

14
15 Edu. Gastronómico Corte constructivo
16
Ilustración-Corte perspéctico
17 Edu. Gastronómico
Ilustración-Corte
perspéctico

Ubicación

UNIDAD EDUCATIVA

MUNICIPAL DE PORTOVIEJO

PUCE-FADA

Portoviejo, Ecuador 2019-2021

Año

Con el objetivo de desarrollar una unidad educa tiva moderna e innovadora para el centro de la ciudad de Portoviejo, se buscó cambiar el modelo tradicional de enseñanza, puesto que este prioriza una enseñanza lineal, donde un grupo de indivi duos con edades similares reciben conocimientos de una persona mayor. Esta educación se imparte dentro de espacios cerrados, en los cuales la inte gración con la naturaleza y las visuales son des echadas, evitando cualquier tipo de distracción.

Esta premisa demuestra que, si bien la educación tradicional es una de las más utilizadas, no es la más óptima para un ambiente educativo sano. Por este motivo, la propuesta arquitectónica plantea la introducción de estrategias como la escuela activa y la educación al aire libre. Estas dos tendencias se centran en la introducción de espacios fluidos y la ausencia de los límites, donde se produzcan nuevas áreas de interacción y aprendizaje, y la na turaleza sea el elemento que envuelva e integre a todos los ambientes.

18
19 CORTE C-C` años 13.9m CalzadaA ACarril Bici anja V de 4m 3m 3m 4m 3m 3m 3m P CORTE C-C` 10 años 13.9m CalzadaA ACarril Bici anja V de 4m 3m 3m 4m 3m 3m 3m PP CORTE C-C` 20 años 13.40 m Área VerdeÁrea Verde Calle 13.40 m Área VerdeCalle 13.40 m PortalPortal Calle 0m 1m 5m 9m 14m 0m 1m 5m 9m 14m 0m 1m 5m 9m 14m Unidad Educativa Zonas Educativas-Zona Cero Secciones viales-Zona Cero

Estudio Eje ambiental

Plazas

Estudio Eje movilidad

Secciones viales-actualidad

20
urbanas Escasas áreas verdes y especies vegetales alrededor de la ciudad. Presencia de vegetación en el río Portoviejo, sin embargo se encuentra sin tratamiento y con residuos de escombreras. Las paradas no tienen ningún orden de organización y la mayoría sin infraestructura adecuada. Tras el terremoto, varias calles y veredas quedaron destrozados, complicando la movilidad. Plazas urbanas Linea de bus principal Espacio verde público Espacio verde público Zonas verdes protegidas Zonas verdes protegidas

Estudio

Tras el terremoto ocurrido el 16 de abril del 2016, la ciudad de Portoviejo se vio seriamente afectada por el co lapso de diversas infraestructu ras residenciales, comerciales y recreativas. La zona con ma yor afectación fue el centro, en el cual, alrededor del 25% de las construcciones se vieron afectadas. Entre estas construcciones, las de índole educativo fueron las más

damnificadas. Este problema dio como resultado el deterioro de las actividades urbanas, produciendo un gran despoblamiento de la Zona Cero.

Con estos antecedentes, los planes de regeneración pro puestos por el Municipio de Portoviejo y el Taller Profesio nal se enfocaron en la reactiva ción y regeneración urbana de la zona, mediante la implemen

tación de proyectos arquitectónicos detonantes que facilitaran la creación de una ciudad sostenible.

Por tal motivo, uno de los pro yectos que se decidió implantar en la zona fue una unidad edu cativa, la cual remplazara los centros educativos destruidos y generara espacios recreati vos amigables tanto para los estudiantes y los habitantes del sector.

21 Unidad Educativa
Eje morfología La densidad poblacional no es homogénea debido a que la zona cero sufrió un colapso en varias viviendas. Los daños en viviendas y locales provocaron la migración de los habitantes en busca de mejores condiciones. 1-50 Hab/Km2 150-300 Hab/Km2 300-450 Hab/Km2
22 Propuesta proyecto
23 Unidad Educativa Ubicación proyecto Uso de suelosEspacios existentes Vías Intenciones de implantación Zona Cero Áreas verdes dentro del terreno Av. Ricaurte Viviendas Terreno Proyecto Parqueadero Calle Chile Parqueaderos Río Portoviejo Cancha de fútbol Calle Quiroga Río Portoviejo Terreno de intervención Parque “Las Vegas” Parque “Las Vegas” 40898.83 m2 Calle 18 de Octubre 50m distancia segura río Comercios Río Portoviejo

Objetivos

24 La educación
de los espacios mediante el hexágono Escuelas tradicionales Módulos exágonales-dinamismo

Esquemas de

25 Unidad Educativa
implantación
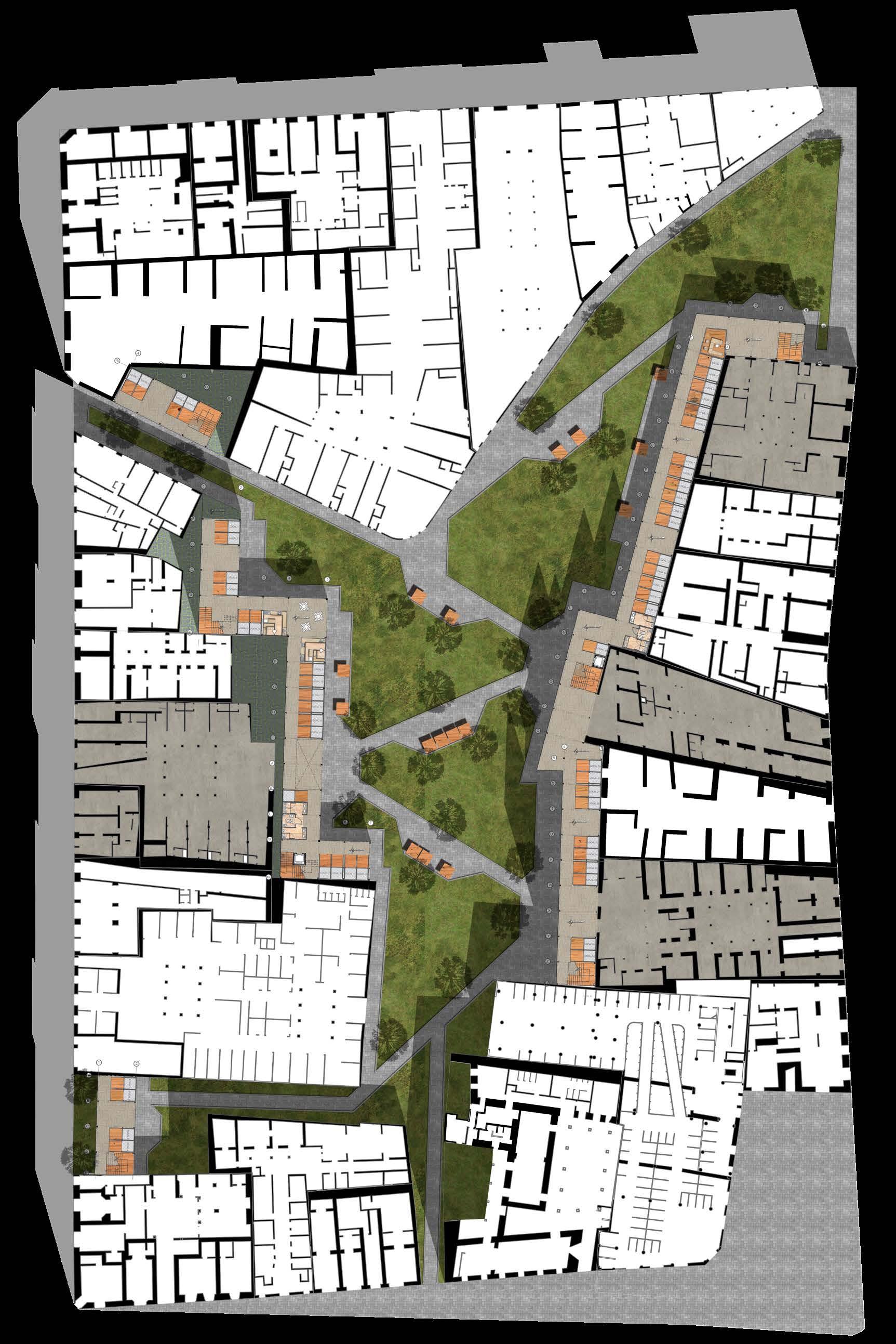
Vista aérea

Implantación paisajista planta baja

26

Unidad Educativa

Fachada sur Bloque 2 y 4

Fachada sur Bloque 3 y 5

Sección Bloque 2 y 4

Planta baja unidad educativa

27
28
Esquema fases del proyecto

Esquema funcionalidad Educación Inicial Bloque 1

Espacios diluidos

Ausencia de límites

Flexibilidad entre espacios

Esquema estrategias dentro del Bloque 1

29 Unidad Educativa

Fachada Norte Bloque 1 y 4

Esquema aéreo Bloque 1

Esquema interior Bloque 1

30
31 1 3 2 4 5 6 7 8 9 10 11 12 13 C D E F G H I J K L M N 2.25 2.25 2.25 2.25 2.25 4.502.25 4.50 4.50 4.50 4.50 36.00 3.90 3.90 3.90 3.90 3.90 3.90 3.90 3.90 3.90 3.90 46.8 3.90 3.90 N - 3.90 N - 4.00 N - 3.90 N - 3.90 N - 1.90 N - 3.90 0m 5m 10m 15m 20m S N - 3.90 Unidad Educativa Planta Baja Bloque 1 Esquema exterior módulo básico Esquema interior módulo básico

Apoyo de deck sobre vigas

Isometría unión vigas a columna tipo 1

Isometría unión vigas a columna tipo 2

Detalle viga de cimentación y contrapiso

Isometría unión vigas secundarias

32
Esquema interior Bloque 1
33 Conector de cortante Ø 12 mm Malla electrosoldada Ø 5 mm Deck metálico 5.5 cm Entrepiso de hormigón fc= 210 kg/cm Suelda Viga metálica IPE 180 Platina Viga metálica IPE 400 Suelda Viga metálica IPE 300 Marco de aluminio Mortero de fijación 1-3 Mortero de fijación 1-3 Ladrillo 13cm/7cm/29cm, peso 5.12lbs Columna Metálica (D=31.8) x 1.5 cm Placa Tipo 1 (0.46 x 0.46 x 0.05)m Pedestal H.A.(1 x 0.5)m Suelo compactado Contrapiso Hormigón fc= 210 kg/cm Malla Elcetrosoldada Ø5 mm Capa asfáltica aislante Varilla 15 Ø 32 mm Replantillo fc=140kg/cm2 Compuesto por sub base clase III TM 2,5´´ Riel Guía Lamas orientables de aluminio 12 cm Ejes de pivotación Riel Guía Marco de aluminio Gotero Bisagra Refuerzo de metal Silicona de vidrio Vidrio templado 6 mm Lamas de aluminio 4 cm Brazo proyectante Riel Guía Marco de aluminio Marco de aluminio Lamas de aluminio 4 cm Refuerzo metálico Gotero Silicona de vídrio Cerradura (LL 25 máx., IP 6 máx. CBR min 30. Abrasión 50max). Espesor de 30cm). Mejoramiento de suelo Compuesto por Filtrante TM 10 cm (Espesor de la capa 15 cm) Compuesto por piedra bola TM 30 cm (Espesor 55cm) N + 3.64m N +/- 0.00m Unidad Educativa Corte constructivo
34
Vsita exterior Bloque 1
35 Unidad Educativa
Vsita exterior Bloque 1
36
Vsita interior Bloque 1
37 Unidad Educativa
Vsita interior Bloque 1
38
Vsita exterior Bloque 1
39 Unidad Educativa
Vsita exterior Bloque 1

Ubicación

PEDIÁTRICO

Pediatría integral EC

Quito-Ecuador Andrés Rosas

Autor:

Quito, Ecuador 2021-2022

Año

El proyecto se encuentra ubicado en la ciudad de Quito, entre la Av. Brasíl y Voz Andes. Este trabajo se enfocó en el diseño de un consultorio pedíatrico para una pareja.

En primer lugar, se debió tomar en cuenta las di versas necesidades que se requerían para un es pacio pediátrico. Para empezar, se identificaron las zonas necesarias para las actividades, donde des tacaron: la atención, la examinación, la recreación, el almacenamiento y la limpieza.

Después de definir los espacios, se continuó con el diseño de los muebles, donde se incluyen: la cami lla de atención, los muebles de almacenamiento, un escritorio y un librero.

Finalmente, para complementar los espacios de todo el consultorio, se implementaron algunos di seños gráficos en las paredes, los cuales se aco plen al diseño y brinden un ambiente amigable para los pacientes.

40 CONSULTORIO
41 6 36 m 1 18 m 4 43 m 0 75 m 2 5 2 m 0 7 6 m 0 8 0 m Consultorio Pediátrico A A Planta consultorio Corte A-A´

Esquema isométrico

42
Estado antiguo del consultorio

Mesa de examinación

Esquema isométrico

43
Consultorio
Pediátrico Gabinetes
Librero
Escritorio
44 Vista interior 1 Vista interior 3
45 Consultorio Pediátrico Vista interior 2 Vista interior 4
46
Vista interior construido
1
Vista interior construido
3
47 Consultorio Pediátrico
Vista interior construido
2
Vista interior construido
4

Ubicación

PEDIÁTRICO, ENDOCRINOLOGÍA

Pediatra, especializada en endocrinología

Quito-Ecuador Andrés Rosas

Autor:

Quito, Ecuador 2021-2022

Año

El proyecto se encuentra ubicado en la ciudad de Quito, entre la Av. de los Shyris y Eloy Alfaro. Este trabajo se enfocó en el diseño gráfico de las pare des de un consultorio pedíatrico, enfocado en la especialidad de endocrinología.

Para el desarrollo de este consultorio, se empezó con la elaboración de un levantamiento del espa cio. Después, se continuó con el desarrollo de un modelo 3d, con el que se podrían hacer diferentes pruebas de color con los diversos diseños que se propondrían para las paredes.

48 CONSULTORIO
49 4 62 m 3 40 m 0 87 m 0 35 m 2 6 3 m 0 7 9 m 1 1 2 m 0 4 1 m 0 56 m 2 03 m 0 56 m 0 36 m 0 36 m 0 27 m 0 28 m 0 94 m Const. Endocrinología Vista interior 1 consultorio Sección interior
50 7 88 m 4 20 m 0 15 m 3 53 m 1 40 m 0 62 m 1 51 m 0 76 m 1 20 m 1 42 m 1 19 m 1 19 m 0 40 m 2 3 2 m 0 7 9 m 1 8 0 m Diseños de glándulas endocrinólogas Sección interior
51 Const. Endocrinología Vista interior 2 Vista interior 3 Vista interior 4
52
Vista interior construido
1
Vista interior construido
2
53 Const. Endocrinología
Vista interior construido
3

REMODELACIÓN

SUIT CONDOMINIOS EL INCA

Suit ubicada en los condominios el Inca

Ubicación

Quito, Ecuador 2021-2022

Año

Autor:

Quito-Ecuador Andrés Rosas

El proyecto se encuentra ubicado en la ciudad de Quito, entre la Av. Granados y de los Colimes. Este trabajo se enfocó en el diseño interior de una suit.

El plan de necesidades presentado indica que el proyecto es para una persona jóven de 25 años, el cual tenga un buen espacio de trabajo y estudio. También debe contar con ambientes bien ilumina dos y mobiliario nuevo.

Para el diseño del espacio se priorizó un diseño de estilo moderno, donde los muebles, los colores y los accesorios brinden un espacio armonioso para el usuario.

54
55 6,45 N+0.26 N+/-0.00N+0.08 B' 3,2 3,25 1,41 0,12 1,72 2,95 1,92 1,03 B' A A' Remodelación Suit Planta dormitorio Planta suit completa
56 N+2.48m N+0.08m N+0.26m N+/-0.00m 3,25 0,17 1,16 0,17 1,7 6,45 1,72 0,12 1,41 2,14 1,04 Esquemas interior dormitorio suit Corte A-A´ Esquema 1 Esquema 3 Esquema 2 Esquema 4
57 Remodelación Suit
Vista
interior 1 diseño dormitorio Vista interior 2 diseño mobiliario

FACULTAD INGENIERÍA APLICADA

PUCE

Ubicación

Quito, Ecuador 2022-2023

Año

Diseño:

Diseño interior:

Quito-Ecuador Fernando Calle Andrés Rosas

Este proyecto de renderizado fue hecho para la Pontificia Universidad Católica del Ecuador. Las imágenes estan basadas en los edificios existentes y en el nuevo sector propuesto de la fa cultad de ingeniería aplicada en la sede de Nayón.

Las visuales se enfocan en los espacios donde se realizan las distintas actividades de la facultad, donde resaltan:

Las aulas

Los talleres de proyectos

Los espacios de maquinarias

Finalmente, los espacios interiores fueron diseña dos con las distintas especificaciones de las ma quinarias de corte y CNC, y las instalaciones de ventilación y extracción que se utilizarían en diversos edificios de la facultad.

58
59 Facultad Ingeniería Vista exterior 1 aérea Vista interior 1 aula
60 Vista interior 2 sala reunión Vista interior 3 taller
61 Facultad Ingeniería Vista interior 4 taller máquinas Vista interior 5 taller
62 Vista exterior 2 plaza Vista exterior 4 bloques existentes
63 Facultad Ingeniería Vista exterior 3 escalinata

CLÍNICA

Clínica MediQal, consultorios médicos

Ubicación

Quito, Ecuador 2022-2023

Año

Diseño: Diseño interior:

Quito-Ecuador Andrés Rosas Andrés Rosas

Este proyecto de diseño fue realizado en el edificio Fortune Plaza. El propietario del local deseaba re vitalizar los espacios de consulta para las distintas áreas de la salud.

En este caso, el diseño fue realizado para un pe diatra. Se realizarón tanto los muebles como los diseños de las paredes y las ventanas.

64
MEDIQAL
65 Clínica MediQal
66 Render 1 Render 3
67 Clínica MediQal Render 2
68 Foto 1 Foto 3
69 Clínica MediQal Foto 2 Foto 4

Ubicación

EDIFICIO OPAL CONSULTORIO PEDIÁTRICO

Consultorio pediátrico Dra. Diana

Quito-Ecuador Andrés Rosas Andrés Rosas

Diseño: Diseño interior:

Quito, Ecuador 2022-2023

Año

Este consultorio pedíatrico fue diseñado conside rando 4 áreas importantes:

a) Una sala de espera, con área lúdica. b) Un área de lactancia. c) Un área de consulta d) Una zona de examinación

Todas estas partes que conformaban el consultorio estaban totalmente equipadas con las normás de seguridad requeridas para su correcto funciona miento.

Se buscó un enfoque especial para los menores de edad, con el objetivo de que se sientan relaja dos al momento de ir a una consulta.

70
71 Edificio Opal 7.85 6.27 1.29 0.44 4.32 0.22 0.14 0.91 0.24 0.94 0.12 1.20 0.15 2.57 2.46 0.44 3.16 0.94 0.60 0.25 ACCESO Área general 43.7 m2 Baño 2,87 m2 Esc: 1/50 Área lactancia 4,63 m2 Área consulta 12,42 m2 Área lúdica y espera 16.5 m2 Baño 2,87 m2 ACCESO Área examinación 8,47 m27.85 6.27 1.29 0.44 4.32 0.22 0.91 0.80 0.99 0.56 1.55 Esc: 1/50 Planta del proyecto ambientada Planta antes y después del proyecto
72 Esquemas interior dormitorio suit Esquema 1 Esquema 3 Esquema 2 Esquema 4

Edificio

Vista interior 1 sala de espera

Vista interior 2 sala de espera

73
Opal

Vista interior

sala

Vista interior

sala

examinación

74
3
de examinación
4
de

Edificio

75
Opal Vista interior 5 área de lactancia Vista interior 6 área de consulta

Ubicación

PEDIÁTRICO DR.DANNY

Edificio CANOPUS

Quito-Ecuador Andrés Rosas Andrés Rosas

Diseño: Diseño interior:

Quito, Ecuador 2022-2023

Año

El proyecto del Dr. Danny Acosta fue realizado en base a la implementación de legos dentro del di seño.

Para el desarrollo de este trabajo, se fueron cam biando ciertos aspectos del mismo, todos, de acuerdo a los requerimientos del cliente. Estos aspectos iban desde los diseños de las paredes, hasta los colores de los mobiliarios.

76 CONSULTORIO

Edificio

77
Canopus

Vista interior 1 escritorio

Vista interior 2 sin escritorio

78

Edificio

79
Canopus Vista interior 3 rediseño de cocina pequeña Vista interior 4 sala de nebulización
80 Vista interior 5 Foto construido

Edificio

81
Canopus Vista interior 6 Foto construido Vista interior 7 Foto construido

Ubicación

VM ARCHITECTS NEXUS ON TIME

Nexus on Time

Quito-Ecuador VM Architects Andrés Rosas

Diseño: Renderización:

Quito, Ecuador 2022-2023

Año

En el estudio de VM Architects, el trabajo principal fue la realización de modelos 3d para la elabora ción de imágenes digitales, las cuales se utilizarían para las presentaciónes con los clientes de las dis tintas obras.

En el proyecto de Nexus on Time, se crearon renders de unas oficinas destinadas a la repara ción de equipos electrónicos.

82
83
Vista interior Área
1 Nexus on Time
84
Vista interior
Área 2
85 Vista interior Recepción Nexus on Time
86
Vista interior Gerente
87
Vista interior Muro verde
Nexus on Time

Ubicación

VM ARCHITECTS

PROYECTO: CAPELO

Vivienda Unifamiliar

Quito-Ecuador VM Architects Andrés Rosas

Diseño: Renderización:

Quito, Ecuador 2022-2023

Año

Proyecto de una vivienda unifamiliar, enfocado en la realización de imágenes digitales para las pre sentaciones realizadas con los clientes.

88
89 Vista exterior fachada frontal
Proyecto:
Capelo
90 Vista exterior calle
91 Vista exterior patio frontal Proyecto: Capelo
92 Vista interior Dormitorio 1
93 Vista interior Cocina 2 Proyecto: Capelo
94 Vista interior Dormitorio 2
95 Vista interior Sala 1 Proyecto: Capelo
96 Vista interior Dormitorio 3
97 Vista interior Sala 2 Proyecto: Capelo

ANDRÉS ROSAS

2022

Turn static files into dynamic content formats.

Create a flipbook
Issuu converts static files into: digital portfolios, online yearbooks, online catalogs, digital photo albums and more. Sign up and create your flipbook.