Andreea M_Portfolio

Page 1

ANDREEA MITREA ARCHITECTURE | INTERIOR DESIGN PORTFOLIO selected works 2007-2022 RIBA Chartered Member HKICON Member ICOMOS Member HKU MSc(Conservation) | Dean’s Honours List| Distinction HARVARD GSD | Executive Education UAUIM B.Arch | M.Arch
PORTFOLIO OVERVIEW SELECTED WORKS 2007 - 2022 RESEARCH feb 2022- dec 2022 HKU | Dissertation PURCELL | Practical Training RPER | Heritage Research 6 PROJECTS | LEADING 1 PROJECT | 2 ONGOING Archival Research | Heritage Appraisal Framework | Assessing the Values of Cultural Heritage | Site Visits I WORKSHOPS | VOLUNTEERING | EDUCATION jun 2007- jun 2013 Workshops, Volunteering & Education Academic Work | Executive Education | Video & VR Illustrations | Sketches | VI 会议室三楼 3F Meeting Rooms DARRENN may 2020- feb 2022 Senior Design Architect Team Lead Darrenn Holding Ltd., HK 19 PROJECTS | LEADING 7 PROJECTS | 4 ONGOING Mixed-use | Offices | Commercial | Masterplanning | Interior Design | Landscape Design II WELL ARCHITECTURE FMD ARCHITECTS YELLOW OFFICE jan 2017- may 2020 feb 2014- jan 2017 jun 2013- jan 2014 Senior Architect Design Lead WELL Architecture, SH CN 市井言舍建筑设计 Senior Architect Design Lead FMD Architects, SH CN 锋茂建筑设计(上海 Junior Architect Yellow Office, RO 21 PROJECTS | LEADING 4 PROJECTS | 8 BUILT Mixed-use | Offices | Education | Hotel | Facade Design | Interior Design 43 PROJECTS | DESIGNER | 6 BUILT Mixed-use | Offices | Commercial | Education | Masterplanning | Facade Design | Interior Design 2 PROJECTs | DESIGNER | 2 BUILT Interior Design | Furniture Design | Graphic Design Landscape Design III V IV

D A R R E N N

may 2020- feb 2022

Senior Design Architect Team Lead Darrenn Holding Ltd., HK

19 PROJECTS | LEADING 7 PROJECTS | 4 ONGOING

Mixed-use | Interior Design | Offices | Commercial | Masterplanning | | Landscape Design

I

PROJECT OVERVIEW

Name Location
1 572 Dongsheng Technology
2 576
3 589 Unigroup
4 629 H3C
5 630 Binjiang
6 636 Binjiang
7 651 Railway Station
8 655 Yongfeng
9 656 Mahu Xixing Binjiang
10 657 Jiangsan Changhe
11 660 Jianguo East Road Planning Shanghai,
371,500 12 662 Design Competition 1+1 Hong
13 663 Mountain Park Cultural Center Changsha,
14 665 Sonjiang Industrial
Shanghai,
15 666 Jiangbei District Office Ningbo,
16 667 Binjiang Government Office Hangzhou,
41,000 17 668 South Station New City Hangzhou,
18 669 Xihu University StationTOD
19 671 Jushan Creative Park Beijing, CN
DARRENN
Program GFA (sqm)
Park Beijing, CN Mixed-use 120,000
Jushan Hi-Tech Park Beijing, CN Mixed-use 170,000
Headquarters Beijing, CN Office 280,000
Science Park Hangzhou, CN Master Planning 254,000
Urban Design Hangzhou, CN Master Planning 850,000
Culture Center Hangzhou, CN Mixed-use 80,000
Redesign UK Transportation 250
Station TOD Beijing, CN Mixed-use 96500
Hangzhou, CN Mixed-use 68,600
Binjiang Office Hangzhou, CN Office 46,550
CN Master Planning
Kong Museum
CN Cultural 600
Park
CN Master Planning 837,000
CN Office 12,000
CN Office
CN Master Planning 230,000
Hangzhou, CN Master Planning 320,000
Mixed-use 76,000
|
Present Built | Under Construction
May 2020 -

1.01

Jiangsan Binjiang Office

China, Hangzhou| 2021

position| type | phase | area | year |

team lead mixed-use schematic design 46,550 sqm 2020

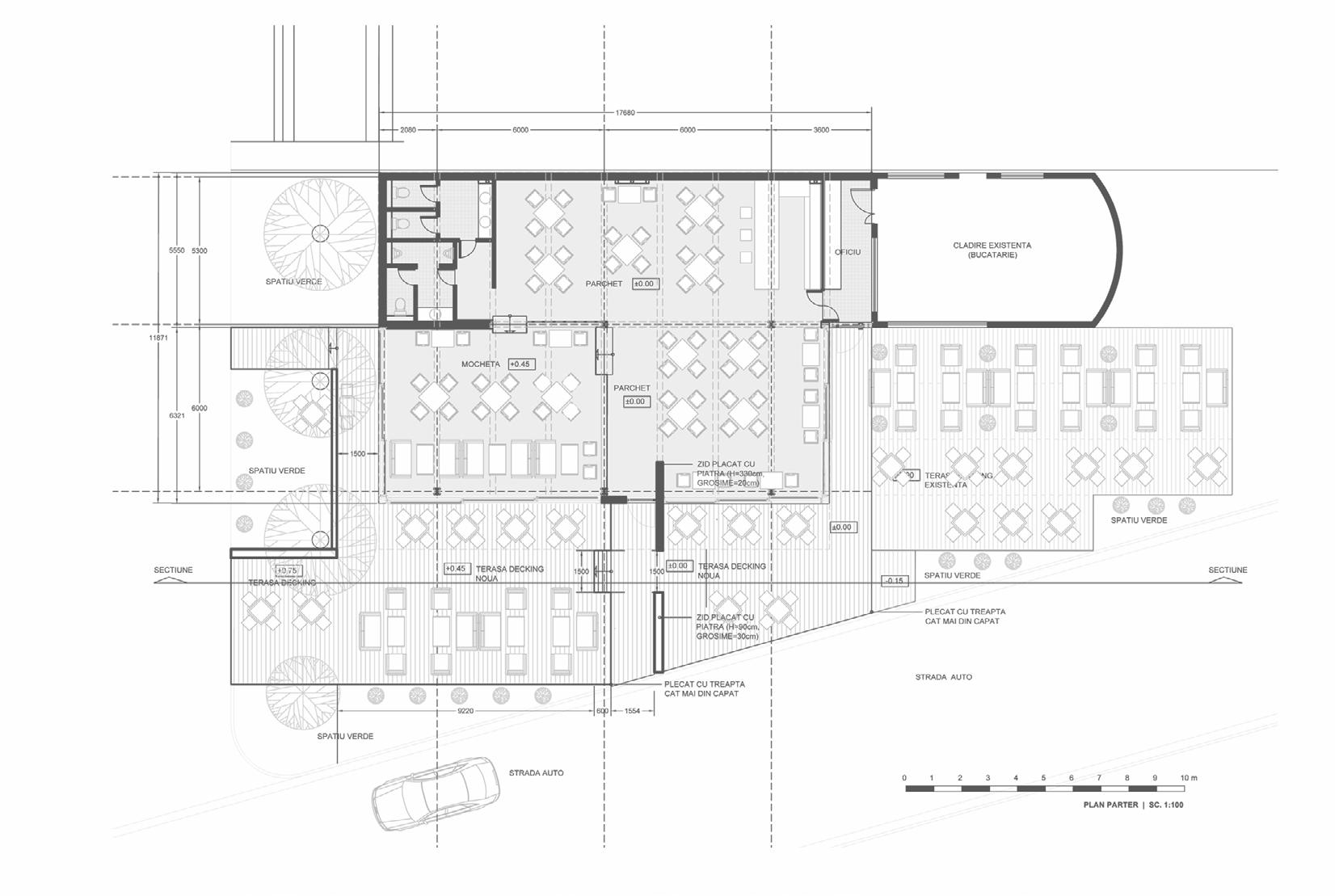
Located in Binjiang District, Hangzhou, with a total land area of 13,300sqm, the site is designated for office, talent apartment, youth hub and commercial facilities.

Inspired by the local culture and landscape, the shape of the building takes the river Qiantang Jiang in Hangzhou as a starting point in its design. The building form of the wavy tea terraces is shaped into the main building area for office, youth hub and commercial facilities. The design raised the ground floor of the podium to connect the east and west squares, enhancing the permeability of the space on both sides of the building.

The facade design echoes the traditional design of the ancient tower in Hangzhou, incorporates modern elements, and also reflects the high-tech features of Binjiang District.

The landscape enhances the whole design by merging together with the building’s shape into a new inclusive space.

Architectural Conceptual Design of Village-level Reserved Land in Jiangsan Community, Changhe Street, Binjiang District 滨江区长河街道江三社区 村级留用地统筹开发项目建筑概念设计 设计概念 Design Concept 设计从城市和自然的关系出发,以自然的梯田为设计出发点。通过不 同层次标高的平台,形成多层次的自然景观。达到建筑与生态的和谐统一 The design starts from the relationship between the city and nature, with natural terraces as the design starting point. Platforms with the same level of elevation form multi-level natural landscape. Achieve the harmony between architecture and ecology. 杭州茶梯田形状 TERRACED MASSING 波浪设计 WAVY DESIGN 自然形状 NATURAL SHAPES 设计推演 Massing Evolution 基地 THE SITE 该场地位于杭州市滨江区,总土地面积为13,300平方米, 集合孵化器、公寓式酒店和商业功能 Located Binjiang District, Hangzhou, with total land area of 13,300sqm, the site is designated for incubator, apartment hotel and commercial facilities. 波浪茶梯田形状 WAVY TEA TERRACE SHAPE 受当地文化和景观的启发, 建筑的形状以杭州茶梯田为设计起点 Inspired by the local culture and landscape, the shape of the building takes the tea terraces in Hangzhou feature as starting point in its design. 建筑 MASSING 自然景观的形状被塑造成企业孵化器和商业设施的主要建筑区域 The natural landscape shape is extruded and becomes the main building area for the business incubator and commercial facilities 中空设计 HALLOW DESIGN & GROUND CONNECTIONS 将裙房的底层架空,连通东西广场, 增强了建筑两侧空间的渗透性,建立地标性的门户形象 The design raised the ground floor of the podium to connect the east and west squares, enhancing the permeability of the space on both sides of the building. The West Square faces the crossroads, which convenient for the flow of people. 景观 LANDSCAPE 景观与建筑物的形状融合成一个新的包容性空间, 为行人创造了更好的体验,从而改善了整体设计 The landscape enhances the whole design by merging together with the building's shape into a new inclusive space and creating better experience for the users. 立面 Elevation 北立面 Facade North 南立面 Facade South 东立面 Facade East 西立面 Facade West 外墙立面材料 Facade Cladding Materials 图案涂铝 Ruukki表面设计闪闪发光的雪 Pattern-Painted Aluminium: Ruukki surface design Glistening Snow Ruukki高光玻璃: Ruukki RAL7045远程淡蓝色玻璃 Ruukki High Gloss Glass: Ruukki RAL7045 Light Blue Glass 铝百叶窗: 深灰色 Aluminium Louvers: Dark Grey 铝复合材料: Ruukki Primo金属白 Aluminium Composite Material: Ruukki Primo Metallic White 铝复合材料: Ruukki Primo深灰色金属 Aluminium Composite Material: Ruukki Primo Dark Grey Metallic 建筑设计 Architectural Design 建筑设计 Architectural Design 2 传统建筑灵感 TRADITIONAL ARCHITECTURE INSPIRATION 立面设计放大了杭州古塔外挑的层层檐口,融入现代化元素, 呼应古塔的传统设计,同时体现滨江区高科技的特征 The facade design echoes the traditional design of the ancient tower in Hangzhou, incorporates modern elements, and also reflects the hightech features of Binjiang District Jiangsan
Hangzhou I 2020 1.01 1.01 钱塘江'S'形状 Qiantang Jiang 'S' SHAPE 建筑的形状以钱塘江为设计起点 Inspired by the local culture and landscape, the shape of the building takes the river Qiantang Jiang in Hangzhou as starting point in its design. 波浪茶梯田 Wave Tea Terraces 波浪茶梯田的建筑形态 塑造成企业孵化器和商业设施的主要建筑区域 The building form of the wavy tea terraces is shaped into the main building area for the business incubator and commercial facilities
Binjiang Office I China,
Jiangsan Binjiang Office I China, Hangzhou I 2020 1.01 1.01 Architectural Conceptual Design of Village-level Reserved Land in Jiangsan Community, Changhe Street, Binjiang District 滨江区长河街道江三社区 村级留用地统筹开发项目建筑概念设计 2 街景视角图- 北侧 Eye View- North 建筑设计 Architectural Design Architectural Conceptual Design of Village-level Reserved Land in Jiangsan Community, Changhe Street, Binjiang District 滨江区长河街道江三区社村级留用地统筹开发项目建筑概念设计 4.4 总平面设计 Masterplan 0 10 20 16F H=60m 21F H=80m 5F H=20.4m 滨城路BinchengRoad 建业路 Jianye Road 建筑剖面图 Building Section 办公室 OFFICE 停车库 CAR PARK INCUBATOR THEME CATERING RETAIL 孵化器 主题餐饮 零售 N A A' 公寓式酒店 Apartment Hotel 办公室 Office 孵化器 Incubator 晚托班 Evening Nursery 餐饮 F&B 主题餐饮Theme Catering 零售 Retail 停车库 Car Park F&B 餐饮 APARTMENT HOTEL 公寓式酒店 5.1.6 56 Architectural Conceptual Design of Village-level Reserved Land in Jiangsan Community, Changhe Street, Binjiang District 滨江区长河街道江三区社村级留用地统筹开发项目建筑概念设计 立面设计 Facade Design 裙房设计 Podium Design 城市花园平台 City Garden Platform 塔楼立面设计 Tower Facade Design 中空设计 Hollow Design 商业设计 Commercial Design 花园平台 Green Terrace 5.1.9 立面风格参考 Elevation Style Reference 55 Architectural Conceptual Design of Village-level Reserved Land in Jiangsan Community, Changhe Street, Binjiang District 滨江区长河街道江三区社村级留用地统筹开发项目建筑概念设计 铝复合材料 Aluminium Composite Material Colour: White Location: Exterior wall 颜色:白色 位置:外墙 玻璃 Glass Colour: High Gloss Location: Window 颜色:高光泽 位置:窗口 调色板系列 Colour Pallete Series 花纹铝 Pattern-Painted Aluminium 颜色:银白色 位置:立面 Colour: Silver White Location: Facade 涂有颜色的铝复合材料可提供出色的表面平整 度,并能实现大尺寸产品的生产。 Colour-coated aluminum composite materials offer excellent surface flatness and enable big product sizes. 当在非常接近的位置观察时,金属板上的涂漆 图案使表面更活泼。 Painted pattern on a metal sheet makes the surface livelier when observed at very close proximity. 玻璃为立面创造了高光泽度和耐用的平坦表 面。 Glass creates a high gloss and durable flat surface for the facade. 建筑设计分析 Architectural Design Analysis 5.1.8 功能定位 Functional Positioning 3.2 潮创活力空间 Creative vitality space 年轻人的休闲活动 Leisure for young people 互动交流 开放商业空间 健康生活 多元活动 GENERATE INTERACTION CREATIVE OPEN SPACE HEALTHY LIFSTYLE DIVERSE ACTIVITIES 绿色宜居空间 Green liveable space 创意互动交流 Relaxing space for interaction 多元活力型的青年社区 A diverse and vibrant youth community 构筑“开放性、创意性、体验型、活力型”的青年社区 Create an "open, creative, experiential, and dynamic" youth community 36 Architectural Conceptual Design Village-level Reserved Land Jiangsan Community, Changhe Street, Binjiang District 滨江区长河街道江三区社村级留用地统筹开发项目建筑概念设计 建筑功能 Building Function 公寓式酒店 APARTMENT HOTEL 24.000m2 2-21F: 3.6 m 轻餐饮 F&B 1200 m2 1F: m 孵化器 INCUBATOR 5500 m2 晚托班 EVENING NURSERY 650 m2 m 零售 RETAIL 900 m2 m 主题餐饮 THEME CATERING 300 m2 办公室 OFFICE 14.000 m2 2-15 F: 4.2 m 5.1.1 休闲乐活区Lohasarea 潮创活力区Creativevitalityarea 5F 4F 3F 2F 1F 6F 电影院 Cinema room 卡拉OK室 Karaoke room VR AR游戏室 健身室 Gym room 会议/自修区 Meeting/ study area 聊天区 Chatting area 游戏厅 Game room 青年中心 Youth Hub 建筑功能分区 Building Functional Zoning 5.1.2 Architectural Conceptual Design Village-level Reserved Land Jiangsan Community, Changhe Street, Binjiang District 滨江区长河街道江三区社村级留用地统筹开发项目建筑概念设计 建筑功能分区 Building Functional Zoning 5.1.2 3F 2F 1F 主题餐厅 Themed restaurant 超级市场 Supermarket 晚托班 Evening nursery 特色美食广场 Featured food court 咖啡店 Cafe 零售店 Retail shop 商业Commercial 餐饮F&B 轻餐饮 Cafe 商业设施 Commercial Facilities 公寓房间 Apartment rooms 公寓大堂 Apartment lobby 公寓大堂 Apartment lobby 人才公寓 Talent Apartment 建筑功能分区 Building Functional Zoning 5.1.2
人行路线分析 Pedestrian Flow Analysis 交通流线分析 Transportation Flow Analysis 停车系统分析 Parking System Design 40 20 10 消防路线分析 Fire Route Analysis 办公楼落客区 Drop off area for office building 公寓式酒店落客区 Drop off area for apartment hotel EVA flow 消防路线 Car park access Drop off area 地下车库出入口 落客区 Pedestrian flow 人行路线 Car flow 车行路线
1.01 汽车上落客区 Car Drop Off Area 北侧广场 North Plaza 夜光音乐喷泉 Luminous Music Fountain 景观设计意向 Landscape Intention 办公楼落客区 Drop off area for office building 公寓式酒店落客区 Drop off area for apartment hotel Pedestrian flow Car flow 夜景鸟瞰图- 西侧 Night Half Bird View- West 1.01
Jiangsan Binjiang Office

UNIVERSAL DESIGN PRINCIPLES

UNIVERSAL DESIGN PRINCIPLES

UNIVERSAL DESIGN PRINCIPLES

UNIVERSAL DESIGN PRINCIPLES

UNIVERSAL DESIGN PRINCIPLES

UNIVERSAL DESIGN

EQUITABLE USE FLEXIBILITY IN USE SIMPLE + INTUITIVE USE PERCEPTIBLE INFORMATION

TOLLERANCE

办公楼大堂设计 Office Buildings Lobby 贵宾室 VIP Room 2.1 米白色大理石 Light Beige Marble column finishes 棕色大理石围边地台 Brown Marble Flooring Border Lobby Area Materials 大堂区域效果图 大堂区域材料 办公楼大堂设计 Office Buildings Lobby Design VIP Room Area Materials 贵宾室材料 米白色大理石 牆身飾面 Light Beige Marble wall finishes Jiangsan Binjiang Office I China, Hangzhou I 2020 1.01 2.1 米色大理石地台 Beige Marble Flooring 米白色石材 牆身飾面 Creamy stone wall finishes 米白色大理石 柱身飾面 Light Beige Marble column finishes 棕色大理石围边地台 Lobby Rendering Lobby Area Materials 大堂区域效果图 大堂区域材料 办公楼大堂设计 Office Buildings Lobby Design 4 5 1 2 3 1 2 3 不锈钢 Stainless steel UNIVERSAL DESIGN PRINCIPLES UNIVERSAL DESIGN PRINCIPLES EQUITABLE USE FLEXIBILITY IN USE SIMPLE INTUITIVE USE PERCEPTIBLE INFORMATION TOLLERANCE FOR ERROR SIZE + SPACE FOR APROACH / USE The design useful and marketable to people with diverse abilities The design accommodates wide range of individual preferences abilities Use of the design easy to understand, regardless of the user’s experience, knowledge, language skills or current concentration level The design communicates necessary information effectively to the user, regardless of ambient conditions or the user’s sensory abilities The design minimizes hazards and the adverse consequences of accidental or unintended actions The design can be used efficiently comfortably and with minimum fatigue Appropriate size + space provided for approach, reach, manipulation, and use regardless of the user’s body size, posture, or mobility
PRINCIPLES EQUITABLE USE FLEXIBILITY IN USE SIMPLE INTUITIVE USE PERCEPTIBLE INFORMATION TOLLERANCE FOR ERROR LOW PHISICAL EFFORT SIZE + SPACE FOR APROACH / USE The design useful and marketable to people with diverse abilities The design accommodates wide range of individual preferences abilities Use of the design easy to understand, regardless of the user’s experience, knowledge, language skills or current concentration level The design communicates necessary information effectively to the user, regardless of ambient conditions or the user’s sensory abilities The design minimizes hazards and the adverse consequences of accidental or unintended actions The design can be used efficiently comfortably and with minimum fatigue Appropriate size + space provided for approach, reach, manipulation, and use regardless of the user’s body size, posture, or mobility
USE
USE
TOLLERANCE FOR ERROR LOW
SIZE
USE The design is useful and marketable to people with diverse abilities The design accommodates wide range of individual preferences abilities Use of the design is easy understand, regardless of the user’s experience, knowledge, language skills or current concentration level The design communicates necessary information effectively the user, regardless of ambient conditions or the user’s sensory abilities The design minimizes hazards and the adverse consequences of accidental or unintended actions The design can be used efficiently comfortably and with minimum fatigue Appropriate size space provided for approach, reach, manipulation, and use regardless of the user’s body size, posture, or mobility
EQUITABLE
FLEXIBILITY IN
SIMPLE INTUITIVE USE PERCEPTIBLE INFORMATION
PHISICAL EFFORT
+ SPACE FOR APROACH
EQUITABLE USE FLEXIBILITY IN USE SIMPLE + INTUITIVE USE PERCEPTIBLE INFORMATION TOLLERANCE FOR ERROR LOW PHISICAL EFFORT SIZE + SPACE FOR APROACH / USE The design useful and marketable to people with diverse abilities The design accommodates wide range of individual preferences abilities Use the design easy to understand, regardless of the user’s experience, knowledge, language skills or current concentration level The design communicates necessary information effectively to the user, regardless of ambient conditions the user’s sensory abilities The design minimizes hazards and the adverse consequences of accidental or unintended actions The design can be used efficiently + comfortably and with minimum fatigue Appropriate size space is provided for approach, reach, manipulation, and use regardless of the user’s body size, posture, or mobility
EQUITABLE USE FLEXIBILITY IN USE SIMPLE INTUITIVE USE PERCEPTIBLE INFORMATION TOLLERANCE FOR ERROR LOW PHISICAL EFFORT SIZE + SPACE FOR APROACH / USE The design useful and marketable to people with diverse abilities The design accommodates wide range of individual preferences abilities Use of the design is easy to understand, regardless of the user’s experience, knowledge, language skills or current concentration level The design communicates necessary information effectively to the user, regardless of ambient conditions or the user’s sensory abilities The design minimizes hazards and the adverse consequences of accidental or unintended actions The design can be used efficiently comfortably and with minimum fatigue Appropriate size space provided for approach, reach, manipulation, and use regardless the user’s body size, posture, mobility
EQUITABLE USE FLEXIBILITY IN USE SIMPLE + INTUITIVE USE PERCEPTIBLE INFORMATION TOLLERANCE FOR ERROR LOW PHISICAL EFFORT SIZE + SPACE FOR APROACH / USE The design useful and marketable to people with diverse abilities The design accommodates wide range of individual preferences abilities Use the design easy to understand,
user’s
abilities
design minimizes hazards and the adverse consequences of accidental or unintended actions The design
be used efficiently + comfortably
fatigue Appropriate
space
provided for
reach,
user’s
mobility
regardless of the
experience, knowledge, language skills or current concentration level The design communicates necessary information effectively to the user, regardless of ambient conditions or the user’s sensory
The
can
and with minimum
size
is
approach,
manipulation, and use regardless of the
body size, posture, or
FOR ERROR LOW PHISICAL EFFORT SIZE + SPACE FOR APROACH / USE The design useful and marketable to people with diverse The design accommodates wide range of individual preferences abilities Use the design easy to understand, regardless of the user’s experience, knowledge, language skills or current concentration level The design communicates necessary information effectively to the user, regardless of ambient conditions the user’s sensory abilities The design minimizes hazards and the adverse consequences of accidental or unintended actions The design can be used efficiently + comfortably and with minimum fatigue Appropriate size space is provided for approach, reach, manipulation, and use regardless of the user’s body size, posture, or mobility The design useful and marketable to people with diverse abilities The design accomodates wide range of individual preferences abilities. Use of the design in easy to understand, regardless the user's experience, knowledge, language skills or current concentration level. The design communicates necessary information effectively to the user, regardless of ambient conditions the user's sensory abilities. The design minimizes hazards and the adverse consequences of accidental or unintended actions. The design can be used efficiently + comfortably and with minimum fatigue. Appropriate size + space provided for approach, reach, manipulation, and use regardless of the user's body size, posture, or mobility. EQUITABLE USE TOLLERANCE FOR ERROR LOW PHISICAL EFFORT SIZE + SPACE FOR APPROACH PERCEPTIBLE INFORMATION FLEXIBILITY IN USE SIMPLE + INTUITIVE USE IMPLEMENTING ACCESSIBILITY IMPLEMENTING ACCESSIBILITY ACCESSIBLE SPACES FOR EVERYONE BARRIER FREE SANITARY EQUIPMENT TACTILE GUIDES ON PRIMARY CIRCULATIONS BRAILLE WRITING SYSTEM SIGNAGE ACCESSIBLE MAIN CORRIDOR © 2021 Jones Lang LaSalle IP, Inc. All rights reserved. IMPLEMENTING ACCESSIBILITY ACCESSIBLE SPACES FOR EVERYONE BARRIER FREE SANITARY EQUIPMENT TACTILE GUIDES ON PRIMARY CIRCULATIONS BRAILLE WRITING SYSTEM SIGNAGE ACCESSIBLE MAIN CORRIDOR © 2021 Jones Lang LaSalle IP, Inc. All rights reserved. IMPLEMENTING ACCESSIBILITY ACCESSIBLE SPACES FOR EVERYONE BARRIER FREE SANITARY EQUIPMENT TACTILE GUIDES ON PRIMARY CIRCULATIONS BRAILLE WRITING SYSTEM SIGNAGE ACCESSIBLE MAIN CORRIDOR © 2021 Jones Lang LaSalle IP, Inc. All rights reserved.
ACCESSIBILITY ACCESSIBLE SPACES FOR EVERYONE BARRIER FREE SANITARY EQUIPMENT TACTILE GUIDES ON PRIMARY CIRCULATIONS BRAILLE WRITING SYSTEM SIGNAGE ACCESSIBLE MAIN CORRIDOR © 2021 Jones Lang LaSalle IP, Inc. All rights reserved.
ACCESSIBILITY ACCESSIBLE SPACES FOR EVERYONE BARRIER FREE SANITARY EQUIPMENT TACTILE GUIDES ON PRIMARY CIRCULATIONS BRAILLE WRITING SYSTEM SIGNAGE ACCESSIBLE MAIN CORRIDOR © 2021 Jones Lang LaSalle IP, All rights reserved. ACCESSIBLE SPACES FOR EVERYONE BARRIER FREE SANITARY EQUIPMENT TACTILE GUIDES ON PRIMARY CIRCULATIONS BRAILLE WRITING SYSTEM LANGUAGE ACCESSIBLE MAIN CORRIDOR PROPOSED TECHNOLOGY INTEGRATION FOR PANDEMIC PREVENTION AUTOMATIC SLIDING DOOR TEMPERATURE SCREENING KIOSK TOUCHLESS HAND SANITISER PROPOSED TECHNOLOGY INTEGRATION FOR PANDEMIC PREVENTION AUTOMATIC SLIDING DOOR TEMPERATURE SCREENING KIOSK TOUCHLESS HAND SANITISER © 2021 Jones Lang LaSalle IP, Inc. All rights reserved. PROPOSED TECHNOLOGY INTEGRATION FOR PANDEMIC PREVENTION AUTOMATIC SLIDING DOOR TEMPERATURE SCREENING KIOSK TOUCHLESS HAND SANITISER © 2021 Jones Lang LaSalle IP, Inc. All rights reserved. PROPOSED TECHNOLOGY INTEGRATION FOR PANDEMIC PREVENTION AUTOMATIC SLIDING DOOR TEMPERATURE SCREENING KIOSK TOUCHLESS HAND SANITISER © 2021 Jones Lang LaSalle IP, Inc. All rights reserved. 贵宾室 VIP Room VIP Room Rendering 贵宾室效果图 2.7 VIP Room Area Materials 贵宾室材料 米白色石材 牆身飾面 Creamy stone wall finishes 米白色大理石 牆身飾面 Light Beige Marble wall finishes 米色大理石地台 Beige Marble Flooring 皮革质感墙纸 Leather Texture Wallpaper 3 4 4 1 1 2 2 1.01
IMPLEMENTING
IMPLEMENTING
Complex Project Design 感知谷产业综合体项目设计 标准层电梯厅 Typical Lift Lobby Perception Valley Industrial Complex Project Design 感知谷产业综合体项目设计 主电梯厅设计 Main Lift Lobby Design 2.2 主电梯厅设计 Main Lift Lobby Design 2.2 Main Lift Lobby Design Main 主电梯厅设计 主电梯厅材料 米白色石材 牆身飾面 Creamy wall finishes 1 4 1 2 3 2.5 标准层洗手间设计 Typical Washrooms 强� 合用前室 男�生� �物� 2.4 标准层电梯厅 Typical Lift Lobby Typical Lift Lobby Materials 标准层电梯厅材料 米白色大理石 Light Beige Marble Wall Finishes Pattern non-slip 米白色大理石 Light Beige Marble basin counter 棕色防火復合隔板 Brown compact board system 合用前室 Typical Washrooms Materials 标准层洗手间材料 29 弱� 强� �� 前室 �� 上 下 上 �物� 育�室 �物� 合用前室 10.9 强� 前室 2.4 标准层电梯厅 Typical Lift Lobby Typical Lift Lobby Rendering Typical Lift Lobby Materials 标准层电梯厅效果图 标准层电梯厅材料 1 2 2 3 米色大理石地台 Beige Marble Flooring 白漆天花饰面 White Paint Ceiling Finishes 米白色大理石 牆身飾面 Light Beige Marble Wall Finishes 4 2 3 不锈钢 Stainless steel 米白色石材 牆身飾面 Creamy stone wall finishes 米色大理石图案 防滑地砖 Beige Marble Pattern non-slip flooring tile 米白色大理石 洗手台 Light Beige Marble basin counter 棕色防火復合隔板 Brown compact board system 强� �� �� �物� 育�室 Typical Washrooms Rendering Typical Washrooms Materials 标准层洗手间设计 标准层洗手间材料 2.5 标准层洗手间设计 Typical Washrooms 5 不锈钢 Stainless steel 3 4 5 1 2 Jiangsan Binjiang Office I China, Hangzhou I 2020 1.01 1.01

Ningbo

Jiangbei District Office

China, Ningbo| 2021

position| type | phase | area | year |

team lead office schematic design 12,000 sqm 2021

The site is located at the riverside location of Sanjiangkou in Jiangbei Core Area, with a total land area of 6,100sqm and it is designated for business and financial functions.

Ningbo is China’s first batch of cities to open a port, the earliest trade port, and China’s earliest “window” in commerce and trade. The site’s location witnessed the transformation of Sanjiangkou from the “window” of the past Chinese commerce and foreign exchanges to today’s “window” of Ningbo urban culture and urban commerce.

The building takes the “window” as the design concept. The architectural layout addopted ensures to maximize the view towards Huaishu Park and Yuyao River. From the inside out, the structure closely connects visually the environment and the interior space, aiming to create a transparent and interactive high-quality work area for the users.

1.02
Conceptual Design for Plot 9 JB01-02-02-d, Jiangbei District , Ningbo 宁波江北区9号地块 JB01-02-02-d 建筑概念设计 2 南侧夜间街景视角图 South Night Time Street View 建筑设计 Architectural Design
Conceptual Design for Plot 9 JB01-02-02-d, Jiangbei District , Ningbo 宁波江北区9号地块 JB01-02-02-d 建筑概念设计 设计概念 Design Concept 从内而外,应该通透, 让室内能够感知室外的景观,感受历史长河的流淌 从外对内,应该让世人读懂这个小窗折射的内容: 宁波稳重而均衡的商业精神,厚重而远瞻的商业性格 From the inside out, should be transparent, so that indoors can perceive the outdoor landscape and feel the flow of the long river of history From the outside to the inside, the world should be able to understand the content reflected in this small window: Ningbo's steady and balanced business spirit, heavy and forward-looking business character. 基地位于三江口的拥江位置,
The site is located
设计推演 Massing Evolution 基地 THE SITE 该场地位于江北核心区, 总土地面积为6,100平方米, 集合商业和商务金融功能 The site is located in Jiangbei Core Area, with a total land area of 6,100sqm, designated for businesws and financial functions. 增加望江的景观视角 MAXIMISE THE VIEWING ANGLE TO YUYAO RIVER 依托南侧近水的区位优势, 布置东西长、南北短的建筑布局, 确保更多办公空间能看到槐树公园和余姚江 The building adopts an architectural layout which is long from east to west and short from north to south, ensuring that more office spaces can see Huaishu Park and Yuyao River. 与大自然结合 COMBINE WITH NATURE 设计将大自然结合室内场所, 将部分建筑突出的 空间打造成城市花园平台, 与余姚江形成良好的 视觉交互界面 The design combines nature with indoor places, and transforms some of the prominent spaces of the building into an urban garden platform, forming good visual interaction interface with Yuyao River. 中空设计 HALLOW DESIGN 建筑是一个外向的综合体, 建筑内部采用中空设计, 形成中央中庭。设计使光线和人流通过建筑物 The building is an extroverted complex, the interior of the building adopts hollow design to form an central atrium. The design allows natural light and people to flow through the building. 景观 LANDSCAPE 景观与建筑物的形状融合成一个新的包容性空 间,为行人创造了更好的体验,从而改善了整体 设计。 The landscape enhances the whole design by merging together with the building into a new inclusive space and creating better experience for the users. 立面 Elevation 南立面 Facade South 东立面 Facade East 西立面 Facade West 建筑设计 Architectural Design 1 现代简约立面 MODERN MINIMALIST FACADE 采用现代简约线条。 南侧的立面采用通透的建筑物料, 让自然光透入。立面对建筑内部发生的活动做出 互动,也赋予了建筑独特的视觉形象 Use modern minimalist lines. The facade on the south side uses transparent building materials to allow natural light to penetrate. The facade interacts with the activities happening inside the building, which also gives the building a unique visual image. ? 窗口 WINDOW 外墙立面材料 Facade Cladding Materials 南侧半鸟瞰图 South Half Bird View 外墙铝面板: 表面设计 :亮灰色 Aluminium Panel: Surface design Glossy Gray 高光玻璃幕牆: 远程深蓝色玻璃 High Gloss Glass Facade: Dark Blue Glass 高光玻璃幕牆: 淡蓝色玻璃 High Gloss Glass: Light Blue Glass 高光玻璃幕牆: 远程深蓝色玻璃 High Gloss Glass Facade: Dark Blue Glass 铝百叶窗: 深灰色 Aluminium Louvers: Dark Grey 30米 30米 建筑功能 Building Function 金融俱乐部 Financial club 商务办公室 Business Office 高级餐厅 High-end restaurant 商业 Commercial 3F 2F 1F 4F 5F 6F 7F 8F 9F 10F Ningbo Jiangbei District Office I China, Ningbo I 2021 1.02 1.02 槐树公园 Huai Shu Park 交通流线分析 Transportation Flow Analysis Car flow 室内设计和交通系统规划 Interior Design And Transportation Network 3 室内设计概念 Interior Design Concept bringing people an unforgettable visual experience. 室内空间采用特色造型置于两侧位置 优点: - 盒子造形之间作出互动, 增加趣味 - 利用墙身作支撑可减少柱子的出现 - 室内空间与窗外景观视线无阻挡 Features are placed at two sides of the space Pros: - Interactive between boxes - The boxes are supported by wall structure to reduce the number of column - Interior spatial can enjoy the grestest view from inside to outside 中央中庭设计 Atrium Design 西侧街景视角图 West Street View Conceptual Design for Plot 9 JB01-02-02-d, Jiangbei District Ningbo 宁波江北区9号地块 JB01-02-02-d 建筑概念设计 室内设计和交通系统规划 Interior Design And Transportation Network 3 室内设计概念 Interior Design Concept 室内空间采用特色造型置于两侧位置 优点: - 盒子造形之间作出互动, 增加趣味 - 利用墙身作支撑可减少柱子的出现 - 室内空间与窗外景观视线无阻挡 Features are placed at two sides of the space Pros: - Interactive between boxes - The boxes are supported by wall structure to reduce the number of column - Interior spatial can enjoy the grestest view from inside to outside 中央中庭设计 Atrium Design 西侧街景视角图 West Street View Conceptual Design for Plot 9 JB01-02-02-d, 宁波江北区9号地块 JB01-02-02-d 室内设计和交通系统规划 Interior Design And Transportation Network 3 室内设计概念 Interior Design Concept 延续“窗口”的设计概念, 目标为办公人士打造通透、促进互动的高质量工作空间。 大大小小的盒子在不同楼层向中央中庭延伸, 形成有趣的开放式办公和休息区, 促进人们交流互动之外, 同时为人们带来难忘的视觉体验。 Continuing the design concept of "window", the goal is to create transparent and interactive high-quality work space for office workers. Large and small boxes extend to the central atrium on different floors, forming interesting open office and rest areas, promoting people's communication and interaction, and at the same time bringing people an unforgettable visual experience. 室内空间采用特色造型置于两侧位置 优点: - 盒子造形之间作出互动, 增加趣味 - 利用墙身作支撑可减少柱子的出现 - 室内空间与窗外景观视线无阻挡 Features are placed at two sides of the space Pros: - Interactive between boxes - The boxes are supported by wall structure to reduce the number of column - Interior spatial can enjoy the grestest view from inside to outside 中央中庭设计 Atrium Design 西侧街景视角图 West Street View 开放式办公和休息区 Opened Office and Resting Area 中央中庭效果图 Atrium Rendering 办公区 Office Area
见证着三江口从古代中国商贸对外交流的“窗口”, 转变成现今宁波都市文化和城市商业“窗口”
at the riverside location of Sanjiangkou, Witnessing the transformation of Sanjiangkou from the "window" of the past Chinese commerce and foreign exchanges to today's "window" of Ningbo urban culture and urban commerce
南侧夜间街景视角图 South Night Time Street View 西南侧鸟瞰图 Southwest Bird View 总平面设计图 Masterplan 2 规划道路(Tobedeveloped) 江安路JiangAnRoad 总平面设计图 Masterplan 0.235891063 12.15*8=97 Value Unit 数值 Value 单位 Unit Above ground Below ground Item 项目Item Site area Total floor area Economical and Technical indicators Plot ratio Green ratio Building height Basement car parking Site coverage 商 Commercial (m2) 4,200 Carpark Mep Car Access Point Highrise Building Setback Line Building Setback Line Site Boundary Ningbo Jiangbei District Office China, Ningbo I 2021 1.02 槐树公园 Huai Shu Park 江安路JiangAnRoad 规划路(Tobedeveloped) 余姚江 YuYao River 槐树路HuaiShuRoad 槐树公园 Huai Shu Park 江安路JiangAnRoad 规划路(Tobedeveloped) 余姚江 YuYao River 槐树路HuaiShuRoad 人行路线分析 Pedestrian Flow Analysis 交通流线分析 Transportation Flow Analysis 槐树公园 Huai Shu Park 江安路JiangAnRoad 规划路(Tobedeveloped) 余姚江 YuYao River 槐树路HuaiShuRoad P P 停车系统分析 Parking System Design 槐新路HuaiXinRoad 槐树公园 Huai Shu Park 江安路JiangAnRoad 规划路(Tobedeveloped) 余姚江 YuYao River 槐树路HuaiShuRoad 10 20 消防路线分析 Fire Route Analysis EVA flow 消防路线 Car park access flow Car park access Car flow Drop off area 地下车库出入流线 地下车库出入口 车行路线 落客区 Pedestrian flow 人行路线 交通系统规划 Transportation Network 延续“窗口”的设计概念, 目标为办公人士打造通透、促进互动的高质量工作空间。 大大小小的盒子在不同楼层向中央中庭延伸, 形成有趣的开放式办公和休息区, 促进人们交流互动之外, 同时为人们带来难忘的视觉体验。 Continuing the design concept of "window", the goal is to create transparent and interactive high-quality work space for office workers. Large and small boxes extend to the central atrium on different floors, forming interesting open office and rest areas, promoting people's communication and interaction, and at the same time bringing people an unforgettable visual experience. 室内空间采用特色造型置于两侧位置 优点: - 盒子造形之间作出互动, 增加趣味 - 利用墙身作支撑可减少柱子的出现 - 室内空间与窗外景观视线无阻挡 Features are placed at two sides of the space Pros: - Interactive between boxes - The boxes are supported by wall structure to reduce the number of column - Interior spatial can enjoy the grestest view from inside to outside P P P 开放式办公和休息区 Opened Office and Resting Area 办公区 Office Area 1.02 Conceptual Design for Plot 9 JB01-02-02-d, Jiangbei District Ningbo 宁波江北区9号地块 JB01-02-02-d 建筑概念设计 7.4 开放式办公和休息区 Opened Office and Resting Area 7.4 中央中庭效果图 Atrium Rendering 设计推演 Massing Evolution 3.3 建筑以“窗口”为设计概念, 从内而外,建筑紧密连系余姚江与室内空间, 目标为办公人士打造通透、促进互动的高质量工作空间 从外对内,现代简约的建筑立面赋予了建筑独特的视觉形象 The building takes "window" as the design concept, From the inside out, the building closely connects the Yuyao River and the interior space, aiming to create a transparent and interactive high-quality work space for office workers From the outside to the inside, the modern and simple building facade gives the building a unique visual image 设计推演 Massing Evolution 3.3 建筑以“窗口”为设计概念, 从内而外,建筑紧密连系余姚江与室内空间, 目标为办公人士打造通透、促进互动的高质量工作空间 从外对内,现代简约的建筑立面赋予了建筑独特的视觉形象 The building takes "window" as the design concept, From the inside out, the building closely connects the Yuyao River and the interior space, aiming to create a transparent and interactive high-quality work space for office workers From the outside to the inside, the modern and building facade gives the building a unique visual image
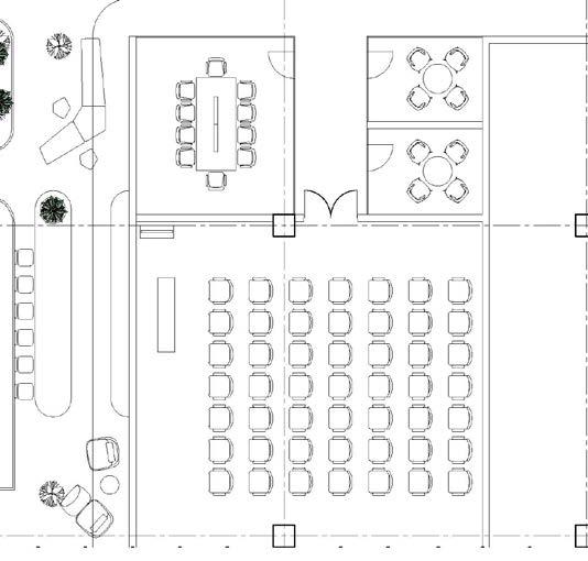
会议大厅设计 Auditorium Design 3.1 Vinyl Flooring 会议大厅设计 Auditorium Design Laminated sheet 高光层压板 High Gloss Laminated Board Auditorium Materials 会议大厅材料 感知谷产业综合体项目设计 会议大厅设计 Auditorium Design 高光层压板 High Gloss Laminated Board CH 9650 CH 9500 CH 9350 CH 9200 CH 9050 CH 8900 CH 8750 CH 8600 CH 10100 天花出风/回风口 及天花灯条 Ceiling Air Louver & Light Through 23 Perception Valley Industrial Complex Project Design 感知谷产业综合体项目设计 3.1 膠地板 Vinyl Flooring 会议大厅设计 Auditorium Design 防火板 Laminated sheet 座椅面料 Seating Fabric 高光层压板 High Gloss Laminated Board Auditorium Rendering Auditorium Materials 会议大厅效果图 会议大厅材料 1 3 2 4 4 5 1 2 3 不锈钢 Stainless steel 1.02 1.02 Ningbo Jiangbei District Office I China, Ningbo I 2021

1.03

Binjiang Government Office

China, Hangzhou| 2022

position| type | phase | area | year |

team lead mixed-use ongoing 40,600 sqm 2022

Located in Binjiang District, Hangzhou, with a total land area of 36,900sqm, the site is designated for green park, adminstation office, cultural and sports functions. A symmetrical architectural layout is adopted along the central axis to form a mirror image. The height of the building is aligned with the adjacent one to ensure balance and symmetry.

Our main goal through the construction of the project, both in terms of spatial form and function is to further improve the Central Government District of Hangzhou Riverside District. The spatial sequence is formed by the district government square, the administrative office center, the cultural center and the civic center, and the central green space of the ‘Gate of Wisdom’. This axis is planned to extend towards the banks of the Qiantang River in the future.

2022 1.03 1.03
Binjiang Government Office I China, Hangzhou I
1.03 1.03 51 展览室设计 Exhibition Room Design 5.1 Black textured carpet 1 2 展览室设计 Exhibition Room Design 公区家具、灯饰设计 Public Area Furniture And Lighting Design 5.1 带钢脚的会议室木桌 Wood table with steel legs 坐地植物 Plant 灰色圆筒形软垫椅 Grey cylinder ottoman 黑色/颜色低转椅 Black/ coloured low swivel chair 不锈钢平面讲台 Stainless steel podium 浅木色茶几 Light wood coffee table 黑色橙色办公椅 Office chair in black and orange 黑色办公椅 Black office chair 白板 Whiteboard 展览室设计 Exhibition Room Design Binjiang Government
Exhibition Room Design
Office I China, Hangzhou I 2022
会议室三楼 3F Meeting Rooms Laminated sheet 防火板 Laminated sheet 3F Meeting Room Area Materials 会议室三楼材料 4 高光层压板 High Gloss Laminated Board 米色大理石地台 Beige Marble Flooring 防火板 Laminated sheet 3F Meeting Room Rendering 3F Meeting Room Area Materials 会议室三楼效果图 会议室三楼材料 2.6 会议室三楼 3F Meeting Rooms 3 4 1 1 2 会议室三楼 3F Meeting Rooms Binjiang Government Office I China, Hangzhou I 2022 1.03 1.03

1.04

Jushan Hi-Tech Park

China, Beijing| 2020

position| type | phase | area | year |

senior architect. designer mixed use ongoing 170,000 sqm 2020

The project is adjacent to Beijing Xishan National Forest Park, which has a rich historical and cultural heritage. The design uses modern building materials and simple expressions to restore the memory of traditional sloped roofs, while dark materials reflect the heaviness of history and culture.

The characteristic of Beijing’s traditional architectural space is the “courtyard”, which is a relatively closed space. Traditional Chinese architecture respects the principles of balance and symmetry.

Inspired by the natural landscape, the design of the buildings adopts a step-down approach referencing the natural terraces shape. This allows the overall massing of the building to play a role in reducing the sense of volume.

1.04 1.04
Jushan Hi-Tech Park I China, Beijing I 2020

Jianguo East Road Planning

China, Shanghai| 2021

position| type | phase | area | year |

senior architect. designer masterplan ongoing 371,000 sqm 2021

The city of Shanghai, one of the major economic and population centers of China, has undergone a dramatic urban expansion and redevelopment of its downtown precinct since the 1990s. This profit-driven redevelopment model proved easy to implement, but had little regard for the preservation of the urban fabric or the historically significant identity of the city.

An essential requirement in the conservation of a heritage site is to preserve its historic condition. The historic condition of a site embodies its values, authenticity and integrity as they have evolved during the course of its history. Through good conservation practice, a site’s historic and cultural context and its cultural traditions are preserved and retained for the future generations.

1.05
1.05 1.05
Jianguo East Road Planning I China, Shanghai I 2021

WELL ARCHITECTURE

jan 2017- may 2020

Senior Architect Design Lead WELL Architecture, SH CN 市井言舍建筑设计

21 PROJECTS | LEADING 4 PROJECTS | 8 BUILT Mixed-use | Offices | Education | Hotel | Facade Design | Interior Design

II
WELL ARCHITECTURE 市井言舍建筑设计 Name Location Program GFA (sqm) 1 Hotel Renovation Lianyungang, CN Hospitality 7,500 2 Bamboo Forest Village Center Changxing, CN Cultural 10,000 3 Taihu Village Landscape Changxing, CN Landscape 70,000 4 Primary School Competition Nanxun, CN Education 35,000 5 Qipao Town Competition Wujiang, CN Mixed-use 45,000 6 Yuxi Office Building Guilin, CN Office 37,000 7 Jurong Flower Hill Hotel + Villas Jiangsu, CN Hospitality 250,000 8 Aijia Sales Office Danyang, CN Office 2,000 9 Zhuji Health Valley Shaoyang, CN Hospitality 300,000 10 Senior Care Center Xiangguang, CN Hospitality 3,800 11 Ibis Hotel Competition Shanghai, CN Hospitality 3,500 12 Zhoushan B&B Villa Zhoushan, CN Hospitality 1,500 13 Xikou KTV Hotel Ningbo, CN Hospitality 3,000 14 Maker Space Atrium Design Ningbo, CN Mixed-use 4,000 15 Vanke Mixed-use Competition Shenzhen, CN Mixed-use 350,000 16 Huayan Temple Design Lanting, CN Cultural 25,000 17 Hongqiao New Office Shanghai, CN Office 300 18 Lianshi Police Station Lianshi, CN Office 10,500 19 Talent Industry Park Nanxun, CN Mixed-use 71,000 20 Red Land Scenic Spot Yunnan, CN Hospitality 12,000 21 Guizhou Village Design Guizhou, CN Mixed-use 11,000 PROJECT OVERVIEW | Jan 2017 - May 2020 Built | Under Construction

2.01

Hongqiao WELLarch Office

China, Shanghai| 2019

position| type | phase | area | year |

senior architect. designer office completed 200 sqm 2019

The main challenge of this project were the tight budget and time allocated, so the maximum effect had to be achieved with the minimum of resources invested.

Moreover, a design suitable for young employees was preferred over a more classic approach. As a result, the design plays with the textured color paint and various wallpapers in order to avoid monotony. Also, standard system furniture was combined with custom made pieces which helped in maximizing the use of the space.

Responsibilities: concept design team leader, interior design, construction site visits.

2.01
2.01
existing space & construction photos
Hongqiao WELLarch Office I China, Shanghai I 2019
plan & isometric view
2.01
2.01
renderings & completed project photos Hongqiao WELLarch Office I China, Shanghai I 2019

Zhoushan B&B Villa China, Zhoushan| 2019

position| type | phase | area | year |

senior architect. designer hospitality completed 1,500 sqm 2019

The site of the project is located in Xiaowu Shitang Village, in an area surrounded by mountains on three sides (north, south and west) and facing the sea towards east.

Although the two-story building was in a very poor condition, due to its architectural particularities a decision was made to try and save it. The strong vertical lines and minimall windows, as well as the small size courtyard in front of the main entrance, are elements that make it unique in the area. These characteristic elements were retained throughout the design process.

The main intervention is at the roof top level. The previous sloped roof was transformed into a terrace, taking advantage of the picturesque view and providing functions such as: bbq place and outdoor seating area. In terms of colors used, black and white represent the main theme.

2.02
2.02 1st floor 2.02 layout
existing space photos Zhoushan B&B Villa I China, Zhoushan I 2019
plans
2nd floor rooftop

exterior & interior photos building facade photos

2.02
Zhoushan B&B Villa I China, Zhoushan I 2019
2.02
2.02
rooftop terrace photos 2.02
Zhoushan B&B Villa I China, Zhoushan I 2019
2.02
2.02
room photos Zhoushan B&B Villa I China, Zhoushan I 2019

Hotel Renovation

China, Lianyungang | 2017

position | type | phase | area | year |

senior architect. designer hospitality completed 7,500 sqm 2017

The site of the project is located in Jiangsu Province, Lianyungang, China. The requirement was to redesign an existing five floors building hotel, both in terms of facade and interior space. The goal of this project was to propose a new, fresh design and the approach was a modern one as the client wanted to attract younger age toursits and new customers.

The renovation was carried out with the aim to give the hotel a brand-new image, while keeping the intervention minimal due to its tight budget and time frame.

The color palette uses warm colors and materials in order to achieve a cosy feeling and to provide highest level of comfort.

2.03

Renovation I China, Lianyungang I 2017

lobby area plan design language direction

lobby area rendering

2.03
Hotel
2.03
2.03
2.03
Hotel Renovation I China, Lianyungang I 2017
business style rooms - plans & renderings
2.03
2.03
Hotel Renovation I China, Lianyungang I 2017
young style rooms - plans & renderings

Hotel Renovation I China, Lianyungang I 2017

built project - lobby & hall

2.03
2.03

Brick Village Restoration

China, Beijing | 2017

position| type | phase | area |

senior architect. designer mix-use, restoration concept 10,000 sqm

The redevelopment proposal for a village near Beijing presents a great opportunity of preservation throughout the large number of brick houses still standing in the area.

Rapid economic development in China has generated substantial demand for urban land, resulting in an unprecedented urbanization process. The expansion of urbanized cities has started to engulf rural areas, making the urban – rural boundary less and less conspicuous in China.

After the survey of the site was completed, we identified which of the exiting buildings are to be kept, removed or intervene upon based on the location within the site, structural integrity and the amount of architectural details preserved. An important design element is represented by the various textures created using the local materials such as the red brick.

2.04
Brick Village Restoration I China, Beijing I 2017 2.04 2.04

FMD ARCHITECTS

feb 2014- jan 2017

Senior Architect Design Lead FMD Architects, SH CN 锋茂建筑设计(上海)

43 PROJECTS | DESIGNER | 7 BUILT Mixed-use | Offices | Commercial | Education | Masterplanning | Facade Design | Interior Design

III

Name Location Program GFA (sqm)

1 33 FM Office Shanghai, CN Interior Design 450

2 54 Jingrui Shaoxing Comercial Shanghai, CN Mixed-use 49,400

3 60 Wujing Town Business District Shanghai, CN Mixed-use 324,000

4 67 Suzhou Sales Office Suzhou, CN Office 750

5 68 Nanchang Vanke Office Nanchang, CN Office 80,000

6 69 Wujing Bridge Shanghai, CN Mixed-use 100

7 70 Wuxi Grand Canal Wuxi, CN Masterplan 1,151,000

8 72 Guggenheim Competition Shanghai, CN Culture 1,500

9 73 Dongqi Office Renovation Shanghai, CN Office 1,300

10 78 Tianmu Lake Club Tianmu, CN Hospitality 3,000

11 79 Australia Apartments Sydney, Australia Residential 5,100

12 80 Ruijin Road Renovation Shanghai, CN Office 3,500

13 81 Henan Outsourcing Industrial Park Zhengzhou, CN Mixed-use 84,028

14 82 Zunxuan Ec Park Shanghai, CN Mixed-use 44,080

15 Sichuan Ya'an Commercial Project Ya'an, CN Commercial 59,400

16 02 Xuancheng Planning Xuanchen, CN Mixed-use 79,000

17 04 Danyang New Field Waterfront Danyang CN Mixed-use 270,000

18 05 Changsha Hotel Changsha, CN Hospitality 13,200

19 07 VMO Nanchang Vanke Haichuang Nanchang, CN Mixed-use 120,000

20 09 Emei Howard Johnson Develop. Emei, CN Hospitality 558,000

21 12 Vanke E14 Shanghai, CN Master Planning 95,000

22 13 Wuhan Vivo City Wuhan, CN Mixed-use 55,800

23 14 Zhuji Shiliping Zhuji, CN Mixed-use 200,000

24 15 Vanke Qibao School Reconversion Shanghai, CN Education 14,000

25 17 GUILIN Xiqing Lake Art Center Guilin, CN Mixed-use 600 26 18 Co-mmune Office Shanghai, CN Office 2,800 27 19 Vanke Kindergarten Renovation Shanghai, CN Education 10,000 28 21 Shanxi Church Design Shanxi, CN Cultural 720 29 24 Vanke Xingzhan Shanghai, CN Office 10,000 30 25 Chengdu Community Center Chengdu, CN Mixed-use 1,150 31 28 V-25C Songjiang Industrial Park Shanghai, CN Master Planning 150,000

29 Tonglu Holiday Hotel Zhejiang, CN Mixed-use 78,000

22 Vanke Zunxuan Industrial Park Shanghai, CN Office 62,000 34 31 Youth Apartment Reconstruction Shanghai, CN Mixed-use 12,000 35 32 Zhengzhou Creative Park Zhengzhou, CN Office 84,000

33 Century Park Boat Quay Shanghai, CN Mixed-use 600

34 Vanke Longwu Road Shanghai, CN Mixed-use 48,000

35 Changle Village Loft Renovation Shanghai, CN Residential 300

36 Shanghai Changjiang no 41 Shanghai, CN Mixed-use 65,000

38 Fuzhou Suning Sales Center Fuzhou, CN Office 850

41 Zhangjiang Talent Apartment Shanghai, CN Mixed-use 21,200

42 Beijing Courtyard Renewal Beijing, CN Cultural 150

43 Jiangbeizui Façade Design Chongqing, CN Office 1,000

FMD Architects 锋茂建筑设计(上海)有限公司
Feb
Built | Under Construction
32
33
36
37
38
39
40
41
42
43
PROJECT OVERVIEW |
2014 - Jan 2017

3.01

Wood Pavilion

Shanghai, China | 2014

position| type | phase | area |

architect. designer showroom completed 800 sqm

The project is located in Minhang District, Shanghai, China. The scope was to design a showroom and management office for the entire industrial office park. The concept of the building starts from a piece of paper folded in half. The pavilion is designed as floating above the water and touching the ground in two points.

The building has a simple structure system :

A: 900mm high concrete base, which can protect the wood from the rain and water.

B: wood bent structure with 3.6 meters distance. C: two way folded roof with skylight.

The wood columns take the vertical load, and a solid concrete core takes the horizontal load. The core is operating as a precise machine, carving the solid volume for the circulation, maximizing the function area and the views. The whole building is a wood pavilion with a clear logic, thus the interior design is treated in a simple way: exposing the original concrete, wood, steel materials and the joint as much as possible and only hiding the lights and technical equipments.

3.01 Wood Pavilion
2014 3.01
I China, Shanghai I
3.01 Wood Pavilion
2014 3.01
I China, Shanghai I

3.02

Co-mmune Office

Shanghai, China | 2017

position| type | phase | area | year |

senior architect. designer office space schematic design 2,800 sqm 2017

Located along Yan’an Road, close to The Bund in Shanghai, the heritage building awaits to be redesigned since it was not in use for several years.

The client’s intent is to provide a new co-working office space right in the center of the city.

Open collaboration spaces at the intersections of work zones act as part of the primary circulation through the space and so became opportunities for engagement between departments while also creating visual connectivity throughout the space.

Responsibilities: concept design team leader, interior design, site visits.

Co-mmune Office I China, Shanghai I 2017 3.02 3.02
Co-mmune Office I
Shanghai I 2017 白色涂料 深黄色OSB板材 钢化玻璃 深色金属框 白色涂料 彩绘墙纸 3.02 3.02
China,
Co-mmune Office I China, Shanghai I 2017 同外墙漆 木构架 竹子装饰 白色涂料 3.02 3.02

3.03

Gouding Office

Shanghai, China | 2014

position| type | phase | area | year |

senior architect. designer office space completed 1,300 sqm 2014

Project Overview

The project is located on Guoding Road, Yangpu District, Shanghai. The total GFA is about 1300 square meters. The original design of Tongzhou Building has five floors above ground and it was mainly used as office space and hotel.

The first stage of this project involved the facade redesign and then the interior decoration design.

Apart from preserving the original structure and satisfying the functional needs of the office, we also added common collaboration and resting spaces where people can work or engage in different activities.

Taking the public area as the core, we created different functional spaces in order to bring vitality into the new design.

Office I
Shanghai I 2014 3.03 3.03
Gouding
China,
Office I
Shanghai I 2014 3.03 3.03
Gouding
China,
2014 3.03 3.03
Gouding Office I China, Shanghai I

3.04

Vanke Office Reconversion

Shanghai, China | 2016

position| type | phase | area | year |

senior architect. designer interior design, landscape schematic design 20,000 sqm 2016

Project Overview

The project is located 1.6 km from Disneyland - Shanghai and 500 meters from Kangxin Highway Station of Metro Line 11; it belongs to Zhangjiang Kangqiao, with a total area of 20442.57m².

Initially, all 11 builings were designated as office spaces but the owner later decided to change the function into apartments for young people due to the proximity to Disneyland in Shanghai.

Our design scope was to create a common area for the people living in the apartments located on the site. The pedestrian walkway in the center can be used to set up a ‘Rain Promenade’ to direct the flow of people from other buildings to buildings 8 and 9 so that people can use their public space.

Vanke Office Reconversion I China, Shanghai I 2016 1# 2# 3# 4# 5# 6# 7# 8# 9# 10# 11# 12# 体量一 体量四 体量三 体量二 3.04 3.04
I
2016 3.04 3.04
Vanke Office Reconversion
China, Shanghai I

3.05

Vanke Qibao International

School Renovation

Shanghai, China | 2017

position| type | phase | area | year |

senior architect. designer school competition 14,000 sqm 2017

Project transformation goals: From Vanke Office Head Quarters to International kindergartens, elementary schools and primary school.

Project positioning: mainly serving international and domestic families with high-end schooling needs.

Since it is a renovation project, how to meet the teaching requirements under current conditions and be able to meet the three-hour sunshine requirement is the biggest challenge of the design.

During the design process, through accurate sunlight calculations, we listed the scope of classrooms, and found the most suitable locations through screening, and achieved 26 classrooms.

Design features: we inserted the form of a sloped roof with traditional characteristics into the building in an abstract way. At the same time, a large-scale atrium is formed to bring sunlight and nature into the building.

3.05 3.05
Vanke Qibao International School Renovation Project I China, Shanghai I 2017
3.05 3.05
Vanke Qibao International School Renovation Project I China, Shanghai I 2017
3.05 3.05
Vanke Qibao International School Renovation Project I China, Shanghai I 2017

3.06

Nanchang Vanke Office & Kindergarten

Jiangxi, China | 2014

position| type | phase | area | year |

senior architect. designer mixed use completed 80,000 sqm 2014

Planning objectives

Image: create a living community character through the integrated design of planning, architecture and landscape.

Space: create an orderly and rich sense of large-scale space through planning and form.

Construct a spatial relationship between the various elements through a reasonable architectural arrangement to achieve space utility, promote communication, and avoid inconsistencies.

The different architectural forms and zoning arrangements of residences and offices together bring richer expression and vitality to the city.

3.06 3.06
Nanchang Vanke Office & Kindergartden I China, Nanchang I 2014
3.06 3.06
Nanchang Vanke Office & Kindergartden I China, Nanchang I 2014
3.06 3.06
Nanchang Vanke Office & Kindergartden I China, Nanchang I 2014

3.07

Vanke Xinzhuang Apartment

Shanghai, China | 2016 position| type | phase | area | year |

senior architect. designer apartments concept design 2,000 sqm 2016

The project is located near Chunshen Road Experimental school and close to Xinzhuang Station of Metro Line. The entire project is under unified management by Vanke. Auxiliary facilities such as fitness, catering, etc. required by the apartment can be solved in the lower part. The upper part is only for apartment.

STEP 1: Increase the lobby area of the apartment, optimize the plan function, create a modern and vibrant atmosphere, increase the elevator to meet the evacuation of the people, and at the same time, maintain the privacy and increase the leisure and entertainment functions.

STEP 2: added elevators and upgraded the original suite.

STEP 3: create a public entertainment area.

STEP 4: The existing corridor: adding linear elements on the ground to reduce the visual length, and using different colors at the same time, each layer uses a different color system to increase the interest of space.

3.07 3.07
Vanke Xinzhuang Apartment I China, Shanghai I
2016
3.07 3.07
Vanke Xinzhuang Apartment I China, Shanghai I 2016
3.07 3.07
Vanke Xinzhuang Apartment I China, Shanghai I
2016

3.08

Chengdu Community Service Center

Chengdu, China | 2016

position| type | phase | area | year |

design lead mixed use schematic design 1,000 sqm 2016

The city of Chengdu provides a pleasant open urban public space. The intent is to design a building that can provide a place for the surrounding citizens to gather, engage, and create.

The total area of the site is 2760 square meters, the width from east to west is 60 meters, and the length from north to south is 46 meters. The total construction area is controlled at about 1000mp, and the total number of floors is 3.

The design is based on the relationship between the city and nature, with terraces as the starting point. Achieving harmony between architecture and ecology by creating a multi-level natural landscape is seen as the main goal of the project.

3.08 3.08
Chengdu Community Service Center I China, Chengdu I 2016
3.08 3.08
Chengdu Community Service Center I China, Chengdu I 2016

3.09

Suzhou Sales Office

Suzhou, China | 2014

position| type | phase | area | year |

senior architect. designer sales office completed 750 sqm 2014

Sales office pavilion.

Concept:

Creating a floating box with a high of 4.5 m and 42*18m. Design a shell and shift a glass box, add wood louvers. Interior space: from main entrance access to showcase area, VIP room and offices and outdoor kids area. In front of the main access create an open green space.

Design the main entrance tower, wall design for parking space. Shift a box at the top as advertising display.

Responsibilities: concept design team leader, interior design, construction site visits.

3.09 3.09
Suzhou Sales Office I China, Suzhou I 2014
3.09 3.09
Suzhou Sales Office I China, Suzhou I
2014

3.10

New Guggenheim

Finland, Helsinki | 2016 position| type | phase | area | year |

senior architect. designer museum competition 1,500 sqm 2016

Concept design for New Guggenheim Helsinki

The new museum represents an important knob along the bay which will activate the whole linear open space and the city. It’s waterfront location would act as a welcome center for visitors all year round becomeing the central gathering place for city residents of all ages and a must see destination. Beeing an urban space of great national and cultural significance, it forms a symbolic gateway to the city from the sea. The conceptual transition between spaces is transposed into our architectural design by using the arch shape simbolizing the natural element and the frame which sits for the city’s urban profile. The goal is to create a public space that both welcomes new visitors and serves as a key cultural destination for the community.

The interior space is defined by the arch shape in an attempt to organize the basic museum programs and also to explore additional programmatic possibilities. The highest arch of the museum marks the main exhibit area and provides a flexible exhibition space.

New
I
2016 3.10 3.10
Guggenheim
Finland, Helsinki I
New
2016 3.10 3.10
Guggenheim I Finland, Helsinki I

3.11

Reinventing the Beijing Courtyards

Beijing, China | 2016

position| type | phase | area | year |

senior architect. designer exhibition area competition 150 sqm 2016

BREATH IN & OUT

The building is like a living organism and it has a life cycle: birth, growing, getting old, ill and dying.

The renovation is meant to give a second life to the old building. The site is located in the Beijing conservation area. The design follows the city’s context, area requirements, roof form, building heights and view control requirements.

Based on the overall concept, we insert three movable metal boxes into the old buildings, making the whole space flexible and changeable.

The movable installation adapts to the different needs of usage like breathing in and out and making it feel truly alive.

Reinventing the Beijing Courtyards I China, Beijing I 2016

3.11 3.11

3.12

Greenland Ruijin Office Building

Shanghai, China | 2015

position| type | phase | area | year |

senior architect. designer office space schematic design 3,500 sqm 2015

Particularity of the building: the only commercial office building in the city’s inner ring that is qualified for cold storage.

Requirements: create a high-quality integrated office area for food or pharmaceutical companies that rely on cold chain storage as the main carrier, and give priority to the “comprehensive bonded function”.

Project features: Remove the gatehouse and increase the project display area; Provide as many parking spaces as possible; Renovation of the facade, especially the location of the building facing the main road/ access; Mezzanine is removed to restore normal office floor height;

Greenland Ruijin Office Building I China, Shanghai I 2015

咖啡色耐候钢板 黑色钢板 1 1 2 2 3 4 5 01 01 02 03 浅色仿木饰面 蓝色竖纹水洗混凝土 中空玻璃 1 1 1 2 3 3 3 4 4 4 5 5 02 03 3.12 3.12

3.13

Tianmu Lake Club

Tianmu, China | 2016

position| type | phase | area | year |

senior architect. designer hotel schematic design 3000 sqm 2016

Tianmu Lake is known as the ‘Pearl of the South of the Yangtze River’ and ‘Green Wonderland’. It has an ecological protection area of 300 square kilometers.

The project site is located in Shahe and Daxi, two large nationallevel reservoirs, close to Tianmu Mountain in Zhejiang Province. It is one of the first national AAAA-level scenic spots and a provincial-level tourist resort area in Jiangsu Province.

From the original single hotel room function, the restaurant, the fishing platform, the children’s playground area, the bicycle lane as well as other functions were added to increase the interest for tourism in the area.

3.13 3.13
Tianmu Lake Club I China, Tianmu I 2016
3.13 3.13
Tianmu Lake Club I China, Tianmu I 2016

YELLOW OFFICE

jun 2013- jan 2014

Junior Architect Yellow Office, RO

2 PROJECTS | DESIGNER | 2 BUILT

Interior Design | Furniture Design | Graphic Design | Landscape

IV
Name Location Program GFA (sqm) 1 VITRAJ Premium Lounge Bacau, RO F&B 300 2 GEPEX Park Landscape Bacau, RO Landscape 2,000 PROJECT OVERVIEW | Jun 2013 - Jan 2014 Built | Under Construction YELLOW OFFICE ARCHITECTURE

Vitraj Premium Lounge

Romania, Bacau | 2013

position| type | phase | area | year |

designer restaurant & bar completed 200 sqm 2013

The project started with the owner’s desire to create an extension for an existing small restaurant in the Gepex Park Complex in Bacau - Romania.

Simultaneously, a project was carried out for the parking space, offering the opportunity to create a dialogue between the two areas.

The opening of the new building towards the green space was achieved by glazing on three sides. Starting from the concept stage, we opted for sliding doors to maximize the strong bond between the interior of the building and the exterior setting.

4.01
4.01
4.01
Vitraj Premium Lounge I Romania, Bacau I 2013 existing space & construction photos
plan
Vitraj
4.01 detail drawings 4.01
plan & details
Premium Lounge I Romania, Bacau I 2013
Vitraj Premium Lounge I Romania, Bacau I 2013 4.01 4.01
interior space photos
2013 4.01 4.01
facade & terrace photos Vitraj Premium Lounge I Romania, Bacau I

R E S E A R C H

feb 2022- present

HKU | Dissertation

PURCELL | Practical Training

RPER | Heritage Conservation

6 PROJECTS | LEADING 1 PROJECT | 2 ONGOING Archival Research | Heritage Appraisal Framework | Assessing the Values of Cultural Heritage | Site Visits

V

Certificat de participare

Andreea MITREA

a participat în perioada 23 iulie-7 august 2022, la activitățile programului de specializare Universitatea de Vară Bucium – Salvgardarea patrimoniului rural prin educație

Sub înaltul patronaj al Academiei Române Ediţia a X-a, ANIVERSARĂ

Bucium, 6 august 2022 Ștefana Bianu dr. arhg. Ioana Bogdan-Cătăniciu președinte RPER-Ro lect. univ.dr. arh. Gabriel Panasiu îndrumător proiecte de arhitectură Mihaela Lazăr coordonator secund UdV 2022 Iozefina Postăvaru consultant științific www.rper.ro Name Type Date Location 1 Understanding the Heritage Significance of Tai Hang Area, Causeway Bay, HK Dissertation | Heritage Conservation February - July, 2022 Hong Kong, SAR 2 Archival Research Practical Training |Heritage Conservation May, 2022 Hong Kong, SAR 3 Heritage Appraisal Practical Training |Heritage Conservation May, 2022 Hong Kong, SAR 4 Hong Kong Shenzhen Bi-City Biennale of Urbanism and Architecture Practical Training |Heritage Conservation May, 2022 Hong Kong, SAR 5 RPER Summer University, UdV Bucium Workshop|Heritage Conservation July - August, 2022 Bucium, Romania 6 The Architecture Annual, Bucharest 2022 Volunteering |Research September - December, 2022 Bucharest, Romania RESEARCH PROJECT OVERVIEW | February 2022 - Present Completed

5.01

The University of Hong Kong

Hong Kong| 2022

implication| type | location| date |

research, assessment, site visits dissertation Hong Kong, SAR Feb - July 2022

This dissertation researches how the Tai Hang developed over time and identifies the tangible and intangible cultural heritage elements that characterize the area in order to provide an indepth understanding of the place. By identifying and retaining the character-defining elements that contribute to the heritage values of the place, it is hoped that Tai Hang can be safeguarded, preserved and conserved more effectively.

This research supports and encourages an integrated and holistic approach towards heritage conservation, so that the historic neighborhood can be understood more comprehensively and valued appropriately. The intent is to ensure the preservation of historic fabric and its values in a city that needs transformation, adaptation and change.

5.01
5.01
The University of Hong Kong I Hong Kong, SAR I 2022

5.02

PURCELL | Practical Training

Hong Kong| 2022

implication| type | location| date |

research, assessment, site visits practical training Hong Kong, SAR May 2022

Having the opportunity to work with Purcell, even though for a short period of time, provided me with a variety of valuable knowledge and skills. Starting with undertaking archival research to support preparing a Heritage Appraisal, to drafting the framework for understanding the history and development of a heritage site, and followed by exposure to a range of heritage consultancy services across projects at different work stages, the whole experience has proven to touch the objectives of the MSc(Conservation) curriculum.

Overall, the Practical Training experience was a valuable, meaningful, and insightful opportunity for me to participate in preservation projects within Hong Kong, while applying the understanding and knowledge learned throughout the programme on real conservation projects.

5.03

RPER Summer University

Bucium, Romania| 2022

implication| type | location| date |

research, assessment, sketches workshop, exhibition Bucium, Romania July - December 2022

Bucium Summer University (UdV Bucium) benefits of co-funding by the Administration of the National Cultural Fund (AFCN), by the National Order of Architects in Romania (OAR) from the Architectural Stamp Duty 2022 and by the Prince’s Foundation. Purpose: awareness, protection, promotion of the cultural heritage of Bucium county (composed of 30 villages) through interdisciplinary activities and with the involvement of local communities

Practical activities: on site and at the Summer University seat (investigation, architecture surveys, landscape and tourism studies, photographic documentation, image study, workshops etc.). The collected information will be processed in order to be presented in the final exhibition of the summer university and in „Repertoire of Rural Heritage in Bucium – 8th Notebook” (see Repertoire Notebooks 1-7th at: http://rper.ro/publicatii.php).

cultural heritage of Bucium

5.03 RPER
I
I 2022
5.03
Summer University
Bucium, Romania
5.03 The Architecture Annual I Bucharest, Romania I 2022
5.03
cultural heritage of Bucium

Workshops|Volunteering|Education

Academic Work Workshops Executive Education Volunteering Video & VR Illustrations Sketckes

VI

6.01 Restoration Project, Sibiu

Romania, Sibiu | 2012 year| type | location | program |

architecture | school | public space | expo area

2012 team project Piata Mica, Sibiu, Romania school, public space, expo

The restoration project aims for applying knowledge taught in the ‘Protection and conservation of the architectural heritage’ course, in the particular case of a historic building located in Sibiu, Romania.

After visiting the site and the building, working on the historical study, and reviewing the documentation, our scope was to answer three main questions:

1. What should be the method of rehabilitation and approach towards the completion/ reconstruction of the courtyard;

2. What should be the approach for the north - east collapsed corner;

3. How should be treated and preserved the facade towards the main square.

6.01 Restoration Project I Sibiu, Romania I 2012 6.01 5.03
Bucium,
2022
RPER Summer University
Romania|

Bucium Summer University

Preserving the Patrimony Heritage Romania, Alba| 2012 & 2013 organizer | type | responsibilities |

RPER course & workshop save the Unclassified Rural Heritage

The aim of the workshop is to save the Unclassified Romanian Rural Heritage that still exists and which can become the engine of revitalization for our commons using the European - French model.

At the end of the workshop we were involved in designing an exhibition space where we presented our sketches and other findings after the survey. Public lectures, publications and a TV documentary were ment to engage the stakeholders while acknowledging the importance of preserving and conserving the local rural heritage.

6.02

6.03

School of Bunesti

Working with Natural Materials

Romania, Arges | 2012

organizer | type | responsibilities |

School of Bunesti course & workshop learn & build using local natural materials

School of Bunesti is a school-site for student architects and more. It takes place every summer since 2008, in a clearing in the Valsan Valley in Arges Country. Close to Prince Charles’ Viscri village in Romania, architecture students are building a new university, the Bunesti School, with their own hands. Students build, along with teachers, architects, local craftsmen and villagers structures using natural materials.

Working exclusively with natural materials, the school is exploring the potential of traditional techniques, learning from vernacular architecture and applying it to current needs, with no desire to imitate or innovate at all costs.

6.04

V.O.L.A.M. Project

Building a Traditional Fence

Romania, Sibiu | 2013

organizer | type | responsibilities |

DALA Foundation ASTRA National Museum Sibiu course & workshop learn & help with building the wooden fence

VOLAM is a platform for international volunteering and academic practices initiated by the foundation DALA and the MCPT ASTRA which is part of a sustainable development program in ASTRA National Museum Complex.

As volunteers we helped at making a wooden fence for a traditional house placed in the Village Museum .

6.05

Valeni Wood Workshop

Wodden Doors and Frames Restoration

Romania, Neamt | 2013

organizer | type | responsibilities | year |

Maria Tibanesti Association & Styrcea Family course & workshop learn & help with the restoration of the wooden doors & frames 2013

The workshop took place at the Styrcea property in Valeni where the family’s mansion was in the process of restoration.

One of the problems that had to be solved was related to the original carpentry woodwork which had to be preserved.

The aim of the workshop was to familiarize participants with the restoration techniques of wooden windows and doors and presented a few methods of intervention in historic buildings joinery.

6.06

E-C Architecture Triennale

T r a n s ( a p ) p a r e n c i e s Romania, Bucharest | 2013

organizer | type | responsibilities |

E-C Architecture Triennale course & workshop volunteering arranging the exhibition space

East Centric Architecture Triennale 2013, with it’s theme called T r a n s ( a p ) p a r e n c i e s, is an event dedicated to East and Central European Architecture and critique.

The Triennale is the place to meet, debate and reflect for the practitioners, critics, students and the public.

It is the place where alternative and interdisciplinary architectural practices explored, where everyone can participate and build that sustainable, common and coherent future that the Triennale envisages.

6.07

Design Lifestyle Workshop

YDeco Interior Design China, Shanghai | 2017 organizer | type | responsibilities |

YDeco Design course & workshop speaker mood board design

Design your mood bord using different materials.

Creating and sharing the right mood is critical for any creative project. In this short course, we explained what makes up a mood board and how to create your own. Learn how to curate and present a mood board that will keep the project, the design team, and the clients on track.

What is lifestyle design all about?

Design a life full of passion and full of excitement. Create a vision for yourself. Forget about limitations and try to vision how you would like to live your life to the fullest. Lifestyle design is about life that worths living for.

6.08

Design Your Storyboard

Learning Through Art | Little Director China, Shanghai | 2018-2019 organizer | type | responsibilities |

Bee Kingdom, Shanghai course & workshop leading the workshop teaching

The Storyboards teaching strategy helps students keep track of a narrative’s main ideas and supporting details by having them illustrate the story’s important scenes. Storyboarding can be used when texts are read aloud or when students read independently.

Making a storyboard:

Create a Template. Draw a series of rectangles on a piece of paper, as if you were creating a comic strip.

Add the Script. Under each rectangle, write the line of script or dialogue that corresponds to that scene.

Sketch Out the Story.

Add Notes.

6.09

Harvard University GSD

Cambridge| Massachusetts USA | 2016

Find, Create, Operate: The Hotel Project Development Lifecycle type | responsibilities | instructors|

Learning Objectives:

Certificate of Completion team project

Julia Monk, FAIA, IIDA, LEED AP Senior Principal and Global Director of Hospitality, HOK John H. Miller Founding Director, White Walls

Understand the historical evolution of hotels. Discuss the current state of the hospitality industry. Distinguish hotel market segmentation and brand identifiers. Understand the unique aspects of the hotel development process.

Identify basic hotel elements and their required adjacencies. Understand hotel operations and operational efficiencies. Identify trends that inform the hotel lifecycle, from sustainability to social media to technology. Appreciate the value of an informed design process to a successful hotel project.

6.10

Harvard University GSD

Cambridge| Massachusetts USA | 2017

The Real Estate Development Fundamentals

type | responsibilities | instructors|

Certificate of Completion team debates Edward Marchant Lecturer in Urban Planning and Design, Harvard University Graduate School of Design

Learning Objectives:

Understand the role of the developer in the real estate development process.

Identify and understand the key stages and steps in the real estate development process, including an understanding of the interrelationships among these stages and the relative importance of each step.

Evaluate the potential risks and rewards associated with real estate development.

Appreciate real estate development process similarities and differences among varied asset types.

Recognize the skill, personality, and skill characteristics often shared by successful real estate developers.

6.11

Harvard University GSD

Cambridge| Massachusetts USA | 2018

Digital Buildings

type | responsibilities | instructors|

Certificate of Completion team debates Rick Huijbregts, Oranje Consulting Bill MacGowan, Director, Smart Building Digitization, Cisco Canada

Learn about the digital technology and innovation that are changing the way we design, build, and use buildings forever. Create dynamic, responsive, and efficient spaces in which future generations will thrive. Everything in our buildings is, or soon will be, connected to the Internet. Explore how to build a networked intelligent building and how to take advantage of advanced analytics to increase its performance.

Cisco Digital Building Solution:

Enable business analytics - Sensors help analyze traffic patterns, use of space, and occupancy rate in real time. Improve efficiency and sustainability - Workers can customize room temperature and light settings in their spaces.

VR & 360 Spherical Panoramas Office space | Museum | Residential www.theta360.com 6.12 2016|2017|2018 www.theta360.com www.theta360.com www.theta360.com
Sketches I Romania, Transilvania I 2012 6.13 6.13
Sketches I Romania, Transilvania I 2012 6.13 6.13
Sketches I Romania, Transilvania I 2012 6.13 6.13
Phone | WhatsApp: (+852) 5210 0633 Email: mitrea.andreea11@yahoo.com THANK YOU ! please do not hesitate to contact me for more information

Turn static files into dynamic content formats.

Create a flipbook
Issuu converts static files into: digital portfolios, online yearbooks, online catalogs, digital photo albums and more. Sign up and create your flipbook.