PORTAFOLIO 2024 - ANDREA CALVO

Page 1

PORTAFOLIO

Arquitectura 2024
Andrea Calvo Estrada

Enero 8 | 1999. Bogotá, Colombia

Arquitecta Magna Cum Laude de la Universidad de los Andes con opciones en Patrimonio Cultural y Diseño. 2023.

ESTRADA Bogotá, Colombia (+57) 3017901019 calvoestradaandrea@gmail.com https://www.linkedin.com/in/andrea-calvo-estrada-516428235/
ANDREA CALVO

ACERCA DE

ANDREA CALVO ESTRADA

ARQUITECTURA | INTERIORISMO | MODELADO BIM

Bogotá, Colombia (+57)3017901019

calvoestradaandrea@gmail.com

Arquitecta Magna Cum Laude de la Universidad de los Andes con opciones en Patrimonio Cultural y Diseño. Dos años de experiencia relevante en la conceptualización, diseño y construcción de proyectos arquitectónicos y de interiorismo. Soy un miembro activo, comprometido, metódico y creativo del equipo. Habilidades de diseño gráfico, diseño de interiores, representación y comunicación en diferentes medios y escalas.

EXPERIENCIA PROFESIONAL

Taller Architects - Arquitecta Junior

2023 - Presente

-

Líder de proyectos con enfoque en proyectos residenciales multifamiliares. Apoyo en la coordinación técnica, selección de acabados y desarrollo de planos constructivos. Participación en concursos arquitectónicos internacionales junto con proyectos editoriales y de investigación.

Arquitectura en Estudio | Interior 1 - Arquitecta Junior

Líder de proyectos arquitectónicos y de interiorismo. Diseño y desarrollo de proyectos arquitectónicos principalmente residenciales y corporativos. Modelado BIM, desarrollo de planos constructivos, detalles de carpinterías, selección de acabados.

Arquitectura en Estudio | Interior 1 - Practicante de Arquitectura

Interiorismo residencial y corporativo. Desarrollo de renders arquitectónicos. Participación en concursos públicos y privados. Postproducción, diseño gráfico y editorial.

Independiente

Diseño y conceptualización del interiorismo de diferentes proyectos residenciales y de retail.

ESTUDIOS:

Pregrado en Arquitectura Grado Magna Cum Laude

Universidad de los Andes

Opción en Patrimonio Cultural

Universidad de los Andes

Opción en Diseño

Universidad de los Andes

EXPERIENCIA ACADÉMICA:

Universidad de los Andes

Monitora Académica

13 Versiones Depto. Arquitectura

CURSOS Y WORKSHOPS:

2024 - Presente

The Credential of Business Management

The London School of Business Administration

2023 2022
2023 2021-2024 2017 - 2022 2020 - 2021 2020 - 2021 2018-2022

Curso “Estructuración de Proyectos inmobiliarios” de Andina. Sociedad Colombiana de arquitectos.

Store Design: How to Design Successful Retail Stores

Udemy

Acupuntura Urbana

Universidad de los Andes y Escuela de Espacio Público DADEP

Curso Render Básico Revit + 3dMax + V-Ray + Photoshop

Arquitectos Fonseca

PREMIOS Y RECONOCIMIENTOS:

Riga Phylarmonic

Selección para la segunda Ronda

Taller Architects + aRE

Rol: Diseño y modelado arquitectónico.

Grado Magna Cum Laude

Universidad de los Andes

Parque turístico y ecohotel Topocoro

Primer Puesto

Arquitectura en Estudio + DDA

Rol: Conceptualización, diagramación y postproducción

Hospital Tatamá | Fundación Santa Fe + Uniandes

Primer Puesto

Arquitectura en Estudio

Rol: Diagramación y postproducción

Colegio La Salle sede Cartagena

Primer Puesto

Arquitectura en Estudio + DDA

Rol: Desarrollo arquitectónico, diagramación y postproducción

Pratt Institute, NY

International Merit-based Scholarship recipient

PUBLICACIONES:

Vicerrectoría de Investigaciones

Universidad de los Andes

“La pedagogía y la composición en el edificio de la FAU USP”

K(h)ronos

Exhibición fotográfica de arquitectura

Universidad de los Andes

Español Nativo, Inglés C1, Francés A2

Revit, Rhinoceros, Sketch-Up, Autocad, Photoshop, Illustrator, Indesign, Lumion, D5, Twinmotion, Dibujo a mano, MS Office.

Manejo del tiempo; Facilidad para aprender nuevos programas; Adaptabilidad; Pensamiento sistémico y multidisciplinar; Facilidad y gusto por aprender; Organización; Liderazgo y comunicación; Manejo topográfico y pensamiento 3D; Propositiva; Representación gráfica y diagramación; Constancia; Creatividad; Curiosidad.

2023 2020 2020 2019 2024 2023 2022 2022 2022 2017 2021 2021 IDIOMAS SOFTWARE HABILIDADES

IZZI 96

CASA 35

HOSPITAL TATAMÁ

CASA 70

BE - 102

ZEBRA TECHNOLOGIES

APARTAMENTO JS

COLEGIO LA SALLE

MOVATE

BORDES VIVOS RENOVACIÓN DE FACHADA PIEZAS GRÁFICAS

AARQUITECTURA
B
C -
INTERIORISMO
OTROS PROYECTOS

ARQUITECTURA.

a
IZZI 96 CASA 35 HOSPITAL TATAMÁ CASA 70 BE - 102

IZZI 96

Revit + Lumion Bogotá, Colombia 7700sqm | 82882 sqft

Equipo:

Juliana Currea - Lider de proyecto | Diseñadora principal 2022-2023

Andrea Calvo - Co-lider de proyecto | Líder de diseño 2023

Pablo Negret - Co-lider de proyecto | Coordinación técnica

Pablo Londoño - Coordinador de Proyecto

WELL.CO.HOME

En un proyecto de vivienda diseñado para personas jóvenes y activas que quieren vivir en uno de los mejores sectores de la ciudad, IZZI 96 presenta un proyecto con apartamentos pequeños pero grandes espacios comunales y vida tanto dentro del edificio como en sus alrededores. Como tal, para el proyecto, el concepto “Well.co.Home” significa integrar el bienestar, la colaboración y el sentimiento de llegar a casa. A través de elementos como la naturaleza, materiales calidos y espacios abiertos, el diseño del edificio es cómodo y atractivo, priorizando las necesidades y gustos de sus habitantes.

RENDER POR DVOXEL Diseño por: aRE
RENDERS - DVOXEL Diseño - aRE Foto - apartamento modelo
Planta cuarto piso
Fachada principal
IZZI 96
PLANOS DE CARPINTERIA

CASA 35

Revit + Lumion

La Calera, Colombia

Sebastián Guerrero - Líder de proyecto

Maria Jimena Llano - Coordinadora de proyecto

Andrea Calvo, Juliana Currea - Arquitecta, diseñadora interior

Casa Unifamiliar - Praderas de Potosi 480 m 2

RENDER BY ANDREA CALVO

CASA 70

Revit + Lumion

La Calera, Colombia

Sebastián Guerrero - Líder de proyecto

Maria Jimena Llano - Coordinadora de proyecto

Andrea Calvo - Arquitecta, diseñadora interior

Casa Unifamiliar - Praderas de Potosi 520 sqm | 5597 sqft

RENDER - ANDREA CALVO

HOSPITAL TATAMÁ

Revit + Photoshop

Pereira, Colombia

OPUS + ABALARK + aRE

Concurso privado

Primer Puesto

Estado: Desarrollo de proyecto constructivo

Rol: Post-producción, Diagramación y producción de diagramas

RENDER - JD_M_VISUAL

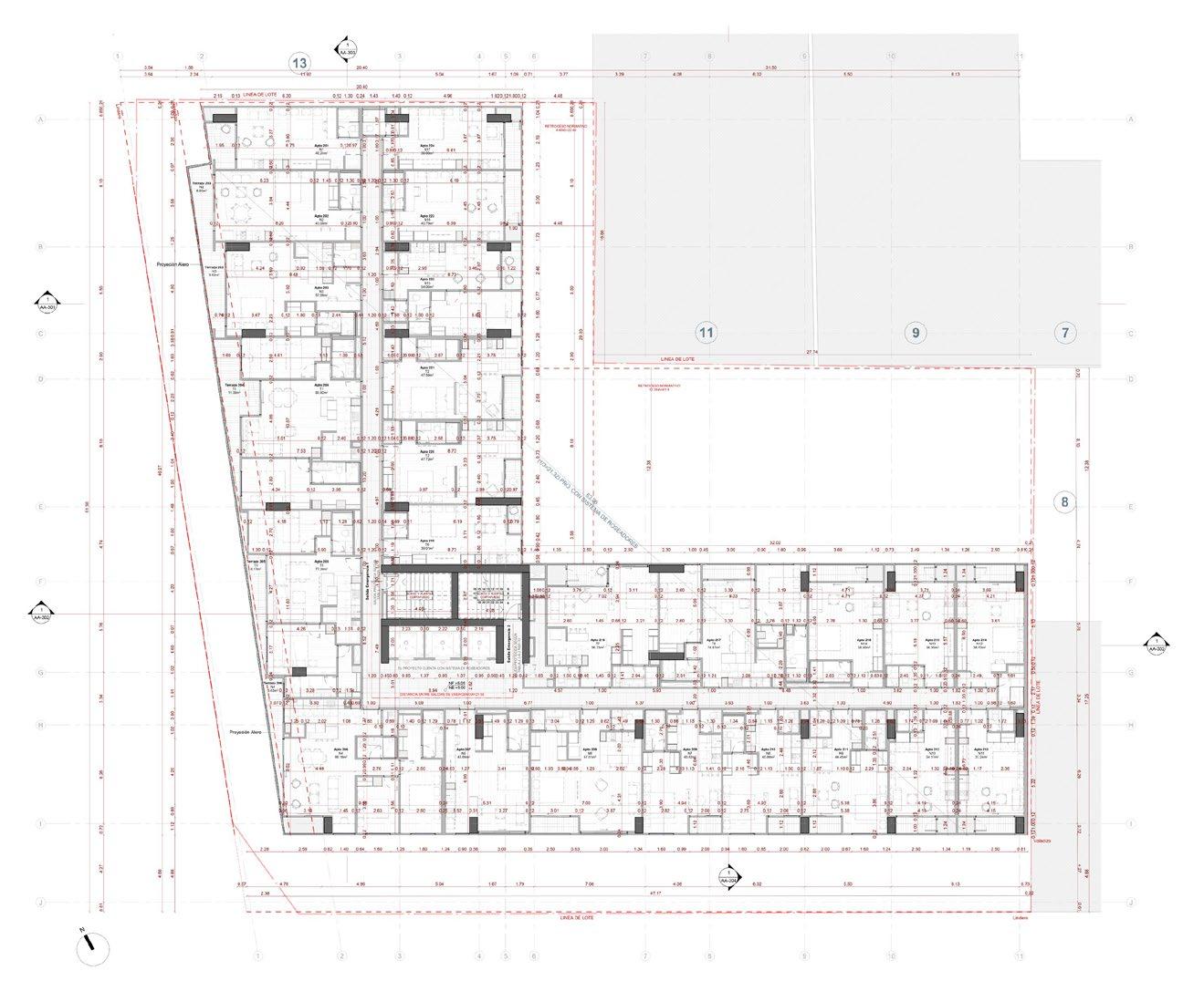
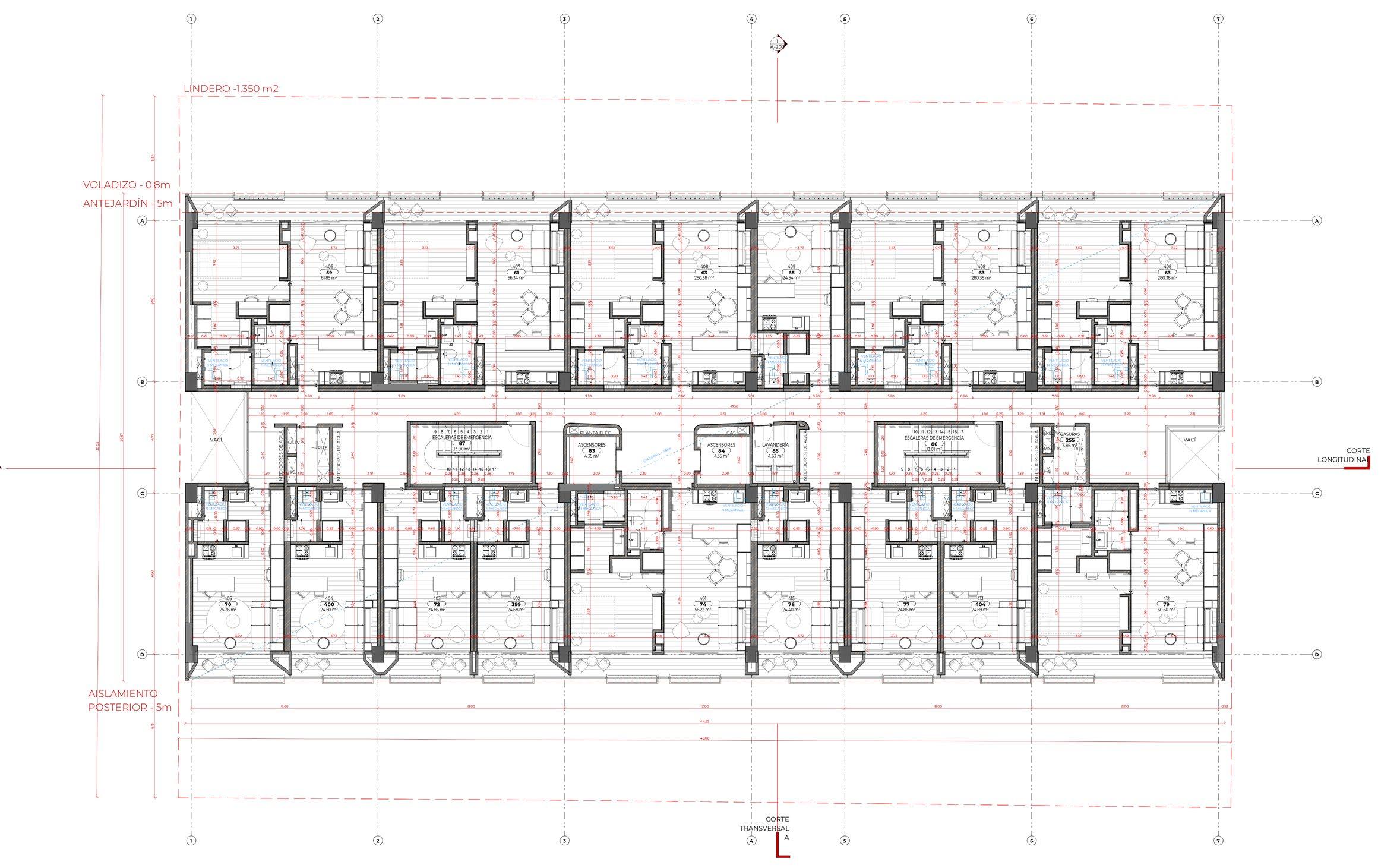
BE - 102

Revit Bogotá, Colombia

24000sqm | 258500 sqft

Taller + Ekoobim + Hitos Urbanos Estado: En construcción

Equipo:

Carlos Santamaria - Lider de proyecto 2022-2023

Andrea Calvo - Líder de proyecto 2024 - Diseño y coordinación

Pablo Forero - Arquitecto responsable

Be-102 es un proyecto de vivienda multifamiliar en Bogotá, ubicado en la zona de Pasadena. El proyecto, con 18 pisos y 3 sótanos, cuenta con 24000m2 construidos y 184 unidades de vivienda que varían entre los 40 y 160m2 construidos. Este proyecto es particular en su planteamiento dado a que inicialmente fue concebido como un edificio de oficinas, sin embargo, con la llegada de la pandemia, y a pesar de que ya estaba fundida la cimentación, esto fue reconsiderado y transformado en un edificio de vivienda. Así, teniendo en cuenta las necesidades estructurales, morfológicas y comerciales del proyecto, entre estas 184 unidades de vivienda, existen 78 tipologías de apartamento, presentando un reto significativo en el desarrollo del proyecto.

Fachada Occidental
RENDER - BE+MAARCH
Fachada Occidental

INTERIORISMO.

ZEBRA TECHNOLOGIES

APTO JS

LA SALLE CTG

MOVATE

b

ZEBRA TECHNOLOGIES: DISEÑO INTERIOR - CORPORATIVO

Revit + Lumion

Bogotá, Colombia

580sqm | 6243 sqft

Equipo: Andrea Calvo - Líder de proyecto | Arquitecta diseñadora Paloma Jimero - Coordinadora de Proyecto

CO.TECH.HUB

“Empower performance from within”

El concepto de diseño ve el espacio como un centro de colaboración, donde se fomenta la innovación y la interacción del equipo. Un espacio que puede actuar como un lienzo de ideas innovadoras y al mismo tiempo como un elemento de diseño en sí mismo, que contiene los valores y características de la marca. Estar visible, conectado, en constante evolución y optimización, son algunos de los valores de Zebra, y el concepto busca plasmarlos en el espacio a través de formas simples, materiales neutros y colores de marca que le dan un toque especial a algunas áreas. La colaboración en toda la empresa, y especialmente la colaboración sobre tecnología, debe ser el enfoque principal del diseño.

FIRMA AXONOMETRÍA GENERAL A1.01 CALLE 116 #7-15, EDIFICIO CUSEZAR, OF. 1501 ZEBRA 2225 AXONOMETRÍA GENERAL ZEBRA

RENDER

RENDER

RENDER

RENDER

RENDER

RENDER

FOTO

APARTAMENTO JS: REMODELACIÓN Y SUBDIVISIÓN APARTAMENTO

Revit + Prome AI Bogotá, Colombia 150sqm

Equipo: Andrea Calvo Trabajo independiente.

MINIMAL.LIVING

“Peaceful living from within”

En un apartamento con más de 50 años de antigüedad que había sido previamente remodelado para residencias universitarias, el cliente estaba buscando subdividir el área del apartamento en dos unidades para poder arrendarlas. Así, llegamos al concepto de Minimal Living, buscando crear espacios tranquilos y agradables que mejoraran la habitabilidad del espacio y se adaptaran a una gran variedad de personas. Con una transformación de una unidad con 9 habitaciones y cero áreas sociales, a dos unidades cada una con dos habitaciones y buenas áreas sociales, este proyecto muestra las posibilidades de cualquier espacio, sin importar su uso o edad.

Apartamento “A”

Propuesta: Subdivisión de Apartamentos

Apartamento “B”

A-003 0201 2 2 A A B B 3 3 4 4 5 5 6 6 7 7 C C D D A-003 3 A-003 11.09 m² Habitación 8 10.14 m² Habitación 12.88 m² Habitación 6 11.34 m² Habitación 5 8.10 m² Habitación 4 6.11 m² Habitación 3 2.02 m² Baño 2.05 m² Baño 8.48 m² Habitación 2 8.00 m² Patio 2.68 m² Baño 2.24 m² Baño 6.76 m² Habitación 10.09 m² Cocina 7.23 m² Habitación 9 29.88 m² Circulación 2.96 m² Baño 3.97 m² Baño 0.00 0.00 0.05 0.18 0.16 0.16 0.16 0.00 0.00 0.00 0.00 0.00 0.16 0.16 0.00 0.00 0.00 0.00 0.00 2 A-003 4 A-003 2 1 Diseño Proyecto # FechaEscala Número hoja Revisión Constructor Localización Título Contenido Cliente Proyecto 1 : 75 16-Sep-23 4:34:01 PM A-000 2309 Transversal 3c # 49-66 Planta Arquitectonica Jeremias Lozano 1 : 75 Nivel 01 Actual -Planta Arquitectonica 1 A-003 02 A-003 01 2 1 2 2 A A B B 3 3 4 4 5 5 6 6 7 7 C C D D 1 1

APARTAMENTO “A” - 101

Area: 69.54m2

Programa: Cocina, Sala, Comedor, dos baños y dos habitaciones.

APARTAMENTO “B” - 102

Area: 83.77m2

Programa: Cocina, Sala, Comedor, dos baños y dos habitaciones, la principal con Walk-in Closet, zona de ropas y estudio o hall.

COLEGIO LA SALLE CARTAGENA

CONCURSO: PRIMER PUESTO

EQUIPO - Carlos Nuñez, Camilo Garavito, David Delgado, Andres Delgado, Pablo Londoño, Santiago Unda, Andrea Calvo.

Rol: Diseño Arquitectónico, Diseño de Interiores,Renders interiores, post-producción y Diagramación.

MOVATE OFICINAS BARRANQUILLA

CONCURSO

EQUIPONatalia Heredia, Paloma

Jimeno, Maria Camila

Sanchez, Andrea Calvo.

Rol:

Diseño de interiores, Renders interiores

OTROS PROYECTOS

[PROYECTOS ACADÉMICOS]

BORDES VIVOS

RENOVACIÓN DE FACHADA

K(H)RONOS

c

BORDES VIVOS:

UN MODELO DE DESARROLLO DE BORDE REPLICABLE FRENTE

A LOS

CERROS ORIENTALES DE BOGOTÁ

Rhinoceros + Illustrator + Photoshop Bogotá, Colombia

Tesis de Pregrado

Profesores: Juan Manuel Medina del Río, Maria Carolina Concha

Trabajo completo en: https://repositorio.uniandes.edu.co/flexpaper/handle/1992/58047/ tesis%20bordes%20vivos.pdf

El barrio Bosque Calderón Tejada es un lugar complejo en el que conviven diferentes intereses, necesidades y realidades. Aunque todas son importantes, este proyecto se enfoca en su conexión con el espacio natural y el potencial que existe en la transformación de las dinámicas actuales. Así, y aunque se entiende que existen múltiples oportunidades en el lugar, a partir de su ubicación en el borde urbano, y las posibilidades de transformación que permite el barrio informal surgen mis dos grandes intereses: la definición del Borde Urbano y como se limita la expansión y crecimiento de la ciudad junto con la realidad de los cerros orientales como “telón de fondo” de la ciudad, donde nadie conoce e interactúa.

Así, y a partir de las oportunidades del lugar: especialmente el barrio informal como respuesta al borde urbano entre Bogotá y los cerros orientales - la conciencia emergente en la comunidad y los programas y alianzas con fines ecológicos. Y los problemas: vistos la falta de espacios públicos y recreativos y la falta de conexión urbano-ambiental, se llega a un proyecto de Borde donde se busca resolver las preguntas: ¿Cómo se relaciona el barrio Bosque Calderón Tejada, y la ciudad, con su contexto natural? ¿Cómo se puede limitar la expansión urbana para proteger el espacio natural? y finalmente, ¿Cómo limitar la expansión urbana y crear un espacio de conexión con los Cerros Orientales? Esto, buscando la transformación de las relaciones existentes: de una ciudad que permea lo natural, a un entorno natural que permea la ciudad y aporta a la calidad de vida de sus ciudadanos; de unas relaciones de indiferencia, a relaciones de beneficio mutuo, y de una realidad que prioriza el espacio privado, a una intervención que le da espacio a la vida pública y el bien común. Todo visto a través de 4 conceptos principales que le dan vida y definición al proyecto: el borde urbano, los elementos naturales, la conciencia emergente y el paisaje intermedio.

Para evitar que el crecimiento de la ciudad destruya el tesoro natural y el hábitat que son los Cerros Orientales, el proyecto “Bordes Vivos” propone un sistema a través del cual los espacios públicos y educativos, acompañados de senderos, limitan este crecimiento situándose en el límite urbano. Siguiendo la teoría de los apoyos informales de David Governeur, y colocando “corredores, campos y custodios/vigilantes”, se intenta mantener el espacio protegido y accesible al público. De esta forma, los barrios informales en rápida expansión tendrán un límite hasta donde pueden llegar, y tanto ellos como el resto de la ciudad podrán disfrutar de lo que es el espacio verde y público más grande de la ciudad.

Tomando los caminos existentes, completando las partes que faltan y conectándolos a la nueva infraestructura, los ciudadanos de Bogotá tendrán la oportunidad de hacer senderismo y caminar por las montañas, este espacio que durante tanto tiempo se ha visto como prohibido y quizás peligroso. Aunque el proyecto actual muestra esta estrategia aplicada específicamente al Barrio Bosque Calderón Tejada, el modelo debe ser replicable, tanto en comunidades formales como informales.

EL SISTEMA:

Para lograr el objetivo de devolver a los bogotanos ese espacio público que parece perdido, es necesario tejer unos corredores verdes (calles más amigables para el peatón) en la ciudad que conecten con vías articuladoras y principales. En este caso la calle 62, desde la Carrera 7 hasta la Circunvalar, se convertiría en un punto de acogida a la ciudad - conectando el espacio intermedio entre lo edificado y lo natural que la rodea.

Aunque el enfoque principal del proyecto es la frontera entre la ciudad y la reserva natural, los barrios informales como el Bosque Calderón plantean un desafío y una oportunidad únicos, ya que carecen tanto de espacios públicos como del espacio para construirlos. Al conectar la ciudad con la reserva a través de estos corredores y espacios intermedios, es posible crear nuevos edificios que den espacio a la vida pública y aseguren la actividad para el resto del proyecto, además de mejorar las condiciones de vida de estos barrios.

CENTRO DE INVESTIGACIÓN Y REHABILITACIÓN DE LA FAUNA DE LOS CERROS ORIENTALES

Un ejemplo de un edificio que podría formar parte de este sistema que involucra actividades educativas, públicas y científicas, es un Centro de Rehabilitación e Investigación de Fauna de los cerros orientales. Ajustándose a los retos que implica el terreno inclinado, este edificio permite el paso de los senderos y el público para conocer a los animales en sus periodos de recuperación, teniendo además como objetivo un “museo” para cuando las especies no estén.

El programa del edificio incluye un observatorio, un recinto de anfibios y reptiles, un recinto de aves, un centro de rehabilitación y hospitalización, un recinto de pequeños mamíferos y una torre de vigilancia que permiten que en continuidad una persona pueda aprender sobre los animales para luego continuar con su camino a quizas encontrarlos a través de los senderos en las montañas.

RENOVACIÓN DE FACHADA: EDIFICIO COLSEGUROS

Rhinoceros + Autocad + Photoshop + Illustrator + Twinmotion

Andrea Calvo // Valentina Gámez // Pedro Hurtado 2021 - U.I Proyecto Materialidad y Diseño Bogotá, Colombia.

Profesores: Camilo Isaak, Camilo Villate

La clase se enfoca en la exploración material y el diseño desde la pieza y la pequeña escala. En este caso, la exploración de los materiales cerámicos para la conformación de una fachada. El encargo consiste en la renovación de la fachada de la Unidad Residencial Colseguros en Bogotá: dos edificios que hacen parte del movimiento moderno que se dio en Colombia - con una estructura aporticada que permite el reciclaje de estructuras y la renovación de la envolvente para mejorar la habitabilidad del edificio y sus unidades, junto con la estética general del lugar. A través del análisis de las condiciones actuales (internas y externas) del edificio, se plantean 3 objetivos principales:

1. Fomentar las conexiones entre el exterior e interior del proyecto.

2. Incrementar la funcionalidad y habitabilidad del espacio a través de una planta abierta.

3. Proporcionar espacios exteriores que ofrezcan diferentes experiencias para habitar el espacio.

el detalle:

Dado al planteamiento del proyecto, desde la pieza hasta el sistema, era importante detallar el montaje y la espacialidad de cada operación y la estética y realidad de cada sistema.

CORTE POR FACHADA - BALCÓN BALCONES EN ZONA SOCIAL

Baranda vidrio templado 6mm

Tableta cerámica 0.38mx0.38m

Marco en aluminio

Manto vegetal 10cm

Gravilla filtración 10cm

Gárgola de desague

Grava filtración 10cm

Tableta cerámica gris 0.38mx 0.425m

Matera metálica 6mm

Perfil metálico tubular rectangular 5x10cm soporte matera

Plot PVC soporte piezas cerámicas 8cm

Manto impermeabilizante 3mm

Loza concreto reforzado 10cm

Perno de amarre clip de fijación 1/4” x 6cm

Tableta cerámica Beige 0.38x0.15m

Ángulo metálico 10x8cm

Steel deck

Perno estructural fijación steel deck 3/4”

Clip de fijación fachada ventilada con gotero metálico

Viga de remate en acero IPE 180

Viga en acero IPE200

Perfil tubular cuadrado en acero 8x8cm

Perno de amarre clip de fijación 1/4” x 6cm

Viga en acero UPE 210mmx150mmx6m

Cielo Raso cerámico

Marco ventanería en aluminio prepintado color dorado perlado

Perno estructural 1pulgada x 12cm reforzado con époxico de pega

Vidrio templado 4mm

Cortina enrollable

Cielo raso en drywall

Chapa metálica remate cielo raso

Desague cubierta habitable Alfajíaen aluminio prepintado

Clip de fijación en acero inoxidable 3cmx3cm

Bisagra 4x4cm acero galvanizado

Silla ventana en madera con almacenamiento interior

Tableta cerámica beige 0.425x1.11m

Tableta cerámica gris 0.45x0.38m

Acabado piso en madera laminada

Mortero de pega 2cm

Silla metálica con almacenamiento interior

Mortero de nivelación 3 cm

Tableta cerámica beige 0.425 x 0.38m

Viga en concreto reforzado 30cmx40cm

1.11 1.14 1.14 0.25 0.25 0.38 0.38 0.38 0.38 0.38 0.38 0.38 0.38 0.38 0.38 0.25 0.15 0.38 1.11 1.11 1.11 0.15 O 13 11 N 17
A B C D E F G H I J K L M N O P Q R S T U V W X Y Z 1 2 3 4 5 6 7 8 9 10 11 12 13 14 15 16 17 18
BEFORE

K(H)RONOS

Exhibición Fotográfica 2021

K(h)ronosrefiriéndose al rey de los titanes y dios del tiempo en la mitología griega.

Esta serie de fotografías ilustra el centro histórico de Bogotá desde una perspectiva ascendente, haciendo que los edificios se mantengan altos y que la arquitectura adquiera un significado particular dentro del encuadre. Capturada en diferentes momentos del día, permite al espectador ver las diferentes atmósferas creadas por el clima, y el tiempo, siempre cambiante de la ciudad.

Autor: Andrea Calvo Estrada

PORTAFOLIO

Arquitectura 2024
Andrea Calvo Estrada

Turn static files into dynamic content formats.

Create a flipbook
Issuu converts static files into: digital portfolios, online yearbooks, online catalogs, digital photo albums and more. Sign up and create your flipbook.