Portafolio trabajo de grado- Anamaria Munar

Page 1

PORTAFOLIO

MODELO DE VIVIENDA DE EMERGENCIA COMO RESPUESTA

A ciclones TROPICALES: ESTUDIO DE CASO san andrEs

ANAMARIA MUNAR ISAZA
Alcance: Proyecto arquitectónico: -Urbanismo -Estructura -Arquitectura

PROBLEMA

Déficit cuantitativo y cualitativo en los últimos 10 años en las viviendas generadas a partir de desastres naturales en comunidades vulnerables.

PROBLEMÁTICA

La vulnerabilidad territorial y la atención de situaciones de emergencia.

objetivo

Desarrollar un nuevo modelo de vivienda de emergencia para la prevención del desplazamiento y desalojo de comunidades vulnerables en áreas afectadas por ciclones el cual permita su transformación al paso del tiempo según las necesidades de sus habitantes.

OBJETIVOSESPECÍFICOS

1. Desarrollo de una propuesta arquitectónica la cual genere un modelo modular de vivienda progresiva para comunidades vulnerables utilizando pocos recursos y aprovechando las ventajas ambientales del territorio para la mitigación de los impactos negativos de los desastres naturales.

2. Analizar los tipos de viviendas de emergencia existentes usados en caso de un desastre natural por ciclones tropicales.

3. Proponer estrategias y lineamientos para el modelo de vivienda progresiva, para su futuro uso en otros lugares del mundo/país con problemáticas similares.

4. Reconocer el funcionamiento actual de las viviendas de emergencia en San Andrés para la formulación oportuna de soluciones a sus problemáticas habitacionales.

https://www.bbc.com/mundo/video_fotos/2011/12/111218_fotos_galeria_desastres_2011_tsb DESASTRES NATURALES ACCIONES HUMANAS FACTORESAMB I E N T A L E S CAMBIO CLIMÁTICO Población vulnerable Impactos socioeconómicos Crisis Desplazamiento forzado 152 millones de latinoamericanos han sido afectados por 1205 desastres naturales desde el 2000 17 por año promedio Colombia + de 10 millones de habitantes han sido afectados Económico RIESGOÁreasconmenos desarrollo inundaciones perdidas ACTIVOSFÍSICOS Vivienda pertenencias Ecológico AMBIENTALES Perdida de vidas SALUD HURACANES ANALÍSIS
16/nov/2020 140 familias afectadas en la isla de San Andrés 1900-2000 hogares destruidos 2021-2022 sin respuesta efectiva por parte del gobierno. H U R AC ÁNIOTA:SanAndrés y Providencia CONSECUENCIASPRINCIP A L E S DESPLAZAMIENTO FORZADO déficit decalidadde v i d a Impacto negativo en los medios de vida 240 km/h 98% infraestructura destrida Disminución de turismo
https://www.sanandres.gov.co/index.php/archipielago/mapas/mapa-turistico MAR CARIBE CENTRO AEROPUERTO GUSTAVO ROJAS PINILLA CLIFF VIA PEPPER HILL COVE ROAD NORTH END AVENIDA LOMA BARRACK PUERTO MARÍTIMO AVENIDA CIRCUNVALAR Tercer arrecife coralino más importante nivel mundial (UNESCO)
san andrés nicaragua colombia panamá san anrés costa rica Población : 65,627 habitantes Extensión: 27km2 Cultura Turismo Reserva de biosfera (UNESCO) 3 1.Elevación geográfica 2. Vías 3. Riesgos climáticos 4. Zona de desaparición en 50 años 5. Cobertura de alcantarillado 6. Cobertura de acueducto 7. Zonas de asentamiento de viviendas temporales zona de alto riesgo ante sismos y huracanes zona de alto riesgo ante huracanes zona de alto riesgo ante remoción en masa 4 zona de desaparición en 50 años zona de inundación 5 concentración de viviendas con servicio de alcantarillado. 6 Convenciones 7 0-1 concentración de viviendas con servicio de acueducto. 1-3 3-10 11-20 21-40 concentración de viviendas de uso temporal
contexto

( zona de mayor riesgo climático).

Están ubicadas en la zona con mayor: riesgo climático Déficit habitacional Déficit de infraestructura vial y de alcantarillado Vulnerabili dad en la salud. Déficit de calidad de vida Déficit de cobertura de necesidades básicas urbanización VIVIENDAS TEMPORALES (EMERGENCIA)
La evolución de la isla ha sido hacía el norte en el borde costero. Es la zona más poblada. 50 años gran parte de esas zonas van a desaparecer. La zona oriental de la isla es la mejor zona para re urbanizar y re asentar. Menor densidad urbana. Menor riesgo de amenazas ambientales Mayor elevación geográficamente Mayor potencial
19 UPI 12 UPIR EL CLIFF 51% mujeres 31% p o blaciónentre0y14añ o s 49% hombres 62,6% p o blaciónentre15y59a soñ POBLACIÓN (segúnDANE2018) 62,1% CASAS UNIDADES X TIPO(segúnDANE2020) 31,1% APARTAMENTOS 6,2% HABITACIÓN 0,5% OTROS A N Á L I S I SPOBLACIONAL26,4% ON A L CANZAACUBRIR LOS GASTOSMÍ N I M O S 55,8% S O L O ALCANZAACUBRIRGASTOSMÍ N I M O S 17,8% C U B REMÁSDELOS GASTOSMÍNIMOS INGRESOS Habitan en asentamientos tuguriales, con caren cia de servicios públicos y ubicados en zonas de alto riesgo 80% de la isla presenta estos asentamientos. 86,7% j e f aturafemeninasincony u g e NBIENCIMA DELNACIONAL2% 2,9% P R OMEDIOPERSONASXHOGAR A C T I V I DADESECONÓMICAS COMERCIO HOTELERÍA RESTAURANTES UPI- R11 UPI- R10 UPI- R6 UPI- R9 UPI- R12 UPI- R8 UPI- R4 UPI- R7 UPI- R5 UPI- U3 UPI- R3 UPI- U4 UPI- U19 UPI- U2 UPI- U1 UPI- U17 UPI- U18 UPI- U16 UPI- U12 UPI- U15 UPI- U14 UPI- U13 UPI- U10 UPI- U6 UPI- R1 UPI- U5 UPI- U8 UPI- U9 UPI- U7 UPI- U11 UPI- R2
Solucionar el habitar en condiciones vulnerables Vivienda apta Cubrimiento de necesidades mínimas Derecho a la vivienda Seguridad de la tenencia Accesibilidad Habitabilidad Adecuación cultural Ubicación Asequibilidad Disponibilidad de servicios Vivienda de emergencia Respuesta a corto plazo Condiciones para un nivel de vida digno Modulos habitacionales Diseño interactivo con la comunidad Distintas tipologías Modificación en el tiempo Permanente Sostenible y sustentable Inclusión de la comunidad, arquitectura y cultura GENERAR RESPUESTA MÁS EFECTIVA P ROPUESTA VIVIENDAPROGRESIVA Y FLEXIBLE
IMPLANTACIÓN:UPI UPI- U3: Vivienda unifamiliarUPI- R11 UPI- R10 UPI- R6 UPI- R9 UPI- R8 UPI- R4 UPI- R7 UPI- R5 UPI- U3 UPI- R3 UPI- U4 UPI- U19 UPI- U2 UPI- U1 UPI- U17 UPI- U18 UPI- U16 UPI- U12 UPI- U15 UPI- U14 UPI- U13 UPI- U10 UPI- U6 UPI- R1 UPI- U5 UPI- U8 UPI- U9 UPI- U7 UPI- U11 UPI- R2 3 3 4 2 2 usoprincipal:vivienda unifamiliar,espaciopúblico 2.consolidación 1 1.mAnejo de borde 3.desarollo 4.mejoramiento integral i.o: 0.40 del área del lote i.c: 0.80 altura máx: 2 pisos y/o 7m andenes: 2 m Área total 17.765 m2 Área util 15.034 m2 Área bruta por lote 65 m2 I.O: 0.4 I.C: 0.8 Área 26 m2 Área total por vivienda: 52 m2 3

GESTIÓN

Agentes intermediarios

Sistema nacional de gestión de riesgo de desastres (SNGRD)

Entidades públicas

Entidades privadas

Producción social

organizada y asistida

Presidencia

Fundaciones sin animo de lucro

Cruz roja colombiana Unidad nacional de gestión de riesgos de desastres (UNGRD) Ministerio de vivienda

Fondo nacional Alcaldía

Fondo municipal

LUGAR DE INTERVENCIÓN

ÁREA TOTAL : 17.765M2

ÁREA UTIL : 15.034 M2

ÁREA BRUTA POR LOTE : 65 M2

ÍNDICE DE CONSTRUCCIÓN: 0.4 ÍNDICE DE OCUPACIÓN: 0.8

ÁREA CONSTRUIDA: 26 M2 ÁREA TOTAL POR VIVIENDA: 52 M2

LOCALIZACIÓN

PRECIPITACIONES: -1500-2000 mm anual. -150-200 días de lluvia al año.

TEMPERATURA: - 26-28°C durante el año - Clima humedo

Población Lugar

70 familias Archipielago San Andrés y Providencia: Isla San Andrés.

Rosa de los vientos

CARRERA 20 ASENTAMIENTOS
Evitar inundaciones/ guardar materiales Pocas divisiones interiores Pinturas de colores Machihermbrado Planta rectangular Evitar humedad Ático: ampliación de vivienda https://expeditiorepositorio.utadeo.edu.co/bitstream/hand le/20.500.12010/7768/Trabajo%20de%20grado.pdf?sequence=1&isAllowed=y Cubierta a dos aguas https://www.sanandres.travel/news/casa-museo-islena Determinantes 1. ARQUITECTURA VERNÁCULA LOCAL -Palafítico -Madera -Balcones -Chambrana -Cubierta a 2 aguas -Altillo OS B R E P I LOTESALTOS(PALAFÍTICA) USODEMADERA E L E M E NTOSCARACTERÍSTICOS C A S A R A I ZAL VIVIENDA DE MADERA SAN ANDRÉS Y PROVIDENCIA LORENZO FONSECA MARTINEZ ALBERTO SALDARRIAGA ROA Buhardilla

2. FACTORES BIOCLIMÁTICOS

-Eficiencia energética -Ventilación cruzada -Aislamiento témico -Materiales locales

PRECIPITACIONES:

-1500-2000 mm anual. -150-200 días de lluvia al año.

TEMPERATURA: - 26-28°C durante el año - Clima humedo

Modulación
ZONA DE SERVICIO: -Baño -Cocina ZONA TRANSFORMABLE: -Zona de recreación -Sala - Comedor -Estudio de trabajo ZONA HABITACIONAL: -Habitaciones Área total 2.82m2 Modulo de servicio
3. ESPACIOS MÍNIMOS

5. Referentes

Casa sombrilla

Argentina

-Eficiencia energética -Recursos locales -Definitiva -Autoconstrucción -Arquitectura vernácula local -Palafítico

Auto progresiva Altillo Optimización de espacio Rapidez Paneles de madera prefabrica dos Rectangular Cubierta inclinada

NOA 18+6
Chile

programa urbano

1. Circulación

1.1 Entrada principal

1.2 Entrada calle 22

1.3 Entrada calle 23

1.4 Sendero central

2. Salón comunal

2.1 Zona de reuniones

2.2 Guardería

2.3 Zona de baños comunales

2.4 Zona de estudio

2.5 Zona de producción

2.6 Zona de deposito

2.7 Zona de cocina comunitaria. ( temporal)

2.8 Zona de acopio de desechos.

2.9 Zona de acopio de materiales reciclables/reutilizables.

3. Área de protección natural

3.1. Zona de bosque cocotero

4. Área de recreación

4.1 Zona de juegos

4.2 Zona verde de protección

4.3 Zona de descanso

4.4 Zona de cancha múltiple

5.Nichos

5.1 Zona de vivienda

5.2 Zona de lavandería

5.3 Área de cultivo de alimento

6.Plazoleta inundable (entrada).

7. Zona de parqueo

urbanismo

Corte B

Corte A

Zona comunal Zona recreativa Cultivo de alimentos Cultivo de cañamo Parqueaderos Canal Andén Lavandería /Parque Entrada PROCESO
2 6 3 esc 1:1000 1.2 1.1 5 5 7 urbanismo UPI-U3 MAR CARIBE AEROPUERTO

corte URBANO

carrera 20 playa mar canal zona verde

andén entrada principal

proyecto

andén carrera 14

canal zona verde

aeropuerto

LAVANDERÍAS/CULTIVO

planta

5.1 5.3

5.2

planta

sALÓN
2
COMUNAL
7
6
pARQUEADERO
5.1
ÁREA RECREATIVA 4.1 4.4 4.2 4.3

plazoleta inundable

6 2

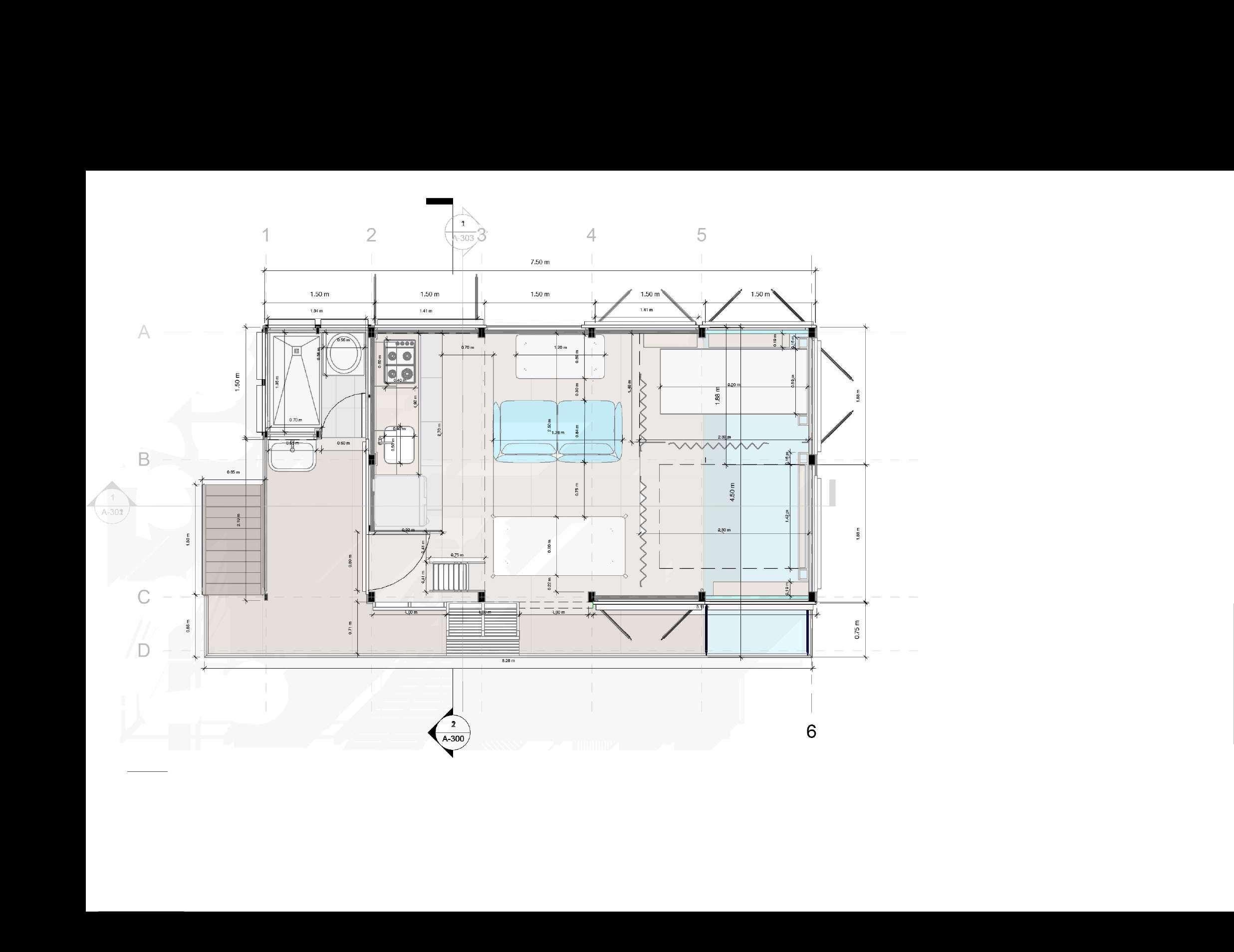
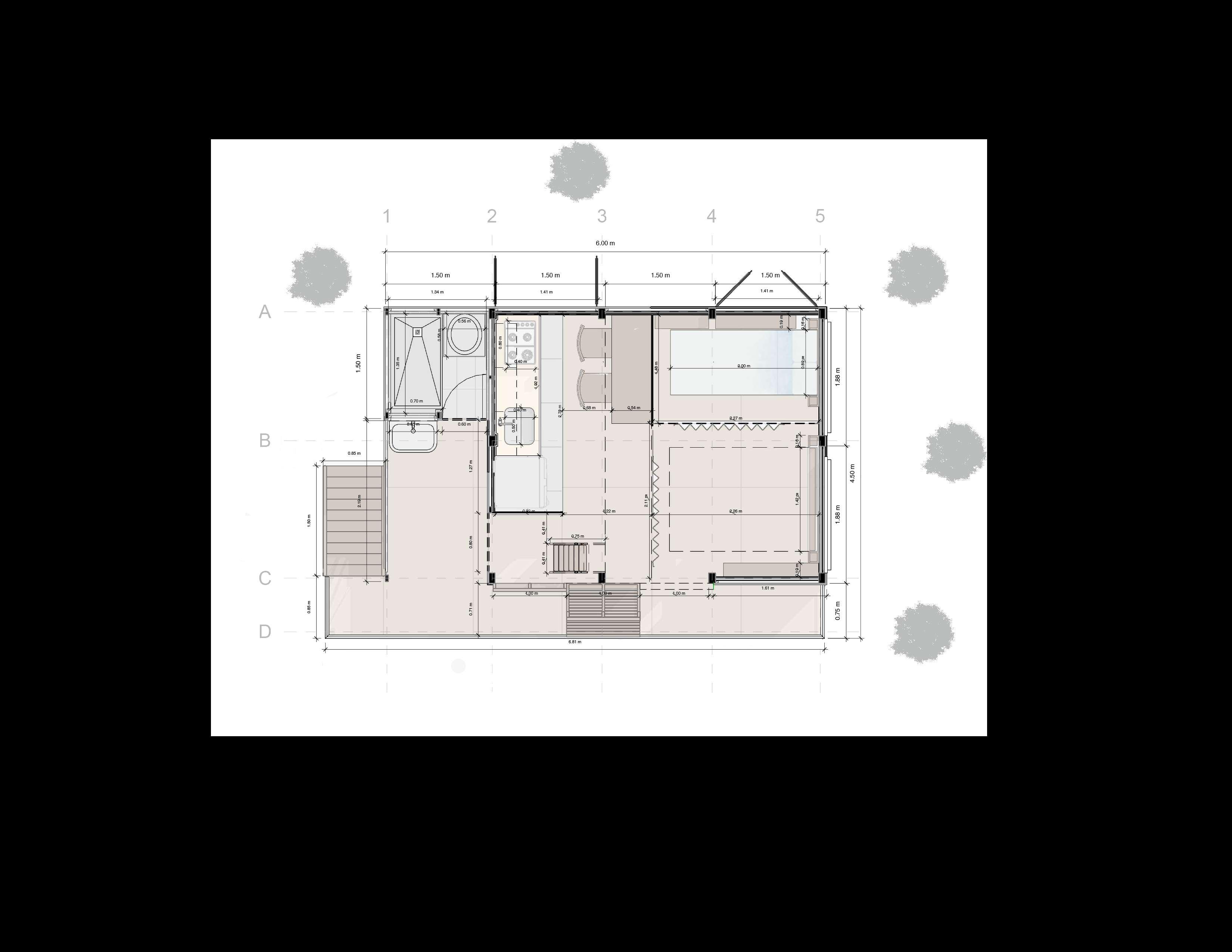
TIPO 1 NIVEL2: ÁREAS: 16.42m2

TIPO 1 NIVEL1
detalles 4-5 personas
TIPO 1 NIVEL 2
sur
norte
este

tipología 2 (ampliación)

TIPO 2 NIVEL1: ÁREAS: 30.09 m2

TIPO 2 NIVEL2: ÁREAS: 21.82m2

TIPO 2 NIVEL1

Elementos nuevos (tipología 2)

5 personas
TIPO 2 NIVEL 2

JUNTA DEL ACUERDO DE CARTAGENA- MANUAL DE DISEÑO PARA MADERAS GRUPO ANDINO

MEDIDAS EN CONTRA DE HURACANES: CONEXIONES TIPO J PARA COLUMNAS Y CIMENTACIÓN

TENSORES METALICOS CON GANCHO AL INETERIOR DE LOS PANELES

Columnas:

C1: 140mm x 140mm x 3m

C2: 90mm x 140 mm x 3m

C3: 40mm x 40 mm x 3.2 m

C4: 40mm x 90mm x 3.2m

Viguetas:

V1: 40mm x 90mm x 3.2m

V2: 40mm x 40mm x 3.96m

Vigas:

V3:90mm x 140mm x 3m

V4: 250mm x 250mm

(Vigas de cimentación)

Deformación por el viento

Momentos

Verificación
demanda-capacidad
materiales
SHINGLE PINO ASERRAD MA RACONTRACHPADA A I SLAM NTODE FIBRAD MAD E R A mADERA OSB pERSIANAS OPACAS CANALETA METÁLICA ILUM NAC ÓNLED CIM TACIÓN ENCO RETO p I NTURAEIMPERMEABILIZAN T E Áreas nivel 2(altillo)- escala 1:50 cocina
MATERIALIDAD

sostenibilidad

Paneles solares

Huertas propias

SES con pozo séptico para abono

Recolección aguas lluvias

Detalles de cubierta

Turn static files into dynamic content formats.

Create a flipbook
Issuu converts static files into: digital portfolios, online yearbooks, online catalogs, digital photo albums and more. Sign up and create your flipbook.