Amrish's Architecture portfolio | Thiagarajar College of Engineering, Madurai.

Page 1

Place : Dindigul, Tamilnadu Languages : Tamil, English Email : amrishr010@gmail.com Contact : +91 83000 05448 +91 88389 41631 22 / 05.11.1999 Amrish R linkedin.com/in/amrishr/@_amrish_r 02

COMPETITIONOTHERSOFTWAREWORKEDUCATIONEXPERIENCESKILLSKILL/INTEREST Thiagarajar College of Engineering, Madurai, Tamilnadu. Shanmugam Associates, Chennai & Trichy, Tamil nadu. RevitSketchupAutocad(Beginner) VrayEnscapeLumionIndesignIllustratorPhotoshop(Beginner) Premier pro Nari Gandhi Trophy Nasa India (Shortlisted(2018-19)inTop60) Annual Nasa Design Competition Nasa India (2019-20) Team Leader Louis I Kahn Trophy Nasa India (2019-20) Sketching (Manual, Digital) VideoPortraitediting Bachelor of Architecture (2017-2022) Internship (Dec 2021 - Apr 2022) Drafting / 3DPresentationModelingVisualisation/video editing 03

CONTENT 04

1. Campus design ... 06 2. Architectural Thesis ... 14 3. Internship ... 22 4. Competitive ... 32 5. Documentation ... 34 6. Miscellaneous ... 36 05

NATIONAL INSTITUTE OF DESIGN CAMPUS DESIGN NID, a campus which offers design courses like industrial design, architectural design, apparel & textile design and commnication design. The site is located in Othakadai, Madurai with a vantage view of Yanamalai on north west ern side of theLocationsite. : Madurai, Tamil nadu Site area : 48,563 sqm Built area : 11,925 sqm ENTRANCE Modelled in Sketchup 2021 and Rendered in Lumion 10.3 06 01

SITE EVOLUTION 01. SITE 02. BASIC VOLUME 03. SITE ZONING 04. SITE MASSING SITE PLAN Drafted in AutoCAD 2018 and Rendered in Photoshop 2019 07 ACCOMODATION OSR

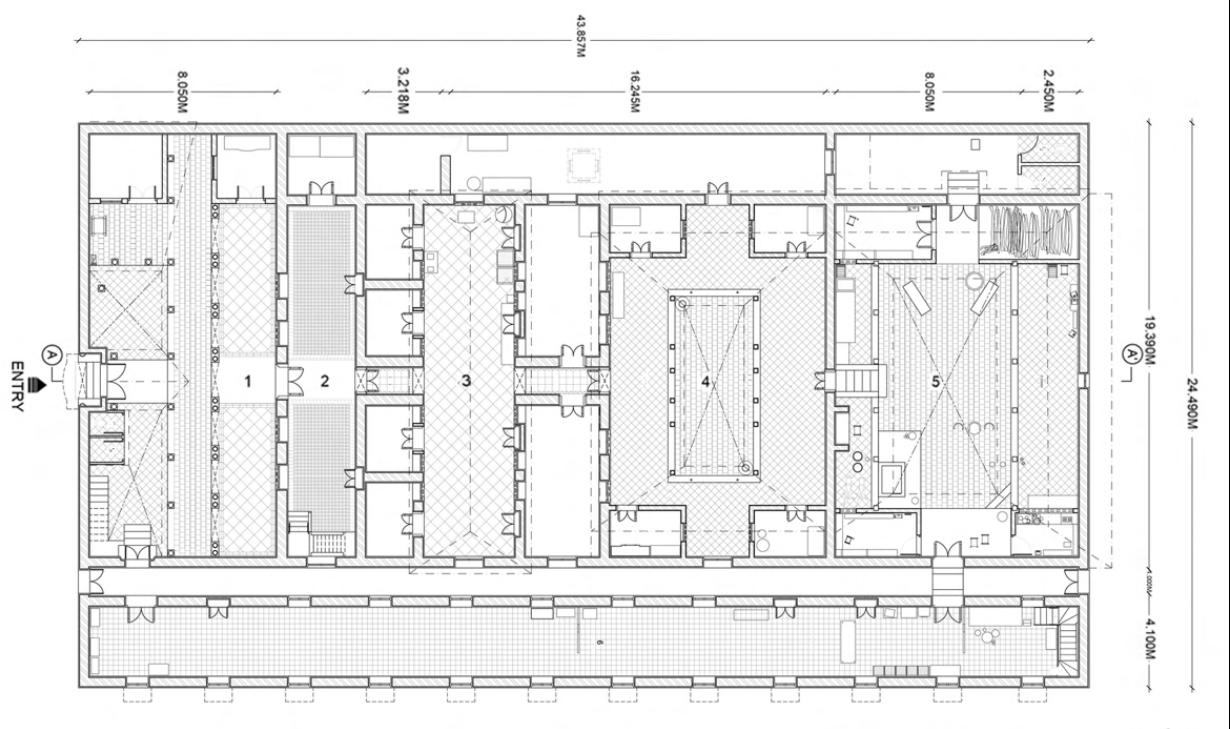
AERIAL VIEW Modelled in Sketchup 2021 and Rendered in Lumion 10.3 08 GROUND FLOOR PLAN

09 FIRSTFLOOR PLAN

SECTION Drafted in AutoCAD 2018 and Rendered in Photoshop 2019 10 Front LandscapeView

11 East Side CourtyardView

EXPLODE VIEW Louver facade Landscape 12 0104 0305 02 LEVEL 2 : 04. Architectural design 05. designCommunication LEVEL 1 : 01. Industrial design 02. Apparel & Textail 03.designWorkshop

STUDIO Studios are oriented on North-East according to wind direction and to avoid heat and radiation. So that it gets enough day light and ventila tion. Entry on one side and an additional space on the other side for group work, discussion and review. Volume is about 20m x 11m x 4.2m, with a capacity of 40 ppls. The ad justable vertical louvers on back side of the studio, that seperates studio and review, discussion space with partial lighting. Plan STUDIO Modelled in Sketchp 2021 and Rendered in Vray 5.2 13 Studio spacespacediscussionReview,

CONVENTION CENTRE ARCHITECTURAL THESIS Convention centre for Rajkot city to improve the regions ability to attract revenue generating conventions and helps in economy and employment. Location : Rajkot, Gujarat. Site area : 52,840 sqm (13 acre) Built area : 21,255 sqm FACADE Modelled in Sketchup 2021 and Rendered in Lumion 10.3 14 02

15 SITE EVOLUTION The idea is to manage the crowd with easily approachable ways towards their need. The site is near Isckon temple in rajkot with State Highway (no.23, Rajkot - Kalavad) at front and barren land on other sides. 10 kms away from airport.01.SITE 02. BASIC VOLUME 03. SITE ZONING 04. SITE MASSING Vehicular access

SITE PLAN Drafted in AutoCAD 2018 and Rendered in Photoshop 2019 16 N

LEVEL 1 : MultifunctionalRegistration, hall, Exhibition hall, Food court. LEVEL 2 : Convention halls, Auditorium. LEVEL 3 : Ball PlenaryBanquetroom,halls,theatre. LEVEL 4 : Meeting Conferencehalls,hall. LEVEL 5 : Meeting Administration.halls, EXPLODE VIEW Modelled in Sketchup 2021 and Rendered in Photoshop 2019 17

N WAITING AREA Modelled in Sketchup 2021 and Rendered in Enspe 3.1 18 GROUND FLOOR PLAN FORM DEVELOPMENT AdditionEntranceAtriumoffloorMultiplefloors-RecessedtotopMassing

N FACADE Modelled in Sketchup 2021 and Rendered in Lumion 10.3 19 FIRST FLOOR PLAN SECOND FLOOR PLAN

N THIRD FLOOR PLAN FOURTH FLOOR PLAN Waiting area EntranceFront views Lobby 20

A multistorey building with 5 floors of composite structure, has several ele ments. It has the capacity of 6500+ de ligates. This helps in employment and also generates revenue for the city by helding conventions, meetings, exhibi tions, concerts, etc. Thus helps in city development and in economic.

top floor

SECTION AERIAL VIEW Modelled in Sketchup 2021 and Rendered in Lumion 10.3 21

View from

INTERNSHIP @SHANMUGAM ASSOCIATES, Trichy. NORTH STAR SCHOOL - Library staircase @RAJKOT 22 03

NS1 NS2 NS3 NS4 NS5 NS6 NS7 NS1 NS2 NS3 NS4 NS5 NS6 NS7 EW2EW1 EW2EW1NS1ANS1 NS7ANS7A2.0 WIDE DECK (OUT DOOR STUDY) MAGAZINE DISPLAY & BOOK RACK 2.0 WIDE DECK (OUT DOOR STUDY) RACKBOOK RACKBOOK RACKBOOK RACKBOOK RACKBOOK RACKBOOK LIBRARIAN DESK SEATER SEATER SEATER 3350[11'] [10'-1"]3075 [10'-1"]3075 [18'-6"]5650 [10'-1"]3075 [10'-1"]3075 [8'-3"]2510[78'-1"]23810[8'-3"]2510 WATER LEVEL 50 MM BELOW FLOOR LVL LEVEL 450 MM BELOW FLOOR LVL EXISTING WATER BODY [2'-11"]900 DOORSLIDING [11'-4"]3450 SLIDING DOOR LEVEL 150MM /300 MM BELOW FLOOR LVL LEVEL 150MM / 300 MM BELOW FLOOR LVL 150MMLEVEL/300 MM FLOORBELOWLVL AS WE ARE PROVIDING WINDOW AT 0MM TO 600MM FROM FLOOR LVL FOR THE WATER SEE THROUGH SO WE NEED TO BUILT BRICK WALL AT BOTH SIDES AND OVER IT WE CAN BUILT LINTEL OVER THE BRICK WALL. AS OF NOW WE CONSIDER IT AS NORMAL PLINTH BEAM BELOW THE GROUND LVL. PROVIDE SLEEVE FOR HVAC PIPELINE FORSLEEVEPROVIDE PIPELINEHVAC FORSLEEVEPROVIDE PIPELINEHVAC [4'-8"]1424[4'-8"]1423[4'-4"]1312[4'-4"]1312[4'-4"]1313 9601141[3'-9"][3'-2"] 1140[3'-9"] 600[2'][2'-10"]867 [11'-4"]3467 [2'-10"]867 2101[6'-11"] 34001129971[3'-2"][3'-8"][11'-2"] [4'-4"]1313 [4'-4"][4'-4"]13131313[4'-4"]1313 [4'-4"]1312 600[2'][2'-10"]867 [11'-4"]3467 600[2'][2'-10"]867 972[3'-2"] 972[3'-2"] [4'-4"]1313 [4'-8"]1423 [4'-8"]1423 [4'-4"]1313 [4'-4"]1313 [4'-4"]1313 [4'-4"]1312 [4'-4"]1314 2550170017001128[3'-8"][5'-7"][5'-7"][8'-4"]17001700[5'-7"][5'-7"] [4'-4"]1313 17001700[5'-7"][5'-7"] [4'-4"]1312 1128[3'-8"] [4'-4"]1312 [4'-4"]1313 [4'-8"]1423[4'-4"]1312 [1'-6"]450 [1'-6"]450 [4'-4"] [1'-6"] [4'-4"] [4'-4"] 960[3'-2"]2100[6'-11"]2100[6'-11"] [1'-6"][1'-6"]450450 [1'-6"]450[1'-6"]450 600[2'] 210034002100[6'-11"][11'-2"][6'-11"][4'-4"]1312 [4'-4"]1313 [1'-6"]450 [4'-8"]1423 [1'-6"]450 LIBRARY - ELECTRICAL LAYOUT SCALE-1:100 |01 SHANMUGAM ASSOCIATES NO. DATE CLIENT: ELECTRICALPLUMBINGSTRUCTURALXXXXXXXXXXXXXXXXXXXXX::: SHEET TITLE: SHEET NUMBER:IF THIS DRAWING IS NOT A3 IT IS REDUCED TO PRINT REFER TO GRAPHIC SCALE 0 1 2XKEY PLAN / NORTH SIGN PHASE/ARCHITECT'S SEAL COPYADVANCE ISSUE DATENO. B-13, 2ND CROSS,W.E.THILLAI NAGAR,TRICHY-620018 TEL:0431-2760010 NEW NO:3,SINGARAM STREET,T.NAGAR CHENNAI-600017 TEL:044-42605480 EMAIL WEBSITECONTACT@SHANMUGAMASSOCIATES.INWWW.SHANMUGAMASSOCIATES.IN DRAWING SCALE ARCHITECT: LIBRARY GROUND FLOOR - ELECTRICAL LAYOUT NORTH STAR SCHOOLXXXXXXXXXXXXXXXXXXXXXXXXXXXXXXXXXXXXXXXXXXXXXX SKYLIBRARYLIGHTLIBRARYSKYLIGHTLIBRARYSKYLIGHTLIBRARYSKYLIGHTELEVATIONSECTION 23 ELECTRICAL LAYOUT 01. NORTH STAR SCHOOL - Library, Rajkot.

LIBRARY HELICAL STAIRCASE STAIRCASE - Section detail 1 5 10 1520 22 2 3 4 6 7 8 1391112 14 16171819 21 3300 OUTER625MMTREAD2300MMDIA.5300MMDIA.300MMINNERTREADDOORSLIDING DOORSLIDING GROUND FLOORFIRSTLEVEL FLOOR LEVEL 3300 200 150 1000 1300 25MM STEELRAILINGTHICKPLATE 50 230 HANDRAILWOODEN 11 FIRST FLOOR LEVEL RISER : 150 MM TREAD: INNER - 300 MM OUTER - 625 MM 50 GROUND FLOORFALSELEVELCEILING50MM STAIRACSE SECTION DETAIL SCALE-1:20 |01 SHANMUGAM ASSOCIATES NO. DATE CLIENT: ELECTRICALSTRUCTURALXXXXXXXXXXXXXXXXXXXXX:: SHEET TITLE: SHEET NUMBER:IF THIS DRAWING IS NOT A3 IT IS REDUCED TO PRINT REFER TO GRAPHIC SCALE 0 1 2XKEY PLAN / NORTH SIGN COPYADVANCE ISSUE DATENO. B-13, 2ND CROSS,W.E.THILLAI NAGAR,TRICHY-620018 TEL:0431-2760010 NEW NO:3,SINGARAM STREET,T.NAGAR CHENNAI-600017 TEL:044-42605480 EMAIL WEBSITECONTACT@SHANMUGAMASSOCIATES.INWWW.SHANMUGAMASSOCIATES.IN DRAWING SCALE ARCHITECT: LIBRARY STAIRCASE SECTION NORTH STAR SCHOOL XXXXXXXXXXXXXXXXXXXXX XXXX LIBRARY STAIRACSE SECTION SCALE-1:50 VIEWS 24

CASH CONTER - Detail drawing VIEWS 25 02. BEIJING BITES - Restaurant, Trichy.

EXTERIOR - 3D Model 26 03. ROHINI COLORS, Trichy. BACK STORAGE - Detail drawing

FRONTFACADEELEVATION 04. ANAND RESIDENCE, Trichy. SIDE ELEVATION 27

WINDOW SCHEDULE - Joinery detail DOOR SCHEDULE - Joinery detail 28

05. GOWRI ILLAM, Trichy. TOILET DETAIL GATE & COMPOUND WALL 29

SHANMUGAM ASSOCIATES NO. DATE CLIENT: SHANMUGAM LANDSCAPESTRUCTURALASSOCIATES::XXXXXXXXXXXXXXXXXXXXXMEP: SHEET TITLE: SHEET NUMBER:IF THIS DRAWING IS NOT A3 IT IS REDUCED TO PRINT REFER TO GRAPHIC SCALE 0 1 2XKEY PLAN / NORTH SIGN PHASE/ARCHITECT'S SEAL ISSUE DATENO. XXXXXXXXXXXXXXXXXXX B-13, 2ND CROSS,W.E.THILLAI NAGAR,TRICHY-620018 TEL:0431-2760010 NEW NO:3,SINGARAM STREET,T.NAGAR CHENNAI-600017 TEL:044-42605480 EMAIL WEBSITECONTACT@SHANMUGAMASSOCIATES.INWWW.SHANMUGAMASSOCIATES.IN DRAWING SCALE ARCHITECT: MAIN GATE DETAIL MR.RAMESH, TRICHY PLAN AT 1' LEVEL ELEVATIONSCALE-1:50SCALE-1:50 FIXED SLIDINGGATEGATE GOWRI ILLAM PLAN AT 3' LEVEL SCALE-1:50 FIXED SLIDINGGATEGATE 4" 18' 6' 6' 6' 18' BA 50X100 mm MS SECTIONBOX 18' 6' 6' 6' 4" 6' 6' 6' 4'-6" MSMS6x40mmFLAT6x40mmFLAT PHASE/ARCHITECT'S SEAL SCALE-NTS SECTION SCALE-1:50 DETAIL A SCALE-1:5 2"2"2'-9"1'-5"4'-6" DETAIL B SCALE-1:5 4" 4" 6x40mm MS FLAT 4" 2" 1" 50X100 mm MS MS50X100SECTIONBOXmmBOXSECTION C/C 40mm 6x40mm MS FLAT (45 degree TILTED) 50X100 mm MS SECTIONBOX 50X100 mm MS SECTIONBOX 2" C/C 40mm 6x40mm MS FLAT 6x40mm MS FLAT SHANMUGAM ASSOCIATES NO. DATE CLIENT: SHANMUGAM LANDSCAPESTRUCTURALASSOCIATES::XXXXXXXXXXXXXXXXXXXXXMEP: SHEET TITLE: SHEET NUMBER:IF THIS DRAWING IS NOT A3 IT IS REDUCED TO PRINT REFER TO GRAPHIC SCALE 0 1 2XKEY PLAN / NORTH SIGN PHASE/ARCHITECT'S SEAL ISSUE DATENO. XXXXXXXXXXXXXXXXXXX B-13, 2ND CROSS,W.E.THILLAI NAGAR,TRICHY-620018 TEL:0431-2760010 NEW NO:3,SINGARAM STREET,T.NAGAR CHENNAI-600017 TEL:044-42605480 EMAIL : WEBSITECONTACT@SHANMUGAMASSOCIATES.INWWW.SHANMUGAMASSOCIATES.IN DRAWING SCALE ARCHITECT: MAIN GATE DETAIL MR.RAMESH, TRICHY VIEWS SCALE-NTS SECTION SCALE-1:50 GOWRI ILLAM DETAIL A SCALE-1:5 2"2"2'-9"1'-5"4'-6" DETAIL B SCALE-1:5 4" 4" 6x40mm MS FLAT 4" 2" 1" 50X100 mm MS MS50X100SECTIONBOXmmBOXSECTION C/C 40mm 6x40mm MS FLAT (45 degree TILTED) 50X100 mm MS SECTIONBOX 50X100 mm MS SECTIONBOX 2" C/C 40mm 6x40mm MS FLAT 6x40mm MS FLAT VIEW 30 MAIN GATE - Detail drawing

SHANMUGAM ASSOCIATES NO. DATE CLIENT: SHANMUGAM LANDSCAPESTRUCTURALASSOCIATES::XXXXXXXXXXXXXXXXXXXXXMEP: SHEET TITLE: SHEET NUMBER:IF THIS DRAWING IS NOT A3 IT IS REDUCED TO PRINT REFER TO GRAPHIC SCALE 0 1 2XKEY PLAN / NORTH SIGN PHASE/ARCHITECT'S SEAL ISSUE DATENO. XXXXXXXXXXXXXXXXXXX B-13, 2ND CROSS,W.E.THILLAI NAGAR,TRICHY-620018 TEL:0431-2760010 NEW NO:3,SINGARAM STREET,T.NAGAR CHENNAI-600017 TEL:044-42605480 EMAIL : WEBSITECONTACT@SHANMUGAMASSOCIATES.IN:WWW.SHANMUGAMASSOCIATES.IN DRAWING SCALE ARCHITECT: COMPOUND WALL A DETAIL MR.RAMESH, TRICHY AR40701 PLAN SCALE-1:25 SECTION SCALE-1:25 ELEVATION SCALE-1:25 MS SUPPORT GOWRI ILLAM A GRANITEGRANITEGRANITE DETAIL A SCALE-1:10 GRANITEGRANITE3"2' 8' 8' 6" 8' 25'-8" 412" 20 PIECES AT EACH 8' 25'-8" 4'-6" 4'-6" 6" 1'-2"3" 2'-3" GRANITE GRANITE 3" 2'-3"3"2' MS GRANITEGRANITESUPPORTGRANITEGRANITE TRAP DOOR - Detail drawing 31 COMPOUND WALL - Detail drawing 1380 12 18 1380 688 12 18 688 1380 3500 688 688 820 5 3500 12 18 30 5 1575 1095 1518 KK NAGAR RESIDENCE SHANMUGAM ASSOCIATES NO. DATE CLIENT: ELECTRICALPLUMBINGSTRUCTURALXXXXXXXXXXXXXXXXXXXXX::: TRAP DOOR - DETAIL SHEET TITLE: SHEET NUMBER:IF THIS DRAWING IS NOT A3 IT IS REDUCED TO PRINT REFER TO GRAPHIC SCALE 0 1 2XKEY PLAN / NORTH SIGN PHASE/ARCHITECT'SCOPYADVANCESEAL ISSUE DATENO. B-13, 2ND CROSS,W.E.THILLAI NAGAR,TRICHY-620018 TEL:0431-2760010 NEW NO:3,SINGARAM STREET,T.NAGAR CHENNAI-600017 TEL:044-42605480 EMAIL : WEBSITECONTACT@SHANMUGAMASSOCIATES.IN:WWW.SHANMUGAMASSOCIATES.IN DRAWING SCALEARCHITECT:MR.RENGANATHAN RESIDENCE, TRICHY 1-05/12/2016XXXXXXXXXXXXXXXX XXXXXXXXXXXXXXXXXXXXXXXX XXXXXXXXXXXXXXXXXXXXXXXX PLAN AT 750MM LEVEL SCALE- 1 : 50|01 ELEVATION SCALE- 1:50|05 PLAN AT 1500MM LEVEL SCALE- 1 : 50|02 DETAIL A SCALE- 1 : 10|03 SECTION SCALE- 1:50|06 12mm THICK 18 x 18mm 12mm THICK 18 x12mm18mmTHICK18x18mm 18X18mm THICK TRAP 12mmDOORTHICK5mmGAP5mmGAP AR4080103 3D VIEW SCALE- NTS|04 STAIRSKIRTING 40801 06. KK NAGAR RESIDENCE, Trichy.

ANDC (ANNUAL NASA DESIGN COMPETITION) COMPETITIVE - NASA 2019-2004 32 Shortlisted upto top 60 The brief is to identify the social elements present in the village and to provide the necessary proposal based on their problems. For this we choose Konnerirajapuram in Kumbakonam, TN. Scan this for video documentation

33

CHETTINAD HOUSE DOCUMENTATION05 YENA-LENA ILLAM 34 Chettinad house, one of the traditional houses of Taml Nadu was built by chettiyars(caste) during 18 & 19th cen tury, whose wide courtyards and spacious rooms are em bellished with marble and teak. Construction materials, decorative items, and furnishings were mostly imported from East Asian countries and Europe. This is my friend’s house, documented this as a mock for NASA’s Louis I kahn Trophy, I coordinated this with a team of 18 members. Yegappan Lakshmanan house Location : Kulipirai, Pudukottai, Tamil Nadu. Built area : 1,068.72 sq.m Year of construction: 1917 (Bojana hall 1942)

FLOORSECTIONPLAN N 35

MISCELLANEOUS SKETCHING / PORTRAIT06 DIGITAL SKETCH 36

MANUAL PORTRAIT 37

Amrish’s portfolio... +91 83000 05448 +91 88389 amrishr010@gmail.com41631

Turn static files into dynamic content formats.

Create a flipbook
Issuu converts static files into: digital portfolios, online yearbooks, online catalogs, digital photo albums and more. Sign up and create your flipbook.