Álvaro Totter + Portfolio de Arquitectura.

Page 1

ÁLVARO TOTTER PORTFOLIO 2019 / 2021
2 Álvaro Totter .CONTENIDO 00.
01.
02.
03.
04.
Personal.
Viviendas colectivas. Polo de cultura y desarrollo. Centro cultural “Murallas Andinas”. Centro de trabajo y descanso. #2 #6 #16 #28 #40
3 Portfolio de Arquitectura

Hola, en este portfolio busco que se vean plasmadas mis mayores aspiraciones a cumplir como futuro arquitecto que son, individualmente hablando, la creación de manifestaciones espaciales y artísticas que despierten emoción, y desde lo colectivo ofrecer mi servicio a todo aquel que lo requiera para cumplirlo con excelencia.

Me caracterizo por ser pensativo, creativo y saber cuestionarme las cosas para poder hacer constantemente cosas nuevas. Soy estudioso, estricto conmigo mismo y detallista, lo que me lleva a no conformarme nunca con un resultado sino a siempre perfeccionarme. Me desenvuelvo muy bien trabajando en equipo tomando iniativas, colaborando incansablemente y respetando a todos por igual.

Álvaro Totter

4 Álvaro Totter 00. Personal.
Estudiante de Arquitectura. Río Cuarto 2164, Guaymallén, Mendoza, Argentina. 2616179719 alvaro.totter @gmail.com @alvatotter

Experiencia Laboral.

Dibujante de planos con Ing. Eduardo Totter. eduardo.totter@gmail.com. (2019-2021).

Formación Académica.

Colegio Univerditario Central, UNCuyo (escuela secundaria). (2012 - 2016).

Carrera de Arquitectura, Universidad Nacional de Cuyo, Mendoza, Argentina. (2017 - actual).

Idiomas.

Ingles intermedio-avanzado.

Software. AutoCAD

5 Portfolio de Arquitectura
Sketch up Archicad Enscape Photoshop InDesign

01. Viviendas Colectivas

6 Álvaro Totter
+ Proyecto académico. + Arquitectura 3. + Godoy Cruz, Mendoza, + Argentina. + 2019.
+ -32.941043, -68.815113
7 Portfolio de Arquitectura

El proyecto se ubica en Godoy Cruz, cruzando el Acceso Sur y a pocas cuadras del Polo TIC Mendoza. La selección de esta locación responde a la premisa de pensar en nuevas centralidades urbanas que puedan consolidarse entorno a nuevos usos relevantes que aparecen en el territorio, en este caso lo que ofrece el complejo del Polo TIC. Es asi que el proyecto busca dar respuesta a las necesidades de un sector urbano con intenciones de crecer y constituirse como un nuevo nodo urbano: vivienda asequible y compacta, servicios de cercanía y trabajo.

El edificio está constituído por 8 módulos que replican sus usos uno al lado del otro hasta conformar todo el conjunto. En planta baja y hacia el acceso peatonal se da lugar a las fachadas comerciales mientras que la parte posterior de planta baja se destina a alquiler de oficina. En los 3 pisos superiores restantes se encuentran las viviendas, tratandose de duplex los que ocupan el primer y segundo piso, y por último departamentos en la última planta. El complejo cuenta con un estacionamiento subterráneo de uso mixto entre inquilinos y trabajadores y un salón de usos múltiples. Este último junto con las circulaciones verticales conforman su propio módulo que interrumpe la repetición de los que conformaban los demás usos.

A pesar de los beneficios que traen para la ciudad los modelos de vivienda compactos, aparecen barreras que obstaculizan la relación entre los residentes de estos complejos de vivienda y los vecinos de la calle donde viven. Buscando quitar estas barreras que las unidades habitacionales crean se apuesta a mejorar la comunicación entre vecinos. Para crear posibilidades de vínculo visual y posiblemente de relación, se orientan las circulaciones del edificio hacia la calle. Además, para replicar la convivencia de un barrio público de viviendas unifamiliares, los ingresos de las viviendas dan hacia la calle para reconocer a sus vecinos y poder identificarlos con un lugar en específico.

8 Álvaro Totter
9 Portfolio de Arquitectura
10 Álvaro Totter 0 1 3 6 Planta de acceso. 0.00 m Primer piso. 4.20 m
11 Portfolio de Arquitectura 0 1 3 6 Segundo piso. 7.40 m Tercer Piso. 10.60 m
12 Álvaro Totter
13 Portfolio de Arquitectura
14 Álvaro Totter
15 Portfolio de Arquitectura

Polo de Cultura y Desarrollo

+ Proyecto académico.

+ Arquitectura 4.

+ Parque O´Higgins, Capital, Mendoza, Argentina.

+ 2020.

16 Álvaro Totter 02.
+ -32.881606, -68.829847
17 Portfolio de Arquitectura

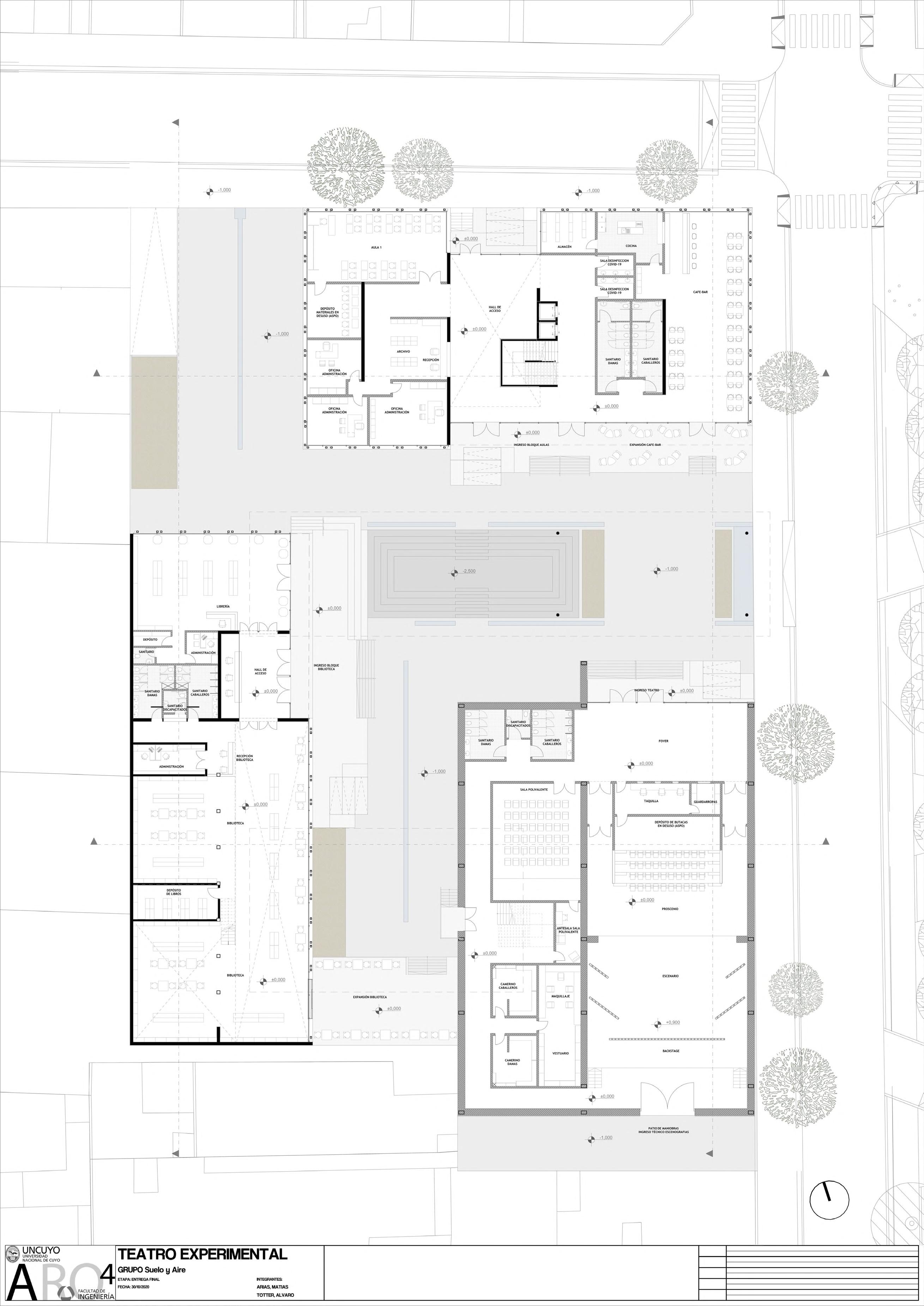
El complejo se encuentra frente al parque O´Higgins en el distrito Capital de Mendoza, en cercanía a distintos puntos de atracción para el turismo como son el Área Fundacional, la Casa de San Martín y el teatro Gabriela Mistral. Aquí le precede el contexto de un área que se considera un poco mal vista y degradada del centro de la ciudad cuyas dinámicas y servicios, a pesar de encontrarse en el centro, no son pujantes ni presentan mayor potencial de interés. Así, el objetivo es que con el proyecto de arquitectura se intente refrescar la imagen de la zona estableciendo un nuevo nodo en la ciudad, que proponga nuevos usos para crear nuevas dinámicas favorables para la reactivación de la zona.

El proyecto debía estar encabezado por un teatro junto con otro uso propuesto a libre elección. Del análisis de la zona se decide compatibilizar el uso cultural del teatro con otros de carácter educativo, ya que este uso convocaría a una nueva población antes inexistente para la zona y diversificaría los servicios que garanticen una buena apropiación del sector. Este uso educativo se materializa en aulas de usos múltiples para la enseñanza, con todas sus instalaciones, y una biblioteca abierta al público. El programa completo (teatro, aulas y biblioteca) se distribuye en 3 edificios independientes cuyos ingresos son vinculados visual y funcionalmente mediante una gran plaza, que les antecede a modo de un hall urbano y sirve como recurso para distribuir en el terreno la propuesta del programa sin caer en la idea de concentrar todo en un edificio único y compacto. Esta plaza cuenta con servicios públicos exteriores para todo aquel que quiera hacerse de su uso pero principalmente esta destinado a los usuarios que concurran a los edificios. Entre lo que propone el espacio público se encuentran parquímetro para bicicletas, sectores de mesas, asientos y, como el punto que más resalta aquí, un sector de gradas hundidas respecto al nivel de la vereda para diversos usos. Algunos de los sectores exteriores son resguardados por pérgolas para crear espacios de sombra y lugares exteriores con mayor confort.

18 Álvaro Totter
19 Portfolio de Arquitectura

Planta baja.

A) Edificio de Aulas. +1.00 m

B) Biblioteca. +1.00 m

C) Teatro. +0.70 m

20 Álvaro Totter
A B C esc.
21 Portfolio de Arquitectura
22 Álvaro Totter
23 Portfolio de Arquitectura
24 Álvaro Totter
25 Portfolio de Arquitectura

Revestimiento de fachada: panel de aluminio color oscuro con inyeccion de polietileno e= 3cm Aislación térmica de lana de roca e= 10cm Camara de aire nucleo e= 30cm Diagonal de acero perfil rectangular 15x20cm Viga de acero perfil rectangular 30x50cm Panel acustico techo madera laminada e= 2cm Tensores de acero en suspensión Pasarella de mantenimiento técnico paso de metal desplegado y barandillas de acero

Babeta de chapa galvanizada Panel sandwich con espuma de poliuretano e= 10cm Canaleta de desague 15x20 cm

Babeta de chapa galvanizada Panel sandwich con espuma de poliuretano e= 10cm Canaleta de desague 20x30 cm Aislamiento de puente térmico lana de roca Perfil C borde superior Correas perfil C 10x20 cm Cordón superior de reticulado perfil rectangular 30x30 cm Diagonales perfil circular diámetro 10cm Cordon inferior de ret cable de acero de 7 trenzas diámetro 20mm

Viga de acero perfil rectangular 30x50cm Correas perfil C 10x20 cm

Soportes de acero en suspensión

Perfil longitudinal steel frame acero galvanizado Cielorraso suspendido de madera

Revestimiento de muro de madera laminada con aislación acústica e total= 5cm Panel acustico muro madera laminada e= 2cm Alfombra boucle de base doble para alto tránsito Piso de madera tipo parquet Panel OSB de rigidizacion y soporte de solado Chapa trapezoidal de acero

Viga de acero perfil rectangular 30x50cm Correas perfil rectangular 12x15 cm

Soportes de acero en suspensión

Perfil longitudinal steel frame acero galvanizado Cielorraso suspendido de madera

Capa de nivelación de Hormigón e= 5cm

Capa de Compresión de H°A° e= 12cm Alfombra de ripio e= 20cm

Columna de acero perfil rectangular 30x50cm Platina de anclade a Hormigón Viga de Fundación

Alfombra boucle de base doble para alto tránsito

Panel acustico muro madera laminada e= 2cm Piso flotante de entablonado de madera e= 2

Perfil T invertido 10x10cm

Puntales de piso flotante de madera Diagonal de rigidización

26 Álvaro Totter
Escantillón de una sección del teatro.
27 Portfolio de Arquitectura

03. C. cultural Murallas Andinas

+ Proyecto académico.

+ Arquitectura 5.

+ Parque Central, Capital, Mendoza, Argentina. + 2021.

28 Álvaro Totter
+ -32.877946, -68.843407
29 Portfolio de Arquitectura

Este proyecto de uso cultural ubicado en la Ciudad de Mendoza frente al Parque Central es concebido con la finalidad de densificar la oferta cultural en estos distritos de capital tanto para turistas como para la gente del lugar y funcionar como un sitio donde unicamente se exhiban muestras o eventos temporales.

La premisa central es concentrar la oferta cultural en 3 naves industriales de igual tamaño que se vinculen por medio de un hall que les da acceso y las articula entre ellas. Es asi que en la implantación esto se resuelve disponiendo las naves de forma radial colocando como centro al hall de acceso. Ante esta disposición el centro cultural encierra en la manzana 3 pequeñas plazas públicas a las cuales se les da equipamiento de estancia para visitantes y para vecinos de los alrededores. Entre estas 3 plazas se le da mayor espacio y jerarquía a la que da frente al parque para hacer énfasis en el gesto de recepción del centro. Por otro lado, para darle mayor convocatoria al espacio público y como forma de vincular aun más el centro cultural con el Parque Central se extiende el eje de la calle que desemboca perpendicularmente en el terreno a lo largo de un recorrido que desciende por medio de unas terrazas hasta encontrarse con un café justo debajo de una de las naves del proyecto.

Otra premisa muy importante fue que el carácter y expresión del centro cultural refleje algún concepto específico que fue elegido al azar. El asignado para este proyecto fue ESTÁTICA. De este concepto se rescata su significado popular que es utilizado cuando algo o alguien está paralizado. Al mismo tiempo lo estático hace alusión a lo que se repite cíclicamente.

Considerando esto, formalmente el edificio repite sus 3 naves girando entorno a un centro de forma cíclica y resolviendo sus 3 fachadas de forma muy similar entre sí con otros elementos menores repetidos, como si de una copia de sí se tratase. A su vez, utilizar piedra como materialidad central y otras a fin como hormigón armado transmite pesadez, reposo y la sensación de inmutabilidad del edificio respecto al tiempo.

30 Álvaro Totter
31 Portfolio de Arquitectura
32 Álvaro Totter
33 Portfolio de Arquitectura
34 Álvaro Totter
A C B
Planta general.

Una vez hechas las plazas y proyectadas las naves junto con el hall articulador, lo que restaba es darle vida al interior. Entonces para esto se asignó una exposición temática que esté orientada a la moda y todo relacionado con el diseño de vestimenta. El programa completo se distribuye entre las 3 naves asignandole a cada una un rol determinado a cumplir.

La primer nave (A) y la más importante es la de exposición. Allí se almacena y expone la colección de la exposición, disponiendo la panelería de los maniquíes de forma que trazan un recorrido aleatorio dentro de la nave.

La segunda (B) es de experimentación. En esta se encuentra la pasarela donde desfilarán los modelos de ropa. Además existen talleres didácticos de ropa que se consumen en el día.

La última (C) es la de enseñanza. Está destinada a la educación más específica en la materia, con charlas y talleres de larga duración. Por otro lado, ofrece lugares de alquiler temporal para diseñadores que no tengan donde desempeñar su trabajo.

35 Portfolio de Arquitectura GSEducationalVersion Re compuestos y galvanizados Per 6x12 cm Planchuela de unión para soldadura mm Per Union atornillada Conexión soldada Sujetador de panel de planchuela de 5mm Unión atornillada Planchuela empotramiento Per galvanizado Unión atornillada Tabique H°A° terminación interior de enconfrado de tablas Junta de mortero 2 5cm Malla de refuerzo Desague pluvial interior Fibrocemento Núcleo polies expandido espesor según inclinación tabique Reves 12cm Armadura de refuerzo s cálculo Tabique H°A° in situ Base inf= 1 20m Base sup= 0 35m Inclinación 85 5 Panel de techo trapezoidal sandwich friola
Corte transversal Nave A. dt. Detalle encuentro muro-techo de las naves.
36 Álvaro Totter
37 Portfolio de Arquitectura
38 Álvaro Totter
39 Portfolio de Arquitectura

Centro de Trabajo y Descanso

+ Proyecto académico.

+ Arquitectura 5.

+ El Carmen, Ciudad de + Valencia, España. + 2021.

40 Álvaro Totter
04.
+ 39.480860, -0.381073
41 Portfolio de Arquitectura

Este centro consta de un complejo que reune 2 usos totalmente distintos: espacios de co-working y alojamientos tipo co-living. Su ubicaciòn se traslada hacia la ciudad de Valencia, España, frente al parque lineal del antiguo Rio Turia, sobre la avenida de la Pechina y dentro del perìmetro de su casco històrico. Para el proyecto no es ningun impedimento situarse dentro de un casco històrico tìpico de ciudad europea, porque de hecho el casco històrico de Valencia es uno de los pocos que presenta màs abierto y con mayores flexibilidades para incorporar nuevos proyectos en su trama urbana. Es asì que con estos 2 usos propuestos se busca sumar diversidad de actividades al casco històrico para que convivan distintos pùblicos y no solo turistas.

Ante la premisa de liberar al terreno de la huella del edificio lo màs posible para ampliar el uso pùblico del espacio exterior, se decide romper con la lìnea de fachadas contìnuas de la calle estableciendo 2 bloques prismàticos exentos de distintas alturas, uno de secciòn cuadrada girado sobre el terreno de forma perpendicular al sol y otro con forma de trapecio rectàngulo paralelo a la lìnea de la calle, que contienen el co-working y el co-living respectivamente. Ambos mantienen la misma materialidad y resoluciòn de detalles de fachada. El nexo entre ambos volùmenes exentos es un puente que los conecta estableciendo un nuevo uso al programa y de caràcter pùblico que es un cafe, posicionandose como un hito para la zona.

Los recorridos que propone el casco antiguo con sus pintorescas construcciones y fascinantes calles exponen una característica común entre muchas de las construcciones: muchas fachadas, por lo general al ras de la línea de la calle, presentan un ritmo similar en la distribucion de sus aventanamientos y una infinidad de diseños de marcos de ventanas, molduras y balcones. Esta cualidad del urbanismo da pie a la intención de los bloques de integrarse a este movimiento mediante la creación de sus propios balcones diferenciales y que aportan al catálogo de balcones ya vistos en la ciudad. Estos se resuelven con planos inclinados en muros y techo que simulan la forma de una bocina, donde sus colores buscan contrastar con los colores de las fachadas de paneles de aluminio de cada uno de los edificios (de colores gris oscuro para el co-working y gris claro para el co-living).

42 Álvaro Totter
43 Portfolio de Arquitectura
45 Portfolio de Arquitectura
46 Álvaro Totter
47 Portfolio de Arquitectura
48 Álvaro Totter 4,850 3,500 3,450 4,350 3,850 3,850 3,850 3,850 2,870 2,870 2,870 2,870 2,988 2,697 3,075 3,000 2,500 2,500 2,500 3,000 0,950 Placa aquaboard con base coat y revestimiento plástico liso Aislamiento de piliester 7cm Barandilla Metálica Postes y doble baranda de perfiles de 1 pintados blanco superior de roble Tramos laterales viga de perfil pintados blanco Huella de madera maciza pulg Tabique Liviano Revestimiento plástico sobre base coat Color carbón Cielorraso permeable de pino separados cada 60 Placa aquaboard base coat plástico Aislamiento de piliester 22 Panel de yeso laminado cm Adoquines calcáreos cuadriculados 10 10 Muro de Fachada Ventilada Panel de aluminio composite gris Cámara de aire de piliester Placa OSB Aislamiento de poliester 16cm Panel de yeso laminado Columna de de Perfil serie W Conducto de ventilación Impermeabilización poliuretanica Bandeja portacable 25 cm galvanizado perforado Tabique de H°A° visto 40cm espesor Losa sin viga 45cm espesor Entablonado de madera Tablas 10 ancho Color carbón Baranda de Balcón panel composite galvanizado Entablonado de madera Tablas 10 ancho de roble Tensor de inoxidable suspendido paneles de laminado con revestimiento de yeso piso de porcelanato longitudinal la chapa Vinilo autoadhesivo Carpinteria Hydra Modelo SOLEAL 75 hoja oculta pintado 02- SALA DE ESTAR LECTURA 03- GIMNASIO 10- COCINA 09- COMEDOR 18- DPTO 14- CAFE 25- DPTO 22- SALA DE JUEGOS 32- DPTO 29- SALA DE ESTAR 39- DPTO 36- SALA DE ESTAR 15 15 15 6 13 21 25 15 6 13 2100 63 63 CORTE TRANSVERSAL CO-LIVING
C1- Corte transversal Edificio Co-living.
49 Portfolio de Arquitectura
50 Álvaro Totter

Turn static files into dynamic content formats.

Create a flipbook
Issuu converts static files into: digital portfolios, online yearbooks, online catalogs, digital photo albums and more. Sign up and create your flipbook.