ENTREGA FINAL |UPN| Taller de Arq. 6 | Instituto Esp. de Econ. Agrícola - Sector Administrativo..

Page 1

TALLER DE PROYECTOS ARQUITECTÓNICOS VI

INSTITUTO ESPECIALIZADO EN ECONOMIA AGRICOLA Y AGRICULTURA

SECTORADMINISTRATIVO

ALUMNA: Allison Huamani Catacora 100%

DOCENTES: Mg ARQ GIOVANNA ROSADA DAVIRAN Mg. ARQ. OMAR WINCHO CHILQUILLO

PRESENTACION

INTRODUCCION

RENDERS EXTERIORES

RENDERS INTERIORES

RECORRIDO VIRTUAL

PANEL

ÍNDICE

ALLISON HUAMANI CATACORA

Estudiante de Arquitectura y Diseño de Interiores cursando el sexto ciclo de la carrera, una de mis fortalezas es ser muy persistente y empatica.

PRESENTACION

INTRODUCCION

INSTITUTO ESPECIALIZADO EN ECONOMIA AGRICOLA Y AGRICULTURA

SECTOR ADMINISTRATIVO

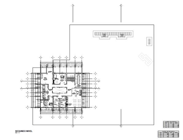
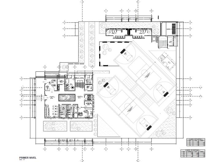
El Trabajo del ciclo fue generar un proyecto grupal de Instituto educativo en el distrito de Pachacamac - Lima, Perú. Iniciando con un grupo de 5 y luego siendo divididos por sectores a cada uno, cuyo sector me toco el administrativo y complementario. Y lo que se pudo implementar fue un espacio adecuado para el usuario, varias areas verdes, dos losas deportivas.

INTRO
PACHACAMAC PERÚ LIMA METROPOLITANA

RENDERS EXTERIORES

FACULTAD DE ARQUITECTURA Y DISEÑO

CICLO: 2023-1

DOCENTES:

ARQ. OMAR WINCHO CHILQUILLO ARQ. GIOVANNA ROSADA DAVIRAN

INTEGRANTES:

ALLISON, HUAMANI CATACORA

LAMINA: RENDER EXTERIOR

TRABAJO GENERAL: INVESTIGACION ARQUITECTONICA

CURSO:

TALLER DE DISEÑO VI GRUPO 3

UNIVERSIDAD PRIVADA DEL NORTE
UPN
VISTA 3D
VISTA GENERAL

Y DISEÑO

CICLO: 2023-1

DOCENTES:

ARQ. OMAR WINCHO CHILQUILLO ARQ. GIOVANNA ROSADA DAVIRAN

INTEGRANTES:

ALLISON, HUAMANI CATACORA

LAMINA: RENDER EXTERIOR

TRABAJO GENERAL: INVESTIGACION ARQUITECTONICA

CURSO:

TALLER DE DISEÑO VI GRUPO 3

UPN UNIVERSIDAD PRIVADA DEL NORTE FACULTAD DE ARQUITECTURA
VISTA 3D
VISTA FRONTAL

Y DISEÑO

CICLO: 2023-1

DOCENTES:

ARQ. OMAR WINCHO CHILQUILLO ARQ. GIOVANNA ROSADA DAVIRAN

INTEGRANTES:

ALLISON, HUAMANI CATACORA

LAMINA: RENDER EXTERIOR

TRABAJO GENERAL: INVESTIGACION ARQUITECTONICA

CURSO:

TALLER DE DISEÑO VI

GRUPO 3

UNIVERSIDAD
UPN
PRIVADA DEL NORTE FACULTAD DE ARQUITECTURA
VISTA 3D
VISTA LAT DERECHO

FACULTAD DE ARQUITECTURA Y DISEÑO

CICLO: 2023-1

DOCENTES:

ARQ. OMAR WINCHO CHILQUILLO ARQ. GIOVANNA ROSADA DAVIRAN

INTEGRANTES:

ALLISON, HUAMANI CATACORA

LAMINA: RENDER EXTERIOR

TRABAJO GENERAL: INVESTIGACION ARQUITECTONICA

CURSO:

TALLER DE DISEÑO VI

GRUPO 3 VISTA 3D

UPN UNIVERSIDAD PRIVADA DEL NORTE
VISTA TERRAZA

FACULTAD DE ARQUITECTURA Y DISEÑO

CICLO: 2023-1

DOCENTES:

ARQ. OMAR WINCHO CHILQUILLO ARQ. GIOVANNA ROSADA DAVIRAN

INTEGRANTES:

ALLISON, HUAMANI CATACORA

LAMINA: RENDER EXTERIOR

TRABAJO GENERAL: INVESTIGACION ARQUITECTONICA

CURSO:

TALLER DE DISEÑO VI GRUPO 3 VISTA 3D

UPN UNIVERSIDAD PRIVADA DEL NORTE
VISTA LOSA DEPORTIVA

RENDERS INTERIORES

FACULTAD DE ARQUITECTURA Y DISEÑO

CICLO: 2023-1

DOCENTES:

MG. ARQ. OMAR WINCHO CHILQUILLO MG. ARQ. GIOVANNA ROSADA DAVIRAN

INTEGRANTES:

ALLISON, HUAMANI CATACORA

LAMINA: RENDER INTERIOR

TRABAJO GENERAL: INVESTIGACION ARQUITECTONICA

CURSO:

TALLER DE DISEÑO VI GRUPO 3 VISTA 3D

UPN UNIVERSIDAD PRIVADA DEL NORTE
VISTA RECEPCION

Y DISEÑO

CICLO: 2023-1

DOCENTES:

MG. ARQ. OMAR WINCHO CHILQUILLO MG. ARQ. GIOVANNA ROSADA DAVIRAN

INTEGRANTES:

ALLISON, HUAMANI CATACORA

LAMINA: RENDER INTERIOR

TRABAJO GENERAL: INVESTIGACION ARQUITECTONICA

CURSO:

TALLER DE DISEÑO VI GRUPO 3 VISTA 3D

UPN UNIVERSIDAD PRIVADA DEL NORTE FACULTAD DE ARQUITECTURA

FACULTAD DE ARQUITECTURA Y DISEÑO

CICLO: 2023-1

DOCENTES:

MG. ARQ. OMAR WINCHO CHILQUILLO MG. ARQ. GIOVANNA ROSADA DAVIRAN

INTEGRANTES:

ALLISON, HUAMANI CATACORA

LAMINA: RENDER INTERIOR

TRABAJO GENERAL: INVESTIGACION ARQUITECTONICA

CURSO:

TALLER DE DISEÑO VI

GRUPO 3

VISTA 3D

UNIVERSIDAD PRIVADA DEL NORTE
UPN
VISTA KITCHENETTE/TERRAZA

FACULTAD DE ARQUITECTURA Y DISEÑO

CICLO: 2023-1

DOCENTES:

MG. ARQ. OMAR WINCHO CHILQUILLO MG. ARQ. GIOVANNA ROSADA DAVIRAN

INTEGRANTES:

ALLISON, HUAMANI CATACORA

LAMINA: RENDER INTERIOR

TRABAJO GENERAL: INVESTIGACION ARQUITECTONICA

CURSO:

TALLER DE DISEÑO VI GRUPO 3

VISTA 3D

UNIVERSIDAD PRIVADA DEL NORTE
UPN

https://www.youtube.com/watch?v=mHhOLgRyAZE

RECORRIDO VIRTUAL

INSTITUTO ESPECIALIZADO EN ECONOMIA AGRICOLA Y AGRICULTURA

CONCEPTO

PERÚ LIMA

METROPOLITANA

TEMPLO DEL SOL

Fuente de inspiracion debido a lo cultural y centro importante de la costa andina Declarando como patrimonio cultural de la humanidad

VISTAS EXTERIORES

PLANIMETRIA

PACHACAMAC

CODIFICACION DE VARIABLES

P. CLAVE SIMBOLOGÍA

SOCIAL

RELIGION

BIENESTAR

MATERIALES

ESCALONAMIENTO SIMETRIA JERARQUIA CONCEPTO

Cada zona escalonada estaba diferenciada por orden social

Así la protección genera seguridad

Transmite seguridad a los usuarios

ELEVACIONES

PROPUESTA MASSING ARCHITEcTURE

RECTANGULOSOLDO

SETENEUNASUSTRACCON PARACREARAREASLBRES

SUSTRACCÓNVOLUMÉTRCA DEUNCUADRADOCENTRAL

SEGENERÓFORMAS ESCALONADASPARAJERARQUZAR LOSVOLUMENES

SEHZOUNA DESCOMPOSCÓNEN5 VOLUMENES

YTERMNACONLA NTERSECCIÓN DELOSVOLUMENESGENERANDO UNPRNCPOORDENADOR YUXTAPOSCÓN)

ARQUITECTURA Y DISEÑO DE INTERIORES- ARQUITECTURA Y URBANISMO FACULTAD DE ARQUITECTURA Y DISEÑO MG ARQ OMAR WINCHO CHILQUILLO INSTITUTO ESPECIALIZADO EN ECONOMIA AGRICOLA Y AGRICULTURA - SECTOR ADMINISTRATIVO E X P O P R O Y E C T O S 2 0 2 3 - 1 TARQ.6 MG ARQ GIOVANNA ROSADA DAVIRAN HUAMAN CATACORA DOYL ALLISON
CONCRETO ADOQUIN CIELO RASO PISO CERAMICO CELOSIAS VIGAS

Turn static files into dynamic content formats.

Create a flipbook
Issuu converts static files into: digital portfolios, online yearbooks, online catalogs, digital photo albums and more. Sign up and create your flipbook.
ENTREGA FINAL |UPN| Taller de Arq. 6 | Instituto Esp. de Econ. Agrícola - Sector Administrativo.. by Allison Huamaní - Issuu