TFG - O conviver entre gerações: casa de acolhimento e capacitação juvenil

Page 1

O CONVIVER ENTRE GERAÇÕES:

casa de acolhimento e capacitação juvenil aline hiromi yamamoto são paulo | 2022

ALINE HIROMI YAMAMOTO

O CONVIVER ENTRE GERAÇÕES:

casa de acolhimento e capacitação juvenil

Trabalho Final de Graduação apresentado à Faculdade de Arquitetura e Urbanismo da Universidade Presbiteriana Mackenzie como requisito parcial para obtenção do título de Bacharel em Arquitetura e Urbanismo.

São Paulo 2022
ORIENTADORA: Profa. Dra. Paula Raquel da Rocha Jorge

ALINE HIROMI YAMAMOTO

O CONVIVER ENTRE GERAÇÕES:

casa de acolhimento e capacitação juvenil

Aprovada em

BANCA EXAMINADORA

Trabalho Final de Graduação apresentado à Faculdade de Arquitetura e Urbanismo da Universidade Presbiteriana Mackenzie como requisito parcial para obtenção do título de Bacharel em Arquitetura e Urbanismo.

Profa. Dra. Paula Raquel da Rocha Jorge Universidade Presbiteriana Mackenzie

Prof. PhD. Paulo Emilio Buarque Ferreira Universidade Presbiteriana Mackenzie

Profa. Dra. Wendie Aparecida Piccinini

agradecimentos

Aos meus pais, Arisol e Edilson, pelo apoio incondicional e inúmeros esforços para a minha melhor formação. A eles, meu amor e gratidão.

À minha irmã, Laura, pelo companheirismo de uma vida toda. Que o começo de sua jornada acadêmica seja repleto de realizações e descobertas.

Aos meus queridos avós Maria, Itiro e Tereza, que sempre estiveram ao meu lado e são essenciais para a minha vida; e em memória de Isamu, que não está mais conosco, mas que sempre demonstrou muito orgulho e alegria em cada etapa de minha formação.

À minha família pela compreensão e carinho.

A todos os meus amigos, sobretudo Milleny, sempre presente nos meus momentos mais felizes; e Débora, quem eu tenho ao meu lado há mais da metade da minha vida.

À Camila, Catarina, Roberta e Silvia, que são as melhores pessoas que eu poderia ter conhecido e que espero levar para a vida toda. O que os trabalhos e vivências da faculdade junta, nada separa.

Aos meus professores, Marcos Carrilho, Lizete Rubano, Celio da Matta e Sasquia Obata, que acompanharam e auxiliaram o desenvolvimento deste trabalho; e em especial minha orientadora, Paula Raquel Jorge, que me ajudou semana a semana a realizar tudo com muito empenho, organização e calma.

A todos aqueles que contribuíram, direta ou indiretamente, para a minha formação e realização deste trabalho.

Por fim, agradeço novamente à Catarina, que aceitou embarcar nesta última aventura e finalizar este ciclo juntas. Admiro sua sensibilidade e a dedicação que você coloca em tudo que faz.

[...] e a cidade era como que um grande carrossel onde giravam em invisíveis cavalos os Capitães da Areia. Neste momento de música eles sentiram-se donos da cidade. E amaram-se uns aos outros, se sentiram irmãos porque eram todos eles sem carinho e sem conforto e agora tinham o carinho e conforto da música.

-
Jorge Amado “ ”

resumo

O presente trabalho parte do sistema de abrigos institucionais na cidade de São Paulo e investiga o processo de desligamento que os jovens, ao atingirem a maioridade, são submetidos diante da necessidade de precisarem viver por conta própria. O propósito é não só acolher os jovens oferecendo-lhes um lar, mas também atentar-se em promover atividades como cursos profissionalizantes, técnicos, oficinas e aulas de economia doméstica, visando o crescimento profissional dos mesmos e dando-lhes base para conseguirem lidar com suas finanças de forma inteligente e terem a autonomia e confiança para desbravarem suas vidas fora dos abrigos. Ademais, discute os benefícios trazidos a partir do convívio de diferentes gerações, em especial entre jovens e idosos institucionalizados, com o intuito de fazer com que ambos os grupos possam participar de atividades em comum e trazer novas possibilidades de rotina para os moradores das instituições. O desenvolvimento desta pesquisa foi feito a partir de análise bibliográfica de artigos, teses, dissertações e livros referentes à institucionalização de crianças e adolescentes no Brasil e da convivência intergeracional; além de estudos de projetos de referência e visitas monitoradas a instituições a fim de aprofundar os conhecimentos e o entendimento das necessidades que o trabalho de abrigamento demanda. Conclui-se que é preciso construir um ambiente que promova maior conforto e bem-estar para pessoas que

precisam fazer de um lugar desconhecido seu lar; e uma arquitetura projetada pensando em como amenizar os impactos da institucionalização passa a ser uma facilitadora para uma vivência mais saudável. Ressalta-se ainda a relação entre gerações como potencializadora desse atendimento de carências recíprocas, qualidade de vida e saúde mental tanto para os jovens quanto para os idosos, evidenciando a importância de criar oportunidades de convivência entre pessoas de diferentes idades e promover atividades que os envolvam de forma genuína, dando a elas um espaço aconchegante e convidativo.

PALAVRAS-CHAVE: Acolhimento institucional. Desligamento institucional. Centro de convivência intergeracional. Arquitetura humanizada.

lista de figuras

Figura 1 Asilo de Menores Abandonados, Rio de Janeiro, 1907

Figura 2 Orfanato Cristóvão Colombo no bairro do Ipiranga, cerca de 1960

Figura 3 Maquete do edifício proposto por Giovanni Bianchi

Figura 4 Planta do térreo do Orfanato Cristóvão Colombo

Figura 5 Planta do primeiro pavimento do Orfanato Cristóvão Colombo

Figura 6 Proporção de crianças e adolescentes por tempo de acolhimento familiar no Brasil (N=932)

Figura 7 Número de crianças e adolescentes adotados ou em processo de adoção conforme a idade

Figura 8 Área central do edifício

Figura 9 Volume com terraços escalonados

Figura 10 Planta do subsolo

Figura 11 Planta do térreo

Figura 12 Planta do primeiro pavimento

Figura 13 Planta do segundo pavimento

Figura 14 Planta do terceiro pavimento

Figura 15 Planta do quarto pavimento Figura 16 Planta do quinto pavimento

Figura 17 Diagrama da organização espacial do projeto Figura 18 Fachada frontal do edifício Figura 19 Planta do térreo Figura 20 Planta do primeiro pavimento Figura 21 Corte

Figura 22 Fachada posterior do edifício

20 21 23 24 25 27 29 37 38 39 40 41 42 43 44 45 46 47 48 49 50 51

Figura 23 Fachada da Casa do Pequeno Cidadão Figura 24 Espaço de recepção Figura 25 Sala de estudo Figura 26 Sala lúdica Figura 27 Pátio coberto Figura 28 Sala de TV Figura 29 Quarto para quatro crianças Figura 30 Lavanderia Figura 31 Espaço com brinquedos Figura 32 Vista aérea do Lar Sírio com indicação dos ambientes Figura 33 Casa Brincante Figura 34 Espaço Agroecológico de Aprendizagem Figura 35 Horta coletiva e parque infantil ao fundo Figura 36 Fachada e entrada principal Figura 37 Mapa localizando o distrito do Tatuapé em São Paulo Figura 38 Mapa aproximado do distrito do Tatuapé e entorno imediato Figura 39 Mapa com indicação dos pontos de interesse próximos à área projetual Figura 40 Mapa de mobilidade de São Paulo Figura 41 Mapa de mobilidade do distrito do Tatuapé e entorno imediato Figura 42 Mapa de mobilidade aproximado da área projetual Figura 43 Mapa de uso predominante do solo por quadra de São Paulo

Figura 44 Mapa de uso predominante do solo por quadra do distrito do Tatuapé e entorno imediato

55 55 56 56 57 58 58 59 59 61 62 62 63 63 74 75 77 78 79 81 82 83

Figura 45 Mapa de topografia aproximado da área projetual

Figura 46 Corte urbano demonstrando a verticalização do bairro Figura 47 Diagrama de transformação com indicação dos novos empreendimentos

Figura 48 Mapa com indicação dos usos do entorno

Figura 49 Vista Rua Itapura e Praça Barão de Itaqui

Figura 50 Vista Rua Platina

Figura 51 Vista Rua Vilela

Figura 52 Travessia da Rua Vilela

Figura 53 Calçada do terreno na Rua Platina

Figura 54 Calçada do terreno na Rua Vilela

Figura 55 Guia rebaixada na calçada do terreno da Rua Platina

Figura 56 Diagrama 1

Figura 57 Diagrama 2

Figura 58 Diagrama 3

Figura 59 Diagrama 4

Figura 60 Diagrama 5

Figura 61 Diagrama 6

Figura 62 Implantação cobertura

Figura 63 Implantação térreo

Figura 64 Vista térreo elevado

Figura 65 Planta intergeracional

Figura 66 Vista acesso centro de convivência intergeracional Figura 67 Vista intergeracional mostrando a relação com os vazios

Figura 68 Vista quadra descoberta

Figura 69 Planta primeiro pavimento

85 86 87 89 91 91 91 92 92 93 93 95 95 96 96 97 97 99 101 102 105 106 109 110 113

Figura 70 Planta segundo pavimento Figura 71 Planta dormitório tipologia 1 Figura 72 Planta dormitório tipologia 2 Figura 73 Vista interna dos corredores Figura 74 Planta terceiro pavimento Figura 75 Planta quarto pavimento Figura 76 Planta quinto pavimento Figura 77 Planta sexto pavimento Figura 78 Planta sétimo pavimento Figura 79 Planta oitavo pavimento Figura 80 Planta nono pavimento Figura 81 Corte AA Figura 82 Corte BB Figura 83 Detalhe 1: fachada Figura 84 Detalhe 2: jardineira Figura 85 Detalhe 3: intergeracional Figura 86 Elevação Sul Figura 87 Elevação Leste Figura 88 Elevação Norte Figura 89 Elevação Oeste Figura 90 Análise Fluxovento Figura 91 Estudo de iluminância realizado no software Dialux Figura 92 Análise iluminância do quarto com janela de peitoril de 1m e altura de 1.20m

Figura 93 Análise iluminância do quarto com janela piso ao teto

115 117 117 118 121 123 125 127 129 131 133 135 137 139 141 143 145 147 149 151 152 153 154 155

sumário 1

introdução 14 18

2contextualização histórica e situação atual

2.1 orfanatos, reformatórios e internatos

2.2 estatuto da criança e do adolescente (1990)

2.3 considerações sobre a institucionalização no desenvolvimento juvenil

2.4 desligamento obrigatório por maioridade e preparação gradativa

3

os benefícios da convivência intergeracional projetos de referência

30 34

20 26 27 28 36

44.1 centro de bem-estar para crianças e adolescentes

4.2 casa de acolhimento para menores

46

5 6 7

casa de acolhimento e capacitação juvenil o acolher na arquitetura

70 64

7.1 o lugar 7.2 o projeto 7.3 experimentações arquitetônicas 54 60

72 94 152 66 67

52 156

referências bibliográficas 8

160

visitas monitoradas a instituições considerações finais
5.1 casa do pequeno cidadão nossa senhora aparecida 5.2 lar sírio pró-infância 6.1 relação entre o público e o privado 6.2 humanização da arquitetura

introdução

1

O presente trabalho parte do sistema de abrigos institucionais existente na cidade de São Paulo e investiga o processo de desligamento que os jovens, ao atingirem a maioridade, são submetidos diante da necessidade de precisarem viver por conta própria; além de discutir os benefícios trazidos a partir do convívio de diferentes gerações, em especial entre jovens e idosos institucionalizados.

O objeto projetual trata-se de um centro de convivência intergeracional que conta também com uma casa de acolhimento e capacitação juvenil e uma casa de acolhimento e integração do idoso. Ressalta-se que a instituição destinada aos jovens será desenvolvida por Aline Hiromi Yamamoto e retratada neste trabalho; a outra, voltada para a terceira idade, por Catarina Prandi dos Santos; e o centro de convivência intergeracional, que é de usufruto de ambos os equipamentos anteriormente citados, de forma conjunta.

O intuito é ter uma relação de mutualismo entre os dois projetos, fazendo com que os jovens e os idosos possam participar de atividades em comum, instigando uma integração entre diferentes gerações e trazendo novas possibilidades de rotina para os moradores das instituições. Isto posto, propõe-se desenvolver os dois equipamentos em um mesmo terreno, a fim de facilitar essa convivência.

O lugar foi escolhido levando-se em consideração as necessidades do programa como conjunto, sendo os principais pontos: proximidade com modais de alta capacidade; com equipamentos públicos de saúde; com equipamentos públicos de educação que

16 | o conviver entre gerações

atendam a faixa etária dos jovens abrigados; e com equipamentos de lazer. O terreno conta com 5.320m² e é localizado no distrito do Tatuapé, cidade de São Paulo, próximo à estação Carrão da linha vermelha do metrô. A 700m de distância do Parque Municipal do Tatuapé, em seu entorno próximo também se encontra o Hospital Municipal do Tatuapé, além de escolas municipais e estaduais.

De acordo com o Levantamento Nacional de Abrigos para Crianças e Adolescentes da Rede SAC (SILVA, 2004), foi contabilizado um número de cerca de 20 mil crianças e adolescentes vivendo nos 589 abrigos em todo o Brasil. A pesquisa ainda demonstra que, apesar do serviço de acolhimento ser destinado somente à população menor de 18 anos, 2,3% dos pesquisados já haviam chegado à idade máxima. Isso demonstra as dificuldades das instituições na realização da preparação gradativa para o desligamento dos adolescentes próximos à maioridade (SILVA, 2004).

Assim, faz-se necessário propor um equipamento que acolha as necessidades e que crie condições emocionais e profissionais para que adolescentes institucionalizados estejam mais preparados para o início de sua vida adulta, além de estimular interrelações afetivas e cognitivas com idosos e ser um ponto de encontro intergeracional na cidade. O propósito é não só acolher os jovens oferecendo-lhes um lar, mas também atentar-se em promover atividades como cursos profissionalizantes, técnicos, oficinas e aulas de economia doméstica, visando o crescimento profissional dos mesmos e dando-lhes

base para conseguirem lidar com suas finanças de forma inteligente e eficiente, tendo a autonomia e confiança para desbravarem suas vidas fora dos abrigos.

Para isso, foi preciso analisar a dinâmica e situação atual dos abrigos institucionais na cidade de São Paulo e suas diferentes modalidades; aprofundar conhecimento sobre os impactos positivos e/ ou negativos que a institucionalização pode ter no desenvolvimento infanto-juvenil nas vertentes social, psicológica e educacional; levantar possibilidades de atividades que instiguem o crescimento pessoal e profissional de adolescentes em situação de abrigo; entender os benefícios dos vínculos afetivos intergeracionais na qualidade de vida dos jovens e idosos institucionalizados; e analisar como a arquitetura pode contribuir para promover um maior conforto e bem-estar. Por fim, com relação à metodologia deste trabalho, seu desenvolvimento foi feito a partir de análise bibliográfica de artigos, teses, dissertações e livros referentes à institucionalização de crianças e adolescentes no Brasil e da convivência intergeracional. Além disso, foram realizados estudos de projetos de referência e visitas monitoradas a instituições com o intuito de aprofundar os conhecimentos e entendimentos das necessidades que o trabalho de abrigamento demanda, visto que o contato com pessoas que atuam e vivenciam diretamente neste serviço é crucial.

casa de acolhimento e capacitação juvenil

17
|

contextualização histórica e situação atual

2

2.1 orfanatos, reformatórios e internatos

A institucionalização de crianças e adolescentes não é uma temática relatada e discutida somente na atualidade. É importante analisar o histórico e diferentes contextos em que se verifica presente a institucionalização, a fim de entender a importância da promulgação do Estatuto da Criança e do Adolescente (ECA), no ano de 1990, na quebra de paradigmas e pensamentos com relação às suas necessidades e direitos.

De acordo com Irene Rizzini e Irma Rizzini (2004), desde o período colonial já havia modalidades institucionais que reforçam a tradição brasileira em internação de crianças e adolescentes em instituições asilares, como os colégios internos, educandários e reformatórios. As autoras fazem um percurso histórico que abrange desde o século XVIII até os dias atuais, descrevendo como eram as instituições em cada período estudado no Brasil e como a legislação é um fator que passa a ditar o funcionamento delas.

Começando pelo século XVIII, as primeiras instituições para educação de órfãos e órfãs foram implantadas por irmandades, ordens e membros do clero. Os colégios para meninos órfãos e recolhimentos femininos seguiam a vida religiosa e o contato com o mundo exterior era restrito, sendo que a clausura era imposta com mais vigor no caso das instituições femininas (RIZZINI; RIZZINI 2004).

Já o século XX é marcado pela forte presença do Estado no planejamento e implementação das políticas de atendimento do me-

20 | o conviver entre gerações

nor abandonado, termo utilizado para denominar a “categoria definida tanto pela ausência dos pais quanto pela incapacidade da família de oferecer condições apropriadas de vida à sua prole” (RIZZINI; RIZZINI, 2004, p.29).

Figura 1 - Asilo de Menores Abandonados, Rio de Janeiro, 1907

Fonte: Rizzini; Rizzini, 2004.

A forte cobrança e movimentação por uma centralização da assistência e elaboração de leis culmina na aprovação do Código de Menores no ano de 1927, com uma perspectiva correcional e repressiva (RIZZINI; RIZZINI, 2004). A distinção entre pobres e ricos é domi-

nante ao ponto de a infância e adolescência pobres serem “tratadas como uma geração em e de risco”: eram vistos como desviantes em potencial, abandonados, carentes e infratores (BERNARDI, 2010). Em sessão da Câmara Municipal em 09 de setembro de 1889, os vereadores Domingos Sertório, Vicente Ferreira da Silva e Carmilo inferem: Indicamos que a Câmara oficie ao Sr. Chefe de Polícia ver a conveniência de obstar que ande pelas ruas e casas da cidade mendigos e crianças pedindo esmolas incomodando os transeuntes. Havendo nesta cidade um asilo onde são recolhidos os pobres que o procuram, propomos à Câmara que tome alguma providência de modo a fazer cessar esse vexame para o público (COSTA, 2019, p. 7).

A partir disso, havia a ideia de que os pais pobres não tinham condições de cuidar de seus filhos e que deveriam entregá-los aos cuidados do Estado, que passa a substituir as famílias consideradas desestruturadas com programas de parentagem pública, como internatos, educandários e orfanatos (BERNARDI, 2010). Assim, grande parte das crianças institucionalizadas eram internadas pela própria família, retidas e transferidas de acordo com a sua faixa etária, sexo, perfil e comportamento (RIZZINI; RIZZINI, 2004).

Em publicação feita pelo Instituto Fazendo História (2017), descreve-se que as instituições de acolhida de crianças e adolescentes abrigavam centenas de jovens. O tratamento era feito de forma rígida e generalizada, desconsiderando as particularidades de cada indivíduo.

Além disso, as instituições procuravam ser totais e autossu-

ficientes, com todas as atividades educacionais e atendimentos de saúde feitos internamente, com a presença de consultórios, capelas, refeitórios, dormitórios, dentistas e psicólogos (INSTITUTO FAZENDO HISTÓRIA, 2017). Os reformatórios também se localizavam afastados das comunidades – fatores que privavam as crianças e adolescentes de uma reintegração eficiente na sociedade ao criar barreiras de contato com o mundo exterior.

A fim de retratar como eram essas instituições, apresenta-se o Orfanato Cristóvão Colombo (OCC) – hoje Instituto Cristóvão Colombo (ICC) – inaugurado em 8 de dezembro de 1895 pelo padre italiano Giuseppe Marchetti (LOPES, I. 2015).

Figura 2 – Orfanato Cristóvão Colombo no bairro do Ipiranga, cerca de 1960

Fonte: Lopes, I. 2015.

casa de acolhimento e capacitação juvenil

| 21

Atendendo, à princípio, filhos de imigrantes italianos e posteriormente também outras crianças da cidade, é localizado no bairro do Ipiranga, cidade de São Paulo, e tornou-se morada, local de trabalho, de sustento e de estudo para os órfãos e sacerdotes que ali permaneceram (LOPES, I. 2015).

Em janeiro de 1941, foi publicado na edição 33 da Revista Acrópole o projeto de um novo edifício do Orfanato Cristóvão Colombo, proposto no mesmo terreno do pré-existente. Obra do arquiteto Giovanni Bianchi, o edifício foi dimensionado para receber 500 crianças do sexo masculino. A organização espacial é feita a partir de um pátio central descoberto e as circulações são feitas a partir de um largo corredor e pórticos laterais cobertos.

No andar térreo (Figura 4), encontram-se as salas de aula, salões, administração, biblioteca e serviços médicos; além de uma Igreja e um teatro. Há a presença de pórticos externos independentes que cruzam o pátio central e fazem a ligação com o refeitório. No primeiro andar (Figura 5), ficam os dormitórios das crianças e no segundo, os aposentos dos padres e professores (ACRÓPOLE, 1941).

22 | o conviver entre gerações

casa de acolhimento e capacitação juvenil | 23

Figura 3 –Maquete do edifício proposto por Giovanni Bianchi. Fonte: Acrópole, 1941.

salas de aula salas de aula

24 | o conviver entre gerações

igreja administração administração

salas de aula

teatro
Figura 4 –Planta do térreo do Orfanato Cristóvão Colombo. Fonte: Acrópole, 1941.
refeitório

dormitório

dormitório dormitório

dormitório

casa de acolhimento e capacitação juvenil | 25

Figura 5 –Planta do primeiro pavimento do Orfanato Cristóvão Colombo. Fonte: Acrópole, 1941.

2.2 estatuto da criança e do adolescente (1990)

A década de 1980 foi marcada por uma ampla propagação de projetos alternativos de atendimento às crianças e adolescentes, diante do questionamento da eficácia das políticas menoristas. Discutia-se a necessidade de um atendimento mais efetivo baseado em princípios e práticas democráticos (ASSIS; FARIAS, 2013).

Os críticos ao sistema levantavam como alarmante o alto contingente de crianças e adolescentes que se encontravam em situação de abandonados ou marginalizados: cerca de 30 milhões, sendo em sua maioria pertencentes a famílias pobres ou miseráveis (ASSIS; FARIAS, 2013). O abandono de filhos por suas famílias tornou-se um recurso comum, em que “a única forma de as famílias pobres conseguirem apoio público para a criação de seus filhos era abandonando-os” (VENÂNCIO, 1999, p. 13 apud ASSIS; FARIAS, 2013).

A promulgação do Estatuto da Criança e do Adolescente (ECA) – Lei nº 8.069 – no ano de 1990 acarretou uma grande mudança de paradigma com relação ao entendimento e garantia dos direitos à convivência familiar e comunitária de crianças e adolescentes. Agora elas eram entendidas como sujeitos de direitos, independentemente de suas condições sociais (BERNARDI, 2010). Foi a partir disso que se buscou romper com a visão da configuração da institucionalização imposta no Brasil até aquele momento (ASSIS; FARIAS, 2013). De acordo com o artigo 4 do ECA (BRASIL, 1990):

26 | o conviver entre gerações

É dever da família, da comunidade, da sociedade em geral e do poder público assegurar, com absoluta prioridade, a efetivação dos direitos referentes à vida, à saúde, à alimentação, à educação, ao esporte, ao lazer, à profissionalização, à cultura, à dignidade, ao respeito, à liberdade e à convivência familiar e comunitária. A garantia de prioridade compreende: a) primazia de receber proteção e socorro em quaisquer circunstâncias; b) precedência de atendimento nos serviços públicos ou de relevância pública; c) preferência na formulação e na execução das políticas sociais públicas; d) destinação privilegiada de recursos públicos nas áreas relacionadas com a proteção à infância e à juventude.

Diante disso, o ECA prevê uma política de atendimento que se contrapõe ao isolamento e fragmentação do Código de Menores (ASSIS; FARIAS, 2013). Os acolhimentos institucional e familiar passam a ser considerados medidas provisórias e excepcionais, utilizáveis como forma de transição para a reintegração familiar ou, não sendo esta possível, para colocação em família substituta (BRASIL, 1990, art. 101) quando ocorrida violação dos direitos pelo poder público, família ou própria conduta (ASSIS; FARIAS, 2013).

O acolhimento institucional possui diferentes modalidades, sendo que todas visam uma estrutura que permita um atendimento personalizado e em pequenos grupos, sendo elas: casa-lar, casa de passagem, abrigo institucional, família acolhedora e república (CARREIRÃO, 2013).

1. As casas-lar são estruturas com características de uma residência privada e coordenadas pelos chamados pais sociais ou educadores com revezamento de horários;

2. As casas de passagem são destinadas a menores em situação de rua conduzidos por profissionais educadores para posterior estudo de viabilidade de retorno à família de origem ou encaminhamento;

3. Os abrigos institucionais atendem um maior número de crianças e adolescentes, com a sugestão de uma quantidade máxima de 25 abrigados por edifício;

4. As famílias acolhedoras são indivíduos ou famílias já constituídas que recebem as crianças em suas casas e assumem as responsabilidades de guardiões;

5. Por fim, as repúblicas são destinadas aos adolescentes maiores de 18 anos sem condições de retorno à família de origem e que não foram encaminhados à nenhuma família substituta (CARREIRÃO, 2013).

2.3 considerações sobre a institucionalização no desenvolvimento juvenil

Como retratado, a institucionalização trata-se de um apoio com premissas de ser algo temporário, visando conduzir para reintegração familiar ou adoção da criança (VALENTE, 2020). De acordo com o Art.19, inciso 2, do Estatuto da Criança e do Adolescente:

Em particular, a última modalidade foi a que trouxe a inquietação com relação aos adolescentes mais velhos, próximos à maioridade, que deu origem ao tema deste trabalho. Para estarem aptos a entrarem em uma República, os jovens precisam estar estudando ou trabalhando (LIMA, 2019), porém em nenhum momento é assegurado a esse jovem qualquer tipo de amparo, emprego ou estudo ao ter que deixar os abrigos – evidenciando uma falha na estruturação do processo de institucionalização e da vida dessas crianças e adolescentes fora dos abrigos.

A permanência da criança e do adolescente em programa de acolhimento institucional não se prolongará por mais de 18 (dezoito meses), salvo comprovada necessidade que atenda ao seu superior interesse, devidamente fundamentada pela autoridade judiciária (BRASIL, 1990). No entanto, de acordo com o Levantamento Nacional de Abrigo para Crianças e Adolescentes (ASSIS; FARIA, 2013), a menor média de tempo de acolhimento ocorre na região Sudeste com cerca de 19 meses. Há casos em que a duração de institucionalização pode durar mais de 10 anos.

Figura 6 - Proporção de crianças e adolescentes por tempo de acolhimento familiar no Brasil (N=932)

Região

N Menos de 1 mês 1 a 6 meses 7 meses a 1 ano 2 a 5 anos 6 a 10 anos Mais de 10 anos Sem informação

Centro-oeste 31 19,4 22,6 9,7 41,9 3,2 3,2 0,0 29 0,0 6,9 37,9 17,2 3,4 0,0 34,5 7 0,0 0,0 14,3 71,4 0,0 0,0 14,3 373 13,4 16,9 39,1 26,5 2,1 0,3 1,6 492 9,8 17,1 36,2 29,9 4,3 0,6 2,2 932 11,2 16,7 36,4 28,9 3,3 0,5 3,0

Nordeste Norte Sudeste Sul Brasil

Nota: exceto Minas Gerais.

Fonte: Assis; Farias, 2013.

casa de acolhimento e capacitação juvenil | 27

Segundo Dell’aglio e Siqueira (2006), um período de institucionalização prolongado pode interferir na sociabilidade e na manutenção de vínculos afetivos na vida adulta, uma vez que no ambiente institucional pode haver uma falta de atividades planejadas e fragilidade das redes de apoio social e afetivo.

Fonseca (2017) ainda chama atenção para o caso dos adolescentes: trata-se de um período de construção de identidade diante de interações com a comunidade, podendo interferir de forma positiva ou negativa no seu desenvolvimento.

Durante esse período, os adolescentes deveriam estar inseridos em contextos (exemplo: família, escola e instituições sociais) que garantam a proteção de seus direitos fundamentais, porque teriam suas necessidades físicas, sociais e emocionais supridas, além de vivenciar experiências positivas que oportunizassem maiores expectativas de sucesso (FONSECA, 2017, p. 287).

Salienta-se que “a visão exclusivamente prejudicial dos abrigos [...], onde um grande número de crianças e adolescentes convivia sob um sistema coletivizado, vem perdendo força” (DELL’AGLIO; SIQUEIRA, 2006, p.78), porém há um longo caminho a ser percorrido. Diante da necessidade de instituições de abrigo, é preciso fazer delas um ambiente de desenvolvimento, capacitando-as e instrumentalizando-as (DELL’AGLIO; SIQUEIRA, 2006).

2.4 desligamento obrigatório por maioridade e preparação gradativa

Segundo Assunção e Pozzebom (2020), estima-se que, anualmente, cerca de 3 mil jovens egressos de abrigos atinjam a maioridade sem que encontrem uma família que os acolha. O processo de liberação para adoção é demorado, e quanto mais a criança ou o adolescente vai crescendo, mais difícil é encontrar famílias que o acolham. Como indicado na Figura 7, em levantamento feito pelo Sistema Nacional de Adoção e Acolhimento (CONSELHO NACIONAL DE JUSTIÇA, 2020), é possível perceber que o número de adotados diminui com o aumento da idade.

Imposto no artigo 92 do Estatuto da Criança e do Adolescente (ECA), é dever das instituições de acolhimento realizar uma preparação gradativa para o desligamento institucional no caso de o adolescente completar a maioridade quando não ocorra reintegração familiar ou adoção (BRASIL, 1990).

No entanto, há uma discrepância entre o que a lei estipula e o que ocorre na realidade. O preparo gradativo para o desligamento possui ainda muitas falhas. Em pesquisa realizada por Benetti e Brino (2016), na qual seis adolescentes cujas identidades foram resguardadas e que passaram pelo processo de desligamento foram entrevistados, é possível entender de forma mais próxima os desafios pelos quais os jovens precisam passar.

Em relato dado por um dos adolescentes, percebe-se como

28 | o conviver entre gerações

a notificação de desligamento é um momento permeado de incertezas e inseguranças: “Foi […] complicado […] vamos dizer assim, um choque. Na hora você sente medo. É como se não tivesse onde pisar, não tem chão mais. Você fica inseguro […] não sabe para onde vai”, e ainda afirma que o preparo deve ocorrer com ao menos um ano de antecedência para que pudesse se profissionalizar e encontrar um lugar para morar (BENETTI; BRINO, 2016, p.3).

Os adolescentes não se sentiam preparados para essa nova fase de suas vidas, precisando enfrentar desafios dos quais estavam protegidos durante o tempo em que estavam acolhidos, como a busca por emprego, a dificuldade de muitas vezes não terem tido escolaridade completa, de não terem feito cursos profissionalizantes; além do sentimento de solidão e saudade (BENETTI; BRINO; 2016). Os programas de ressocialização devem ser mais eficazes. Para além disso, os jovens precisam de apoio ao saírem dos abrigos até que consigam se adaptar e sustentar. Segundo Tuma e Pereira (2013 apud Oliveira et al, 2020), ao atingir a maioridade, os acolhidos são desamparados pelo Estado, dado que não possuem políticas públicas voltadas para esse segmento social.

De acordo com Rosa e colegas (2012 apud CARDOSO, 2019), as políticas públicas são voltadas para aqueles que estão mais fragilizados e vulneráveis. Assim, é indiscutível a necessidade dessas políticas voltadas especificamente para a juventude. Trata-se de jovens que, depois do abandono da família, passam também pelo abando-

no por parte do Estado. É preciso proteger os jovens desligados dos abrigos institucionais e dar-lhes suporte financeiro, possibilidades de emprego e estudo até que consigam se estabilizar por conta própria.

Figura 7 – Número de crianças e adolescentes adotados ou em processo de adoção conforme a idade

de adoção Adoção realizada Em processo de adoção

de crianças/adolescentes

Fonte: Conselho Nacional de Justiça, 2020.

casa de acolhimento e capacitação juvenil | 29

Número
Idade (em anos completos) 1500 0 1 2 3 4 5 6 7 8 9 10 11 12 13 14 15 16 17 18 19 1000 500 0 500 391 1431 1581 1229 963 812 702 619 557 485 414 365 303 226 154 118 64 47 35 389 262 216 202 140 154 144 121 108 96 88 70 58 47 27 17 9 4 4 1
Tipo
3
os benefícios da convivência intergeracional

Uma geração pode ser entendida como um grupo de pessoas que ocupa a mesma posição dentro de um todo social, uma vez que viveram em uma mesma época sob a influência dos mesmos acontecimentos (DOLL, 2012 apud MENDES, 2018). Assim, compartilham valores e visões de mundo parecidos e estão ligados por comportamentos e costumes (PEREIRA; TEIXEIRA, 2020). Por isso, a importância da transferência de hábitos e significados como uma troca mútua de saberes e da criação de oportunidades de um maior convívio entre pessoas de diferentes idades. É a partir da aproximação de gerações e minimização de estereótipos que colocam os jovens na posição de imaturos e irresponsáveis; e os idosos como frágeis e incapazes que é possível construir uma sociedade mais respeitosa e altruísta (PEREIRA; TEIXEIRA, 2020).

Ferrigno (2010) retrata em seu livro essa importância da ‘coeducação entre gerações’. O autor reforça que o compartilhamento de experiências e conhecimentos de forma igualitária entre os jovens e mais velhos, sem a hierarquização entre os sujeitos, proporciona momentos de ensino-aprendizagem que questionam o papel de quem

ensina e de quem aprende, enriquecendo ambas as partes.

França, Silva e Barreto (2010) ainda demonstram que uma maneira eficiente de aproximar gerações é o desenvolvimento de atividades lúdicas e de caráter social que vão além de brincadeiras ou jogos e que os envolvam de forma genuína em algo que tenha significado para si e para a realidade em que vivem. As autoras ainda citam o projeto ‘Era Uma Vez... Atividades Intergeracionais’, implantado em 1992 pelo SESC-Departamento Nacional, que obteve sucesso nas relações de entrosamento, solidariedade e afetividade entre idosos e crianças. O estímulo à comunicação intergeracional no projeto era feito a partir de reuniões semanais sistemáticas nas quais eram realizadas atividades pedagógicas, culturais e de lazer. Ao tratar especificamente do caso de idosos e jovens institucionalizados, ressalta-se que a relação intergeracional pode ser ainda mais significativa. Monçores (2005) afirma que o regime de permanência continuada ocasiona sérios problemas emocionais relacionados à falta de vinculação afetiva. A inatividade do idoso pode acarretar a queda de sua autoestima e na sensação de solidão e desmotiva-

32 | o conviver entre gerações

ção; enquanto a ausência de um vínculo afetivo estável e constante na vida do jovem pode trazer frustrações e afetar negativamente o desenvolvimento infanto-juvenil.

O autor traz como possibilidade de minimizar tais consequências a promoção de atividades de enriquecimento pessoal, convivência e produtividade a partir da conjunção de idosos independentes e semi dependentes que vivem em casas de repouso e jovens abrigados. A partir da criação de lugares que deem um sentido de identidade e pertencimento, ambos os grupos podem se beneficiar desse vínculo afetivo em termos de saúde mental, qualidade de vida e atendimento de carências recíprocas. Deste modo, a convivência intergeracional proporciona a busca por novas oportunidades, conquistas e satisfação pessoal (MONÇORES, 2005).

casa de acolhimento e capacitação juvenil |

33

projetos de referência

4

4.1 centro de bem-estar para crianças e adolescentes

Projeto do escritório francês Marjan Hessamfar & Joe Vérons architectes associés e localizado na cidade de Paris, o edifício é um centro residencial de emergência que fornece abrigo para os menores sob tutela legal. O principal objetivo do centro é fornecer apoio educacional e psicológico (ARCHDAILY, 2014).

Contando com um total de 6.225m² de área construída, trata-se de um projeto que, para além de um abrigo para crianças, busca ser um lar de atendimento que almeja fazer com que os jovens se sintam protegidos e cuidados (ARCHDAILY, 2014).

O projeto é desenvolvido a partir de uma estrutura em L com diferentes níveis de piso, oferecendo amplos terraços de lazer. Esse sistema em camadas otimiza o acesso à luz natural e proporciona vistas panorâmicas para a área central do edifício. Vale ressaltar a organização espacial proposta de cada pavimento ser entendido como uma única unidade (ARCHDAILY, 2014).

Analisando-se mais detalhadamente a organização do programa, percebe-se que no subsolo (Figura 10) concentram-se as áreas técnicas e de acesso da equipe: cozinha, lavanderia, depósito, refeitório e vestiários; enquanto no térreo (Figura 11), encontram-se os usos administrativos, de serviço social, enfermaria e visitação.

Nos níveis superiores, cada pavimento é projetado para abrigar e suprir as necessidades de uma faixa etária específica. No primeiro pavimento (Figura 12), destinado a jovens de 12 a 18 anos, os

36 | o conviver entre gerações

quartos e banheiros são individuais; há salas de jantar, jogos, de aula, midiateca, lavanderia e escritório do educador.

Já no segundo pavimento (Figura 13), destinado a crianças de 3 a 6 anos, os quartos possuem de 1 a 3 camas e os banheiros são compartilhados. Além de também possuir espaços para sala de jantar, jogos e escritório do educador, conta com uma sala de leitura e jardim de infância.

O terceiro pavimento (Figura 14) acolhe as crianças de 6 a 12 anos, que usufruem dos mesmos espaços fornecidos no primeiro pavimento, com exceção de que os quartos e banheiros são compartilhados. As crianças mais jovens, de 0 a 3 anos, ficam no quarto pavimento (Figura 15), que além dos espaços para dormir, conta com jardim de infância, salas de visita e amamentação. No quinto pavimento (Figura 16), encontram-se os alojamentos dos funcionários, com dormitório, copa e banheiro.

Diante disso, salienta-se a importância do partido em criar escalonamentos, terraços descobertos e um pátio central que permitem a comunicação visual entre todos os níveis do edifício e promovem uma maior integração entre os usuários; além do fato de que cada um dos pavimentos supre, de forma específica, as necessidades da faixa etária das crianças e adolescentes que usufruem desse andar, com mudanças nos espaços destinados a elas e na disposição dos quartos e banheiros.

Figura 8 – Área central do edifício

Fonte: ArchDaily, 2014.

Figura 9 – Volume com terraços escalonados

Fonte: ArchDaily, 2014.

7

9

1 - cozinha 2 - área técnica 3 - armazenamento, depósito 4 - sala de reunião 5 - biblioteca da equipe 6 - atelier 7 - lavanderia 8 - sala de jantar da equipe 9 - vestiários 0 5 10m

6

2 2

5 2 3 3 1 3

4

9 8

serviço e administração

Figura 10 – Planta do subsolo. Fonte: ArchDaily, 2014.

| 39
casa de acolhimento e capacitação juvenil
legenda

1 - hall de entrada 2 - recepção

3 - sala equipe educativa 4 - sala de espera

5 - sala de visitas de pais e filhos 6 - escritórios serviço social 7 - enfermaria 8 - sala de reunião 9 - escritório de gestão e administração 10 - escritório de responsáveis pelo serviço 0 5 10m

legenda 10 9 8

40 | o conviver entre gerações

Figura 11 – Planta do térreo. Fonte: ArchDaily, 2014.

4 2 6 7 4 5 3 1

legenda

1 - unidade sirroco 2 - unidade alizé 3 - unidade mistral 4 - quartos individuais 5 - quarto adaptado 6 - escritório do educador 7 - sala de jantar 8 - sala de jogos 9 - sala de esporte 10 - sala de aula 11 - midiateca 12 - lavanderia 13 - escritório 0 5 10m

Figura 12 – Planta do primeiro pavimento. Fonte: ArchDaily, 2014.

casa de acolhimento e capacitação juvenil |

41
7
8 4
1 8 6 13 12 4 5 2 6 7 8 9 6 4 5 7 8 3 4 11 10 4
12 a 18 anos

42 | o conviver entre gerações

1 - unidade kapla 2 - unidade duplo 3 - quartos com 1 a 3 camas 4 - banheiro compartilhado 5 - escritório equipe educativa 6 - sala de jantar 7 - sala de jogos 8 - sala de leitura 9 - sala de psicomotricidade 10 - jardim de infância 11 - escritório 12 - terraço 0 5 10m

Figura 13 – Planta do segundo pavimento. Fonte: ArchDaily, 2014.

legenda 12 11 10 9 5 8 7 6 3 3 7 6 3 1 2 4 4
3 a 6 anos

legenda

1 - unidade chamallow 2 - unidade dragibuss 3 - quartos com 1 a 3 camas 4 - banheiro feminino 5 - banheiro masculino 6 - escritório equipe educativa 7 - sala de jantar 8 - sala de jogos 9 - sala de aula 10 - midiateca 0 5 10m

Figura 14 – Planta do terceiro pavimento. Fonte: ArchDaily, 2014.

casa de acolhimento e capacitação juvenil

| 43
11 8 1 7 6 3
2 3 3 3 5 4 5
8 7 9 3
10 4
6
a 12 anos

44 | o conviver entre gerações

legenda

1 - unidade libellule 2 - unidade lutins 3 - unidade petit mousse 4 - unidade bout’chou 5 - jardim de infância 6 - escritório educação 7 - sala de auscultação 8 - sala multiuso 9 - sala de visita 10 - carrinho de criança 11 - amamentação 12 - escritório 13 - terraço 0 5 10m

Figura 15 – Planta do quarto pavimento. Fonte: ArchDaily, 2014.

13 12 2 3 4 7 6 10 11 5 8 9 1
0 a 3 anos

alojamento da equipe

legenda

1 - alojamento da equipe 2 - passagem exterior 3 - cobertura não acessível 3

0 5 10m

1 1 1

3 2

Figura 16 – Planta do quinto pavimento. Fonte: ArchDaily, 2014.

casa de acolhimento e capacitação juvenil | 45

4.2 casa de acolhimento para menores

O projeto trata-se de um centro dedicado ao cuidado de crianças e adolescentes em período integral, localizado na cidade de Kerteminde, Dinamarca. De concepção do escritório dinamarquês CEBRA, a volumetria do edifício faz referência direta à imagem da casa de duas águas com uma chaminé e sótão, visando criar uma aparência exterior facilmente reconhecível e acolhedora (ARCHDAILY, 2015).

A organização espacial é dada a partir de quatro residências conectadas. Cada unidade criada abriga um diferente grupo de residentes, ou seja, cada idade possui seu próprio espaço (ARCHDAILY, 2015).

Os usos administrativo, dormitórios e espaços para os trabalhadores encontram-se concentrados no primeiro pavimento, para que eles possam ter uma visão privilegiada do cotidiano na instituição. Ademais, a organização do edifício assegura distâncias curtas entre as diferentes unidades, para que os funcionários sempre estejam próximos a todos os residentes (ARCHDAILY, 2015).

Destaca-se o cuidado que o escritório teve em criar um ambiente que fosse acolhedor de forma imediata. Já no exterior do edifício, o uso da madeira é expressivo, além do fato da volumetria remeter à imagem de um lar. Com relação ao interior, os espaços são desenhados a fim de criar diferentes unidades – cada uma destinada a uma faixa etária – o que auxilia na formação do sentimento de pertencimento e de relações mais próximas entre os abrigados.

46 | o conviver entre gerações

Figura 17 – Diagrama da organização espacial do projeto

Fonte: ArchDaily, 2015.

Figura 18 – Fachada frontal do edifício

Fonte: ArchDaily, 2015.

48 | o conviver entre gerações

Figura 19 – Planta do térreo

Fonte: Area, 2017.

Figura 20 – Planta do primeiro pavimento

Fonte: Area, 2017.

casa de acolhimento e capacitação juvenil

| 49

Figura 21 - Corte Fonte: Area, 2017.

50 | o conviver entre gerações

Figura 22 – Fachada posterior do edifício

Fonte: ArchDaily, 2015.

visitas monitoradas a instituições

5

Diante da proposta de uma casa de acolhimento e capacitação juvenil, juntamente com um centro de convivência intergeracional, faz-se necessário entender as necessidades e características que os dois diferentes âmbitos deste trabalho demandam: abrigamento e atividades de convívio.

O contato com pessoas que atuam e vivenciam diretamente nestes serviços passa a ser crucial. Para isso, foram realizadas visitas monitoradas a três instituições: a Casa do Pequeno Cidadão Nossa Senhora Aparecida, que trabalha com o abrigamento de crianças e adolescentes; o Lar Sírio Pró Infância, que funciona como um contraturno promovendo atividades extracurriculares; e o Lar das Crianças da Congregação Israelita Paulista, que também acompanha o desenvolvimento dos jovens fora do horário escolar até seu encaminhamento profissional. Serão retratadas com maior detalhamento os projetos das duas primeiras instituições anteriormente citadas.

5.1 casa do pequeno cidadão nossa senhora aparecida

Fundada no ano de 2007 e localizada no bairro da Vila Leopoldina, zona oeste da cidade de São Paulo, a Casa do Pequeno Cidadão Nossa Senhora Aparecida trata-se de um Serviço de Acolhimento Institucional para Crianças e Adolescentes (SAICA), com capacidade para abrigar 15 jovens de 0 a 17 anos e 11 meses de idade.

As crianças e os adolescentes abrigados residem na instituição, com acompanhamento ininterrupto, saindo diariamente para frequentar a escola, aulas de natação, judô, entre outras atividades e necessidades. É importante ressaltar que, a partir dos 12 anos de idade, os jovens passam a ter mais autonomia, visando um melhor preparo para a vida adulta: são responsáveis por lavar a própria roupa e participam de cursos profissionalizantes de acordo com suas áreas de interesse, a partir de parcerias, bolsas e descontos.

Em visita feita à instituição em abril de 2022, foi possível conhecer apenas três pavimentos do edifício, visto que o último estava em reforma. As escadas com acesso pela rua levam ao primeiro pavimento, em direção à entrada principal da instituição, com a presença de um espaço de secretaria e recepção (Figura 24). Neste mesmo pavimento, encontram-se as salas de estudo (Figura 25) e lúdica (Figura 26) – sendo que a última é utilizada para as visitações, por ser um lugar mais reservado – além de uma cozinha industrial, refeitório e pátios coberto (Figura 27) e descoberto.

54 | o conviver entre gerações

casa de acolhimento e capacitação juvenil | 55

Figura 24 –Espaço de recepção. Fonte: Autoria própria, 2022. Figura 23 –Fachada da Casa do Pequeno Cidadão. Fonte: Casa do Pequeno Cidadão, 2022.

Figura 25 –Sala de estudo. Fonte: Autoria própria, 2022.

56 | o conviver entre gerações

Figura 26 –Sala lúdica. Fonte: Autoria própria, 2022.

Figura 27 –Pátio coberto. Fonte: Autoria própria, 2022.

No andar superior, há a sala da coordenação, uma sala de TV (Figura 28), banheiros coletivos e os quartos das crianças e adolescentes (Figura 29), que são separados de acordo com a faixa etária, relações de afetividade e/ou familiares. A vivência em coletividade é um fator presente dentro de uma instituição de acolhimento, no entanto é importante que cada um dos abrigados se sinta individualizado e tenha um tratamento pessoal. Há o cuidado em cada criança ter seu próprio kit de higiene, ser responsável por arrumar sua própria cama e ter um espaço reservado para ela dentro do guarda-roupa. Já no pavimento inferior, no nível da rua, localizam-se a lavanderia (Figura 30) e um espaço com brinquedos para as crianças (Figura 31), que funciona em conjunto com os pátios externos, em especial quando não é possível utilizá-los devido a intempéries. Ademais, a equipe de 30 funcionários que trabalha no abrigo – sendo 15 deles os educadores que ficam em maior contato direto com as crianças – possui uma sala de descanso. Por fim, levanta-se o questionamento da necessidade de quartos individuais para os abrigados mais velhos. Ainda que seja benéfica a privacidade que tal configuração proporciona, a coordenadora da casa relata que de certa forma é preciso que os jovens saibam lidar com o que será a realidade fora da instituição e se acostumem, já que é provável que ao saírem do abrigo ainda tenham que dividir o quarto e morar de forma coletiva.

casa de acolhimento e capacitação juvenil | 57

Figura 28 –Sala de TV. Fonte: Autoria própria, 2022.

Figura 29 –Quarto para quatro crianças. Fonte: Autoria própria, 2022.

58 | o conviver entre gerações

casa de acolhimento e capacitação juvenil | 59

Figura 31 –Espaço com brinquedos. Fonte: Autoria própria, 2022. Figura 30 –Lavanderia. Fonte: Autoria própria, 2022.

5.2 lar sírio pró-infância

O Lar Sírio Pró-Infância é uma organização sem fins lucrativos de contraturno localizada no bairro do Tatuapé, zona leste da cidade de São Paulo, que trabalha com o acompanhamento de crianças e adolescentes em situação de vulnerabilidade entre 6 e 17 anos durante o período extracurricular. Assim, com o horário de funcionamento sendo das 7h às 17h, os jovens que frequentam a escola no período da manhã usufruem das atividades do Lar Sírio no período da tarde, e vice-versa.

Com capacidade para atender cerca de mil crianças, o projeto conta com um conjunto de edifícios, cada um destinado a uma ati-

vidade específica. A Casa Brincante (Figura 33), por exemplo, é composta por salas cheias de brinquedos, onde “a brincadeira é resgatada como um direito da criança e do adolescente” (LAR SÍRIO, 2022). O espaço de centro esportivo, com uma quadra coberta, funciona em conjunto com o parque infantil ao ar livre localizado ao lado, no Parque Emilio Gabriel Bonducki, nos momentos de recreação dos jovens.

As crianças ainda possuem espaços destinados ao contato e conscientização com o meio ambiente. Além do Espaço Agroecológico de Aprendizagem (Figura 34), há uma horta coletiva que está sendo desenvolvida com a participação dos jovens (Figura 35).

60 | o conviver entre gerações

Figura 32 – Vista aérea do Lar Sírio com indicação dos ambientes Fonte: Lar Sírio, 2022.

Figura 33 –Casa Brincante. Fonte: Autoria própria, 2022.

Figura 34

62 |
o conviver entre gerações
–Espaço Agroecológico de Aprendizagem. Fonte: Autoria própria, 2022.

Enfatiza-se que o projeto também oferece serviços de saúde não somente para as crianças, mas também para suas famílias, com assistências psicológica e social; além de cursos profissionalizantes em parceria com o Serviço Brasileiro de Apoio às Micro e Pequenas Empresas (SEBRAE), que concede os professores enquanto o Lar disponibiliza o espaço físico para as aulas. Os cursos são destinados para a comunidade no geral, com 10% das vagas reservadas para os jovens e familiares do Lar Sírio. Por fim, em visita feita ao local, a imersão no projeto é notável. A fachada e entrada principal na Rua Serra de Bragança são tímidas, com as atividades acontecendo no miolo de quadra, protegidas dos ruídos e distrações da rua pelas edificações ao redor – proporcionando uma experiência ainda mais estimulante para as crianças.

Figura 36 – Fachada e entrada principal. Fonte: Google Maps, 2021.

casa de acolhimento e capacitação juvenil | 63

Figura 35 –Horta coletiva e parque infantil ao fundo. Fonte: Autoria própria, 2022.

o acolher na arquitetura

6

A tendência atual de desenhar as cidades cada vez menos atentas com a escala do habitante emerge o questionamento da construção do espaço urbano contemporâneo e a relevância do tema da hospitalidade na arquitetura, visto a demanda por cidades mais humanas (SANTOS, 2021).

A denominada hospitalidade absoluta pressupõe um gesto genuíno de acolhimento diante do outro, sem o sentimento de dever. Segundo Derrida (2003, apud SANTOS, 2021) é ceder o lugar ao anônimo, deixá-lo chegar e ter um lugar que se ofereça a ele sem exigir reciprocidade.

Ressalta-se que essa sensação de conforto e pertencimento que um lugar pode transmitir para seu usuário é de extrema importância quando abordada a questão de institucionalização de crianças, adolescentes e idosos. Trata-se de pessoas que precisam fazer de um espaço desconhecido seu lar; e um projeto de arquitetura que leve isso em consideração desde o início passa a ser um facilitador e grande aliado para uma vivência mais saudável e confortável.

A partir disso, neste capítulo será discutida a questão do acolhimento na arquitetura tanto na escala do edifício com a cidade, quanto de seu interior com os usuários – sempre levando em consideração as particularidades e cotidiano dentro da instituição.

6.1 relação entre o público e o privado

Carvalho e colegas (2017) evidenciam em seu texto as mudanças que vem ocorrendo atualmente no Brasil com relação às formas de desenhar os tecidos das cidades, que passam a fragmentar as espacialidades e induzir a dependência veicular. É notável a produção das novas áreas urbanas a partir de edificações individuais e isoladas, que se desconectam do entorno e falham em dar suporte ao transeunte e à apropriação do espaço público, além de levar a formas profundas de segregação.

Em função da proposta ser voltada ao acolhimento de jovens e idosos institucionalizados, é importante que os atributos e diretrizes que conferem qualidade para a edificação também transbordem para fora dela, a fim de minimizar o estigma do isolamento desses dois grupos de pessoas que já se encontram às margens da sociedade. Trata-se da busca da construção de um espaço acolhedor e integrado à cidade, que dê liberdade e instigue tanto os moradores quanto transeuntes a usufruírem do local e do que ele tem a oferecer.

A partir desse entendimento, traz-se à tona a questão da hospitalidade na arquitetura. Santos (2021) aponta que, ao nos sentirmos acolhidos, criamos uma relação de afeto com o contexto e que, a partir do momento em que a cidade é reconhecida como um lugar afetivo, ela se torna um refúgio e abrigo.

Com esse intuito, para criar um lugar orientado pela hospitalidade é preciso promover aberturas para dar passagem a quem

66 | o conviver entre gerações

chega e diluir as fronteiras, a partir de espaços de transição suaves e porosos entre o caráter público e privado (SANTOS, 2021). Assim, ressalta-se o uso do espaço livre como uma forma de trabalhar esse elemento: nele há a possibilidade do ir e vir, a livre circulação, o lazer, a recreação e a contemplação (DENARDIN; SILVA, 2011), estratégia utilizada no projeto com a implantação de uma praça de uso público elevada que dá acesso aos usos com caráter privado: as casas de acolhimento e capacitação juvenil e de repouso para idosos.

6.2

humanização da arquitetura

De acordo com Savi (2018), o ambiente construído é fruto do comportamento humano, sujeito à ocupação, leitura, reinterpretação e/ou modificação por parte dos usuários. Uma arquitetura considerada desumanizada é desprovida de arborização, excessiva em iluminação e ventilação artificiais, com grandes áreas pavimentadas e um enrijecimento formal que dificulta, além da manutenção e personalização do espaço pelo usuário (GUEDES, 2017), o conforto físico e emocional.

Em contrapartida, para que o ambiente se torne humanizado, ele deve se aproximar fisicamente dos valores e necessidades humanas, tratando o ser humano como ponto focal do projeto a fim de assegurar o atendimento às questões funcionais e propiciar bem-estar. Segundo Corbella e Yannas (2003), uma pessoa está em um ambiente físico confortável quando se encontra em uma posição de neutrali-

dade, sem preocupação ou incômodo. Isso levando em consideração que a sensação de conforto está associada a fatores psicológicos e fisiológicos, que variam de indivíduo para indivíduo (ROMERO, 2006).

A cor pode ser uma aliada para a humanização. Ela auxilia na construção de espaços mais adequados e que promovem qualidade de vida (LOPES, L. 2016).

As cores influenciam o ser humano, e seus efeitos, tanto de caráter fisiológico como psicológico, intervém em nossa vida, criando alegria ou tristeza, exaltação ou depressão, atividade ou passividade, calor ou frio, equilíbrio ou desequilíbrio, ordem ou desordem etc. As cores podem produzir impressões, sensações e reflexos sensoriais de grande importância, porque cada uma delas tem uma vibração determinada em nossos sentidos e pode atuar como estimulante ou perturbador na emoção, na consciência e em nossos impulsos e desejos (FARINA; PEREZ; BASTOS 2011, p.2).

Tendo em vista que a reação de cada indivíduo para determinada cor é algo particular e relacionada a vários fatores, sejam eles culturais e/ou associações feitas a partir de experiências do passado, é de comum acordo entre os psicólogos a atribuição de certos significados a determinadas cores para qualquer indivíduo dentro da mesma cultura (FARINA; PEREZ; BASTOS, 2011).

O vermelho, por exemplo, transmite energia, intensidade, paixão; enquanto o azul traz a sensação de serenidade, paz, afeto. O amarelo é um pouco mais frio que o vermelho e remete à alegria, espontaneidade, impulsividade; o verde, sugere calma, equilíbrio, natureza e bem-estar; e o rosa simboliza o encanto e amabilidade (FA-

casa de acolhimento e capacitação juvenil

| 67

RINA; PEREZ; BASTOS, 2011).

O contato com a natureza também é um fator que auxilia na melhoria de qualidade de vida. A interação da paisagem com o ser humano vai além do meio visual, englobando os sentidos auditivo, olfativo, tátil e gustativo que, em conjunto, propiciam satisfação corporal e mental. Os estímulos e contato com plantas de diferentes texturas e sons provenientes do meio ambiente estimulam a produção de endorfina e aumentam a sensação de bem-estar (SABBAGH; CUQUEL, 2007 apud ALENCAR; CARDOSO, 2015).

Já com relação aos aspectos de caráter construtivo do edifício, para que ele se torne confortável fisicamente e minimize o consumo de energia convencional é preciso levar em consideração estratégias de projeto de acordo com o clima local. No caso do clima tropical úmido, algumas medidas são:

1. Controlar os ganhos de calor minimizando a entrada de energia solar pelas aberturas e absorvida pelas paredes externas; e utilizando isolantes térmicos nas superfícies mais expostas ao sol (paredes ou teto);

2. Aumentar a dissipação de energia com uma boa disposição das aberturas e ventilação mecânica controlada, para promover um maior nível de ventilação quando a temperatura externa for menor do que a interna;

3. Remover a umidade em excesso e movimentar o ar;

4. Promover o uso da iluminação natural, controlando a carga térmica provinda da energia solar;

68 | o conviver entre gerações

5. Controlar o ruído dispondo elementos que dificultem sua transmissão, tanto para ruídos internos ao edifício quanto externos (CORBELLA; YANNAS, 2003, p.37-38).

Edwards (2004 apud Mello, 2021) ainda ressalta a importância de otimizar e flexibilizar as novas construções, diante da incerteza do futuro com relação ao clima e disponibilidade de recursos. A vida útil de um edifício pode passar de um século e, por conta disso, é favorável evitar uma exclusividade funcional, garantir o máximo aproveitamento da luz e ventilação naturais e proporcionar acesso a fontes renováveis de energia (solar, eólica, geotérmica e/ou hidrelétrica). A flexibilidade dos espaços passa a ser questão chave diante da demanda constante de transformação e adequação às novas formas de viver (GUEDES, 2017). No caso do ambiente institucional, esse conceito se traduz em o espaço não ser somente um abrigo contra intempéries, mas compreender como sua relação com suas atividades interferem no sentimento de estar em casa (SAVI, 2018).

Savi (2018) discute a importância de avaliar os aspectos espaciais ao projetar ambientes para crianças e adolescentes; e levanta quatro reguladores espaciais de interação entre as pessoas, sendo eles: a privacidade, a territorialidade, o espaço pessoal e a aglomeração.

1. A privacidade é o controle seletivo de acesso, representando o equilíbrio de ter a escolha entre ficar isolado ou se tornar acessível – o que permite que a pessoa não se sinta violada ou ignorada. No meio institucional, ela pode ser prejudicada quando, por exemplo, não é per-

mitido o fechamento das portas ou quando há horários coletivos para higiene;

2. A territorialidade pode ser definida como “um padrão de conduta associado à ocupação de um lugar ou área geográfica por um indivíduo ou grupo, que resulta na sua personalização e defesa contra invasores” (GIFFORD, 1997 apud SAVI, 2018, p.103), o que a torna um facilitador de conexão com o lugar a partir do sentimento de pertencimento, apego e segurança. Desta forma, é importante que nos abrigos haja tanto o território que demarque uma área pertencente a uma pessoa ou grupo primário (como um quarto ou cama), quanto compartilhado por grupos não exclusivos;

3. O espaço pessoal é um limite invisível que cerca o corpo de cada pessoa no qual estranhos não podem entrar, caso contrário traz desconforto e ansiedade;

4. A aglomeração é um regulador espacial subjetivo e individual: uma pessoa pode conseguir conviver em um quarto com seis pessoas, enquanto outra pode se sentir incomodada. Muita aglomeração pode prejudicar o espaço pessoal e as lotações acima do limite, que por vezes ocorrem nos ambientes institucionais, podem resultar em uma despersonalização e acarretar reações provenientes da negligência precoce (SAVI, 2018).

Diante disso, é importante também levar em consideração esses quatro reguladores para construir um ambiente bem projetado, o que pode aumentar a competência dos usuários e permitir que façam o uso de sua capacidade ao mesmo tempo que são estimulados a desenvolver habilidades mais complexas (EVANS; TRANCIK, 1995 apud SAVI, 2018).

casa de acolhimento e capacitação juvenil

| 69

casa de acolhimento e capacitação juvenil

7

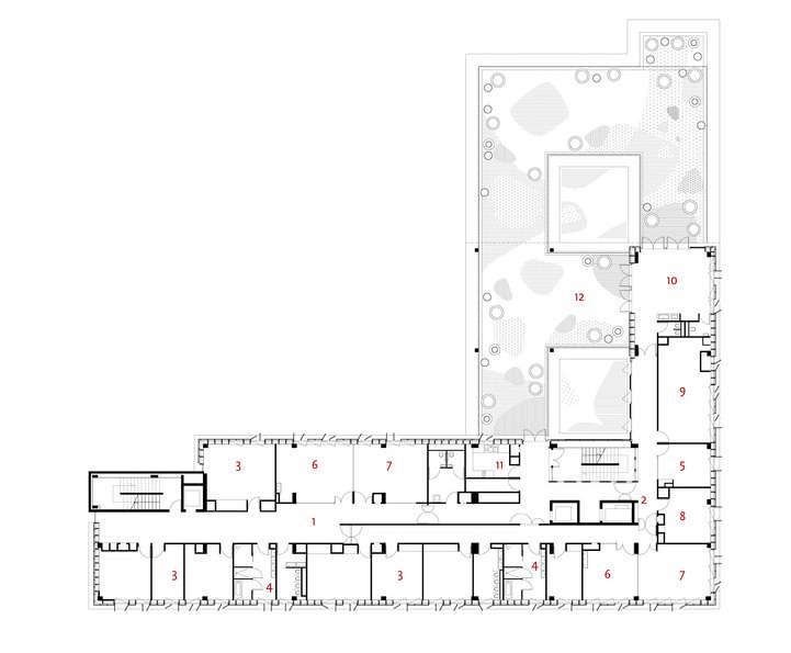
A proposta trata-se de uma casa de acolhimento e capacitação juvenil que, além de suprir as necessidades de abrigamento de menores, conta com um centro de convivência intergeracional que promove atividades, oficinas e cursos profissionalizantes. Pretende-se instigar uma relação entre diferentes gerações, visto que há a proposta de implantação, no mesmo terreno, de uma casa de repouso. Vale ressaltar que as atividades intergeracionais são direcionadas não somente para os moradores das duas instituições, mas visam ser um ponto de encontro para outros públicos da região. A elaboração deste conjunto de programas foi feita da seguinte maneira: a casa de acolhimento juvenil foi desenvolvida por Aline Hiromi Yamamoto; a casa de repouso por Catarina Prandi dos Santos; e o centro de convivência intergeracional – que é de usufruto de ambos – de forma conjunta. No caso da instituição juvenil, o projeto procura promover práticas que auxiliem no melhor desenvolvimento e preparação de adolescentes entre 12 e 17 anos e 11 meses que se encontram em situação de abrigo. A partir do oferecimento de atividades que agreguem no crescimento profissional e lhes deem base para conseguirem lidar com as atividades inerentes de uma vida adulta, como suas finanças, por exemplo, de forma inteligente, o ambiente institucional passa a preparar gradativamente os adolescentes para o processo de desligamento obrigatório ao completarem 18 anos, para que possuam a autonomia e confiança necessárias para desbravarem essa nova etapa de suas vidas fora dos abrigos.

72 | o conviver entre gerações

7.1 o lugar

Diante do princípio de desenvolver uma casa de acolhimento e capacitação juvenil que promova uma convivência intergeracional juntamente com uma casa de repouso, propõe-se trabalhar os equipamentos em um mesmo terreno a fim de facilitar essa troca. Assim, torna-se necessária a escolha de um lugar que corresponda às necessidades do programa como um conjunto.

Os principais fatores para a escolha do lugar foram: proximidade com modais de alta capacidade; com equipamentos públicos de saúde; com equipamentos públicos de educação que atendam a faixa etária dos jovens abrigados; e com equipamentos de lazer.

Ressalta-se que a existência de lares de idosos e escolas no entorno próximo é um ponto positivo, uma vez que o público desses equipamentos são usuários em potencial do centro de convivência intergeracional – que atende não somente aos moradores das casas de acolhimento juvenil e de repouso, mas que tem a proposta de ser um ponto de encontro da região.

O local de intervenção encontra-se na subprefeitura da Mooca, no distrito do Tatuapé. De acordo com o Caderno de Propostas dos Planos Regionais das Subprefeituras: Mooca (2016), a participação de idosos na subprefeitura chega a 17,7% – com concentração nos distritos de Água Branca, Mooca e Tatuapé; enquanto de jovens é de 15,6% – com concentração nos distritos de Pari e Brás.

Com relação à mobilidade (Figura 42), trata-se de uma área

bem atendida por transporte público, com a estação de metrô Carrão da Linha 3-Vermelha, linhas de ônibus que adentram a região e faixas exclusivas de ônibus e ciclovia na Rua Melo Freire. Já analisando os usos predominantes por quadra (Figura 44), há uma grande quantidade de residências, mas com a forte chegada de novos empreendimentos que contam com unidades habitacionais, fachada ativa e escritórios; além do comércio de menor porte remanescentes. Com relação à topografia da região (Figura 45), percebe-se que não há grandes desníveis e há uma linha d’água canalizada que percorre parte da quadra de intervenção.

casa de acolhimento e capacitação juvenil |

73

localização

Figura 37Mapa localizando o distrito do Tatuapé em São Paulo

Fonte: Autoria própria, 2022.

74 | o conviver entre gerações

1 2 3 4 5 6

legenda

subprefeitura mooca distrito de intervenção 1 - pari 2 - belém 4 - brás 5 - mooca 6 - água rasa 7 - vila guilherme 8 - vila maria 9 - penha 10 - vila matilde 11- carrão 12- vila formosa

3 - tatuapé 500 1000m

7 8 9 10 11 12 legenda quadra de intervenção 0

Figura 38Mapa aproximado do distrito do Tatuapé e entorno imediato 0 5 10km

Fonte: Modificado a partir de Geosampa, 2022.

mooca

vila maria

penha

tatuapé

belém carrão

vila matilde

água rasa vila formosa

pontos

Figura 39Mapa com indicação dos pontos de interesse próximos à área projetual estação metrô parque municipal do tatuapé (700m) parque do piqueri (2km)

equipamentos de lazer equipamentos de educação equipamentos de saúde casas de repouso de

76 | o conviver entre gerações

legenda quadra de intervenção

1 2 3 4 5 6 7 8 9 10 11 12 0 500 1000m

emef jackson de figueiredo (100m) e.e. prof. joão dias da silveira (1.3km) e.e. prof. paulo novaes de carvalho (1.1km) etec martin luther king (900m) e.e. prof. joão borges (900m) hospital municipal do tatuapé (1.3km) hospital são luiz (1.9km)

Fonte: Modificado a partir de Geosampa, 2022.

tatuapé residencial senior (1.3km) residencial tatuapé para a terceira idade (2.1km) casa de repouso meu lar (2.8km)
interesse
1 3 5 6 7 4 8 2 9 10 11 12

Figura 40Mapa de mobilidade de São Paulo

Figura 41Mapa de mobilidade do distrito do Tatuapé e entorno imediato

legenda distrito de intervenção distrito estação metrô estação cptm linha ônibus linha cptm linha metrô

coral amarela

diamante azul

esmeralda lilás

jade prata

rubi verde

safira vermelha

turquesa

0 7.5 15km

legenda quadra de intervenção

estação metrô estação cptm ponto de ônibus distrito linha cptm linha de ônibus linha vermelha metrô

Fonte: Modificado a partir de Geosampa, 2022. 0 500 1000m

Fonte: Modificado a partir de Geosampa, 2022.

mobilidade

80 | o conviver entre gerações

legenda

estação metrô estação cptm ponto de ônibus linha cptm linha de ônibus linha vermelha metrô ciclovia 0 100 200m

quadra de intervenção

Fonte: Modificado a partir de Geosampa, 2022.

Figura 42Mapa de mobilidade aproximado da área projetual mobilidade

Figura 44Mapa de uso predominante do solo por quadra do distrito do Tatuapé e entorno imediato

legenda

Fonte: Modificado a partir de Geosampa, 2022.

residencial horizontal baixo padrão residencial horizontal médio/alto padrão residencial vertical baixo padrão residencial vertical médio/alto padrão comércio e serviços indústrias e armazéns residencial e comércio/serviços residencial e indústria/armazéns comércio/serviço e indústria/armazéns equipamentos públicos escolas terrenos vagos sem predominância sem informação distrito de intervenção

0 7.5 15km

0 500 1000m

Figura 43Mapa de uso predominante do solo por quadra de São Paulo quadra de intervenção distrito de intervenção legenda

Fonte: Modificado a partir de Geosampa, 2022.

uso do solo

Figura 45Mapa de topografia aproximado da área projetual topografia

e hidrografia

84 | o conviver entre gerações

legenda

curva mestra curva intermediária hidrografia 0 50 100m

terreno de intervenção

Fonte: Modificado a partir de Geosampa, 2022.

A transformação do bairro é um fator que chama atenção ao se andar pelas ruas. Traçando-se um corte urbano perpendicular à linha férrea (Figura 46), fica evidente a diferença entre os dois lados dos trilhos com relação à verticalização. No lado do terreno de intervenção, há presença de edifícios mais altos; enquanto do outro lado essa transformação ainda é menos presente. Destaca-se que parte do terreno proposto para o projeto hoje funciona como um estacionamento, mas está prevista a construção de um edifício de uso misto.

de haver a inserção de mobiliário urbano nas calçadas e uma maior arborização das vias.

A chegada de novos empreendimentos pode ser vista no percorrer das ruas. O edifício (c) – em processo de construção – prevê unidades habitacionais, lajes corporativas e espaço destinado a um coworking. Na quadra ao lado (d), restam somente cinco sobrados que antes faziam parte do Conjunto de Vilas Operárias Migliari, datadas da década de 50 e que se encontravam conservadas e em uso até fevereiro de 2019, quando foram demolidas para dar lugar a um novo empreendimento.

a b

Tal sensação é ainda mais reforçada quando, na mesma rua, há um edifício de escritórios recém-construído (a) e outro que se encontra em processo de finalização (b). Essas novas construções contam com espaços para lojas, cafés e restaurantes no térreo; além

c d e

Já do outro lado da linha férrea, está em processo de construção outro conjunto de edifícios habitacionais (e), que conta com três torres de apartamentos.

Figura 46 - Corte urbano demonstrando a verticalização do bairro

terreno de intervenção

linha férrea

86 | o conviver entre gerações

Fonte: Autoria própria, 2022.

Fonte:

Fonte:

Fonte: Autoria própria, 2022.

Fonte:

Fonte: Autoria própria, 2022.

Fonte:

Fonte:

novosempreendimentos

Figura 47Diagrama de transformação com indicação dos novos empreendimentos

Fonte: Autoria própria, 2022.

Fonte:

Fonte: Google Maps, 2019.

Fonte: Google Maps, 2021.

87
casa de acolhimento e capacitação juvenil |
e a b c d 2011 2018 2015 2019 2018
2022 2021 2021 2021 2022
Google Maps, 2021. Google Maps, 2021. Google Maps, 2011. Google Maps, 2018. Google Maps, 2018. Google Maps, 2015.

Aproximando-se do terreno de intervenção, que possui acesso pelas ruas da Praça Barão de Itaqui, Platina e Vilela, ele pertence à Zona Eixo de Estruturação e Transformação Urbana (ZEU), com coeficiente de aproveitamento igual a 4.0 e taxa de ocupação de 70%. Considerando o terreno de estacionamento, um lote residencial e outro de uso não residencial (Figura 48), o local de intervenção possui uma área total de 5.320m².

Ao analisar os percursos e travessias para o terreno, percebe-se que as calçadas se encontram em bom estado de conservação, com presença de faixas de pedestre e guia rebaixada nas travessias. Vale ressaltar a presença de novos comércios e serviços no térreo dos novos empreendimentos das quadras do entorno, que, além da fachada ativa, possuem inserção de mobiliário urbano e uso de piso tátil nas calçadas.

88 | o conviver entre gerações

legenda terreno de intervenção

posto de gasolina borracharia e mecânica uso não residencial residência estacionamento (prevista construção de edifício) edifício residencial uniplast indústria e comércio bar e lanches barão de itaqui residências praça barão de itaqui emef jackson de figueiredo edifício de escritórios edifício de escritórios edifícios residenciais centro de estudos desenvolvimento de educação para a mobilidade (Cemob - CET)

Fonte: Modificado a partir de Geosampa, 2022.

0 50 100m
6 7 8 9 10 11 12 13 14 15
1 2 3 4 5
Figura 48Mapa com indicação dos usos do entorno
1 2 3 4 5 6 7 8 9 10 11 12 13 14 15 rua platina rua melo freire rua vilela rua itapura praçabarãodeitaqui

90 | o conviver entre gerações

vistas ruas do entorno

Figura 49 - Vista Rua Itapura e Praça Barão de Itaqui

Fonte: Google Maps, 2022.

Figura 50 - Vista Rua Platina

Fonte: Google Maps, 2022.

Figura 51 - Vista Rua Vilela

Fonte: Google Maps, 2022.

casa de acolhimento e capacitação juvenil | 91

92 | o conviver entre
gerações
Figura 53Calçada do terreno na Rua Platina. Fonte: Autoria própria, 2022. Figura 52Travessia da Rua Vilela. Fonte: Autoria própria, 2022. casa de acolhimento e capacitação juvenil | 93 Figura 55Guia rebaixada na calçada do terreno da Rua Platina. Fonte: Autoria própria, 2022. Figura 54Calçada do terreno na Rua Vilela. Fonte: Autoria própria, 2022.

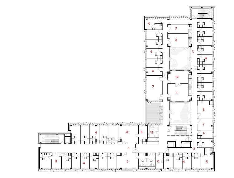
A proposta de inserção de um centro de convivência intergeracional traz à tona a questão da visibilidade, para que ele possa assumir seu caráter de ponto de encontro. Neste sentido, decidiu-se semienterrar o programa intergeracional, a fim de atrair a atenção e instigar a curiosidade das pessoas ao possibilitar um contato visual direto e facilitado com a calçada por estar na altura dos olhos dos transeuntes.

Outro fator importante considerado foi fazer com que o projeto tenha características que sejam convidativas e acolhedoras para os jovens e idosos institucionalizados. Integrar o edifício à cidade a fim de minimizar o estigma do isolamento desses dois grupos de pessoas é uma maneira de auxiliá-los a se sentirem pertencentes.

Para isso, buscou-se fazer com que os edifícios não fossem separados da malha urbana ou cercados por muros, mas orientados pela hospitalidade promovendo aberturas e diluindo as fronteiras do lote com a rua. Assim, dispõe-se de um térreo funcionando como um grande pátio à céu aberto, uma praça de uso público elevada ativada com pontos de atração de pessoas – um café, loja âncora, bazar e uma biblioteca – e com dois acessos principais, pelas ruas Platina e Vilela.

Salienta-se que no térreo elevado há recortes e recuos na laje que permitem, além da comunicação visual com o pavimento semienterrado do programa intergeracional, garantir um maior con-

94 | o conviver entre gerações

forto ambiental com a possibilidade de entrada de luz natural e ventilação cruzada.

A localização dos edifícios também possibilita um fluxo livre para percorrer o terreno, sendo que o edifício destinado aos jovens foi posicionado mais para o interior do lote, dando uma sensação maior de proteção; enquanto os dois blocos destinados aos idosos possuem uma vista privilegiada tanto da rua quanto do miolo de quadra, para que todos os quartos proporcionem a visão do movimento e maior contato com o exterior, levando em consideração a possibilidade de acolhimento de idosos com maiores dificuldades ou mesmo impossibilidade de locomoção.

7.2 o
projeto

praça barão de itaqui

Figura 56 - Diagrama 1 Fonte: Autoria própria, 2022.

Figura 57 - Diagrama 2 Fonte: Autoria própria, 2022.

praça barão de itaqui

ruavilela ruavilela

ruaplatina ruaplatina

índices urbanísticos pavimento intergeracional

área do terreno: 5.320,00m²

área permeável: 15% x 5.320,00 = 798,00m² taxa de ocupação: 70% x 5.320,00 = 3.724,00m² coeficiente de aproveitamento: 4 x 5.320,00 = 21.280,00m²

Semienterrar o programa intergeracional a fim de atrair a atenção e instigar a curiosidade dos transeuntes ao possibilitar um contato visual direto e facilitado com a calçada.

casa de acolhimento e capacitação juvenil | 95

praça barão de itaqui

Figura 58 - Diagrama 3 Fonte: Autoria própria, 2022.

Figura 59 - Diagrama 4 Fonte: Autoria própria, 2022.

praça barão de itaqui

ruaplatina ruaplatina

ruavilela ruavilela

acesso térreo fluxo térreo acesso semienterrado

térreo elevado edifícios, fluxos e acessos

Abertura de vazios centrais e recuos na laje do térreo elevado que permitem, além da comunicação visual com o pavimento semienterrado, a entrada de luz natural e ventilação cruzada. Criação de praça seca de acesso ao centro de convivência intergeracional como forma de extensão da Praça Barão de Itaqui pré-existente.

Definição de dois acessos principais ao térreo elevado pelas ruas Platina e Vilela, diluindo as fronteiras do lote com a rua ao criar uma praça de uso público; e dois acessos para o pavimento semienterrado, sendo o do centro de convivência pela rua da Praça Barão de Itaqui e o de um café pela rua Vilela. Locação dos blocos dos edifícios institucionais de modo que permita um fluxo livre para percorrer o terreno.

96 | o conviver entre gerações

Figura 60 - Diagrama 5 Fonte: Autoria própria, 2022.

Figura 61 - Diagrama 6 Fonte: Autoria própria, 2022.

praça barão de itaqui praça barão de itaqui

ruaplatina ruaplatina

ruavilela ruavilela

casa de acolhimento e capacitação juvenil casa de acolhimento e integração do idoso

Quebra dos volumes para criar movimento e dinamicidade na volumetria do conjunto de edifícios; além de proporcionar terraços descobertos de usufruto dos abrigados como espaços seguros e de acesso facilitado para contato com o exterior e de sol. Ativação do térreo a partir da inserção de usos com atração de pessoas, como café, loja âncora, bazar e biblioteca.

terraços descobertos conjunto final intergeracional jovens idosos

área permeável: 15% x 5.320,00 = 798,00m² projeto = 1.087,60m² taxa de ocupação: 70% x 5.320,00 = 3.724,00m² projeto = 3.511,53m² coeficiente de aproveitamento: 4 x 5.320,00 = 21.280,00m² projeto = 3.300m² + 6.400m² + 7.040m² = 16.740m²

casa de acolhimento e capacitação juvenil | 97

0 10 20m

98 | o conviver entre gerações

Fonte: Autoria própria, 2022.

Figura
cobertura
62Implantação cobertura implantação

casa de acolhimento e capacitação juvenil

rua itapura

praçabarãod eitaqui

casa de acolhimento e integração do idoso bloco a

rua platina

rua vilela

casa de acolhimento e integração do idoso

bloco b

A
B

1 2 3 4 5 6 7 8 9 10

-

0 10 20m Fonte: Autoria própria, 2022. implantação térreo (+1.98)

Figura 63
Implantação
100 | o conviver entre gerações
térreo
legenda biblioteca secretaria saguão casa de acolhimento e capacitação juvenil sanitários públicos loja âncora bazar saguão casa de acolhimento e integração do idoso (bloco b) fisioterapia saguão casa de acolhimento e integração do idoso (bloco a) café

rua itapura

praçabarãod eitaqui

2 3 4 5 6 7 8 9 10

1

entrada entrada entrada acesso térreo elevado

acesso térreo elevado

rua vilela

acesso intergeracional semienterrado acesso café

rua platina

casa de acolhimento e capacitação juvenil |

103
Figura 64 –Vista térreo elevado Fonte: Autoria prória, 2022.

No pavimento semienterrado, encontra-se o centro de convivência intergeracional, com acesso por uma escada e rampa pela rua da Praça Barão de Itaqui. Nele, há a disposição de espaços que permitem usos diversos e compartilhados para computadores, jogos, leitura e estar; além de salas com seu perímetro mais definido, como as destinadas para música e aulas. O objetivo é criar um espaço que promova o enriquecimento pessoal, convivência e produtividade das duas gerações, de acordo com as necessidades dos usuários, e dar-lhes um sentido de pertencimento. Destaca-se a disposição de elevadores e escadas com acesso direto e controlado para os edifícios dos jovens e idosos institucionalizados, a fim de facilitar a chegada e uso do espaço por eles.

Há a presença também de um café com a premissa de atender tanto os usuários do programa intergeracional, quanto o público que tem acesso direto ao estabelecimento por uma rampa disposta na rua Vilela.

Ademais, existe uma quadra descoberta para atividades esportivas e as áreas externas dos vazios centrais e recuos receberam um tratamento paisagístico, levando em consideração que o contato com a natureza estimula a produção de endorfina e aumenta a sensação de bem-estar, com a possibilidade de acesso e contemplação por parte dos usuários.

1 2 3 4 5 6 7 8 9 10 11 12 13 14 15 16

Figura 65 –

104 | o conviver entre gerações

legenda recepção acesso casa de acolhimento e integração do idoso (bloco a) área técnica sanitários café cozinha sanitários café acesso casa de acolhimento e integração do idoso (bloco b) espaço de leitura e estar espaço de jogos espaço de computadores sala de aula acesso casa de acolhimento e capacitação juvenil sala de música quadra externa jardim externo

0 10 20m Fonte: Autoria própria, 2022.

Planta intergeracional
intergeracional (-2.34)
planta

rua itapura praçabarãod eitaqui

12

11

14 13 16 16

16 15

8 9

10

4

rua vilela

1 2 3 4

3 rua platina

acesso intergeracional semienterrado acesso café

5 6 7

casa de acolhimento e capacitação juvenil | 107

Figura 66 –Vista acesso centro de convivência intergeracional Fonte: Autoria prória, 2022.

108 | o conviver entre gerações

Figura 67 –Vista intergeracional mostrando a relação com os vazios Fonte: Autoria prória, 2022.

casa de acolhimento e capacitação juvenil | 111

Figura 68 –Vista quadra descoberta Fonte: Autoria prória, 2022.

Com respeito ao edifício da casa de acolhimento e capacitação juvenil, nos dois primeiros pavimentos estão dispostos os usos mais coletivos. No primeiro, encontram-se a administração, sala de visitação, cozinha e refeitório; e no segundo, as salas para atendimento psicológico, assistência social, lavanderia e um espaço de descompressão, com a disposição de um espaço para filmes, jogos e convivência de usufruto de todos os acolhidos da instituição.

112 | o conviver entre gerações

1 2 3 4 5 6

legenda refeitório cozinha despensa sala de visitação sanitários administração

0 5 10m Fonte: Autoria própria, 2022.

Figura 69Planta primeiro pavimento planta primeiro pavimento (+5.22)
1 2 3 4 5 6

(+8.46)

1 2 3 4 5 6 7 8

segundo

Figura 70Planta

0 5 10m Fonte: Autoria própria, 2022. pavimento

114 | o conviver entre gerações
legenda espaço de descompressão enfermaria lavanderia sala psicólogo espaço de convivência sanitários sala assistente social terraço coberto
planta segundo pavimento
1 2 3 4 4 4 5 6 7 7 7 8

A partir do terceiro pavimento, encontram-se os quartos dos abrigados, além de um espaço de convivência, uso múltiplo e uma sala para os educadores, a fim de garantir proximidade e atenção pessoal entre os jovens e funcionários responsáveis pelo cuidado deles.

Existem duas tipologias de dormitórios, sendo que ambas possuem seu próprio banheiro e comportam até duas pessoas, totalizando 73 unidades e acolhimento de 146 jovens. Criar quartos menores é importante para que a privacidade e o espaço pessoal dos abrigados sejam mantidos, determinando de forma clara a diferenciação entre as áreas coletivas e individuais. Além disso, auxilia no sentimento de pertencimento e apego dos adolescentes ao proporcionar que cada um tenha seu próprio espaço, cama e armário.

O contato com o exterior também foi um fator importante levado em consideração. Para que os corredores não fossem escuros e monótonos, foi garantida a entrada de luz natural direta a partir da disposição de varandas em módulos variados em cada pavimento. Além disso, os pequenos saguões criados a partir dos dormitórios de tipologia 1 (Figura 71) podem ser usados e decorados à maneira de seus ocupantes – sendo mais uma maneira de auxiliar no sentimento de individualismo e personalização diante da vivência dada em coletividade.

116 | o conviver entre gerações

planta dormitórios

Figura 71 – Planta dormitório tipologia 1

Figura 72 – Planta dormitório tipologia 2

1 0 2m

Fonte: Autoria própria, 2022.

Fonte: Autoria própria, 2022.

casa de acolhimento e capacitação juvenil | 117

Figura 73 –Vista interna dos corredores Fonte: Autoria prória, 2022.

casa de acolhimento e capacitação juvenil | 119

planta terceiro

legenda espaço de convivência sala dos educadores sala múltiplo uso dormitório tipologia 1 dormitório tipologia 2 terraço coberto pavimento (+11.70)

1 2 3 4 5 6

120 | o conviver entre gerações
0 5 10m Fonte: Autoria própria, 2022. Figura 74Planta terceiro pavimento
1 2 3 4 4 5 5 4 5 6 5 4 4 5 5 5 4

1 2 3 4 5 6

Planta

Figura

legenda espaço de convivência sala dos educadores sala múltiplo uso dormitório tipologia 1 dormitório tipologia 2 terraço coberto quarto pavimento

122 | o conviver entre gerações
0 5 10m Fonte: Autoria própria, 2022. 75
planta quarto pavimento (+14.94)
1 2 3 4 5 5 4 5 6 6 5 4 5 5 5 5 4

pavimento (+18.18)

1 2 3 4 5 6

legenda espaço de convivência sala dos educadores sala múltiplo uso dormitório tipologia 1 dormitório tipologia 2 terraço coberto Figura 76Planta quinto pavimento

0 5 10m Fonte: Autoria própria, 2022.

124 | o conviver entre gerações
planta quinto
1 2 3 4 4 5 5 5 6 6 6 6 5 5 5 5 4

126 | o conviver entre gerações

1 2 3 4 5 6

legenda espaço de convivência sala dos educadores sala múltiplo uso dormitório tipologia 1 dormitório tipologia 2 terraço coberto

0 5 10m Fonte: Autoria própria, 2022.

Figura 77Planta sexto pavimento
planta sexto pavimento (+21.42)
1 2 3 4 4 5 5 5 5 5 4 4 4 5 5 5 4

No sétimo pavimento encontra-se um terraço descoberto – espaço de sol onde é possível ter uma horta coletiva para cuidado e educação ambiental por parte das crianças e adolescentes abrigados.

128 | o conviver entre gerações

1 2 3 4 5 6 7

legenda

espaço de convivência sala dos educadores dormitório tipologia 1 dormitório tipologia 2 terraço coberto espaço para jogos terraço descoberto

0 5 10m Fonte: Autoria própria, 2022.

Figura 78Planta sétimo pavimento planta sétimo pavimento (+24.66)
1 2 3 5 4 4 4 4 6 7 3

pavimento

1 2 3 4 5

legenda espaço de convivência sala dos educadores dormitório tipologia 1 dormitório tipologia 2 terraço coberto oitavo pavimento

Planta

130 | o conviver entre gerações
0 5 10m Fonte: Autoria própria, 2022. (+27.90) Figura 79
planta oitavo
1 2 3 3 5 4 4 4 4 3 3

132 | o conviver entre gerações

80Planta nono

legenda

1 2 3 4

0 5 10m Fonte: Autoria própria, 2022.

(+31.14) Figura
pavimento
espaço de convivência sala dos educadores dormitório tipologia 1 dormitório tipologia 2 pavimento
planta nono
1 2 3 3 4 4 4 4 4 3 3

reservatórios de água

água pluvial plataforma técnica metálica telha metálica aço galvalume trapezoidal (i=5%)

pingadeira reservatório para armazenamento de água pluvial

ampliação cobertura

134 | o conviver entre gerações

0 5 10m Fonte: Autoria própria, 2022.

Figura 81Corte AA corte aa

0 5 10m

136 | o conviver entre gerações

Fonte: Autoria própria, 2022.

Figura 82Corte BB corte bb

det. 1 det. 2 det. 3

0 0.5 Fonte: Autoria própria, 2022. Figura 83Detalhe 1: fachada detalhe 1 fachada

1m

138 | o conviver entre gerações

parafuso cabeça chata trilho superior porca de segurança suporte

ampliação trilho superior ampliação trilho inferior

fechamento inferior trillho inferior tipo u

perfil vertical perfil horizontal guia inferior fixação

esquadria em alumínio branco com módulo inferior com abertura em guilhotina e superior basculante

laje de concreto e=20cm

brise de correr em madeira

contrapiso massa de regularização piso interno porcelanato 90x90cm rodapé 15 cm em poliestireno branco

viga de concreto h=70cm

-

1m

140 | o conviver entre gerações Figura 84
0 0.5 Fonte: Autoria própria, 2022. Detalhe 2: jardineira detalhe 2 jardineira

pingadeira terra geotêxtil drenante brita

tela em aço para proteção mecânica manta asfáltica primer de impermeabilização regularização grelha hemisférica

esquadria em alumínio branco com módulos superior e inferior fixos e central com abertura maxim-ar

laje de concreto e=20cm

viga de concreto h=70cm

contrapiso massa de regularização piso interno porcelanato 90x90cm

rodapé 15 cm em poliestireno branco

Figura 85Detalhe 3: intergeracional

1m

0 0.5 Fonte: Autoria própria, 2022. detalhe 3

142 | o conviver entre gerações
intergeracional

guarda-corpo em alumínio

pingadeira geotêxtil drenante terra pedestal piso elevado regularização regularização grelha hemisférica primer de impermeabilização manta asfáltica brita tela em aço para proteção mecânica

canaleta de drenagem de água pluvial manta asfáltica contrapiso laje de concreto e=25cm esquadria em alumínio branco com módulo inferior fixo e superior com veneziana de vidro fixa

contrapiso massa de regularização piso interno porcelanato 90x90cm

0 5 10m

144 | o conviver entre gerações

Fonte: Autoria própria, 2022.

Figura 86
Elevação Sul
sul
-
elevação

0 5 10m

146 | o conviver entre gerações

Fonte: Autoria própria, 2022.

Figura
leste
87Elevação Leste elevação

0 5 10m

148 | o conviver entre gerações

Fonte: Autoria própria, 2022.

Figura
Norte
norte
88Elevação
elevação

0 5 10m

150 | o conviver entre gerações

Fonte: Autoria própria, 2022.

Figura
oeste
89Elevação Oeste elevação

7.3

experimentações arquitetônicas

Para entendimento da ventilação no pavimento semienterrado do centro de convivência intergeracional, foi feito um estudo com o programa Fluxovento (Figura 90), destinado à análise de ventilação em ambientes construídos, a partir de corte esquemático considerando os recuos e recortes na laje do térreo elevado.

Figura 90 - Análise Fluxovento

Fonte: Modificado a partir de Fluxovento, 2022.

Ainda com relação ao pavimento intergeracional, pelo fato de ser um ambiente com um programa com conotações educacionais, é importante que ele respeite a quantidade mínima de luz necessária para que tais atividades possam se dar de forma confortável. De

152 | o conviver entre gerações

acordo com a NBR 8995 (ASSOCIAÇÃO BRASILEIRA DE NORMAS TÉCNICAS, 2013, p.12), recomenda-se que a iluminância mínima para uma sala de aula, por exemplo, seja de 300 lux; enquanto para uma sala de desenho técnico seja de 750 lux.

Diante disso, foi feito um estudo de iluminância com o software Dialux (Figura 91), que faz simulações computacionais de projetos de iluminação, para que fosse possível entender o comportamento da incidência de luz e, assim, poder distribuir o programa de uma forma mais eficiente com os usos que necessitam de uma maior iluminância, como as salas de aula e de música, dispostas onde a luminosidade é maior. Ressalta-se que os cálculos foram feitos somente com a incidência de luz natural, sem considerar pontos de luz artificiais.

Ademais, nos quartos foram utilizadas janelas do piso ao teto. Isso porque com elas, há uma maior sensação de amplitude no ambiente ao aumentar o campo de visão e promover maior conexão com o exterior; além de possibilitar maior entrada de luz solar – o que pode ser visto na experimentação feita com o software Dialux ao comparar a iluminância do quarto com janelas de peitoril de 1m e altura de 1.20m (Figura 92) com quartos com janelas de piso ao teto (Figura 93). Ressalta-se que a privacidade e controle de incidência de luz são mantidos a partir da disposição de brises móveis de madeira na fachada.

Figura 91 - Estudo de iluminância realizado no software Dialux

Fonte: Modificado a partir de Dialux, 2022.

casa de acolhimento e capacitação juvenil

| 153
1 2 3 5 7.5 10 20 30 50 75 100 200 300 500 750 1000 2000 3000
lux
154 | o
Fonte: Modificado a partir de Dialux, 2022. 23 de abril 09:30h 23 de outubro 15:30h 1 2 3 5 7.5 10 20 30 50 75 100 200 300 500 750 1000 2000 3000 lux
conviver entre gerações Figura 92 - Análise iluminância do quarto com janela de peitoril de 1m e altura de 1.20m

Figura 93 - Análise iluminância do quarto com janela piso ao teto

casa de acolhimento e capacitação juvenil

| 155
Modificado
partir de Dialux, 2022. 23 de abril 09:30h 23 de outubro 15:30h 1 2 3 5 7.5 10 20 30 50 75 100 200 300 500 750 1000 2000 3000 lux
Fonte:
a

considerações finais

8

Compreender os efeitos que a institucionalização pode ter no desenvolvimento infanto-juvenil, como problemas emocionais relacionados à ausência de um vínculo afetivo estável ou falta de atividades planejadas, é de suma importância para que seja possível construir um ambiente que promova maior conforto e bem-estar para pessoas que precisam fazer de um lugar desconhecido seu lar. No decorrer deste trabalho foi discutida a importância que tem uma arquitetura projetada pensando em como amenizar os impactos da institucionalização. A partir dela é possível promover uma vivência mais saudável, com sensibilidade e cuidado em fazer os abrigados se sentirem pertencentes àquele lugar, à cidade em que estão e incentivados com um programa de atividades que os ajude no seu aprendizado para a vida fora dos abrigos e mercado de trabalho.

Ressalta-se ainda a relação entre gerações como potencializadora desse atendimento de carências recíprocas, qualidade de vida e saúde mental tanto para os jovens quanto para os idosos, evidenciando a importância de criar oportunidades de convivência entre pessoas de diferentes idades e promover atividades que os envolvam de forma genuína, dando a elas um espaço aconchegante e convidativo.

Desta forma, este trabalho atingiu seu objetivo de propor um equipamento que acolha as necessidades e que crie condições emocionais e profissionais para que adolescentes institucionalizados estejam mais preparados para o início de sua vida adulta, além de estimular interrelações afetivas e cognitivas com idosos e ser um ponto de encontro intergeracional na cidade.

158 | o conviver entre gerações

casa de acolhimento e capacitação juvenil

159
|

referências bibliográficas

A

ACRÓPOLE: Arquitetura, Urbanismo, Decoração. São Paulo: Max Gruenwald & Cia, 1938-1971. Mensal. N°33. Disponível em: <http:// www.acropole.fau.usp.br/edicao/33>. Acesso em: 19 maio 2022.

ALENCAR, Luciano Delmondes de; CARDOSO, Jean Carlos. Paisagismo funcional: o uso de projetos que integram mais que ornamentação. Revista Ciência, Tecnologia & Ambiente, São Carlos, v.1, n.1, p. 1-7, 2015.

ARCHDAILY. Casa de Acolhimento para Menores / CEBRA. Archdaily, Projetos, Habitação coletiva, Dinamarca, 18 jan. 2015. Disponível em: <https://www.archdaily.com.br/br/760562/casa-de-acolhimento-para-menores-cebra>. Acesso em: 04 abr. 2022.

ARCHDAILY. Centro de Bem-estar para crianças e adolescentes em Paris / Marjan Hessamfar & Joe Verons architectes associes. ArchDaily, Projetos, Centro Para Jovens, França, 16 out. 2014. Disponível em: <https://www.archdaily.com.br/br/765064/centro-de-bem-estar-para-criancas-e-adolescentes-marjan-hessamfar-and-joe-verons>. Acesso em: 23 mar. 2022.

AREA. The Children’s Home of The Future. Area Architecture, area 153, out of the ordinary living, 28 nov. 2017. Disponível em: <https:// www.area-arch.it/en/the-childrens-home-of-the-future/>. Acesso em: 04 abr. 2022.

ASSOCIAÇÃO BRASILEIRA DE NORMAS TÉCNICAS. NBR 8995: iluminação de ambientes de trabalho. Rio de Janeiro: ABNT, 2013. ASSIS, Simone de; FARIAS, Luís (Org.). Levantamento nacional de

160 | o conviver entre gerações

crianças e adolescentes em serviço de acolhimento. São Paulo: Hucitec, 2013. E-book. 368 p.

ASSUNÇÃO, Sheyla; POZZEBOM, Eliana Rodrigues. Jovens não adotados vivem drama quando fazem 18 anos e precisam deixar abrigos. Senado Notícias, Matérias, Especial, 22 maio 2020. Disponível em: https://www12.senado.leg.br/noticias/materias/2020/05/22/ jovens-nao-adotados-vivem-drama-quando-fazem-18-anos-e-precisam-deixar-abrigos. Acesso em: 26 jun. 2022.

B BENETTI, Daniella Simões; BRINO, Rachel de Faria. Análise do processo de desligamento institucional. Journal of Research in Special Educational Needs, v.16, S1, p. 150-154, ago. 2014. BERNARDI, Dayse Cesar Franco. Abrigos para quem?. In: BERNARDI, Dayse Cesar Franco. Cada caso é um caso: a voz de crianças e adolescentes em situação de abrigamento. 1 ed. São Paulo: Associação Fazendo História, 2010. p. 19-35. BRASIL. Lei n° 8.069, de 13 de julho de 1990. Dispõe sobre o Estatuto da Criança e do Adolescente e dá outras providências. Diário Oficial da União, Brasília, DF, 16 jul. 1990. Disponível em: <http://www. planalto.gov.br/ccivil_03/leis/l8069.htm>. Acesso em: 20 maio 2022. C

CARDOSO, Suliane da Silva. O processo de desligamento institucional e suas problemáticas. II Seminário Discente do Programa de Pós-Graduação em Ciências Sociais da Pontifícia Universidade

Católica do Rio Grande do Sul, Porto Alegre, p.71-81, 2019.

CARREIRÃO, Úrsula Lehmkuhl. Modalidades de abrigo e a busca pelo direito à convivência familiar e comunitária. In: SILVA, Enid Rocha Andrade da. O Direito à Convivência Familiar e Comunitária: os abrigos para crianças e adolescentes no Brasil. Brasília: IPEA/CONANDA, 2004. p. 303-323.

CARVALHO, Thereza et al Efeitos da Arquitetura: Os impactos da urbanização contemporânea no Brasil. Brasília: FRBH, 2017.

CASA DO PEQUENO CIDADÃO. Casa do Pequeno Cidadão Nossa Senhora Aparecida, A Casa, 20--. Disponível em: <https://www.casadopequenocidadao.com.br/a-casa/>. Acesso em: 04 maio 2022.

CONSELHO NACIONAL DE JUSTIÇA (CNJ). Diagnóstico sobre o Sistema Nacional de Adoção e Acolhimento. Brasília: CNJ, 2020, 60p.

CORBELLA, Oscar; YANNAS, Simos. Em busca de uma arquitetura sustentável para os trópicos: conforto ambiental. 1 ed. Rio de Janeiro: Revan, 2003. 288p.

COSTA, Ricardo Felipe Santos da. Orphanato Christovam Colombo: abrigo e abandono dos dois lados do muro – Cidade de São Paulo (1895-1919). In: Seminário Nacional do Centro da Memória, IX, 2019. Campinas: Universidade Estadual de Campinas, 2019, p. 03-09. D

DELL’AGLIO, Débora Dalbosco; SIQUEIRA, Aline Cardoso. O impacto da institucionalização na infância e na adolescência: uma revisão de

literatura. Psicologia & Sociedade, Porto Alegre, v. 18, n.1, p. 71-80, jan/abr 2006.

DENARDIN, Vanessa Cibele Cauzzo; SILVA, Adriana Pisoni. Praças urbanas como espaços para o turismo e lazer: um estudo preliminar na Praça General Osório na cidade de Santa Maria/RS. In: Encontro Semintur Jr., 2., 2011, Caxias do Sul. Artigo [...]. Caxias do Sul: Universidade de Caxias do Sul, 2011, 12 p. F

FARINA, Modesto; PEREZ, Clotilde; BASTOS, Dorinho. Psicodinâmica das cores em comunicação. 6 ed. São Paulo: Edgard Blucher, 2011. 174p.

FERRIGNO, José Carlos. Coeducação entre gerações. 2. ed. São Paulo: Edições SESC SP, 2010. 256 p.

FONSECA, Patrícia Nunes. O impacto do acolhimento institucional na vida de adolescentes. Revista Psicopedagogia, João Pessoa, v.34, n.105, p. 285-296, 2017.

FRANÇA, Lucia Helena de Freitas Pinho; SILVA, Alcina Maria Testa Braz da; BARRETO, Márcia Simão Linhares. Programas intergeracionais: quão relevantes eles podem ser para a sociedade brasileira?. Revista Brasileira de Geriatria e Gerontologia, Rio de Janeiro, v.13, n.3, p.519-531, 2010.

G

GUEDES, Celieny da Silva. Da casa ao lar: pela humanização das unidades de acolhimento de crianças e adolescentes em Natal/RN.

casa de acolhimento e capacitação juvenil | 161

I

2017. Dissertação (Mestrado em Arquitetura, Projeto e Meio Ambiente) – Universidade Federal do Rio Grande do Norte, Natal, 2017.

referências bibliográficas usuário. 2016. Dissertação (Mestrado em Arquitetura e Urbanismo) – Universidade Federal de Pelotas, Pelotas, 2016.

M

INSTITUTO FAZENDO HISTÓRIA. Orfanatos não existem!. Instituto Fazendo História, 25 abr. 2017. Disponível em: <https://www.fazendohistoria.org.br/blog-geral/2017/4/25/orfanatos-no-existem-ento-onde-moram-ento-as-crianas-abandonadas>. Acesso em: 19 maio 2022. L

LAR SÍRIO. Lar Sírio Pró-Infância, Conheça o lar, 20--. Disponível em: <https://www.larsirio.org.br/conhe%C3%A7a-o-lar>. Acesso em: 05 abr. 2022.

LIMA, Mariana. A vida depois dos 18: os desafios enfrentados por quem viveu em abrigos. Observatório do Terceiro Setor, 30 jul. 2019. Disponível em: < A vida depois dos 18: os desafios enfrentados por quem viveu em abrigos (observatorio3setor.org.br)>. Acesso em: 16 jun. 2022.

LOPES, Idileini Corrêa. No alto da colina e na sombra da história: Educação de Meninas e Meninos no Orfanato Cristóvão Colombo (1895-1953). 2015. Dissertação (Mestrado em Educação) – Universidade Nove de Julho, São Paulo, 2015. LOPES, Leila. A cor como ferramenta de humanização em ambientes hospitalares de atendimento infantil sob a percepção do

MELLO, Alexandre Effori de. Aspectos do conforto ambiental e da sustentabilidade no ambiente construído. XVII Fórum Ambiental: Alta Paulista, 2021, p. 915-922.

MENDES. Jozelina Silva da Silva. Educação intergeracional a distância: conect@ndo jovens e idosos. 2018. Dissertação (Mestrado em Educação) – Universidade Federal do Rio Grande do Sul, Porto Alegre, 2018. MONÇORES, Paulo de Jesus. Projetos intergeracionais no Brasil: um estudo exploratório da conjunção de idosos asilados e crianças institucionalizadas In: EGEPE – ENCONTRO DE ESTUDOS SOBRE

EMPREENDEDORISMO E GESTÃO DE PEQUENAS EMPRESAS. 4. Curitiba, 2005, p. 420-435.

O

OLIVEIRA, Ester Geovanini de et al. A adolescência e o desligamento do serviço de acolhimento institucional. Revista Gestão em Foco, ed. 12, p. 111-126, 2020.

P

PEREIRA, Júlia Silva; TEIXEIRA, Aparecida Netto. Envelhecimento ativo, intergeracionalidade e espaços de acolhimento. In: SEMOC

162 | o conviver entre gerações

- Semana de Mobilização Científica, 23., 2020, Salvador. Anais [...] Salvador: Universidade Católica do Salvador, 2020.

R

RIZZINI, Irene; RIZZINI, Irma. A institucionalização de crianças no Brasil: Percurso histórico e desafios do presente. 2 ed. Rio de Janeiro: PUC-Rio, set. 2004.

ROMERO, Marta Adriana Bustos. Desenho da cidade e conforto ambiental. RUA: Revista de Arquitetura e Urbanismo, Salvador, v.7, n.1, p. 12-19, 2006. S

SANTOS, Juliana Nunes dos. Arquitetura da hospitalidade: acolhimento do habitante na fronteira entre o edifício e a cidade. 2021. Dissertação (Mestrado em Arquitetura) – Pontifícia Universidade Católica do Rio de Janeiro, Rio de Janeiro, maio 2021.

SAVI, Aline Eyng. Contribuições da arquitetura sobre o acolhimento de crianças e adolescentes em abrigos institucionais. 2018. Tese (Doutorado em Arquitetura e Urbanismo) – Universidade Federal de Santa Catarina, Florianópolis, 2018. SÃO PAULO (Cidade). Secretaria Municipal de Desenvolvimento Urbano. Caderno de Propostas dos Planos Regionais das Subprefeituras Quadro Analítico: Mooca. São Paulo, dez. 2016. SILVA, Enid Rocha Andrade da. O perfil da criança e do adolescente nos abrigos pesquisados. In: SILVA, Enid Rocha Andrade da. O Direi-

to à Convivência Familiar e Comunitária: os abrigos para crianças e adolescentes no Brasil. Brasília: IPEA/CONANDA, 2004. p. 41-70 V

VALENTE, Jonas. Brasil tem 30 mil crianças acolhidas e 5 mil aptas para adoção. Agência Brasil, Geral, 11 out. 2020. Disponível em: < https://agenciabrasil.ebc.com.br/geral/noticia/2020-10/brasil-tem-30-mil-criancas-acolhidas-e-5-mil-aptas-para-adocao>. Acesso em: 25 jun. 2022.

casa de acolhimento e capacitação juvenil | 163

universidade presbiteriana mackenzie

Turn static files into dynamic content formats.

Create a flipbook
Issuu converts static files into: digital portfolios, online yearbooks, online catalogs, digital photo albums and more. Sign up and create your flipbook.