Architecture Portfolio - Aliah Maisarah

Page 1

ISARAH
ALIAH

Year2Project:

Theprojectwastostudyourchosenbiomimicryorganism(guru). Asformine,Ichosethegiantclam.Iinvestigatedandstudiedthe geniusoftheorganism.Withdiagramsandmodels,Iexploredthe possibilitiesofcreatingstructures,systemsandfunctionsbasedon thechosenbiologicalentitiesandprocessesoftheguru.

Acro Fortress

- The Genius In Nature

Studyofthegiantclamspecies

Explorationofthegiantclambehaviour

Size ofcam widens and increases he space within the mantle expands as the can opens up

ExplorationModels

Thismodelisbasedonthegeniusoftheexpandingspaceswithintheclamasitopensup.Withthe conceptoforigamitofindouthowaspacewithincanbeexpanded.

Tridacna Maxima

'rridacna Giga

-Surface of reefs or sand or partly embedded in coral -Has bluish rim with a dull coloured mantle filled w th aqua b ue patterns

-Has more iridocytes than microa gae -Aquatic Biomes: Reef,Coastal,Shallow agoon

ExplorationModels

Theabovemodelistheinterpretationoftheclamstructure.Thisshowstheevolvementfromits closedpositiontoitsopenedposition,supportedbyitsbase;thebyssalorifice.

- Prim3 y str clu e

Theshelloftheclambuildsupfrombelowhencethisform panelsarestackedupcreatingacurvaturefrom

pe s St3ge 3: Ma e s reads o t
The orm pane s a e co nected togetherwth a base byssa orifice Seeton 1:5
• Seconda y St c. re

These4acroyogastepsaretranslatedinto4differentfragments

ConceptualDiagrams

Aerialskillisdonefromthelowesttothehighestpoint. Thisisthekinematicdeterminationoftheaerialphase. Thismethodologymanipulatethesolidbodyandspace todefinetheshapeandformcreatedduringeachphases.

Expanded

Body,shapeandspaceareexploredthroughmovementexperience,observationandtheoretical discussion.Movethroughspacedynamicallyinconstantlychangingpatterns.

Sunpath

spacediagrams

Thegradientonthefacadeisperceivedfromthekinematic movementsystemoftheaerialsilkactivity.

Fragments
SitePlan1:200 ,.- H _.
Msty Forest Aero Fortress 1st Platform :lnd 1-'lattorm 3rd Platform Extended 3rd P atform CascadingWa er Landscape Section 1:175 SouthEevaton 1 175 Eas:Elevaton 1 175 I I ' ' RenderedImage FloorPlans ExtendedSpace-3rdplatform&Shed roof Programmes-Perspective JointDrawings Autocaddrawing Level1Studio;Agettogether studiosessionforacyoga. Level1:personalspaceforchangingand resting. Level2-Fragmentsstudio;Personalstudiosto practiceacroyogawith partnersandgroups.Therampisdesignedsuch thatitcanalsobe usedasawarmupcorner. Level3offersawiderspaceasitallowsthe peopleto practicetheiraerialskillswhichrequirea muchwiderandhigherupspace Level3;Astheplatformexpands,thespacegets wider.Thisallow morepeoplegetinvitedtoperformancebythe aerlists.Theintention isnotonlytoletpeopleexpresstheiremotions throughperforming artsandexerciseandalsotoperformittoothers. 1:300 1:300 1:300 1:300

Attention Seeking Post Guard

16 Sera goon oad

Year1:

Thestudioprojectwastostudyhowarchitectureisessentiallyaninterfacearoundthebodythatalters howweexperienceandoperateinourworld.Weinvestigatedarchitectureatfullscalewithapersona whomoveswithinperforminghis/herdailyoperationsandwayoflifeatLittleIndia.My“villager” wasthegreeteror“theAttentionSeekingGuy”.Iexperimentedandspeculated¬withdiagramsand modelswithdrawingstoevolveandcreateadwellingforhim.

Thevillageractslikeanattentionseeking postguardwhileworking.Hencetheidea wasdevelopedbasedontheobservation ofthevillagerofhowhedoeshisworkat therestaurantonadailybasis. Withthedwellingcreatedjustforhim, thevillagerisabletoinvitehisfriends oversinceheliketoattractforpeople attention.Heisalsoabletorestathis ownprivatespace.

� t. .,I t, l J l ... / l ,_ 2Storey-AttractedDwelling
Rainfall
Sectionshowingthelifeofthe villager FFL11:100 FF211:100 WestElevation NorthElevation SouthElevation RevealingVeranda LuringEntrance AttractingTower
Waterdrop RestingDwelling GlidingWingsattractbirdsand feedthem

Rhino Projects

ThisprojecthelpedmetogetusetoRhinoasIamableto usethecommandsIhavelearnt.Producedocumentations usingRhino.Also,applyingrendertoolsontheobjects thatIhavemodelled

Top Perspective Top I 7 Perspective Front Perspective Front 5508.9 Perspective Front RhinoModels-WallPattern
Patterns Canopy Shelters
Wall

BIM Projects

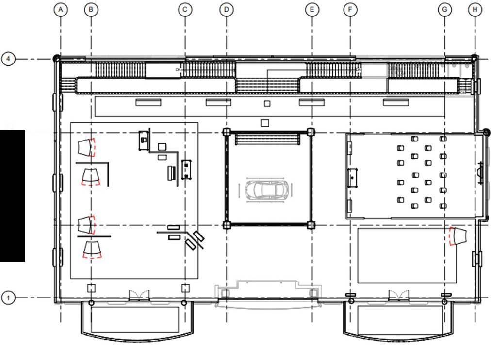
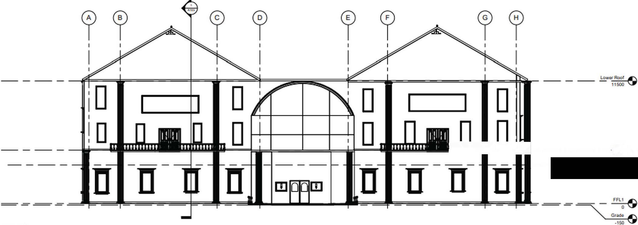
Thisis2storeyofficebuilding whichImodelledusingRevit. Fromthisproject,Ihave learnthowtoconstructa3D BIMModelaswellas renderingitonRevit.

Fromthisproject,Ihavelearnthow toproducedocumentationsof perspectiveviews,floorplans, sectionsandelevations.Ialsogained betterunderstandingofspace planningandarchitecturalelements.

cp -----@ ® 30 View Stairs 0----' ---0- ...--'"""1-:iii�------0 East 1:10 � ® Section Stairs, Level 1 & 2 3 1 100 2 3 -�---�----(D North 1 1 : 100 4 LowerRoof � Le3800 3000 _43ra<1e -150 Cy L� R LeJ800�f �-'I& =-� 2StoreyOfficeBuilding FloorPlans 1stStorey 2ndStorey

n n

Sectionshowingdisplayarea

SouthElevation

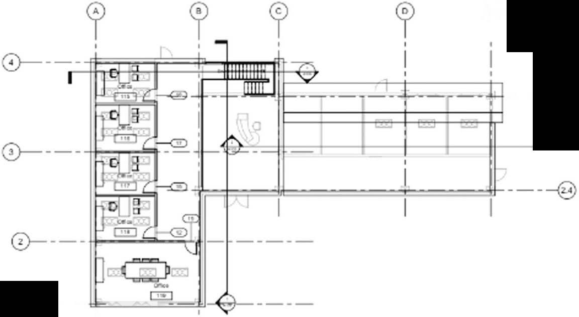
ProjectTitle:AVictorianStyleHeritageCentreto displayexhibitionsofthesignificanceduringthe SingaporeColonyeraforthestudyandeducationof public.

Objectives:Todevelopamodernseriesof architecturalrevivalstyleswithVictorianfacade,its ornatemaximalistinteriordesignandattractive architecturedetailedexterior.Itisaplacewherethe colonyofSingaporeduringthemid-twentieth centurywillbeillustrated

A2storeyVictorianHeritageCentre
3DPerspectiveofgrandstairs
South
Elevation
Modernvictorianstyledspace Grandethnicstairs VintageColumn

PerspectiveViewInterior

Architecture:VictorianStructures&Facade

Thisprojectenabledmetodesignamodernethnic architecturewhichfeaturesthevictoriandesignelements. Thisallowedmetoexploreonhowtocontructthe individualelementsofthearchitecturewhichhelpto enhancethedesignofmyBIMmodelling.

0----0----r r cp C? cp � ----..1.s=+=====i=tF==!====rt==i====f'lf'--��=� n n n ____Jk==#=+==�H====iil••��� @West 2 1: 100 ®Stairs 2 1: 100 n cp r n r r --s:;� :�� a--t��� � --1.Jll====l=====j=j==+��=� --:!� s� I--� (DDisplayArea 1 1: 100 ID ID D - U=..,i__..1_...1__1__LJ+==l=====ll===t==='===tJ---+-L-L-1.-t-'==tt- :!� s::� North 1:100 mlDlmlm-=-'11- �� _____s=�� South 2 1:100 FFL11:100 FFL21:100 Documentations NorthElevation South
West
Elevation
Elevation PerspectiveViewInterior
ISARAH
ALIAH

Turn static files into dynamic content formats.

Create a flipbook
Issuu converts static files into: digital portfolios, online yearbooks, online catalogs, digital photo albums and more. Sign up and create your flipbook.