Golden Girls: A Retail Gallery Design Project

Page 1

Retail Gallery Design I_D 425 Fall 2022 Lexi Mills Galleria Mistica Presents: - Golden GirlsThe World’s Goddesses of Love, Sex, and Beauty

Galleria Mistica is an idea to create an other-worldly environment utilizing and celebrating the arts. I want the visitor to come away with a new curiosity for mythology, new knowledge about ancient cultures, and to come back for future shows seeking more.

The goal of this collection is to not only show beautiful artwork of the female body from around the world, but also tell the stories of different cultures. Nearly every culture around the world has believed in divinity that encompasses love, beauty, and fertility or sex. The goddesses in this collection are all their own deity from different parts of the world, yet they have commonalities in each of their stories from their birth or creation to their spouses.

The collection has commonly known goddesses and some lesser known. With watery colors, sparkling accents, swirling patterns, soft colored lighting, and a meandering but structured flow, the gallery feels ethereal; a place worthy of a goddess of love and beauty.

The story of a body of work can be communicated in many ways, be it through assumptions made based on pieces of information, or a full understanding of in-depth content presented. This collection utilizes both an immersive and discursive method of narration.

There are layers to the exhibition with how much a guest voluntarily decides to learn. Most of the gallery is discursive with simple signage, but QR codes beside or under works allow those interested to access full stories of each goddess or audio guides to narrate with added sound effects. The second to last art piece is in an immersive room that people may choose whether or not to enter.

Inspire Curiosity

Instill a Sense of Wonder

Encourage Interest in the World’s Cultures and Mythology

Exhibition Brief - Goals
-
Collection Inventory
Inventory & Education
Presentation Notes
Presentation Notes

Sketch Notes: Lighting

Sketch Notes: Staging Exhibitions

Sketch Notes: Principles of Participation

Site
Analysis: Studio Ponsi

Site Analysis: Secci Gallery

Site
Analysis: Aria Gallery

Pre-Design: Blocking Diagrams

Site Plans

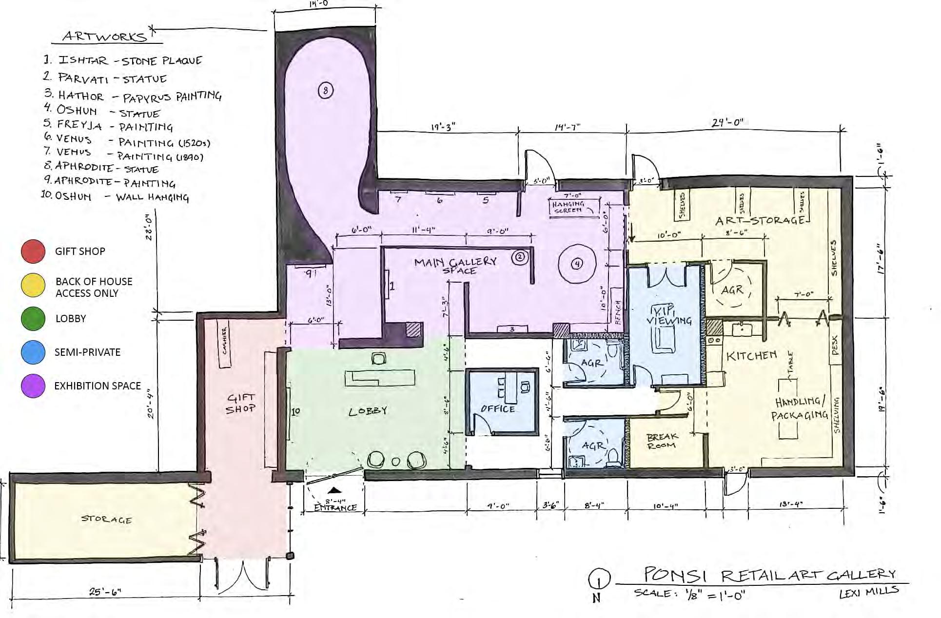
Galleria Mistica is a re-purposed studio building in Florence, Italy. When entering, guests are greeted in the lobby with the reception desk in front of them. The line of sight from the door looks into the end of the exhibition space at a large painting of Aphrodite. There are two identical all-gender restrooms down the halls to the right. Going ahead to the right is the exhibition space.

The exhibition itself starts out as a structured flow and breaks near the end to a semi-structured circulation path. One of the main themes of the pieces has to do with water. This path

A gift shop on the left is encouraged but not forced on the guest. Storage for the lobby and gift shop is on the very left. The right side of the building is reserved for back-of-house operations, including the overflow art storage, shipping and handling area, kitchenette, employee restroom, and break room. The office and VIP viewing room are also in this section however the public have access to these spaces when invited.

User Experience: Lobby

The lobby is the first impression of the gallery. It emanates feminine elegance and grandiosity with the light color palette and glittering chandelier and wall covering.

The blue, scallop-topped chairs, and touches of brown are meant to remind you of the sea, where many of the goddesses emerged from. The black marble wall adds a dark edge to remind that though of beauty and love, goddesses are not without their wrath.

The tile flooring is a simple but traditional Italian pattern in white and grey, paying homage to the history of the building.

Before entering the gallery space, visitors may connect to the wifi, receive an audio guide at the desk to narrate the stories of the goddesses as they walk, and receive information about scannable QR codes with indepth information on each piece.

Rosy Velvet Chair Fabric Turquoise Wall Covering Behind Reception Black Marble Wall Covering Accent Wall Grey and White
Tile Flooring
Gold and Crystal “Twig” and “Teardrop” Chandelier Sparkling accent wall covering
Wood
and white marble two-level desk
Hall
-MisticaGalleria -
Bordering soffit with exposed brick and wood ceiling to office,
RR, and back-ofhouse

User

Experience: Show Room

Inside the exhibition, visitors will first see a gold map of the world where the origins of each goddess is marked. To their right is a relief sculpture of Ishtar, from one of the first civilization of the world, lit from above and below. Guests are guided along the wall, passing Parvati of Hinduism, and Hathor of Egypt.

The space opens up to a large statue-in-the-round of Oshun of West Africa. Visitors are invited to sit and pause. A translucent screen that visually blocks an exit door has projections of African landscapes.

Down a hallway there are paintings of Nordic Freya and Roman Venus. Ahead is where the path separates to either the exit or the last room of the exhibit.

Each art piece has a gold plaque with basic information about that piece and a QR code for the goddesses stories.

Marbled/Swirled Epoxy “River” Flooring in Greys and Browns Dark Reclaimed Wood Benches Landscapes Projected on Screen Hathor Accent Wall Ishtar Accent Wall
30 º Angled lights on suspended tracks Exposed ceiling - brick and wood beam Gold Information Plaques with QR Code Screen with scenery projections

User Experience: The Sacred

The last room is an optional immersive experience. Visitors can choose to enter the room or exit the exhibition to the left, passing a large painting of Aphrodite.

Choosing to go to the right, they will be led by colored light shining off the marbled floor and light sounds coming from within. The curved walls lead you into an other-worldly space. The piece in this room is a 15” ancient Greek clay statue of Aphrodite, the most famous Goddess of Love.

Fog from the base of her pedestal and slowly-changing colored lights create an ethereal environment meant to transport the viewer somewhere between the earthly and the divine.

Soft, dark grey acoustic panels keep the space quiet and intimate while speakers in the ceiling and walls play sounds of the ocean shore and birds chirping.

Marbled/Swirled Epoxy “River” Flooring in Greys and Browns Dark Grey Acoustic Panels Colored Light and Fog Effects Ocean and Bird Sounds Curved walls lead into room Pedestal base releases fog Lights and speakers in ceiling

OPTIONAL EDUCATION

Through your own phone

At reception: Connect to Wifi

Choose: Learn-As-You-Go QR Code Interaction at each piece.

OR

Scan a code at reception for Audio narration guide with sound effects

*Headphones supplied if needed, or you can use your own for your own.

LEFT: Ishtar example with accent wall and information plaque.

BELOW: Informational plaque with QR code for additional education.

RIGHT: Regional Map showing origins of exhibition pieces’ stories

“Her Story” QR Codes Lead To. . .

• Goddess’s creation/birth legend

• Her duties, spouse, children, etc.

• Background on the culture/ region she’s from

• Cultural significance or role

The depth of learning is up to the user. They may choose to read/listen to all of these options or none of them.

Education Signage

SPECIAL THANKS TO THESE SOURCES:

Artwork Images -

• Parvati - https://www.metmuseum.org/art/collection/search/39325

• Venus - https://www.metmuseum.org/art/collection/search/436918

• https://en.wikipedia.org/wiki/The_Birth_of_Venus_(G%C3%A9r%C3%B4me)

• Aphrodite - https://recherche.smb.museum/detail/681513/statuette-der-aphrodite-sog--aphrodite-heyl?language=de&question=heyl+aph rodite&limit=15&controls=none&collectionKey=ANT*&objIdx=0

• https://www.wikiart.org/en/herbert-james-draper/herbert-james-draper-the-pearls-of-aphrodite-1907

• Oshun - https://woodmereartmuseum.org/explore-online/collection/oshun-whospers-woshiper

• Hathor - https://www.metmuseum.org/art/collection/search/548357

• Ishtar - https://www.britishmuseum.org/collection/object/W_2003-0718-1

• Freyja - https://www.artsalonholland.nl/collectie-kunst-musea/anders-zorn-freya

Education -

• Transition of goddesses - https://www.jstor.org/stable/3333191

• Aphrodite - https://en.wikipedia.org/wiki/Aphrodite#:~:text=Aphrodite’s%20major%20symbols%20include%20myrtles,the%20Sumerian%20 cult%20of%20Inanna., https://www.academuseducation.co.uk/post/worship-of-aphrodite-in-ancient-greece

• Oshun - https://www.britannica.com/topic/Oshun

• Freyja - https://www.britannica.com/topic/Freyja

• Hathor - https://www.britannica.com/topic/Hathor-Egyptian-goddess

• Venus - https://www.britannica.com/topic/Venus-goddess

• Parvati - https://www.britannica.com/topic/Parvati

• Ishtar - https://www.worldhistory.org/ishtar/, https://www.britannica.com/topic/Ishtar-Mesopotamian-goddess, https://www.encyclopedia. com/philosophy-and-religion/ancient-religions/ancient-religion/ishtar

Turn static files into dynamic content formats.

Create a flipbook
Issuu converts static files into: digital portfolios, online yearbooks, online catalogs, digital photo albums and more. Sign up and create your flipbook.