ENTREGA SEGUNDO CORTE

Page 1

DE

ANFIBIA EN EL HÁBITAT LOS PESCADORES’

PROTOTIPO
VIVIENDA
ALEJANDRO BORRERO ORDOÑEZ
04 CAPÍTULO

Mar Caribe

Zona anfibia

Vías sin pavimentar

3

Restaurantes y bares: Turismo

Playa: erosión costera

Viviendas en zona de relleno

Zona verde

Zona intervención

Carrera

LOCALIZACIÓN

POR QUÉ ESA ZONA?

Viviendas palafíticas

Zona de riesgo inundación

Contaminación hídrica: vertimiento residuos

Puente peatonal

Caminos palafíticos

Manglar. Zona de protección y recuperación ecológica

Muelles precarios ausencia

Invasión de viviendas en el manglar

IX

Vía despavimentada

Manglar

Lotes baldíos

Bahía

Ausencia muelles

MAPA LOTE Y CONTEXTO
Manglar. Zona de protección y recuperación ecológica
0 20m5 Calle 102 Calle 101

DEL LOTE

CARACTERÍSTICAS Y DESCRIPCIÓN DEL LOTE

palafíticas en zona riesgo de inundación

en zona de relleno

POR QUÉ ESTE LOTE Y NO OTRO?

Se escogió un hábitat que refleja y envuelve todas las dinámicas que caracterizan no sólo al barrio sino también al municipio de Turbo Éste se localiza en un punto estratégico articulador de múltiples actividades existentes en el sector. Punto de conexión y transición entre los barrios costeros que bordean la playa con potencial económico y turístico y los barrios urbanos de la cabecera donde convergen dinámicas de todo tipo así como también su cercanía al puerto Waffe.

DIAGRAMA RELACIONES EXISTENTES DEL LOTE Y SU CONTEXTO

DELIMITACIÓN
III
37 viviendas
28 viviendas
65 viviendas en total 25,000 Área lote
Bahía Mar Caribe CabeceraPlaya Puerto Waffe L

DINÁMICAS ANFIBIAS

INUNDABLE (AGUA)

1. Viviendas palafíticas en zona de riesgo alto de inundación conectadas por pasarelas precarias, angostas y con poca elevación

RELLENO (TIERRA)

2 Viviendas en relleno conectadas por vías despavimentadas irregulares y deterioradas, ausentes de mobiliario y tratamiento vial

MIXTA (AGUA Y TIERRA)

3. Viviendas en relleno y palafíticas sobre la bahía. Zona de constante entrada y salida de embarcaciones con ausencia y deterioro de infraestructura marítima (ej: muelles).

DINÁMICAS URBANAS

SISTEMAS

MOVILIDAD OCUPACIÓN

Vivienda terrestre y palafítica

Vivienda terrestre

Vivienda relleno y palafítica con cercanía a la bahía

Vivienda palafítica

HÍDRICO

NATURAL

B

MEDIOS DE TRANSPORTE

Moto

Zona relleno

El más utilizado

A pie

Zona relleno Zona palafítica

Lancha

Zona relleno Zona palafítica

Bicicleta

Zona relleno

Viviendas sobre rellenos

Vía amplia despavimentada

Espacio público sin consolidar

Desechos en la vía: contaminación

Zona de relleno

Vía

1.

B) FORMAS DE MOVILIDAD

Como

estas

inestables

Pasarelas

ESTUDIO URBANÍSTICO B
Alto: 50cm Ancho: 1m 2. Plataforma
prevención a las inundaciones, las viviendas y pasarelas se elevan por medio de pilotes en madera. La pasarela principal funciona como articuladora de las viviendas. La pasarela de acceso a
son
y poco seguras. Zona palafítica

E) FORMAS Y ORGANIZACIÓN

Formas Organización

Las tipologías de vivienda en esta zona tienen características similares teniendo en cuenta los elementos y dinámicas de su contexto inmediato, variando el tamaño de las mismas. (En algunas varía su frente como se ve en la imagen derecha inferior) Cubiertas: 2 aguas

Las viviendas se distribuyen consecutivamente y se organizan a partir de un eje principal (pasarela principal) que a su vez se conecta con pasarelas de menor jerarquía las cuales articulan los accesos y por ende los zaguanes de las mismas

ESTUDIO URBANÍSTICO

E

ESTUDIO ARQUITECTÓNICO

D) FACHADAS DE LAS VIVIENDAS PALAFÍTICAS

Fachada frontal

Fachada trasera

Las viviendas tienen un frente de 5-6m de largo con 2 vanos, un zaguán y un acceso marcado con una puerta abatible en madera.

Fachada lateral derecha

La fachada trasera se abre: cuenta con una puerta de salida al ¨patio¨.

Fachada lateral izquierda

Sus fachadas laterales son cerradas En algunas viviendas se extiende la plataforma que puede funcionar como muelle para el tema de la pesca o para otras actividades como huertas, zona de ropas, entre otras.

D

ESTUDIO TÉCNICO

ESTRUCTURA

Las estructuras que se encuentran en la zona de estudio se dividen en dos: 1 En el caso de las viviendas en zona de relleno están conformadas por pórticos los cuales transmiten las cargas al suelo mediante cimientos ciclópeos 2. En la zona inundable, estos pórticos comúnmente de madera llegan hasta el piso convirtiéndose en pilotes con el fin de evitar la entrada de agua al interior de las viviendas Ambos tipos de vivienda son de un solo nivel ya que su estructura es bastante precaria y no es posible que soporte un mayor crecimiento en altura

Las cubiertas por su parte son ligeras y en su gran mayoría se utilizan tejas de zinc aunque esto representa un gran problema por las goteras y filtraciones que pueden existir a raíz de las constantes lluvias en el sector.

CERRAMIENTOS

Es evidente la predominancia que tiene la madera para la construcción de la arquitectura local

Los cerramientos de las viviendas en zonas de relleno son usualmente en mampostería y en algunos casos en madera En las viviendas palafíticas por temas de estructura y condiciones naturales es común la utilización de muros de madera constituidos principalmente por tablones verticales u horizontales.

ESTUDIO ESTÉTICO

DETALLES Y CELOSÍAS

En cuanto a los elementos complementarios a la vivienda como calados, celosías, barandas, mobiliario, puertas y ventanas se puede afirmar que son diseñados y hechos por ellos mismos en madera, construidos por medio de listones o tablones que se unen con puntillas. Estos permiten darle un valor a la vivienda desde los patrones ancestrales y culturales de las comunidades afro descendientes

COLOR Y FORMA

La forma típica de las viviendas del lugar es rectangular aunque los habitantes para suplir sus necesidades de crecimiento han anexado volúmenes a esta forma original, lo cual rompe con la identidad arquitectónica del territorio y sus construcciones pre existentes

Si se habla de las cubiertas, tanto en las viviendas palafíticas como en las de relleno, estas se disponen normalmente a 2 aguas, (permitiéndoles en pocos casos la recolección y aprovechamiento de agua lluvia), sostenidas por columnas perimetrales que logran generar espacios de circulación y permanencia (ej: zaguán o porche) frente a las viviendas

En términos de color, utilizan colores variados y vivos los cuales resaltan en medio de su entorno natural, creando una identidad única y propia en el lugar.

G

F) MATERIALIDAD: AUTÓCTONOS

La madera es la imagen simbólica de su arquitectura, donde se reflejan los colores y texturas generando una identidad única.

Viviendas

Estructura Cubierta

Oyeto (soporta la humedad) y mangle: vigas, columnas, palafitos

Caracolí: cerramientos

Láminas de zinc

Espacio público

Pasarela

Madera de mangle (tablas) y troncos que llegan a las playas que provienen de las corrientes del Atrato

MATERIALIDAD

IDENTIDAD ARQUITECTÓNICA

70 familias recibieron los insumos para pintar la fachada de sus viviendas.

MATERIALIDAD VS DETERIORO DEL ECOSISTEMA

Deforestación del mangle para usos productivos, como vivienda y carbón vegetal para las cocinas.

Relleno del manglar con escombros y empalizadas improvisadas para la construcción de vías, impidiendo el flujo normal de aguas en el mangle

Contaminación de los recursos hídricos por la vertiente de aguas residuales, generadas por las viviendas, a las que no se da ningún tipo de tratamiento.

ESTUDIO
F
1 2 3
“Muy agradecida por la pintura, doy gracias a Dios y a las empresas que me la entregan para embellecer mi casa que hacía tiempo no lo hacía”. Milena Cuesta, habitante del barrio Los Pescadores.
F) MATERIALIDAD

ESTUDIO MATERIALIDAD

PROBLEMÁTICAS

Informalidad en el sector

Falta de concientización

Rápido deterioro del ecosistema

DINÁMICAS EN RELACIÓN A LA MATERIALIDAD VS DETERIORO

Deforestación del mangle para usos productivos, como vivienda y carbón vegetal para las cocinas

Relleno del manglar con escombros y empalizadas improvisadas para la construcción de caminos, impidiendo el flujo normal de aguas en el mangle.

Contaminación de los recursos hídricos por la vertiente de aguas residuales, generadas por las viviendas, a las que no se da ningún tipo de tratamiento

F
1 2 3

TIPOLOGÍA

VIVIENDA ZONA RELLENO

1. Vía despavimentada.

2. Porche: tipo de corredor cubierto que se encuentra en la fachada principal sirviendo de espacio de transición y en el que se generan las relaciones sociales de la familia y la comunidad

3. Espacio social interior en donde se ubica la sala y el comedor y en algunos casos una zona productiva o comercial

4. La cocina se conecta con la sala, el comedor y la zona comercial o productiva

5. Baño: zona de higiene y aseo personal

6. Habitaciones: Zona privada de descanso

7. Patio: Zona de ropas y en algunos casos también utilizada como huerto

Circulación articuladora de los espacios interiores de la vivienda.

1
1 6 4 3 7 6 2 5

ESTUDIO FUNCIONAL

TIPOLOGÍA 1 VIVIENDA PALAFÍTICA

1. Pasarela principal que conecta las viviendas

2. Pasarela secundaria en condiciones precarias hecha con tablas de madera que conecta el zaguán de la vivienda con la pasarela principal

3. Zaguán: Es común en todas las viviendas. Espacio exterior de permanencia utilizado para el encuentro, la reunión e integración de las familias y sus vecinos

4. Espacio social interior en donde se ubica la sala y el comedor y en algunos caso una zona productiva o comercial.

5. La cocina es el corazón interior de la vivienda la cual conecta la sala y el comedor.

6. Habitaciones: Zona privada de descanso

7. Patio: En algunos casos, el baño y zona de ropas se encuentran en el exterior. También es utilizado como muelle en relación a la pesca

Circulación articuladora de los espacios interiores de la vivienda.

G 2 3 8 6 4 7 7
1
5

A) SERVICIOS PÚBLICOS

Agua Energía

Zona de Relleno

Actualmente cuenta con servicios básicos de acueducto aéreo, redes eléctricas y alcantarillado que suplen las necesidades básicas de los habitantes.

Zona Relleno Zona Palafítica

Algunas casas cuentan con pozos sépticos. Tv, internet y teléfono conectada formalmente.

Descargas se hacen directamente sobre el manglar y la mayor parte de las unidades sanitarias están localizadas por fuera de la vivienda. Energía compartida entre viviendas.

ESTUDIO SERVICIOS

Zona Palafítica

públicos evidenciándose en

indicadores:

Basuras

VI 50.2% no cuenta con servicio de aseo 26.0% no tiene este servicio. 86.1% no cuenta con conexión de alcantarillado. 86% no tiene conexión a acueducto. Acueducto Alcantarillado Energía
Existe una claro déficit de servicios
los siguientes

beneficiadas

red apoyada

barrios beneficiados Los Pescadores y El Progreso

de viviendas del barrio no contaba con servicio de acueducto y se abastecía de agua lluvia.

Dado que Turbo no cuenta con una cobertura completa de alcantarillado, el barrio Los Pescadores recibe las aguas residuales transportadas por los caños Puerto Tranca y Veranillo

DE QUÉ SE TRATA? 3.500 metros de
en postes $2.413 millones de inversión 500 familias
2
86%

ESTUDIO SERVICIOS

ACUEDUCTO AÉREO: 2019

“Llevamos 30 años viviendo dificultades, teníamos que ir al centro (del pueblo) o al barrio Gaitán en botes a traer el agua en baldes, y eso era todos los días la misma situación”.

“Ha sido de gran impacto para nuestras comunidades porque hacía treinta años estábamos sin el servicio de agua”

Cecarlos Martínez

VI
Cecarlos Martínez, presidente de la Junta de Acción Comunal BarrioLosPescadores
“Estos senderos peatonales también nos facilitan el acceso a las casas, antes eran peligrosos para los niños, los adultos mayores y los enfermos”
Cecarlos Martínez

ESTUDIO

VIVIENDA ZONA RELLENO

FOTOGRÁFICO G

VIVIENDA PALAFÍTICA

ESTUDIO FOTOGRÁFICO

ESPACIO PÚBLICO

G

ESTUDIO FOTOGRÁFICO

G NATURALEZA

ESTUDIO

ACCESIBILIDAD E INFRAESTRUCTURA MARÍTIMA

FOTOGRÁFICO G

POBLACIÓN PREDOMINANTE EN LA ZONA A INTERVENIR

PAISAS

CHOCOANOS

INDÍGENAS AFRO

BOLIVARENSES CARTAGENEROS

CUNA ZENÚ EMBERA MESTIZOS CORDOBESES

CARACTERÍSTICAS POBLACIÓN OBJETIVO

La población objetivo son familias víctimas del conflicto armado que se han asentado invasivamente en la zona litoral del barrio Los Pescadores sobre un ecosistema de manglar de alto valor ecológico.

Estas familias al ubicarse en un entorno anfibio, tuvieron que desarrollar 1 construcciones palafíticas y 2. viviendas en zona de relleno de basuras y escombros. En ambos casos son construcciones precarias con deficiencias en servicios públicos, altos niveles de pobreza, miseria y hacinamiento.

Labores

Familias desplazadas por la violencia

Estrato 1-2

Composición familiar 4-7 personas

Papá: Pescador Mamá: Oficios del hogar

Cuando llegaron los grupos armados a Turbo, no solo sembraron temor, sino que acabaron con tradicionesculturalespropiasdelascomunidadesnegrasdelPacífico

POBLACIÓN OBJETIVO

COLLAGE

III

Vivienda modular, flexible, progresiva.

Materialidad local

Identidad cultural, arquitectónica, constructiva y funcional: según formas de habitar.

Espacios de integración e interacción vecinal.

Espacios comerciales para potenciar economía local y sustento propio. Accesibilidad fluvial (muelle) y terrestre (pasarela)

DETERMINANTES DE DISEÑO

Estructura elevada del suelo (evitar inundaciones)

Cubiertas inclinadas + aleros: protección solar y lluvias

Recuperación del manglar y su relación con la arquitecturaOrientación solar

Sostenibilidad: Tierra (productividad), agua (reutilización) y energía (paneles solares)

Diseño pasivo: Confort: Ventilación cruzada e iluminación natural (aberturas)

XVIII

CRITERIOS DE ANÁLISIS

Contexto problema Localización Año Área Arquitecto

MATERIALIDAD CONSTRUCCIÓN

Utilización e integración de materiales locales y elementos que potencian su adaptación al contexto y la identidad del lugar.

CONTEXTO 1 2

Bogotá Colombia

Se evalúan las técnicas constructivas empleadas para la realización del proyecto.

BIOCLIMÁTICA

Estrategias aplicadas al diseño arquitectónico para lograr confort con el mínimo impacto ambiental

PRODUCTIVIDAD

Actividades que permitan suplir las necesidades económicas de cada familia

FLEXIBILIDAD-PROGRESIVIDAD

Posibilidades de crecimiento y adaptación espacial y constructiva según las necesidades de los habitantes

1 2 3 4 5 6

REFERENTES III

MAPA REFERENTES

HANOI VIETNAM

5

ETIOPÍA ÁFRICA

3

Prototipo de vivienda rural sostenible y productiva en Colombia

La vivienda se compone por un núcleo básico unido por 2 habitaciones, servicios (baño, cocina, lavado, almacenamiento) y área productiva.

Localización: Bogotá-Colombia

Arquitecto: Sociedad Colombiana de Arquitectos FP Área: 64.8 m²

Año proyecto: 2019

REFERENTE

La estufa ecológica es el centro calórico de la unidad, dispositivo que permite reunión y protección de la vida interna.

1 III RENDERS

MATERIALIDAD Y CONSTRUCCIÓN

Bloque de tierra comprimida BTC

• Tejas de polialuminio reciclado

• Plástico de invernadero

• Muros en seco madera

Se utilizan materiales asociados a técnicas de construcción tradicional, lo que permite involucrar a la comunidad en la construcción e instalación de la unidad favoreciendo la sostenibilidad social y económica del proyecto

PRODUCTIVIDAD

Huerta y ciclo de compostaje: Aporta a la seguridad alimentaria de la familia

Espacios de almacenamiento o superficies amplias para actividades sociales o espacios de trabajo.

Economías alternativas que fortalecen el desarrollo comunitario.

REFERENTE 1

BIOCLIMÁTICA

Se orienta hacia el sur mediante una gran ventana que funciona como zona de captación de calor regulable, permite la iluminación natural y vincula la casa al paisaje

Se cierra al norte con muros de BTC, material de gran capacidad de inercia térmica.

La disposición de un núcleo compacto de servicios protege los espacios del frío del norte

FLEXIBILIDAD-PROGRESIVIDAD

La envolvente a doble altura crea un espacio en segundo nivel disponible para el crecimiento y transformaciones futuras.

III

PROTOTIPO DE VIVIENDA RURAL EN COLOMBIA

Localización: Valle del Cauca Colombia

Arquitecto: Ana Elvira Vélez

Año proyecto: 2025

La propuesta es sinónimo de COLECTIVIDAD ya que además de plantear un prototipo de vivienda rural sostenible, resuelve 3 escalas mediante espacios de reunión e integración comunitaria: espacio público, equipamientos, zonas productivas como huertas urbanas y ganadería

El proyecto se define en 3 escalas:

1. Aldea = Barrio

2. Vecindad = Agrupación

3. Parcela = Unidad (casa + modulo productivo + suelo de desarrollo agrícola)

REFERENTE

2 III RENDERS

MATERIALIDAD Y CONSTRUCCIÓN

El proyecto utiliza la Madera como material predominante para columnas, vigas, viguetas y correas Además es usada como acabado de piso, mobiliario, puertas y persianas o rejillas.

Para la cimentación se utiliza Concreto mediante zapatas aisladas y pilotes de concreto reforzado unidos a la plataforma.

ORGANIZACIÓN ESPACIAL

Se recalca 1 la importancia del porche, un espacio de transición que permite una relación con el paisaje y los habitantes y 2 que el interior se organiza a partir de un espacio central social que conecta las habitaciones

REFERENTE

BIOCLIMÁTICA

El proyecto se adapta a las condiciones climáticas del lugar mediante elementos móviles, la cubierta y la estructura para lograr una correcta iluminación natural, ventilación cruzada y efecto chimenea.

FLEXIBILIDAD-PROGRESIVIDAD

2 III

PROBLEMA-PROPUESTA

Localización: Etiopía África

Arquitecto: ESTUDIANTES del Experimental Architecture Universidad de la Bauhaus

Año proyecto: 2015

Tiempo de construcción: 2 semanas Área: 86m2

PROBLEMA

Déficit cualitativo y cuantitativo de vivienda. Aumento poblacional y crecimiento urbano acelerado en África. Estimación de población en el año 2025: 70%

PROPUESTA

Prototipo de vivienda basado en:

• La sostenibilidad económica, cultural y social

• Diseño modular

• Autoconstrucción

• Resiliencia

• Modos de habitar

• Materialidad local

REFERENTE

SICU

IMÁGENES DEL PROYECTO

3:
III

MATERIALIDAD Y CONSTRUCCIÓN

Utilización de elementos prefabricados para acortar tiempos de construcción. La obra se hizo de manera Participativa por los estudiantes y la población local.

• Marcos de eucalipto, paneles prefabricados de paja, caucho, láminas de metal, madera comprimida

• CONCRETO: Cimentaciones

• MADERA: Estructura y cerramientos

PRODUCTIVIDAD

Se piensa en una huerta a diferentes niveles que sobresale de la fachada para recibir luz solar

Elevación del suelo: inundaciones y con posibilidad de una zona social y comercial en el primer nivel. Ventilación cruzada

Aperturas: salida aire caliente

Aleros: sombra y lluvias.

REFERENTE 3 III BIOCLIMÁTICA

FLEXIBILIDAD-PROGRESIVIDAD

El proyecto se basa principalmente en generar un diseño capaz de crecer hasta 24 módulos.

PROBLEMA Y SOLUCIÓN

En Vietnam, los fenómenos de la naturaleza son graves y diversos: tormentas, inundaciones,

tierra, entre muchos otros. Por eso, se plantea un refugio habitable,

sostenible, flexible, progresivo y replicable

contexto de dichas características.

deslizamientos de
productivo,
adaptado al
Localización: Hanoi-Vietnam Arquitecto: H&P Architects Área: 44 m² Año proyecto: 2013

REFERENTE

IMÁGENES DEL PROYECTO

4: CASA BB III

MATERIALIDAD Y CONSTRUCCIÓN

El bambú es el material predominante de la casa por ser abundante en la región y por ser versátil, durable y tradicional. Marcos, cubierta y muros se disponen entre pilotes de acero que evitan las constantes inundaciones de la zona. Piezas de bambu 8-10cm y 4-5 cm (diámetros y 3.3m o 6.6 m (largo) con pernos y estructuras colgantes.

PRODUCTIVIDAD

Se implementa un sistema de huerta vertical utilizando piezas de bambú horizontales

REFERENTE 4: CASA BB III

BIOCLIMÁTICA

Estructura palafítica permite alejarse de animales y humedad, el flujo de aire y enfrentar una inundación de 3m de altura Así mismo, la cubierta y las aberturas permiten la entrada de luz natural y una buena ventilación natural

Recolección y reutilización de agua lluvia por medio de la cubierta y tanques de almacenamiento

FLEXIBILIDAD-PROGRESIVIDAD

El espacio propuesto es multifuncional, es decir puede funcionar como casa, escuela, centro médico o centro comunitario y se puede ampliar si es necesario.

Proceso que trabaja con y para las personas dando respuesta a sus necesidades vitales y posibilidades.

Entender la vivienda no como un objeto que se termina en un momento determinado, sino como un proceso que va transformándose y adoptando diferentes configuraciones espaciales a lo largo del tiempo.

Esta visión integral de la vivienda permite mejorar la accesibilidad, habitabilidad y bienestar social de las personas en los espacios que habita con proyección en el tiempo.

F CONCEPTO

CONCEPTO DE VIVIENDA XIII

ESTRUCTURACIÓN DEL CONCEPTO DE VIVIENDA

M F P B S

PRINCIPIOS

CONCEPTO DE VIVIENDA

ACTIVIDADES

P H S

L

Social Servicios Productivo y comercial Habitaciones Modularidad Flexibilidad Progresividad Bioclimática S
Libre
Sostenibilidad

DEFINICIÓN

1MODULARIDAD

Módulos: Espacios de dimensiones iguales que funcionan de manera independiente y que al agruparlos crean relaciones entre ellos formando una unidad habitable Este permite mayor libertad en la organización interna en este caso de la vivienda y logra ser una ventaja en términos constructivos.

A B C D

Volumen base Cuadrícula

Descomposición modular

Módulo constructivo y funcional.

F

MODULARIDAD

MEDIDAS DE LOS MÓDULOS A TRABAJAR

2.5m

3.0m

3.0m

XIII

INTERRELACIONES ESPACIALES

MÓDULOS SOCIALES

SALA

Espacio que debe ubicarse cerca al acceso y unido al módulo del comedor y de la cocina para permitir actividades de reunión e integración.

Además debe contar con mobiliario adecuado como sillas, sofás y una mesa de centro

COMEDOR

Espacio de encuentro Las medidas de la mesa y la cantidad de sillas, depende del número de personas que habiten la vivienda.

F

BAÑO Y ZONA ROPAS

MÓDULOS XIII

MÓDULO DE SERVICIOS

Se recomienda que la cocina y el baño formen parte de un mismo módulo ya que requieren acometidas sanitarias.

COCINA

Espacio semipúblico cerrado donde además de ser una zona de procesamiento, conservación, lavado, preparación y cocción de alimentos, es el lugar común de encuentro de los habitantes durante el día y la noche

Se recomienda que este módulo se disponga estratégicamente para que se conecte con las actividades sociales: sala y comedor pero además con el módulo de productividad, comercial y libre (patio: huerta).

Zona de aseo personal: Ducha, sanitario y lava manos.

Zona de ropas: zona de limpieza, secado y almacenamiento de ropa.

Es importante que se separen las diferentes zonas y actividades en un mismo espacio con el fin de que varias personas puedan hacer uso de este de manera simultánea

F

MÓDULOS COMERCIAL Y PRODUCTIVO

Pueden funcionar como módulos independientes o pueden unificarse al ser actividades complementarias

MÓDULO PRODUCTIVO

Espacio donde se fabrican productos para autoabastecerse o comercializarlos Pueden ser áreas de postcosecha, cuartos para insumos y herramientas, talleres, depósitos etc.

Es fundamental ubicarlos cerca al acceso de la vivienda con el fin de permitir la fácil entrada y salida tanto de suministros como de eventuales clientes

MÓDULO COMERCIAL

Espacio que funciona como atención al público para la venta de productos o servicios Puede contar con usos como tiendas, venta de comida, peluquerías etc que le aporten significativamente a la economía de cada familia

Es necesario mobiliario de almacenaje y de descanso para su uso.

MÓDULO HABITACIONES

Es el espacio más íntimo y de descanso. Se clasifican en 2 tipos: habitación principal con cama doble (pareja) y habitaciones secundarias con camas sencillas. Dependiendo del núcleo familiar puede estar compuesta por uno, dos o más dormitorios

Debe aislarse del frente de la vivienda o de las actividades que generen ruido

MÓDULOS XIII

MÓDULO HABITACIÓN Y LIBRE

MÓDULO LIBRE

Espacio de libre uso de acuerdo con medidas adaptables a las necesidades de los habitantes: Puede funcionar como:

Huerta

Zaguán

Porche

Muelle

Es una zona semi abierta o abierta para permitir una correcta entrada de luz y ventilación.

1.
2.
3.
4.

DEFINICIÓN

FLEXIBILIDAD

Diversas opciones de división entre los espacios Brinda la posibilidad de quitar o poner elementos con el fin de modificar los espacios de acuerdo a los requerimientos del usuario. Esta estrategia puede generar diferentes espacialidades y relaciones que permiten el buen funcionamiento de las actividades propuestas.

F 2
1 2
Total Sin apertura

FLEXIBILIDAD XIV

Existen TIPOS DE APERTURA entre módulos, esto quiere decir que al adicionar o sustraer elementos se puede generar diferentes espacialidades y relaciones sin modificar o alterar el buen funcionamiento de las actividades propuestas.

3 4Parcial Mínima

C H

S B

La apertura total logra crear espacios más amplios con circulaciones fluidas y relaciones visuales importantes. En este caso, el comedor y la sala necesitan esta apertura por su carácter social.

Sin apertura significa generar un cerramiento total entre módulos con el fin de separar o aislar dos actividades En este caso, el baño y las habitaciones estarían divididas por un muro teniendo en cuenta que la zona de servicios está unida a las áreas sociales en donde se produce una constante interacción entre los habitantes.

F

FLEXIBILIDAD XIV

TIPOS DE APERTURA

C L

P C

La apertura mínima se puede dar a partir de un acceso pero además de un muro que divide los espacios En este caso, el módulo productivo se conecta con el módulo comercial permitiendo que se pueden dar 2 actividades diferentes pero con la posibilidad de articularse y complementarse cuando sea necesario.

La apertura parcial se puede dar mediante muros bajos, antepechos, celosías o ventanas interiores. En este caso, el módulo comercial puede abrirse hacia el zaguán para la venta de productos o servicios. Sin embargo, este puede tener una apertura mínima al ser una tienda, cafetería o demás que requiera la entrada de insumos o clientes

PROGRESIVIDAD

Se piensa en la idea de adicionar módulos en función de las necesidades y posibilidades futuras de los habitantes que residen en la vivienda.

Algo muy importante para facilitar la progresividad es la materialidad y estructura con que se va a construir la vivienda ya que esta le debe permitir al habitante hacer modificaciones.

F 3

PROGRESIVIDAD

XV

PROGRAMA

F ORGANIGRAMA SEGÚN MODOS DE HABITAR

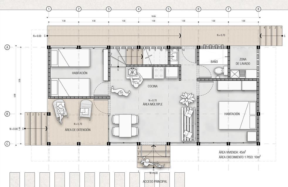
Se plantea un acceso principal articulado a la pasarela con una circulación central que conecta la zona privada (habitaciones). la zona social (zona comercial y productiva, sala, cocina y comedor), la zona de servicios (baño y ropas) y el patio trasero en donde se ubica una zona de cultivo y un muelle que permite la accesibilidad fluvial a la vivienda.

PASARELA

ACCESO PRINCIPAL

ZAGUÁN

COM. Y/O PROD

COMEDOR

PATIO: ZONA CULTIVO Y ACCESO: MUELLE

HABITACIÓN

HABITACIÓN 2

F
+
SALA
SERVICIOS

TIPOLOGÍAS VIVIENDA ANFIBIA

ZONIFICACIÓN Y POSIBILIDADES DE AGRUPACIÓN

VIVIENDA DOS BARRAS

VIVIENDA LINEAL

VIVIENDA 2 VOLUMENES

VIVIENDA COMPACTA

VIVIENDA EN U

VIVIENDA EN L

VIVIENDA EN Z

VIVIENDA EN H

A través del crecimiento de la unidad habitacional, se pueden generar diferentes tipologías en el territorio. Como se observa, el desarrollo progresivo puede crear diferentes modalidades de crecimiento relacionadas al programa y a la funcionalidad requerida Es importante que a la hora de aplicar cualquiera de estas configuraciones la identidad arquitectónica y cultural de Turbo y las condiciones bioclimáticas de orientación, asoleación, ventilación y confort térmico o lumínico sean tenidas en cuenta

XVIII

SEPARACIÓN

Y RELACIONES FORMALES

EXTRUSIÓN CENTRAL

BIFURCACIÓN PÚBLICO PRIVADO

F ESTRATEGIAS
ÁREA INTERIOR 63M2 ZONA PRIVADA+ZONA SOCIAL ÁREA EXTERIOR 18M2 ZAGUÁN+HUERTA+ MUELLE CAPACIDAD 6 PERSONAS

TIPOLOGÍA EN H

PLANTA ARQUITECTÓNICA

XVIII

Y RELACIONES FORMALES

SEPARACIÓN EXTRUSIÓN LATERAL

CENTRALIDAD

F ESTRATEGIAS
ÁREA INTERIOR 63M2 ZONA PRIVADA+ZONA SOCIAL ÁREA EXTERIOR 28M2 PORCHE+HUERTA +MUELLE CAPACIDAD 6 PERSONAS

TIPOLOGÍA EN U

PLANTA ARQUITECTÓNICA

XVIII

SEPARACIÓN

Y RELACIONES FORMALES

DESLIZAR

ESPACIALIDADES EXTERIORES

F ESTRATEGIAS
ÁREA INTERIOR 54M2 ZONA PRIVADA+ZONA SOCIAL ÁREA EXTERIOR 18M2 ZAGUÁN+PATIO (HUERTA+MUELLE) CAPACIDAD 4 PERSONAS

TIPOLOGÍA 2 BARRAS

PLANTA ARQUITECTÓNICA

XVIII

F PLANTA ESTRUCTURAL

Pórticos en madera

TIPOLOGÍA 2 BARRAS

Pendiente 20%

PLANTA DE CUBIERTAS

Pendiente 25%

XVIII
F ETAPAS DE CONSTRUCCIÓN ETAPA 2: 3 MÓDULOS ÁREA: 27 M2 • SERVICIOS • COMEDOR • HABITACIÓN 1 +PASARELA DE ACCESO ETAPA 1: A) PRELIMINARES: • CASETA • LIMPIEZA DEL LOTE • NIVELACIÓN-REPLANTEO B) CIMENTACIÓN 3 MÓDULOS • EXCAVACIÓN • PILARES • PRIMERAS UNIONES 25% 45%

ETAPA 3:

6 MÓDULOS ÁREA: 45 M2

SERVICIOS

HABITACIÓN 1

COMEDOR

LIBRE: HUERTA + MUELLE

COMERCIAL PRODUCTIVO

ZAGUÁN

ETAPA 4:

8 MÓDULOS ÁREA: 72 M2

SERVICIOS

HABITACIÓN

COMEDOR

LIBRE: HUERTA + MUELLE

COMERCIAL PRODUCTIVO

ZAGUÁN

SALA

HABITACIÓN

VIVIENDA DOS BARRAS

PROGRESIVIDAD EN LA VIVIENDA XVIII
1 •
2 70% 100%

SISTEMA CONSTRUCTIVO

CUBIERTA

A. Cubierta teja termoacústica de 3mm Pendiente 25%

B. Cielo raso tejido en hojas secas de palma

C. Correas: entramado tablones aserrados madera Sande

CERRAMIENTOS

D. Rejilla en madera inmunizada

E. Ventana abatible con persianas en madera Chanul F. Puerta corrediza en madera Chanul G. Muros: Tablas horizontales

SISTEMA ESQUELETAL

H. Columnas 0.15x0.15mx2.50 en madera sande I. Vigas 0.15x0.20m J. Viguetas 0.10x0.15m

PISO

K Piso exterior: Madera Sajó L. Piso interior: Madera Sandé M Piso zona servicios en cerámica

N. Zona de cultivo

CIMENTACIÓN

O. Vigas madre: 0.15x0.30m en madera chachajo

P. Viguetas: 0.10x0.20m en madera Sande

Q. Pilares en madera Nato, 3m de profundidad

M N K L I H J D G F E O P Q A B C

ELEMENTOS DE DISEÑO

SISTEMA DE VENTANAS

ABATIBLECORREDIZA

SISTEMA DE PUERTAS ABATIBLECORREDIZA

XVIII
3.20m 2.5m 1.35m 1.25m 0.90m 2.0m

F DURABILIDAD

Para el proyecto se eligieron materiales con gran capacidad para resistir condiciones ambientales y de deterioro para evitar costos de mantenimiento a largo plazo.

MADERA NATO CIMENTACIÓN

• Madera con mucha fibra

• Resistente al agua: constantes inundaciones.

• Costo asequible

TEJA

T.ACÚSTICA

CUBIERTA

• Impermeable y resistente

• a las constantes lluvias.

• Aislante térmico y acústico

• Económica y estética

Fácil instalación

BALDOSA COCINA BAÑO

• Higiénica

• Impermeable

Fácil limpieza

Estética

Sostenible

MATERIALIDAD

ACCESIBILIDAD E IMPACTO AMBIENTAL

Se utilizaron materiales locales como la madera y la palma para garantizar su asequibilidad, reducir costos y fortalecer la identidad arquitectónica de las comunidades

SAJO PISO EXTERIOR CHANUL PUERTAS Y VENTANAS

GUAYACÁN MOBILIARIO

MADERA INMUNIZADA REJILLAS CALADOS

SANDE

COLUMNAS, VIGAS, VIGUETAS, CORREAS, PISO INTERIOR

HOJAS DE PALMA CIELO RASO

XVIII

F CORTE POR FACHADA 1

Canaleta en U: Lámina galvanizada, Calibre 18

Bajante de agua lluvia

Teja termoacústica

Cielo raso hojas de palma

Correas de madera, 11cm x 8cm

Alfardas de madera

Celosía en madera inmunizada, 40x45mm

Viga de borde en madera, 0.20x0.15m

Viguetas de madera 0.10x0.15m

Ventana abatible en madera con persianas

Marco de ventana en madera

Alfajía de aluminio con gotero

Listón horizontal en madera, 40x50 mm

Cerramiento tablones de madera horizontales

Columna en madera, 0.15x0.15x2.50m

Platinas metálicas en acero galvanizado

Vigueta en madera, 0.10x0.15m

Viga madre en madera, 0.15x0.25m

Nivel de inundación

Pilares en madera, 0.15x0.15x3m

D1

D2

CORTE FACHADA + DETALLES

D1

Cubierta termoacústica

Aislante

Cielo raso hojas de palma

Correa de madera, 11cm x 8cm

Alfarda de madera, 0.10x0.15m Celosía en madera inmunizada, 40x45mm

Viga de borde en madera, 0.20x0.15m

Tornillos autoperforantes

D2

Cerramiento tablones de madera Listón horizontal en madera, 40x50 mm

Columna en madera, 0.15x0.15x2.50m

Platina metálica en acero galvanizado

Pasadores, anclajes de acero inoxidable tornillos punta broca

Refuerzo metálico, aislar la columna por humedad

Piso interior en madera

Vigueta en madera, 0.10x0.15m

Viga madre en madera, 0.15x0.25m

Tornillos autoperforantes

DETALLES

XVIII

F UNIÓN ESQUINERA, COLUMNA – 2 VIGAS

F UNIÓN PILAR - COLUMNA

DETALLE DE UNIONES

UNIÓN VIGA - VIGUETAS

UNIÓN EN T: VIGA

XVIII

4BIOCLIMÁTICA

Es fundamental diseñar y construir teniendo en cuenta las condiciones climáticas del lugar y aprovechar los recursos naturales disponibles para disminuir en lo posible el impacto ambiental y el consumo de energía.

Es necesario establecer estrategias en relación a la ventilación, iluminación, manejo de aguas y asoleamiento con el fin de garantizar un confort apto durante la vida útil de la vivienda.

F DEFINICIÓN
+ + + + Tº

BIOCLIMÁTICA

CONDICIONES METEOROLÓGICAS DEL LUGAR

Las estrategias bioclimáticas buscan que las viviendas tengan una estructura de:

Con materiales que se adapten en el tiempo a las circunstancias ambientales del lugar tales como erosión e inundación

BAJO COSTO ÓPTIMA CALIDAD BAJO MANTENIMIENTO LARGA DURACIÓN

Las estrategias propuestas en este proyecto consideran las condiciones específicas de Turbo en términos de:

TEMPERATURA VIENTOS LLUVIAS HUMEDAD

95 98% Humedad alta Entre 24ºC32 ºC Velocidad promedio: 5.2 km/h Predominancia dirección Suroeste

210mm/mes 7.0 mm/día Lluvias constantes

XVIII
1 2 3 4

CRUZADA

Es importante no sólo la orientación de las viviendas para la circulación correcta de la brisa al interior, sino también que existan dispositivos en la fachada y estrategias que permitan que el aire fresco entre y el aire caliente salga. Para esto, las ventanas, puertas y celosías se enfrentan en fachadas opuestas y se orientan con el viento predominante, en el sentido suroriental.

1. REJILLAS

Además de tener un valor cultural, ancestral y estético, permiten la circulación continua de aire manteniendo los espacios frescos, permeables y ventilados

3.VENTANA ABATIBLE

Funcionan como protección solar y acústica y ahorrador energético Generan una ventilación cruzada con las puertas corredizas propuestas

2.CUBIERTA

El desfase de la cubierta crea un espacio libre sobrante que funciona como salida del aire caliente

4. PUERTA CORREDIZA

Las lamas son un obstáculo ante la radiación solar Estas además de brindar privacidad, permiten el flujo de aire contante

F VENTILACIÓN
1 2 3 4

BIOCLIMÁTICA

ORIENTACIÓN

La implantación de las viviendas determina el funcionamiento de los espacios, es decir si son fríos o cálidos, dependiendo del clima y las condiciones geográficas del lugar

Según el IDEAM, el viento predominante de Turbo viene del sur. Por esto, la localización de aperturas para ventilación de espacios se ubican predominantemente en este costado.

XVIII

F ASOLEACIÓN

Colombia se encuentra en el trópico, es decir el sol sale por el oriente y se oculta por el occidente con una inclinación al sur en Diciembre. En ese sentido, se recomienda que las viviendas se ubiquen a lo largo del eje oriente – occidente para evitar altas temperaturas.

Junio

ABSTRAER

Diciembre

FRAGMENTAR EXTENDER

Se ABSTRAE la forma de las cubiertas de la vivienda tradicional del barrio Los Pescadores

Se FRAGMENTA la cubierta para generar espacios de ventilación e iluminación al interior

Se EXTIENDEN las cubiertas creando ALEROS para prevenir la radiación directa en los espacios internos de las viviendas en una temporalidad de 9am 3pm

Cocina Iluminación alta 200 Luxes

Privado-Social Iluminación Moderada 100 Luxes

BIOCLIMÁTICA

ILUMINACIÓN

Baño Iluminación Moderada 100 Luxes

ARTIFICIAL: ENERGÍA

Productivo-Comercial Iluminación Alta 200 Luxes

La cubierta cuenta con paneles solares capaces de transformar la energía solar en energía eléctrica, garantizándole una correcta iluminación artificial a la vivienda y el calentamiento de agua Para esto, es fundamental que se tengan en cuenta las siguientes características de luz según el uso de cada módulo

Luz blanca: servicios, productivos y comerciales Luz amarilla: módulos privados y sociales

ILUMINACIÓN NATURAL

El desfase de la cubierta y la apertura de las fachadas de los módulos permite mayor iluminación natural al interior de las viviendas a cualquier hora del día

XVIII

F MANEJO DE AGUAS LLUVIAS

Las lluvias en el municipio son muy frecuentes, por lo tanto se recomienda que las viviendas cuenten con un TANQUE ELEVADO DE 1000 LITROS que logre reutilizar el agua lluvia para riego y abastecer el módulo de servicios (lavamanos de la cocina y del baño, el sanitario y la ducha)

TURBO DÍA

Requiere

PROCESO DE RECOLECCIÓN

La cubierta a 2 aguas funciona como un sistema de recolección de agua lluvia, la cual es captada por una canaleta metálica de pendiente uniforme A esta va unido un tubo de conducción para dirigir el agua al tanque elevado y finalmente distribuirla para uso doméstico y consumo humano.

1 Persona 100 litros/día
6 Personas 600 litros/día OFERTA
7.0 mm x ÁREA CUBIERTA 124,9 m2 = DÍA 874 Litros

DE QUÉ SE TRATA?

BIOCLIMÁTICA

BAÑO SECO

Se trata de un baño que no utiliza agua. Funciona a través de la fermentación aeróbica, es decir, convierte los restos fecales en compost y los degrada

La imposibilidad de utilizar pozos sépticos o disponer de un sistema de alcantarillado obliga a las viviendas a manejar su saneamiento básico mediante la implementación de baños secos Lo anterior solucionaría la vulnerabilidad sanitaria que vive el sector actualmente

XVIII
F RENDER 1

IMAGEN DEL PROYECTO

REPRESENTACIÓN VISUAL XVIII
F

REPRESENTACIÓN VISUAL

RENDER VIVIENDA EN U

XVIII

PORCHE

F RENDER

REPRESENTACIÓN VISUAL

MÓDULO LIBRE

XVIII

HABITACIÓN PRINCIPAL

F RENDER

REPRESENTACIÓN

MÓDULO PRIVADO

VISUAL XVIII
F RENDER HABITACIÓN SECUNDARIA

REPRESENTACIÓN

MÓDULO PRIVADO

VISUAL XVIII

MÓDULOS SOCIAL Y COMERCIAL

F RENDER

REPRESENTACIÓN

RENDER PRODUCTIVIDAD

VISUAL XVIII

REFERENCIAS

• file:///D:/Alejandro/descargas/DOCUMENTO%20PROYECTO%20DE%20GRADO%20%20NATALIA%20CASTRO.pdf

• https://www.turbo antioquia.gov.co/Transparencia/BancoDocumentos/Zonificaci%C3%B3n%20de%20usos%20del%20suelo%20urbano.pdf

• https://la.network/mejoramiento la calidad vida uraba depende tambien los servicios publicos/

• https://www.turbo antioquia.gov.co/Transparencia/BancoDocumentos/Equipamientos%20espacios%20p%C3%BAblico%20y%20sistema%20vial.pdf

• file:///D:/Alejandro/descargas/2020MariaCamilaSalazar2.pdf

• file:///D:/Alejandro/descargas/2020MariaCamilaSalazar1.pdf

• https://issuu.com/juliandavidgomezescudero/docs/turbo_anfibio_pdf_web

• https://www.eafit.edu.co/centros/urbam/articulos publicaciones/Documents/entreelaguaylatierraweb.Turbo.pdf

• https://www.cioh.org.co/meteorologia/Climatologia/Climatologia%20Turbo.pdf

• https://issuu.com/macaquiar58/docs/vivienda_rural_2021 03 compressed

• https://la.network/uraba la equis mapa del tesoro/

• https://issuu.com/pnudcol/docs/perfil_productivo_turbo

• https://ctpantioquia.co/subregion de uraba/

• https://issuu.com/urbameafit/docs/pmi p1 conportada/29

• https://noticiasuraba.com/historia de uraba/4432/

• http://polux.unipiloto.edu.co:8080/00003920.pdf

• https://turboantioquia.micolombiadigital.gov.co/sites/turboantioquia/content/files/000205/10223_secretaria agricultura.pdf

• https://www.turbo antioquia.gov.co/MiMunicipio/Paginas/Pasado Presente y Futuro.aspx

• https://issuu.com/liaduarte/docs/1prototipo_de_viviendas_rurales_res

• https://issuu.com/cartillasinvestigacion/docs/vivienda_palaf_tica_sostenible_en_turbo

• https://www.eafit.edu.co/centros/urbam/articulos publicaciones/Documents/entreelaguaylatierraweb.Turbo.pdf

• https://prevencionviolencia.univalle.edu.co/observatorios/antioquia/turbo/archivos/perfil_turbo.pdf

• https://escalalatina.com//ilustradas/

• https://www.casmujer.com/index.php/2019/10/21/en turbo los desplazados de la operacion genesis viven sobre la basura/

• https://colaboracion.dnp.gov.co/CDT/Desarrollo%20Territorial/Fichas%20Caracterizacion%20Territorial/Antioquia_Turbo%20ficha.pdf

• file:///D:/Alejandro/descargas/2020AndresFelipeOrozcoMedina.pdf

• https://repository.usta.edu.co/handle/11634/21578

• https://www.camaramedellin.com.co/Portals/0/Biblioteca/Estudios economicos/cadenas productivas regionales/20 3Perfil%20Uraba_Oct14.pdf?ver=2019 03 01 095036 403

• http://ipc.org.co/index.php/regiones/uraba antioqueno/

• https://viajandox.com.co/antioquia/turbo canton C192

• file:///D:/Alejandro/descargas/DianaCarolina_MartinezFranco_MariaClaudia_PenaArana_2020.pdf

• http://docplayer.es/147787088 Habitar sobre el manglar propuesta de vivienda productiva y progresiva turbo antioquia.html

• http://docplayer.es/147787088 Habitar sobre el manglar propuesta de vivienda productiva y progresiva turbo antioquia.html

• https://issuu.com/juliandavidgomezescudero/docs/turbo_anfibio_pdf_web

• https://repository.usta.edu.co/handle/11634/30542

• https://repository.ugc.edu.co/bitstream/handle/11396/5586/monografia_07 12 03%20%282%29.pdf?sequence=1&isAllowed=y

• https://cpnaa.gov.co/wp content/uploads/attachments/Presentaci%C3%B3n%20CONVIVE2.pdf

• https://es.wikiloc.com/rutas senderismo/pescadores turbo 60743785/photo 40473665

• file:///D:/Alejandro/descargas/2019.SANTIAGORAMIREZCA%C3%91AS.pdf

• https://es.calameo.com/read/005626407945f9a9362d1

• https://www.radionacional.co/cultura/en turbo tambien se vive de la pesca artesanal

• http://www.humboldt.org.co/images/pdf/naturaleza_urb/4 infraestructura urbana ecologica.pdf

• https://www.grupo epm.com/site/museodelagua20viejo/manglares#:~:text=La%20importancia%20del%20ecosistema%20manglar,azufre%20o%20sulfuro%2C%20purificando%20el

• https://issuu.com/isabelbasombrio/docs/lab_ii_libro_manglar_final

• http://polux.unipiloto.edu.co:8080/00003973.pdf

• https://bibliotecadigital.udea.edu.co/bitstream/10495/14040/1/CalderonCristhian_2017_ConocimientoTradicionalPescadores.pdf

• https://es.slideshare.net/UrabaAntioquia/pmi urab desarrollo tcnico de las acciones y criterios de ordenamiento asociados

Turn static files into dynamic content formats.

Create a flipbook
Issuu converts static files into: digital portfolios, online yearbooks, online catalogs, digital photo albums and more. Sign up and create your flipbook.
ENTREGA SEGUNDO CORTE by alejoborrero1998 - Issuu