UPDATED_PORTFOLIO

Page 1


With a background in Design, Sociology, and Urban Planning, I bring a dynamic, hands-on approach to architecture. I actively contribute to core studio teaching and lead projects in the fabrication lab, guiding innovative work that merges creativity and precision. Born in Manhattan, raised in Miami Beach, and with experience in Los Angeles and New York, I thrive on tackling any challenge.

Master

ODA Architecture

POST MARKET PARADIGM

LAGNIAPPE

Common Dialect

OUT FALL CANAL

PERIURBAN FIRESTATION

Gaiascopes

Summer | 2024

May. | 2025 | French Quarter NOLA

april. | 2024 | New Iberia

Dec. | 2023 | Warehouse district

Dec. | 2024 | LakeFront New Orleans

June | 2025 | Maui, HI

Nov. | 2024 | Scottsdale AZ

Summer At ODA

Located in Tribeca, New York, I built and fabricated a 3D model of the Passo Gigena Sculpture. The model was crafted using curved 1/16” milky acrylic (2) and projected powdered sandstone (1) materials, highlighting the incredible potential of these innovative printing techniques. Measuring approximately 7 inches tall and 4 feet wide (3), the piece demonstrates the interplay of scale, precision, and material experimentation.

Thesis | Post Market Paradigm

Adaptive Reuse of the St. Bernard Market, New Orleans

Post-Market Paradigm reimagines the historic St. Bernard Market as a vibrant civic anchor through adaptive reuse. The design critiques Western preservation doctrines and proposes a contemporary, culturally attuned strategy that embraces New Orleans’ layered identity. Through sensitive interventions in light, material, and program, the market is revived as a “third space” — a hub for social, cultural, and economic exchange that reconnects the building to its surrounding community.

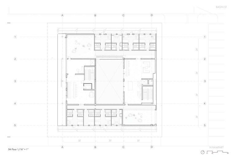
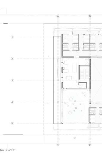
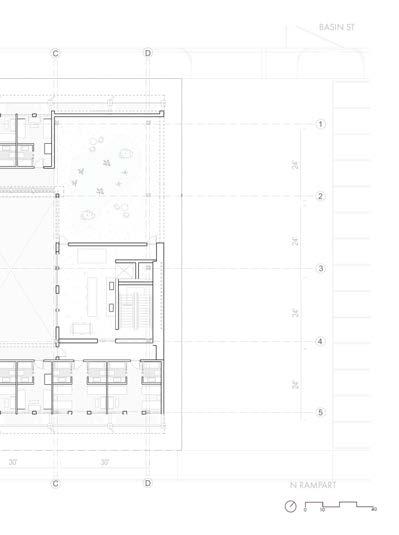
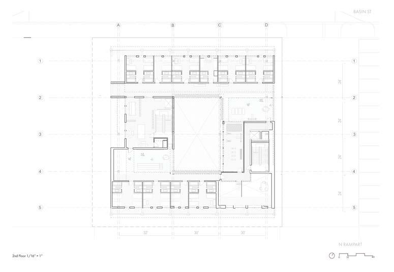
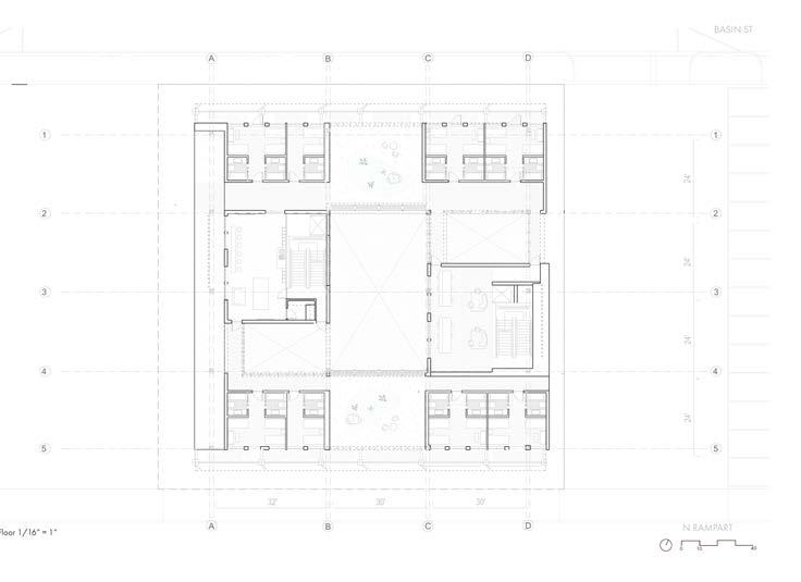
Lagniappe Hostel

Located on the edge of the French Quarter in New Orleans, this matte courtyard hostel implements light as a material. Through this design guests will engage in analog gathering spaces in order to reconnect and unplug.

LAGNIAPPE

Urban Hostel | Alec Rosen

This project focused on a rotating courtyard design, which created exceptional amenity spaces and enhanced the overall functionality of the structure.

The rotating plans illustrate five distinct configurations, demonstrating how individuals can move laterally through the space with fluidity and purpose.

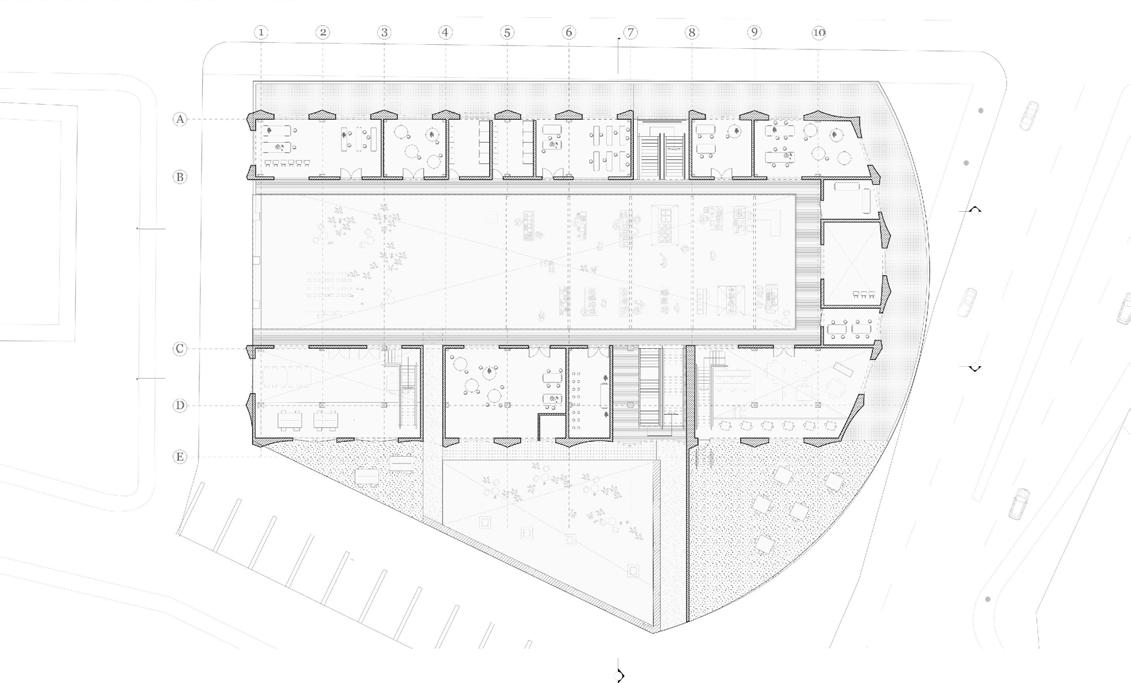
Common Dialect

▶ Situated in the heart of the Warehouse District in downtown New Orleans, we created a contemporary museum aligned with the potential Vestoff Family Foundation. The Vestoffs, known for their notable project, the Sculpture Garden, sought an extension of their ethos in this venture. The design aimed for fluid spatial conditions while accommodating more than twice the program within the site’s square footage.

1/32” = 1’-0” Sectional Spacial Diagrams

BLURRED MASSES

▶ The primary goal of this model was to create the illusion that, as daylight passes, one would be unable to distinguish where a building mass begins and where it ends. This concept, in with pixelating the site, allowed for a more desirable scale of the building. The materials depicted in this photo of the model, including a basswood context of New Orleans and a mixed polyethylene structure, offer a juxtaposition close to what the structure would sit in actuality.

1/16” = 1’-0” Scale model

1/32” = 1’-0” Iterative models

▶ This project transforms with evolving plans, crafting blurred masses to blur distinctions between elements. Leveraging dynamic lines, it plays with perception on a 20,000 sq ft site housing a 40,000 sq ft program. Pixelation manipulates scale, creating a contemporary museum seamlessly interacting with changing daylight in New Orleans’ Warehouse District.

Iteration

3/4” = 1’-0” Plan

3PM DIAGONAL

▶ Exiting the lobby onto St. Joseph Street, visitors encounter the structure’s solitary emotional focal point, inviting a journey that goes beyond the physical space. a brief yet impactful connection between individuals and the architectural

solitary diagonal sight line. It’s more than a visual cue—it’s an space. This intentional design element sparks anticipation, fostering narrative.

30/40 FT

▶ Navigating from the southernmost program toward the expansive interior courtyard, vitality. It’s a brief yet dynamic journey, where the atmosphere shifts, signaling

courtyard, the transitional space pulsates with vibrancy and signaling a transition teeming with energy.

▶ A pivotal focus of this endeavor lies in crafting a diverse array of overhead conditions, cultivating a dynamic spatial experience within each cafe, exhibit, and event space. This deliberate approach adds richness to the project, inviting visitors to explore and engage with varied atmospheres throughout their journey within the space.

▶ Nestled at the intersection of St. Joseph and Magazine St. in the vibrant New Orleans Warehouse District, ‘Common Dialect’ emerges through a material interplay featuring metal mesh, poured concrete, and steel. These carefully chosen elements not only enhance the aesthetic appeal but also speak to the project’s contemporary identity.

The Out Fall Canal

The Outfall Canal transforms the London Avenue Canal currently a hard-engineered flood wall into a dynamic community amenity and resilient watershed. The project proposes targeted engineering interventions to expand water storage capacity while restoring ecological function and public access. By reframing the canal as a civic space and environmental resource, aligning infrastructural resilience with community.

These section perspectives reveal the existing condition of the deepest drainage pumping station in New Orleans, a piece of essential but invisible infrastructure. Designed purely for utility, the station underscores the city’s engineered dependence on hard infrastructure for water management, operating as a sealed, inaccessible void within the urban fabric a stark reminder of the disconnect between residents and the waterscape it controls.

The Periurban Firestation

Post-Disaster Civic Anchor for Lahaina

The Periurban Firestation is the first civic anchor in a redefined zone of Lahaina, Maui, designed in response to the catastrophic 2023 wildfire. It houses in water management, accessibility, and disaster response. Situated on the edge of a new district, the firestation sits at the nexus of Lahaina’s peri-urban building within a larger environmental system. The robust, climatically responsive design utilizes a CMU envelope for thermal regulation and a roof designed and internal light breaks embedded into courtyards enhance daylighting and passive cooling, reducing mechanical loads and distributing light and

houses displaced residents and delivers critical emergency infrastructure while addressing vulnerabilities peri-urban buffer a hydrological park that channels stormwater storage toward the coast embedding the designed to hold three feet of water as both thermal stabilizer and emergency reserve. Wind funnels and air across all program zones.

Gaiascopes

▶ Funded by a significant grant awarded in April of last year, the Giascope project produced 7-foot sculptures suspended from metal scaffolding, creating captivating visual experiences. These installations offered a modern twist on classic kaleidoscopes, incorporating multi-lens designs for a dynamic and immersive effect. The sculptures were comprised of a 1/4”powder coated steel frame (1), a 1/4” semi opake acrylic with mirror interior (2).

Quatum
Quatum

GAIASCOPES

Quatum Sea Quatum Sea
Quatum
Luminous Web
Luminous Web
Celestial Sphere

▶ These models facilitated a large, interactive experience for the Giascopes, engaging participants in dynamic and hands-on exploration.

Turn static files into dynamic content formats.

Create a flipbook
Issuu converts static files into: digital portfolios, online yearbooks, online catalogs, digital photo albums and more. Sign up and create your flipbook.