Alec Montana Rosen 2024 - 2025 Portfolio

Page 1


With a background in Design, Sociology, and Urban Planning, I bring a dynamic, hands-on approach to architecture. I actively contribute to core studio teaching and lead projects in the fabrication lab, guiding innovative work that merges creativity and precision. Born in Manhattan, raised in Miami Beach, and with experience in Los Angeles and New York, I thrive on tackling any challenge.

Master

ODA Architecture

LAGNIAPPE

Common Dialect

L’ Arc Vert

Jefferson Island

Petro Chemical USA

Gaiascopes

Summer | 2024

April. | 2024 | French Quarter

Dec. | 2022 | New Iberia

Dec. | 2023 | Warehouse district

June | 2022 | Uptown New Orleans

Nov. | 2022 | Cancer alley

Nov. | 2024 | Scottsdale AZ

Summer At ODA

Located in Tribeca, New York, I built and fabricated a 3D model of the Passo Gigena Sculpture. The model was crafted using curved 1/16” milky acrylic (2) and projected powdered sandstone (1) materials, highlighting the incredible potential of these innovative printing techniques. Measuring approximately 7 inches tall and 4 feet wide (3), the piece demonstrates the interplay of scale, precision, and material experimentation.

Lagniappe Hostel

Located on the edge of the French Quarter in New Orleans, this matte courtyard hostel implements light as a material. Through this design guests will engage in analog gathering spaces in order to reconnect and unplug.

LAGNIAPPE

Urban Hostel | Alec Rosen

This project focused on a rotating courtyard design, which created exceptional amenity spaces and enhanced the overall functionality of the structure.

The rotating plans illustrate five distinct configurations, demonstrating how individuals can move laterally through the space with fluidity and purpose.

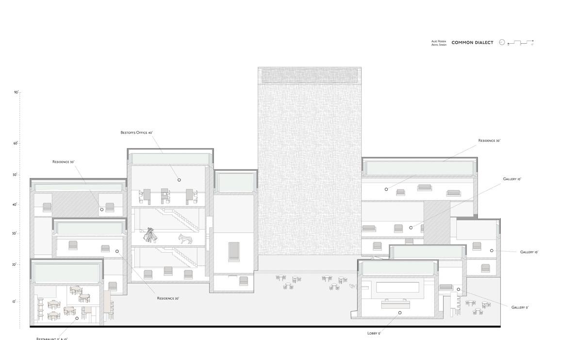
Common Dialect

▶ Situated in the heart of the Warehouse District in downtown New Orleans, we created a contemporary museum aligned with the potential Vestoff Family Foundation. The Vestoffs, known for their notable project, the Sculpture Garden, sought an extension of their ethos in this venture. The design aimed for fluid spatial conditions while accommodating more than twice the program within the site’s square footage.

1/32” = 1’-0” Sectional Spacial Diagrams

▶ The primary goal of this model was to create the illusion that, as daylight passes, one would be unable to distinguish where a building mass begins and where it ends. This concept, in with pixelating the site, allowed for a more desirable scale of the building. The materials depicted in this photo of the model, including a basswood context of New Orleans and a mixed polyethylene structure, offer a juxtaposition close to what the structure would sit in actuality.

1/16” = 1’-0” Scale model
BLURRED MASSES

1/32” = 1’-0” Iterative models

▶ This project transforms with evolving plans, crafting blurred masses to blur distinctions between elements. Leveraging dynamic lines, it plays with perception on a 20,000 sq ft site housing a 40,000 sq ft program. Pixelation manipulates scale, creating a contemporary museum seamlessly interacting with changing daylight in New Orleans’ Warehouse District.

Iteration

3/4” = 1’-0” Plan

3PM DIAGONAL

▶ Exiting the lobby onto St. Joseph Street, visitors encounter the structure’s solitary emotional focal point, inviting a journey that goes beyond the physical space. brief yet impactful connection between individuals and the architectural narrative.

solitary diagonal sight line. It’s more than a visual cue—it’s an

This intentional design element sparks anticipation, fostering a narrative.

30/40 FT

▶ Navigating from the southernmost program toward the expansive interior courtyard, It’s a brief yet dynamic journey, where the atmosphere shifts, signaling a transition

courtyard, the transitional space pulsates with vibrancy and vitality. transition teeming with energy.

▶ A pivotal focus of this endeavor lies in crafting a diverse array of overhead conditions, cultivating a dynamic spatial experience within each cafe, exhibit, and event space. This deliberate approach adds richness to the project, inviting visitors to explore and engage with varied atmospheres throughout their journey within the space.

▶ Nestled at the intersection of St. Joseph and Magazine St. in the vibrant New Orleans Warehouse District, ‘Common Dialect’ emerges through a material interplay featuring metal mesh, poured concrete, and steel. These carefully chosen elements not only enhance the aesthetic appeal but also speak to the project’s contemporary identity.

L’Arc Vert

▶ Embark on an urban narrative with a case study presenting 65 units tailored for a dynamic array of professional residencies. Watch as the square block on Tchoupitoulas St metamorphoses into a lively living and community space, perfectly attuned to a diverse resident ensemble. The ingenious solution? An undulating structure that seamlessly intertwines historical essence with captivating perspectives—a vibrant chord in New Orleans’ cultural composition.

RESIDENCES

▶ A variety of units designed to accommodate the housing project, with two examples of floor plans provided below. On the top is a 1500 sqft unit, and to the right is a unit intended for shorter stays, measuring around 500 sqft.

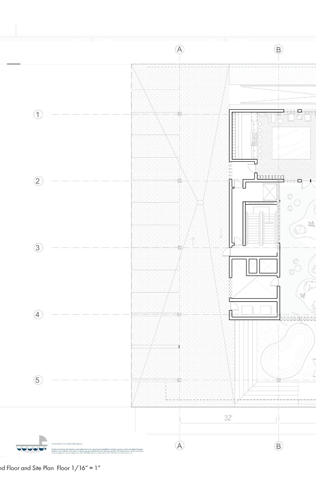
Jefferson Island

▶ The development of a structure capable of accommodating the required program and seamlessly integrating into the contextual surroundings was better comprehended through this sequence.

Spatial Planning Diagrams

Spatial Planning Diagrams

Parti Diagram | Formal Orentaion

Exploded Axonometric

Alec Rosen
Alec Rosen
Alec Rosen
Alec Rosen

Petro Chemical America

▶ In the sectional image includes oil refineries, rigs, and elements of the natural foliage of the region.

Gaiascopes

▶ Funded by a significant grant awarded in April of last year, the Giascope project produced 7-foot sculptures suspended from metal scaffolding, creating captivating visual experiences. These installations offered a modern twist on classic kaleidoscopes, incorporating multi-lens designs for a dynamic and immersive effect. The sculptures were comprised of a 1/4”powder coated steel frame (1), a 1/4” semi opake acrylic with mirror interior (2).

Quatum
Quatum
Luminous

GAIASCOPES

Quatum Sea Quatum Sea
Quatum
Luminous Web
Luminous Web
Celestial Sphere

▶ These models facilitated a large, interactive experience for the Giascopes, engaging participants in dynamic and hands-on exploration.

Turn static files into dynamic content formats.

Create a flipbook
Issuu converts static files into: digital portfolios, online yearbooks, online catalogs, digital photo albums and more. Sign up and create your flipbook.