CASA VIEIRA DE CASTRO- ÁLVARO SIZA

![]()

CÁTEDRA:GARCIA
PROFESORA:

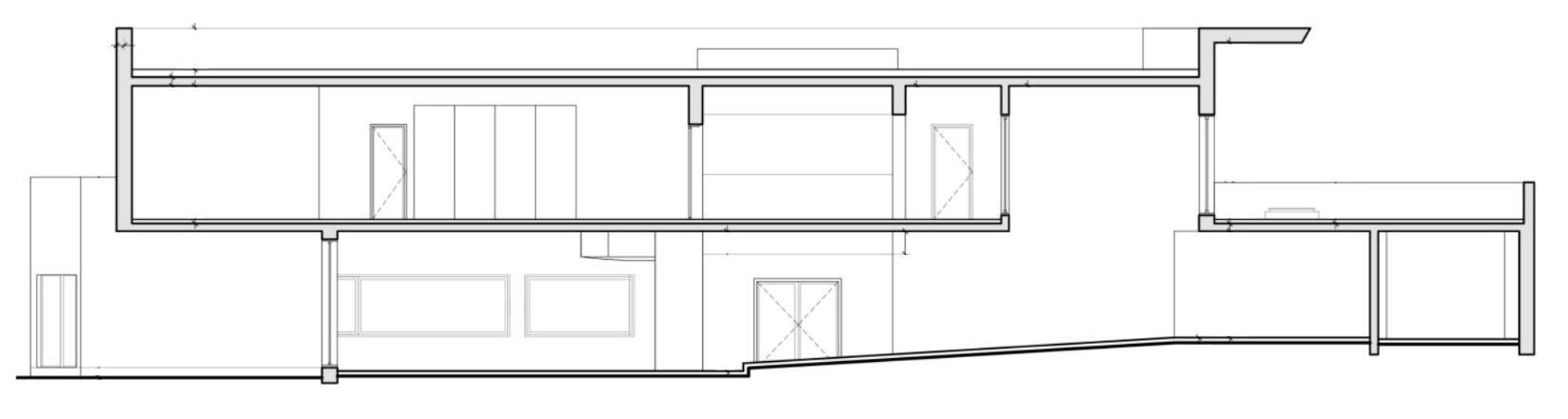
Mostrar la idea de condición de continuidad a partir del paralelismo.



Formalmente en el exterior de la vivienda, en la vista norte aparece este muro que condiciona la continuidad espacial en el interior.
En el interior de la planta baja, el paralelismo a esta pared aparece y funciona como espacio de transición.


en la planta alta, como espacio de transición, aunque en este caso se ve interrumpido por una continuidad vertical, en una doble altura.









Volviendo al exterior, la continuidad no solo se da en este plano, sino que da “una vuelta” a la vista oeste en la que genera el parasol.




En conclusión este muro es un factor importante en la vivienda ya que condiciona la continuidad espacial, transitoria, a partir del paralelismo con el mismo, generando, también así, relación interior-exterior.
Además funciona como pieza continua hacia las fachadas correlativas.