Ahmed Noeman Portfolio

Page 1

PORTFOLIO

selected works

CONTENTS project
showcase

01

Re-habitable Urbanism

Accupuncture Urbanism at a city-scale

03

Passatge del Barri Social Housing Complex

05

Timber in the City Residential & Commercial Complex

07

Neo-Nomads Environmental Research Station

02

A New US Embassy Memorial integrated within an Embassy

04

Migra-Topia Lithium mining operation in a barren landsape

06

MAPM

Re-habilitated Cultural Site in an Industrial Area

08

Muruna: The Living City Urban Ecosystem in the Desert

Location:

Instructors:

Partner:

Collectives Design Studio | Spring 2023 RE-HABITABLE URBANISM
Detroit, Michigan. USA
Sharon Haar & Adam Smith
Lauren Jenkins Project Function: Commercial Residential Recreational 01

Re-Habitable urbanism serves as a self-organized city with a plethora of community opportunities aimed at improving living conditions in Detroit’s Corktown

The apartment building portion of the site consists of a stacking grid system of modular trays that is interchangeable with desired programs.

The lower density portion of the site diverts from the typical North American single family home towards a woven network of smaller detached homes and townhouses.

This projects acts as a positive factor in determining the morphology and new building blocks for the potential of North Corktown.

Project: Re-habitable Urbanism

Children’s

Play Area

Carports

Communal

Urban

Additional Dwelling Units

Shared

Typology Farm Alleyway Streets

Pedestrian Public Transit Access

4
Project Year: Spring 2023 5
Alleyway View Secondary Street View Main Street View

Project:

Semi-public Resident Space

A continuous outdoor walkway wraps around each unit, serving as a communal space where residents are able to interact with one another.

The presence of front porches also increases each unit’s total square footage, acting as an extension capable of being customised.

Urban Permability

Public paths connect the building’s streetfront to the more private internal spaces.

This allows for easy access among residents, while also enabling permeability of access accross the site.

Courtyard Space

Landscaped courtyards

provide opportunities for residents and guests to interact with one another, acting as a central communal space.

This also serves as a focal point around which all residents can gather. Passatge del Barri 6 Exterior Renderings
Project Year: Fall 2018 7 Exterior Renderings

A NEW US EMBASSY

Institutions Design Studio | Fall 2022

Location: Baghdad, Iraq

Instructor: Gina Reichert

Project Function: Ceremonial Diplomatic Cultural

02

Situated within the American Embassy in Baghdad, this project serves as a memorial to the loss of life and culture that has devastated Iraq in recent decades.

The project aims to demonstrate American support towards Iraq, striving to foster an improved sense of diplomacy between both countries.

The term Dhikr, an Arabic word for memory, embodies the basic characteristics of this project, which places a special emphasis on remembering all that has been lost throughout Iraq.

Through a curated experience, visitors are able to explore and contemplate whilst moving through a series of heavy and somber spaces.

Chancery Building Axon: This demonstrates the layered nature of the memorial site and the chancery building above.

Building Axonometric Diagrams

Chancery Building Section: Embassy staff are able to spectate the general public, creating visual links both groups of people.

Memorial Entrances: A double height space connects both levels of the memorial allowing seamless access.

Site Plan
Site Section Dhikr 10
Project: N

Wall Condition 02: Ramped Entry separated from street by pond and planterbox. This is the primary entry.

Wall Condition 03: Entry through fortified structure separated from street by deep pond/waterbody

Project Year: Fall 2022 11
Aerial Floor Plan Wall Axonometric Diagrams Wall Condition 01: Public walkway separated from Embassy grounds by waterway/canal

Project: Passatge del

Barri

Exhibit of Lost Artifacts

This linear space contains projections of various artifacts that have been damaged, lost, or looted within Iraq over the past few decades.

By exhibiting this immense loss of culture, the memory of what once was is preserved.

Hall of Testimonials

This assembly space exhibits documentaries and various videos of Iraqis sharing their own stories, both past and present.

Space of Reconciliation

This space for gathering concludes the memorial’s procession, providing a brief moment of relief and reconciliation amidst an otherwise somber and heavy experience.

The space’s lightness, both physically and experientially, embodies a sense of hope for Iraq’s future, where The United States actively reconciles its own role in Iraq’s devastating past by providing meaningful support towards its future.

The use of a “Mashrabiya” geometric pattern within the artificial skylight further ties the space and project to it’s own context. 12 Exterior Renderings
Project Year: Fall 2018 13 Exterior Renderings

PASSATGE DEL BARRI 03

Architectural Design Studio V | Fall 2018

Location: Barcelona, Spain

Instructor: Igor Peraza

Partner: Jace Marc Fernandes

Project Function: Commercial Residential Recreational

A marketplace, a social housing complex, and a space for communal gathering; the Passatge Del Barri brings three crucials functions close to the heart of the city of Barcelona.

Social housing was incorporated into the project in order to increase the quantity of affordable housing units in the city, aiding to alleviate the housing crisis currently facing the city.

The site acts as a node to which users and pedestrians can orient themselves with, whilst also bridging the gap over the adjacent ring road.

The addition of a marketplace aimed to build upon Barcelona’s rich market history, paying homage to the role of trade in the city’s growth.

Passatge del Barri 16
Project:
Site isometric 1. Placement of techtonic frame on site is informed by adjacent train station 2. Bridge penetration into site. Train station facade is altered to accomodate this bridge 3. Roof shading structure wraps around site and mimics arched structure of adjacent train shed
Generative Diagrams
4. Louver system emerges from the shading structure and wraps around the tectonic frame
longitudinal section scale 1:500 ahmed noeman jace marc fernandes siteplan scale 1:900 ahmed noeman jace marc fernandes N Project Year: Fall 2018 17 Site Plan Site Section Drawings

Public space

The skatepark bridges the gap between the public and private realm, allowing both visitors and residents to interact freely.

This skatepark also activates a disused portion of the site, revitalising the dynamic urban fabric of the city of Barcelona.

Market place

A market terminates the urban corridor, along which residents and commuters travel along.

The marketplace also serves adjacent neighbourhoods, acting as a social hub encouraging residents to buy locally.

Urban corridor

The network of bridges forms a connection between the sea-side neighbourhood of La Barceloneta and the El Borne neighbourhood.

This creates a pedestrian corridor that stood severed for decades, due to the Ronda Ring Road

18 Exterior Renderings
Project: Passatge del Barri
Project Year: Fall 2018 19 Exterior Renderings

MIGRA-TOPIA

Propositions Design Studio | Fall 2023

Location: Silver Peak, NV. USA

Instructor: María Arquero

Project Function: Industrial Residential Recreational

04

Set in 2050, this project aims to draw attention to the issue of hyperconsumption, highlighting the direction sociecty appears to be taking.

Migra-Topia is by no means a desirable outcome, but rather forces one to rethink habits of consumption. The embodiment of this is a future that runs unhinged characterised by excess and waste.

The project taps into Nevada’s vast lithium reserves, seeking to create a self-sufficient mining operation rooted in transience, lavish wastefulness and an overall disregard for the environment.

This approach represents existing policy that aims to facilitate lithium extraction in the US, making the possibility of Migra-Topia an alarming reality.

Project:

Caravan StorageIncoming migrants, expected to arrive by car or caravan, will be able to store their vehicles inside this lot

Recreational ParkAn outdoor park provides residents with green space, shielded from the surrounding area’s harsh and dusty landscape.

Food Storage RingThis underground ring stores at least a year’s worth of food capable of supplying the habitation ring and all its residents

Clayton Valley

“PROMISING A BETTER FUTURE, TODAY”

Transit HubConnects to Refinery + Logistics Hub

Crop FieldEnables limited self-sufficiency in the event of unforeseen supply chain disruptions

Solar FarmProvides most of Silver Peak’s energy demands. Excess can be rerouted to the adjacent mines

US-95 Highway

Floor Plans
Silver Peak
22
Migra-Topia
Site Sections Project Year: Fall 2023 23

Project: Migra-Topia

Rare Mineral Drop

Rare minerals found in lithium mining tailings are expected to be processed here, being organised into various piles through the use of a robotic sorting mechanism.

The sorted material is then transferred into shipping containers for onward exportation and consumption, either locally within the Silver Peak Habitation Complex, or nation-wide.

Agri-Hub Crop Ring

Labouring through the outdoor crop ring involves contending with issues of scorching heat, unbreathable air, and occasionally lethal dust storms.

When the conditions are just right however, crops are capable of being grown. All the while, the under-represented backbone of Silver Peak’s labour force enables this to happen.

Habitation Unit

These units offer serve as luxury habitation, offering open views, an abundance of sunlight, along with ample space for all the designer furniture any affluent family could ever dream of.

‘Generous’ donors ensure the continuous functioning of Migra-Topia’s entire mining operation from extraction through to exportation.

Renderings 24
Consumption Hub Rendering 25 Project Year: Fall 2023

Architectural Design Studio VI | Spring 2019

Location: New York City, USA

Instructor: George Newlands

Partner: Jace Marc Fernandes

Project Function: Commercial Residential Educational

05
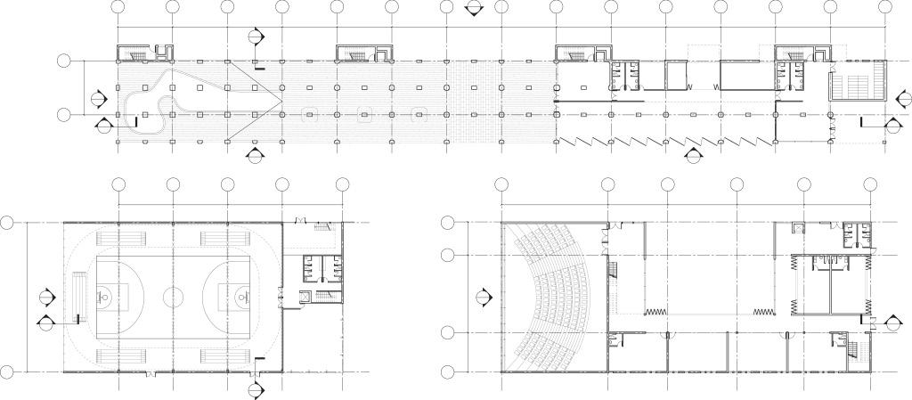
TIMBER IN THE CITY

Timber in the City explores the potential of timber construction within mid-rise residential and commercial construction, through the pushing of the boundary within existing building code.

Situated alongside the Ed Koch Queensboro Bridge in New York City, the project aims to activate a site that has sat unused for decades.

Gallery spaces, outdoor public gathering spaces, a sports complex, educational facility, and 9-story residential building all make up the site.

The project aims to critique existing methods of construction through the use of more sustainable material, such as cross-laminated timber and plywood within most of the site’s construction.

Floor Plans Second Floor Plan First Floor Plan N a a a a b c d d b 2 10.0 10.0 10.0 10.0 10.0 10.0 10.0 10.0 11.0 11.0 19.4 19.4 music/dance room 188.2 sqm music/dance 213.7 sqm office 32.2 sqm cardio 32.2 sqm running track basketball 420.0 sqm weight 132.8 sqm auditorium 514.0 sqm lobby 107.0 sqm classroom (0-2yrs) 73.0 sqm classroom (0-2yrs) 73.0 sqm outdoor play area 390.0 sqm classroom (0-2yrs) 73.0 sqm classroom (0-2yrs) 73.0 sqm classroom (0-2yrs) 73.0 sqm lobby 69.0 sqm classroom (0-2yrs) 73.0 sqm locker rooms 32.2sqm lobby 62.7 sqm skatepark lobby 71.4 sqm office 22.4 sqm storage 16.5 sqm service access 30.0 sqm gallery 326.4 sqm cafe 34.6 sqm lobby 67.1 sqm bicycle maintenance 48.5 sqm bicycle parking 63.0 sqm WC 23.1 sqm WC 19.0 sqm up up up up up up up WC 23.1 sqm up gallery 64.3 sqm laundry area 55.5 sqm gallery 64.3 sqm gallery 64.3 sqm double height gallery 288.7 sqm gallery 64.3 sqm gallery 64.3 sqm art room 104.4 sqm classroom (pre-k) 84.2 sqm classroom (pre-k) 90.3 sqm classroom (pre-k) 84.2 sqm (pre-k) 71.4 sqm office 26.4 sqm staff lounge 26.7 sqm office 26.4 sqm 11.1 12.6 12.2 12.0 10.0 10.0 27.0 27.0 14.0 14.0 6.0 6.0 7.0 7.0 10.0 10.0 10.0 A.251 A.201 A.201 A.201 A.201 A.251 A.201 A.201 A.202 A.202 A.203 A.203 A.203 A.203 A.252 A.252 A.202 A.202 A.252 A.252 A.252 A.252 A.252 A.252 1 2 2 1 1 1 1 1 1 1 2 2 1 1 A 1 1 2 B 2 B 1 A 10.0 10.0 10.0 10.0 10.0 10.0 10.0 10.0 10.0 10.0 10.0 10.0 10.0 10.0 10.0 10.0 10.0 10.0 10.0 10.0 10.0 10.0 10.0 1 1 1 2 3 4 5 6 2 3 4 5 3 4 5 6 7 8 9 10 11 12 13 14 15 a a b c d d b 2 1 1 2 3 4 5 6 2 3 4 5 3 4 5 6 7 8 9 10 11 12 13 14 15 Project: Timber in the City 28
Site Sections
Section BB
1 1 2 3 4 5 6 7 8 9 2 3 4 5 6 1 2 3 4 5 6 7 FFL +12.0m T.O.ROOF +8.3m FFL +4.0m GRADE FFL -4.0m FFL +4.0m GRADE FFL -4.0m FFL -6.0m FFL -8.0 T.O.PARAPET FFL +36.0m FFL +32.0m FFL +28.0m FFL +24.0m FFL +20.0m FFL +16.0m FFL +12.0m FFL +8.0m GRADE FFL -3.0m FFL -6.0m 10 11 12 13 14 15 Project Year: Spring 2019 29
Section AA
Wall Section Model- 1:20
in
30
Project: Timber
the City
08-05-2019 GALLERY SPACE DESCRIPTION TIMBER IN THE TIMBERINTHECITY COM DATE CONTRACT INFO 42-02 VERNON BOULEVARD QUEENS, NY 11101 SHEET TITLE PROJECT TITLE LOCATION DRAWN BY REVIEWED BY JACE MARC FERNANDES AHMED NOEMAN PROFESSOR GEORGE NEWLANDS PROFESSOR GEORGE NEWLANDS CHECKED BY REVISION Interior Rendering- Gallery Space Project Year: Spring 2019 31
Independent Competition Proposal | Summer 2022 MUSEU DE ARTE DE PUERTO MADERO Project Function: Recreational Cultural Location: Buenos Aires, Argentina Partner: Ruba Saleh 06

The Museo de Arte de Puerto Madero (MAPM) aims to be a museum and cultural institute within a previously industrial area in Buenos Aires.

MAPM rises nine stories high and is situated along a key city axis, with the Central Business District to the west and the Parque Mujeres Argentinas to the east.

The project serves as a node linking foot traffic from both the CBD and the park, thus enabling access to the site from multiple parts of the city.

MAPM contains a multitude of functions, such as a multi-story art gallery, an auditorium, a botanical garden, a sky deck, administrative spaces, and a restaurant.

de Puerto Madero 34
Project: Museu de Arte
Project Year: Summer 2022 35

NEO-NOMADS

Independent Design Build | 2019 - 2020

Location: Al Dhaid, UAE

Instructors: Patrick Rhodes & Gregory Spaw

Function: Research

Partners: Lamya Al Qassimi, Zahra’a Nasralla & Ruba Alsamarrae

Role: Fabrication & Assembly

07

Neonomads involved the fabrication, and deployment of a lightweight structure into the Elebriddi Protected Area east of Al Dhaid.

The project was designed as a shelter and research station for two environmental scientists of the Sharjah Environment and Protected Areas Authority (EPAA).

Fabricated over the course of 2019 and deployed in February 2020, the structure was designed specifically in response to wind and utlised a solar array in order to provide light, communication, and refrigeration.

The project also contains a resting space, dining space, working space, and storage area.

Project: Neo-Nomads

NEO-NOMADS

Material Selection

Aluminum was used for the structure, catamaran trampoline as resting surface and used sails as envelope.

Connections

The structure’s components consist of fabric-to-metal and metal-to-metal connections.

Footings

Adjustable footing connections ensure that the structure is level when deployed on uneven terrain

Close-up Details
38

Deployment

Raised floor units enable the structure to adapt to terrain when deployed on site, whilst operable roof panels allow for ventilation.

The structure can be set to three different roof configurations and is easily adjustable depending on the user’s needs

Side View Photograph Project Year: 2019-2020 39

Project: Neo-Nomads

Aluminium Base

Assembly of structure on site involved installing footings and nesting floor units.

Bar grating and wood flooring make up the resting surface.

Roof Panels

Rotating roof panels form the enclosure within the structure. Each panel can be adjusted to three different configurations.

The operability of these panels allows for ample ventilation and shade depending on the time of day.

Envelope

The roof envelope, consisting of repurposed sails, provide ample protection against rain water and harsh sand storms.

The reflectivity and bright colour also minimises heat absorption during the daytime.

Process Photographs
40
Perspective Photograph Project Year: 2019-2020 41

Architectural Design Studio VIII | Spring 2020

Location: Ajman, UAE

Instructor: Jason Carlow

Partner: Jace Marc Fernandes

Project Function: Residential Recreational Industrial

THE LIVING CITY 08
MURUNA:

Muruna, an Arabic term for resilience and adaptability, forms part of the existing Emirates City neighbourhood, providing a vibrant economic and residential hub for the city of Ajman.

The primary functions of the project include manufacturing, recreation, and residential facilities, each of which rely on one another.

Muruna serves as a model for economic resilience within urban development, by employing a structural system that encourages flexibility

This adaptability is central to Muruna’s aim of providing it’s surrounding context with a resilient urban hub for decades to come.

Project: Muruna: The Living City

A COMPLETE ECOSYSTEM

Muruna strives to become a vibrant economic and social hub in the currently existing neighbourhood of Emirates City, Ajman.

The project’s structural system encourages a flexible usage of space, allowing each tower’s function to change with time.

Muruna serves as a model for economic resilience within urban development.

Primary functions of the site include:

RESIDENTIAL

RECREATIONAL

INDUSTRIAL

Muruna functions at a macro and micro scale, exploring various tower typologies that, when assembled together, create an intricate self-sufficient network.

Tower Isometric
44

The living units are aimed at people from various socioeconomic backgrounds

The recreational function gives residents a sense of community

The industrial functions employ a large portion of the project’s residents

The demands of the recreational functions fuels production within the industrial functions

Residential zone

The living space for the project’s residents

Recreational hub

A space for both residents and visitors to gather

The income from industry-related jobs can sustain the project’s residents

Industrial hub

The production powerhouse of the project

Exploded Isometric
Project Year: Spring 2020 45
Podium Floor Plans + Rendering
46
Project: Muruna: The Living City
Recreational Space Rendering Recreational Perspectival Plan Industrial Perspectival Plan
Residential Floor Plans + Rendering Project Year: Spring 2020 47
Residential Interior Rendering Perspectival Plan- 1 Bedroom Unit Perspectival Plan- 2 Bedroom Unit
Noeman
Ahmed
ahmednoeman.com

Turn static files into dynamic content formats.

Create a flipbook
Issuu converts static files into: digital portfolios, online yearbooks, online catalogs, digital photo albums and more. Sign up and create your flipbook.
Ahmed Noeman Portfolio by Ahmed N - Issuu