Studierendencampus

Page 1

MASTERTHESIS

STUDIERENDENCAMPUS COTTBUS

ALHASAN, Ahmad

ReassemblageStudierendentencampus Flugplatz Cottbus I WiSe 23/24 BTU Cottbus _ FG. Digitale Entwurfsmethoden -
-
_ FG Baugeschichte _ Dr.Ing. Peter Schneider
Prof. Ilija Vukorep
Olga Frankenberg

Reassemblage - Studierendencampus Cottbus

Haus der Studierenden und Natur

Die Aufgabe besteht darin, einen zeitgemäßen und nachhaltigen Studentencampus auf dem Gelände der ehemaligen Kaserne des Flugplatzes in Cottbus zu entwerfen Die besondere Lage in direkter Nähe zur Universität, dem Schwimmbad Lagune, der Natur und dem zukünftigen Science - Park der BTU soll genutzt werden, um einen inspirierenden Lebensraum für Studierende zu gestalten Dabei ist nicht nur die Neugestaltung von Raum und Gebäuden zu berücksichtigen, sondern auch die Integration von Materialien und Bauelementen aus bereits demontierten Gebäuden des Typs WBS 70 , um einen Beitrag zur Nachhaltigkeit zu leisten

Das Ziel besteht darin, eine harmonische Fusion aus Geschichte, Kultur und moderner Architektur zu entwickeln, die den Bedürfnissen der Studenten gerecht wird und gleichzeitig die historische und ökologische Dimension des Standorts respektiert

01 Reassemblage Follies 03 - 0 6 • Integrierte Workshop • 18.10.23 – 15.11.23 I n h a lt s v e rz e ic h 02 Konzeptvisite I 07 - 0 8 • Design und Entwurf • 08.11.23 – 15.11.23 03 Konzeptvisite II 09 - 16 • Design und Entwurf • 15.11.23 – 13.12.23 04 Stegreif Abrissbirne 17 - 24 • Integrierte Stegreif • 05.12.23 – 08.01.24 05 Konzeptvisite III 25 - 32 • Design und Entwurf • 13.12.23 – 24.01.24 06 Endpräsentation Projekt 33 - 52 • Design und Entwurf • 24.01.24 – 13.03.24

Reassemblage Follies

18.10.23 – 15.11.23

In dieser Phase steht die gründliche Analyse der vorhandenen Bauelemente der WBS 70 im Fokus . Es werden Modelle im Maßstab 1 : 20 erstellt und durch die Integration neuer Elemente in eine architektonische Follie reassembliert Hierbei kommt der sorgfältigen Abwägung der Elementzusammensetzung hinsichtlich Materialität, Farbgebung, räumlicher Wirkung und formalem Kanon eine zentrale Bedeutung zu

Die Gestaltung dieser Elemente erfolgt mit dem Ziel, eine harmonische Verschmelzung und ästhetische Integration innerhalb des Gesamtkonzepts zu erreichen

01
l 0 3 l 18.10.23
0 4 l 15.11.23 l

Ressemblage Follies

Konzept Entwicklung _ Phase 1

Ressemblage Follies

Konzept Entwicklung _ Phase 2

l 0 5 l 18.10.23
0 6 l 15.11.23 l

In der ersten Phase des Designs und Entwurfs meines Masterprojekts liegt der Schwerpunkt auf umfangreichen Recherchen zu zahlreichen Beispielen von Studentencampus und städtebaulichen Analysen des Projektgrundstücks . Dabei wird ein übergreifendes Projekthema als Schwerpunkt festgelegt, ebenso wie ein Raumprogramm für ein funktionierendes Studentenviertel

Meine Arbeit legt einen starken Fokus auf Nachhaltigkeit . Der Campus soll nicht nur eine Inspirationsquelle darstellen, sondern auch ein Modell für nachhaltige Entwicklung sein, indem er Theorie und Praxis in einer lebendigen, umweltfreundlichen und kulturell bereichernden Umgebung vereint

I
15.11.23
02 Konzeptvisite
08.11.23 –
l 0 7 l 08.11.23

Außenraum

• Campusgarten

örtliche Beziehung Integration

nachhaltiger Prinzipien

• nachhaltige Mobilitätslösungen

• Gemeinsamsfläche

• Praktische Anwendung

• Integration nachhaltiger Prinzipien

Neubau Gebäude

• Wohnen

• Restaurant/Café

• Sport /gym

örtliche Beziehung Klare Trennung

örtliche Beziehung Öffentliche Zugänglichkeit Praktische Anwendung

Bestandsgebäude

• Veranstaltungs- Project Räume

• Verschiede Werkstätte

• Ausstellungsraum

• Multifunktionale Gemeinschaftsräume

• Leseraum

• Technik/Verwaltung:

0 8 l
15.11.23 l

15 11 23 – 29 11 23

Im ersten Teil der zweiten Phase des Designs und Entwurfs meines Masterprojekts habe ich versucht, verschiedene Ansätze für den Neubau zu studieren, um eine funktionale und städtebauliche Struktur für das Studienviertel zu entwickeln und die Freiraumfläche zu definieren

Des Weiteren wurde die Idee erwogen, den Gartenbereich in eine Art Wintergarten umzugestalten, um einen ganzjährigen multifunktionalen Raum zu schaffen

03
15.11.23 – 13.12.23
Konzeptvisite II
15.11.23 l 0 9 Vorstellung Skizze Außenfläche – Version 1
l
29.11.23 l 10 l Version
Version
2
1

29 11 23 – 13 12 23

Nach umfangreichen städtebaulichen Überlegungen in der zweiten Phase meines Masterprojekts habe ich eine klare und motivierte Form gefunden, die sich harmonisch in die bestehende Bebauung integriert und die Gestaltung der frei zugänglichen Außenflächen präzisiert

Die grundlegende Idee des Entwurfs besteht darin, kleine Dorfstrukturen zu schaffen, die sich organisch in die umgebende Natur einfügen . Dabei werden charakteristische Elemente kleinräumiger Stadtstrukturen bewusst aufgegriffen und zu einem maßstäblichen, aber dennoch urbanen Lebensraum kombiniert, der Raum für gemeinsames Leben, Lernen und persönliche Entfaltung bietet .

Durch eine Nord - West - Achse wird der südwestliche Teil des Gebiets durchzogen, wobei ein bereits existierendes für studentisches Wohnen umgewidmet wird . Die teil entstehenden Dachflächen werden sowohl als Dachterrassen als auch als Dachgärten in das Wegesystem eingebunden, wodurch ein vielfältiges Netzwerk aus Wegen, Erweiterungen, Plätzen und Gärten auf allen Wohnebenen entsteht . Diese Flächen dienen als interaktiver Treffpunkt für die Bewohner der Einheiten . Zusätzlich werden drei Innenhöfe geschaffen, die mit Grünflächen und Spielflächen ausgestattet sind und einen beinahe dörflichen Charakter aufweisen

Der Nordwestteil des Gebiets ist für ein Biokonzept vorgesehen und wird mit allen erforderlichen Funktionen ausgestattet sein

l 29.11.23
l 1 1
13.12.23 l 12 l

l 29.11.23

Mehrfachnutzung L-förmiges

Neubaugebäude (400 m²)

Bio-Küche (800 m²)

Mehrfachnutzung

Bestands (1600 m²)

Gemüsebeetbereich (900 m²)

Bio-Konzept

Gemüse-Wintergärten mit jeweils 100

Wohnanlage

l 13

Wohngebäude Neubau (3 Einheiten mit je 2000 m²)

Wohngebäude Bestand (1600 m²)

Informationspunkt und Verwaltung (115 m²)

Wohnanlage
l 14 l
Wintergärten 100 m²
13.12.23

3 Einheiten mit je 2000 m² ist für 28 Studenten Insg. 84 Studenten

Neubau _ GR-EG

Wohnanlage

120 Studenten

Ehemaliges Lehrgebäude (1600 m²) Die Umnutzung des Lehrgebäudes schafft Wohnraum für etwa 26 Studenten

Neubau _ GR-OG

Bestand _ GR-EG GR-OG

l 15
l 29.11.23

• Bio-Küche (800 m²)

• Zweites ehemaliges Lehrgebäude (1600 m²)

• L-förmiges Neubaugebäude (400 m²)

• Gemüsebeetbereich (900 m²)

• Vier Gemüse-Wintergärten mit jeweils 100 m²

Gemüse-Wintergärten

16 l
Bio-Konzept
Wintergärten _ Außenfläche
13.12.23 l
l 17 l 29.11.23
18 l 13.12.23 l

Das Konzept beabsichtigt, zwei alte Flugplatzgebäude durch gezielte Eingriffe in ein einzigartiges Kunstwerk zu transformieren Dies wird durch die Entfernung aller horizontalen Wände erreicht, um einen beeindruckenden Raum mit faszinierendem Spiel von Licht und Schatten zu schaffen . Der künstlerische Schwerpunkt liegt auf der Bewahrung einzigartiger Merkmale, insbesondere der Haupteingangsfassade als "Kamin der Erinnerungen" .

"Luftige Verbindung" ist somit nicht nur ein Kunstwerk, sondern eine künstlerische Reise, die Vergangenheit und Gegenwart vereint und einen Raum schafft, in dem die Natur selbst als Künstler wirkt

04
Abrissbirne
– 08.01.24
Stegreif
05.12.23
05.12.23 l 19
l
08.01.24 l 20 l
l 05.12.23 l 21
08.01.24 l 22 l
l 05.12.23 l 23
08.01.24 l 24 l

In der dritten Phase des Designs und Entwurfs meines Masterprojekts habe ich die architektonischen Lösungen weiter verfeinert, mit besonderem Fokus auf die Funktionalität und Flexibilität der Grundrisse Die Gestaltung der Wohn- und Gemeinschaftsräume spiegelt die Notwendigkeit wider, sich an verschiedene Nutzungsszenarien anzupassen und gleichzeitig ökologische Prinzipien und Nachhaltigkeit zu berücksichtigen l 13.12.23

05
24.01.24
Konzeptvisite III 13.12.23 –
l 2 5
24.01.24 l 26 l

Neubau_ Studentisches Wohnen

Bestand_ Studentisches Wohnen

13.12.23
l
Bestand_ Wohntypen l 27
24.01.24 l
Neubau _ GR-EG Bestand _ GR-EG Neubau _ GR-OG
28 l
Bestand _ GR-OG

Neubau_ Wohntypen

Neubau_ Café mit Lebensmittelgeschäft

29
l 13.12.23 l
24.01.24 l 30 l
l 31 l 13.12.23
32 l 24.01.24 l

l 24.01.24

24.01.24 – 13.03.24

In dieser abschließenden Vorbereitungsphase bis zur Präsentation konzentriere ich mich darauf, die vielschichtigen Aspekte meines Entwurfs zu einem kohärenten und überzeugenden Gesamtbild zu verdichten Die Präsentation wird die nachhaltigen Konzepte und gestalterischen Entscheidungen meines Masterprojekts im Detail beleuchten und deren Potenzial zur Schaffung lebenswerter, studentischer Wohnräume aufzeigen Mein Ziel ist es, die innovative Herangehensweise und die ökologische Nachhaltigkeit, die als Grundpfeiler meines Designs dienen, hervorzuheben Darüber hinaus strebe ich danach, durch meine Präsentation eine Diskussion über die Bedeutung von umweltbewusstem Bauen in der modernen Architektur anzuregen und zu zeigen, wie solche Konzepte konkret im Alltag der Studierenden umgesetzt werden können

06 Endpräsentation
l 33
28.02.24 l 34 l
l 24.01.24 l 35
28.02.24 l 36 l
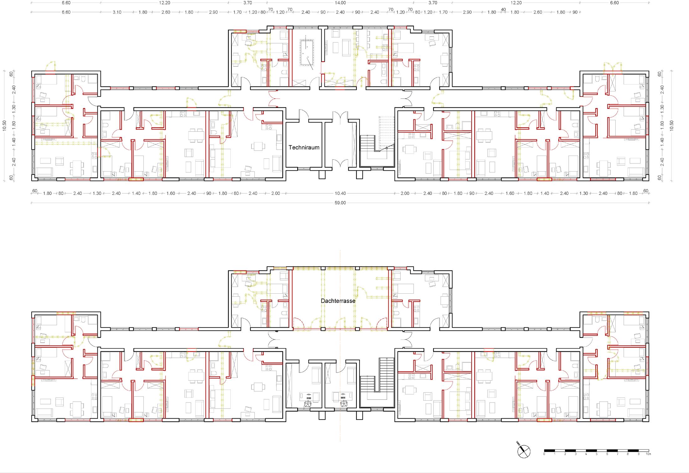
l 24.01.24 l 37 GR EG
28.02.24 l 38 l GR-OG
l 24.01.24 l 39 Außenperspektive zum Haupteingang des Campus-Wohnkomplexes
28.02.24 l 40 l
24.01.24 l 41
l
Innenperspektive, Gemeinschaftsbereich, Neubau
Schnitt D mit Hofansicht - Nordwest _ M 1:50
28.02.24 l 42 l
l 24.01.24 l 43
13.03.24 l 44 l
l 28.02.24 l 45
13.03.24 l 46 l
l 28.02.24 l 47
13.03.24 l 48 l
l 28.02.24 l 49
13.03.24 l 50 l
l 28.02.24 l 51
13.03.24 l 52 l

Turn static files into dynamic content formats.

Create a flipbook
Issuu converts static files into: digital portfolios, online yearbooks, online catalogs, digital photo albums and more. Sign up and create your flipbook.