Leonardo Aguilar 2022 Spring

Page 1

ARCHITECTURE PORTFOLIO

Fall 2022
Leonardo Aguilar
2

Leonardo Aguilar

EDUCATION

Master of Architecture (M.ARCH)

Phone #

(636)385-8435

Email aguilarbehsmanleon22@gmail.com

Location

O’Fallon Missouri, U.S.A

The University of Kansas

-Anticipated Graduation: May 2024

-GPA 3.9

High School

Fort Zumwalt North

-Seven Consecutive Semesters of 3.4 GPA

INVOLVEMENT WORK EXPERIENCE

University of Kansas

-Laverne Noyes Scholarship

-AIAS

Fort Zumwalt North

-Technology Education Association of Missouri State award winner

SKILLS

Soft

-Organized

-Time Management

-Creative

-Adaptive

Technical

-Photoshop

-Autocad

-Sketchup

-Revit

-Indesign

-Illustrator

KU Marvin Hall Student Shop

Work Shop Assistant

-Assist students with projects and tools

-Ensure safety of students from improper use of tools

-Record Students who violate safety rules repeatedly

El Maguey

Cashier

-Managed cash and credit transactions

-Collected and organized bills

-Demostrated customer service skills with taking and assembling take out

-Resolving discreated customers with problems with food or bill

Ivey Construction

Framer

-Cut boards to length as required by plans

-Nailed and stapled together subfloors, walls, and roof

-Assembled walls

4
Works Split Downtown Hub KU Extension Center Baker Wetlands Rest Stop Reptilian Pavilion Continuous Motion Handy Work Drawings 6-15 16-25 26-35 36-39 40-41 42-43 44-45 46-47

Split

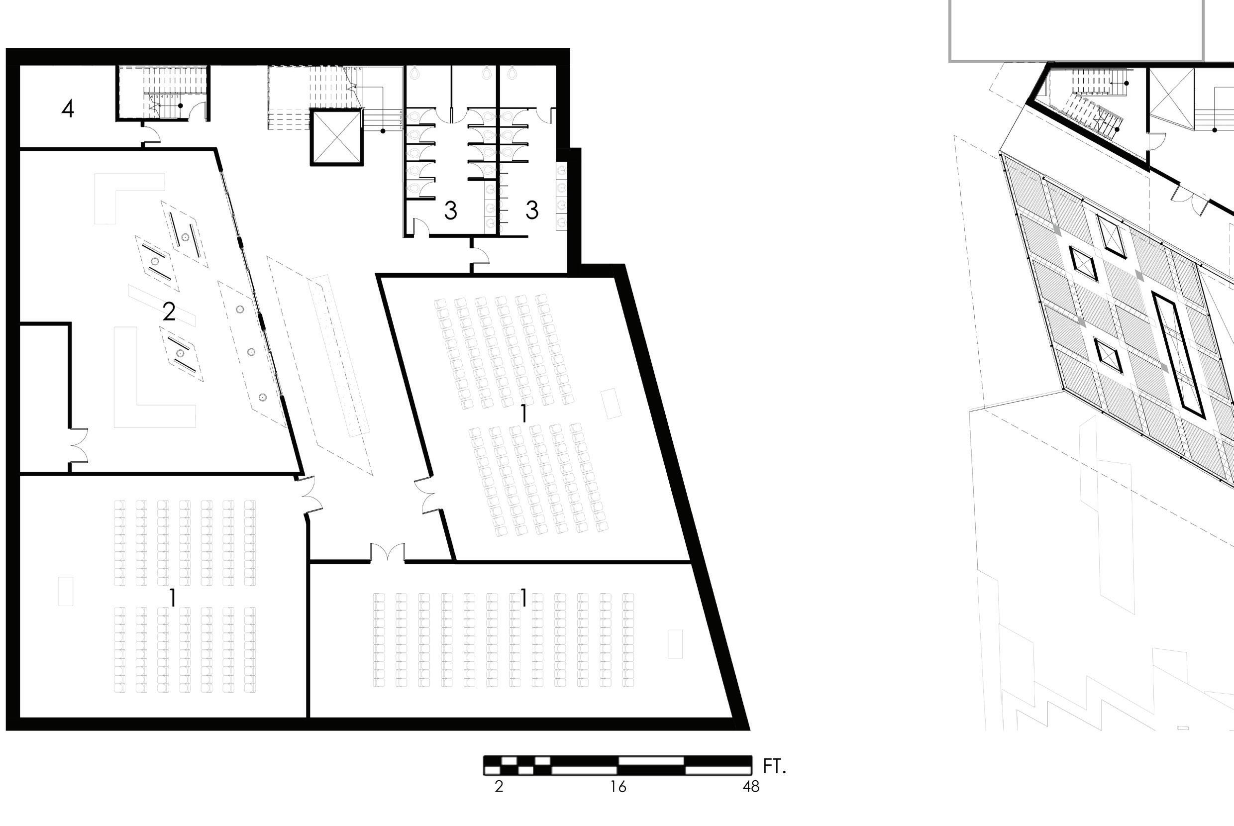
PROGRAM

Gymnasium/ Housing LOCATION

Oklahoma City

PROJECT DATE

4nd year, Fall 2022

Description

The focus of Split was to provide the community of OKC with a space to bring people together through activity. The building contains a recreational area for the South district of the city while providing housing for the city. The building form was based on the programs divided uses and reconnecting them with a central spline that pushes towards the trails and the river to the southeast. The building material was intended to be a bold and heavy for the central tube and for the rest of the building was glass covered by wooden louvers.

6
3D Model
Site
8 Floor 1 West
East Floor 2
10 ISO Section
Gathering Connection Gymnasium/Residential

Circulation

Gathering

12
Mechanical
Central South West

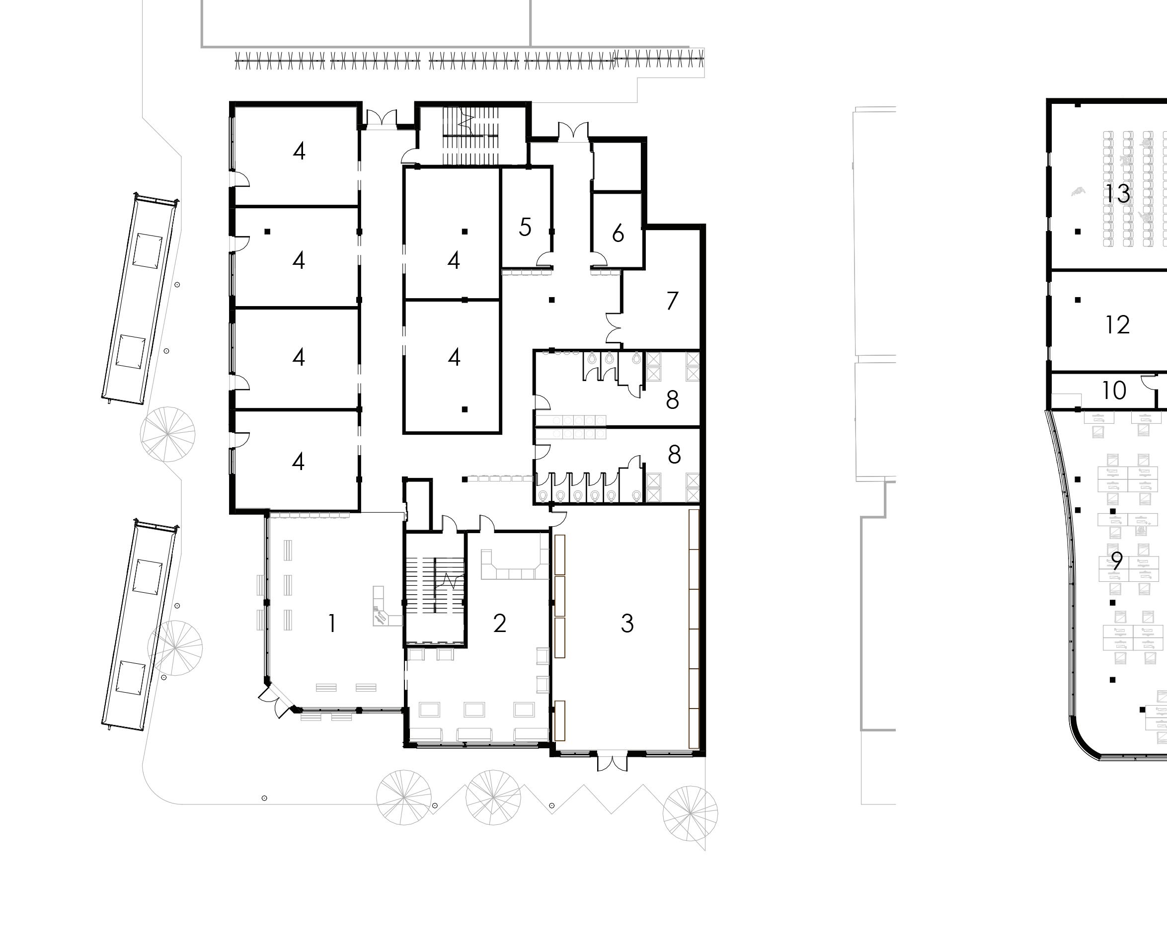
Downtown Hub

Description

PROGRAM

Alternate transportation/ retail LOCATION

Lawrence, Kanas

PROJECT DATE

3nd year, Fall 2021

The focus of the Downtown Hub was to provide the community of Lawrence a space in which they can use when taking alternate transportation. The buildings shape and material of the building was in response to the surrounding context since the site is in a historical distract. The building was then laid out in a way that divides the public hemisphere’s of the building from the private spaces by floors.

16
Site
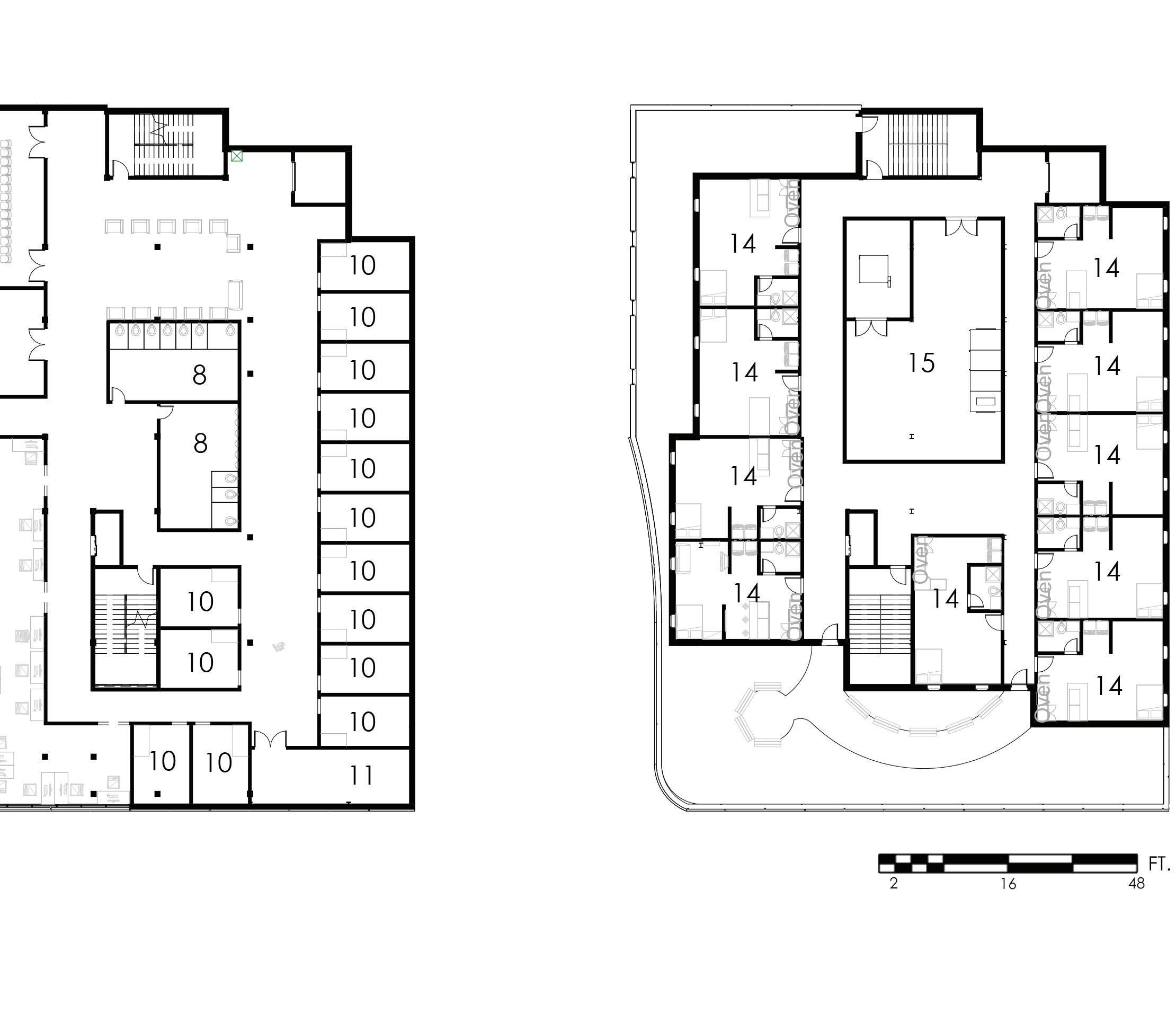
18 Key 1- Lobby 2- Coffee Shop 3- Grocery 4- Shops 5- Janitor 6- Security 7- Loading Dock 8- Bathroom 9- Public Office 10- Office 11- Copy room 12- Library 13- Conference 14- Apartment 15- Mechanical Floor 1 Floor 2
Floor 3
20 Floor 1 Floor 2 Floor 3 Circulation High Low
22
Wall Section
South Elevation West Elevation South Elevation Section Elevation

The buildings façade is based on surrounding Eastern buildings elevations.

The curve on the corner is based on the firehouse to the West. The Northern façade is broken down to continue the AT&T building to the North. The red panels are staggered like brick but with the “grout” lines extruded in the horizontal plane.

KU EXTENSION CENTER

Description

PROGRAM

Extension Center

LOCATION

Lawrence, Kanas

PROJECT DATE

2nd year, Spring 2021

The goal of the KU Extension Center is to provide the community of Lawrence a space in which they can engage with. This space is also to be dedicated to students of KU to integrate the university activities to the downtown area. The design of the building is to respond both to the current urban area and the current site. The design of the building is to allow for internal program and external program to interact with one another.

26
Downtown Section
Site Plan
28 Sub Floor Floor 1 Key 1- Classroom 2- Media Room 3- Bath 4- Janitor 5- Store 6- Coffee 7- Lobby 8- Office 9- Conference 10- Bath
Floor 2

Cone of vision blocked on top causes focus to look downwards. Cone of vision blocked on bottom causes focus to look upwards.

30
Second Floor
South Elevation

Wall sloped inward towards path causes pedestrian to walk further from that wall and to look downwards when looking at wall. Wall sloped outward from path allows pedestrian to walk close to wall and to look up the wall.

Lobby
West Elevation
32 Meeting Space Media Room
South Section
Sub. Hallway
34 Exterior South

The building exterior goal was to have an effect of floating. This was done by creating the bottom of the building of mostly glass to highlight the heaviness of the solid top. The top was then adjusted with louvers that slowly extended outwards to create a shadow over the last to have an effect of heaviness but also extended inward of the building to be used as seats and tables. Similar to how the building was split by the path, this same technique was used to integrate the shading device nearby by having its roof collide with the façade and then splitting it.

BAKER WETLANDS REST STOP

Description

PROGRAM

Rest Stop LOCATION

Baker Wetlands, Kanas

PROJECT DATE

2nd year, Fall 2020

The rest stop was to respond to both the surrounding environment while also providing a space in which pedestrians could use. This structure was to provide shading for the people from the hot summer sun while still allowing an open structure to allow them to see the surroundings. The structure itself was inspired by the frogs that can be seen throughout the wetland area to help prevent the structure from looking out of place. The structure then included places to sit both above the wetlands and right next to the land.

36
Exploded Axon
38
East
South Elev.
Elev.

Paths are laid to allow bikers to ride by without interfering with pedestrians’ paths.

Path placement allows both bikers and pedestrians to enjoy the shade of the canopy.

The canopy joist and paths form a frog-like body that is sitting up.

The joists go to a central column as toes of a frog. The canvas material acts as a webbing similar to the webbing in-between the toes of a frog.

Sub Lvl.
1
Lvl.
Canopy
Elevation Insperation

REPTILIAN PAVILION

Description

Project Date: Spring 2022

The Reptilian Pavilion was a project started up from a previous class. The structure that was built was to mimic the Children’s Museums that’s behind it. My class took this structure and designed a shading device that was both sustainable and was to mimic nature for educational use. We recycled street signs and cut and bent them in a way that would mimic scales of a lizard when placed in a pattern. We then organized the colors of the signs of both warm and cool colors to get an abstract version of the rainbow that could be found throughout the Museum.

40

CONTINUOUS MOTION

Description

Project Date: Spring 2020

The Continuous motion exercise aimed to analysis a critical part of the body that was then translated into a simpler version of itself but still had the ability to be recognized. In this project it was analyzed that pulling out a chair and sitting down came mostly from the thigh, upper body, and the forearm. This was due to the mass amount of movement done with this simple task. At first it was translated into individual snips of each major event but was finalized where all the movement became one.

42

Handy Work

44
3'2" 2'11 1/2" 2'6 11/32" SLOPE 4"/12" EXTERNAL JOIST 2X6 INTERNAL JOIST 2X4 3'0" 1/2" NEST WALLS 1' SPACING
Chicken Coop
Section
Whiskey Glass Layered Picture Laptop Stand

Drawings

Project Date: Fall 2019

46
Thank You Leonardo Aguilar aguilarbehsmanleon22@gmail.com (636)-385-8435

Turn static files into dynamic content formats.

Create a flipbook
Issuu converts static files into: digital portfolios, online yearbooks, online catalogs, digital photo albums and more. Sign up and create your flipbook.