Anna Grace Rogers Portfolio

Page 1


A N N A G R A C E R O G E R S

B.F.A. Interior Design

Hello, my name is Anna Grace Rogers, and I am an accomplished and committed designer pursuing my Bachelor of Fine Arts in Interior Design at the University of Georgia. With dedication to my craft, I have been able to hone my skills through years if practical experience and hands-on learning opportunities, extending my design expertise far beyond the confines of the classroom.

Throughout my academic journey, I have had the privilege of working on various design projects that have expanded my creativity and expertise. From conceptualizing the interior design of office spaces to designing the layout of residential homes, I have developed a keen eye for detail and the ability to think outside the box.

My ultimate goal is to become a successful interior designer who not only creates beautiful and functional spaces but also makes a positive impact on the lives of others. I believe that design has the power to transform the way we live and work, and I am exited to continue exploring the possibilities of this dynamic industry.

3 7 11 33

CORTONA - NITERIE NATIONALE

Non-Residential Interior Design

May 2024 - August 2024

Skills: Hand Drafting

Materials: Ink and Watercolor on Toned Paper

During the summer, I participated in a unique project abroad in Cortona, Italy. We were tasked with renovating a commercial site on the main street and transform it into a vibrant new venue. I chose to design a burlesque-inspired night club with a swanky vibe, blending modern flair with rich, historical Italian cultural elements. Inspired by the multitude of stray cats in town, elements of the club’s design subtly incorporate feline motifs, adding a playful touch to the atmosphere. The club’s aesthetic is characterized by a luxurious palette of deep reds and greens, creating an intimate yet lively atmosphere reminiscent of a classic jazz club. The two-volume space is accentuated by a striking glass-barreled roof, which bathes the interior with natural light during the day and highlights the ornate design feature at night. The venue spans two-levels, featuring multiple bars and spacious stage area to host visiting artists, musicians, and performers. This unique design not only reflects the vibrant artistic culture of Italy but also provides a modern, stylish twist to the traditional nightclub experience.

CORTONA - NITERIE NATIONALE

Board One

CORTONA - NITERIE NATIONALE

Board Two

LIBRARY ROOM

Time Based Media

January 2024 - May 2024

Skills: 3ds Max

I utilized 3ds Max software in my Time-Based Media class to design a clean and comfortable residential library room. This practice activity allowed me to explore digital space creation, focusing on crafting a serene environment conducive to reading and relaxation. The design features minimalist lines, warm lighting, and thoughtfully arranged furniture, creating an inviting space that balances functionality with aesthetic appeal. This project highlights my ability to blend technical skills with creative vision, resulting in a space that is both practical and visually appealing.

In addition to the aesthetic considerations, I also took into account the functionality of the library space. I integrated ample shelving for books, incorporated cozy seating options, and ensured that the layout promotes easy movement throughout the room. By considering the user experience, I aimed to create an environment that not only looks good but also serves the daily needs of its occupants. This project reinforced the importance of thoughtful design in enhancing the overall atmosphere of a space, demonstrating how effective planning can lead to both comfort and utility in a residential office.

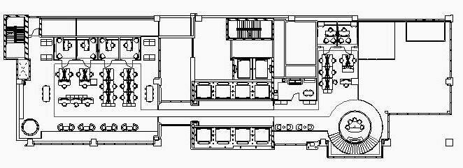
SHINJUKU GRAND HOTEL

Large Scale, Non-Residential Design

August 2024 - December 2024

Skills: AutoCAD, Revit, 3ds Max, Adobe In-Design, Adobe, Illustrator, Adobe Photoshop

The five-star hotel industry is focused on immersing the modern traveler into an individualized and personal experience. The Shinjuku Grand Hotel, located in the vibrant district of Shinjuku, Japan, is driven to create an ambient environment for guests to focus on wellness and their own comfort. Each space carefully considers rejuvenation and Japanese cultural influences, such as the wabi-sabi design practice. I was seeking to redefine 5-star hotels with all these things in mind while also allowing travelers to expand their experience through spa treatments and exquisite dining opportunities.

Ambiance & Nature

RECEPTION

BAR

INTERNET CAFE

RETAIL

CHATEAU D’AMOUR

ELEVATOR LOBBY

LEVEL TWO

FITNESS CENTER

RETAIL

MEDITATION ROOM

UMAMI - RESTAURANT

SIAMAKARA - RESTAURANT

ELEVATOR LOBBY

LEVEL THREE

BANQUET HALL

MEETING ROOMS

BREAKFAST ROOM

FLEX SEATING

ELEVATOR LOBBY

LEVEL FOUR

ELEVATOR LOBBY

LEVEL 1 & MEZZANINE

ENTRY/RECEPTION

RESTAURANT

BATHROOM

INTERNETCAFE

BACKOFHOUSE

WATERFEATURES

LOBBYBAR

RETAIL

FLEXSPACE

GALLERYSPACE

The lobby of any hotel sets the tone for the ambiance and overall experience that the visitors will have. At Shinjuku Grand Hotel, guests will experience a moody atmosphere that is deeply connected to nature through the use of many natural materials and dark ambient lighting. The hotel's mission is to allow travelers to relax and feel transported to an oasis through a sensual ambiance with unique and stylish characteristics. This hotel has an individual personality that differs extensively from any other spa-centric 5-star hotel in the world.

MEZZANINE

Lobby - Bar

LEVEL 2 - Gym, Retail, Restaurants

Level Two of the Shinjuku Hotel offers guests a state-of-the-art gym with luxurious amenities, including changing rooms, a sauna, and meditation spaces. Fitness classes, such as guided pilates, are available. Adjacent to the gym, guests can indulge in five-star dining at Umami for traditional omakase and Siamakara for Thai cuisine. This level combines relaxation, fitness, and fine dining for an unforgettable experience.

SIAMAKARA
BATHROOM
Siamakara - Restaurant

LEVEL 3 - Event Hall & Breakfast Room

EVENT HALL

BREAKFAST ROOM

BATHROOM

KITCHEN

BACK OF HOUSE

MEETING ROOM

FLEX SPACE

Shinjuku Grand Hotel’s event hall exudes sophistication and elegance, offering an expansive, versatile space perfect for grand weddings, corporate events, or intimate gatherings. Adorned with chandeliers, polished hardwood floors, and floor-to-ceiling windows, it is designed to accommodate both large and small parties with seamless functionality. The breakfast room is adjacent to the event hall, a serene and inviting space where guests can indulge in a gourmet morning spread. With plush seating, soft lighting, and an array of freshly prepared options the room provides a relaxed yet refined atmosphere, ensuring each guest starts their day in luxury.

LEVEL 4 - Shinjuku Spa

ENTRY/RECEPTION

PERSONALSPASUITE

DECISIONPOINT

USERCIRCULATION

SIGNAGE/DIRECTORY

CHANGINGROOMS

BEAUTYSALON

BACKOFHOUSE

WATERFEATURES

MEDITATION/YOGA

RETAIL

COMMONSPACE

TREATMENTROOMS

The luxurious spa at Shinjuku Grand Hotel offers an unparalleled retreat for relaxation and rejuvenation. Designed with luxury and tranquility, it features state-of-the-art treatment rooms, private suites and a premium beauty salon to further enhance the high-end experience we provide. Guests can unwind with massages, facials, and body treatments, all of which are designed to provide our guests with the best experience possible. From the warm, candlelit lounge to the serene meditation spaces, every corner is crafted to provide a pampering escape from reality.

Lounge Space

Each bungalow suite offers a luxurious retreat, featuring a comfortable day bed, a stand-alone Jacuzzi tub, and stairs leading into a warm pool with breathtaking panoramic views of the Shinjuku skyline. This tranquil haven combines ultimate relaxation with unparalleled views, creating an unforgettable escape in the heart of Japan.

Personal Suites

LEVEL 30

The 30th floor of the hotel is a testament to meticulous design, housing three distinct spaces-the presidential suite, the executive club, and the five-star Moroccan restaurant, Zellij. Each space is crafted with precision to create an environment that guests will love to visit. The presidential suite is a private sanctuary, offering guests a home away from home. Adjacent to this is the executive club, a haven for relaxation and unwinding, exclusively available to guests staying in our suite rooms. The exclusivity of this space offers a range of amenities that surpass the standard hotel experience. Lastly, Zellij is a Moroccan-style dining experience, inviting all guests to savor a specially curated menu. Together, these three spaces on the 30th floor create an unparalleled luxury experience that promises to leave lasting memories for every guest.

PRESIDENTIAL SUITE

ZELLIJ EXECUTIVE

Executive Club

Zellij Restaurant

STEELCASE - NEXT

Spacing, Programming and Office Design

August 2023- December 2023

Skills: Revit, AutoCAD, and Enscape

Steelcase’s NEXT student design competition presents an exciting opportunity for aspiring designers to work with real clients. The 2023 competition, which took place in Dallas, Texas, involved designing for a prominent global architecture and interior design firm, providing students the chance to explore real-world examples of interior design. The project spanned an entire semester and involved numerous design elements, including adding a mezzanine to a thirty-foot tall space, allowing for individual conceptualization of the project.

Adhering to the given guidelines, my objective was to create a workspace that included a homely ambiance for the NEXT employees, with warm neutral tones and comfortable materials. I also emphasized the significance of flow and accessibility for all employees, aligning with NEXT’s core values of diversity, equity, inclusion, and sustainability.

The client, NEXT - an architecture and interior design firm- seeks a novel and inventive design for their upcoming office in Dallas, Texas. As a firm that values sustainability, diversity, equity, and inclusion, they aspire to have these principles reflected in the design of their new workspace.

Considering the rising prevalence of hybrid workplaces in today’s postpandemic society, my aim is to create a space that adheres to the company ’ s core values while also prioritizing the comfort and convenience of the employees. After all, at NEXT, home is where the heart is.

texas

Comforts of Home

Steelcase’s “Comforts of Home” color scheme incorporates soft neutrals and natural materials to bring the cozy feel of home to the office. NEXT prioritizes employee well-being, experience, engagement, and collaboration, aiming to create a comfortable and intentional design in all client projects, as well as their personal office space.

F i r s t F l o o r

S c a l e : 1 / 4 " - 1 ' - 0 "

M e z z a n i n e

S c a l e : 1 / 4 " - 1 ' - 0 "

M e z z a n i n e

S c a l e : 1 / 4 " - 1 ' - 0 "

F i r s t F l o o r

S c a l e : 1 / 4 " - 1 ' - 0 "

Mezzanine Level

RECEPTION

Coalesse Circa Round Table

West Elm Work Mesa

Sectional

West Elm Work

Sterling Conference Chair

Burin Mini Low Table

West Elm Work Lucas Chair

Meeting Room

Work Cafe

Rejuvenation Spaces

BEND, OREGON HOUSE

Computer Aided Design for Interiors

January 2023- May 2023

Skills: Revit, AutoCAD

The residential spaces of the Pacific Northwest are characterized by distinct aesthetic sensibilities that were integral to this project. My responsibility was to investigate the relationship between public and private areas within domestic settings, as well as the role of topography in design. The project, situated in Bend, Oregon, presented unique features, including its proximity to natural elements. Incorporating these elements into the design of the home was crucial, leading to the creation of outdoor seating areas and roof structures.

With a mindful approach to sustainability and regional aesthetics, I was able to establish a harmonious balance between the natural and built environments. Utilizing the site’s southern light and topography, this Bend, Oregon home is a comfortable retreat that honors the region’s magnificent geography.

S e c o n d F l o o r

S c a l e : 1 / 4 " - 1 ' - 0 "

F i r s t F l o o r

S c a l e : 1 / 4 " - 1 ' - 0 "

The home’s first floor entry and porch area creates a warm and inviting atmosphere. The use of glass curtain walls at the front of the home illuminates the public areas on the first floor with natural light. Additionally, the second floor deck offers picturesque views of the river located to the south. It provides an ideal space for both public and private seating, accessible to all spaces.

Kitchen and Living Room

Dining Room and Kitchen

The wall section’s analysis reveals my ability to design functional and visually appealing homes. The selection of materials and the placement of openings showcases ingenuity around maximizing natural light and ventilation. The interplay between these elements is a testament to the my commitment to creating innovative, comfortable, and aesthetically sophisticated spaces that go beyond ordinary design concepts.

The approach to home design is rooted in a profound comprehension of the relationship between the architecture, nature and human behavior. By exploring building systems, I have gained a deeper understanding of the structural elements that underpin a house. Having this deep understanding of architecture and engineering processes helps to create more structurally accurate homes.

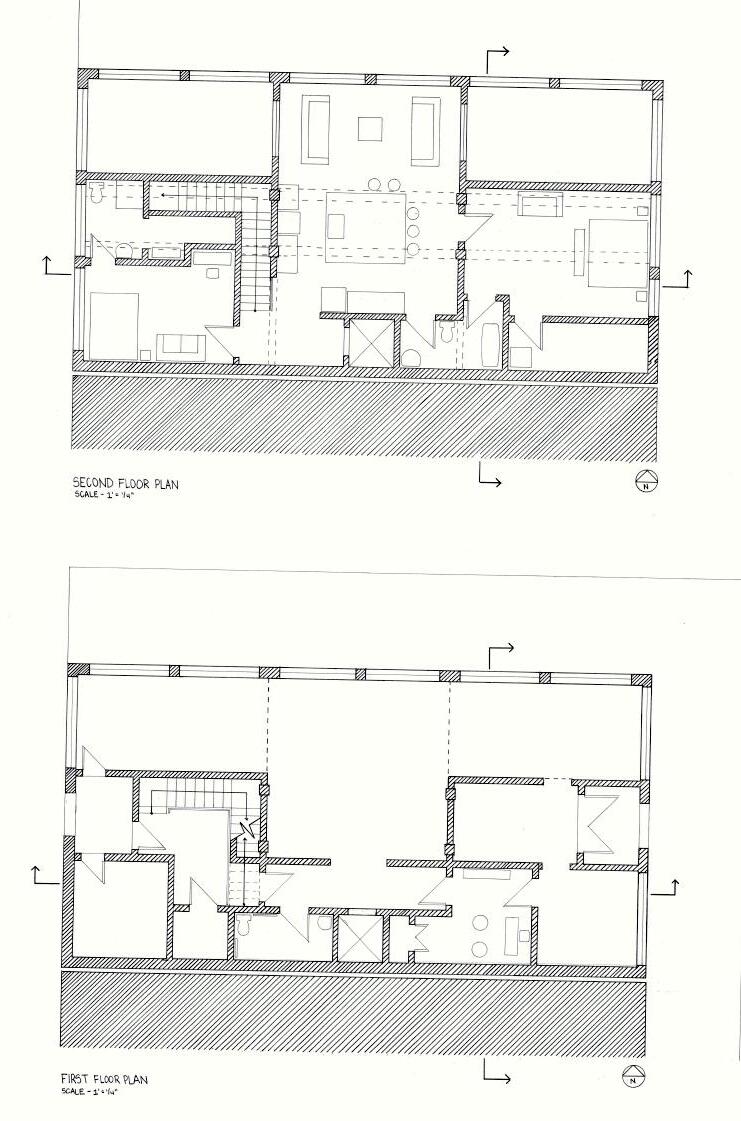
HOME AND OFFICE GALLERY

Documenting Interior Design Processes

January 2023- May 2023

Skills: Hand Drafting

The design of this mixed-use residence allowed me to practice my skills in drafting and oral presentations. The split level space is located in an urban area, entailing design problems related to privacy, safety , and a confined boundary. With residential living upstairs, and a gallery and office space below, I explored the idea of combining a work-life balance, where neither infringes on the other. The specific design requirements of this project included an art gallery, a two-volume space, office and meeting spaces, handicap and ADA compliances, and essential living quarters for a small family.

The split-level design allowed for separation between the residential and work areas while still maintaining a sense of openness and connection. Overall, the design of this mixed-used residence allowed me to develop a unique set of skills and produce a functional and aesthetically pleasing space.

The dual-purpose layout of this home offers adaptable spaces that serve to enhance productivity, functionality, and provide a sanctuary for the family. The layout was executed to ensure sufficient privacy while creating an environment that feels wellsuited to its intended purpose. Designing opportunities, including the ability to prioritize safety for the homeowners.

The dual-purpose layout of this home offers adaptable spaces that serve to enhance productivity, functionality, and provide a sanctuary for the family. The layout was executed to ensure sufficient privacy while creating an environment that feels wellsuited to its intended purpose. Designing opportunities, including the ability to prioritize safety for the homeowners. S E C O N D F L O O R

The plan oblique, a non-traditional orthographic view, was integral in conceptualizing the building’s design. The ability to draw the environment by hand facilitated a better understanding of the spatial relationships between the various areas.

L o n g i t u d i n a l E l e v a t i o n

S c a l e : 1 / 4 " - 1 ' - 0 "

r s e S e c t i o n

S c a l e : 1 / 4 - 1 ' - 0 "

FOUR-SQUARE HOUSE

Single Family Residences

August 2022- December 2022

Skills: Hand Drafting

During my initial studio class, Single Family and Residential Design, I developed and refined my hand drafting skills, dedicating time to the process while exploring design fundamentals. This experience proved instrumental in my acquisition of essential skills in the industry and understanding the concept of spatial organization. I was able to practice the nuances of pocheing, line weights, angles, and clean lines.

The “Four-Square House” assignment was intended as an introduction to the concept of “design problems.” Students were required to devise a single-family residential plan within the confines of a standard four-square layout. Mu design prioritized the flow of movement through the rooms. Each space was thoughtfully designed based on lighting, windows, and basic living necessities.

S e c o n d F l o o r

S c a l e : 1 / 4 " - 1 ' - 0 "

F i r s t F l o o r

S c a l e : 1 / 4 " - 1 ' - 0 "

The second floor of a house can be both a place of comfort and productivity. This space has been thoughtfully designed to maximize space. Despite the challenge of a tow-volume of space, I was able to create a layout that is both functional and aesthetically pleasing.

This residence focuses on promoting flow through a careful articulation of walls and designated spaces. The first floor accommodates a kithen, living room, powder room, and dining room, while also solving the challenge of integrating a central staircase.

Devoting ample time to mastering the fundamentals of staircases and structural concepts in the studio has been instrumental in shaping my design approach throughout my academic journey. Hand drafting provides a deeper understanding of a building’s articulation beyond computer renderings and software. Additionally, the use of transverse and longitudinal cross-sections has been beneficial in comprehending various roof structures and pitches.

Turn static files into dynamic content formats.

Create a flipbook
Issuu converts static files into: digital portfolios, online yearbooks, online catalogs, digital photo albums and more. Sign up and create your flipbook.
Anna Grace Rogers Portfolio by ag_rogers - Issuu