Raya_Afsara Mobashira_Portfolio_23

Page 1

1

https://www.linkedin.com/in/afsaramobashira-raya-151022003ar/

3
TABLE OF CONTENTS 1 2 3 4 5 6
Kanchpur Bus Terminal Lecrurer Dorm BORAL BIDDYA NIKETON: Sustainable Educational Space Serenity Oasis Pavilion Case Study Building 8 Bangladesh Power Development Board (BPDB) Renovation Page: 6-11 Page: 12-13 Page: 14-17 Page: 18-21 Page: 22-27 Page: 28-31
7 8 9 10 11 12
in synergy MPavilion 2018
Commons Pavilion Digital Design Spectrum Aesthetic Odyssey: a visual Journey A Glimpse of Artistry
Symmetry
Cohes-
32-35
Page:
36-41
42-43
44-45
Page:
Page:
Page: Page:
46-47
5
Page: 48-49

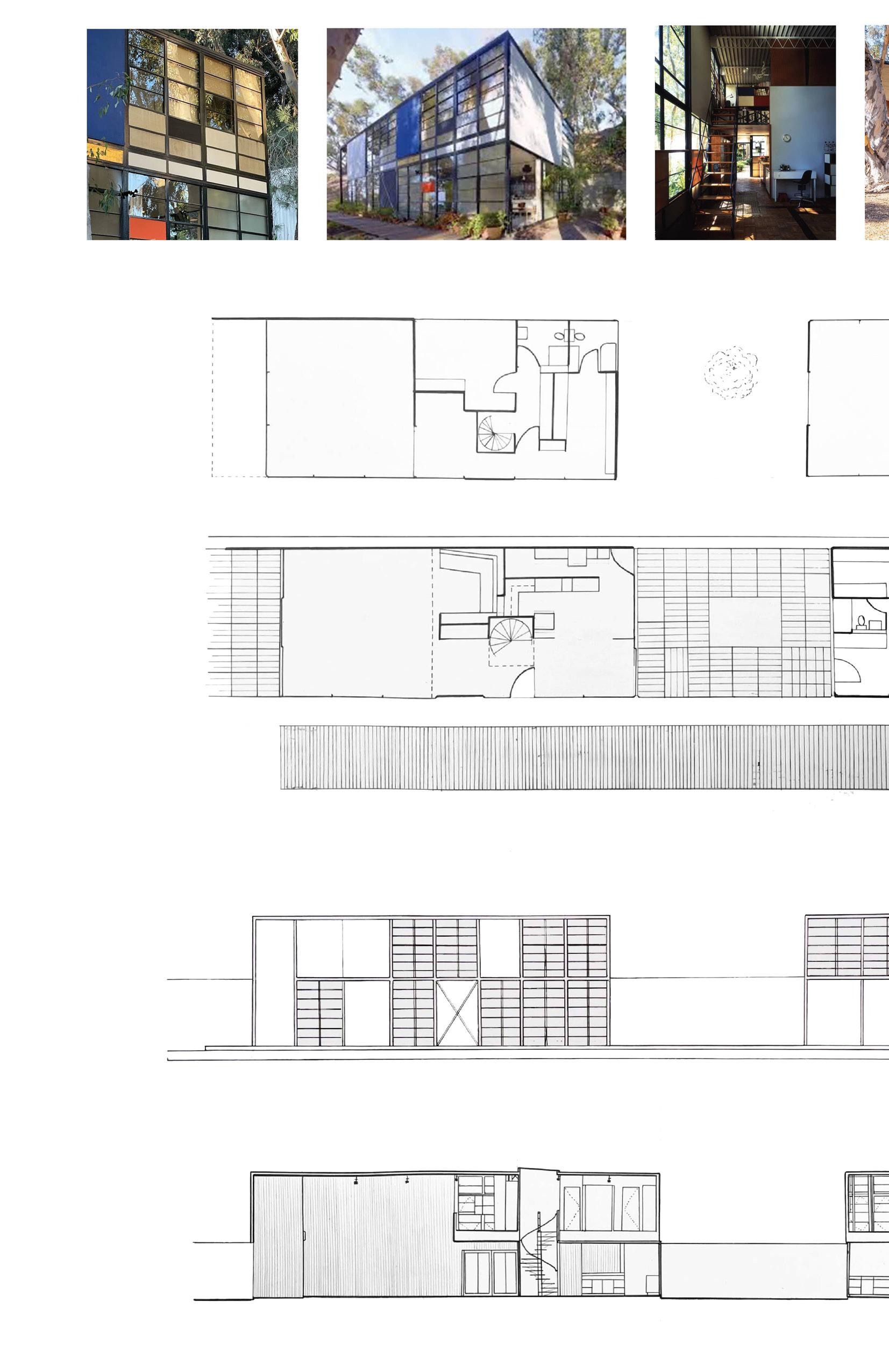
KANCHPUR BUS TERMINAL

Site Analysis: Strategically located on a 16-acre site near the Dhaka-Chattogram Highway, addressing urban connectivity needs.

Visualization Expertise: Proficiently used Enscape for realistic renderings, and AutoCAD for precise floor plans and diagrams.

Aesthetic Sensibility: Designed unique wavy pyramid-shaped roof over canopies. Strategic locations and site analysis, enhancing connectivity in transportation infrastructure.

7
3D render by Enscape
9
11

LECTURER DORM

Project Overview:

• Nine-story lecturer dormitory located in Barisal, Bangladesh.

• 3D model created using SketchUp for visualization and planning.

• Dormitory designed with six partitions, each containing four rooms.

• Individual rooms tailored for bachelor lecturers, including a bedroom, bathroom, and open kitchen.

3D Model done by SketchUp 13

BRICK STUDY

Brick study is done in SKETCHUP. A particular brick unit together creates aesthetic, functional design to replace window for ventilation system.

BORAL BIDDYA NIKETON: Sustainable

Sustainable Educational Space

Project Overview:

• 3D model created in SketchUp illustrating the structural elements and accessible pathways.

• Emphasis on creating an educational space focused on processes over products.

• Utilized natural, sustainable, and cost-effective materials like mud, wood, and bricks.

• Innovative brick design for natural light and ventilation, reducing the need for glass or windows.

• Detailed analysis of brick design for varying light patterns based on time and weather conditions.

• An inclusive and environmentally conscious educational space for long term.

15
3D Model by SketchUp
17
Plans made by AutoCad Rendered in Photoshop

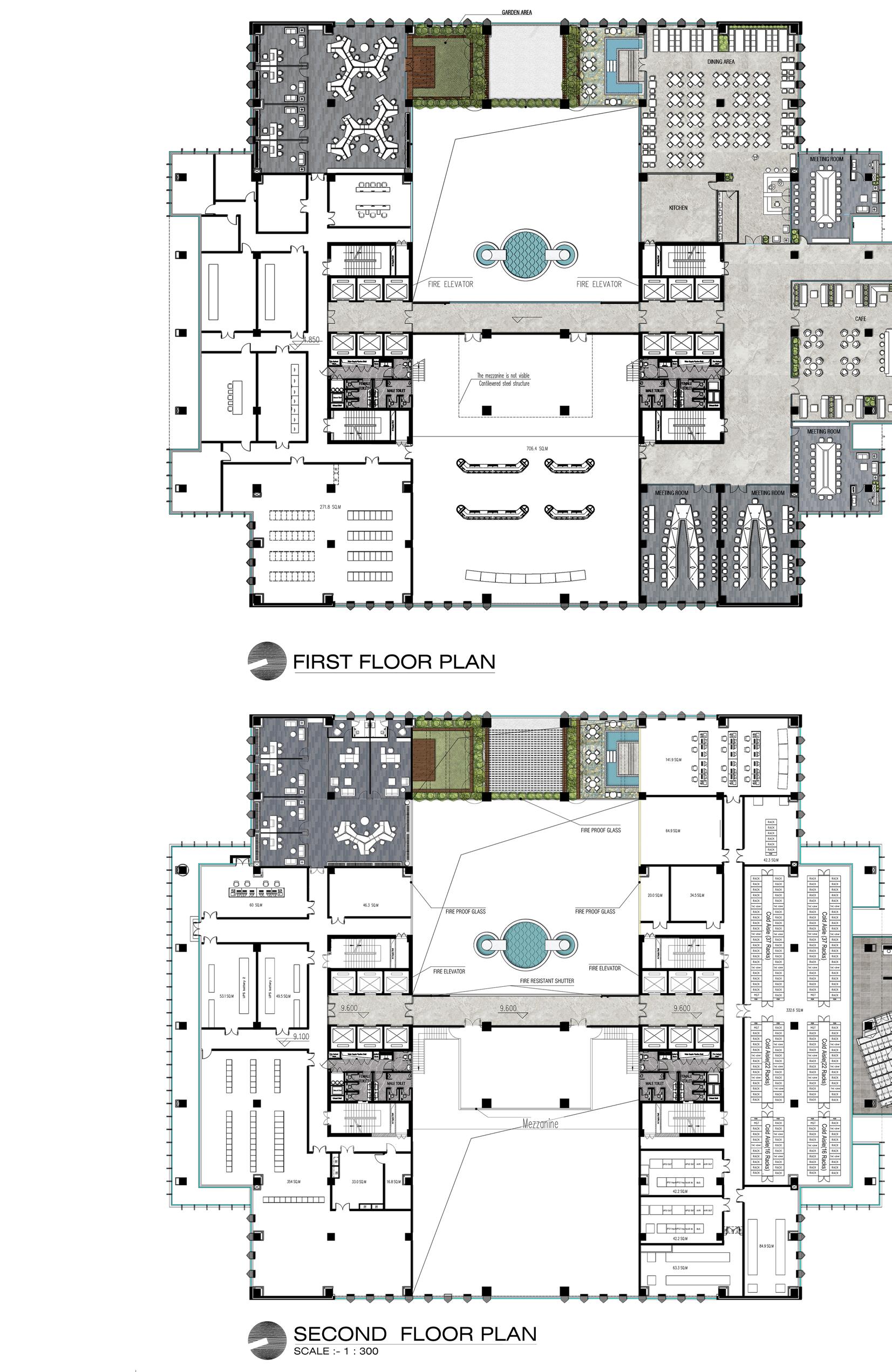
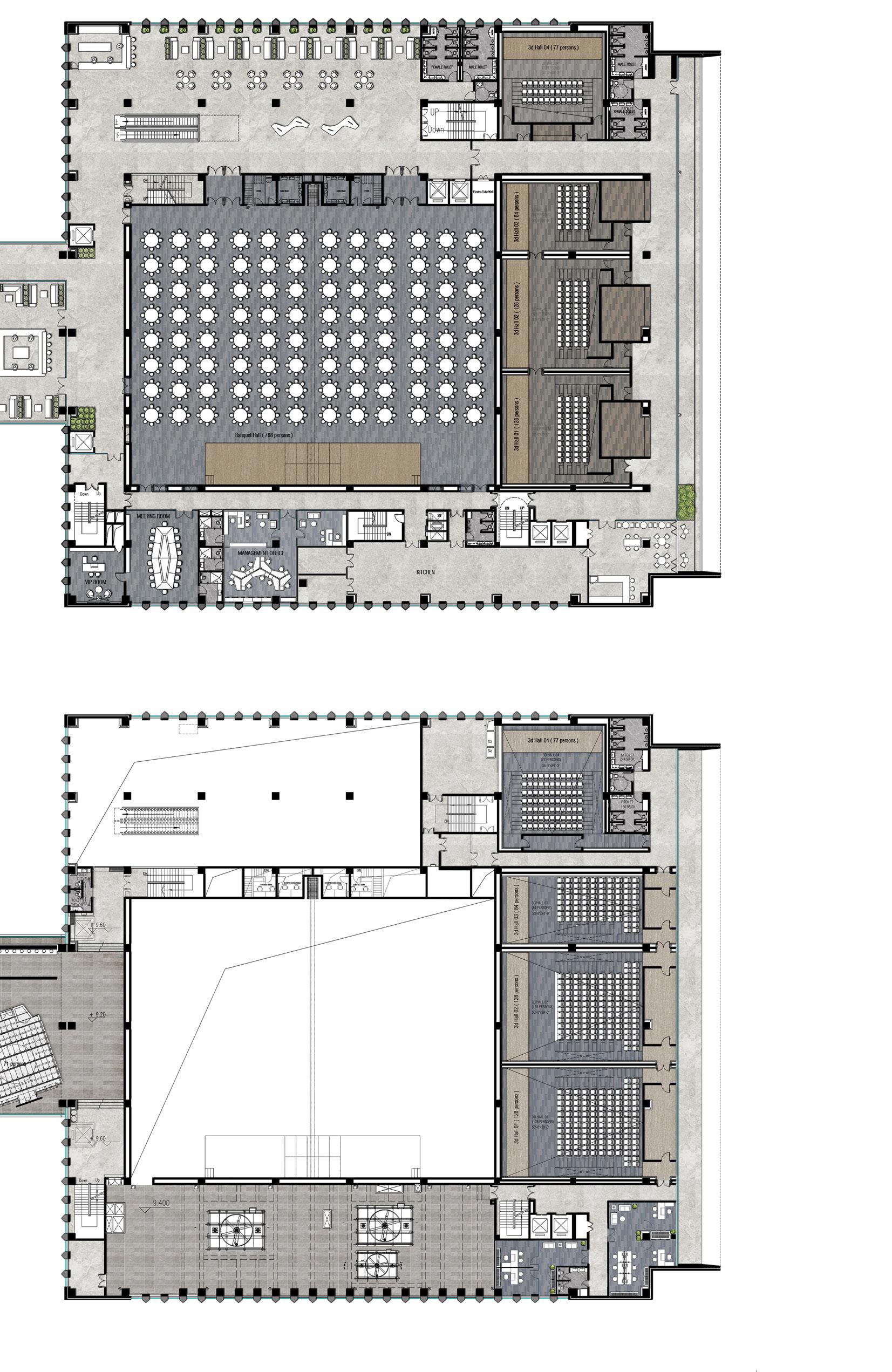
Bangladesh Power Development Board (BPDB) Renovation

BPDB is located in Motijheel, Bangladesh as shown in the map.

Project Overview:

• Government project focused on renovating the Bangladesh Power Development Board building.

• Renderings created by Photoshop to showcase the design.

• Notable features include a captivating digital exhibition hall on the ground floor and an expanded banquet hall on the second floor, designed for greater accessibility and capacity.

19
21
SECTION VEGETATION DIAGRAM SUN PATH & WIND DIRECTION DIAGRAM SWEPT PATH DIAGRAM
TOPOGRAPHY
SITE

SERENITY OASIS PAVILION

Diagrams and Modeling:

• Diagrams illustrate surrounding vegetation, wind flow, and sun path to showcase the natural influence on the pavilion.

• Diagrams also depict vehicular and pedestrian movement within the site.

• The Rhino model demonstrates the intricate interplay of light within the pavilion.

• Thorough consideration of materials, lighting, and circulation.

• Thoughtful integration of natural elements into the pavilion’s design.

Site Description:

• Site was chosen in Burnet Woods, Cincinnati, Ohio, for its accessibility and park-like setting.

• Natural landscape features gentle hills, enhancing the sense of descending into the pavilion’s stage area.

Project Overview:

• Physical model constructed with burnished basswoods for four stepped levels.

• Pavilion design features wooden walls, glass seating, solid concrete facade, and a ceiling.

• Transparent seating provides a serene floating sensation during meditation.

• The playful interplay of light and shadow provides a peaceful ambience because horizontal and vertical wooden beams let natural light into the space.

• Three supporting columns bear the weight of two upper frames.

• Solid ceiling provides shade and protection from harsh weather.

• Private meditation area offers seclusion and a maze-like experience.

PLAN DIAGRAM 23
25
Physical Model Rendered in Photoshop
27
PLAN ELEVATION SECTION

CASE STUDY BUILDING 8

Project Overview:

• In-depth analysis of case study Building 8, focusing on internal spaces and façade design.

• Hand-drawn architectural plan, section, and elevation.

Design Features:

• Interior and facade analysis, with a particular emphasis on the De Stijl movement’s colour principles.

• Diagrams highlighting three distinct areas with unique conceptual meanings.

• Showcased the ability to extract and visualise unique meanings within architectural spaces.

29
DIAGRAMS
DIAGRAMS 31

SYMMETRY IN SYNERGY

MEDIUM: WOOD, METAL

SCALE: 8’ *6’ *1’6”

Project Overview:

• Collaborative exploration of symmetrical and repeated forms.

• Utilised wood for the frame and metal for twisty hexagonal sections.

• My primary role was to analyse and design the wooden frame that complements the twisty hexagons.

Design Details:

• Used L-shaped frames to support and integrate hexagonal curves for reflective balance.

• Hexagonal metal curves incorporated for reflection and visual balance.

• Detailed drawings showcasing scale, construction, and seamless wooden-metal connections.

• Construction and Collaboration:

• Hands-on involvement in crafting wooden frames.

• Collaborated with the team to connect steel frames to the wooden structure.

• Achieved portable modular units with versatile design configuration.

33
35

MPAVILION 2018 -

Project Overview:

• Detailed analysis of Mpavilion 2018 by Creme Pinos

• Analysis of the site, architectural forms, construction

Contributions:

• Developed a 3D model, plan, and section using Rhino

• Rendered the project in Photoshop to convey its visual

• Diagrams showing the structural frameworks and their

• Demonstrated a deep understanding of architectural

Design and Construction Insights:

• Detailed drawing of the main beam supporting the roof

• Uniquely designed seating areas that not only support

• Emphasis on the pavilion’s open design, facilitating easy

PRECEDENT

PRECEDENT STUDY

in Melbourne, Australia. methods, and circulation within the pavilion.

Rhino software. visual appeal. their connection with the site. form, construction techniques, within a real-world context.

roof structure, including gutters and rafters in diagram. support the roof but enhance visitor experience. easy circulation from all sides.

37
DIAGRAMS
DIAGRAMS 39

MPavilion 2018 - ELEVATION

Carme Pinos

Melbourne, Australia

MPavilion 2018 - SECTION

Carme Pinos

Melbourne, Australia

41

COHES-COMMONS

MEDIUM: SCALE: 9”

My design of DAAP’s through students. ensuring original skylights illuminates connect

COHES-COMMONS PAVILION

design concept for the Cohes-Commons Pavilion emerged from an in-depth site study DAAP’s rooftop. This pavilion serves as a vibrant student hub for recreation.The entry is through the eighth floor library, offers a walking track and scenic seating areas for weary students. The thoughtful use of panels and columns balances openness and privacy while ensuring ample natural light and ventilation. The design inspiration came from DAAP’s original plan, integrating green spaces seamlessly with walking trails. There are three skylights between the shade’s joints for weather protection, and artificial lighting illuminates the pavilion at night, creating a versatile and inviting space for students to connect and unwind.

WOOD, BOARD *9” * 9” 43

DIGITAL DESIGN

These selected digital designs highlight proficiency and Revit.

“Dynamic Architectural Form”: A project demonstrating using Grasshopper, showcasing advanced color manipulation “Lavender House Interior”: Shows plan, section, House by iHouse Estudio.

“One Half House Iteration”: A Revit drawing of “One placement of half circles, triangles, and rectangles,

proficiency in various software applications like Photoshop, Grasshopper, demonstrating space frames, rotating skyscrapers, and surface panelling manipulation techniques. elevation and a captivating visual interior rendering of Lavender

“One Half House” by John Hejduk, reimagining it with innovative rectangles, creating a unique spatial experience.

Plan, Section, Elevation drawing in AutoCAD Rendered in Photoshop DESIGN SPECTRUM
45

Aesthetic Odyssey: A

1. Life in Spices

MEDIUM: VEGETABLE, SPICES

SIZE: 32.28’’ * 18.50’’ * 0.59’’

This piece depicts the evolution of life, from a fetus to an old woman falling into her deathbed. I used Indian spices and vegetables, such as: cinnamon, cloves, corn, cumin, cardamom, bay leaves, black pepper, mustard seed and garlic to create the human miniature models.It captures growth and decline, merging art and culture within architecture.

2. CONSTRUCTED

MEDIUM: PLASTER, This project solid plaster exemplifying and function. various options ultimately, feature to harmonious a central, material available stability and the seamless architectural exemplifies and function harmonious ingenuity.

MEDIUM: NEEDLES, SIZE: 19’’

commemorates heroes textile industries. are the rapid enduring unsafe exemplifying dedication progress. victim in Bangladesh.

This
3. SACRIFICE

Visual Journey

CONSTRUCTED SOLID MATERIAL

PLASTER, ERASER

project showcases an innovative fusion of plaster cubes and materials, exemplifying the delicate balance between form function. After thorough analysis of options like staples, corks, clay, ultimately, I chose erasers for its lightweight to achieve a challenging but harmonious equilibrium, effectively supporting central, heavier plaster cube.Leveraging weights strategically, it optimises space. The stepped design ensures and aesthetic appeal, demonstrating seamless integration of diverse elements in architectural composition. This project exemplifies materials not only balances form function but also demonstrates a harmonious union of aesthetics and structural ingenuity.

SACRIFICE

self-portrait commemorates the unsung heroes of Bangladesh’s textile and garment industries. These workers the secret behind the rapid economic growth while enduring low wages and unsafe working conditions, exemplifying resilience and dedication for our nation’s progress. It is a tribute to the victim of Rana Plaza Collaspe Bangladesh.

MEDIUM: FEBRIC,BUTTONS, CLAY, NEEDLES, THREAD 19’’ * 23’’
47

Quick Sketches

Paintings( Acrylic color, Gouche, Water color) & pencil sketch

Collages inspired by Movies
GLIMPSE of ARTISTRY
A
ARTISTRY 49
THANK YOU AFSARA MOBASHIRA RAYA rayaaa@mail.uc.edu 513-957-6821

Turn static files into dynamic content formats.

Create a flipbook
Issuu converts static files into: digital portfolios, online yearbooks, online catalogs, digital photo albums and more. Sign up and create your flipbook.
Raya_Afsara Mobashira_Portfolio_23 by afsararaya - Issuu