Cascina San Quirico_Morozzo

Page 1

PROGETTO DI TUTELA E VALORIZZAZIONE DELLA CASCINA SAN QUIRICO PER LA CREAZIONE DI AMBIENTI PER LO SVILUPPO DEL CONSORZIO DI TUTELA DEL CAPPONE DI MOROZZO E DEI PRODOTTI AGROALIMENTARI LOCALI Comune di Morozzo OPERA PIA PEYRONE ABSTRACT A&T Progetti srl Sede legale: Via Savigliano 3 12045 Fossano Sede operativa: Via Albenga 11/3 - 10134 Torino Italy +39 3477134615 PI (VAT) 0341650048 Arch. Michele Bossio Dott.For. Marco Calandri Ing. Riccardo Porcù CASCINA SAN QUIRICO
ELABORATI DI PROGETTO - PRIMO LOTTO FUNZIONALE D’INTERVENTO Relazione di approfondimento dell’intervento in progetto Planimetria Generale Pianta Piano Terra Pianta Piano Primo Pianta Piano Secondo Fotoinserimenti - Render 10 3 11 6 12 14 7 Tav. Pag. 13 15 8 9 10 15

Elaborati stato di progetto - Primo lotto funzionale d’intervento

INTRODUZIONE

I risultati del progetto contribuiranno ad attivare e rendere partecipi direttamente le comunità, le istituzioni culturali, scolastiche e le associazioni locali ai processi di valorizzazione, ricerca, fruizione attiva e promozione delle eccellenze enogastronomiche locali e del patrimonio culturale e ambientale compresi i mestieri, i “saperi” tramandati e le tradizioni; incrementando così il senso di appartenenza delle identità locali, la valorizzazione delle radici storiche delle comunità, dell’identità e del patrimonio storico e ambientale. L’apporto delle Asl al progetto e per l’attività di studio e monitoraggio del centro di macellazione del Cappone, la possibilità di poter utilizzare il macello del consorzio dai produttori anche per altre specie avicole da cortile durante l’anno e potrà dare un impulso considerevole a promuovere i prodotti agroalimentari locali e sostenere la piccola economia del territorio. Con l’Università degli Studi di Torino – facoltà di Veterinaria, verrà sviluppato una sorta di laboratorio sperimentale con studi e seminari di approfondimento dei prodotti agroalimentari locali caratterizzati sotto il profilo nutrizionale e organizzati percorsi didattici volti a valorizzare tali prodotti con iniziative volte alla disseminazione dei concetti di qualità, genuinità e territorialità. L’Ente parco potrà infine svolgere attività di educazione ambientale.

RELAZIONE TECNICA DEI LAVORI IN PROGETTO - PRIMO LOTTO FUNZIONALE D’INTERVENTO

La realizzazione dell’incubatoio, dei locali per la macellazione al piano terreno e la sala conferenze al piano primo, renderanno già fruibile (in modo parziale) il bene in oggetto. Particolare attenzione verrà posta sul restauro e conservazione della cascina il cui stato strutturale è abbastanza degradato e al ripristino dell’apparato decorativo sulla facciata nord.

Le lavorazioni edili previste comprenderanno:

Intervento di risanamento conservativo Ripristino dei soffitti lignei Rifacimento tetto con capriate a vista e orditura esistente

La posa di nuova lattoneria in rame (gronde – discese e terminali in ghisa ove occorrente)

La sostituzione serramenti interni ed esterni a tutti i livelli

L’adeguamento impiantistico con creazione della centrale termica (impianto elettrico e forza motrice, impianto idrico sanitario, impianto di videosorveglianza impianto di macellazione)

Interventi per il superamento delle barriere architettoniche e la creazione di servizi igienici per disabili al piano terreno

La creazione di una scala esterna di sicurezza e accesso per il raggiungimento della sala conferenza al piano primo

Gli arredi negli spazi comuni e nella sala conferenza completano l’intervento sul primo lotto funzionale.

NB

Gli interventi sono orientati ad alleggerire la struttura, aumentare le caratteristiche meccaniche delle varie parti, sostituire quelle fortemente indebolite o degradate; tutti gli interventi non dovranno modificare il comportamento globale dell’edificio stesso con aumenti asimmetrici e forti cambi di rigidezze.

3
RELAZIONE DI APPROFONDIMENTO DELL’INTERVENTO IN PROGETTO10
PROGETTO
DI
TUTELA
E VALORIZZAZIONE DELLA CASCINA SAN QUIRICO PER LA CREAZIONE
DI AMBIENTI PER LO SVILUPPO DEL CONSORZIO DI TUTELA DEL CAPPONE DI MOROZZO E DEI PRODOTTI AGROALIMENTARI
LOCALI

Elaborati stato di progetto - Primo lotto funzionale d’intervento

TIPOLOGIA INTERVENTI

FONDAZIONI

Sull’intero perimetro dovrà essere prevista una fondazione ad allargamento, con eventuali tratti di sottomurazione, tale da consentire un bloccaggio al piede sia dei pilastri che delle murature tale da non cambiarne la rigidezza ma di contribuire ad una distribuzione dei maggiori carichi di progetto oltre che ad un allontanamento delle acque superficiali. Particolare cura dovrà essere posta nei tratti di murature con basamenti in pietrame irregolare eseguendo un opportuno allargamento e ripristino delle connessioni con la muratura.

PILASTRI IN MURATURA

I pilastri in muratura di mattoni presenti nel portico e nel granaio del primo piano saranno stabilizzati maggiormente con cuciture verticali-inclinate che ne aumentino la resistenza a flessione. La base dei pilastri sarà immorsata nelle fondazioni o nei cordoli perimetrali presenti al primo piano. La copertura dovrà essere fissata tramite ancoraggi a barre sull’appoggio superiore dei pilastri allo scopo di traferirne i carichi orizzontali da vento o sisma.

MURATURE PORTANTI

Le murature dovranno essere oggetto di più interventi locali di consolidamento interno ed esterno e, vista la struttura di quelle del piano terra, un confinamento con cuciture e intonaci armati che ne aumentino le capacità meccaniche sia per i carichi verticali che orizzontali.

MURATURE DI TAMPONAMENTO

Le pareti esistenti che sono da integrarsi con la struttura esistente garantiscono, con i rinforzi e i miglioramenti previsti, un adeguata integrazione e comportamento globale della struttura finale

ARCHI

Gli archi dovranno essere scaricati di tutti i pesi permanenti superiori dovuti a rinfianchi poco aderenti e di scarsa resistenza. L’arco dovrà essere sottoposto a pulizia con eventuale ristilatura dei giunti e ripristino di elementi mancanti. Verranno poste in opera sull’estradosso dell’arco delle fibre o altri elementi applicati tramite malte o resine allo scopo di contrastare trazioni dovute al maggior carico di progetto. Occorre effettuare il rifacimento della catena e dei sui contrasti sui contrafforti esterni. Occorre prevedere di utilizzare tale arco per il sostegno integrale delle nuove solette del primo piano senza l’appoggio intermedio sulle volte.

VOLTE

Analogamente per le volte occorre alleggerire l’estradosso e provvedere al ripristino di parti mancanti. La volta dovrà essere messa in sicurezza con fibre a trazione e comunque, vista la scarsa portata della stessa, non verrà utilizzata per il sostegno della nuova soletta. Per le volte fortemente lesionate con l’eventuale presenza di disallineamenti e cedimenti occorre preventivamente stabilizzare le murature portanti con cuciture e/o catene. Successivamente effettuare il ripristino della geometria, la sigillatura delle fessurazioni con malte, eventuali cuciture e il trattamento tramite fibre all’estradosso della volta

COPERTURA

La copertura costituita da capriate, travi e coppi superiori dovrà essere mantenuta rinforzando le connessioni esistenti e sostituendo o intensificando il passo delle travi e dei listelli. Il ripristino dei nodi dovrà avvenire con piastre, viti, fasciature e quanto altro necessario per realizzare un intervento senza l’indebolimento delle sezioni delle travi esistenti.

ELEMENTI NON STRUTTURALI

Eventuali fregi e particolarità di pregio artistico oltre ad altri elementi non facenti parte della struttura globale dell’edificio (muretti abbeveratoi, muretti esterni ecc) devono essere stabilizzati effettuando cuciture solidarizzazioni tali da consentirne la messa in sicurezza dal punto di vista statico e sismico.

4
RELAZIONE DI APPROFONDIMENTO DELL’INTERVENTO IN PROGETTO10
Si rimanda allegato A

Elaborati stato di progetto - Primo lotto funzionale d’intervento

ITER PROGETTUALE

FASE 1

Rilievo Fotogrammetrico aereo dell’esterno della Cascina mediante volo programmato con drone Rilievo Fotogrammetrico terrestre Rilievo topografico per georeferenziazione del rilievo complessivo con la predisposizione di: Nuvola di punti esterni della Cascina

Immagini ad alta definizione dei prospetti esterni e della pianta della copertura Georeferenziazione del rilievo FASE 2

Rilievo Laser scanner dell’esterno della Cascina

Rilievo Laser scanner di tutte le stanze e dei locali interni della Cascina con la predisposizione di: Nuvola di punti di tutti i locali referenziati tra di loro FASE 3

Creazione della nuvola di punti completa ottenute dalle scansioni laser e dal rilievo fotogrammetrico e (esterno+interno della Cascina) con la predisposizione di: Stato di fatto del bene Stato dei degradi FASE 4

Creazione di un modello 3d completo (esterno+interno) dello stato attuale di tutta la Cascina, comprese le volte interne, e georeferenziazione nel sistema WGS 84 UTM 32 N. FASE 5

Predisposizione del progetto d’intervento definitivo e della documentazione necessaria per la presentazione dei dossier di richiesta di finanziamento utilizzando il modello 3d dello stato attuale per la realizzazione dei lotti funzionali d’intervento.

VERRÀ SVILUPPATO IL PROGETTO COMPRENSIVO DI COMPUTO METRICO ESTIMATIVO SUDDIVISO PER TRE LOTTI FUNZIONALI D’INTERVENTO:

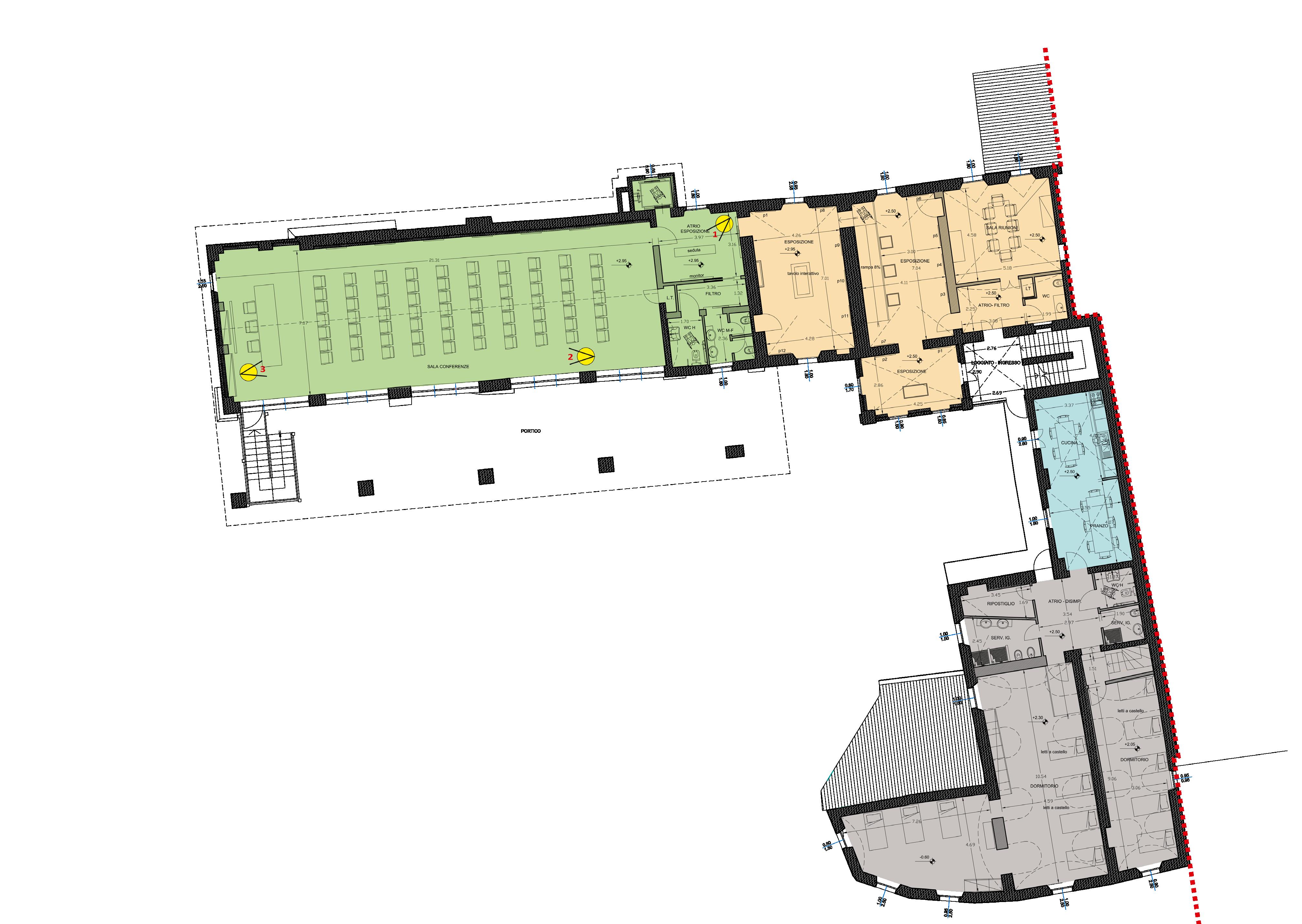
PRIMO LOTTO FUNZIONALE D’INTERVENTO - Recupero del fabbricato rurale con creazione dell’incubatoio e dei locali di macellazione e sala conferenze al primo piano

SECONDO LOTTO FUNZIONALE D’INTERVENTO - Recupero del fabbricato patronale con locali di vendita e promozione dei prodotti locali; spazi espositivi legati alla storia del cappone e dei prodotti enogastronomici locali ad uso foresteria;

TERZO LOTTO FUNZIONALE D’INTERVENTO - Recupero del fabbricato rurale antico con spazi per la didattica, ad uso ricettivo per studenti e frequentatori della struttura; uffici per il personale del parco naturale dell’oasi crava di Morozzo.

IN FASE DI REALIZZAZIONE DEI LAVORI DI RECUPERO: Video da drone dell’esterno pre/post restauro Timelapse delle varie fasi di cantiere

5
RELAZIONE DI APPROFONDIMENTO DELL’INTERVENTO IN PROGETTO10
PROGETTO DI TUTELA E VALORIZZAZIONE DELLA CASCINA SAN QUIRICO PER LA CREAZIONE DI AMBIENTI PER LO SVILUPPO DEL CONSORZIO DI TUTELA DEL CAPPONE DI MOROZZO E DEI PRODOTTI AGROALIMENTARI LOCALI

Planimetria

Tipologia:

Pertinenze:

Destinazioni d’uso

Passaggio principale

Impianto di Fitodepurazione

Pavimentazione in pietra

Area Verde - Siepe

Area di manovra mezzi raccolta rifiuti

Ingresso ascensore disabili

Area vasca e contenitore rifiuti

Stazionamento carico - scarico incubatoio

Stazionamento e scarico

Stazionamento carico

Impianto fotovoltaico (40mq)*

Impianti esterni

6
Generale N -0.50 -0.69 -1.37 -1.82 404.76 405.76 406.76 407.76 408.76 409.76 410.76 411.76 412.76 417.76 413.76 414.76 407.76 408.76 409.76 410.76 411.76 412.76 413.76 414.76 415.76 416.76 417.76 400.76 401.76 402.76 403.76 404.76 405.76 406.76 407.76 408.76 409.76 410.76 411.76 412.76 413.76 414.76 415.76 416.76 417.76 418.76
Fabbricato Rurale
di piani: Due piani fuori Terra
Area di Piazzale anteriore al fabbricato 11 Legenda -
* Impianto fotovoltaico in previsione al completamento di tutti i lotti 2 3 1 4 5 3 3 11 7 4 8 9 10 46 12 5 2 6 7 8 9 10 11 12 10m0

Tipologia: Fabbricato Rurale

Descrizione morfologica

La cascina, oltre ad essere un bene di pregio architettonico il cui nucleo originario risale presumibilmente al XIII secolo, originariamente destinato a funzioni abitative e di svolgimento delle attività agricole, presenta rilevanti potenzialità per diventare un punto di sviluppo di promozione turistica e territoriale per il Comune di Morozzo. Il complesso degli edifici, che si sviluppa su più di 1000 m² di superficie, è localizzato ai margini del terrazzo fluviale nelle immediate vicinanze del letto del torrente Pesio e dell’Oasi Crava Morozzo. Si presta quindi a poter diventare un punto di riferimento come punto di accoglienza dell’area naturalistica e luogo di valorizzazione del Cappone di Morozzo. A tale scopo parte del fabbricato potrà essere recuperato con ambienti destinati alla sede del Consorzio (negli ambienti del primo piano del fabbricato padronale); ad incubatoio e centro di macellazione del Cappone (recuperando gli ambienti della stalla della cascina) a disposizione del Consorzio e dei produttori locali, come luogo espositivo legato alla storia del consorzio (con il recupero degli ambienti del fienile) e con la creazione di un centro studi e laboratorio didattico legato alla valorizzazione dei prodotti agroalimentari locali e alla conservazione del patrimonio storico, paesaggistico e naturalistico locale.

N

7
N° di piani: Due piani fuori Terra
Pertinenze: Area di Piazzale anteriore al fabbricato
12 A B C PROGETTO DI TUTELA E VALORIZZAZIONE DELLA CASCINA SAN QUIRICO PER LA CREAZIONE DI AMBIENTI PER LO SVILUPPO DEL CONSORZIO DI TUTELA DEL CAPPONE DI MOROZZO E DEI PRODOTTI AGROALIMENTARI LOCALI 5m0

Tipologia: Fabbricato Rurale

N° di piani: Due piani fuori Terra

Pertinenze: Area di Piazzale anteriore al fabbricato

Tour fotografico virtuale: https://app.cloudpano.com/tours/IBkb61jgR

8 N
13 A B C 5m0

Lotti funzionali

A - 1° lotto funzionale d’intervento: Realizzazione di incubatoio - locali per la macellazione al piano terreno sala conferenze al

B - 2° lotto funzionale d’intervento: Locali per la vendita e di servizio al piano terreno; locali espositivi e di promozione dei prodotti agroalimentari locali - uffici del Consorzio al piano primo; foresteria e locali per la ricettività al

C - 3° lotto funzionale d’intervento: Locali per la didattica, uffici e locali di servizio per i funzionali del Parco; magazzini al piano terreno; foresteria, dormitori e locali di servizio al piano

9 N
14
PROGETTO DI TUTELA E
VALORIZZAZIONE
DELLA CASCINA SAN QUIRICO PER LA CREAZIONE DI AMBIENTI PER LO SVILUPPO DEL CONSORZIO DI TUTELA DEL CAPPONE DI MOROZZO E DEI PRODOTTI AGROALIMENTARI LOCALI
5m0

Fotoinserimento Nord

10
STATO DI FATTO STATO DI PROGETTO
15

Fotoinserimento

11
Ovest
STATO DI FATTO
STATO DI PROGETTO 15 PROGETTO DI TUTELA E VALORIZZAZIONE DELLA CASCINA SAN QUIRICO PER LA CREAZIONE DI AMBIENTI PER LO SVILUPPO DEL CONSORZIO DI TUTELA DEL CAPPONE DI MOROZZO E DEI PRODOTTI AGROALIMENTARI LOCALI

Fotoinserimento Sud

12
STATO DI FATTO STATO DI PROGETTO
15
13
STATO DI FATTO STATO
DI PROGETTO 15 Render interno SALA CONFERENZE - PIANO PRIMO PROGETTO DI TUTELA E VALORIZZAZIONE DELLA CASCINA SAN QUIRICO PER LA CREAZIONE DI AMBIENTI PER LO SVILUPPO DEL CONSORZIO DI TUTELA DEL CAPPONE DI MOROZZO E DEI PRODOTTI AGROALIMENTARI LOCALI

FATTO

DI PROGETTO

14
STATO
DI
STATO
15 Render interno SALA CONFERENZE - PIANO PRIMO

Render interno

PRIMO

STATO DI PROGETTO

STATO DI FATTO

15 15
HALL INGRESSO - PIANO
PROGETTO DI TUTELA E VALORIZZAZIONE DELLA CASCINA SAN QUIRICO PER LA CREAZIONE DI AMBIENTI PER LO SVILUPPO DEL CONSORZIO DI TUTELA DEL CAPPONE DI MOROZZO E DEI PRODOTTI AGROALIMENTARI LOCALI
QUANTIFICAZIONE ECONOMICA PRIMO LOTTO FUNZIONALE D’INTERVENTO Quadro Economico24 17 Tav. Pag.

Quantificazione economica primo lotto funzionale d’intervento

Descrizione

Importo per l’esecuzione delle lavorazioni (comprensivo dell’importo per l’attuazione dei Piani di Sicurezza)

OPERI EDILI DI RESTAURO

OPERE STRUTTURALI E DI CONSOLIDAMENTO

OPERE IMPIANTISTICHE - IMPIANTO ELETTRICO E DI FORZA MOTRICE

OPERE IMPIANTISTICHE - CORPI ILLUMINANTI

OPERE IMPIANTISTICHE - IMPIANTO TERMICO

OPERE IMPIANTISTICHE - IMPIANTO FOTOVOLTAICO

OPERE IMPIANTISTICHE - ANTIINTRUSIONE E SORVEGLIANZA ARREDI ATTREZZATURE MACELLAZIONE

Sommano

Importo per l’attuazione dei Piani di Sicurezza (NON soggetti a Ribasso d’asta) a corpo

Sommano

DI CUI

-Importo lavori a base d’asta -Importo per l’attuazione dei Piani di Sicurezza

Sommano

Somme a disposizione della stazione appaltante per: Allacciamenti a pubblici servizi Imprevisti Accantonamento per aumento dei prezzi dei materiali (10% importo lavori)

Spese progettazione - PROGETTO DI FATTIBILITÀ

Spese progettazione - PROGETTO AUTORIZZATIVO

Spese progettazione - SVILUPPO ESECUTIVO DEL PROGETTO Spese progettazione - ESECUZIONE DEI LAVORI

Spese progettazione - VERIFICHE E COLLAUDI

Spese progettazione - PIANO DI SICUREZZA E COORDINAMENTO E FASCICOLO DELL’OPERA

Spese progettazione - PRESTAZIONI SPECIALISTICHE/ACCESSORIE

Spese progettazione - COORDINAMENTO DELLA SICUREZZA IN FASE ESECUTIVA

Spese progettazione - SPESE FORFETTARIE (20% IMPORTO SPESE TECNICHE)

Spese progettazione - CONTRIBUTI PREVIDENZIALI (INARCASSA)

ONERI IVA LAVORAZIONI E FORNITURE - ALIQUOTA 10%

ONERI IVA LAVORAZIONI E FORNITURE - ALIQUOTA 22%

ONERI IVA SPESE TECNICHE - ALIQUOTA 22%

Sommano

Importo

262 608,10 4 000,00

24 698,56 31 431,93

18 822,59 104 773,11

47 090,00

1 017 776,64

226 479,84 12 362,65

10 825,00 19 231,14 32 942,03

38 000,00 37 975,74

1 017 776,64

1 047 731,06

369 956,74 15 819,04

29 954,42 29 954,42 29 954,42 12 362,00 19 054,13 25 755,52 40 958,39 9 829,99 93 268,66 18 719,80 56 227,53 564 000,72

48 520,20

1 611 731,78

17
TOTALE
A1 A B C D E E1 F G H A2 B 1 12 2 3 12 8 9 12 10 11
12 12 12 13
PROGETTO DI TUTELA E VALORIZZAZIONE DELLA CASCINA SAN QUIRICO PER LA CREAZIONE DI AMBIENTI PER LO SVILUPPO DEL CONSORZIO DI TUTELA DEL CAPPONE DI MOROZZO E DEI PRODOTTI AGROALIMENTARI LOCALI 24 QUADRO ECONOMICO 12 14 11 15 11 16 11 17 11 18 11 19 11 20

Turn static files into dynamic content formats.

Create a flipbook
Issuu converts static files into: digital portfolios, online yearbooks, online catalogs, digital photo albums and more. Sign up and create your flipbook.