Τεύχος 29

Page 1

TEYXOΣ 29 ΠΕΡΙΟΔΙΚΗ ΠΟΛΙΤΙΣΤΙΚΗ ΕΚΔΟΣΗ ΑΙΓΙΝΑ, ΚΑΛΟΚΑΙΡΙ 2018 ΑΦΙΕΡΩΜΑΤΑ ΦΥΛΑΚΕΣ ΤΗΣ ΑΙΓΙΝΑΣ ΣΧΟΛΙΚΑ ΚΤΗΡΙΑ ΑΠΟ ΤΟ ΝΕΟΚΛΑΣΙΚΟ ΣΤΟ ΜΟΝΤΕΡΝΟ ΔΗΜΟΣΙΑ ΚΑΠΟΔΙΣΤΡΙΑΚΗ ΒΙΒΛΙΟΘΗΚΗ ΑΙΓΙΝΑΣ

Π Α Κ

Ιδιοκτήτης - Εκδότης:

Επιστολές-Συνεργασίες στη διεύθυνση:

Διευθυντής:

Συντακτική επιτροπή:

Ηλεκτρονική διεύθυνση:

Διόρθωση κειμένων:

Σχεδιασμός έκδοσης:

Παραγωγή:

ΑΙΓΙΝΑΙΑ
Α
Α
Ε Α
Α
Γ
Ι
Κ Γ Γ
Π Κ Γ Κ Α Λ Λ Γ
Ν Ε
Κ
Γ
Π
Ε Κ
Ι Γ To κόσμημα του εξωφύλλου της Αιγιναίας είναι του Γιάννη Μόραλη.
«Ὀνομάζεται δὲ ἡ ἐφημερὶς αὓτη, Η ΑΙΓΙΝΑΙΑ, ὡς ὐπὸ παροικούντων εἰς Αἴγιναν ἐκδιδομένη»
Α
Α Α
Ε
Α
TEYXOΣ 29 ΠΕΡΙΟΔΙΚΗ ΠΟΛΙΤΙΣΤΙΚΗ ΕΚΔΟΣΗ ΑΙΓΙΝΑ, ΚΑΛΟΚΑΙΡΙ 2018

Περιεχόμενα

2
5-7 ΕΛ Ε Ν Α ΠΟΓΛ 9-14 ΑΦΙΕΡΩΜΑ: ΦΥΛΑΚΕΣ ΑΙΓΙΝΑΣ ........................... 15-59 ΕΛΙΚΑ ΛΑ Α Κ Ε νθυμήματα 16-40 ΑΙΡ ΓΑΛ Α Ν - ΚΡ ΙΚΟΥ Γ 41-45 ΓΕ ΡΓ ΙΟ Ι ΠΟΓΡ Ε Α 46-58 ΓΙ ΡΓ Ο ΑΡΙΝΟ Ο 59 ΑΦΙΕΡΩΜΑ: ΔΗΜΟΣΙΑ ΚΑΠΟΔΙΣΤΡΙΑΚΗ ΒΙΒΛΙΟΘΗΚΗ ΑΙΓΙΝΑΣ ......................................... 60-92 ΠΡ ΟΝΟ ΕΟΛΟΓΙ ΟΥ Κ Α 62-65 ΕΥ ΟΡ Ι Α Λ Ρ ΟΥ Ε 66-74 Α ΑΛΙΑ Π ΑΠΠ Α ΓΑΚ Α Α 75-82 Ρ ΑΛΚ ΙΟΠΟΥΛΟ 83-88 ΑΙΡ ΓΑΛ Α Ν - ΚΡ ΙΚΟΥ Α 89-90 ΠΡ ΟΝΟ ΕΟΛΟΓΙ ΟΥ Ε Υ Υ Π ΥΛΟ Ε 91-92 α ιγιναια [ τευχοσ 29 ] K αλοκαιρι 2018
3 Ο ΤΟΠΟΣ ........................................................... 93-105 Α ΝΑ Α Π ΑΠΑ Α Κ Α 94-105 ΟΙ ΑΝΘΡΩΠΟΙ ................................................... 106-122 ΑΝΑ Α ΙΑ Π Ε Ο Α 107-115 ΛΙΝΑ ΠΟΓΡ - ΠΕ ΡΙ ΟΥ 116-118 Ο 118-119 ΒΙΒΛΙΟΠΑΡΟΥΣΙΑΣΕΙΣ ..................................... 120-123 Ρ Ν ΙΚΟΛΟΠΟΥΛΟ Π Α 121 - 122 ΠΡ ΟΝΟ ΕΟΛΟΓ Ι ΟΥ Γ 123 α ιγιναια [ τευχοσ 29 ] K αλοκαιρι 2018
5 ε ενα απο τα πρώτα τευχή τήσ αιγιναιασ 3 Α-Α Ο Κ Κ Ε105 ΑΕ ΙΑΕ Α ΚΝ Σημείωμα του Διευθυντή α ιγιναια [ τευχοσ 29 ] K αλοκαιρι 2018
6 Ε-Α ΕΚ Α-Κ ΑΕ Α σ ή μει ώ μα του Δ ιευθυντ ή
7 Ι Λ ΕΝ Υ Α Α Ε Α Α Ε 17 Λ Α ΑΑ Ο Ο Ε ίλες και φίλοι καλό καλοκαίρι. ιευ υντ ς της Αιγιναίας Γε ργιος . Μ όγρης σ ή μει ώ μα του Δ ιευθυντ ή
ΚΕΡΚΥΡΑ ΑΙΓΙΝΑ ΝΑΥΠΛΙΟ ◎ Αίγινα ◎ Κέρκυρα ◎ Ναύπλιο ◎ Αμμόχωστος ◎ Koper kapodistrias.digitalarchive.gr

Με α ορμή μία επέτειο

Το κείμενο αυτό με μικρές αλλαγές εκ ωνήθηκε στις 29 Ιανουαρίου 2018 στη Μητρόπολη της Αίγινας στο πλαίσιο του εορτασμού της επετείου ι ης του Ιω ννη

Αίγινα τον Ιανου ριο του 1828 Ευχαριστ την ΚΕΔΑ για την τιμητική πρόταση να συμμετ σχω στις εκδηλ σεις που διορ

νωσε και έτος όπως

9
ΕΛΕ Ν Α ΠΟΓΛ * 1
με αφορμή μια επετειο
στην
Καποδίστρια
-
Ι
ΑΕ Γ Ε ΚΕ Ι 1827 Α Ο ΠΑ Γ 190 ΕΚ Ι ι
γ
κ θε χρονι
1828 Ι Κ
ίλοι του Μουσείου α ο ίστρια
10 με αφορμή μια επετειοΥ Κ Ε ΓΠ Π Ε 19 ΕΕ Ε Ι Γ Ι-Ι Κ Γ Ι ΕΟ -
11 με αφορμή μια επετειοΚ Κ ΚΚ ΕΕΟΠ Κ ΛΚΙ Κ Κ Κ Κ Κ ΚΚΚ1979 -
12 με αφορμή μια επετειο Κ Α Ε Κ Ε Ε ΚΟ Κ ΝΙ Κ ΑΙ ΚΙ ΚΚ Α ΕΑ Ι ΚΙ Κ Π ΑΕ-
13 με αφορμή μια επετειο ΚΟ ΑΚ Γ Ε ΚΓ Κ Ε Α Κ Ι Α ΑΚ Ε Α Α ΑΚ
14 με αφορμή μια επετειο Κ Κ ΠΙ Κ -

αφιερωμα

Φυλακές Αίγινας

ενθυμήματα , αντικείμενα και ιστορίες Γράμματα παλιά ξυπνούν παλιές μνήμες

Εκτελέσεις πολιτικών κρατουμένων των φυλακών Αίγινας

Ονειρεύομαι

ενθυμ ή ματα , αντικείμενα και ιστορίες

Καποδιστριακό Ορ ανοτρο είο Φυλακές Αίγινας - 1985

Και θα μου πείτε και τι είναι η μνήμη Θα σας πω ότι χωρίς τη μνήμη δεν υπ ρχουμε Κανένας δεν μπορεί να υπ ρ ει αν δεν

θυμ ται Οι νθρωποι στην πραγματικότητα ο καθένας ατομι-

κ αλλ και οι κοινωνίες τι χνουνε μνημονικούς τόπους και

μέσα από αυτούς δηλαδή από αυτό που θυμ ται καθένας από το παρελθόν μέσα από αυτούς τους μνημονικούς τόπους προχω -

ρ νε και τι χνουν το μέλλον τους Αν δεν έρουμε δηλαδή

τι συνέ η στο παρελθόν σε καμι περίπτωση δεν μπορούμε να σχεδι σουμε το μέλλον μας

Τασούλα Βερ ενι τη

στα εγκαίνια της έκθεσης ενθυμήματα αντικείμενα και ιστορίες

Ι Α Ι Λ Κ Ο

ενθυμήματαΑ ΑΑ

16 αφιερώμα : φυλακ εσ αι γινα σ Ε ΛΙΚΑ ΛΑ ΑΚ * 1
Γ
17 αφιερώμα : φυλακ εσ αι γινα σΕ Π Γ ΠΑΚ Ο ΑΑ 70 ΛΕ 14 ργα φυλακισμ νων σε ρο κη του αογραφικού Μουσείου.
18 αφιερώμα : φυλακ εσ αι γινα σ ενάγηση μα ητ ν στην κ εση. κ εμα με φόντο τα ανό α ό αρτί.
19 αφιερώμα : φυλακ εσ αι γινα σ Π Ε Α Ι ΠΠ Κ ΠΑΚΛ41Α Γ Κ ΟΚ Ι Λ Α 1986 Γ ατά το τ λος του 19ου αι. ο αντελ ς ογιωτατί ης φρόντισε να γίνει φυλακ για να ε ισκευαστεί και να μην καταρρεύσει. τα 1880 φτασαν οι ρ τοι κρατούμενοι. οινικοί κρατούμενοι Αν τολμ σομε να τρα ξομε τη σκοτειν αυλαία της σιω ς και της λησμονιάς ου σκε ά ει τη ω τους ε μ σα α ειστούμε άραγε ότι οι άν ρω οι μ σα στις φυλακ ς ό ως ταν ως τ ρα γίνονται καλύτεροι Μορφ αραγμ νη σε ξύλο.

Α ό τα 1925 άρ ισαν να φ ρνουν και ολιτικούς κρατουμ νους ημοκρατικούς αξιωματικούς ροο ευτικούς ολιτικούς αρ ηγούς και

ραστ ρια στελ η των αριστερ ν κομμάτων. αύξηση του αρι μού

των ολιτικ ν κρατουμ νων συμ ί τει με ύσκολες ρες της ω ς του

λαού ικτατορίες κατο εμφύλιες συγκρούσεις. Α ό αυτούς ε τους

ρους ου μας ροκαλούν ος ολλοί αγωνιστ ς της Αντίστασης

φυγαν για τα γερμανικά στρατό ε α συγκ ντρωσης ολλοί κατα ι-

κασμ νοι σε άνατο ρασαν ε την τελευταία φο ερ τους νύ τα.

ιστεύομε ως τη νύ τα αυτ ονειρεύονταν ναν καλύτερο κόσμο ι-

ρ νης ικαιοσύνης Αγά ης. ιστεύομε ότι οραματίστηκαν μια ε ο

ό ου το τίριο αυτό α γινόταν να κ ντρο ω ς και Γν σης. ίναι ι-

καίωμά του γιατί γι αυτό τίστηκε. ίναι ρ ος όλων των λλ νων να

το α αιτ σουν και ρ ος του κράτους σύντομα να το ραγματο οι σει.

αι σ μερα α αιτούμε αυτό ου λ γαμε και ρσι αυτό το τραυματισμ νο α ό φο ερ ς μν μες τίριο να ξαναγυρίσει στον αλη ινό του ροορισμό να γίνει κ ντρο της ιστ μης της νης και της

ω ς αι λομε με το ανηγύρι ου κάνομε να το λημμυρίσει και σ μερα ο κόσμος να ι ξει τα φαντάσματα και να ορ ει μ σα στις ακτίνες της υστυ ίας και του ανάτου για μια ακόμα φορά τον μαγικό ορό της ίκης της ω ς άνω στον άνατο της ιρ νης άνω

20 αφιερώμα
εσ αι γινα σ Αυτοί οι άν ρω
γ α
ς τα κάνανε
ράγματα
: φυλακ
οι
ορ
αυτά τα

τα κελιά ου λεγα συν ως

ρα ταν τα σί ερα και μ ροστά εί ανε και λα-

να μη λ ουν ούτε το φως του λιου. αι εγ

τους λεγα καλημ ρα αλλά ιο ολύ σ αυτούς ου

τανε σε αυτά τα κελιά ας ούμε. αι μια μ ρα μού

ταξε νας να αι νι άκι τανε να κρε ατάκι

για κούκλα α ό καλαμάκια για σου λάκια. λος

άντων το εί α αυτό. ην άλλη μ ρα ε ει

του άρεσε ου ρασα και του ξαναεί α καλη-

μ ρα μου ταξε μια καρεκλίτσα ου ταν

σαν α ό μανταλάκι κάτι το ξύλο. Α ό κει

και ρα ό οτε ερνούσα του αράγγελ-

να ό τι ελα. α μην μου ετάει κάτι

ου εν ελα και του λεγα φτιά-

ξε μου μια ντουλά α ας ούμε Γ 47 Α

21 αφιερώμα : φυλακ εσ αι γινα σ στον όλεμο της ημοκρατίας άνω στη ία και άνω α όλα της Αγά ης άνω στο μίσος της Αγά ης ου όλα τα ομορφαίνει ξανά. Κ Γ Κ Ε Ι Λ Π ΚΟ Α Α 1986 Α Λ Π Π Α ΕΑ Α ΕΑ Κ ΟΑ Μια μέρα μού πέτα ε ένας ένα παιχνιδ κι Μετά τα αι νί ια ου μας ετάγανε. ατ αινες για το σ ολείο ας ούμε και αυτά
μαρίνα
καλημ
αι νί ια όξύλο.
22 αφιερώμα : φυλακ εσ αι γινα σ Μ ι ουτι ρα με την τε νικ α άκι . ίσκος με την τε νικ α άκι .

ηλαρά και ο ιευ υντ ς με τη γυναίκα του εί αν ρ ει στον

κοιτ να μας και μας ροσφ ρανε τσάι. Α ό το ρωί οι εργάτες φυλα-

κισμ νοι εί αν το ο ετ σει τα τρα ια τους στην τεράστια αυλ α ό

το μ ρος της σκιάς. Μετά το τσάι γαμε και αγοράσαμε μερικά ραγματάκια. Αγόρασα για την λ νη μια νη α οτελούμενη α ό άσ ρα

α ό κόκκαλο και μαύρα α ό κ ρατα ου αλιού τετραγωνάκια ρα

και να κομ ολόι και αρ γγειλα και άλλο. ο α όγευμα α ρω κάτι

για τον οντα και ρα μια ολύ συμ α ητικ σιγαρο κη α ό ξύ-

λο ελιάς. Μετά ανά αμε κερί στην εκκλησία με την λ νη. ο ρά υ

ε ολύ ροσιά κά ου κοντά α ρε ε. μερα μα εύτηκε ολύς

περιμέναμε π ς και π ς υν ως ξύλινα αντικείμενα ου τα φτιά νανε μόνοι τους.

ά λι κροκάνες

ι άκι

ι άκι ου τα φο όμασταν ούρες ά ε ρόνο ηγαίνα-

με Αστειεύεσαι ο εριμ ναμε ς και ς ηγαίναμε και σ άλλα

ανηγύρια στην αναγία τη ρυσολεόντισσα στον Αγ. εκτάριο.

α αντικείμενα καμία σ ση εν εί ανε α αι νί ια τα φ ρνανε α ό

κά ου μακριά. εν τανε ειρο οίητα ό ως ταν των υλακ ν. α

εις ουλάγανε γου ιά ου αίρναμε και κάναμε σκορ αλιά ύλινα

γου ιά τη υλακ . άνανε αυτ ς τις κροκάνες ου κάνανε κρακ

κρακ κρακ Μόνοι τους Αυτοί οι άν ρω οι γ α ορ ς τα κά-

νανε αυτά τα ράγματα ταν φαίνεται μερικοί ου ξ ρανε την τ νη

και τη μετα ί ανε στους άλλους. άντως ταν όλα ειρο οίητα Ε Κ

86 Κ Α

23 αφιερώμα : φυλακ εσ αι γινα σ
του ωτ ρος. Μεγάλη γιορτ στη υλακ . Γιορτά ει η εκκλησία και είναι αρά οση να γίνεται ανηγύρι α ό το ρωί. ι φυλακισμ νοι ουλάνε ό τι ουν κατασκευάσει. ίναι ολύ εν ιαφ ρον και συγκινητικό. υλακ είναι ανοικτ για το κοινό οι φυλακισμ νοι μ νουν στις αυλ ς τους. ουμε ελεύ ερη κυκλοφορία αντού και όλη την ρα. λ νη ο ασιλάκης και η οφία κόρη του ασιλάκη η μαμά του
Αυγούστου μερα
εί
κόσμος
Α Ο
Κ
Το
αι ιά κατά λειο ηφία. Γ Κ
Α Γ
θε χρόνο πηγαίναμε Αστειεύεσαι

Απόσπασμα της ανα ορ ς του Διεθνούς Ερυθρού

του

Σταυρού

κτός α ό αυτούς τους κρατούμενους ου εργά ονται κανονικά εί αμε

την ικανο οίηση να αρατηρ σουμε ολλούς ειροτ νες ου ασ ολού-

νται με την κατασκευ αντικειμ νων α ό ξύλο εργό ειρων α ό ά α ιακοσμητικ ν ει ν αι νι ι ν κλ .

υστυ ς η ιο τευση στην αγορά αυτ ν των τε νημάτων

φτιαγμ νων με εξαιρετικ λε τότητα α ο εικνύεται ι ιατ ρως ύσκο-

λη υ ό εση σε να μ ρος ό ως η Αίγινα.

φυλακ ια τει μεγάλους ρους ου ρησιμο οιούνται σαν

εργαστ ρια

το εργαστ ριο ξυλουργικ ς με όλα τα α αραίτητα εργαλεία

ό ου κατασκευά ονται ι λα ντουλά ες κλ .

το εργαστ ριο ρα τικ ς α ασ ολεί 15 ράφτες και 8 μα ητευόμενους.

ια τει ρα τομη αν ς σί ερα σι ερ ματος κλ . Μερικοί α ό

αυτούς τους κρατούμενους ουλεύουν για ικό τους λογαριασμό.

το εργαστ ριο υ ο ηματο οι ας α ασ ολεί 15 τσαγκάρη ες.

ουν στη ιά εσ τους 3 ει ικ ς μη αν ς ρα ίματος και τα

α αραίτητα εργαλεία.

ο ρο όν των ωλ σεων των εργαστηρίων εγγράφεται στον λογα

ριασμό του εν ιαφερόμενου κρατούμενου μετά α ό κράτηση οσο-

στού 15% η ο οία αντι ροσω εύει τη συμμετο του στα γενικά

κκλησία του ωτ ρος 1985. ωτογραφικό αρ είο Γιάννη λα άκη.

ξο α. ολογί εται ότι ερί ου 175 κρατούμενοι ουν μία α ασ όληση. Α Ε

Ε 1951 Α Ε Γ

28-37 Ε Α

Τα πρ τα σου ενίρ της Αίγινας

μέσα από τις Φυλακές γαίνανε

α ρ τα σου ενίρ ου ουλ ηκαν στην Αίγινα τα υμάμαι εγ

μουν αι ί γ κανε μ σα α τις υλακ ς της Αίγινας κι ταν ύο

μαγα ιά ου τα ουλάγανε το να ταν του άσ α και το άλλο ταν

του άκη του ασά η. τιά νανε καρα άκια κοτεράκια ιάφορα.

γ υμάμαι ου ούλευα αι ί ό τι όστρακα ιάναμε αράξενα

και τ τοια τα ηγαίναμε του άκη. άτι αλογάκια κάτι κο υλάκια

κάτι ολύ όμορφα ράγματα και τα μά ευε αυτός και τους τα ινε

και τα αιρνε ργα μετά ργα τ νης και τα ούλαγε. αι το ανη-

γύρι ου γινότανε μ σα στις υλακ ς κά ε ρόνο. Α ό κει ρε κανε

να ουλιούνται τα ρ τα σου ενίρ της Αίγινας α ό τις υλακ ς μ σα γαίνανε.

άτι ωραία καρα άκια με ανιά ιο

μικρά ιο μεγάλα φτιά νανε τσολιά

ες φτιά ναν την Αίγινα φτιά νανε

κάτι ωραία ιάτα με όστρακα ρα ιό

λια κολι ες με κάτι κο υλάκια μι-

κράκια άρα ολύ ωραία ράγματα

εν ταν κάτι α λό ταν ργο τ νης

Γ Π Α

Είναι θαυμ σιος τεχνίτης

τι χνει κ τι ωραία α

από ύλο ελι ς

ο 1965 ί λα στο μαγα ί ταν το καφε

νείο του αραγιάννη. κεί συ νά ανε όλοι

οι ημόσιοι υ άλληλοι και Αιγιν τες. Μία

μ ρα ό ως γαινε α το καφενείο ο κύριος

ουρνάς ιευ υντ ς των υλακ ν σταματάει

ύριε άσ α μου λ ει στη υλακ μάς

ουν φ ρει ναν κρατούμενο ο ο οίος είναι αυ

25 αφιερώμα : φυλακ εσ αι γινα σ
Γ Λ

αυτός ταν ει ικός

στο ξύλο. Αυτός φτια νε τα ά α τα ξύλινα. λλοι φτιά ναν άλλα

ράγματα. ι άκια και άλλα. οι όν ρα αυτά τα α άκια όλα.

Γν ρισα και τον ο άτσεφ. και κατ ληξε να ουλάω τόσα ολλά

ου ερ όντουσαν τα τουριστικά καρά ια και μ αίνανε όλοι οι τουρίστες

μ σα Γ μι ε το μαγα ί α ό κόσμο Π Α

Και το είχε κ νει το γαλμα να κοιτ ει

την πόρτα των Φυλακ ν

Α ξω α ό τις υλακ ς υ ρ ε να άγαλμα του α ο ίστρια μια

κεφαλ . Αυτ την κεφαλ την εί ε κάνει ου εν το ξ ρει καν νας

ο Μ α αριάν ο ιευ υντ ς της

νεται εν κολλάει. αλάσανε τον ρο

εκεί και το ρίξανε κάτω. Μετά κά οιος α τους εί ε να το μα ουνε

αλλά ριν το . Μ α αριάν ταν ολιτικός κρατούμενος. κεί στην αυλ ε ί

τό ου εί ανε φτιάξει το ά ρο αυτός το εί ε φτιάξει το τετράγωνο και

το αλε ε άνω στο τετράγωνο το ανε ιαγ νια ταν το τετρά-

γωνο αράλληλα με τη υλακ και το εί ε κάνει το άγαλμα να κοιτάει

την όρτα των υλακ ν. Γύρω στο . Μετά γ κε γιατί γ κε νω-

ρίς γ κε γύρω στο ο Μ α αριάν α ό την Αίγινα.

Α

26 αφιερώμα : φυλακ εσ αι γινα σ μάσιος τε νίτης φτιά νει κάτι ωραία ά α α ό ξύλο ελιάς. κεί μ σα εί ε τόρνο εί ε εργαστ ριο εί ε ολλά ράγματα και ουλεύανε. ελε να ουλ ει ούλευε. λάτε να τα είτε μου λ ει. ω α ρ ω. γα λοι όν ε άνω μου σανε κότερα α άκια ίλια υο ράγματα. α α άκια ου φτια νε ο ο άτσεφ. αι
γκαλερί ρα και την κανε με να κουτάλι. ί ε να κοφίνι ξ ρετε τι είναι το κοφίνι υσε τον γύ ο μ σα εγ την εί α όλη τη ια ικασία γιατί την φτια νε εκεί α όξω ί λα στα σκου ί ια ου αιρνα και εί ε να κουτάλι το μ ροστινό μ ρος το ούλευε τσι και το ισινό το εί ε κάνει μυτερό και ξυνε και φτιαξε αυτ τη κεφαλ γύ ινο το 55. ην ουνε φυλάξει την σ άσανε να την κατε άσουνε την σανε στον κο να την φτιάξει. γ τον ερ ταγα τι γινε εκείνο γιατί λ γανε ότι εκτός α ό το μνημείο ου είναι ί λα στη αναγίτσα εν υ άρ ει τί οτα άλλο του α οίστρια στην Αίγινα. αι εγ γαινα και ρ ταγα τον κο μου λ ει είναι ιαλυμ νο εν φτιά

Οι σκοπιές οι μεγ λες κι οι μικρές

τανε μία ύο τρεις τ σσερις σκο ι ς μεγάλες. σσερις

τανε οι μεγάλες.

ε

κά ε γωνία ταν α ό μία μεγάλη.

Μία α ναντι α ό την κυρία αν ούλα μία εκεί άνω ύο ί-

σω α την εκκλησία η άλλη στο στά λο ου είναι το ηλεκτρολογείο

κι η άλλη ε κάτω ε μ ροστά μας ε ί α ο ιστρίου. τα μισά

τανε οι ιο μικρ ς.

Με τα ρόνια τα μικρά τα καταργ σανε κι εί ανε μόνο φρου-

ρούς στις τ σσερις μεγάλες και στην κεντρικ μ ροστά.

ί ε και κεντρικά εκεί ου ταν το εκκλησάκι αυτό ου λες

ταν και η μικρ σκο ιά. Α Κ 87 Κ 71 Α

Φύλακες γρηγορείτε

Γενν ηκα το και το μουνα τεσσάρω ρον ν και η μητ ρα

μου με τάι ε και με μεγάλωνε με το φό ο ου εί αμε σαν υλακ ς

ου τανε ε . α αι ιά εν μ ορούσαμε να καταλά ουμε εσσάρων ρον ν τι μ ορούσα να καταλά ω τι τανε ί λα ύ τα ει ικά

νύ

υλάκιο 1985. ωτογραφικό αρ είο Γιάννη λα άκη.

τα τανε σκο ι ς. η νύ τα φωνά ανε ύλακες γρηγορείτε άρ ι ε η ρ τη σκο ιά ου τανε μ ροστά στην όρτα τανε μια μικρ σκο ιά εκεί ε τανε μεγάλες σκο ι ς ι ροφες και φωνά ανε νύ τα ύλακες γρηγορείτε Για να μη κοιμ νται. νας φ να ε

Αυτό σταμάτησε όταν γα σ ολείο αίνεται κάνανε αρά ονα

εν ξ ρω. αν νας ικαστικός ρ ε καν νας εισαγγελ ας άντως

αυτό σταμάτησε μετά και εί αμε ησυ άσει α αυτό αλλά τα αι ικά

μου ρόνια τα μεγάλωσα με το ύλακες γρηγορείτε Γ

Απ όλα τα επαγγέλματα είχανε

γ γαινα α ό μικρός εκεί με ρά ανε με κουρεύανε. γαινα και μου

κάναν ουκάμισα αντελόνια. ί αν μ σα κουρ ες ράφτες ωμά ες ό τι λεις. Α όλα τα ε αγγ λματα εί ανε ους ίνανε [εργαλεία το ί ιο

το κράτος τούς αρακινούσε να κάνουν τ τοια ράγματα σου ενίρ. αι τα

ουλάγανε κάτω ο άσ ας. Ν Κ Α

Π ς όταν μικροί περνούσαμε έ ω από τα νεκροτα εία

υμάμαι ολύ ντονα τις φρουρ ς. Γιατί όταν γαινα στης γιαγιάς

μου το σ

ο. ου λε ες τους ωροφύλακες να ναι

εκεί α ξω στους ύργους στις σκο ι ς α άνω. ταν μια εριο ου

άντα όταν ρναγες ταν σα να ρναγες μ ροστά α ό ς όταν

μικροί ερνούσαμε ξω α ό τα νεκροταφεία και μασταν τσι μαγκωμ -

νοι άντα να εράσουμε την όρτα και ν α ομακρυν ούμε να τ τοιο

ράγμα σαν αι άκι το υμάμαι. Π Α

αι ρα μια ολύ

συμ α ητικ

σιγαρο κη

α ό ξύλο ελιάς .

Α ό γράμμα του

. Μελά α ό τις

υλακ ς Αίγινας

Αυγούστου .

28 αφιερώμα : φυλακ εσ αι γινα σ
α ό κει
ά ε μία ρα κά ε μισ ρα.
στον άλλονε κι ρε ε ν α αντ σει. Γιατί γαινε ο ιοικητ ς
κι κανε λεγ ο οιος εν α άντησε
Α
ίτι ρναγα α ό τις υλακ ς. και σουνα λίγο μαγκωμνος άντα όταν ρναγες α ό κει μ ροστά. ταν μια εριο ου σου ροκαλούσε κά οιο ιλοφό

ύλινες μινιατούρες.

να μπου

αι

ούκι ονειρεμένο γλυκύτατο

υμάμαι σ αυτ την ηλικία ριν τη ικτατορία μεταξύ κα και

εκατεσσάρων ου γαινα με το ο λατο σινεμά στα ολυμπια

τανε κα ημεριν α ασ όληση και ρναγα και εί ε στο γωνιακό κε-

λί εν μ ορούσες να τους εις γιατί εί ανε τρεις τρία ιαφορετικά

ε ί ε α σί ερων εί ε νας να μ ου ούκι και αι ε να μ ου ούκι

ονειρεμ νο γλυκύτατο αι αι ε ε ί ρα κι εί ε κι να

κο λα α ό τι λ γανε εγ αμυ ρά την υμάμαι

η ο οία κα ς ερνούσε α ξω άκουσε τους κρατούμενους ου φω-

νά ανε και στά ηκε και κοιτούσε το κτ ριο και αυτός νας α ό την

σκο ιά την είραξε την κο λα ό ι κρατούμενος.

ε

αρακαλ του κάνει αυτ . Μ ορείς να άρεις τα μάτια σου

α ό άνω μου και της λ ει Μα εν υ άρ ει νόμος για τα μάτια .

αι του εί ε εκείνη Μα για όλα υ άρ ει νόμος όταν κοιτά ουν αρα

νόμως .

αι ακούστηκε λ ει τ τοιο ειροκρότημα α ό μ σα γιατί αυτοί

σκαρφάλωναν στα αρά υρα ε άνω αρόλο ου ταν κλειστά και

την ειροκρότησαν α ό μ σα γιατί εί ε τσι του αστυνομικού. αι

το λ γανε ια Για όλα υ άρ ει νόμος όταν κοιτά ουν αρανόμως

τα μάτια ηλα . Λ Π Α

αφιερώμα : φυλακ εσ αι γινα σ

29
φωτάκι μικρό α ό μ σα τανε μαγικό. αι ολύ ξ ρεις ανατρι ιαστικό ταυτορόνως. ταν ολύ ωραία α ξω εκείνη την ε ο Λ Π Α Μα
κοιτ
να ε εισό ιο ου εί ε γίνει με μια ανι ιά της γιαγιάς η ό οια ταν ολύ όμορφη
για όλα υπ ρχει νόμος όταν
ουν παρανόμως

Θα ταν π ρα πολλοί κρατούμενοι για να μπούνε

σε δίαιτα

Μ

αίνανε στη ίαιτα τσι το λ γανε. ά ε ρά υ τρωγαν γιαούρτι.

αι ο ατ ρας μου ου γαινε τα γιαούρτια τα γαινε όταν μ αι-

νε σε ίαιτα ο κρατούμενος. Tα γιαούρτια ου ηγαίναμε εμείς μ ορεί

να ταν ερισσότερα. αι τους α ε [ο υ ας όσους ιο ολ-

λούς μ ορούσε στη ίαιτα για να φάνε γιαούρτι. α ταν άρα ολλοί κρατούμενοι για να μ ούνε σε ίαιτα α ταν ολλοί

αι υμάμαι ότι στις γιορτ ς ηλα ριστούγεννα Α όκριες

μας φ ρνανε τεράστια τα ιά τεράστια και κάναμε γαλακτομ ούρεκο

και τους τα ηγαίναμε τοιμα σιρο ιασμ να. Αλλά μας φ ρναν αυτοί

τα ικά τους τα τα ιά. Ν Α

Για να μη λέπω τη σκηνή αυτή

Με την ατο τανε υμάμαι ότι

ρε ε αυτοί οι άν ρω οι

να τους εί αν ανοίξει τις υλακ ς να φύγουνε. ους κρατ σανε μ σα

κι ε όμενο τανε. ι ο κόσμος αινε αια κι ξω. όσο μάλ-

λον εκεί. εν γαινα ακόμη σ ολείο. ρ ει να μουν κάτω α ό 6.

Α

Ανθρ πινες σκιές

ξασκ ν την υ ηρεσίαν μου ως ιατρός των υλακ ν ευρίσκομαι κα-

ημεριν ς και με σο αρ ς αύξουσαν αναλογίαν εν ιον αν ρω ίνων

σκι ν εν ιον φαντασμάτων των ο οίων η εξάντλησις λόγω του

30 αφιερώμα
σ
: φυλακ εσ αι γινα
ερνάγαμε με τον ατ ρα μου και ηγαίναμε ύσκολα τα ρόνια. ί αμε να ελαιό εντρο λίγο ιο ξω α ό την Αίγινα το ο οίο ταν ολύ αλιό και ο κορμός του μ σα τανε κούφιος και μ αινε ο ατ ρας μου μ σα και κο ε τα ξύλα κι α ό κάτω το ντρο τανε αρκετά μεγάλο κι εί ε κάτι τρύ ες κι εγ σαν αι άκι μού τα σ ρω νε με τα ό ια του και τρά αγα και μα εύαμε τα ξύλα. αι υμάμαι ου ρναγα α τις υλακ ς ου ερνάγαμε το ρωί ηγαίναμε ολύ ρωί αι μια φορά τυ ε εί ανε ανοίξει ό ως είναι τ ρα οι υλακ ς την όρτα της εξό ου και υμάμαι ου φορτ νανε τους αν ρ ους τους νεκρούς α ό μσα. ρ ε να κάρο το ο οίο στις υλακ ς τανε στο κοιμητ ριο τανε ε ξ ρω. κείνο ου υμάμαι συγκεκριμ να ταν ότι ο ατ ρας μου μου ιανε το ρόσω ο και μου το ακούμ αγε ε στο λάι του για να μη λ ω τη σκην αυτ . ανονικά

ε

μων είμαι υ

εν τη ια ιστ σει της καταστάσεως

αυτ ς να αναφ ρω μίν ότι οι εξαντλημ νοι αυτοί οργανισμοί εν α

α οφύγουν τας συνε είας εκ του συνε ς αυξανόμενου υ οσιτισμού

των στω και εάν ε ολίγον ρονικόν ιάστημα εξακολου σει ούτος.

Α ΓΝ Π Α

Π 2005

Μέρα-νύχτα να αν Λαέ της Αίγινας

έ γα να μας υπερασπιστείς

ί αμε υ οφ ρει ολύ στην ατο με τους κρατουμ νους γιατί τα-

νε άρα ολλοί ε ικηρυγμ νοι σε άνατο. αι γαιναν εί ανε φτιάξει

ωνιά αυτά τα μεγάλα τηλε όες και γαιναν στα αρά υρα μ ρα

νύ

ο Γλ ος

ότι φωνά ανε.

είτε κύριε Γαλάνη ε λουμε να γούμε αλλά μας τυραννάνε

μας κό ουν τις ε ισκ εις ε μας αφ νουν να ούμε τους ικούς

31 αφιερώμα : φυλακ εσ αι γινα σ
οσιτισμού
τόσον
η εν ιόν μου εμφάνισίς των να κινεί τον οίκτον μου ια τα ωντανά αυτά τ ματα τα
υ
των ει ρο ωρ σει
στε
ο ηγ
άνατον. αι ως κρατικός λειτουργός και ως
ο οία εν τούτοις η ολιτεία ε ι υμεί να σωφρονίσει και ου ί να
σει εις τον εκ είνης
ιστ
ο ρεωμ νος
τα φ να αν α της Αίγινας γα να μας υ ερασ ιστείς Αλλά σας λ ω τανε μία ασ νεια σο αρ οι οι τους στ αυτιά μας. φταμε το ρά υ να κοιμη ούμε και ούι αν οι φων ς τους. Αυτό κράτησε μ ρι το . Ε Κ Α Πείτε κύριε Γαλ νη κείνο ου ταν τραγικό ταν οι φων ς των κατα ίκων. ραυγ ς φο ερ ς ό ου εμείς σαν αι ιά τρομά αμε. ρί αν όλα τα ατ ματα. αι ο Γλ ος γραφε στον ατ ρα μου γράμματα. αι λεγε
μας άνε στο α ομονωτ ριο Γ Κ Α Γεια ροτού το ο ετη εί ιευ υντ ς των υλακ ν Α ρωφ ο τυλιανός ουτσίνος εί ε ιατελ σει ιευ υντ ς των υλακ ν της Αίγινας. Γι αυτόν κά ε α ο αιρετισμός ου α ηύ υναν οι γκλειστοι σε κά οιον ου μεταφερόταν για εκτ λεση ταν ει αρ ικό αρά τωμα. τις 10 Αυγούστου όταν νας κρατούμενος στην Αίγινα μεταφ ρ ηκε για
μας

αν την ίστη τους αιρετού-

σαν τη ω και τη ωμιοσύνη με α ούλωτο φρόνημα. Κ Κ -

Α Κ Κ Α 1989

Τα παιδι που εκτελέσανε τότε με τη δολο ονία του Λαδ

ατ ρας ο ικός μου ταν στη ωροφυλακ αι μας λεγε κά οιες

φορ ς μια ιστορία ου μου την εί ανε ει άρα ολλ ς φορ ς ταν αυ-

τ με τα αι ιά ου εκτελ σανε τότε με τη ολοφονία του α ά και

γάλαν καμιά 20αριά 25 αι άκια και τους εκτελ σανε

ατ ρας μου λεγε όταν γινε αυτό ου γινε και εί αν την εντο-

λ να εκτελεστούνε α όλες τις φυλακ ς της ρας εν ταν μόνο α

την Αίγινα ανά

32 αφιερώμα : φυλακ εσ αι γινα σ εκτ λεση οι άλλοι κρατούμενοι της ακτίνας του εί αν φωνάξει Γεια υο τρεις φορ ς. ς α οτ λεσμα αυτ ς της εκ λωσης τα ροαναφερ ντα ρονόμια ματα με τρόφιμα ε ιστολ ς και ε ισκε τ ριο αφαιρ ηκαν αμ σως για τους συγκεκριμ νους κρατούμενους οι ο οίοι ενημερ ηκαν ότι οι εριορισμοί α ίσ υαν για μια ερίο ο ημερ ν . Π Ο Α Α 2004 Λαέ της Αίγινας αύριο μας π νε για εκτέλεση
ότι την άλλη μ ρα το ρωί α ηγαίναν για εκτ λεση γιατί το φωνά ανε. ωνά ανε α της Αίγινας αύριο α μας άνε για εκτ λεση αύριο α μας εκτελ σουν Αυτό το υμάμαι. Μη συ ητάς Α Α Στις πέντε το πρωί την αυγή της Μ η τις ντε το ρωί την αυγ της 6 Μάη η Αίγινα ον ηκε α ό την ασίγαστη φων μας Γεια σας α ρφια ους εσαν υο υο με ειρο ες και ξεκίνησε η ομ . α ς γύρι αν α ό το αναρρωτ ριο να άρουν την ευ εία ρος την ύλη η κραυγ τους ανα η ούσε ρος τον ουρανό ου ε όταν τις ρ τες αντιφεγγι ς της αυγ ς σα είμαρρος. ταν μ σα η υ τους στη φων . ραύγα
ραμε
ομά ες εί ε ρ ει άγημα τους αίρνανε τους ηγαίνανε στο νεκροταφείο τους ά ανε σ ναν τοί ο τους εκτελούσανε τους ίνανε τη αριστικ ολ Αυτ ν την ιστορία ό οτε τύ αινε και μου την εί ε ει γιατί α ό κει την μα α α τον ατ ρα μου εν την γα ε μ ρι τ λους εν

αρόλο

αυτ την ιστορία του ε μείνει του ε μείνει σα ίωμα ε μ ορούσε

Με σπρες ανέλες ημερ ματα μενα σ να σ ίτι ου ταν στη γωνία ακρι ς ου ερνούσανε για

να άνε για εκτ λεση α ναντι α ό το να τρινο ου είναι

και τ ρα α ναντι α την αι ικ αρά και υ ρ ε να αρά υρο

αυτά τα ξύλινα. οι όν εμείς ακούγαμε τα τραγού ια γιατί αυτοί τρα-

γου άγανε στο φορτηγό τους εί ανε μ ροστά ακρι ς. αια α ό

και τους υμάμαι ου τους ά ανε μ ροστά στο φορτηγό με άσ ρες φανλες ξημερ ματα. ους λε α α το αρά υρο τους ά ανε μ ροστά και ίσω

ενο λητικό μ τρο ταν η α αγόρευση κά ε μορφωτικ ς ραστηριότητας. συγγραφ ας γράφει σ ετικά ( . Γεωργίου ω μου

τόμ. Α να 1992

λο και μας αίρνανε ι λία και ατομικά ράγματα κατά στά ια.

Μας ραν ρ τα τα λογοτε νικά ύστερα τα εγκυκλο αι ικά και σ ο-

λικά αφ νοντάς μας μόνο τις μ ο ες για ξ νες γλ σσες με ξε ωριστ

εύνοια στις γερμανικ ς. ι ρ σικες ταν α ό την αρ αυστηρά α α-

γορευμ νες γιατί η ιεύ υνση τις εωρούσε

33 αφιερώμα : φυλακ εσ αι γινα σ
την γα ε και
ου ο ατ ρας μου εν ταν καν νας άν ρω ος αριστερός αγωνιστ ς και τ τοια ταν νας άν ρω ος συ ος κι όμως
Α
να τo ξε εράσει γιατί κι αυτός αι ί τανε ρον ν. Γ Π
μν μη ε φεύγουνε
α
τεσαι ας ούμε άμα ρ ονται ιστορίες για να εις
ταν όλος ο στρατός ι αυτοί τραγου άγανε Με άσ ρες φαν λες σα να τους λ ω αυτ τη στιγμ ηλα Κ Α Μας α αίρεσαν κ θε τυπωμένο γραμμένο ή λευκό χαρτί Α ό τα τ λη του 1936 στις υλακ ς της Αίγινας ρ ηκε ο . Γεωργίου. τις σελί ες του ι λίου του αναφ ρει
των κρατουμ
ιαίτερα η σίτιση ο σ ου
ιο
τη
αυτά τα ράγματα κι
ό μικρό αι ί όλο το σκ
τα υμάσαι
όσο υσκόλε ε η ω
νων και ι
αιότερο και
κομμουνιστικ ς. το τ λος για τιμωρία και για ομά ες μας αφαίρεσαν κά ε τυ ωμ νο γραμμνο λευκό αρτί κά ε μολύ ι και στυλό. Μας σ κωσαν ακόμα και τα γράμματα των ικ ν μας ονεμ να μα γκαρ ιακά . Κ Κ Π Π Ο 1934-1974 Ε Α 2015

Το πρ το είναι η Ιστορία το δεύτερο είναι Σχολές Παιδείας

ο ου με γανε οργάνωσα μια ολόκληρη ροσ ά εια σύντα-

ξης της ιστορίας της νικ ς Αντίστασης σε κά ε εριο . ηλα

ς οι κρατούμενοι ελο ονν σου να μα ευτούν για να γρά ουν την

ιστορία της Αντίστασης στην ελο όννησο οι κρατούμενοι της ρ -

της οι κρατούμενοι της Μακε ονίας κι τσι α μα ουμε όλα αυτά

α τα συντάξουμε. ταν μια ουλειά ου κάναμε ολύ σημαντικ

και όλο το υλικό το στείλαμε στο όμμα στη ο ιετικ νωση στη

ουμανία ού τανε τότε εν ει σημασία το στείλαμε στο όμμα

εμείς. ρ καμε τον τρό ο και το στείλαμε. ι κρατούμενοι ου ταν

ε ωρίστηκαν σε εριφ ρειες και η κά ε εριφ ρεια φτιαξε το ι-

κό της. Μόνο στην Αίγινα το κάναμε αυτό με ικ μου ρωτο ουλία.

ταν η μία ουλειά ου κάναμε και η εύτερη ουλειά είναι ότι ό οιοι

εν εί ανε τελει σει ημοτικό φτιάξαμε ημοτικό σ ολείο. σοι εν

εί ανε τελει σει Γυμνάσιο φτιάξαμε Γυμνάσιο εν υ ρ αν τότε τα

ύκεια ταν Γυμνάσιο. αι ό οιοι ταν στο ανε ιστ μιο ανάλογα

με τον τομ α τους ροσ α ούσαμε και ημιουργούσαμε

ύστερα α ό λίγο καιρό ρ εται το ι λίο και ό ως ταν η ια ικασία ε ει ταν ξενόγλωσσο ε μ ορούσε να υ οστεί λεγ-

ο εκεί ε ιτό ου. οι όν το στ λνανε στο ουργείο ικαιοσύνης.

ο ουργείο ικαιοσύνης ε ει εν εί ε μεταφραστ ς για να μ ο-

ρούνε να τα ια άσουνε το στελνε στο ουργείο ροε ρίας ου

υ οτί εται ότι εί ανε και ύστερα α ό καιρό αιρνε την γκριση ναι

ό ι και με την ί ια ια ρομ γύρναγε ίσω. Αυτ η ια ικασία κατ

ελά ιστο αιρνε τρεις μ νες. ά οια στιγμ φτάνει το άλι

με τη σφραγί α ότι εγκρίνεται

34 αφιερώμα
εσ αι γινα σ
: φυλακ
ολ ς αιείας μ σα στη υλακ . ο ρ το είναι η στορία το εύτερο είναι ολ ς αι είας. Γ Ν λα είναι απ τον ίδιο συγγρα έα τον Με τα ι λία λω να σας ω μια ιστορία. ά οια στιγμ ρ εται η γυναίκα μου ης λ ω ε ικοιν νησε με το ξά ερφό μου ου είναι στο ον ίνο τον άκη το ωμό ουλο και ες του να μου στείλει να ου να είναι με οι ματα κάτι τελείως αν υνο. ράγματι
και μετά σ να ε όμενο ε ισκε τ ριο λ ω στη γυναίκα μου της λ ω γρά ε τ ρα στον άκη ό τι ρει ολιτικό σε Μαρξιστικό σε να μου τα στείλει. άκης ο ωμό ουλος τ ρα είναι ρόε ρος της τρά ε ας. αι ράγματι κά οια στιγμ φτάνει μια κούτα.

Γ Ν Α

Η μετ ραση του Προυστ

ρουστ ξεκινάει στη υλακ . Α ό τις μαρτυρίες άλλων συγκρατου-

μ νων η ουλειά γίνεται άνω σε μια άνινη καρ κλα με μια τά λα

μ ροστά για να γίνει γραφείο και ουσιαστικά με ολύ λίγα ράγματα

κυρίως το o . α ειρόγραφα γαίνουν ξω νόμιμα κανονικά

κλ . με ά εια του ουργείου. υτυ ς είναι μια κυρία εκεί ρα

η κυρία Μοίρα εν ξ ρω αν ει ακόμα

35 αφιερώμα : φυλακ εσ αι γινα σ Ο Κ ΚΑ ΑΑ Ο25 27 ΥΛ 27 αι το α ε ι αλε τις σφραγί ες και μ κανε και τα 27 ι λία μ σα και α οκτ σαμε μια Μαρξιστικ ι λιο κη στην Αίγινα λω να ω ότι η ευρηματικότητα ό ι τόσο της ε ι ίωσης γιατί εν υ ρ ε μα ε ι ίωσης αλλά του να είσαι ενεργός και να ολεμάς τη ούντα ταν κατα ληκτικ .
την εί α ριν μερικά ρόνια η ο οία μας α ε όλα τα ι λία μ σα στη υλακ η υ άλληλος του ουργείου. ρε ε να εράσουν γκριση τα ι λία και μετά το ειρόγραφο γαινε στον σίρκα το τσ καρε κανε ιορ σεις και μετά γαινε για τύ ωμα. (Α Α Στο
το νου ακόμα νω ά τα ταξί ια της ρ της αι ικ ς ηλικίας στην Αίγινα τη εκαετία του 1950 με τα μεγάλα κα κια ου μετ φεραν εμ ορεύματα και τουρίστες και τους τυ ερούς ου κ ρ ι αν φτάνοντας στο λιμάνι τις αρμα ι ς τα άρια στη λοταρία εν λω. αι ανάμεσα στους ταξι ι τες οι αλυσο εμ νοι ολιτικοί και οινικοί κρα-
νου ακόμα νωπ

τούμενοι στην λ ρη συνο εία αστυφυλάκων με ροορισμό τις φυλακ ς της Αίγινας και οι συγγενείς να ροσ α ούν α ελ ισμ να να μας

κλείσουν τα μάτια να μη λ ουμε τις σκληρ ς εικόνες ου γεννούσαν

αμείλικτα και ανα άντητα αι ικά ερωτ ματα. Γ Ν Κ Α

Που καθόντουσαν απέναντι και όλοι κ ναν ότι δε τους λέπουν

μως η υλακ μ ρι τότε ταν νας ξε ωριστός κόσμος ολύ ερι

αρακωμ νος ηλα εμείς ιασταυρωνόμασταν την ε ο ου οι με-

ταγωγ ς γινόντουσαν στα λοία ηλα ρ ονταν ύο αστυνομικοί και

εί αν ανάμεσά τους ύο αν ρ ους εμ νους με ειρο ες ου κα όντουσαν α ναντι και όλοι κάναν ότι ε τους λ ουν. Αλλά ταν αυτ

η ολύ μεγάλη αμη ανία ξ ρεις το καρά ι κι αυτοί εκεί είναι ναι.

Αλλά τανε κάτι ακόμα ξ νο λιγάκι εν υ ρ ε συνάντηση ου ενά

και λίγο τρομακτικό. Αλλά για να αι

και όση

ρα ολύ ολύ λίγη ρα εί αν ε ίσκε η ο φρουρός ηγαινοερ ότανε

μες στη μ ση ανάμεσά τους ανάμεσά τους κανε μια όλτα υο μ τρα

μ ρος τους συνε ς. Ν Α

ένανε στα πεύκα οι μαν δες

των πολιτικ ν κρατουμένων

αι κά οιες εί αν ρ ει και μ νανε μόνιμα ε . ι σε σ ίτια γιατί

εν εί ανε λεφτά. Μ νανε σε κάτι εύκα άνω σ να λόφο. ε ξ -

ρω ού ακρι ς είναι αυτός ο λόφος. κεί μ νανε κά οιες μανά ες

κρατουμ νων. ηλα κα όντουσαν α ό κάτω α τα εύκα για να

ουν την ευκαιρία να λ ουν το αι ί τους στο ε ισκε τ ριο ό οτε

εί ε ε ισκε τ ριο. ταν φτω ς γυναίκες α ό μακριά ρες μαύρα.

μητ ρα μου μου ε ει μ νανε στα εύκα οι μανά ες των ολιτι-

κ ν κρατουμ νων. Α Ρ Α

36 αφιερώμα : φυλακ εσ αι γινα σ
ί τανε και ως ε ί το λείστον ότι οι κακοί είναι στη υλακ τσι ηλα εκείνη την ε ο εν υ ρ ε άλλο στοι είο. Μ ρι ου γινε η ικτατορία αια. ι εκεί αυτοί οι ύο κόσμοι συναντ ηκαν. λλαξε τελείως η σ ση με το ί ρυμα. Λ Π Α Η μ να μου διέκρινε μόνο τη ιγούρα του ότε η μάνα μου ι κρινε μόνο τη φιγούρα του ο οία σ όλη τη ια ρομ με το λοίο κλαιγε ετά ξανάφευγε κλαίγοντας

δει το Θίασο

υμάμαι το εο ωράκη

όραγε να μελί αλτό ανύ ηλος ό ως ερ ότανε ηλα το λ ω

τ ρα κι ανατρι ιά ω μουνα τότε ρον ν και τραγου άγανε

κάτι τον ύμνο του Α τραγου άγανε ταν μια σκην για την Αί-

γινα ολύ συγκινητικ

υμάμαι κα ίσανε φάγανε κι φυγε ο ατ ρας μου και κάτσαμε

εμείς. γε και η κο λα αυτ και την ευ αριστ σανε. τανε σαν

αρ αία τραγω ία ό ως ρ εται ο ορός Αυτ τη σκην ε ρόκειται

τελευταία μου επιθυμία

37 αφιερώμα : φυλακ εσ αι γινα σ
αι ξαφνικά ε α το ξε άσω οτ αυτό ί ε ρ ει ο εο ωράκης τότε εις ει το ίασο ως εριμ ναμε λοι όν εί αμε στρ σει
σερ ίτσια και εριμ ναμε. Α την αναγίτσα ό ως ερ όντουσαν
οφυλακισμ νοι σα φάλαγγα όλοι μα ί ταν. αμιά ενηνταριά άτομα τους εί αμε καμιά εκαριά τρα ια και
χεις
τα
α
να την ξε άσω οτ Γ Π Α Κ που είχε χαθεί σ όλο το μεσοδι στημα και ήρθε επισκεπτήριο αι το ιο ερίεργο γεγονός ου γινε όσο [το Α 2 μασταν εκεί ταν όταν ρ ε μια κυρία μεγάλης ηλικίας τρ οντας και μας ρωτούσε όλους ρόλα α αι λ γαμε ι να ρολά ετε ίναι ρες ε ισκε τηρίου λ με. ού είναι ο φύλακας ρόλα α ί α άει να άρω κάτι α το σ ίτι ου μου ητ σανε ρόλα α λ ει εκείνη. αι εν καταλα αίναμε. αταλά αμε ότι κάτι εν άει καλά και καταλά αμε ότι εί ε ρ ει να ει κά οιον ικό της. Α λά η γυναίκα
ταν καλά
ου εί ε α εί σ όλο
ρ ε ε
ω και τ ρα κι
Ε Α Η
είναι τανε νας κρατούμενος μου το ει ει η μητ ρα μου και τον ουνε σκοτ σει ε στη ανερωμ νη. Αυτόν τον λ γανε ωτ ρ αινα και μου λεγε υτό εν α το ξε άσω μου φαίνεται ότι εί ε άει. Α ό μακριά αια. αι άκουσε μετά ου εί ανε οι φύλακες τ ρα α το ω εν ειρά ει ως α το ω οια είναι η τελευταία σου ε ι υμία του Ε ΚΠΑ Ε Κ Π Α Α 1990 2001
εν
στο μυαλό της κά
το μεσο ιάστημα και
ισκε τ ριο ο λ
ανατρι ιά ω.

άρ ισε να σφυρί ει κλ φτικα Γεγονός

άντως είναι ότι τόσο ο ί ιος όσο και ο ανι λ α α ανι λ ά ισαν

ρος το άνατο τραγου ντας και ραγί οντας τις καρ ι ς όσων τους

άκουγαν. Γράφει ο ημοσιογράφος . αλτάιτς ου αρακολού ησε

την εκτ λεση

Μία εκτ λεσις εν είναι τί οτα. ο τραγού ι ου ροηγ η το το

αν γιατί το ιο μεγάλο και α ό τον άνατον και α ό την ω ν. το

η αγά η και η εριφρόνησις μα ί και ρος το να και ρος το άλλο. α

λοι όν το τραγού ι ου το λεγαν ο ανι λ και ο ωτ ρ αινας γλυκά

μελω ικά υνατά στη φων των σαν να ε γαιναν σε ανηγύρι γάμου

και ό ι σε ανάτου τελετ

γα μαννούλα να με ι ς και να με καμαρ σης.

Με αν οι ωροφύλακες με ρια σταυρωμ να.

Μου ουν λυτάρια εκα αλυσί ες εκα ντε.

ο τραγού ι αυτό άσταξε ερισσότερο α ό εκα ντε λε τά.

αι το ά ισμα το αργό και ημείς όλοι ω ροί και με κρατημ νο τον

αλμό της καρ ιάς το ακούαμε εν οι ύο άν ρες ε γαιναν υ ερ

φανοι αλη ινά ηγεμονικοί . Ι Ο Λ Α

2016, πό την αλήθεια μέχρι το παραμύθι

Αλλά α ό την αλ εια μ ρι το αραμύ ι ηλα ό ως λ γανε ότι

αλιά τανε κά οιοι ολιτικοί κρατούμενοι τανε κι αυτοί ου

εί αν σκά ει λαγούμι α ό κάτω α το μα κι εί ανε γει στη άλασ-

σα Tο σκάσανε κά ανε λ ει λαγούμι με ιρούνια και κουτάλια είναι φο ερό αυτό και γ καν ε στου ερόγλου στο Ακρογιάλι κά ου ε στη άλασσα και τους ερίμενε λ ει ια να κότερο αλαμηγός ό ως το λ γανε οι αλιοί με ρ σικη σημαία ά οια α ναι και αραμύ ια Ε Ε Κ Α

38 αφιερώμα : φυλακ εσ αι γινα σ εί ανε. ει η τελευταία μου ε ι υμία είναι α το ω ο να μου ό ι να το άλετε στον κ λο του ενι λου και το άλλο στου ασιλιά Αυτό είναι η τελευταία μου ε ι υμία Α Κ Α Ε γα μανούλα να με δεις και να με καμαρ σεις ίγο ριν α ό το τ λος του ο Γι ργης ο ωτ ρ αινας ρι ε τους άντες και τα άντα στερα

Ετρύπησε το τα νι ανέ

ηκε

στα κεραμίδια κι από κει έ υγε

υμάμαι αμυ ρά ότι κά οιος ου ούσε κρατούμενος στη γωνία της

υλακ ς ετρύ ησε το τα άνι αν ηκε στα κεραμί ια κι α ό κει

φυγε. Λ Π Α

Τον ρυμουλκήσανε τον πήγαν λλα ε κι έ υγε

αμ λης ταν κρατούμενος. ταν του αναγούλη γαμ ρός.

ύλακας α ξω στο κελί του σκο ιά ταν ο . ο . νας μ άτσος

ου τανε τρελός. άναμε αρ α καλό αι ί κανε τρ λες ου -

σαν ά εια τρεις μ ρες. αι το ρά υ

το ρε ρ κε κάτι αρά ες α

ξω α τον ειραιά και τους λ ει ω αλάσει . ον ρυμουλκ σανε

τον γαν άλλαξε κι φυγε Α

Κι είχα ανοί ει εγ το παρ θυρο αυτό

και είδα το ορτηγό που γήκε

τελευταία εκτ λεση ταν οινικού του Γερμανού. ί των ημερ ν

μας γινε. νας ταν ο Μ ασενάουερ κι ο άλλος εν υμάμαι

νας α τους ύο εκτελ στηκε ε . ι εί α ανοίξει εγ το αρά υρο

αυτό γιατί τότε εν ταν τα κτ ρια μ ροστά και εί α το φορτηγό ου

γ κε.

να ρ δυ εσηκ θηκε όλη η Αίγινα

να ρά υ ξεσηκ ηκε όλη η Αίγινα. α αυτοκίνητα όλα όσα υ ρ-

αν εργαλεία τσι κουτάλες αυτά ου σκά ουνε φορτηγά γ μι-

σαν κόσμο με σημαίες και καναν αρ λαση στην αραλία και στους

άλλους ρόμους τους ατούς και αυτό ρασε στην κυ ρνηση για να

φύγουν οι υλακ ς α την Αίγινα. Ε Κ 89 Α

39 αφιερώμα :
εσ αι γινα σ
φυλακ
αυτός
κάτω στο άρο
κε
αρκάκι
άνοιξε α ό άνω α τα κεραμί ια
ο αμ λης και μ να σεντόνι την κο άνησε. γε ε ιο
ρ
να
Τη δι ανε και χ σανε τανε μια υλακ ε ου τη ι ξανε και άσανε γα ε η Αίγινα ολλά λεφτά. τουνε ε ισκε τ ριο ου ερ όντουσαν εντακόσα άτομα. Α ό Α να α ό όλη την λλά α. ου εί ανε συγγενείς

Ανα λά οντας την στορία στο Μουσείο.

κρατούμενους ι ικά υριακ . ρεις φορ ς τη ομά α εί ε ε ισκετ ριο. Αλλά η υριακ ταν η ιο σκληρ . ολύς κόσμος Ε 81 Α

Στους

τοίχους είχε κρίκους

γ εί α μ ει μικρούλα όταν εί αν κλείσει οι υλακ ς. μητ ρα μου τανε στο αογραφικό και μόλις κλεισαν οι υλακ ς μ κανε

μ σα α το ύλλογο του αογραφικού και κάνανε σαν να

εκεί. αι υμάμαι εί αν ρει ναν γ ρο φύλακα και τους εί ε κάνει ξενάγηση μου εί ε κάνει φο ερ εντύ ωση και τον ρωτάγανε ού

είναι το κελί του αναγούλη. αι αυτός σα να ροσ α ούσε να το

α οφύγει αυτό. Με τα ολλά τους γε και υμάμαι με εί ε ιάσει

σύγκρυο τους τοί ους εί ε κρίκους ου γινόντουσαν τα ασανιστ -

ρια εκεί ταν α αίσια η αίσ ηση ο υμάμαι σαν όνειρο αι

υμάμαι και τα ξεραμ να γαρίφαλα αυτό το υμάμαι ολύ καλά ου

ταν ερασμ να στο ί τυ μ σα στο ισκε τ ριο. Π 40

Α

αφιερώμα : φυλακ εσ αι γινα σ

40
41 αφιερώμα : φυλακ εσ αι γινα σ ΑΙΡ ΓΑΛΑΝ - ΚΡ ΙΚΟΥ Γρ μματα παλι υπνούν παλιές μνήμες ΕΑΑ Γ Α Π 1962 Α Γ ΕΚ ΑΕ ΠΙΚΠΑ ΠΚ Ε Γ
42 αφιερώμα : φυλακ εσ αι γινα σ Ν Ο Π Α Γ ΓΚΝ Κ Γ Ο Κ Α 1962 Α Γ Α Ε Π Π» ΑΑ Α Γ Α ΓΙΑ Ι ΝΑ ΟΥ Ε Λ Α Α Α Π Κ ΑΑ 1962 40 ΟΑ
43 αφιερώμα : φυλακ εσ αι γινα σ ΑΓ -
44 αφιερώμα : φυλακ εσ αι γινα σ
45 αφιερώμα : φυλακ εσ αι γινα σ Α ΠΑΑ . Ε Γ Α Α Γ Π Π Ε Π Π Α Π ΚΓ ΚΟ ΓΓ-Ν
46 αφιερώμα : φυλακ εσ αι γινα σ ΓΕ ΡΓΙΟ Ι ΠΟΓΡ Εκτελέσεις πολιτικ ν κρατουμένων των υλακ ν Αίγινας Γ Κ Α Α ΚΚΕ ΕΑ ΕΛΑ ΕΠΟΝΟ Ε-Κ ΕΑ ΕΛΑΠΑ Κ ΓΑ Κ 1945-1946 Ε Π322 267 Ε Ο ΕΑ Γ Ο Α Ε
47 αφιερώμα : φυλακ εσ αι γινα σ 75% 21 35 Ο 1945 Γ Ι 1947 Υ19-06-1947 18Α Ν Ο Ο-ΟΠ Α Α Ρ Ε Π Ο 23ΑΥ Α Α Ο Ε Π 18 Α 10Ε Ε Κ Ε Ε Κ 5 ΕΑ Ε 6 Ι 1947 Α Υ Ε Κ Κ -
48 αφιερώμα : φυλακ εσ αι γινα σ ΠΑ ΑΚ Ο Α Ε18 Α Ο ΑΠ Κ Κ Α Α 1947-1949 Ε Κ Α 1989 Ο Κ ΚΑ Ν Π Α Ε ΠΝ Π Α 2005 Κ Α Κ Α Α Κ Ε Ε ΕΝ Π Α Ε 117 Ν Π ΚΑ Α Α Ι Κ ΑΝΑ ΟΝ Α 20 Ι 194718 Α230 -
49 αφιερώμα : φυλακ εσ αι γινα σ 10 Κ Ο Κ ΚΑ 400 Ε 1 5 ΚΕ Ε 6 7 Α54 11 16 Κ Κ ΠΑΓ ΚΠΓ Λ Π Ε Α 1978Υ Ο Ε Γ Ν Γ Υ Ε ΚΑ Υ Ε Ο Ε Π
50 αφιερώμα : φυλακ εσ αι γινα σ Π Ι Κ Ο Α18 19-06-1947 3 22-11-1947 22-02-1948 8 Ε 19-11-1948 25-05-1949 62 20-09-1949 Ε Εκτελεσθέντες στις -Α Α 27 Ε Ν Κ 25 Γ Α Γ 32 Γ Α 54 5 Κ Π Ι 40 Κ Κ 35 Κ Ι 27 Κ Α 24 Κ Ε Γ 45 Κ Κ 25 Λ Ν 21 24 Α Γ 27 Ν 31 29 Π Λ 26 Π Π 36 Κ Ε Γ 25
51 αφιερώμα : φυλακ εσ αι γινα σ Εκτελεσθέντες στις -Α Γ Α Ν Γ Ν Α ΚΑ Ε Ν Ο 1948 72 Εκτελεσθέντες στις -Γ Γ Κ 22 21 Κ Ι Κ 42 Κ Α 21 Κ Π Α 22 Λ Ν Ι 30 Λ Κ 40 35 Π Κ Α 32 Π Π Γ 21 Π 50 Ο ΑΝ Α Εκτελεσθέντες στις -Κ Γ Κ 18 Κ 32 Κ Κ Ε
52 αφιερώμα : φυλακ εσ αι γινα σ Εκτελεσθέντες στις -Γ Γ Π 23 Α 50 Α 28 Γ 44 Α Γ 41 Κ Α Ε 25 Κ Κ Π 24 Κ Α Γ 35 Λ 28 Γ 28 Ν Π 43 Ρ Γ Λ 27 Α Κ 47 Ο 13 Α 2-4-48 ΝΑ Ε 6 7-5-1948 20 18Λ 1-5-1948 Κ Εκτελεσθέντες στις -Α Π 30 Α 31 Α 43 Κ Π 24 Κ Κ 69 Κ Π 26 Λ Λ Ε Γ 44 Ε Π 26 Γ Α 30 Γ 20 Κ 32
53 αφιερώμα : φυλακ εσ αι γινα σ Π Ν Γ 36 Π Κ Π 30 Ρ 25 55 Α Ι 33 Π Κ 25 Α Ε Γ 28 Ν 21 Ε 40 Ο Κ Π Λ Ρ ΛΟ Κ Κ Π Εκτελεσθέντες στις -Γ Γ Κ Π Ν 45 Κ Π Ι 20 Κ Ι 39 Κ Α Α 33 Κ Ε 34 Κ Κ Γ 22 Κ Κ Π 28 33 Ν Α Α Ο Γ 31 Π Α Κ 40 Π Ι Α 31 Π 20 Ρ Ι Α 29 Ρ Κ Α 24 Α Ι 20 Ι 23
54 αφιερώμα : φυλακ εσ αι γινα σ Ο Κ Α Ο ΚΠ Ο ΑΙ Α Α Λ Ε Εκτέλεση στις -Ι Γ 48 Ο Κ Εκτελεσθέντες στις -Ι 41 Κ Ε Λ 31 Π Π Ε 35 Εκτελεσθέντες στις -Κ Ε Γ 23 Γ Π 35 Π Κ17-11-1948 Εκτέλεση στις -Π Κ 36 Ο Κ 2Εκτελεσθέντες στις -Α Α 23 Κ 73 Κ Α Π 42 Κ Ι Π 24
55 αφιερώμα : φυλακ εσ αι γινα σ Κ Γ 29 Π Π Ι Α Π Π Α Ο Κ Κ Ο Π ΚΕκτελεσθέντες στις -Γ Κ Α Α Α Γ Λ Ι Γ Ι Π Κ 28 Εκτελεσθέντες στις -Κ Π Ν 21 Λ Ε 26 Ι Α 38 Α Ο Κ Π Π Εκτελεσθέντες στις -Α Α Γ Ν Κ Γ Κ Ε Γ Π -
56 αφιερώμα : φυλακ εσ αι γινα σ Εκτελεσθέντες στις -Α Ι Π 38 Λ Ε Ι Λ 22 Α 22 Ο ΠΕΡ Ο ΑΡΟΕκτέλεση στις -Ο Κ Γ ΠΙ ΚΟ Π Εκτέλεση στις -Π Ε 26 Εκτελεσθέντες στις -Ι Π Ι 24 Γ 34 Εκτελεσθέντες στις -Κ Α Γ Π Α Α Εκτελεσθέντες στις -Γ Π Ε 26 Π Α 27 Κ Ι Α 1949 Ν Λ Γ Λ Ε Κ
57 αφιερώμα : φυλακ εσ αι γινα σ Ε ΑΑ ΕΚΚ Α Γ Ε Α Π Κ 29 6 17-08-1944 Π 1 1948 ΥΛΕ Ο ΛΚ 154 Ο Π Κ Ε ΚΚ 154 ΛΕ Κ Ρ Υ 6 1948 20 Α Κ Κ Ρ 1546Ο 6 25 Ι 1948 Γ Ο Λ
58 αφιερώμα : φυλακ εσ αι γινα σ Γ Ο ΑΚ Α ΕΑ Ο ΓΑ -
59 αφιερώμα : φυλακ εσ αι γινα σ ΓΙ ΡΓΟ ΑΡΙΝΟ Ονειρεύομαι *1 Ο Κ Ο Ν Ο Ν Ο Κ Ο Κ Ο Ο Ν Ο Γ Ο Ο Κ Α 2011 Α Γ Α

Μικρό χρονικό μεγ λης ιστορίας

Ε ν ρδειο: να ιστορικό κτήριο

διαμορ νεται σε ι λιοθήκη

ΓΑΚ Τοπικό Αρχείο Αίγινας:

Η ιδιαιτερότητα ως πρόκληση

Η ι λιοθήκη ως τόπος

Τα σπ ργανα της Βι λιοθήκης

της Αίγινας Η Βι λιοθήκη Εν δρ σει

αφιερωμα

Δημόσια Καποδιστριακή

Βι λιοθήκη Αίγινας

Στις Μαρτίου πραγματοποιήθηκε στο Γενικό Λύκειο Αίγινας ημερίδα με θέμα Βι λιοθήκες σε η ιακό περι λλον το μέλλον και τις προκλήσεις που αντιμετωπί ουν οι ι λιοθήκες στη χ ρα μας Το ως εμ ληματικό έτος στην ιστορία της Εθνικής Βι λιοθήκης που μετεγκαθίσταται στο νέο της κτήριο στο Κέντρο Πολιτισμού Σταύρος Νι ρχος έδωσε την α ορμή να ασχοληθούμε ειδικότερα με την Καποδιστριακή Βι λιοθήκη Αίγινας Η Ε ορεία της Βι λιοθήκης σε συνεργασία με την Αιγιναία προσκ λεσαν ομιλητές

από την Εθνική Βι λιοθήκη τα Γενικ Αρχεία του Κρ τους το Υπουργείο Παιδείας καθ ς και εμπειρογν μονες σε θέματα σχεδιασμού ι λιοθηκ ν για να συ ητήσουν Απ τερος στόχος της ημερίδας ήταν να εμπλακεί η τοπική κοινωνία και η εκπαιδευτική κοινότητα σε έναν δι λογο από τον οποίο θα προκύ ει μία καθαρότερη εικόνα για το τι είδους ι λιο -

θήκη επιθυμούμε να συνδιαμορ σουμε

Τα θέματα που απασχόλησαν τους ομιλητές αλλ και το κοι-

νό που παρακολούθησε ήταν πολλ και ενδια έροντα: η καλ-

λιέργεια μίας ι λιο ιλικής κουλτούρας οι περιορισμοί που

επι λλει η επίλυση του κτηριακού οι προκλήσεις που θέτει

η μετ αση από τον έντυπο στον η ιακό λόγο η αν γκη

επιμόρ ωσης στις νέες δυνατότητες που προσ έρει μία σύγ-

χρονη ι λιοθήκη και η σημασία που έχει για μία τοπική κοι-

νωνία η συμμετοχή της στη διατύπωση των προτεραιοτήτων

που α ορούν τον σχεδιασμό της δικής της ι λιοθήκης

Η Αιγιναία παρουσι ει στο τεύχος αυτό κ ποιες από

τις ομιλίες με στόχο να δ σει ήμα σε όσους επιθυμούν να

εμπλακούν με αυτό το εγχείρημα

61
62 αφιερ ώ μα : Δ ή μοσια καπο Δ ιστριακ ή βιβλιοθ ήκή αιγινασ ΠΡΟΝΟ Ε ΟΛΟΓΙ ΟΥ * 1 Μικρό χρονικό μεγ λης ιστορίας Ε Γ Π 1948υ ό το όνομα α ο ιστριακ ι λιο κη Αιγίνης Υ Π Α Κ Κ Κ 19Ι ΚΑ Γ ΓΠ Π (1822Κ Ι Κ Ε Α Κ ΚΕ (1890Α Γ Κ ΓΑ ΥΠ ΚΓΠ Ε Κ Α
63 αφιερ ώ μα : Δ ή μοσια καπο Δ ιστριακ ή βιβλιοθ ήκή αιγινασ Ο Κ ο 1984 Α Γ ΓΚ Κ Ε ΚΕ Ε ιεν ργεια ολιτιστικ ν εκ ηλ σεων Κ ημιουργία νευματικού ντρου 1992 ΚΕ Α αρα ωρεί στο ουργείο αι είας τη ρ ση του νάρ ειου στγαση της ημόσιας ι λιο κης Αίγινας 1993 Υ Π Α Κ για τη στ γαση του στορικού Αρ είου Αίγινας να ξεκιν σουν οι ια ικασίες ε ισκευ ς του α ό την αρμό ια ε νικ ηρεσία Κ ΚΙΑ Ε Α Κ Π 2012 Ε ΑΚΙ 1830 Κ Α19 Α2013Κ Ι Α ΑΚ
64 αφιερώμα : Δ ήμοσια καπο Δ ιστριακή βιβλιοθήκή αιγινασ 2014 Κ Υ Π Ι Α Κ μη ημιουργη εί ρό λημα στη λειτουργία της ι λιο κης ροτείνει να εγκαταστ σει στο λάι της να ροκατασκευασμ νο οικίσκο Ε ράξη α ομείωσης της ι λιο κης Γ 2016 Εεξαιρετικά ε είγον . Α ΥΥ Π( . αύλου μ μα Μελ της και ρομη ει ν Μ. φακάκης νικό ντρο εκμηρίωσης . αρ άλης ρο στάμενος ι λιο ηκ ν και στορικ ν Αρ είων . κουλικιάς εκ ρόσω ος ελεγρίνη- τενί ου λ ρου μη ανικοί σύμ ουλοι ελεγρίνηΚ Ετην εκκ νωση της ητουμ νης αί ουσας α ει σο αρότατες συν ειες με κυριότερη αυτ της ιάλυσης της σύμ ασης με την ανά ο ο εταιρεία τη μη ολοκλ ρωση του ργου να ε αναξεταστούν τα ε ομ να ως ρος την αναστ λωση του νάρ ειου Α Γ 17 Ι 2017Α 28 Ε-
65 αφιερώμα : Δ ήμοσια καπο Δ ιστριακή βιβλιοθήκή αιγινασ Κ Π Υ Π Ε Ε Εμελ τη ε ισκευ κατασκευ α οκατάστασΥ Π245 2008 Κ ηφιακ ι λιο κη είναι η ι λιο κη ου αρ ει όλο της το υλικό σε ηφιο οιημ νη μορφ μ σω του ηλεκτρονικού υ ολογιστ . ι ηφιακ ς ι λιο κες μ ορεί να μην υφίστανται ως φυσικά κτ ρια αλλά να λειτουργούν μόνο ηλεκτρονικά μ σω ια ικτύου. Αυτ ς οι ι λιοκες ονομά ονται εικονικ ς ι λιο κες ωρίς σύνορα και ξεκίνησαν να ημιουργούνται το 1990. Κ ΑΕ Ε
66 αφιερώμα : Δ ήμοσια καπο Δ ιστριακή βιβλιοθήκή αιγινασ Ε Υ ΟΡ ΙΑ Λ ΡΟΥ * 1 εϋναρδειο: να ιστορικό κτήριο διαμορ νεται σε ι λιοθήκη Ε Κ Α ΕΚ 1830 Κ 200 Α ΕΕ Α Α Λ1945 Υ Π 1994 Υ Π Κ Α Κ Υ Π 2009 Α Ο Ε Ε Α Π Υ Υ Π
67 αφιερώμα : Δ ήμοσια καπο Δ ιστριακή βιβλιοθήκή αιγινασ Δομημένο περι λλον Κτήριο Ε ΠΚ ΚΑ Λ 1 ΕΠιο . ο ογραφικό α όσ ασμα της εριο ς του ναρ είου . Ο Ο Π Κ Κ Π Ε Π
68 αφιερώμα : Δ ήμοσια καπο Δ ιστριακή βιβλιοθήκή αιγινασ ιο . όρεια ό η του κτηρίου ό ου ρίσκεται είσο ος και το ρόστυλο.ΟΓενικές Αρχές Επεμ σεις ΓΟ---
69 αφιερώμα : Δ ήμοσια καπο Δ ιστριακή βιβλιοθήκή αιγινασ--Κ-
ο κτ ριο του ναρ είου.
70 αφιερώμα : Δ ήμοσια καπο Δ ιστριακή βιβλιοθήκή αιγινασ Χρήσεις και λειτουργίεςΠ ΑΟργανόγραμμα λειτουργίαςΚτηριολογικό πρόγραμμαΟ Π Εσωτερική διαρρύθμιση-
71 αφιερώμα : Δ ήμοσια καπο Δ ιστριακή βιβλιοθήκή αιγινασ ΛΓ-Αιο . άτο η ισογείου.
72 αφιερώμα : Δ ήμοσια καπο Δ ιστριακή βιβλιοθήκή αιγινασ Ο ΑΕ Ειο . ομ ς του κτηρίου.
73 αφιερώμα : Δ ήμοσια καπο Δ ιστριακή βιβλιοθήκή αιγινασ ΛΕ Ο Κ Κ ΝΑ ΕΑΛΑ Ε Α ιο . άτο η αταριού.
74 αφιερώμα : Δ ήμοσια καπο Δ ιστριακή βιβλιοθήκή αιγινασ Περι λλον χ ροςΠροσδοκ μενα αποτελέσματα Ε-Α Π
75 αφιερώμα : Δ ήμοσια καπο Δ ιστριακή βιβλιοθήκή αιγινασ Α ΑΛΙΑ ΠΑΠΠΑ* ΓΑΚ Τοπικό Αρχείο Αίγινας: Η ιδιαιτερότητα ως πρόκλησηΑΑ 1ΟΕ ΕΓ Α Α Κ Υ Γ Α Κ Α
76 αφιερώμα : Δ ήμοσια καπο Δ ιστριακή βιβλιοθήκή αιγινασ 1893 Ε Κ Ε 1821Ι Κ Α ΓΑ Κ Ι 2 Π Γ Α Κ 1821Α Π ΚΕ Α 3 Ι Το Τοπικό Αρχείο Τ Α της Αίγινας το ιστορικό της ίδρυσής του Α Α ΓΑΚ Ν Κ 1989 Α Ο Ε ΕΓΑΚ 19744 Α Ν Ε Κ 1914-2014 Ε Γ Α κατάλογος κ εσης 100 ρόνια Γενικά Αρ εία του ράτους 500 ρόνια ιστορίας ε ιμ. Αμαλία α ά Α 2016 10 11 Γ Α Κ ΓΑΚ ΑΙΓΙΝΑ -

Αίγινα ει σ ου αία ιστορικ αρά οσιν και μάλιστα ε ρημά-

τισεν η ρ τη ρωτεύουσα του αναγεννη ντος ελληνικού κράτους

εις το Αρ είον αυτόν α εισάγονται α ό της ι ρύσε ς του τα ια

τηρητ α ιστορικά αρ εία των ημοσίων ημοτικ ν και

υ ηρεσι ν του τό ου και

ότι οικογ νειαι κάτο οι ιστορικ ν εγγράφων είναι ι ανόν να

σ εύσουν να κατα σουν ταύτα εις την υ εύ υνον αρ ειακ ν ημόσιαν

77 αφιερώμα : Δ ήμοσια καπο Δ ιστριακή βιβλιοθήκή αιγινασ
υ ηρεσίαν. Α Υ Π Α ΙΕΚ Α Ι Λ Α Α 1976 Α Ο ΓΑΚ Κ 5 Α ρονούμεν ότι είναι ροφαν ς η ε νικ ε ιστημονικ και εν γ νει ολιτιστικ σημασία του ο ικού Αρ είου ια την μελ τη και ρο ολ του τό ου 1988 Α Ι Α Υ Π6 1989 Α Γ Κ Υ Π Α Κ 7 1991 Γ Α Κ Γ Α Κ Α Α Γ Α Κ ΟΑ Υ ΑΕ Γ Α Κ Ι Ι
78 αφιερώμα : Δ ήμοσια καπο Δ ιστριακή βιβλιοθήκή αιγινασ Α Υ Α Α Υ ΙΙ Το περιεχόμενο του Αρχείου Α Α 20138 Κ Υ ΓΑΚ Ε19 Ε Κ Α Λ Ο Α ΕΑ Λ ΑΚ Κ ΥΓΑΚ ΙΙΙ Η ανατομία ενός τοπικού Αρχείου δραστηριοποίηση και προοπτικές Κ ΥΑ Α Κ Ι Α Α
79 αφιερώμα : Δ ήμοσια καπο Δ ιστριακή βιβλιοθήκή αιγινασ Α Α Ε ΓΑΚ Υ Π Α ΥΑ ΥΥ 199119899 ΥΑ ΥΑΕ Α Ν υμ όσιο Αρ ειονομίας Αρ εία και αρ ειακοί νας ιστός ρκυρα 11-13 κτω ρίου 1991 Ε Α Ε Α 1992 36
80 αφιερώμα : Δ ήμοσια καπο Δ ιστριακή βιβλιοθήκή αιγινασ Α ΑΑΚ Υ 600 ΓΑ 2013ΥΚ Κ ΥΚ Υ ΓΑΚ ΥΥ ΠΑ 2018 ΑΥ Α Α Α-Α Ε 10 Γ Α Κ -
81 αφιερώμα : Δ ήμοσια καπο Δ ιστριακή βιβλιοθήκή αιγινασ Α 2013 ΑΥΑ Α ΓΑΚ @Ε ΑΑ ΑΑΠ Υ ΓΑΚ 11Α ΑΚ Α Αρ ειονομία η ρακτικ των Γενικ ν Αρ είων του ράτους Α 2012 753-756
82 αφιερώμα : Δ ήμοσια καπο Δ ιστριακή βιβλιοθήκή αιγινασΑΑ ΑΕ Α ΑΑ ΑΥ Α Ν Ν Α ΑΑ

ι τρεις ασικοί υλ νες

ου συν τουν την εμ ειρία

της ι λιο κης οι συλλογ ς

οι υ ηρεσίες και ο ρος.

φυσικός ρος της ι λιο

κης είναι το σημείο

ε αφ ς και αλληλε ί ρασης

του κοινού με τον οργανισμό.

κεί ρίσκεται η ό οια

συλλογ και εκεί εξυ η

ρετούνται οι υ ηρεσίες.

ι ηφιακ ς υ ηρεσίες

α οτελούν μια ροστι μενη

αξία στη ι λιο κη κα ς

την ε εκτείνουν ξω α ό

τα όρια του φυσικού της ρου.

83 αφιερώμα : Δ ήμοσια καπο Δ ιστριακή βιβλιοθήκή αιγινασ Ρ ΑΛΚΙΟΠΟΥΛΟ * Η ι λιοθήκη ως τόποςΑ 2013 ΠΑ Α Ο Α -

Tø o o. η ι λιο κη φτιαξαν τα μ λη με ροσω ικ εργασία.

ι λιο κη λειτουργεί ρες 7 7 μ ρες. κάρτα μ λους είναι το κλει ί

της ι λιο κης ε ιτρ οντας ελεύ ερη συνε ρόσ αση. (© φωτογραφίας άνω o

Ε

αφιερώμα : Δ ήμοσια καπο Δ ιστριακή βιβλιοθήκή αιγινασ

84
-
-
16 Pew 2013

ο

oT είναι η ρ τη ηφιακ ημόσια ι λιο κη στις νωμ νες ολιτείες.

ρ το υ οκατάστημα άνοιξε στο ξας το του 2013 και το εύτερο το 2015.

να τρίτο υ οκατάστημα εί ε ρογραμματιστεί για το 2017. συλλογ της ι λι-

ο κης ρίσκεται α οκλειστικά σε ηφιακ μορφ α ράφια ουν αντικαταστα εί

α ό μεγάλες ο όνες. α μ λη της ι λιο κης κατε ά ουν την αντίστοι η εφαρμο-

γ

και ουν ρόσ αση στη συλλογ α ό το σ ίτι τους. ι λιο κη ροσφ ρει

και ηφιακό εριε όμενο αντί για φυσικά μ σα. oT ροσφ ρει

σε όσους ια τουν κάρτα. ι λιο κη ροσφ ρει ε ίσης ηλεκτρονικ ς

άσεις ε ομ νων και εκ αι ευτικούς όρους.

77%

αφιερώμα : Δ ήμοσια καπο Δ ιστριακή βιβλιοθήκή αιγινασ

85
-

αι ικό τμ μα ημόσιας εντρικ ς ι λιο κης ερρ ν.

ο ερι άλλον της αι ικ ς ι λιο κης οφείλει να είναι σαφ ς ιαφορο οιημ νο

α ό εκείνο του σ ολείου ου ροω εί την τάξη και την ει αρ ημ νη μ σα α ό κανόνες και ια ικασίες μά ηση. τη ι λιο κη η ροσ γγιση της γν σης γίνεται λαμ άνοντας υ ό η την ι ιοσυγκρασία των αι ι ν και την ανάγκη τους

να αυτονομη ούν και να ειραματιστούν μ σα σε να κατάλληλο ασφαλ ς αλλά ερι ετει ες ερι άλλον. τη ι λιο κη η μά ηση ροκύ τει μ σα α ό την εξερεύνηση τον ειραματισμό και την ανακάλυ η. αι ικ ι λιο κη οφείλει να είναι ερι ετει ης.

ανιηλί ειος αι ικ ι λιο κη μου αλαμαριάς.

86
αφιερώμα : Δ ήμοσια καπο Δ ιστριακή βιβλιοθήκή αιγινασ
87 αφιερώμα : Δ ήμοσια καπο Δ ιστριακή βιβλιοθήκή αιγινασ-ανιηλί ειος αι ικ ι λιο κη μου αλαμαριάς. αι ικό τμ μα εριφερειακ ς ι λιο κης αριλάου εσσαλονίκη.
88 αφιερώμα : Δ ήμοσια καπο Δ ιστριακή βιβλιοθήκή αιγινασ ΟΟ
89 αφιερώμα : Δ ήμοσια καπο Δ ιστριακή βιβλιοθήκή αιγινασ ΑΙΡ ΓΑΛΑΝ - ΚΡ ΙΚΟΥ Τα σπ ργανα της Βι λιοθήκης της Αίγινας Α Π Α Α ΝΑ Α Π Νρικόλακες λληνό ουλαΕ Κ Ε Κ Α Κ -
90 αφιερώμα : Δ ήμοσια καπο Δ ιστριακή βιβλιοθήκή αιγινασ Κ Α Α Ε Ε Κ Γ Ε Λ Κ Π Ο Ε στορία του υρω α κού νεύματος ΠΚ Γ Κ Ε Ε Α Α Α ΕΠ Α ΑΠ Γ Α Π Α Κ -
91 αφιερώμα : Δ ήμοσια καπο Δ ιστριακή βιβλιοθήκή αιγινασ ΠΡΟΝΟ ΕΟΛΟΓΙ ΟΥ Ε Υ Υ Π ΥΛΟ Η Βι λιοθήκη Εν δρ σει Κ ΑΕΠ 23 ΑΠ Π Με τους μα ητ ς του ημοτικού ολείου της ρ ικας.
92 αφιερώμα : Δ ήμοσια καπο Δ ιστριακή βιβλιοθήκή αιγινασ Α--ΟΝ Λ Ε Κ Κ Ι Κ Α Γ 36Κ Α ΕΚ Α Ε Κ Ε

Ο τόπος

Σχολικ κτήρια της Αίγινας

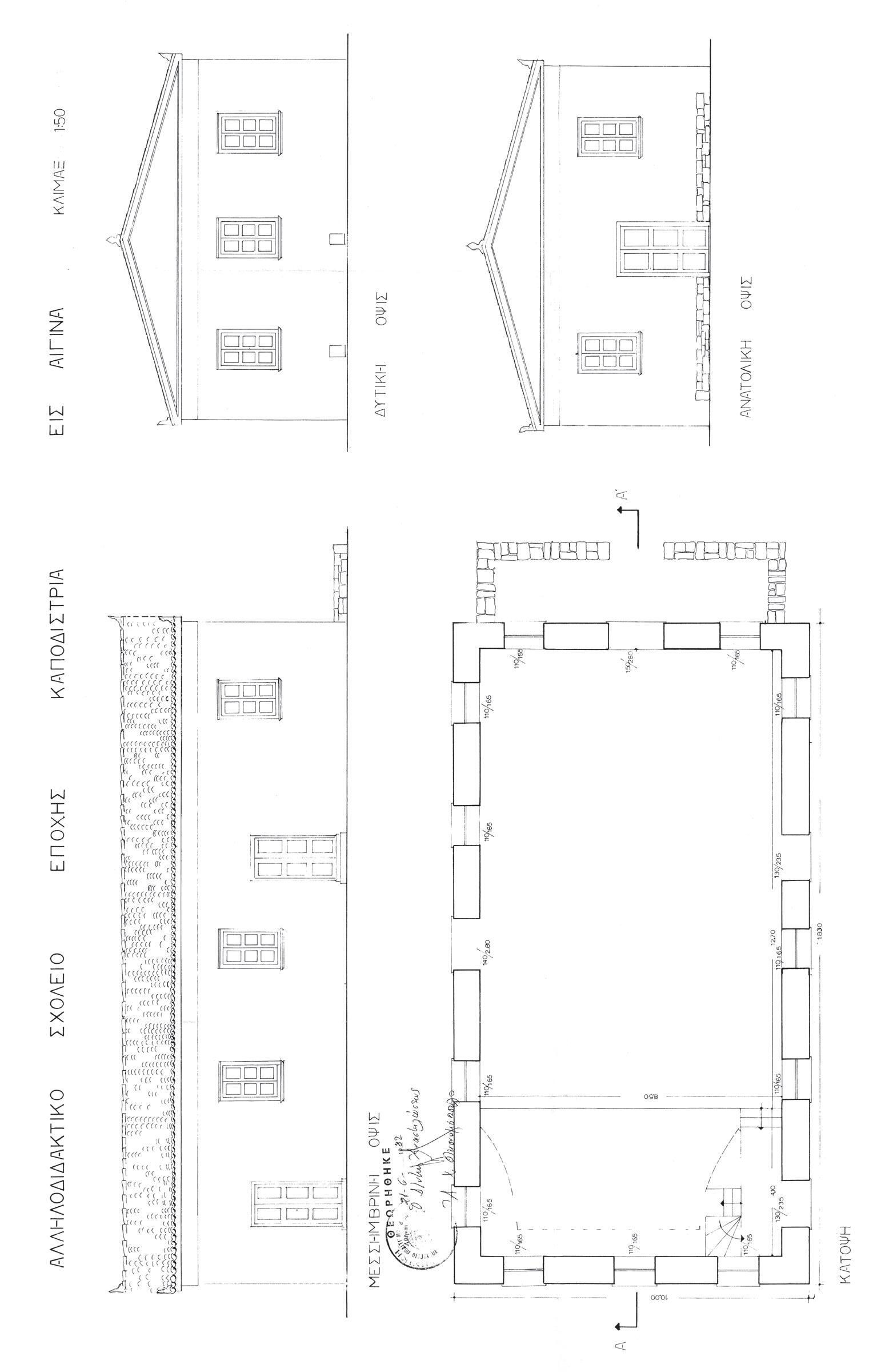
από το νεοκλασικό στο μοντέρνο

93 ο τοποσ
94 ο τοποσ ΑΝΑ Α ΠΑΠΑ ΑΚ * Σχολικ κτήρια της Αίγινας: από το νεοκλασικό στο μοντέρνο Το κείμενο είναι η ομιλία του Αναστ ση Παπαδ κη σε ειδική εκδήλωση που οργαν θηκε στο Πνευματικό Κέντρο Κυ έλης με τον ίδιο τίτλο το Σ ατο Μα ουΑ 1828 ΕΥ Α ΠΑ Α1 Ο Α Π Α Π Γ Π Κ Α ΙΙΙ Π Α 2006
95 ο τοποσ Ο Ι Κ 1828 Κ Π Ε Ε Ε Α Ε 1840 Α 2 Α Ο Α Π Ι Α Α Π Κ Α Κ 3 Α Ν Π ΑΠ Α 3 Α Ι Ι 2001 Κ Α Ο Α Α Π 3 Α ΙΙ 2001 ημοτικό ολείο α ως.
96 ο τοποσΕ 18154 ΠΕ ΟΟ ΠΟ Ε ΚΚ Α Ν Εο ημοτικό ολείο Αίγινας.
97 ο τοποσ Ο Ο Ε Π Ε ΟΟ (140 80Ε 500 Ε Ε Α 5 Κ 3 Κ88 25 22Α Α 6 Α Κ Κ Ε ΕΟ ΠΚ Α
98 ο τοποσ Α οτύ ωση ημοτικού εάτρου Αίγινας σ μερα . Αρ είο ιεύ υνσης ροστασίας και Αναστ λωσης ε τερων και ύγ ρονων μνημείων.
99 ο τοποσ άτο η νάρ ειου.
100 ο τοποσ Α Ο ΚΚ 1887 ΙΚΚ Α Κ 19 Κ Πο οινοτικό Γραφείο υ λης στο ο οίο για μεγάλο ιάστημα στεγάστηκε το ημοτικό ολείο υ λης.
101 ο τοποσ Ε7 1911 Κ 400 1870 60% 8 1 Α 1 Ν Α Κ Κ Ι18 21 Π Α 2013 τιγμιότυ ο α ό τη σ ολικ ω της υ λης. Αρ είο ωάννη λιό ουλου.
102 ο τοποσ1882-18929 Ο Α Π ΚΟ Κ Ε ΑΟ Α ΠΟ Π 1932 ΡΠ Πεμελίωση ημοτικού ολείου Αγίων .
103 ο τοποσ Ο Π Α ΡΠΓ Α ΑΑΟΟ ΕΟΠ ο ημοτικό ολείο υ λης στην αρ ικ του μορφ . εκαετία .
104 ο τοποσΑ 10 Κ 17 1937Ι Κ 11ΚΕ Κ Κ Ε 20 Π Ε Γ ΙΑ Α Π 7 Α Ι Ι 2003 ο
ημοτικό ολείο α είας ά ης.
105 οι ανθρώποι ΚΟΠ ΑΠ Α Κ Κ1919ΟΚΚ Γ

Ο Β ρναλης και η Αίγινα

Βαρκ ρης πλοηγός

Ο Χό ρης

και τα πλ τιγα

106 οι ανθρώποι
Οι νθρωποι
107 οι ανθρώποι ΑΝΑ Α ΙΑ Π Ε * Ο Β ρναλης και η Αίγινα Ο Κ Π 1884 Α 1974 1921 Α Γ Α1921-24 1934-35 Α Π Α Ε ΑΑ Α Α1922-1933 Ν Ε 1922 ΑΚ Κ Α Π ΠΕ Γ Π Α Α
108 οι ανθρώποι Π Π Κ Ι Π Λ Ι Γ Π Ν Κ Π Α Κ ΠΠ Κ ΚΚ Ρ Π ΚΚ Γ ΚΓ Π ΝΑ Λ ΠΚΠ Κ Ν Κ Α Α -
109 οι ανθρώποιΥΚ ΕΑ ΕΠ ΠΕ Α ΟΠ ΕΛΚ
110 οι ανθρώποι ΓΠ Π Κ Α Α Α Α Ε Ι ΑΠΑ Π ΠΚ Κ Κ Α Κ-Α Υ Π Κ ΑΛ ΚΟ
111 οι ανθρώποιΓ Κ Ο Γ ΚΑ Ο Α 1 ο περιστατικ ο :Κ 500 2 ο περιστατικ ο : Α Ν ΙΚ ΚΑΑ ΕΚ Α Ε
112 οι ανθρώποι ΚΑ Ν ΠΓ ΑΛ Κ3 ο περιστατικ ο : Α 1922 Α ΠΠ Α ΝΟ ΟΑ Α Α Κ Α ΑΚ Κ Ε ΑΓ Α Ο ΠΝ-
113 οι ανθρώποι ΚΝ-Α ΑΚ Α Κ Α Ι Κ Π ΓΓ Κ Γ ΙΑΑικατερίνη ρ α η Κ α ό τη μ αλάντα του Αντρίκου. ην στειλε η εγγον της α ελφ ς της φιγ νεια αγκάλου.
114 οι ανθρώποιΑ Ε-ΑΑ Π-Υ Α Α Π Α Γ Α 1994 Π Α Α Κ ΟΑ Ε Α άρκα του καμ ούρη Αντρ α. Α ό το αρ είο του ούλη α αλεονάρ ου είου της ννας άνου.
115 οι ανθρώποι Ν1974 ΑΚ ΚΝΑΑ Ο Αω Γιαννούλη. ην φωτογραφία στειλαν τα ανί ια της υγενία και αντελ ς Γιαννούλης.

ΛΙΝΑ ΠΟΓΡ

Τα κείμενα που ακολουθούν είναι προδημοσίευση του ι λίου

Κου έντες της αυλόπορτας και λλες Γενήτικες ιστορίες

Το πρ το από την ενότητα Γερμανική κατοχή στην Αίγινα

και το δεύτερο από την ενότητα Του κα ενέ

Βαρκ ρης πλοηγός

οι ανθρώποι

116
Π Ε ΡΙ ΟΥ *
Π Ε Ν Ο Α Ν Ο Α Π Ν Α Α 16 21 Ε Α Λ Ο Α1 Γ Ε Ν ΕΛΛΟ Π Α Λ Π Ι Λ Α Π Υ Ι Ν Υ Ι Ν Α 179-186
117 οι ανθρώποιΠ ΛΑΑ Π Ο Ε Π ΛΠ Α Κ Γ Ο Ο Α Κ Γ Κ ΟΝ Ε ΚΟ Κ ΝΑΙ Ο 1945 Γ 1990Κ
118 οι ανθρώποι Α Α . ιά του α ό . ιατάγματος α ενεμ η εις τον άσο . Α λεκτριστ ν Μ Α Α Α ιότι κατά την ιάρκειαν της κατο ς ταείς εις ει ικάς νικάς οργαν σεις ιά συστηματικ ς και ε ικιν ύνου εν ιον του ε ρού εργασίας ροσ φερεν σημαντικάς υ ηρεσίας εις τον υ ρ ατρί ος αγ να και ε ειξεν ευ υ ίαν και αφοσίωσιν εις το κα κον. ε ί της νικ ς Αμύνης ουργός Ο Χό ρης και τα πλ τιγαΚ Λ 2 Π ΠΠΠ 50 Γ 60 Γ 50 762,30 Ο Π 7 Π Κ Γ Π
119 οι ανθρώποι Κ Π Ο Ν Λ Κ 3 4 Γ ΑΓ Ο Λ Π Ο Α ΡΟ ΟΥ Λ

λιοπαρουσι σεις

Θωρ

Τα α όδευτα νας γγελος στα κεραμίδια

120 οι ανθρώποι
ι
121 βιβλιοπαρουσιασει σ Βασιλική Π Αδαμοπούλου Θωρ 11 Ι 2018Π ΑΓ2017 ΟΑΠ ΑΚ ΑΚ Α Κ Ε 14 Ν
122 βιβλιοπαρουσιασει σ Β σω Χαμαλέλη - Μπούκλα Τα α όδευτα 31 2018Γ Α ΑΚ Ε ΕΠ Ε Π Ε 2018--Α Π-Ν Ν Α Ν
123 βιβλιοπαρουσιασει σ Γι ργος Μπήτρος νας γγελος στα κεραμίδια Γ-Ο-Ο Ο ΓΙ α να αν οτ τελειωμό τα ά ια κι οι καημοί του κόσμου Π Π
Ε Αιγιναίας

Λυχνάρι

ΒΙΒΛΙΟΠΩΛΕΙΟ
ΒΙΒΛΙΑ • ΧΑΡΤΙΚΑ • ΕΙΔΗ ΖΩΓΡΑΦΙΚΗΣ Σπ Ρόδη Αιακού Αίγινα Τηλ Σπ Ρόδη Αίγινα Τηλ
με εδοπωλείον Λ. Δημοκρατίας 47, Χώρα Αίγινας, 180 10, Τηλέφωνο: 22970 23529 Παραλία Πέρδικας • τηλ. 22970.61231

Πηλέως 7, Αίγινα

Τ: 22977.72226-7 • F: 22977.72228

δρομάκι ε ηνική παραδοσιακή κουζίνα Ακτή Τότη Χατζή 4, 180 10, Αίγινα, τηλ. 2297 024445
Ιχθυαγορ Αίγινας Λ Α Σ ρρου Ιω ννα Σια Ο Ε

Turn static files into dynamic content formats.

Create a flipbook
Issuu converts static files into: digital portfolios, online yearbooks, online catalogs, digital photo albums and more. Sign up and create your flipbook.