
About Contact | 04
Architectural Design
CR7 House | 05
UKAMCCC | 14
Melbury Court | 20
Warbank | 26
Elderly Day Centre | 36
![]()

About Contact | 04
Architectural Design
CR7 House | 05
UKAMCCC | 14
Melbury Court | 20
Warbank | 26
Elderly Day Centre | 36
Welhouse Road 1, Greater London, United Kingdom
Email: Adasko2002@gmail.com
Telephone: +44 7305923769
“Design is about lining things up”
“Balance”
Throughout working in practice I found my self following these 2 principles ’balance’ and ’alignment’.
- Balance, perhaps the most difficult aspect to master in design, requires an understanding of spatial harmony where proportions are carefully considered so that the design doesn’t feel out of place.
- Alignment, designing based on a centre, allows for a controlled and managed circulation of the space, simultaneously introducing a logical order and balance.
IT:
- MS Office including Word, PowerPoint, Outlook, OneDrive, (Basic knowledge)
- Auto Desk| AutoCAD, Revit, 3ds max (good knowledge) • Rhino 7, Sketchup (good knowledge)
- Adobe|, photoshop, After effects, Premier Pro, Light Room (good knowledge)
- Rendering|, Enscape, Vray, Corona (good knowledge)


Location
Riyadh
Type
High End residential House
Date
TBC
Firm


Responsibilities
- Assisting in Riba Stages 0,1,2
- Producing Concept 3D model
- Producing Concept plans
- Producing 3D renders on 3DS MAX
- Producing Interior 3D model
- Marketing







Location
Queens Park, London
Type
Islamic Community Centre & Mosque
Date
2023 -

Responsibilities
- Assisting in Riba Stages 1,2,3
- Producing Elevations
- Producing Interior 3D model
- Producing plans for Planning applications
- Delegating reports to 3rd parties relevant for planning applications
- Marketing Firm






Location
Highstreet Kensington
Type
High End Residential 5-bedroom Flat
Date
2023 - 2025
Firm


Responsibilities
- Assisting in Riba Stages 0,1,2,3,4,5,6
- Producing Plans
- Producing Interior 3D model
- Ordering Appliances and Furniture
- Monitoring Construction
- Producing Vanity unit drawings
- Producing Furniture Drawings (wardrobes, Units)
- Producing 3d Renders






Location
Kingston, London
Type
5-bedroom High end residential house
Date 2022 – 2025
Firm


Responsibilities
- Assisting in Riba Stage 2,3,4,5,6
- Producing Plans
Producing technical drawings for electrician, plumbers, Mechanical engineers
- Producing Interior 3D model
- Producing exterior 3D model
- Producing Landscape drawings
- Monitoring construction
- Ordering appliances, furniture on behalf of the client
- Producing 3D renders
- Producing Furniture Drawings (wardrobes, Units)
- Producing Interior elevations











Location
Swidnik, Poland
Type
Commercial
Date
2024
Responsibilities
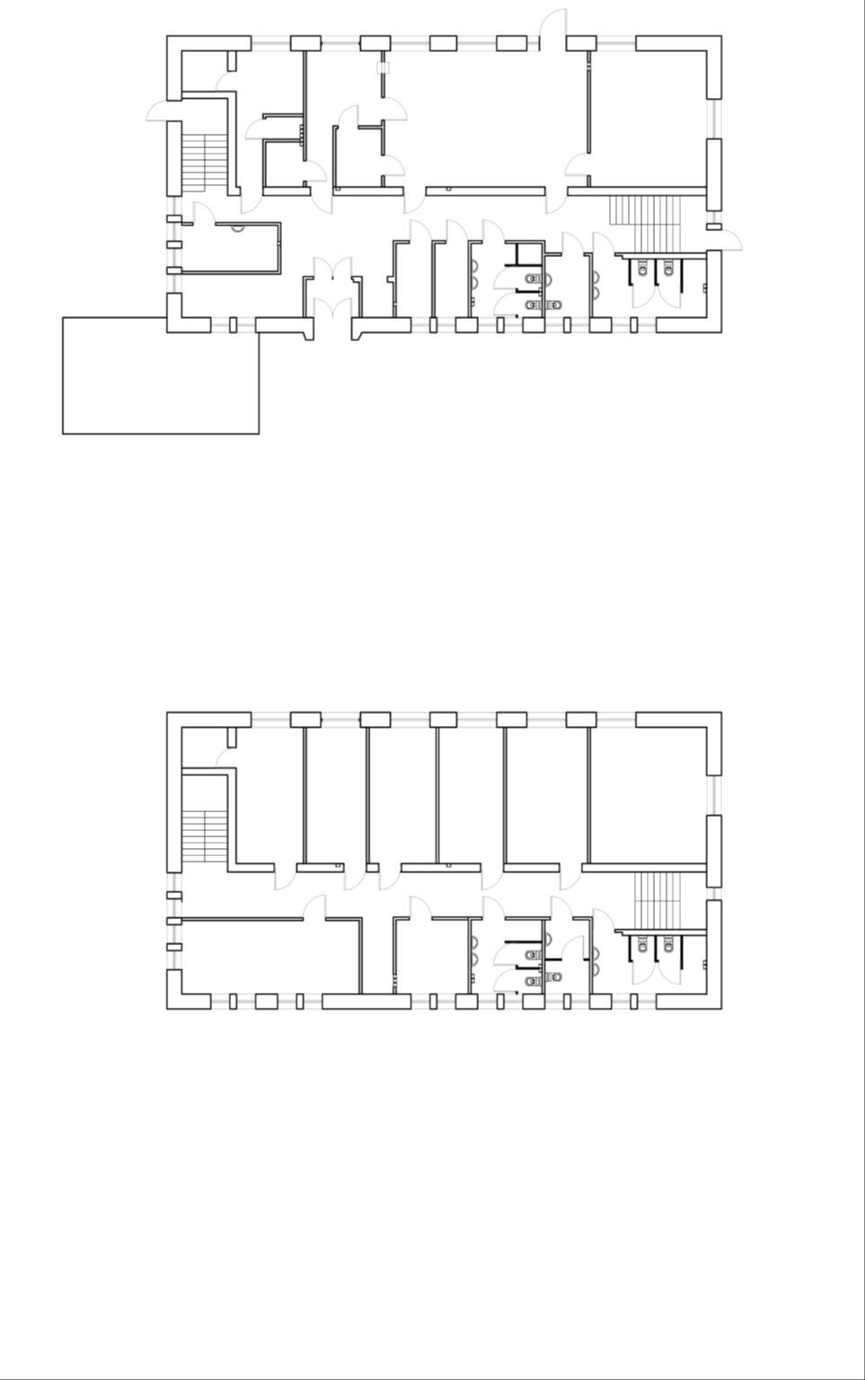
- I had to redesign the interior and add an extension in forms of a second floor and a conservatory.
- Produce drawings, plans, section, elevations
- Produce 3D renders
- Apply for planning permission



Ground Floor

