Portfolio_Mariana Abril Osorio Vargas

Page 1

PROJECTS PORTFOLIO

MARIANA ABRIL

OSORIO VARGAS

ARCHITECT

My name is Mariana Abril Osorio Vargas, I am 29 years old and I live in Mexico City.

My academic and professional development has allowed me to develop at different scales of design, which has contributed to building a comprehensive vision of architectural and urban problems and building a comprehensive vision for their solution.

In addition to architecture and urban planning, I am interested in photography and drawing, activities that I do as a complement to the work and personally as a hobby.

2
3 Mayra Bedroom design Barranco López house interiors Maribel House Tapia Valencia House Morales Osorio house facade Access porch Landscape Zócalo: single platform Decor Integrated water management Photography Drawing and painting Other projects 4 7 8 10 13 14 16 19 20 22 24 25 26
CONTENT

MAYRA BEDROOM DESIGN

Design: Mariana Abril Osorio Vargas

Year: 2020

Location: Yolomécatl, Oaxaca

Objective: Conceptual proposal

Software: Auto Cad + Sketch Up + V-Ray

The project was for an accountant who wanted to have a space to work and rest when she was visiting her parents. The proposal was made in a room whose construction was not finished.

Together with the client, it was decided to use a warm colors palette combined with materials like wood and palm.

Part of the existing furniture was preserved and furniture already present in the house was incorporated. A closet for the protection of clothing and personal items is added as a new element.

4
5 Current status Section view Plan view
6 Plan C C B A B A

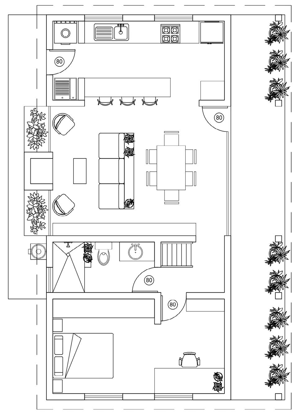
BARRANCO LÓPEZ HOUSE INTERIORS

Design: Mariana Abril Osorio Vargas

Year: 2021

Location: Fresnillo, Zacatecas

Objective: Conceptual proposal

Software: Auto Cad + Sketch Up + V-Ray

The project was for a newly married couple who acquired a previously inhabited house. The couple wanted to carry out a renovation that would not involve structural changes and would bring a contemporary style to the house. A contrasting colors palette was proposed in harmony with the materials and furniture.

The proposed furniture is adapted to the existing spaces, seeking to expand the space visually.

7
Section A-A Section C-C Section B-B

MARIBEL HOUSE

8
Master Plan First floor 1 2 4 3 5 6 7

Design: Mariana Abril Osorio Vargas

Year: 2020

Locatio: Hueyapan, Morelos

Objective: Architectural project

Software: Auto Cad

Mezzanine floor

The project was for a retired teacher who wanted to return to live in the community where she was born and raised in Morelos state. The premise was to design a house for one person with the essential spaces but adding complementary spaces such as a corridor and a loft.

It was requested to incorporate in the design the use of red brick and wood as main materials. It was also requested to have the essential plans to start the construction of the house as soon as possible. The execution was stopped in mid2020 and restore at the end of 2021.

Section

Room list:

1.-Corridor

2.-Kitchen

3.-Living Room

4.-Dining room

5.-Bathroom

6.-Study

7.-Bedroom

8.-Mezzanine

9
8

TAPIA VALENCIA HOUSE

Design: Mariana Abril Osorio Vargas

Year: 2021

Location: Yolomécatl, Oaxaca

Objective: Architectural project

Software: Auto Cad + Revit + Lumion

The project was developed for a family of 5 members: a couple and three daughters. For the spaces, in addition to the essentials such as services and bedrooms, it was requested to incorporate a game room, a gym and two studios. A garden where the couple’s daughters could play was also prioritized. The design process was developed together with the clients from two initial proposals. Observations and modifications were made of the chosen proposal. The project was developed from the topographic survey to the architectural package.

10 Listado de espacios: 1. Parking 2.-Lobby 3.-W.C. 4.-Living Room 5.-Terrace 6.-Dining room First 1 2 3 6 7 8 10 11 12 13 5 4
11 7.-Canteen 8.-Kitchen 9.-Storage 10.-Study 1 11.-Master bedroom 12.-Dressing room 13.-Bathroom 14.-Bedroom 1 15.-Bathroom 16.-Bedroom 2 17.-Bedroom 3 18.-Bathroom 19.-Visiting bedroom 20.-Study 2 Second floor First floor Main Facade 14 15 17 16 18 19 20 21 22 23 9 21.-Game room 22.-W.C. 23.-TV room 24.-Gym 25.-Laundry Third floor
24 25
Rear facade
12
Main facadde current status Proposal 1 Main facade Proposal 2 Main facade

MORALES OSORIO HOUSE FACADE

Design: Mariana Abril Osorio Vargas

Year: 2020

Location: Yolomécatl, Oaxaca

Objective: Conceptual proposal

Software: Sketch Up + V-Ray

The project was for a family of 5 members whose house was built in different phases. At the end of the construction there was no relationship between the interior spaces and the exterior image.

Previously, a project was developed for the family to reorganize the spaces of the house. The facade proposal was design to correspond with the interior activities and providing an appropriate image of the exterior.

Different materials such as stone, wood, iron and paint were incorporated into the proposals.

13
Proposal 1 Side facade Proposal 2 Side facade Sise facadde current status

ACCES PORCH

14
Acapulco porch side view Acapulco porch front view Acapulco porch side view

Design: Mariana Abril Osorio Vargas

Year: 2019

Locatio: Acapulco, Guerrero/ Cancún

Quintana Roo

Objective: Architectural project

Software: Auto Cad + Revit + Lumion

Both porches were designed for a housing complex by Consorcio Ara. The porch in Acapulco was designed for a private property within a subdivision. The porch in Cancun was designed for the main access of a house complex.

In both projects the conceptual proposal was elaborated; only for the porch in Acapulco the architectural project was developed, which was later integrated with the engineering designed by the corresponding areas.

15
Cancun porch side view Cancun porch side view Cancun porch front view

LANDSCAPE

Design: Mariana Abril Osorio Vargas

Visualization: Ricardo Hernández García

Year: 2019

Location: Ocoyoacac, Estado de México

Objective: Architectural project

Software: Auto Cad + Revit + Lumion

As part of the infrastructure of each Consorcio Ara housing complex, a rain regulation vessel is incorporated as part of the hydro-sanitary infrastructure. For this complex, the regulating vessel was integrated, creating a lagoon that would function as an amenity for the complex.

The plant palette was designed with tree and shrub species from the region looking for the image of a forest. The palette was designed with the advice of biologists and landscape architects.

The lagoon has walkers, children’s play area, outdoor gym, and grills.

Space list:

1.-Access (by clubhouse)

2.-Main walker

3.-Secondary walkers

4.-Children’s play area

5.-Grills

6.-Outdoor gym

7.-Service accesses

16
6 5 7 5 7 3
17 1 2 4 5 3
Walkers Grill Children´s play area Outdoor gym Master Plan
18
Catedral y Palacio Nacional

ZÓCALO: SINGLE PLATAFORM

Design: Brisa Caballero Poblano, Maggi Franco Pineda, Mariana Abril Osorio Vargas, Sandra Verónica Hernández López, Santiago Vázquez Díaz

Visualization: Mariana Abril Osorio Vargas

Year: 2021

Location: Cuauhtemoc, Mexico City

Objective: Academic project

Software: Photoshop

As part of the final work for the first semester of the Specialization in Public Space and Urban Mobility, an intervention proposal was made to the Zócalo of Mexico City.

The proposal consists of a single platform in the first square of the Historic Center with a design that promotes all modes of transport but prioritizes pedestrian mobility. Additionally, shadow and rest spaces are placed.

Also, a ramp is incorporated from the Zócalo metro station, showing the union between the most relevant public space and the most relevant public transport in the city.

de piedad 19
Vista de conjunto Monte

DECOR

20
Wainscoting proposal edition
Exploded view and floor specification Decoration design in wooden beams

Design: Reyna Rivas, Abril Osorio

Visualization: Mariana Abril Osorio

Vargas

Year: 2022

Objective: Concept proposal and Decor project

Software: Photoshop

In Decor department, we did searched and selection of pieces (furniture, lighting and art) was carried out for each room of different residences. The selection was made according to the style previously defined by the architecture department and according to the clients interests.

In addition to proposing pieces from existing collections, if the project required it, specific furniture was designed for each client. The selection of colors and materials for floors, walls and ceilings was also carried out. As well as the design of borders, friezes, baseboards.

21
Outdoor lighting proposal edition Furniture proposal edition Bathroom furniture proposal edition

INTEGRATED WATER MANAGEMENT

Diseño: Tirian Mink, David Sandoval, Abril Osorio

Proyecto y cooordinación: Abril Osorio, David Sandoval

Año: 2022-2023

Alcance: Proyecto arquitectónico, Coordinación y Ejecución de obra Recursos empleados: Auto Cad + Skecth Up

Through different projects, and at different scales of application, we sought to facilitate access to water for various communities such as vulnerable groups, schools and towns.

Through the application of sustainable technologies, mainly rainwater harvesting, it was sought that these communities could make the most with the available resource.

Also, projects were carried out for individuals and associations that sought to summarize the use of various technologies as well as promote the responsible use of water. Likewise, procedures were carried out before government bodies in cooperation with municipal authorities.

22
23
Rainwater harvesting systems proposal Water distribution system design Washing Stations model diagram Washing Stations model Washing Stations model

PHOTOGRAPHY

24
Portrait photography Location photography product photography

DRAWING AND PAINTING

25
Watercolor sketch Pencil sketch Pencil and marker plans Watercolor portraits

OTHER PROJECTS

Consorcio ARA

Green areas for common use: 2018, architectural project

Swimming pools: 2019, architectural project

Employee cafeteria: 2019, conceptual proposal

Individual projects

Tezoyuca terrace: 2018, architectural project

Cocina y comedor: 2018, architectural project

Morales Osorio house plan modification: 2018, architectural project

Hermes country house: 2020, conceptual proposal

Apartments building: 2020, conceptual proposal

Baño Familia Tapia Cruz: 2020, conceptual proposal

26
Hermes country house virtual tour Apartments building virtual tour

abril.osvar8@gmail.com

55 3132 1626

27

Turn static files into dynamic content formats.

Create a flipbook
Issuu converts static files into: digital portfolios, online yearbooks, online catalogs, digital photo albums and more. Sign up and create your flipbook.
Portfolio_Mariana Abril Osorio Vargas by Mariana Abril Osorio Vargas - Issuu