Portafolio Mariana Abril Osorio Vargas

Page 1


PORTAFOLIO DE TRABAJOS

MARIANA ABRIL
OSORIO VARGAS
ARQUITECTA

Soy Abril Osorio, tengo 30 años y actualmente radico en la Ciudad de México.

Mi desarrollo académico y profesional me ha permitido desenvolver en diferentes escalas de diseño, lo que ha contribuido a construir una visión integral de las problemáticas arquitectónicas y urbanas y, a construir un criterio integral para la solución de estas.

Además de la arquitectura y el urbanismo, me interesan la fotografía y la pintura en acuarela, actividades que realizo en complemento para el ámbito laboral y personalmente como pasatiempo.

CONTENIDO

Obra Pública

Gestión integral del agua

Zócalo: plataforma única

Landscape

Pórticos de acceso

Casa Maribel

Casa Tapia Valencia

Fachada Casa Morales Osorio

Decoración

Interiores Casa Barranco López

Recámara Mayra

Fotografía

Dibujo y pintura

Otros proyectos

OBRA PÚBLICA

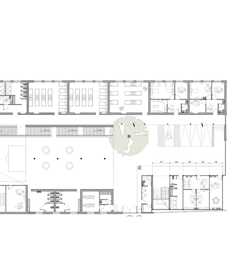
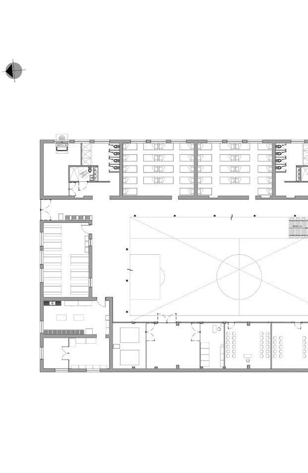
Diseño: Karla Banda, Daniel De Villa Abril Osorio

Desarrollo de Proyecto y coordinación: Karla Banda y Abril Osorio

Año: 2023- 2024

Alcance: Proyecto ejecutivo y seguimiento en obra Recursos empleados: Auto Cad

A través de la Secretaría de Obras y Servicios de la Ciudad de México, se desarrollaron proyectos que atendieron las problemáticas arquitectónicas presentadas por Instituciones y Dependencias Públicas. Entre estos proyectos, se desarrollaron los Centros de Asistencia e Integración Social (C.A.I.S.) Vasco de Quiroga y Central de Abastos, los cuales proporcionan gratuitamente servicios de primera necesidad a personas en situación de vulnerabilidad. Entre otros espacios, los C.A.I.S. cuentan con comedor, dormitorios baños y regaderas, servicio médico y atención psicológica.

Los C.A.I.S. fueron ejecutados en coordinación con la Dirección General de Construcción de Obras Públicas y la Secretaría de Bienestar e Igualdad Social de la Ciudad de México.

Planta Baja C.A.I.S. Central de Abastos
Planta Baja CA.I.S. Vasco de Quiroga

Modelo Estaciones de Lavado

Modelo Estaciones de Lavado

Estaciones de Lavado

Propuestas
Diseño de
Diagrama

de sistemas de distribución de agua

sistemas de cosecha de agua de lluvia

GESTIÓN INTEGRAL DEL AGUA

Diseño: Tirian Mink, David Sandoval, Abril Osorio

Proyecto y cooordinación: Abril Osorio, David Sandoval

Año: 2022-2023

Alcance: Proyecto arquitectónico, Coordinación y Ejecución de obra

Recursos empleados: Auto Cad + Skecth Up

Mediante distintos proyectos, y en diferentes escalas de aplicación, se buscó facilitar el acceso al agua a poblados, instituciones, escuelas y particulares.

A través de la aplicación de tecnologías sustentables, principalmente captación de agua de lluvia, se buscó que, los beneficiarios pudieran aprovechar al máximo el recurso disponible y se fomentara el uso responsable del agua.

Además, mediante talleres y manuales, se proporcionó a los usuarios la información necesaria para el manejo, cuidado y mantenimiento de la infraestructura. Los diferentes proyectos fueron desarrollados en compañía de asociaciones privadas e instituciones públicas. También, se trabajó en cooperación con autoridades municipales y estatales principlamente del estado de Oaxaca.

ZÓCALO: PLATAFORMA ÚNICA

Vista de conjunto
Catedral y Palacio Nacional
Catedral

Diseño: Brisa Caballero Poblano, Maggi Franco Pineda, Mariana Abril

Osorio Vargas, Sandra Verónica

Hernández López, Santiago Vázquez

Díaz

Visualización: Mariana Abril Osorio Vargas

Año: 2021

Localización: Cuauhtemoc, Ciudad de México

Alcance: Proyecto académico

Recursos empleados: Photoshop

Como parte de la entrega final del Taller de Integración de la Especialización en Espacio Público y Movilidad Urbana, se realizó una propuesta de intervención al Zócalo de la Ciudad de México.

La propuesta consiste en una plataforma única con un diseño que propicia todos lo modos de transporte pero prioriza la movilidad peatonal. Así mismo, se definieron espacios de sombra y descanso.

También, se incorporó una rampa desde la estación de metro Zócalo, evidenciando la unión entre el espacio público y el transporte público más relevantes de la ciudad.

Centro Joyero
Monte de piedad
Rampa al metro Zócalo

LANDSCAPE

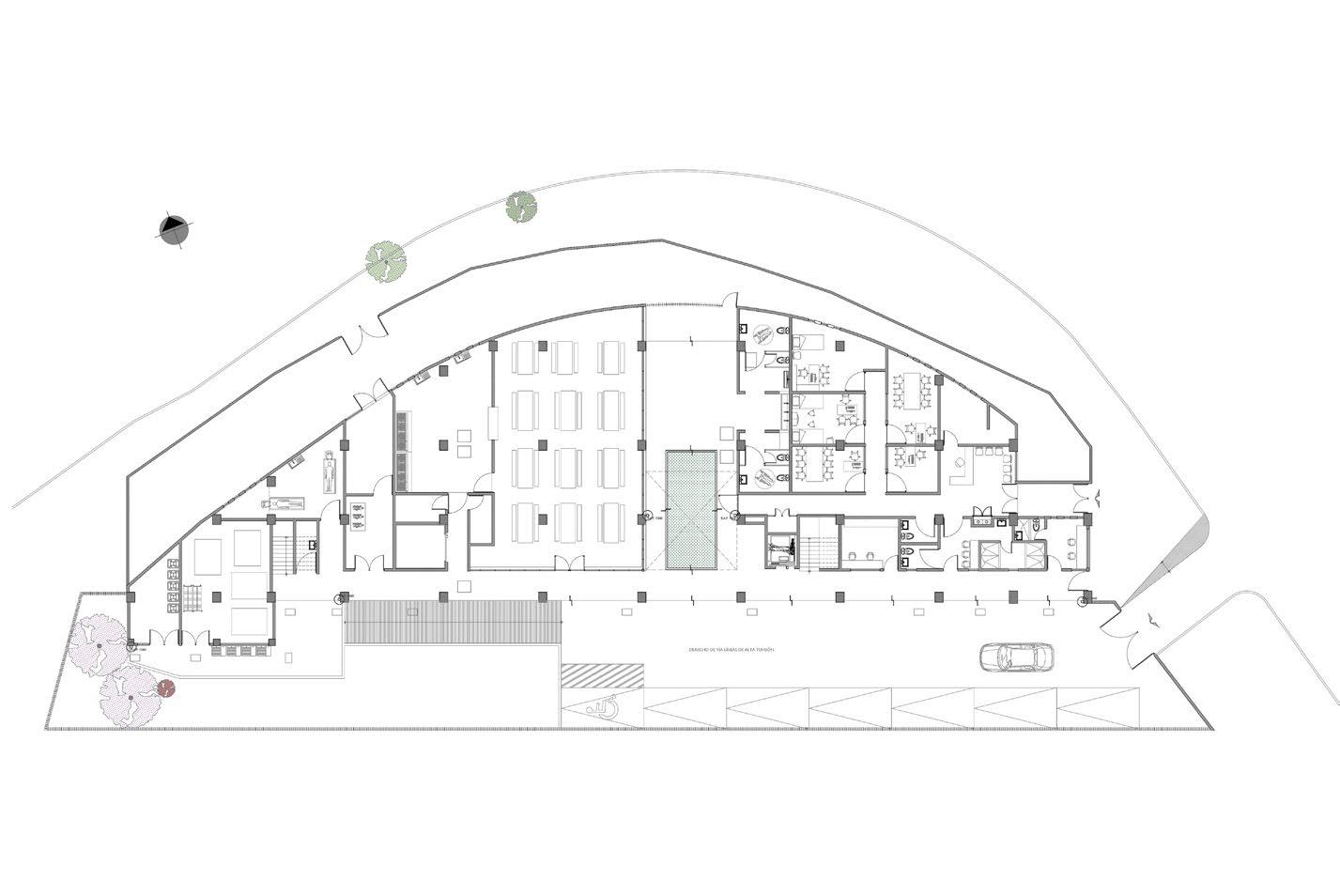
Diseño: Mariana Abril Osorio Vargas

Visualización: Ricardo Hernández García

Año: 2019

Localización: Ocoyoacac, Estado de México

Alcance: Proyecto arquitectónico

Recursos empleados: Auto Cad + Revit + Lumion

Listado de espacios:

1.-Acceso (por casa club)

2.-Andador principal

3.-Andadores secundarios

4.-Juegos infantiles

Como parte de la infraestructura de cada desarrollo habitacional de Consorcio Ara se incorpora un vaso de regulación pluvial como parte de la infraestructura hidrosanitaria. Para este desarrollo se integró el vaso regulador creando una laguna que funcionara como amenidad del conjunto.

La paleta vegetal se diseñó con especies arbóreas y arbustivas de la región buscando la imagen de un bosque. La paleta fue diseñada con asesoría de biólogos y paisajistas.

La laguna cuenta con andadores, área de juegos infantiles, gimnasio al aire libre, pergolados y asadores.

5.-Pergolados y asadores

6.-Gimnasio al aire libre

7.-Accesos de servicio

Vista de conjunto
Juegos infantiles
Pergolado y asador
Gimnasio al aire libre
Planta de conjunto

Pórtico para desarrollo en Cancún

Pórtico para desarrollo en Cancún

Pórtico para desarrollo en Acapulco

Pórtico
Pórtico

Pórtico para desarrollo en Cancún

Pórtico para desarrollo en Acapulco

PÓRTICOS DE ACCESO

Diseño: Mariana Abril Osorio Vargas

Año: 2019

Localización: Acapulco, Guerrero/ Cancún Quintana Roo

Alcance: Proyecto arquitectónico

Recursos empleados: Auto Cad + Revit + Lumion

Pórtico para desarrollo en Acapulco

Ambos pórticos fueron diseñados para desarrollos habitacionales de Consorcio Ara. El pórtico en Acapulco fue diseñado para una privada dentro de un fraccionamiento. El pórtico en Cancún se diseñó para el acceso principal de un desarrollo. En ambos proyectos se elaboró la propuesta conceptual; solo para el pórtico en Acapulco se desarrolló el proyecto arquitectónico que se integró posteriormente con las ingenierías diseñadas por las áreas correspondientes.

CASA MARIBEL

Planta de conjunto
FACHADA SUR
FACHADA ORIENTE

Diseño: Mariana Abril Osorio Vargas

Año: 2020

Localización: Hueyapan, Morelos

Alcance: Propuesta conceptual

Recursos empleados: Auto Cad

El proyecto se realizó para una maestra jubilada que se retiró a vivir al estado de Morelos. Se tuvo como premisa diseñar una casa accesible con un programa arquitectónico básico (recámara, baño, sala, comedor y cocina) pero que contara con un corredor y un tapanco.

Se solicitó incorporar al diseño el uso de ladrillo rojo recocido y madera como materiales principales.

La casa tuvo 2 periodos de construcción, de 2019 a 2020 y de 2022 a 2023.

8.-Tapanco

CASA TAPIA VALENCIA

Diseño: Mariana Abril Osorio Vargas

Año: 2021

Localización: Yolomécatl, Oaxaca

Alcance: Proyecto arquitectónico

Recursos empleados: Auto Cad + Revit + Lumion

El proyecto se elaboró para una familia de 5 integrantes: una pareja y tres hijas.

Para el programa de espacios, además de los escenciales, se solicitó incorporar un cuarto de juegos, un gimnasio y dos estudios. También se priorizó la exitencia de un jardín.

El proceso de diseño se llevó a cabo junto con los clientes a partir de dos propuestas de las cuales se hizo una elección. De la propuesta elegida se realizaron observaciones y modificaciones.

El proyecto se realizó desde el levantamiento topográfico hasta la paquetería de planos arquitectónicos.

Listado de espacios: 1.-Estacionamiento 2.-Vestíbulo 3.-1/2 baño 4.-Sala

7.-Cantina

8.-Cocina

9.-Bodega

10.-Estudio 1

11.-Recámara principal

12.-Vestidor

13.-Baño recámara principal

14.-Recámara 1

15.-Baño recámara 1

16.-Recámara 2

17.-Recámara 3

18.-Baño

19.-Recámara de visitas

20.-Estudio 2

Planta tercer nivel

21.-Salón de juegos

baño

TV

Planta
Fachada principal estado actual
Propuesta 1 Fachada principal
Propuesta 2 Fachada principal

FACHADA CASA MORALES OSORIO

Diseño: Mariana Abril Osorio Vargas

Año: 2020

Localización: Yolomécatl, Oaxaca

Alcance: Propuesta conceptual Recursos empleados: Sketch Up + V-Ray

El proyecto se realizó para una familia de 5 integrantes cuya casa fue construida en diferentes etapas. Al finalizar la construcción no existía relación entre los espacios interiores y no existía correspondencia con la imagen exterior.

Anteriormente para la familia se realizó un proyecto de reorganización de los espacios de la casa. La propuesta de fachada buscó ser correspondiente con las actividades interiores además de crear una imagen homologada del exterior.

En las propuestas se incorporaron diferentes materiales como recubrimientos pétreos, madera, herrería y pintura.

Propuesta 1 Fachada lateral
Propuesta 2 Fachada lateral
Fachada lateral estado actual

DECORACIÓN

Diseño de decoración en vigas de madera

Despiece y especificación de pisos

Edición para propuesta de bota grasa

Diseño: Reyna Rivas, Abril Osorio

Visualización: Mariana Abril Osorio

Vargas

Año: 2022

Alcance: Proyecto conceptual, proyecto de decoración

Recursos empleados: Photoshop

Dentro del área de decoración, se realizaba la búsqueda y selección de piezas (mobiliario, iluminación y arte) para cada habitación de diferentes residencias. La selección se realizaba de a cuerdo al estilo previamente definido por el área de arquitectura y de acuerdo a los intereses de los clientes.

Además de proponer piezas de colecciones existentes, si el proyecto lo requería, se diseñaba mobiliario específico para cada cliente.

También se realizaba la selección de colores y materiales para pisos, muros y plafones. Así como el diseño de cenefas, frisos, zócalos.

Ediciónes para propuesta de luminarias exteriores Edición para propuesta de mobiliario

Ediciónes para propuesta de mobiliario

INTERIORES CASA BARRANCO LÓPEZ

Diseño: Mariana Abril Osorio Vargas

Año: 2021

Localización: Fresnillo, Zacatecas

Alcance: Propuesta conceptual Recursos empleados: Auto Cad + Sketch Up + V-Ray

El proyecto se realizó para una pareja de recién casados que adquirió una casa anteriormente habitada. La pareja deseaba realizar una renovación que no implicara cambios estructurales e incorporara un estilo contemporáneo a la casa.

Se propuso una gama de colores contrastantes pero que se mantuvieran en armonía con los materiales y el mobiliario.

El mobiliario propuesto se adecua a los espacios existentes buscando ampliar visualmente el espacio.

Planta
Corte A-A
Corte C-C
Corte B-B
Planta propuesta
Estado actual

RECÁMARA MAYRA

Diseño: Mariana Abril Osorio Vargas

Año: 2020

Localización: Yolomécatl, Oaxaca

Alcance: Propuesta conceptual

Recursos empleados: Auto Cad + Sketch Up + V-Ray

El proyecto se realizó para una contadora que deseaba tener un espacio donde trabajar y descansar cuando estuviera de visita en casa de sus padres. La propuesta se realizó en una habitación cuya construcción no estaba terminada, no existían acabados y se contaba con poco mobiliario. Junto con la clienta, se decidió utilizar una gama de colores cálidos que se combinaran con materiales como la madera y la palma. Se conservó parte del mobliario existente y se incorporó mobiliario ya presente en la casa. Se añade como nuevo elemento un clóset para el resguardo de ropa y objetos personales.

Corte propuesta
Planta propuesta

FOTOGRAFÍA

Fotografía en locación

Fotografía de producto

Fotografía de retrato

DIBUJO Y PINTURA

Croquis en acuarela
Croquis en lápiz
Planos en lápiz y plumón
Retratos en acuarela

OTROS PROYECTOS

Consorcio ARA

Áreas verdes de uso común: 2018, proyecto arquitectónico

Albercas: 2019, proyecto arquitectónico

Cafetería para empleados: 2019, propuesta conceptual

Proyectos individuales

Terraza Tezoyuca: 2018, proyecto arquitectónico

Cocina y comedor: 2018, proyecto arquitectónico

Re ordenamiento casa Morales Osorio: 2018 proyecto arquitectónico

Finca Hermes: 2020, propuesta conceptual

Edificio de departamentos: 2020, propuesta conceptual

Baño Familia Tapia Cruz: 2020, propuesta conceptual

Recorrido virtual Edificio de departamentos

Recorrido virtual Finca Hermes

Mariana Abril Osorio Vargas

Arquitecta

Email: abril.osvar8@gmail.com

Tel: 55 3132 1626

Turn static files into dynamic content formats.

Create a flipbook
Issuu converts static files into: digital portfolios, online yearbooks, online catalogs, digital photo albums and more. Sign up and create your flipbook.