GREMMER WOONTYPE
Ik vertel je graag mijn verhaal
Mijn naam is Bart Gremmer. Ik ben 37 jaar en heb een fysieke beperking door de ziekte van Duchenne. Daardoor zit ik in een rolstoel.
In een groot deel van mijn lichaam is de spierkracht weggevallen en nu kan ik alleen nog mijn gezicht bewegen. Door middel van knopjes bij mijn mond kan ik zelfstandig mijn rolstoel en telefoon bedienen. Gelukkig kan ik wel goed spreken. Door middel van een beademingsmachine kan ik ademhalen.
Mijn levensverwachting is door deze ziekte aanzienlijk verkort.
Ik focus me in mijn leven op wat er nog allemaal wél mogelijk is voor mij. En dat is gelukkig ook een heleboel. Er zijn zoveel dingen om van te genieten. Ik wil je graag vertellen over een wens die heel belangrijk is voor mij. Deze wens is praktisch haalbaar en toch loop ik tegen zoveel obstakels aan dat het me niet is gelukt om deze te realiseren. Bovendien zijn er meer mensen zoals ik, met dezelfde wens, die tegen dezelfde obstakels aanlopen.
Dit heeft mij gebracht tot een droom over een project die niet alleen mijn probleem op kan lossen, maar ook die van anderen. Bovendien vervult het verwezenlijken van deze droom de wens om iets te geven aan de wereld. Iets dat vanwege mijn handicap niet altijd makkelijk is en al helemaal niet op professioneel niveau. Dit project voegt iets wezenlijks toe aan een betere wereld op verschillende manieren. Ik hoop mensen te vinden die zich geraakt voelen door mijn verhaal en als ambassadeur mee willen helpen deze droom te verwezenlijken. Over ambassadeur worden vertel ik je later meer.

Wat is de huidige situatie en wat zijn de obstakels?
Al lange tijd leeft bij mij de behoefte om zelfstandig te wonen. Ik woon momenteel nog bij mijn ouders en dat geeft qua privacy en zelfstandigheid steeds meer wrijvingen. Ik heb een liefdesrelatie en meestal ontmoeten we elkaar ergens anders dan bij mij thuis vanwege de privacy. Bij gebrek aan een eigen plek zijn we gedwongen om ’s avonds weer afscheid te nemen. Ik zou het heel fijn vinden om een eigen plek te hebben zodat ik gemakkelijker intiem met mijn vriendin kan zijn (zonder meteen samen te moeten wonen).
Verder bedoelen ouders het vaak goed, maar als zij teveel op de lip zitten van hun kinderen, wordt dat op den duur vervelend. En als kind met een handicap is dat loslaten door ouders misschien nog wel moeilijker.
Ik zou heel graag wat meer afstand nemen en mijn leven zelfstandig willen leven. Nu zou dit theoretisch gezien mogelijk zijn met een zorgteam dat 24 uurs diensten verzorgt. Dit wordt mogelijk gemaakt door het Zorgkantoor uit de Wet Langdurige Zorg (hierna: WLZ) middels een Persoons Gebonden Budget (hierna: PGB). Hiermee is mijn fysieke zorg totaal gedekt qua kosten. Praktisch blijken er meerdere obstakels in de weg te zitten, hieronder noem ik er een paar.
1. Aangepaste woning
Als je, net als ik, als jongere opgroeit met een handicap, dan is er de mogelijkheid om via de gemeente een aanpassing aan het huis vergoed te krijgen. Zo is dat ook bij mij gegaan. Ik woon bij mijn moeder en deels bij mijn vader. De woning bij mijn moeder is met subsidie van de gemeente omgebouwd en de woning bij mijn vader is bij de bouw al aangepast. De gemeente Zutphen stelt geen tweede keer een budget beschikbaar om een nieuwe woning, een zelfstandige woonruimte dus, aan te passen. Via een woningbouw of gemeente een zelfstandige woonruimte vinden is hierbij dus uitgesloten.
2. In bestaande Instellingen
Daarna is de mogelijkheid bekeken om in een instelling te wonen. Het eerste probleem voor mensen zoals ik, is dat veel instellingen mensen weigeren met een invasieve beademing (dmv een canule in de luchtpijp), omdat de instelling niet de spoedhulp kan bieden die nodig is, wanneer het alarm van de beademingsapparatuur afgaat.
Het gebruikmaken van een eigen zorgteam staan zij ook niet toe. Dan maak je namelijk wel gebruik van hun woonruimte, maar neem je niet hun zorg af en dat is financieel onaantrekkelijk voor de instelling. Dit geldt ook voor verpleeghuizen.
Voor mensen die geen invasieve beademing hebben, is het bovendien ook niet aantrekkelijk om in een zorginstelling of verpleeghuis te gaan wonen, omdat je daarmee je recht op PGB kwijtraakt. Dit betekent dat je geen 1 op 1 zorg meer kunt krijgen en je dus een heel groot deel van de regie over je leven kwijtraakt. Een dagje weg, eruit voor een wandeling, boodschap of ontmoeting is alleen mogelijk met de hulp van familie of vrijwilligers en wordt niet geboden door de zorginstelling. Zelf regie hebben over mijn leven en bewegingsvrijheid zijn heel belangrijk voor mij. Er is al zoveel dat ik heb moeten inleveren in mijn leven, en steeds meer regie verlies, dat ik deze bewegingsvrijheid niet ook nog op wil geven.
3. Eigen woning
Doordat het voor mensen als ik niet vanzelfsprekend is dat we een professioneel aandeel krijgen in deze maatschappij kan ik geen hypotheek afsluiten. Met het budget dat ik tot mijn beschikking heb, is het kopen van een woning niet haalbaar. Laat staan dat ik die vervolgens kan aanpassen naar mijn behoeften.
4. Inclusie
Omdat het voor mensen met een handicap praktisch onmogelijk is om een eigen woning te hebben worden we ook niet voor vol aangezien. Het is sociaal meer geaccepteerd om ons weg te stoppen in instellingen of dergelijke. Dit geeft ons het gevoel niet mee te kunnen doen. Toch heb ik het gevoel vol in het leven te staan en van belang te zijn. Ik ga graag uit eten, pak in de zomer graag een terrasje, ga graag naar de sauna en begeef me juist heel graag in de samenleving. Ik zou er heel erg van kunnen genieten mensen uit te nodigen bij mij thuis om voor hen te kunnen koken, in mijn eigen keuken.
Hoe mooi zou het zijn, om een woonplek te creëren waarbij mensen met een zorgvraag zelfstandig kunnen wonen én dat deze woonplek een bredere functie vervult. Bijvoorbeeld om mensen te verbinden en te inspireren. Zo heeft iedere betrokkene bij het project, gehandicapt of niet, iets te geven en iets te ontvangen.


Het unieke idee
Ik wil een woonplek creëren waar zorgunits staan voor 6 fysiek beperkte personen die afhankelijk zijn van 24-uurs zorg. Voor iedere bewoner is er een eigen woon/ slaapruimte en een logeerruimte voor het verzorgende personeel. In het midden is er een gemeenschappelijke ruimte.
Naast deze zorgunits zie ik een gemeenschappelijke woonkamer/keuken waar een sociaal maatschappelijk doel mee is verbonden. Afhankelijk van de plek waar we ons vestigen zouden dat verschillende dingen kunnen zijn: een buurthuis, agrarische landbouwgrond verduurzamen, moestuinen voor mensen uit de buurt, een tuinbouw project en/of een logeerhuis. Wellicht kunnen startende ondernemers aansluiten met een theetuin, zorgboerderij etc. Daarnaast komt er een woonunit voor een zorgcoördinator die de zorg en het project coördineert en beschikbaar is om in te vallen bij gaten in het 24-uurs zorgrooster.
De voordelen van dit sociaal maatschappelijke woonidee:
- Fysiek beperkten, zoals ik, een zelfstandige woonruimte bieden. Er zijn vele mensen zoals ik die graag zelfstandig zouden willen wonen, ipv thuis bij ouders of in een instelling. Het belangrijkste hierbij is het mogelijk maken en behouden van de eigen regie over het leven.
Een voorbeeld hiervan is Villa de Bouwkamp, maar deze is alleen bedoeld voor ouderen.
- Maatschappelijke betrokkenheid vergroten: Er is veel eenzaamheid in de Nederlandse maatschappij bij vele lagen van de bevolking. Mensen met een fysieke beperking zijn misschien nog wel eenzamer dan gemiddeld. Dit sociaal maatschappelijke woonidee plaatst hen letterlijk midden in de samenleving. Door het aanbieden van een ontmoetingsruimte en samen te werken met sociale initiatieven kan het project een verbindende functie vervullen.
Wat zouden mogelijke vormen kunnen zijn:
1 Kavel met flex complex: Een kavel waarvoor een tijdelijke vergunning verleend wordt van minimaal 10 jaar voor een flex- zorg/wooncomplex (verplaatsbaar of afbreekbaar). Voordeel van de flex-optie is dat er direct voor duurzaamheid gekozen kan worden ivm energievoorziening en verbruik. Bij renovatie (optie 2) zou duurzaamheid moeilijker te realiseren zijn en kostbaarder zijn.
2 Gebouw met land (boerderij): Een stichting oprichten waarbij het land en het gebouw eigendom zijn van de stichting. De boerderij kan gekocht of verhuurd worden voor bewoning (van een boer, de zorgcoördinator of anderzijds) en op het land kunnen de zorgunits en het ontmoetingsgebouw geplaatst worden. Dit kunnen prefab woningen zijn, of zorgunits. Eventueel zou een bovenverdieping onderverhuurd kunnen worden aan mensen die zich verder willen ontwikkelen of aan mensen die door omstandigheden een tijdelijke woonplek nodig hebben.
Om dit allemaal mogelijk te maken start ik een stichting. Maar dat moet nog vastere vormen krijgen.
Graag maak ik samen met jou mijn droom werkelijkheid.
Accepteer
de dingen die je niet kan veranderen.
Verander de dingen die je niet kan accepteren.
Programma voor 6 woningen
Woning zorg coördinator
Vergaderkamer
Gemeenschappelijke tuin
Buurthuis Theehuis Zorgboerderij
Logeer kamer
Kamer verzorger Kamer verzorger Verzorgers
Logeer kamer Kamer verzorger
Parkeerplek bus
Parkeerplek bus
Parkeerplek bus
Parkeerplek bus
Gemeenschappelijke woonkamer
Logeer kamer Logeer kamer
verzorger
Logeer kamer
Parkeerplek verzorger
Parkeerplek verzorger Parkeerplek bezoeker
Parkeerplek verzorger
Parkeerplek bus Parkeerplek verzorger
bezoeker
Parkeerplek verzorger
Parkeerplek bus Parkeerplek verzorger
bezoeker
Programma per woning
Hoofdslaapkamer
Kleine pantry voor verzorger
Opslag zorgspullen
Opslag voor wasserette
Brancard
Tillift op plafond
Rolstoel met beademing (afmetingen?)
Zuurstof tijdens slaap
Meubels en gereedschappen:
Medisch bed
Spoelbak, kast/tafel met hygiëne apparatuur zoals trimmers, bakjes etc.
Kast voor kleding en waszak
Mobiele tafel
Opvouwbare lichte stoelen
Kast met medicijnen en apparaten, ruimte voor beademingsapparaten (maak duidelijk welke apparatuur nodig is of kan zijn)
Mobiel/hanger? Computer
Stationaire en mobiele kraan, brancard
Privacyscherm
Slimme thuiscomputer
Mogelijke activiteiten:
Slapen
Wassen en andere hygiënisch zorg (welke procedures vinden dagelijks plaats en in welke volgorde?)
Aankleden
Eten (op een stoel of op bed?)
Ontmoeting met gasten
Medische controle (welke procedures/controles worden er uitgevoerd en hoe vaak?)
Televisie kijken/lezen/muziek/telefoongesprekken
Bed-stoelwissel en transport
Privérust/rust onder toezicht van een verpleegkundige
Afstandsbediening van het huis
TV Boekenkast
Opslag privé
Bed (verplaatsbaar)
Kastje/Karretje voor verzorger
Dienblad
Vragen:
- Wat gebeurt er tussen slapen en de dag beginnen?
- Wat gebeurt er tussen de dag beëindigen en slapen?
- Ontbijt je op bed?
Badkamer en toilet
Meubels en gereedschappen:
Douche/bad/plaats voor brancard
Toilet, verrijdbaar kastje met bakjes, afgesloten prullenbak
Wastafel met spiegel en kastje voor verzorgingsproducten en handdoeken
Mogelijke activiteiten:
Wassen
Toilet (moeten toilet en badkamer één kamer zijn?)
Hygiënisch verzorging (tandenpoetsen, scheren, enz.)
Opklapbare stoel
Rolstoel
Onderkast voor schone handdoeken
Ingang vanuit hoofdslaapkamer
1250
Badkamer en toilet 600 2050 3900
Gebruikte handdoeken naar de wasserette?
Beweegruimte voor verzorger
Ingang vanuit algemene ruimtes
Vuilnis
Biowaste
Gebruikte handdoeken
Vragen:
- Is het handig om een tillift in de badkamer te hebben? - Hoe gebruik je het toilet?
Abels & Partners
Woonkamer en eetkamer
Meubels en gereedschappen:
Bank, stoelen
Tafel, stoelen
Bank, stoelen, tv, muziekstation, boekenplanken
Boekenplanken, tafel, computer
Mogelijke activiteiten:
Ontmoetingen met gasten
Samen eten/evenementen als verjaardag etc.
Vrije tijd (tv kijken, lezen, muziek)
Werken en onderwijs
Vragen:
Ruimte om samen te koken
Meubels en gereedschappen:
Planken/kasten met toegankelijke hoogte en diepte
Vrije ruimte voor stoel om te draaien en te verplaatsen (min. 1,5 m langs keuken en 1,5 x 1,5 m om te parkeren/draaien)
Opvouwbare lichte stoelen, tafel
Mogelijke activiteiten:
Koken
Samen koken
Eten
Vragen:
Verzorgerskamer
Opslag ruimte per verzorger
Werkplek Vergaderen met collega
Verzorgers slaapkamer
Hoeveel verzorgers zijn in dienst?
Hoeveel verzorgers komen per dag?
Hoe doen ze met beddengoed?
Meubels en gereedschappen:
Bed/opklapbed/bank
Bureau en stoel
Kast met verschillende secties voor verschillende zorgverleners
Wastafel met spiegel en kastje voor verzorgingsproducten en handdoeken
Mogelijke activiteiten:
Slapen/ rust nemen
Lezen/werken op de computer enz.
Opbergen en omkleden
Basishygiëne
Vragen:
- Hoeveel verzorgers in dienst per persoon?
- Hoeveel verzorgers komen er per dag?
- Hoe gaan ze om met het beddengoed?
Logeerkamer
Meubels en gereedschappen:
Bed/opklapbed/bank
Bureau en stoel
Kast
Wastafel met spiegel en kastje voor verzorgingsproducten en handdoeken
Mogelijke activiteiten:
Slapen/rust nemen
Lezen/werken op de computer enz.
Opbergen en omkleden
Basishygiëne
Vragen:
Architecten Abels & Partners
KNSM laan 53 1019 LB Amsterdam, Nederland
T +31 (0)20 - 2110010
E info@abelspartners.com www.abelspartners.com
GREMMER
partnerarchitect
ir. H.A.M. Abels
projectarchitect
I. Epelde Ugalde
projectmanager
bouwkundige
RUIMTES - Logeerkamer
opdrachtgever Bart Gremmer datum 2024.03.12
schaal 1:50 formaat A3 fase Onderzoek status
projectnummer 2024003
tekeningnummer R-007
Entreehal
Opslag spullen
Garderobe
Rolstoel schoonmaken als dit buiten is geweest?
Meubels en gereedschappen:
Voldoende ruimte voor een rolstoel en 2 personen om elkaar te passeren
Kast, bank, spiegel
Slimme thuiscomputer
Kast met stopcontacten
Ruime hal tussen deuren
Mogelijke activiteiten:
Gasten welkomen
Omkleden
Afstandsbediening van het huis
Batterijen voor ademluchttoestel en stoel vervangen/opladen
Transitzone tussen andere kamers
Vragen:
- Worden de wielen van de rolstoel schoongemaakt? - In de opslag: Batterij rolstoel? Zuurstof?
Abels & Partners
Architecten
KNSM laan 53 1019 LB Amsterdam, Nederland
T +31 (0)20 - 2110010 E info@abelspartners.com www.abelspartners.com
GREMMER WOONTYPE
partnerarchitect
ir. H.A.M. Abels
projectarchitect I. Epelde Ugalde
projectmanager
bouwkundige
RUIMTES - Entree hal
opdrachtgever Bart Gremmer datum 2024.03.12 schaal 1:50 formaat A3 fase
Onderzoek status
projectnummer 2024003
tekeningnummer R-008
Vergaderkamer
Opslag documenten
Meubels en gereedschappen:
Vergadertafel voor maximaal 6 personen Kastje
Mogelijke activiteiten:
Vragen: - Is deze ruimte nodig?--
Vergadering met 2-6 personen Opslag van documenten
Verzorger's
KNSM laan 53 1019 LB Amsterdam, Nederland
T +31 (0)20 - 2110010 E info@abelspartners.com www.abelspartners.com
partnerarchitect
ir. H.A.M. Abels
projectarchitect I. Epelde Ugalde
projectmanager
bouwkundige
opdrachtgever
Bart Gremmer datum 2024.03.12 schaal 1:50 formaat A3 fase Onderzoek status
projectnummer 2024003
tekeningnummer R-006
RUIMTES - Vergaderkamer
Gang
Gang (minimaal)
Architecten Abels & Partners
KNSM laan 53 1019 LB Amsterdam, Nederland
T +31 (0)20 - 2110010 E info@abelspartners.com www.abelspartners.com
partnerarchitect
ir. H.A.M. Abels
projectarchitect
I. Epelde Ugalde
projectmanager
bouwkundige
RUIMTES - Gang
GREMMER WOONTYPE
opdrachtgever Bart Gremmer datum 2024.03.12 schaal 1:50 formaat A3 fase Onderzoek status
projectnummer 2024003 tekeningnummer R-010
Parkeervak
Verbindingen
Logeerkamer Keuken
Vergaderkamer
Woonkamer + eetkamer
Entreehal
Badkamer + toilet
Terras/balkon?
Verzorgerskamer
Hoofdslaapkamer
Directe verbinding
Aanbevolen verbinding
Mogelijke verbinding
Combinatie mogelijk

Onderzoek basisafmetingen
Afmetingen elektrische rolstoel
Afmetingen stoel van Bart?
Opmerking:
Met ‘rolstoel’ wordt altijd een elektrische rolstoel bedoeld (85 centimeter breed en 120 centimeter lang), niet een handaangedreven rolstoel. De elektrische rolstoel bepaalt de afmetingen van de bewegingsruimtes.
Ruimtes voor bewegingen


Draaigebied
Gebieden met een breedte van 1500 of meer zorgen ervoor dat de rolstoel 360° kan draaien en vrij kan manoeuvreren






Belangrijkste trajecten
Gebieden met een breedte van 1200-1500 mm zorgen ervoor dat de rolstoel recht kan rijden en binnen een hoek van 60° kan manoeuvreren
Secundaire trajecten
Gebieden met een breedte van 900-1200 mm zijn toegankelijk voor een rolstoel om rechtdoor te rijden, maar zijn niet breed genoeg voor manoeuvres
Ontoegankelijk gebied
Gebieden met een breedte kleiner dan 900 mm zijn gedefinieerd als ontoegankelijk voor rolstoelen
Referentie analyse
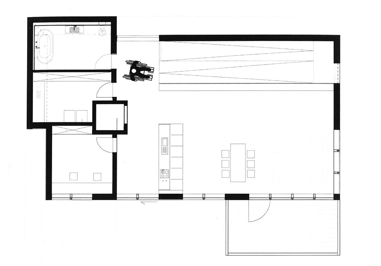
A. Standaard appartement
Nüremberg, Germany
Grabuw+Hofmann Architektenpartnerschaft
netto vloeroppervlakte 122.4 m2
oppervlakte excl. meubilair 91.7 m2
draaigebied 71 m2
belangrijkste trajecten 10 m2
secundaire trajecten 4 m2
ontoegankelijk gebied 6.7 m2
B. Gepersonaliseerd appartement
Frankfurt, Germany
c.f. Architekten
netto vloeroppervlakte 119.6m2
oppervlakte excl. meubilair 94.3 m2
draaigebied 58.7 m2
belangrijkste trajecten 14.6 m2
secundaire trajecten 15.1 m2
ontoegankelijk gebied 5.9 m2


C. Privé woning
Gstadt am Chiemsee, Germany
Florian Hofer
Eerste verdieping
netto vloeroppervlakte 148.9m2
oppervlakte excl. meubilair 129.4 m2
draaigebied 91 m2
belangrijkste trajecten 15.9 m2
secundaire trajecten 16.2 m2
ontoegankelijk gebied 6.3 m2

Begane grond netto vloeroppervlakte 111m2
oppervlakte excl. meubilair 86.7 m2
draaigebied 59.1 m2
belangrijkste trajecten 11.1 m2
secundaire trajecten 13.2 m2
ontoegankelijk gebied 3.3 m2

A. Standaard appartement

B. Gepersonaliseerd appartement

C. Privé woning (begane grond)

C. Privé woning (eerste verdieping)
Kledingkast
Werkruimte Lift

Eetgedeelte
Woongedeelte
ABELS & PARTNERS ARCHITECTEN