sublime hotel (spring 2023 final project)

Page 1

Design Factors

Hotel Sublime

Health, Wellness, Spa New York City, New York

Phase Three - IA 609 & IA 509

Abby Brown & Madisen O’Brien

Instructor Dr. Herminia Machry

Harmonious and Balanced Design

A blend of contemporary organic and classic art deco. A neutral color palette will emphasize the celestial design elements.

Intentional and Dramatic Lighting

In order to pull off a successful minimalism, the volumes and lighting of space will represent a dramatic and transcendent aura.

Amenities

Amenities will include spa rooms, workout classes, a pool, and various other mindfulness spaces.

Purposeful Material Selection

Foot traffic in any big city is expected to be heavy. Public spaces such as the Cafe, Restaurant, and Event spaces will feature durable and easy to clean materials. The guest rooms and lobby, spa reception and amenity spaces will be more luxurious and custom materials. We want the guests to have a luxury experience while being able to keep the space clean.

Thoughtful Spacial Layout

Rooms will be thoughtfully placed in the plan to maximize visual and audio privacy. Wayfinding is clear from the beginning and continuous while reflecting our design goals.

Sublime takes this concept of transformation and leads the user on a journey of self reflection.

This wellness hotel operates as an exclusive fitness club, members only spa, luxury hotel, and includes stunning event spaces as well as a rooftop bar. By including so many different attractions, Sublime sets itself apart from any other hotel experience in the area.

Sublime draws from the grandeur of New York while transporting the user into an reprieve away from the chaotic city. This is done by controlled stimulation, physical journey, and experiences offered. The sublime experience continues long after the user leaves the hotel. They have a newfound appreciation and perspective for their city, feeling more relaxed and ready to take on their busy lives.

West Greenwich Village

426 West 13th Street New York, New York 10014

Greenwich Village is known for it’s tree lined streets, progressive culture, as well as it’s up and coming cafes, bars and theaters. The area surrounds Washington square park and is described as the The epicenter of the city’s 1960s counterculture movement”. (Brittanica, 2023)

Whitney Museum of American Art

Little Island Park

Highline Walkway

Everyone knows the saying “the city that never sleeps”. The bright lights, sounds, smells, and traffic can make it hard to find a moment of peace.

Mental Health Crisis

Studies show that ongoing complications from covid 19 including “anxiety, depression, complicated grief, substance misuse, post-traumatic stress disorder; and less commonly, thoughts or attempts of suicide.” (NYC Health, 2021)

Overstimulation Dirty Streets

Overpopulated Due to overpopulation the price of living has been inflated in major cities such as NYC. According to bankrate. com, rent in the city is “26% higher than the state average and 95% higher than the national average.”.

According to NY times New York is producing 375 tons a day more trash than in the past 5 years. This is a struggle to keep up with trash removal and street cleaning.

Sublime can also appeal to well traveled visitors who have been to new york city before and are looking to experience it in a luxurious and unique hotel experience.

We will be looking to pull in locals and travelers alike to experience the cuisine and bar at our hotel. These public open spaces will have a memorable edge, making it stand out as an “it” place to meet.

This user is young to middle aged, wealthy, local and looking to escape their busy life. These users will be repeat clients

Health, Wellness, Spa Sublime Hotel 426 West 13th Street New York, New York 10014 Spring 2023 609 509 Abby Brown Madisen Brien The W Hotel CLIENT NAME: SCALE: SHEET NAME: 17 Unnamed 1" 20'-0" 1 1 Ground Level Copy
Manhattan Bronx Brooklyn Queens Soho
House
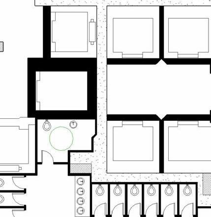
seeking a luxury wellness club with membership benefits. Just like all the other users, it is important to offer the best experience for staff that work at the hotel. Staff will have their own entrance, locker rooms,and offices with views of the city and natural light. Club Member Hotel Guest Walk - Ins Staff Ground Floor Level 3 Level 1 Service Elevator Elevator Elevator Elevator Guest Elevator Elevator Elevator 3/28/2023 12:35:17 AM 1/16" 1'-0" 3rd Floor banquet hall outdoor terrace outdoor terrace bar RR back of house prep kitchen conference rooms conference rooms guest suites standard suite standard suite standard suite standard suite standard suite premium suite standard suite premium suite N DN UP DN DN DN DN UP UP--Guest Elevator Guest Elevator Guest Elevator Guest Elevator Service Elevator Guest Elevator Service Elevator Service Elevator Exit Door Enclosed Reception Studio studio Locker Room exercise space studio STO Office CR STO 280 SF studio studio Enclosed Cafe----guest suites float room spa servicestoragearea ice room sauna steam room pool massage room massage room changing room changing room spa reception + lobby standard suite standard suite standard suite standard suite standard suite executive suite esthetician rooms meditation room meditation room N Level 2 float room massage rooms Why New York? Users and Their Journey N N
subliminal transformation
Floor Plans
426 West 13th Street New York, New York 10014 Spring 2023 609 & IA 509 Abby Brown Madisen O Brien The W Hotel CLIENT NAME: ADDRESS 17 How can lighting react to concept ? Lobby Cafe Restaurant - Dramatic - Romantic Guest Lounge - Journey up - Peaceful -Ethereal - Transformative - Reverie -Stunning - Memorable - Durable - Sound Absorbing - Cleanable - Moody - Comfortable - Sturdy How can materials inform space ? - Luxurious - Inviting Ground Floor CAFE Private Restroom All inclusive bar and work Lounge Access to Retail and Guest Elevators Greeting Desk with valet, baggage check, and concierge Private Restroom All inclusive bar and work Lounge Access to Retail and Guest Elevators Greeting Desk with valet, baggage check, and concierge LOBBY RESTAURANT Cocktail Seating Bar Private dining rooms 2 BAH kitchens: Catering and Restaurant Laminated Facing Panels Profile Structural 2" thick medium density foam back with 1/2" thick under upholstery fabric Ledger 3/4" Plywood Seat Apron 1'7" 1'6" 2' 2'' 3" led track led light 9' 5.5' 2.85' 1.6' 1/2" upholstery fabric polypropylene fiber batting poly foam pressboard over solid wood frame Pressboard Wood frame fastener Aluminum profile for LED 1m Health, Wellness, Spa Sublime Hotel 426 West 13th Street New York, New York 10014 Spring 2023 609 IA 509 Abby Brown & Madisen O Brien The W Hotel CLIENT NAME: ADDRESS SCALE: SHEET NAME: SHEET NO: As indicated 20 MILLWORK DETAILING 1/2" 1'-0" 1 MILLWORK SECTION 1/2" 1'-0" 2 Section 14 1" 1'-0" 3 Upholstery Details 1" 1'-0" 4 Aluminum profile for LED thick medium density Ledger 2.85' 1/2" upholstery fabric polypropylene fiber batting poly foam Pressboard Wood frame fastener Aluminum profile for LED 1m Health, Wellness, Spa Sublime Hotel Spring 2023 Abby Brown Madisen Brien The W Hotel SHEET NO: 20 MILLWORK DETAILING 1/2" 1'-0" MILLWORK SECTION 1/2" 1'-0" Section 14 1" 1'-0" 3 Upholstery Details 1" 1'-0" Aluminum profile for LED Profile Structural thick medium density Ledger 3/4" Plywood Seat Apron track 2.85' 1/2" upholstery fabric polypropylene fiber batting poly foam pressboard solid wood frame Pressboard Wood frame fastener Aluminum profile for LED 1m Sublime Hotel Spring 2023 509 Abby Brown Madisen The Hotel 20 MILLWORK DETAILING 1/2" 1'-0" 1 MILLWORK SECTION 1/2" 1'-0" 2 Section 14 1" 1'-0" Upholstery Details 1" 1'-0" 4 Aluminum profile for LED ^ N

Changing Room Pool

Level Two

guest suites float room float room spa service area + storage ice room sauna steam room pool massage room massage room massage room massage room changing room changing room spa reception + lobby standard suite standard suite standard suite standard suite standard suite executive suite esthetician room esthetician room meditation room meditation room N Scale 1/16” = 1’ - 0” Changing Room Elevation Scale 3/16” = 1’ - 0” 9’ - 6” 10’ - 0”
Mesh Garden Daybed by KETTAL 1/8" = 1'-0" 2nd Floor Copy 4 Service Elevator Service Elevator fireplace 9’ 0” Flat Tan Ceiling 11’ 0” LED Strip Lighting Spa Float Pool Elevation Scale 3/16” = 1’ - 0” Crotone Pulpis by ASCALE Rekindle White by DALTILE Furniture + Flooring Plan Scale 3/32” = 1’ - 0” Tivoli White by ASCALE Pebbles by TileBar Reflected Ceiling Plan Scale 3/32” = 1’ 0” Pool windows filter in natural light and do not face street, providing an oasis from the noisy city. Window treatments allow natural light to pass through while protecting individual privacy within rooms. ADA swimming pool lift Minimal windows on this side of the spa allow for the user to experience a tranquil environment while still providing some natural light.
Changing Room Occupancy 953 Square Feet Occupancy Type: Utility or Miscellaneous (U) Occupancy Load Factor: 50 Gross Space Occupancy Load: 953 sf 50 Gross = 19 People Required Number of Egress Exits: 19 x .2” = 3.8” or 1 Egress Exit Reflected Ceiling Plan 3/28/2023 12:35:10 AM 9’ - 5” Ceiling Height Carlisle Cream Benjamin Moore 3/28/2023 12:35:10 AM 1/4" = 1'-0" 2nd Floor Copy 10’- 0” Ceiling Height Carlisle Cream Benjamin Moore 3/28/2023 12:35:24 AM 1/4" = 1'-0" 1 2nd Floor Copy 1 LED Strip Lighting Flooring Plan Scale 1/8” = 1’ - 0” Furniture Floor Plan Scale 1/8” = 1’ - 0” Service Service 1/4" 1'-0" 2nd Floor Copy Copy 3 Service Elevator 1/4" = 1'-0" 2nd Floor Copy Copy Copy 3 Concealed Sprinkler Recessed Can Light Supply Air Diffuser Supply Air Diffuser Pool Occupancy 2,548 Square Feet Occupancy Type: Assembly - Indoor Sporting events (A4) Occupancy Load Factor: Concentrated 15 Net Space Occupancy Load: 2,548 SF / 15 Net = 170 People Required Number of Egress Exits: 170 x .2” = 34” or 1 Egress Exit Concealed Sprinkler Supply Air Diffuser Supply Air Diffuser 1/4" = 1'-0" 1 2nd Floor Copy 1 3/28/2023 12:35:12 AM 1/8" = 1'-0" 1 2nd Floor Copy 1 Copy 4 Furniture Floor Plan Scale 3/32” = 1’ - 0” Pool Egress Path Guest Suite Egress Path Changing Room Egress Path

Guest Suite

3 Lessons Learned

size of corridor 1

2 Physical Mock-Up

+

comfortable when entering room with multiple people and their luggage +

2 location of bathroom door

audible connectivity from vanity to bathroom with door open

adequate space to travel in and out of bathroom while vanity is in use + + +

visual connectivity from vanity to bathroom with door open

sliding door for privacy if needed

3 vanity/coffee bar height

coffee bar counter height felt too tall for some users -

differing height of vanity vs coffee bar allows user to stay organized easier +

4

location of amenities (mini fridge, coffee maker, drawers/ doors) in relation to bed

active spaces being away from the bed allow for restoration process to continue +

mirror allows area to serve as work station and vanity + additional sink could be added for convience of use -

Task the overall size of the guest suite Decision Evaluated entering room and placing luggage in closet 2nd Floor 23' 0" 3' 8" 5' 8" 3" 12' 1" 4' 8" 4/20/2023 10:23:59 PM 3/8" = 1'-0" 1 Elevation 8 a 2nd Floor 23' - 0" 3' 0" 1' 9" 8" 2' 3' 7" 1' 10" 15' 2" 15' 11" 8" 4/20/2023 10:23:59 PM 3/8" = 1'-0" 1 Elevation 8 a 2nd Floor 23' - 0" 3' 0" 1' 9" 8" 2' 7" 1' 10" 15' 2" 15' 11" 8" 4/20/2023 10:23:59 PM 3/8" = 1'-0" 1 Elevation 8 a 2nd Floor 23' 0" 3' 0" 1' 9" 2' 3" 4' 10" 5' 2" 2' 1" 4/20/2023 10:23:59 PM 3/8" = 1'-0" 1 Elevation 8 a 3’ - 0” 3’ - 0” 3’ - 8” The closet, vanity, and caseworkamenitydepth needs to increase stagger vanity and counteramenity heights corridor area decreased with casework extension Revised Vanity Coffee Bar Elevation Vanity Coffee Bar Elevation Original Suggested Changes
Guest Suite Physical Mock-Up 1 Tape on Floor Trial
Task entering room with luggage and getting ready for dinner Decision Evaluated Task making warm beverage in the morning Decision Evaluated Task A Task B 2nd Floor 23' 0" 3' 0" 1' 9" 2' 3" 4' 10" 5' 2" 2' 1" 4/20/2023 10:23:59 PM 3/8" = 1'-0" 1 Elevation 8 a 3’ - 0” 3’ - 8” size of corridor location of amenities (mini fridge, coffee maker, drawers/doors) in relation to bed size of corridor location of bathroom door vanity height 1 2 3 1 4 1 2 3 4
2nd 1' 9" 3/8"
1'-0" 1 Elevation 8 a 3’ - 0” 3’ - 8”
=
Furniture Floor Plan Scale 1/8” = 1’ 0” Flooring Plan Scale 1/8” = 1’ 0” Reflected Ceiling Plan Scale 1/8” = 1’ 0” ROC Easy Chair by COR Suppli Armchair by Arflex 2 1 2 1 Tau Urban White Limestone by COR Synchronic White by Daltile 3/28/2023 12:35:23 AM 1/4" 1'-0" 1 2nd Floor Copy Copy Copy 2 3/28/2023 12:35:23 AM 1/4" 1'-0" 2nd Floor Copy Copy Copy 8’ 10” Ceiling Height Gardenia BM 10’ Ceiling Height Gardenia BM 1 2 1 1
Guest Suite Occupancy 703 Square Feet Occupancy Type: Residential, Multi Dwelling Unit (R2) Occupancy Load Factor: 200 Gross Space Occupancy Load: 703 sf / 200 Gross = 3.5 Required Number of Egress Exits: 3.5 People x .2” = .7” or 1 Egress Exit Concealed Sprinkler Supply Air Diffuser Supply Air Diffuser

Turn static files into dynamic content formats.

Create a flipbook
Issuu converts static files into: digital portfolios, online yearbooks, online catalogs, digital photo albums and more. Sign up and create your flipbook.