INFORME AMPLIACIÓN DEL ÁREA QUIRÚRGICA DEL HOSPITAL DE LAS OBRAS SOCIALES DEL SANTO HERMANO PEDRO

Page 1

INFORME AMPLIACIÓN DEL ÁREA QUIRÚRGICA DEL HOSPITAL DE LAS OBRAS SOCIALES DEL SANTO HERMANO PEDRO

ASOCIACIÓN AMIGOS PRO OBRAS SOCIALES

Licda. Isabel Molina - Presidente

José González - Presidente

Junta Directiva

OBRAS SOCIALES DEL SANTO HERMANO PEDRO INTRODUCCIÓN

Michael Ascoli - Vicepresidente Asociación Amigos Pro Obras Sociales

REPORTE TÉCNICO DE CONSTRUCCIÓN

Arq. Rosa María Gramajo - Directora de Diseño y Arquitectura de Sinergia - AICSA

DE CONVALECIENTES

Lic. Roberto Bolaños - Director Administrativo Obras Sociales del Santo Hermano Pedro

Dunia Valenzuela

02 03 04 05 PRESENTACIÓN
PRESENTACIÓN
27ÁREA
de la Junta Directiva Fray
de la
Ing.
Magíster
RESTAURACIÓN DONACIONES EMPRESAS BENEFACTORES EQUIPO 42 45 46 47 INVERSIÓN FINANCIERA 31 44 8. 1 8. 2 8. 3 1. 2. 3. 4. 5. 6. 7. 8. CONTENIDO INFORME

PRESENTACIÓN

LICDA. ISABEL MOLINA

Presidente de la Junta Directiva de AAPOS

La Asociación Amigos Pro Obras

Sociales fue fundada en 2011 con dos propósitos: el primero asegurar la sostenibilidad de las Obras sociales del Santo Hermano Pedro y luego difundir la labor de Obras.

A lo largo de estos diez años, podemos decir con mucha humildad, pero también con satisfacción que hemos hecho nuestro mejor esfuerzo en apoyarle para alcanzar su misión humanitaria en el cuidado y en la salud de la gente mas pobre y necesitada de nuestra Guatemala.

En nuestro caminar, hemos podido lograr la construcción de la primera fase de Virgen del Socorro, gestionar en propiedad de las Obras el Albergue Hermano Pedro y mejorar sustancialmente el edificio del Hospital.

Hoy, con mucha satisfacción, estamos entregando el informe final técnico y financiero del proyecto de ampliación de la Unidad Quirúrgica del Hospital y la restauración del cuadrante uno.

Con estos trabajos concluidos, se ha podido poner en servicio 9 quirófanos activos apoyados por áreas técnicas y de convalecencia de pacientes, todos debidamente equipados. El proyecto podrá facilitar las cirugías anuales de no menos de diez mil guatemaltecos y la oportunidad de recibir más grupos médicos voluntarios.

Ahora mismo estamos trabajando en el siguiente proyecto del Hospital con la construcción de la planta de tratamiento que permitirá resolver el problema ambiental generado por las aguas residuales del hospital, al mismo tiempo estamos trabajando para poder brindar más atención medica en otras áreas a más guatemaltecos.

Estos proyectos como leeran, no son posibles sin la cooperación generosa de muchos guatemaltecos, empresas y organizaciones que con sus donaciones lo hacen posible. A todos nuestro profundo agradecimiento pidiéndole a Dios que les recompense su generosidad.

Gracias a Obras Sociales y su personal médico por el compromiso, la cooperación y la solidaridad para llevar a cabo estos proyectos de manera conjunta; gracias a la Fraternidad de Frailes Franciscanos por darnos la oportunidad de acompañarles en este camino de servicio.

Informe Técnico Unidad Quirúrgica Página No - 02
AAPOS 1

AICSA, la empresa que ha realizado la construcción ha puesto a sus mejores profesionales de la arquitectura e ingeniera para diseñar una ampliación significativa de lo que era la antigua unidad quirúrgica y construir tres nuevos quirófanos y asegurar todos los servicios conexos.

Adicionalmente construir servicios para los pacientes y restaurar el claustro de entrada de nuestro hospital.

Todo se ha logrado maravillosamente y hoy podemos atender a muchos miles de guatemaltecos más que esperan una cirugía realizada por médicos voluntarios extranjeros y guatemaltecos. Las salas de convalecientes fueron rehabilitadas con esfuerzo especial y así poner a disposición del programa de cirugías más de 80 camas en trece salas para albergarlos.

FRAY JOSÉ GONZÁLEZ

La generosidad de los guatemaltecos con las Obras Sociales del Santo Hermano Pedro una vez más se ha manifestado y proveído para que pudieran realizarse todos estos trabajos. No cabe duda que la Divina Providencia que acompaño en su caminar al Santo Hermano Pedro, sigue como un manto protector para las Obras Sociales permitiéndonos, a su mejor ejemplo, emular su devoción por los pobres, enfermos y abandonados.

Este proyecto se ha podido gestionar cooperativamente gracias a la iniciativa de trabajar solidariamente con un equipo multidisciplinario que incluye a los directores del hospital, la fraternidad, Amigos y el equipo profesional de AICSA. Un trabajo consensuado con las necesidades técnicas necesarias y las oportunidades de los espacios fue la tónica del trabajo sin limitar las inversiones necesarias para contar con instalaciones de primer mundo.

Por aparte decidimos que conjuntamente trabajaríamos para buscar las donaciones necesarias lo que se tradujo en contactos, gestiones compartidas y como resultado respuestas positivas de filántropos que quieren mucho a las Obras Sociales. Este documento lo pensamos para informar sobre lo hecho, pero con una intención más grande y es rendir cuentas a quienes en confianza nos donaron sus recursos de todo tipo para que este proyecto fuera una realidad. La confianza y la honestidad en el manejo de las donaciones nos exige este paso al que atamos nuestro agradecimiento por estas muestras de humanidad por los pobres, enfermos y abandonados de nuestro país.

Informe Técnico Unidad Quirúrgica Página No - 03
Presidente de la Junta Directiva de las OSSHP PRESENTACIÓN
OSSHP 2

AAPOS 3

INTRODUCCIÓN

ING. MICHAEL ASCOLI

Vicepresidente de la Junta Directiva de AAPOS

Conocer la gran demanda de cirugías de miles de guatemaltecos y el deseo de muchos grupos de cirujanos voluntarios de Estados Unidos, Canadá y Europa de venir al Hospital de las Obras a realizar cirugías, nos puso frente al desafío de resolver. Decidimos, junto a la Fraternidad de las Obras Sociales y su departamento médico, involucrarnos en la construcción de nuevos quirófanos para sumarlos a los ya existentes y ampliar toda el área quirúrgica para poder albergar grupos numerosos de cirujanos operando simultáneamente.

El proyecto debería de realizarse en el menor tiempo posible debido a que las cirugías tenían ya una programación anual fija y debía suspenderse temporalmente. Igual, sería una construcción en un edificio histórico con más de trescientos cincuenta años de haber sido construido y debería de garantizase su conservación.

Nuestro director en la Asociación de Amigos, Arquitecto Ernesto Ruiz, con su empresa AICSA, asumió el compromiso de resolver arquitectónica y constructivamente ese importante proyecto.

El costo aumentó la intensidad del desafío. Confiados en la Divina Providencia y la bondad del proyecto en su misión de aliviar el dolor de los pobres y enfermos con la generosidad de los guatemaltecos y amigos en el extranjero, nos animó a iniciarlo. El lunes 8 de noviembre de dos mil veintiuno se iniciaron los trabajos y fueron inaugurados el jueves 18 de marzo de dos mil veintidós. Cinco meses intensos de trabajo

Tener más quirófanos y áreas de servicios técnicos, implico su equipamiento que se resolvió con la generosidad de tres organizaciones humanitarias de Estados Unidos que los donaron.

Este informe que presentamos como testimonio de lo hecho, recoge los detalles mayores de la obra construida y deja testimonio de lo hecho para la posteridad.

Estamos tan agradecidos con Dios por la oportunidad de Servir y confiamos en la gestión apropiada de estas inversiones para atender a más guatemaltecos que están esperando una cirugía y recibir mas grupos de cirujanos para realizarlas.

Informe Técnico Unidad Quirúrgica Página No - 04
REPORTE TÉCNICO ARQUITECTURA Arq. Rosa María Gramajo - Directora de Diseño y Arquitectura de Sinergia - AICSA

A.

REPORTE TÉCNICO ARQUITECTURA 4

El proyecto consistió del diseño y construcción de las siguientes unidades:

A. Ampliación y renovación de la Unidad Quirúrgica

B. Intervención y restauración del Claustro I del complejo

C. Pruebas y requerimientos finales

Ampliación y renovación de la Unidad Quirúrgica

Diseño del proyecto

La Unidad Quirúrgica del Hospital de Obras Sociales del Santo Hermano Pedro nace como respuesta a la demanda de cirugías y la necesidad de aumentar la cantidad de quirófanos. Por ello se agregaron 3 nuevas salas dentro del espacio existente y se renovaron las 5 salas existentes proveyéndolas de los espacios y distribuciones necesarias para su funcionamiento correcto. La nueva distribución partió de una zonificación que divide los espacios asépticos (corredores de quirófanos) y no asépticos (corredores de médicos, personal autorizado y convalecientes) para funcionar manteniendo los estándares internacionales de diseño.

Equipos Involucrados

La propuesta arquitectónica en su totalidad respeta

la arquitectura original y realza su valor histórico. A raíz de las necesidades de los distintos usuarios: médicos, pacientes y visitantes se llegó a la mejor solución tanto estética como de habitabilidad. Descripción técnica de diseño El proyecto fue diseñado y construido bajo estándares hospitalarios internacionales. Su funcionamiento, distribución, sistema de comunicación, instalaciones hidráulicas y eléctricas, instalaciones de gases médicos, instalaciones especiales y equipos fueron diseñados y construidos con los más altos estándares.

Corporación AICSA: Coordinación de proyecto Sinergia Arquitectura: Diseño arquitectónico Heineman Robicsek Foundation Proyectos AICSA: Administración y construcción de obra Grupo Solid, La Paleta: pintura en muros Argos Consultores: Diseño estructural Productos del Aire: diseño e instalación de gases médicos ICE, S.A.: Diseño e instalación de red de aire acondicionado Recinco: Aplicación de pintura epóxica en pisos y muros Aceros Tonca: Estructuras metálicas Inelsa: Instalaciones eléctricas

Metal Madera: Fabricación e instalación de mobiliario y puertas

Smartliving: Instalaciones especiales

EPI Proyectos: Suministro e instalación de cielo tipo losa

Formas Europeas: Suministro e instalación de ventanería.

FERCO: Suministro de grifería y pisos

PERSILUZ: Suministro de cortinas antibacteriales especiales de grado hospitalario.

Casa Blanca: Suministro de pisos

SAMBORO: Suministro de pisos Inteceramic: Suministro de pisos y artefactos sanitarios

RPA: Suministro de artefactos sanitarios.

Informe Técnico Unidad Quirúrgica Página No - 06
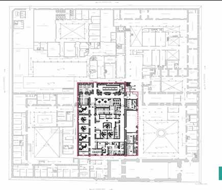
5 31.65 OFC. JEFE FARMACIA LABORATORIO LABORATORIO CORREDOR CAJAS DE COBROS AMPLIACION DE CORREDOR ATRIO DE LA IGLESIA CORREDOR DE EVACUACION INGRESO IGLESIA TRABAJO SOCIAL SALIDA PATIO No.2 PATIO MAS JARDIN No.2 OFICINA DECOMUNICACION SECRETARIACOMPRAS CORREDOR CORREDOR DE EVACUACION AUDITORIA SALA DE REUNIONES OFC. PADRE JOSE DIRECCION SALA NATYFISIOTERAPIA VESTIDOR PATIO PATIO SALA NATY S.S ETERILIZACION SALON DE USOS MULTIPLES BODEGA DE MOBILIARIO BODEGA BODEGA DE MOBILIARIO PATIO PATIO SALA NATY BODBODEGA S.S S.S PATIO BUCAROSALA NATY ALTAR MAYORSACRISTIA SUBE BODEGA DE MOBILIARIOJACUSSY SS.BAÑOS CORREDOR DESPENSA CANCHA COCINA PATIO No.5 CLINICA No. 25 CIRUGIA MENOR QUIROFANO PSICOLOGIAEndoscopia LAVANDERIA SALON DE JUNTAS PISCINA S.S.B CORREDOR CORREDOR DE EVACUACION s PAMPA PILA Q. MAQ. CLINICA ODONTOLOGIA DIAGNOSTICO ULTRASONIDO TOMOGRAFIA CONTROL RAYOS X ARCHIVO SECRET. CUARTO OSCURO MANTENIMIENTO CORREDOR BODEGA BODEGAS BODEGAS AREA DE ARCHIVO JEFE LIMPIEZA AISLAM. DEPARTAMENTO AISLAM. AISLAM. OFIC. FCO.MARROQUIN JEFE MANTENIMIENTO ROPERIA S.S + D. SUM S.SS.S DUCHAS CORREDOR CORREDOR PATIO PARQUEO CORREDOR PATIO S.S S.S INGRESO ENCAMAMIENTO COMEDOR DE JARDINCENTRAL DE ENFERMERIA AISLAMIENTO No.1 AISLAMIENTO No.2 S.S S.S Aislamiento s No. Bodega dede Comba. GAS PROPANO PAPEL PLASTICO VIDRIO INGRESO 3a. AVENIDA SUR 4a. AVENIDA SUR 6a. CALLE ORIENTE B B CORREDOR B RECEPCION CORREDOR CORREDOROFICINA DE FARMACIA CORREDOR CORREDOR CORREDOR REGISTRO DE LAS PERSONAS DONACIONES LABORATORIO LABORATORIO LABORATORIO PATIO MAS JARDIN No.2 PATIO MAS JARDIN No.2 PATIO MAS JARDIN No.2 INGRESO INGRESO SALIDA DE IGLESIA CIRCULACION S.SANIT.M. POZO MECANICO S.Sanitario S.Sanit. panaderia ENFERMEROS DESPENSA OFIC. UNIVERSIDAD PASTORAL ESTADISTICA ESTADISTICA PATIO DE EQUIPO AREA DE BODEGA GENERAL TRANSFORMADORE ELECTRICOS AREA DE LAVANDERIA AULA No. 3 AR.PLANCHADO AREA DE CALDERAS CALENTADORES TALLER DE PROTESIS CLINICA-18-19-20 CLINICA No.21 Clinica 22 Clinica 24 MEDICOS CORREDOR CORREDOR SALIDA INGRESO SUBE GRADAS CORREDOR GENERADOR ELECTICO AREA DE PILAS BASURA CONTAMINADA LOCKERS MUJERES MUJER HOMB. LOCKERS H. CORREDOR CORREDOR CIRUGIA MENOR AREA CIRUGIA CORREDOR CORREDOR CORREDOR CORREDOR CORREDOR CORREDOR secretaria de consulta externa secretaria Especialidades Bod. Transformador CORREDOR CORREDOR CORREDOR JEFE ADUANAS BODEGA CORREDOR PARQUEO PARQUEO CIRCULACION CIRCULACION 3a. AVENIDA SUR100.00 Clinica No4 Clinica No.3 copy Clinica No.2 copy Clinica No.1 copyClinica No. 5Clinica No.6Clinica No.7Clinica No. 8 Clinica No.9 Enfermeria Enfermeria Enfermera Clinica No.10 Clinica No.11 Clinica No. 12 Clinica No. Ginecologìa Clinica No. 14 Clinica No.15 Clinica No.16 Enfermeria Clinica No.17 Servicio Sanit. Bod. Espera 13 caracol Clinica 23 Oficina de Amigos s. snitario salon divino niño S.sanit. Bod. s.sanit. M. Bodega de equipo medico corredorcorredor corredor corredor area de paso jEFATURA DEMedicos Vacios CASETA servicio de mesas CORREDOR CILINDROS OXIGENO CASETA bodega S.SANIT. AREA DE OFICINA CORREDOR CORREDOR CORREDOR BODEGA INGRESO JARDIN BOD PILAS LAV. BODEGA S.SANIT. H. S.SANIT. S.SANIT.PUB. S.SANIT. INGRESO MAMOGRAFIA SALIDA EMERGENCIA SERV.SANIRARIOEndoscopia Endoscopia Endoscopia Ingreso circulacion Circulacion interna SERV.SANIRARIO CirculacionCirculacion interna Circulacion interna Circulacion interna Circulacion interna Circulacion interna Ingreso Ingreso Ingreso BANQUETABANQUETA BANQUETA BANQUETA BANQUETA BANQUETA BANQUETA BANQUETA S.S. Circulacion S.Sanit. Vestidor Mueble Mueble Ingreso Ingreso Ingreso CORREDOR NO. 1 NO. 2 SALON DE REUNIONES Sube Rampa ripio S.S.H. S.S.M. PUBLICO WRAP ROOM QUIRÓFANO No. QUIRÓFANO NUEVO 7 QUIRÓFANO NUEVO CORREDOR DE EVACUACIÓN FARMACIA QUIRÓFANO No.5 ROOM TO STORE CORREDOR CIRCULACIÓN INTERNA QUIRÓFANO No. QUIRÓFANO NUEVO POST-OPERATORIO POST-OPERATORIO QUIRÓFANO No. SECRETARIA HACIA ÁREA DE CILINDROS DE OXÍGENO INGRESO DE MÉDICOS S.S.H. ÁREA DE MÉDICOS QUIRÓFANO No. AUTOCLAVE EQUIPO INDUSTRIAL ROOM COMPUTACIÓN S.S.M. PATIO EQUIPO A/C Y BODEGA PRE-OPERATORIO DE QUIRÓFANOS TSG C11 C11 C11 C11 C11 C11 C11 C11 C11 C11 C11 C11 C11 C11 C11 C11 C11 C11 C11 C11 C11 C11 A2 A2 H PLANTA COMPLEJO GENERAL Informe Técnico Unidad Quirúrgica Página No - 07

Espacios y circulaciones

Zona de quirófanos

a. Recepción y Pre Operatorio

b. Pasillos asépticos y de uso médico restringido

c. Zona de quirófanos (8 unidades)

d. Zona de equipos médicos y autoclave

e. Farmacia

f. Post-operatorio

g. Área de descanso para médicos

h. Baños y vestidores para médicos

i. Sala de cómputo para control de expedientes

j. Secretaría de la unidad

Ingeniería del Proyecto

El diseño estructural cumple con la norma correspondientes para el cálculo y desarrollo de la cubierta. Las normas empleadas fueron:

Concreto: AGIES 7.1 + ACI-318

Acero: AGIES 7.5 + AISC-360 + AISC-RCSC + AISC-303 + AISC-358

El diseño de la cubierta se adaptó a las columnas de madera existente con nuevas columnas de apoyo y se reforzaron las vigas en techos aledaños.

PLANTA INTERVENCIÓN ÁREA QUIRÚRGICA

Ejecución del proyecto

Liberación de elementos adicionados a la edificación original.

Remoción de módulo de gradas no original en patio para ampliación de espacio.

Informe Técnico Unidad Quirúrgica Página No - 08 PRE-OPERATORIO ton. Ø10" Ø10'" Q6 BancoSplit ton. Ø16" Ø16" PASILLO Ø10" Ø4" Ø4" S.S.H.PUBLICOS.S.H.PUBLICO BancoFiltos Banco S.S.H. LAVADO QUIRÚRGICO S.S.M.PUBLICO WRAPROOM BOD. QUIRÓFANO No.QUIRÓFANO NUEVO QUIRÓFANO NUEVO LAVADO QUIRÚRGICO LAVADO QUIRÚRGICO CORREDOR DE EVACUACIÓN FARMACIA QUIRÓFANO No.5 ROOM TO CORREDOR CIRCULACIÓN INTERNA QUIRÓFANO No. QUIRÓFANO NUEVO POST-OPERATORIOPOST-OPERATORIO QUIRÓFANO No. A 1267 SECRETARIA HACIA ÁREA DEENCAMAMIENTO 6.15 3.10 12.95 31.65 6.039.00 17.98 4 CILINDROS DE OXÍGENO INGRESO DE MÉDICOS 3 2.95 5 D 3.15S.S.M.S.S.H. ÁREA DEMÉDICOS 9.40 H QUIRÓFANO No. QUIRÓFANO OJOS AUTOCLAVE BODEGA DE EQUIPO INDUSTRIAL DIRTYROOM COMPUTACIÓN 6.30 23.83 9.53 4.90 NPT NPT+100.00 +100.25NPT+100.25 S.S.M.NPT+100.25 PATIO EQUIPO A/C BODEGA PRE-OPERATORIO FARMACIA BODEGA DE QUIRÓFANOS LOCKERS LOCKERS BBB PASILLO DE SERVICIO SUBE CUARTO DE BOMBAS Cortina Split ton. Split ton.

Remoción de azulejo blanco adherido como zócalo y resane de los muros originales

Integración y readecuación de espacios

A raíz del análisis de los procesos empleados por los usuarios, se estudian los flujos tanto de médicos como pacientes para proponer la mejor solución de espacios requeridos.

Se eliminaron muros existentes sin valor patrimonial para ampliar espacios y generar pasos peatonales.

Plano de Situación original del área a intervenir

Relleno de zonas para nivelar altura del espacio.

Remoción de artefactos sanitarios existentes.

Demolición de muros.

Desinstalación de puertas y ventanas.

Remoción de azulejos en muros.

Intervención de suelos

Informe Técnico Unidad Quirúrgica Página No - 09
Colocación de estructura para cubrir el patio Cambio de ventanería en zona quirúrgica
Informe Técnico Unidad Quirúrgica Página No - 10 COLLAGE FOTOGRÁFICO DE ACCIONES A REALIZAR PARA INTERVENIR EL INMUEBLE EL EQUIPO PERMANECE AQUÍ REUBICACIÓN DE TUBERÍA DESMONTAR Y RELLENAR SEGÚN ADMINISTRACIÓN DE HOSPITAL DEMOLICIÓN DEMOLICIÓN DESMONTAJE ESTA TUBERÍA SE CONECTARÁ A LA EXISTENTE DESMONTAJE DESMONTAJE DE AZULEJOS DESMONTAJE ÁREA DE LAVADO REUBICAR PIEZA SEGÚN ADMINISTRACIÓN HOSPITAL DEMOLER JARDINERAS DESMONTAJE DE AZULEJOS BARRAS DESMONTAJE DE MOROS DESMONTAJE DE MOROS DESMONTAJE DE MOROS DESMONTAJE DE EQUIPO A/C
Informe Técnico Unidad Quirúrgica Página No - 11

Integración de instalaciones

El diseño de instalaciones fue un reto ya que no se contaba con un levantamiento preciso de la situación actual del inmueble, lo que llevó a un diseño final in-situ que buscaba adaptarse a lo existente. Sin embargo, varias redes se tuvieron que replantear como nuevas para cumplir con los requerimientos adecuados para un proyecto de esta índole.

El diseño y la ejecución de las instalaciones debió ajustarse a los requerimientos necesarios para adecuarse a la edificación, por su alto valor patrimonial.

A continuación, se muestran los planos “As Built” de las instalaciones presentes en el proyecto:

PLANO DE AIRE ACONDICIONADO – ICE

Registro “As Built” – Planta de redes para Aire Acondicionado

Informe Técnico Unidad Quirúrgica Página No - 12 S.S.H. S.S.M. S.S.H. PUBLICO WRAP ROOM LIMPIEZA QUIRÓFANO No. 4 QUIRÓFANO NUEVO QUIRÓFANO NUEVO 8 LAVADO QUIRÚRGICO CORREDOR DE EVACUACIÓN FARMACIA QUIRÓFANO No.5 ROOM TO STORE CORREDOR CIRCULACIÓN INTERNA QUIRÓFANO No. 2 QUIRÓFANO NUEVO 6 POST-OPERATORIO POST-OPERATORIO QUIRÓFANO No. SECRETARIA HACIA ÁREA DE ENCAMAMIENTO CILINDROS DE OXÍGENO INGRESO DE MÉDICOS S.S.M. S.S.H. ÁREA DE MÉDICOS QUIRÓFANO No. QUIRÓFANO OJOS AUTOCLAVE BODEGA DE EQUIPO INDUSTRIAL DIRTY ROOM ROPERIA COMPUTACIÓN DIRECTORIO MURAL +100.00 +100.25 S.S.M. +100.25 PATIO EQUIPO A/C Y BODEGA PRE-OPERATORIO FARMACIA Y BODEGA DE QUIRÓFANOS PASILLO DE SERVICIO PASILLO DE SERVICIO SUBE CUARTO DE BOMBAS ∅ 1" ∅ ∅ ∅ ∅ ∅ ∅ ∅ 1" ∅ ∅ ∅ 1" ∅ ∅ ∅ 1" ∅ ∅ 1" ∅ 1" ∅ 1" ∅ ∅ ∅ ∅ ∅ ∅ 1"∅ ∅ ∅ ∅ ∅ ∅ 1" ∅ ∅ ∅∅∅ ∅ 1" ∅ 1" ∅ 1" ∅ ∅ 1" ∅ ∅ ∅ ∅ ∅ ∅ 1" ∅ ∅ ∅ ∅∅ ∅ 1" ∅ ∅ ∅ 1" ∅ 3/4" ∅ 1" PARA FUTURA AMPLIACION ∅ PARA FUTURA AMPLIACION COMBO COMBO CAJA COMBO CAJA FUTURAS ∅ ∅ ∅ 1 1" ∅ ∅ No. DESCRIPCIONFECHAREVISION CONTENIDO: DIBUJO: REVISO: C:\ HOJA No. DISEÑO: ESCALA: 2021-153DI-5 RED DE GASES MEDICOS REMODELACION AREA DE QUIROFANOS HOSP. OBRAS SOCIALES HERNO. PEDRO ANTIGUA GUATEMALA P.D.A. ING. EDGAR ILLESCAS PRODUCTOS DEL AIRE DE GUATEMALA 07/10/2021 01 01 DET. CAJA DE VALVULAS + ALARMA 19 [495] 8 [98] [57] [114] [114]21 16 [538] [114] 1316 [348] 12" [305] 3 4 [19] [117] 3 4 [44] [54] 241 8 [613]NOTA: 1. La válvula de 2 "se puede pedir en cualquier puerto lleno O reducido. La válvula de puerto reducido En la caja estándar de "de profundidad. 2. La válvula de 2 "de llenado viene en una caja de 4-7 8" de profundidad. 3. La válvula de 2-1 2 "y 3" viene en una caja profunda de 6-1 2 ". TUBERIA DE COBRE TIPO "L", PARA OXIGENO, DIAMETRO INDICADO. PARA N2O, DIAMETRO INDICADO. TUBERIA DE COBRE TIPO "L", SIMBOLOGIA PARA AIRE MEDICO, DIAMETRO INDICADO. TUBERIA DE COBRE TIPO "L", CHEMETRON MARCA AMICO TOMA DE OXIGENO CONEXION CHEMETRON MARCA AMICO TOMA DE WAGD CONEXION CHEMETRON MARCA AMICO TOMA DE N2O CONEXION CHEMETRON MARCA AMICO TOMA DE AIRE CONEXION CHEMETRON MARCA AMICO TOMA DE VACIO CONEXION PARA NITROGENO, DIAMETRO INDICADO. TUBERIA DE COBRE TIPO "L", PARA VACIO, DIAMETRO INDICADO. TUBERIA DE COBRE TIPO "L", [44] [16] 4" [102] 10 [267] 1311 16 [348] [533] 12 16 [310] 4 [114] [57] 15" [381] 19 [495] PARED VISTA EN PLANTA VISTA FRONTAL VISTA LATERAL COPLA INDICADO 16 11 16 [424] 21 16 [538] [9.50-3013] DETALLE CAJA DE VALVULAS ESPESOR DE LA PARED DE3/8" to 1" [10mm to 25mm] [127] 3 8 [10] 16 [27] 5" [127]3 4 [146] 10 [254] 3" [76] [139] [127] [127] 17 8 [48] 513 16 [148] NOTA: AMICO RECOMIENDA TENER UN ESPACIO EN BLANCO ENTRE CADA PUNTO DE SALIDA. MAXIMO 3 PUNTOS DE SALIDA PUEDEN INSTALARESE SIN SOPORTE ADICIONAL. LA TOMAS SERAN CHEMETRON EMPOTRADAS EN LA PARED. DETALLE DE TOMAS EN PARED GASES MÉDICOS – PRODUCTOS DEL AIRE Registro “As Built” – Planta de Red de Gases Médicos S.S.H. LAVADO QUIRÚRGICO ALARMA DE GASES 6.7% 6.7%S.S.M. PUBLICO WRAP ROOM QUIRÓFANO No. 4 QUIRÓFANO NUEVO QUIRÓFANO NUEVO 8 LAVADO QUIRÚRGICO FARMACIA QUIRÓFANO No.5 ROOM TO STORE INGRESO CIRCULACIÓN INTERNA QUIRÓFANO No. QUIRÓFANO NUEVO 6 PRE-OPERATORIO POST-OPERATORIO QUIRÓFANO No. 3 SECRETARIA HACIA ÁREA DE ENCAMAMIENTO CILINDROS DE OXÍGENO INGRESO DE MÉDICOS BOMBAS ASPIRACIÓN GASES MEDICOS S.S.M. S.S.H. ÁREA DE MÉDICOS INFORMACIÓN FARMACIA Y BODEGA DE QUIRÓFANOS QUIRÓFANO OJOS AUTOCLAVE BODEGA DE EQUIPO INDUSTRIAL DIRTY ROOM ROPERIA COMPUTACIÓN DIRECTORIO MURAL +100.00 +100.25 +100.25 S.S.M. PATIO EQUIPO A/C Y BODEGA SISTEMA DE COLOR DE TIMBRE PARA NOTIFICACIONES DE LOS PACIENTES VA ACOMETIDAESPECIAL PRINCIPAL A B C D E H 1 3 4 7 6.15 3.10 12.95 3.15 6.30 6.03 2.95 9.00 9.40 4.90 9.58 41.85 CONECTA A: -CABLE UTP CAT -UBIQUITI UNIFI ACCESS POINT -GABINETE DE PARED ABATIBLE CON CHAPAS DE SEGURIDAD DE 9U -2 SWITCH 24 PUERTOS, POE, (MIKROTIK CSS326-24G-2S+RM 24 PUERTOS GIGABIT ETHERNET)-PDU DDD D DD D D D D D D INSTALACIONES ESPECIALES – SMARTLIVING Registro “As Built” – Planta de Instalaciones especiales – TV, Datos, Tel. y timbres
PLANOS DE INSTALACIONES HIDRÁULICAS - SINERGIA Registro “As built” – Planta de Instalación de agua potable Registro “As built” – Planta de Instalación de drenaje sanitario Registro “As built” – Planta de Instalación de drenaje pluvial Informe Técnico Unidad Quirúrgica Página No - 13 S.S.H. LAVADO QUIRÚRGICO 10% S.S.M.PUBLICO S.S.H.PUBLICO WRAPROOM BOD.LIMPIEZA QUIRÓFANO No. 4 QUIRÓFANO NUEVO 7 QUIRÓFANO NUEVO LAVADO QUIRÚRGICO LAVADO QUIRÚRGICO CORREDOR DE EVACUACIÓN FARMACIA QUIRÓFANO No.5 ROOM TO STORE CORREDOR CIRCULACIÓN INTERNA QUIRÓFANO No. 2 QUIRÓFANO NUEVO 6 POST-OPERATORIOPOST-OPERATORIO QUIRÓFANO No. A B C E 1267 SECRETARIA HACIA ÁREA DEENCAMAMIENTO 6.15 3.10 12.95 31.65 6.039.00 17.98 4 CILINDROS DE OXÍGENO INGRESO DE MÉDICOS 3 2.95 5 D 3.15S.S.M.S.S.H. ÁREA DEMÉDICOS 9.40 H QUIRÓFANO No. QUIRÓFANO OJOS AUTOCLAVE BODEGA DE EQUIPO INDUSTRIAL DIRTYROOM ROPERIA COMPUTACIÓN 6.30 23.83 9.53 4.90 MURAL NPT+100.00 NPT+100.00 NPT+100.25NPT+100.25 S.S.M.NPT+100.25 PATIO EQUIPO A/C Y BODEGA PRE-OPERATORIO FARMACIA Y BODEGA DE QUIRÓFANOS DIRECTORIO PVC Ø1 Ø 1 PVC Ø2" PVC Ø2" PVC Ø2" PVC Ø PVC Ø PVC Ø PVC Ø PVC Ø2" PVC Ø2" PVC Ø 1 4 PVC Ø 1 4 PVC Ø 1 4 PVC Ø 1 4 PVC Ø 1 4 CPVC Ø 1 2 PVC Ø PVC Ø 3 PVC Ø1 2 PVC Ø 4 PVC Ø1 PVC Ø 2"PVC Ø3"PVC Ø3" PVC Ø3" CPVC Ø3 Ø C V P 4 Ø C V P C 4 PVC Ø PVC Ø2" PVC Ø2" PVC Ø 1" PVC Ø 1" PVC Ø PVC Ø PVC Ø2" PVC Ø 1" PVC Ø3" 3 Ø C V P PVC Ø1" PVC Ø1 2 PVC Ø PVC Ø 2 CPVC Ø PVC Ø 2 PVC Ø 2 PVC Ø3" Ø1 CPVC Ø3 4 PVC Ø2" PVC Ø2" PVC Ø1 PVC Ø1 PVC Ø1 PVC Ø1 PVC Ø2" PVC Ø 1" PVC Ø 1 PVC Ø 1 4 PVC Ø PVC Ø 1" PVC Ø 1" PVC Ø2" Ø PVC Ø 4 PVC Ø 1" PVC Ø 1" PVC Ø 1" PVC Ø 1" PVC Ø2" 2 Ø C V P 2 Ø C V P Ø C V P Ø Ø PVC Ø2" PVC Ø2" PVC Ø2" CPVC Ø Ø2" PVC Ø Ø1 PVC Ø2" PVC Ø2" PVC Ø2" PVC Ø VAN A CONECCIONESEXISTENTES CPVC Ø3Ø C V P 4 PVC Ø3 PVC Ø3 4 1 Ø C V P C CPVC Ø1" 3 Ø C V P 3 Ø C V P PVC Ø PVC Ø CPVC Ø PVC Ø1" PVC Ø1" HG Ø1" HG Ø1" HG Ø1" VAN A CONECCIONESEXISTENTES PVC Ø1 2 CPVC Ø1" CPVC Ø1" CPVC Ø 3 PVC Ø2" Ø2" PVC Ø 1 2 CPVC Ø 1 2 PVC Ø 1 2 1 Ø C V P C CPVC Ø Ø Ø Ø1 VIENE DE INSTALACIÓN EXISTENTE DE AGUA CALIENTE Ø 3 4 Ø 4Ø 4 LAVADO QUIRÚRGICO A B C E 6.15 3.10 12.95 31.65 6.03 9.00 17.98 2.95 D 3.15 9.40 H 6.30 23.83 9.53 4.90 PRE-OPERATORIO FARMACIA Y BODEGA DE QUIRÓFANOS PVCØ4" PICHACHA DE PISO CON SIFÓN TERMINAL Ø2" PVCØ2" PVCØ4" PVC Ø4" PVCØ2" PVCØ4" PVC Ø2" CAJA EXISTENTE PVC Ø2" PVCØ2" PVCØ4" PVC Ø4" PVCØ2" PVCØ2" PVCØ4" PVCØ4" PVCØ4" PVCØ2" PVCØ4" PVCØ4" PVC Ø4" PVC Ø4" PVCØ2" PVCØ2"PVC Ø2" PVC Ø2" PVC Ø2" PVCØ2" PVCØ2" SIFÓN TERMINAL Ø2" PVC Ø2" PVC Ø2" PVCØ2" CAJA DE REGISTRO TUBERÍA EXISTENTE Ø6" PVC Ø3" PVCØ3" CAJA EXISTENTE TRAMPA DE GRASA PREFABRICADA 25.00 lts TG PVC Ø4" PVC Ø2"PVC Ø4" PVC Ø6" VIENE BAN Ø4" DE S.S. EN FRATERNIDAD PVC Ø6" PVC Ø6" PVC Ø6" PVC Ø4" PVC Ø4" PVC Ø4" PVCØ2" PVCØ2" PVCØ4" PVCØ4" PVCØ4" PVCØ2" PVC Ø2" PVCØ2" PVCØ2"PVCØ2" PVC Ø4" PVC Ø4"PVC Ø2" PVCØ2" PVC Ø4" PVC Ø4" PVCØ4" PVC Ø4" PVC Ø4" PVC Ø4" PVC Ø2" PVC Ø3" VIENE BAN PVC Ø3" HG Ø1 HG Ø1" HG Ø2" HG Ø2" HG Ø2" HG Ø2" HG Ø2" HG Ø2" HGØ2" PVC Ø4" PVC Ø3" PVCØ3" PVCØ2" CAJAS EXISTENTES LAVADO QUIRÚRGICO A B C E 1 2 6 7 6.15 3.10 12.95 31.65 6.03 9.00 17.98 4 3 2.95 5 D 3.15 9.40 H 6.30 23.83 9.53 4.90 +100.00 +100.25 +100.25 CAJA EXISTENTE PVC Ø3" PVCØ3" T.C. Ø8" EXISTENTE T.C. Ø8" EXISTENTE PVC EXISTENTE CAJA EXISTENTE BAP Ø4" PVC Ø4" PVC Ø4" TUBERIA DE PVC PARA EQUIPO DE A/C Ø1" PVC Ø1" PVCØ4" PVCØ3" PVCØ3" PVC Ø3" PVC Ø3" PVC Ø3" PVC PARA EQUIPO DE A/C Ø1" PVC Ø1" BAP Ø4" PVC Ø4" PVCØ4" PVCØ4" PVC Ø4" PVCØ4" VIENE BAP Ø3" PVC Ø3" CAJA EXISTENTE

Sistema

Informe Técnico Unidad Quirúrgica Página No - 14 PRE-OPERATORIO 3 ton. Ø10" Difusores Split ton. Ø10'" Ducto20"/14" O "B" 5 ton. 5 ton. Q6 Banco de FiltosSplit 5 ton. Ducto14"/10" ton. ton. EXTRACTOREXTRACTOR "B" M. P O "A" Ø16" Ø16" Q PASILLO "B"Q1 HONGO Q3PREOPERATORIO Q3 Q2 Ø10" Ø4" Ø4" Filtros S.S.H.PUBLICOS.S.H.PUBLICO Filtos Banco de Filtos Banco de Filtos S.S.H. LAVADO QUIRÚRGICO ALARMADEGASES 6.7%6.7% S.S.M.PUBLICO S.S.H.PUBLICO WRAPROOM BOD.LIMPIEZA QUIRÓFANO No. 4 QUIRÓFANO NUEVO QUIRÓFANO NUEVO 8 LAVADO QUIRÚRGICO LAVADO QUIRÚRGICO CORREDOR DE EVACUACIÓN FARMACIA QUIRÓFANO No.5 ROOM TO STORE CORREDOR CIRCULACIÓN INTERNA QUIRÓFANO No. 2 QUIRÓFANO NUEVO 6 POST-OPERATORIOPOST-OPERATORIO QUIRÓFANO No. 3 A B C E 1267 SECRETARIA HACIA ÁREA DEENCAMAMIENTO 6.15 3.10 12.95 31.65 6.039.00 17.98 4 CILINDROS DE OXÍGENO INGRESO DE MÉDICOS 3 2.95 5 D 3.15S.S.M.S.S.H. ÁREA DEMÉDICOS 9.40 H ÁREAS EXISTENTES NO INTERVENIR QUIRÓFANO No. 1 QUIRÓFANO OJOS AUTOCLAVE BODEGA DE EQUIPO INDUSTRIAL DIRTYROOM ROPERIA COMPUTACIÓN DIRECTORIO 6.30 23.83 9.53 4.90 NPT+100.00 +100.00 +100.25NPT+100.25 S.S.M.NPT+100.25 PATIO EQUIPO A/C Y BODEGA PRE-OPERATORIO FARMACIA Y BODEGA DE QUIRÓFANOS DIRECTORIO BBB PASILLO DE SERVICIO SUBE CUARTO DE BOMBAS Cortina Cortina Split 5 ton. Split ton. ton.
de aire acondicionado Área de Quirófanos Registro As built Plano de Iluminación S.S.H. LAVADO QUIRÚRGICO ALARMA DE GASES S.S.M. PUBLICO S.S.H. PUBLICO WRAP ROOM BOD. LIMPIEZA LAVADO QUIRÚRGICO FARMACIA ROOM TO STORE CIRCULACIÓN INTERNA QUIRÓFANO No. 2 QUIRÓFANO No. 3 SECRETARIA CILINDROS DE OXÍGENO QUIRÓFANO No. 1 QUIRÓFANO OJOS AUTOCLAVE BODEGA DE EQUIPO INDUSTRIAL DIRTY ROOM ROPERIA COMPUTACIÓN DIRECTORIO S.S.M. PRE-OPERATORIO FARMACIA Y BODEGA DE QUIRÓFANOS DIRECTORIO B BPASILLO DE SERVICIO PASILLO DE SERVICIO CUARTO DE BOMBAS J B,F C G,H D,E CC C C J C9 C9 C C9 C C9 D C9 D D D D C9 D C9 E E E E E F F F F C9 F C9 F C9 B B B B B B B C9 B C9 B C9 B C9 C9 B C9 B G GG C9 E C9 C9 B C9 B C9 C9 B G G G G H H H H H H H C9 C9 C9 C9 C9 C9 C9 C9 J J J J J J J J J J J J J JJ J JJ J J J F F F F F F E E E E E E D D D D D D C C C C C C BB BB BB BB BB BB BB G G G GG G G G GG A INTERRUPTOR DE JARDIN Y BOMBA DE FUENTE A A A A A A A A A A A A A A A A A A A AA A A A A A A A A TUBERÍA VISTA O EXPUESTA Ø " O INDICADA TSG A1 A1 INTERRUPTOR SIMPLE INTERRUPTOR DOBLE INTERRUPTOR TRIPLE TABLERO DE DISTRIBUCIÓN SÍMBOLO DESCRIPCIÓN SIMBOLOGÍA ILUMINACIÓN CONDUCTOR VIVO #12 SALVO INDICACIÓN CONDUCTOR NEUTRO #12 SALVO INDICACIÓN TIERRA FÍSICA CONDUCTOR RETORNO #12 SALVO INDICACIÓN SENSOR DE MOVIMIENTO CAJA DE REGISTRO 0.05x0.05x0.05m AR1 c/ par 38 REFLECTOR EN JARDIN ESCALA1 PLANTA DE REFERENCIA CONJUNTO 1:500 H 6 5 4
Informe Técnico Unidad Quirúrgica Página No - 15 LAVADO QUIRÚRGICO 10% LAVADO QUIRÚRGICO LAVADO QUIRÚRGICO LOCKERS LOCKERSSUBE MEDICOSDESCANSO DE F D A B C D E H 1 2 3 4 5 6 7 6.15 3.10 12.95 3.15 31.65 6.30 6.03 2.95 9.00 9.40 4.90 9.58 41.85 3WB B M G,HE,FJ,K R4,R5 R3,R2,R3W R3W,R1 UPS UPS UPS C1 VA DE TSG-1 D B H C G B C C C C C2 C2 HGC2 C2FC2C2 KC2J C1 L L2L1 L4 L3 L L5 R3 R4 R5 R R1 R C1RR2R3 R1R C1 C1 C2 B K K C2 C2 C2 E F G H R R B B C2 B C2CC C2 C2 R3 C1H B J J J J C3 D B A B JJ J J C2J C2 GC1G C1 N N C1 B C1N C1 C1 N L C1 M R4 R5 C1 R C J C2 L1L C1L2L4L3 C1L5 F M C1D C1 C1C1 MC1 C2 C2 J D C2 B B B B B C2 C2 C L,L1,L2L3,L4,L5 NN N J C3 J MASTER TSG 2 TSG 1 B N N N M M C3 M M M N1 N C3N C3 D C3 D C3 TIRA LED C3D TIRA LED C3D C3D TIRA LED D D TIRA LED D C3 C3 J J C3 D D TIRA LED D TIRA LED C3H P PC3 PC3 P P HC3 HC3 HC3 H H H HPPP P P P P P C3 D C2 D C3D C3D D C3 D C3 D D DD TIRA LED DD TIRA LED DD TIRA LED TIRA LED B C2 B C2 B J K K E E F G G H H DDD D D D B TIRA LED TIRA LEDB C C C C C C TIRA LED C2CC TIRA LEDC C TIRA LED TIRA LEDC C C TIRA LED TIRA LEDC A, B B A B BABABA AB C3 B A A A BA BC3 J C3 B B D N G G G F B B B B B B D N D D B B J C3 C3 C3 N2 N3 C3M C3N3 C3N1 C3N1 C3 C3 C3 C3D B B C2 B B B B B PC3 C3C3C3 C3P HC3 G G G G G G C3 N1 N2 N3 N N N N M M M M M M M D TIRA LED DD TIRA LED TIRA LED D C3D C3 TIRA LED C3 P P P P H H H H HHHHPPPP P P P P P PC3 J D E K K K L,M,N B B R5 R1 R2 R R LL L1 L2 L5 L4 L3 R4 R3 A R L B A A B A B A B A A L L L L L L L L M M M N N N N N L N K C1 K L C1 C1 M M L L L L L L M L M L M N L M N L M N K KL NL L M N K G M G M LLC1C1 C1MC1G C1 G G S S S S TSG2 S S S S S C1 S S S S SS S S S S S S S S D D D D H H H H H H F FC1 D C1 D D D D H H H H H H C1 C1F F F MM M B C J J J J J J J G C2 G GG G G G G G G G C2 GGB B B C2DD C2 D D F D D D D D D C DD DD D D D DD D D D D G G C2 G G G G GG C2 GG G C2 G G G G G G G B B B N N N N N N N G G G G G G G B B BB B BBB B B N N N N N N N N TIRA LED EN CAJON LÁMPARA IOTA (VERIFICAR WATTS PARA CADA AMBIENTE) LÁMPARA ATIK IV LÁMPARA BRIGHTON VII UPS TUBERÍA VISTA O EXPUESTA Ø 3 O INDICADA TSG A1 A1 INTERRUPTOR SIMPLE INTERRUPTOR DOBLE INTERRUPTOR TRIPLE INTERRUPTOR 3W TABLERO DE DISTRIBUCIÓN UPS SÍMBOLO DESCRIPCIÓN SIMBOLOGÍA ILUMINACIÓN CONDUCTOR VIVO #12 SALVO INDICACIÓN CONDUCTOR NEUTRO #12 SALVO INDICACIÓN TIERRA FÍSICA CONDUCTOR RETORNO #12 SALVO INDICACIÓN LÁMPARA DOMUS IV UNID. 5 39 81 38 25 6 4 8 4 3 A1 A1 LÁMPARA ÉPSILONA1 2 A1 SENSOR DE MOVIMIENTO 4 CAJA DE REGISTRO 0.05x0.05x0.05m 71 LAMPARA X LINE LED 26 W. AR1 c/ par 38A1 A1 7 49 LÁMPARA IOTA 5W LÁMPARA BRIGHTON VII SÍMBOLO DESCRIPCIÓN LÁMPARA ATIK IV LÁMPARA DOMUS IV PLAQUERIA INTERRUPTORES SÍMBOLO DESCRIPCIÓN SÍMBOLO DESCRIPCIÓN SÍMBOLO DESCRIPCIÓN SÍMBOLO DESCRIPCIÓN A1 LÁMPARA ÉPSILON A1 SÍMBOLO DESCRIPCIÓN A1 A1 A1 Registro “As Built” Planta de fuerza, Nivel 1, Claustro 1 – Zona de patio central BOD. LIMPIEZA S.S.M. LAVADO QUIRÚRGICO QUIRÓFANO No. QUIRÓFANO NUEVO 7 QUIRÓFANO NUEVO 8 LAVADO QUIRÚRGICO LAVADO QUIRÚRGICO CORREDORDEEVACUACIÓN FARMACIA QUIRÓFANO No.5 ROOMTO STORE INGRESO CORREDOR CIRCULACIÓN INTERNA QUIRÓFANO No. QUIRÓFANO NUEVO 6 PRE-OPERATORIO POST-OPERATORIO POST-OPERATORIO QUIRÓFANO No. 3 NPT +100.00 SECRETARIA HACIA ÁREA DE ENCAMAMIENTO 6.15 3.10 12.9531.65 CILINDROS DE OXÍGENO INGRESODE MÉDICOS 3.15 BOMBAS ASPIRACIÓN S.S.M. S.S.H. ÁREA DE MÉDICOS INFORMACIÓN FARMACIA Y BODEGA DE QUIRÓFANOS QUIRÓFANO No. QUIRÓFANO OJOS AUTOCLAVE WRAP ROOM BODEGA DE EQUIPO INDUSTRIAL DIRTY ROOM ROPERIACOMPUTACIÓN S.S. BLANCOS DIRECTORIO 6.30 S.S.M. PUBLICO S.S.H. PUBLICO S.S.H. PATIO NPT +100.00 A B C D E F 1 2 3 4 5 6 7 6.15 3.10 12.95 3.15 31.65 6.30 6.03 2.95 9.00 9.40 4.90 9.58 41.85 TSG1 MASTER D D-3 F-1 F F-2 Q-7 Q-8 Q-6 TSG2 1 1 1 PVC 1 PVC PVC CAJA DE REGISTRO 0.05x0.05x.0.05m INDICA REFERENCIA DE ALAMBRADO CONDUCTOR VIVO #6 SALVO INDICACION CONDUCTOR NEUTRO #6 SALVO INDICACION TIERRA FISICA TSG TUBERIA ENTERRADA EN MURO O PISO Ø1 O INDICADA TUBERIA VISTA O EXPUESTA Ø1 " O INDICADA SIMBOLO DESCRIPCION SIMBOLOGIA CAJA DE REGISTRO 0.50x0.50x0.50m TABLERO DE DISTRIBUCION PARA TOMACORRIENTES REGULADOS REGISTRO EN CIELO FALSO 0.40m x 0.40m NÚMERO ARMADO ARMADO ELECTRICO 1 3#6 + 1#8 NOTA: CADA TABLERO DE QUIROFANO VA ALIMENTADO CON UN FLIPON SEMI-INDUSTRIAL DE 2x50Amp. MARCA SQUAR D, MODELO FA24050BC, DE TSG 1 UBICADO EN BODEGA DE EQUIPO INDUSTRIAL CANALETA INSTALACIONES ELÉCTRICAS – INELSA Registro “As built”- Planta de fuerza Nivel 1, Zona Quirúrgica
Informe Técnico Unidad Quirúrgica Página No - 16 AMPLIACION DE CORREDORPATIO MAS JARDINNo.2 CORREDOR OFICINA DE CORREDORCORREDOR REGISTRO DE LAS PERSONASDONACIONES PATIO MAS JARDINNo.2 PATIO MAS JARDINNo.2 PATIO MAS JARDINNo.2 CORREDOR P 10% P 6.7%P 6.7% S.S.M.PUBLICO S.S.H.PUBLICO S.S.M. LOCKERS LOCKERS TSG C11C11C11C11 C11 C11 C11 C11 C11 C11 C11 C11 C11 C11 C11 C11 C11 C11 11C A2 C11 11C11C C11 C11 C11 11C C11 C11 C11 C11 C11 11C 11C 11C 11C 11C A2 MBOMBA DEFUENTE A2 H SIMBOLOGÍA FUERZA TUBERÍA VISTA O EXPUESTA TSG TABLERO DE DISTRIBUCIÓN SÍMBOLO DESCRIPCIÓN CONDUCTOR VIVO #12 SALVO INDICACIÓNCONDUCTOR NEUTRO #12 SALVO INDICACIÓNTIERRA FÍSICA BOMBA DE FUENTETOMACORRIENTES EN TECHO A1 TUBERIA SUBTERRANEA M SALIDA No.2 DIRECCION ETERILIZACION S.S BUCARO SS.BAÑOS CLINICA 25 CIRUGIA MENOR QUIROFANO Endoscopia PISCINA S.S.B CORREDOR BODEGAS BODEGAS AISLAM. AISLAM. DUCHAS PARQUEO COMEDOR S.S 3a. AVENIDA SUR 4a. AVENIDA SUR FARMACIA POZO MECANICO DESPENSA ESTADISTICA ESTADISTICA DE EQUIPO TRANSFORMADORE AREA DE CALDERAS PROTESIS Clinica MEDICOS GENERADOR ELECTICO BASURACONTAMINADA LOCKERSCIRUGIA MENOR AREA CIRUGIA Bod. Transformador PARQUEO 3a. AVENIDA SUR Clinica No4 Clinica Clinica 12 Clinica No. Ginecologìa Clinica No. 14 Espera equipo medico corredor servicio mesas S.SANIT. CORREDOR BODEGA S.SANIT. Circulacion Circulacion interna Circulacion interna Circulacion interna Ingreso Ingreso BANQUETA Ingreso CORREDOR QUIRÓFANOQUIRÓFANO NUEVO ESCALA 1 PLANTA DE FUERZA NIVEL 1 PATIO 1:75 H E 6 5 4 ESCALA 2 PLANTA DE REFERENCIA NIVEL 1 PATIO 1:500
Informe Técnico Unidad Quirúrgica Página No - 17

Integración de acabados

Al ser un inmueble con valor patrimonial se emplearon técnicas y detalles especiales para conservar el estado original. Los muros y pavimentos originales se protegieron construyendo las instalaciones nuevas sobrepuestas.

• Detalle de intervención en suelos: Colocación de capa de nylon, selecto y contrapiso para poder colocar el nuevo piso cerámico.

• Detalle de intervención en muros: Instalación de parales de aluminio y una capa aislante de duroport de media pulgada para amortiguamiento entre el muro existe y el nuevo acabado instalado.

Informe Técnico Unidad Quirúrgica Página No - 18
Informe Técnico Unidad Quirúrgica Página No - 19

Con el mismo objetivo de conservación, se buscaron opciones que asemejaran los acabados originales. Es por ello que, en los pasillos intervenidos, se utiliza un piso tipo terrazo y bordes con losetas martelinadas.

En la Unidad Quirúrgica se seleccionaron acabados de acuerdo a estándares médicos.

Informe Técnico Unidad Quirúrgica Página No - 20
Recepción y Pre- Operatorio Post-Operatorio Quirófanos Informe Técnico Unidad Quirúrgica Página No - 21
Salón
de Médicos
Servicios
Sanitarios Médicos Patio de Médicos
Informe Técnico Unidad Quirúrgica Página No - 22
Oficina de
Médicos
Quirófanos

Intervención y restauración del Claustro I del complejo

Diseño del proyecto

Crear un vestíbulo de ingreso para los visitantes que buscan atención médica y crear un espacio multimodal para realizar eventos.

Devolver valor patrimonial al inmueble.

Descripción técnica de diseño

• Diseño y adaptación del ala norte del claustro para dotar de baños públicos al complejo.

o Diseño para personas con discapacidad. o Diseño y desarrollo técnico en base a los estándares de conservación del Consejo Nacional para la Protección de La Antigua Guatemala.

• Restauración del Patio Central y corredores

o Trabajos de remoción de elementos adicionados y arreglo de muros en pasillos. o Apertura de vanos originales. o Restauración de entramados de madera. o Mejora del nivel de iluminación de los pasillos. o Realce de elementos arquitectónicos y jardinización mediante iluminación especial. o Aplicación de pintura. o Eliminación de muro en patio central.

Informe Técnico Unidad Quirúrgica Página No - 24
Intervención Claustro I
Intervención Baños Públicos Intervención Patio Central Informe Técnico Unidad Quirúrgica Página No - 25

C. Pruebas y requerimientos finales

La construcción y todas las instalaciones completaron sus pruebas de calidad, lo cual nos permite entregar un proyecto con garantías y documentación en cada uno de sus espacios. Se entregó un Manual de Mantenimiento que contiene todas las directrices, proveedores, garantías y planos “As Built, proveyendo información para que la edificación se mantenga en las condiciones adecuadas.

Informe Técnico Unidad Quirúrgica Página No - 26
ÁREA DE CONVALECIENTES Lic. Roberto Bolaños - Director Administrativo Obras Sociales del Santo Hermano Pedro

La ampliación de la unidad quirúrgica permitiría la realización de cirugías simultaneas en ocho quirófanos, lo que implica que debería de resolverse la necesidad de ampliar el número de espacios apropiados para los convalecientes de esas cirugías. Con esta necesidad, se recurrió a rehabilitar las antiguas salas que estaban ocupadas por los pacientes que ya habían sido trasladados al Hogar Virgen del Socorro y se consiguieron espacios en 13 salas para colocar hasta 88 camas.

PLANIFICACIÓN DE LOS TRABAJOS

Para tal efecto Dirección Médica de Hospital y Administración realizaron una serie de requerimientos de modificación o ampliación de ambientes, para que las instalaciones fueran funcionales, cómodas y adecuadas para atender a nuestros pacientes post operados, posteriormente en conjunto con el Departamento de Mantenimiento se elaboró un diseño y presupuesto de los trabajos a realizar, este diseño aparte de procurar la funcionalidad del edificio también contempló trabajos de conservación y restauración.

CONVALECIENTES5 Informe Técnico Unidad Quirúrgica Página No - 28

EJECUCIÓN DE LOS TRABAJOS

Para la realización de los trabajos de readecuación de los ambientes se contrataron 5 albañiles, que sumados al equipo de Mantenimiento de Obras Sociales conformado por 4 albañiles, 2 carpinteros, 2 herreros, 2 ayudantes de albañil, 1 electricista, 4 Técnicos en Informática y los dos coordinadores del Departamento, con la coordinación de Administración que por espacio de 5 meses ejecutaron la totalidad de los trabajos, lo cuales empezaron en el mes de noviembre del año 2,021 y culminaron en marzo del año 2,022.

DESCRIPCIÓN DE LOS

TRABAJOS REALIZADOS

Liberación de espacios, se trasladaron las bodegas de equipo médico, material médico quirúrgico, abarrotes, productos de limpieza y farmacia interna.

3.

Readecuación de sanitarios, se modificaron y construyeron 5 baterías de sanitarios y duchas tanto para los pacientes como para el personal.

Demoliciones, se eliminaron los mezzanines ubicados en farmacia interna y bodega de abarrotes y productos de limpieza, se demolieron los ambientes donde estaba ubicado el jacuzzi, pared y bodega que separaban las bodegas, se abrieron puertas que comunican la sala No. 2 con el resto de encamamientos, y la puerta que comunica la sala 6 con la 7, de igual forma se liberó el patio atrás de Dirección General.

4.

Techos y cielo falso, se reparó el techo de todos los encamamientos, se colocó cielo falso en la sala No. 2, se dio mantenimiento y reparó el cielo falso de todas las demás salas de convalecientes, se dio mantenimiento a las estructuras de soporte del techo de los pasillos, se cambió el techo del pasillo que conduce hacia el área de gastroenterología, se colocó techo al área y sanitarios de servicios.

Informe Técnico Unidad Quirúrgica Página No - 29

5.

Ventanales, se dio mantenimiento y limpieza a todas las ventanas de las salas de convalecientes, se construyeron 3 ventanales de los pasillos, y se eliminaron ventanales en el pasillo de ingreso a Conva.

6.

Se realizaron trabajos de resanamiento de paredes y pintura de toda el área de Convalecientes y aislamientos.

7.

Se reestructuró toda la red del sistema eléctrico y se cambiaron las luminarias.

8.

Se readecuó el sistema de agua caliente para duchas.

9.

Se instaló un nuevo sistema de redes y colocación de puntos de red inalámbrica en todos los ambientes del área de Convalecientes.

10.

Habilitación del área de afilado de instrumentos de sala de operaciones, construcción de rampa para acceso a Sala No. 2.

Informe Técnico Unidad Quirúrgica Página No - 30
RESTAURACIÓN Magíster Dunia Valenzuela

RESTAURACIÓN

El presente documento constituye el Informe Final de Restauración del Proyecto de Ampliación de la Unidad de Cirugía “Rodrigo Méndez” del Antiguo Hospital para Eclesiásticos, hoy sede de Obras Sociales del Santo Hermano Pedro. Dichos trabajos se circunscribieron a lo consignado en la Licencia de Construcción N° 51-2021, autorizada por el Consejo Nacional para la Protección de La Antigua Guatemala, según el Punto 4, Inciso 4.2 del Acta N° 31-2021 de la SesiónOrdinaria del Consejo celebrada el martes veintiocho de septiembre de dos mil veintiuno.

Dichos trabajos fueron desarrollados durante 21 semanas que iniciaron el 8 de noviembre de dos mil veintiuno y que permitieron que el jueves 18 de marzo del presente año se inaugurara la Unidad de Cirugía.

Tal como se consigna en la Memoria Descriptiva del Proyecto, la problemática que presentaba el Conjunto Monumental consistía en lo siguiente:

5 Informe Técnico Unidad Quirúrgica Página No - 31

“El monumento ha sido utilizado como hospital desde el momento de su construcción y desde entonces se ha adaptado, constructivamente, para acoplarse a los avances tecnológicos propios de la medicina. Es así como, a mediados del siglo XX se adaptó el patio del Claustro Oriente, para acoger, posiblemente, a los primeros quirófanos modernos que se construyeron en La Antigua Guatemala, mientras funcionaba en este monumento el Hospital Nacional Pedro de Bethancourt.

Luego de que el monumento permaneció en abandono, a raíz del terremoto de San Gilberto (1976), el conjunto monumental fue cedido en usufructo a la Asociación de Frailes Franciscanos de las Obras Sociales del Santo Hermano Pedro. Con ello, nuevamente se rehabilitó el área de quirófanos pertenecientes al hospital nacional, incluyendo la actualización pertinente en cuanto a infraestructura, equipo y mobiliario.

Es así como, actualmente, se espera darle continuidad a este proceso de adaptación de la infraestructura a la tecnología moderna, especialmente referida a la telemedicina, respetando los criterios actuales de restauración y conservación de monumentos. Este es el origen del proyecto.

De esta forma, el presente proyecto se conceptualiza como la oportunidad del edificio del Antiguo Hospital para Eclesiásticos de San Pedro, de mantener el uso para el cual fue creado (diseñado y construido) hace más de 358 años. Esto significa seguir siendo el edificio hospitalario más antiguo de Guatemala, y posiblemente de Centro América, manteniendo un delicado equilibrio entre la modernidad que conlleva la medicina y la necesaria conservación de un monumento singular”

Informe Técnico Unidad Quirúrgica Página No - 32

LA PLANIFICACIÓN TÉCNICA

El proceso de planificación de la intervención, inició con las entrevistas y reuniones de trabajo entre AICSA y la dirección médica del hospital. En esta etapa se pudo determinar el programa de necesidades actuales y futuras de la Unidad de Cirugía “Rodrigo Méndez”, así como el funcionamiento actual –prepandemia- del Hospital de Obras Sociales del Santo Hermano Pedro. La distribución arquitectónica así como el estado actual de las distintas instalaciones fueron registrados a través de levantamientos, sketch y planos de diseño. Con estos elementos sumados a la experiencia corporativa de la empresa, fue posible desarrollar un juego de planos compuesto por 32 documentos, una memoria descriptiva del proyecto y su cronograma de ejecución.

Estos documentos fueron validados por las autoridades del hospital –frailes franciscanos-, por las autoridades y personal médico –usuarios-, por la administración y personal de mantenimiento –a cargo del funcionamiento actual y futuro de los quirófanos- y por la conservadora del hospital -por tratarse de un bien cultural protegido- para, finalmente, presentarse ante las autoridades competentes, es decir, ante el Consejo Nacional para la Protección de La Antigua Guatemala. Es importante hacer notar que, como en todo proyecto, durante el proceso de ejecución fue necesario afinar algunos aspectos, así como realizar algunos ajustes y modificaciones a la planificación original, sin menoscabo del cumplimiento de los objetivos trazados y conservando los valores histórico-patrimoniales del hospital.

PLANTA COMPLEJO GENERALCONFORMACIÓN CLAUSTROS PLANTA INTERVENCIÍON ÁREA QUIRÚRGICA Informe Técnico Unidad Quirúrgica Página No - 33

LAS ACCIONES DE RESTAURACIÓN IMPLEMENTADAS

Una vez definido el programa y diseño arquitectónico del proyecto se establecieron los ambientes y elementos arquitectónicos de máxima conservación pertenecientes a los siglos XVII, XVIII, XIX y primera mitad del siglo XX, así como aquellos que, por su contemporaneidad (menos de 50 años de construcción), podían incluso ser liberados.

Las áreas consideradas de mayor valor histórico son las siguientes:

Crujía donde se encuentran los quirófanos Corredor al patio de servicio Corredor interno sur -frente a quirófanos Corredor interno norte -frente a servicios sanitarios internos Corredor poniente -frente a patio de servicio Crujía donde se encuentra la sala de médicos y postoperatorio

Crujía donde se encuentran los servicios sanitarios públicos Corredores hacia el claustro de la fuente claustro de ingreso

Tomando como base el valor histórico y patrimonial de dichos ambientes, se tomaron las siguientes decisiones que permitieron salvaguardar dichos valores:

Modificar el diseño de los corredores para mantener la integridad de los muros originales Modificar el diseño de los servicios sanitarios públicos para no modificar los vanos originales Mantener las circulaciones lineales, transformándolas de corredores a pasillos Modificar la distribución arquitectónica, únicamente, en las áreas de temporalidad reciente Finalmente, se adoptaron los siguientes criterios de restauración:

Liberación:

Tabiques de tablayeso

Instalaciones eléctricas obsoletas

Sistema de aire acondicionado obsoleto Sistema de gases y vacío médico obsoleto Servicios sanitarios contemporáneos Azulejos contemporáneos

Mantener el patrón tradicional de doble vertiente con acabado final de tejas en la nueva cubierta Crear los nuevos ambientes con tabiques de tablayeso anclados al piso y al entrepiso Sustituir las instalaciones obsoletas por instalaciones nuevas

Evitar la perforación o anclaje de cualesquiera instalaciones a los muros originales Proteger los muros originales coloniales, durante la ejecución del proyecto

Informe Técnico Unidad Quirúrgica Página No - 34

Integración:

Tabiques de tablayeso con estructura de aluminio anclada a suelo y entrepiso Instalaciones eléctricas ancladas a tabiques nuevos

Sistema de aire acondicionado anclado a entrepiso

Sistema de gases y vacío médico anclado a tabiques y entrepiso

Relleno en piso de servicios sanitarios al público Instalación de cielo falso en servicios sanitarios públicos para mejorar la iluminación

Instalaciones hidrosanitarias nuevas sobrepuestas al piso existente Revestimiento plástico-médico en tabiques de tabla yeso Acabados tradicionales en muros originales

Forro de tablayeso en pilares y alero hacia el patio frente a quirófanos

Informe Técnico Unidad Quirúrgica Página No - 35

ALGUNOS ASPECTOS A DESTACAR:

Habilitación de Salas de Convalecientes

Como proyecto complementario a la Ampliación de Quirófanos, se desarrolló el Proyecto de Trabajos Menores del Claustro Norponiente, el cual permitió cumplir con los modernos estándares médicos relativos a los cuidados postquirúrgicos y de convalecencia. Es así como se decidió rehabilitar el Claustro Norponiente para convertirlo en el Claustro de Convalecientes, recuperando así, el uso original. Paralelamente a ello, y respondiendo a este mismo requerimiento, se procedió a readecuar la despensa o bodega de insumos perecederos, para que pudiera albergar, con comodidad y eficiencia a dichos pacientes

Es importante consignar que estos trabajos fueron aprobados por el Consejo Nacional para la Protección de La Antigua Guatemala, lo cual aunado a la asesoría de la Arquitecta Restauradora, aseguran la protección y resguardo de los valores histórico-patrimoniales de este claustro.

Objetivo General:

Acomodar un mínimo de 80 camas para pacientes convalecientes, incluyendo sus servicios Objetivos Específicos

Recuperar totalmente el uso original de salas de convalecencia, enfermería y corredores Recuperar parcialmente el patio central del claustro Habilitar una sala de convalecencia adicional

Para alcanzar dichos objetivos se definieron los siguientes criterios y acciones:

Criterios de conservación:

Prospección muraria en posibles muros contemporáneos

Protección de pisos antiguos tipo alfombra (mediados del siglo XX) en las salas de convalecientes y enfermerías

Criterios de Restauración:

Liberación de muro contemporáneo Liberación de construcciones informales Habilitación de paso seguro de camillas entre claustro de convalecientes y los nuevos quirófanos Rehabilitación de cuatro salas para convalecientes

Rehabilitación de dos salas para enfermería Readecuación de la bodega de insumos perecederos Ampliación de los servicios sanitarios existentes

Informe Técnico Unidad Quirúrgica Página No - 36

Acciones puntuales en las salas para convalecientes, enfermería y corredores:

Limpieza y desinfección de pisos de cemento líquido sencillos y decorados

Sustitución de accesorios, cableado y unidades eléctricas (iluminación y fuerza)

Mantenimiento de puertas y ventanas de madera existentes (incluyendo sustitución de vidrios)

Acciones puntuales en la bodega de insumos perecederos

Liberación de estructura metálica para guardado de fardos de diverso contenido Integración de cielo falso

Integración de piso de granito, similar al existente

Sustitución de unidades de iluminación

Otras acciones

Aplicación de pintura Integración de rampa para camillas Integración de cableado de red Mejoramiento de la jardinización

Es importante reconocer que este proyecto fue ejecutado por personal interno de mantenimiento del Hospital de Obras Sociales del Hermano Pedro, con el apoyo del personal de mantenimiento del Hogar Virgen del Socorro. Es preciso manifestar, como acotación final, que el presente proyecto se puede considerar como un valioso avance y aporte para el Proyecto de Restauración del Claustro Norponiente, el cual se encuentra actualmente en la fase de planificación.

Informe Técnico Unidad Quirúrgica Página No - 37

Una rápida intervención

Es importante de destacar que, contrario a lo que generalmente sucede en los proyectos de intervención en patrimonio, este proyecto logró culminar con éxito en el tiempo requerido, protegiendo en todo momento los elementos históricos tales como los muros de calicanto que conforman las crujías del claustro. Esto incluyó algunos trabajos de restauración no contemplados en el proyecto original, tales como la liberación de azulejos contemporáneos y la reintegración de acabados tradicionales en muros de calicanto

Relación del personal externo de la constructora con el personal interno

Cuando se trata de intervenir en edificios históricos es importante que exista una continuidad entre el personal que realiza la intervención y quienes se quedarán a cargo de las ingentes tareas de mantenimiento y conservación del monumento. En este caso, se logró que el personal interno se involucrara durante el proceso de intervención, aportando su conocimiento sobre el funcionamiento y ubicación de las instalaciones especiales y conociendo, en primera fila, la nueva tecnología que fue integrada a la Unidad de Cirugía “Rodrigo Méndez”. Esto abona a una mejor conservación del monumento

Informe Técnico Unidad Quirúrgica Página No - 38

Buenas relaciones con el CNPAG

Vale la pena destacar que se ha mantenido una estrecha y buena relación con las autoridades locales a cargo de velar por la conservación patrimonial de la Ciudad. Tanto los arquitectos del departamento de Restauración de dicha institución, como personal de la Sección de Registro de la Propiedad Arqueológica, Histórica y Artística, se han acercado al proyecto para garantizar que la intervención se está llevando con altos estándares de calidad como para documentar, en forma oficial, los procedimientos y metodología de esta restauración. En el contexto de los proyectos particulares de restauración arquitectónica en La Antigua Guatemala, esto resulta notable.

Informe Técnico Unidad Quirúrgica Página No - 39

Revalorización del Claustro de la Fuente

Finalmente, como parte de la ampliación y readecuación de los servicios sanitarios para pacientes y sus acompañantes, se procedió a ejecutar las acciones puntuales de conservación que responden a los criterios de conservación que se describen a continuación, las cuales también se constituyen como una apreciada aportación para el Proyecto de Restauración del Claustro Principal de Ingreso o Claustro de la Fuente, que se encuentra actualmente en la fase de planificación

Objetivo General:

Contribuir a la recuperación conceptual de la arquitectura original del Claustro de la Fuente

Objetivos Específicos:

Integrar los corredores norte, oriente y sur con el patio central

Lograr la percepción visual y espacial propia de la arquitectura colonial de la relación corredores-patio central

Criterios de Conservación:

Liberación de elementos contemporáneos Liberación de azulejos contemporáneos Liberación de mobiliario (dioramas, carteles, etc.) adosado a muros y cubierta Limpieza profunda de piso sencillo de cemento líquido

Limpieza profunda y especializada de la fuente original Integración de aplanados tradicionales Sustitución de instalaciones eléctricas (cableado y luminarias)

Remozamiento de elementos de madera (pilares y tendales)

Aplicación de pintura Remozamiento y diseño de jardinización

Informe Técnico Unidad Quirúrgica Página No - 40

A MODO DE CONCLUSIÓN

Se puede concluir luego de lo expuesto, que los objetivos propuestos en este Proyecto de Ampliación de la Unidad de Cirugía “Rodrigo Méndez”. Se ha logrado poner en servicio a la comunidad antigüeña un total de 8 modernos quirófanos, equipados con la mejor y más actualizada tecnología de la ciencia médica, manteniendo las características histórico patrimoniales del Hospital más antiguo –en funcionamiento- de Centroamérica.

Finalmente, se ha hecho un aporte significativo para la historia de la arquitectura de la salud en Guatemala, mediante la investigación que sustenta la toma de decisiones en materia de conservación de monumentos y que contribuye a la valoración de este monumento como parte del Patrimonio Cultural de la Humanidad reconocido en La Antigua Guatemala

Informe Técnico Unidad Quirúrgica Página No - 41
INVERSIÓN FINANCIERA

El costo total de los trabajos se consigna de forma consolidada en este cuadro. La Dirección Financiera de las Obras Sociales del Santo Hermano Pedro quien fue la unidad ejecutora de este proyecto, cuenta con todos los detalles de integración que han sido auditados debidamente.

Acabados en Muros

Trabajos especiales

Estructuras metálicas Complementos Varios Instalaciones Hidrosanitarias Levantados

Materiales

Mobiliario y Equipo Puertas Instalaciones Eléctricas Instalaciones Mecánicas Comunicaciones Ventanas

Acabados Generales

Sub Total

Área de Convalecientes

Equipamiento

GRAN TOTAL

Q733,723.78

Q820,133.26

Q183,935.89

Q382,733.67

Q220,809.99

Q96,619.94

Q1,936,551.62

Q233,119.33 Q292,680.03

Q95,036.82

Q1,122,151.48

Q303,033.18 Q72,966.26

Q410,409.50

Q6,903,904.75

Q511,473.00

Q15,128,940.00

Q22,544,317.75

INVERSIÓN FINANCIERA7 Informe Técnico Unidad Quirúrgica Página No - 43
DONACIONES

La dimensión de la obra a emprender nos motivó a gestionar en diferentes empresas guatemaltecas donaciones en productos y servicios necesarios en la construcción, todo en la ilusión de que esos aportes podrían apoyarnos en la viabilidad del proyecto.

La respuesta de todas fue excepcional y fueron importantes en la culminación de la construcción. A todas les quedamos profundamente agradecidos.

Página No - 45

8.2

Pedimos y generosamente nos dieron. Con lo recibido, pudimos realizar las inversiones necesarias para construir esta extraordinaria infraestructura hospitalaria que tendrá repercusiones muy grandes en la salud de la gente pobre y enferma de Guatemala. Todos los recursos fueron ejecutados ordenadamente desde las Obras Sociales.

Claudia y Alvaro Castillo Isabel Molina Botran

Ramón Campollo Claudia Castillo y Roberto Cohen Carlos Paiz

Ernesto y Marta Regina Fernández- Holman Judith de Lammens Jacqueline Riera de Paiz Fernando Rivera Mayra Gabriel

Maria del Carmen González de Batres Harold Townson Claudia Rodríguez de Castillo Mariacristina VonFeldt

Steven Elliott and Kim Risedorph Michael and Robin Richardson Williard Campbell MD Joe and Vera Wiatt Xm Ewing

Will Chamberlain MD Mary and Michael Pesko Natalie Augustini Christopher Rumery MD

In Honor of Fr. Dan Morales Madeline Bonnici Sarah Betancourt Christine LaVoie Marc Longo MD Tony And Bertha Mendieta Operation Walk Los Angeles Melvin and Sue Pankey Tony, Joanne, Mel, and Melinda (SURGICORPS) Felipe and Nancy Castillo de Sanchez Patrick Riley Sisters of the Precious Blood Fe en Práctica Dulces Típicos María Gordillo Andres Kuestermann - Porta Hotels

Familias de Esperanza

ONG Familia con sentido misión vida Associazione Opere Sociali Santo Hermano Pedro Common Hope Maryrene Jonamas de Malouf Familia Penados

Agrosemillas Rodolfo Estrada Estevez Tamalyn Gutierrez Neal Jackson Anónima

Julio César Toledo Luisa Wheeler Ana de Mendez Micaela Morales Ivonne Anzueto Orson Lou Elizabeth Anne Bell Gustavo Adolfo Estrada Mirna Estevez Teresa Cuellar Chiovatero Suzanne Brichaux Rosa Berta Ramirez de Cordero Dereck Steele Juan Alfonso Fernández Ana Lucia Midence

Julio Paredes

Maria Elena Ovalle Luis Alberto Asturias José Quiroa Irene Fernández Jimmy Alexander Mattrel López Ana Lucrecia Tellez de García Hector Anzueto

Vay Smithers

Elisa de Díaz Banquetes Greicy Ninfa Yolanda Estévez López de Fernández

BENEFACTORES Informe Técnico Unidad Quirúrgica Página No - 46

El aporte de la Heineman Robiseck Foundation fue posible gracias a las gestiones del Lic. Fernando Paiz y la Fundación de la familia Paiz, Altrium Health, Chiquita Banana y especialmente del Dr. Steve Robicsek a quienes agradecemos muy especialmente.

1288 HD Camera

X8000 Light Source and Fiber Optic Cable

Pneumo Sure XL High Flow Insufflator and sample tube set (Stryker 0620-040-660)

Vision Elect HD Monitor

1288 HD Camera Head

Video Tower Cart

Aespire S/5 Anesthesia Machine

Angular Instrument Table, 60" x 34" H x15" D

"Instrument Table

Dimensions: 36"" x 20"" x34"""

Mayo Stands, Stainless Angular Instrument Table, 60" x 34" H x15" D

"Instrument Table

Dimensions: 36"" x 20"" x34"""

Air Lift Exam Stool

Angular Instrument Table, 60" x 34" H x15" D

"Instrument Table

Dimensions: 48"" x24"" x 35.5"""

IV Poles

Flexmatic Scrub Station

Flexmatic Scrub Sink

Aluminum Tempo Narrow 33 Procedure Cart

24-Gallon Plastic Step On Trashcan

8-Gallon Step On Trashcan

Procedure Cart

Starsys Cart

Procedure Carts

Metal Cabinets Double Glass Door

Metal Cabinet, Single Glass Door Metal Cabinet, Double Glass Door Metal Cabinet, Desk/Drawer Electrical Surgical Unit Cart Electrical Surgical Unit Cart

Tec 7 Sevoflurane Bottle Fill Adapter

Tec 7 Sevoflurane Bottle Fill Adapter

Tec 7 Sevoflurane Bottle Fill Adapter

Yankauer Suction Kit, Tubing Filters

Filters Assembly Canisters

PM65G Aspirator

F15T8/D Light Bulbs (X-Ray View Boxes)

Vital Signs Limb-O Single Limb Anesthesia Breathing Circuit

Pediatric Anesthesia Breathing Circuits

Elite 6500 Table, Remote, Arm Boards, and Mattress Pads

Elite 6500 Table, Remote and Mattress Pads

Elite 6500 Table, Remote, Arm Boards, and Mattress Pads

M11 Autoclave

M11 Autoclave

M11 Autoclave

Sklar Soak (1 Gallon)

OR Table Pads with Rail Straps, Disposable X-Ray View Box Extra Replacement Table Parts/Boards

Informe Técnico Unidad Quirúrgica Página No - 47 EQUIPO8.3

Agradecemos al Dr. Robert Mcklveen, coordinador de Health for Humanity por su solidaridad con las Obras Sociales y las donaciones de equipo para nuestros quirófanos.

Lámpara Berchtold Chromophare

Double Light D 650 plues

Lumenis Versa Plus

Especial agradecimiento a FUNDARVEJA por sus gestiones para esta donación tan importante

Equipo médico

Material quirúrgico Camas hospitalarias

Sillas de ruedas

Informe Técnico Unidad Quirúrgica Página No - 48

JUNTA DIRECTIVA AOSSHP

Presidente - Fray José Alberto González Fuentes OFM

Vicepresidente - Fray Mario Alfonso Hernández Romero OFM

Secretario - Luis Enrique González Villatorio

Tesorero - Julio César Figueroa Ravanales (RIP)

Vocal I - Fray Samuel Juan Andres OFM

Vocal II - Linda Lee McCarty

Vocal III - Michael Edward Ascoli Girón

Jefatura de Cirugía - Dra. Julissa Pineda Director Médico del Hospital - Dr. Nelson Mayen

JUNTA DIRECTIVA AAPOS

Presidenta y RL - Isabel Molina Botran

Vicepresidente y RL - Michael Ascoli

Secretaria - María del Carmen González de Batres

Tesorera - Melanie Ascoli Montano

Vocal I - Jacqueline Riera de Paiz

Vocal II - Lucia Chiu De La Fuente

Vocal III - Ernesto Ruiz Sinibaldi

Vocal IV - Isabel Batres de Castillo

Vocal V - Jorge Carlos Girón Castejón

Vocal VI - Carlos Enrique Urruela Novella

Vocal VII - Álvaro Díaz

Consejero - Fray Jesús Gómez

Consejero - Fray José González

OBRAS SOCIALES DEL SANTO HERMANO PEDRO AMIGOS PRO OBRAS SOCIALES hermanopedrogt org @hermanopedrogt 7931 2100 6° calle Oriente #20 Antigua Guatemala 2508 8423 8° avenida 3-90 zona 14, Edificio la Rambla Torre2 Nivel 3, oficina 2-2 amigosproobras org @amigosproobras

Turn static files into dynamic content formats.

Create a flipbook
Issuu converts static files into: digital portfolios, online yearbooks, online catalogs, digital photo albums and more. Sign up and create your flipbook.