Portfolio - Anthony Mancia

Page 1

Anthony Mancia 4th Year | Fay Jones School of Architecture and Design aamancia@uark.edu 479.544.1530

Table of Contents

Library

Greenwood Intersection, Greenwood Arkansas, 4th year.

Office

Bizmuith 83, Los Angeles California, 3rd Year.

Housing Changes Development

Block Parti, Los Angeles California, 3rd Year.

Left Over Space, Fayetteville Arkansas, 4th year.

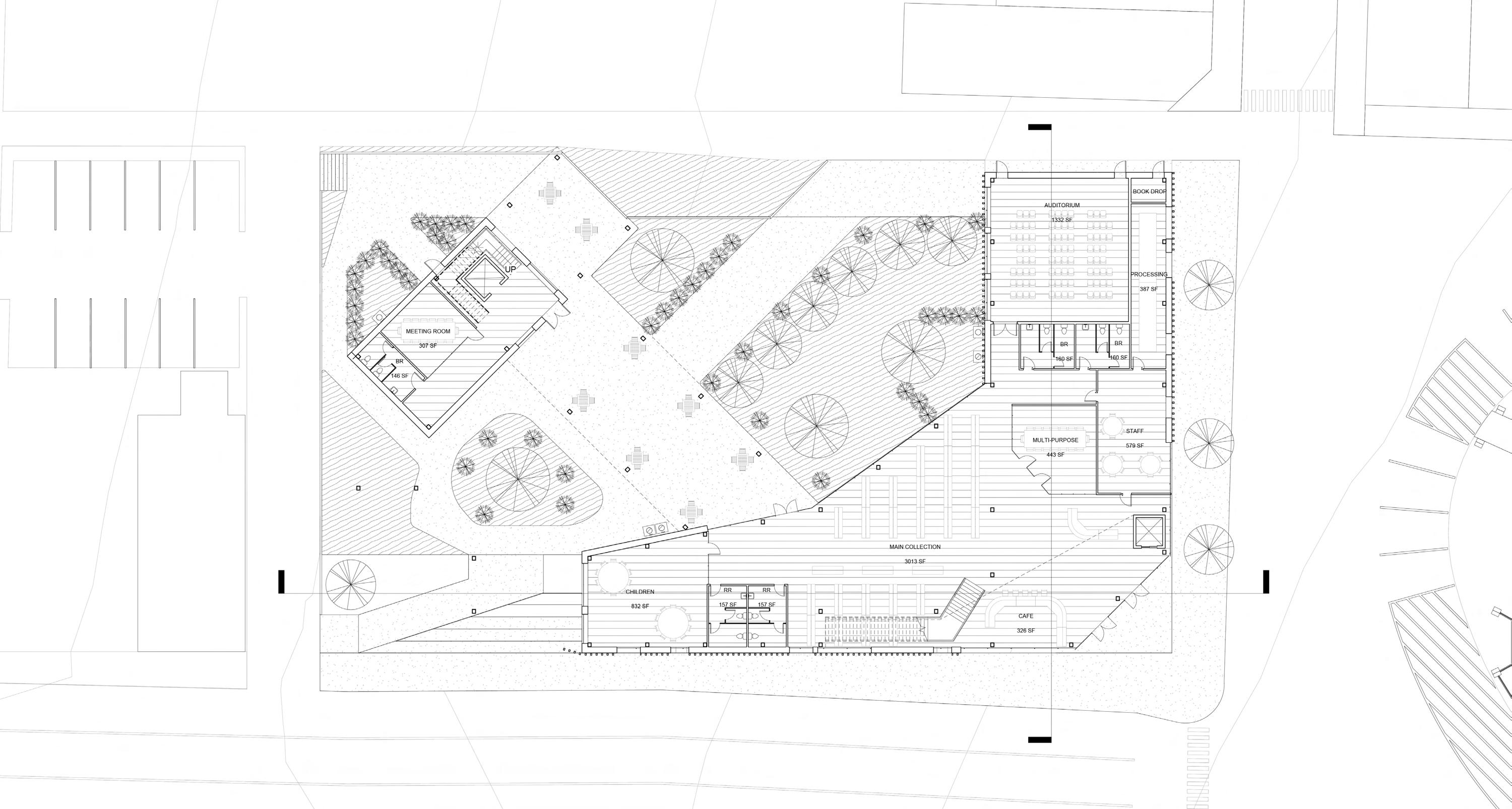
Greenwood Intersection

Library 3
Library 4

To effectively address rainwater runoff concerns, the roof was designed with a slope, promoting efficient water drainage and management. This crucial aspect of the project ensures that the building remains environmentally friendly and reduces potential water-related issues. Taking note of the adjacent low-rise buildings, the team adjusted the residential sections of the structure to align with the commercial sections, ensuring a seamless integration with the surrounding architecture. Additionally, the corner entry was raised to the same height as the town’s iconic clock tower, further enhancing the building’s visual impact and creating a sense of cohesion within the neighborhood.

The design concept for this project was significantly shaped by insights gathered during a site visit. The team observed that the location was situated along a bustling road, which produced substantial noise. To mitigate this, they strategically elevated the building at the corner to create a barrier against the noise. In order to harmonize with the urban landscape, the building’s design was extended towards the street, resulting in a well-integrated and functional structure that responds to its context.

GREENWOOD INTERSECTION

ARCH 4016

Library 5
Library 6
Library 7
Library 8
Library 9
Library 10
Library 11

GUTTER

STANDING SEAM STEEL ROOFING

RIGID INSULATION

CLT DECKING

GLULAM BEAM

VRF SYSTEM

SUSPENDED LIGHTING

STEEL PLATE

Timber Boarding

VENTILATED AIR SPACE

RIGID INSULATION

FRAMING

WATERPROOFING MEMBRANE SUBSTRUCTURE

Metal Fastenings

1/2" A490 Bolt

ALUMINUM LOUVERS

STEEL BOLT

STEEL PLATE

Storefront Sill At Finish

1/4" Laminated Glass

CLT WALL PANEL WINDOW MULLION

10" X 10" GLULAM COLUMN

5-PLY CLT DECKING

CONCRETE FOUDATION

RIGID INSULATION

CONCRETE FOOOTING

6" PVC Pipe

AIR OPENING

1" Hooked Anchor Bolt

1/2" 1'-0" 1 Wall Section 1 1/2" 1'-0" 2 Wall Section Callout 2 1 1/2" 1'-0" 3 Wall Section Callout 1 Library 12
Library 13
Library 14

Bizmuith 83

This office was derived with the idea of creating a multi-purpose building set within a hill that has 75’ of elevation gain. The building terraces into the hill creating spaces for different functions. While creating terraces on a 20’ by 20’ gridded system, the form of the building was shaped to provide light to the back of the site as well as the spaces within. These multi-purpose terraces generate positive usage for the environment, water on the site, and public spaces for the community to enjoy. Buizmuth 83 has two main points of entry one located on hill street that seeks to provide a retail connection with grand central market and the metro station by establishing a plaza. The second point of entry in on 4th street and serves the offices spaces. The facade consists of a system of vertical fins that are rotated to negate the effects of solar glare. The louvers are made from brightly color terracotta to elude to the many 1920s building located downtown.

Office 15
Office 16
Office 17
Office 18
Office 19
Office 20

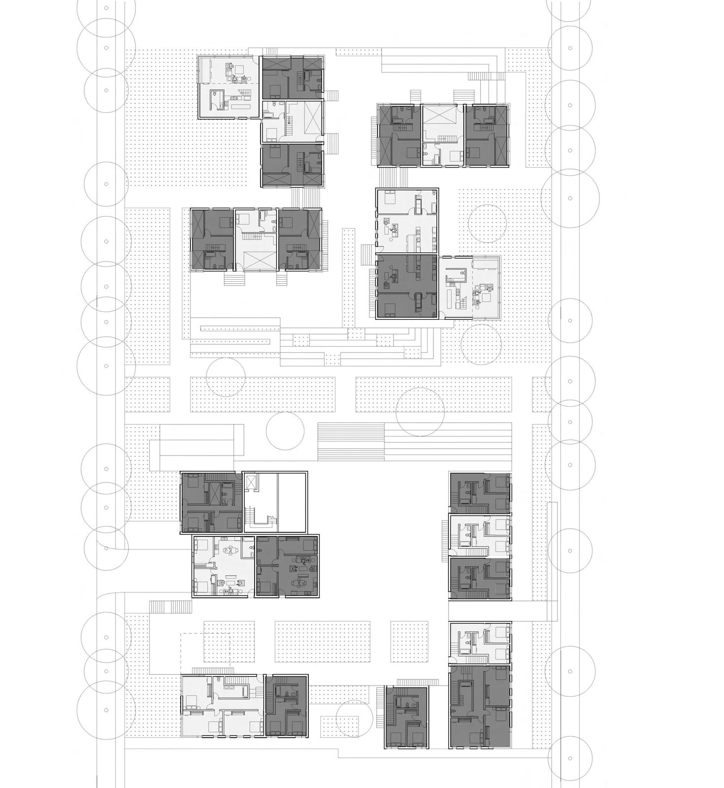
Block Parti

A housing development designed to bring together two diverse communities: live/work and intergenerational families. The cluster is divided into two social hubs connected by a linear courtyard, providing space for socialization and circulation. To accommodate parking, the intergenerational subunit’s central courtyard is raised to create an underground garage, providing a private raised courtyard for families. The live/ work subunit also raises its central courtyard, extending the landscape into the site and reducing the building’s footprint. The development’s massing is based on an original Mar Vista h ome, stacked and divided into multiple dwellings. This organization allows the project to be replicated in any part of the neighborhood. Overall, the design integrates the development into the Mar Vista neighborhood while providing a useful amenity for residents and creating private and public spaces for socialization and relaxation.

Housing 21
Housing 22
Housing 23
Housing 24
Housing 25
Housing 26
Housing 27
28

Left Over Space

The Adaptive Ramp Project explores the integration of habitable spaces within a dynamic environment by utilizing an innovative, wooden ramp structure. This multi-level building features a continuous, spiraling ramp that adapts to its surroundings by accommodating fluctuating conditions.

The design optimizes the often-neglected spaces beneath the ramps, transforming them into functional floors. These adaptable spaces foster a sense of resilience and adaptability, encouraging inhabitants to embrace the constant flux of their environment. Crafted from sustainable wood materials, the Adaptive Ramp Project demonstrates a unique architectural approach, merging form, function, and environmental responsiveness in an elegant, organic structure.

Changes 29
Changes 30 Change 1 Change 3 Change 2
Changes 31 Change 4
Changes 32

Turn static files into dynamic content formats.

Create a flipbook
Issuu converts static files into: digital portfolios, online yearbooks, online catalogs, digital photo albums and more. Sign up and create your flipbook.