
Nombre: Stefani Katerin Arana Guevara
Nacimiento: 16/08/2002
Edad: 22 años
Nacionalidad: Peruana
Último ciclo cursado: 8vo ciclo
![]()

Nombre: Stefani Katerin Arana Guevara
Nacimiento: 16/08/2002
Edad: 22 años
Nacionalidad: Peruana
Último ciclo cursado: 8vo ciclo
Estudiante de noveno ciclo de Arquitectura y Urbanismo de PUCP




C. Martín Oviedo 319 Lima - Perú a20192266@pucp.edu.pe
+51 943 890 401
Habilidades

Photoshop Intermedio

Rhino Básico

Illustrator Avanzado

Indesing Intermedio

Autocad Avanzado

Sketchup Intermedio

V-Ray Intermedio

Archicad
Básico

Enscape Avanzado

Revit Avanzado

Resumen
Soy una arquitecta extrovertida, organizada y decidida, con una fuerte capacidad de liderazgo y trabajo en equipo. Me destaco por mi habilidad para gestionar proyectos de manera eficiente y creativa, siempre buscando soluciones. Mi compromiso y organización asegura que mis contribuciones no solo sean valiosas para la empresa, sino también responsables y alineadas con los objetivos contemporáneos de desarrollo.
Formación Académica
2014 - 2018
Secundaria
Colegio San Vicente de Ica
2018 - actualidad
Universidad
Pontificia Universidad Católica del Perú (Lima)
Mayo 2022 - Agosto 2024
Instituciones
Mayo 2022 - Grid Studio (Revit desde 0 + Photoshop + Lumion 11)
Febrero 2023 - Grid Studio (Bim User + Photochop + Lumion 12)
Febrero 2024 - Trazzo Visual (Workshop 3 de Photoshop + Diagramación de paneles)
Julio 2024 - Trazzo Visual (Workshop 2: Archicad 26 + Twinmotion)
2020-actualidad - Idiomas Católica (Inglés Intermedio 11)
Workshop Marzo 2023
Limapolis 2023: Derecho a la vivienda
Durante el workshop “Limapolis 2023”, abordé la planificación urbana sostenible y la innovación en el desarrollo de ciudades. Participé activamente en discusiones y colaboré en soluciones creativas para desafíos urbanos, mejorando mis habilidades en trabajo en equipo y liderazgo. Esta experiencia reforzó mi compromiso con la sostenibilidad y amplió mi red profesional en el desarrollo urbano.
Enero - Febrero 2024
Seminario Construcción 1 en 1: Local Comunal en Puente Piedra
El seminario se enfoco en el diseño y la construcción de un local comunal en la comunidad de Los Jazmines, en colaboración con la ONG Mano a Mano. Participé activamente en todas las fases del proyecto, combinando conocimientos técnicos para garantizar seguridad estructural y confort interior. Esta experiencia práctica me permitió trabajar con materiales, mejorar mis habilidades de construcción y diseño, y colaborar estrechamente con la comunidad.
Marzo 2024
Limapolis 2024: Limapolis 2124 - Futuro de la ciudad popular
Durante el workshop “Limapolis 2024: Futuros de la Ciudad Popular”, exploré la evolución urbana y necesidades comunitarias. Participé en discusiones y colaboré en soluciones para desafíos urbanos emergentes, mejorando habilidades de trabajo en equipo y liderazgo. Esta experiencia reforzó mi compromiso con el desarrollo urbano inclusivo y expandió mi red profesional.
Idiomas




Arquitectura de los metropolitanossistemas
Flores + Miranda + Torero
E1. Los sistemas urbanos E2. Programas y propuestas E3. El proyecto urbano
E4. Proyecto Interescalar - Metropolitano E5. Proyecto Interescalar - Barrial E6. Panel Parque Museo
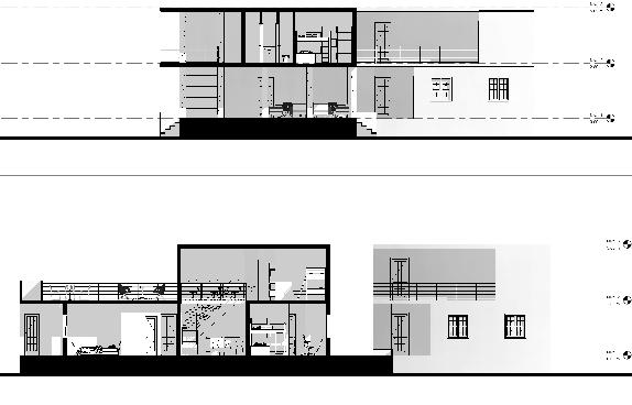
El crecimiento de Lima ha generado procesos de conurbación que resultaron en una ciudad fragmentada con servicios desiguales, lo que dificulta la cohesión urbana. Frente a esta realidad, el proyecto propone una visión de reestructuración que acompañe a los sistemas de transporte y servicios existentes, enfocándose en la implementación de arquitectura de usos mixtos. Esta estrategia busca servir tanto a las escalas locales como metropolitanas, integrando los barrios a una red más amplia y construyendo una ciudad mejor articulada y equitativa. Así, se promueve la creación de intervenciones urbanas complejas que potencien la conexión y homogeneidad de la ciudad.




En el contexto inmediato (barrial), se identifican características como la morfología urbana, los usos del suelo, la calidad de los espacios públicos y la dinámica social, lo que permite evaluar las necesidades y fortalezas específicas de la comunidad local. En el contexto lejano (metropolitano), se examina la integración del sistema urbano dentro de la ciudad en su conjunto, evaluando su accesibilidad, la distribución de recursos y su papel en la red urbana más amplia.







Para un proyecto arquitectónico orientado al desarrollo de un plan integral de transformación del entorno de un sistema urbano, es esencial partir de las oportunidades identificadas en el mapeo multiescalar. A nivel barrial, se pueden proponer intervenciones que mejoren los espacios públicos, promuevan la cohesión social y fortalezcan la identidad comunitaria, como la creación de parques, plazas y equipamientos culturales. Este enfoque integral busca transformar el sistema urbano desde sus bases, aprovechando las oportunidades en cada nivel para crear un entorno más cohesionado.
Estudiante:
Proyecto:
Parque Museo Nicolás Ayllón
20192266
1 : 250 Escala: Jul 16 2024
Estudiante:
Proyecto:
Parque Museo Nicolás Ayllón
Plano:
Nivel +0.00 m
20192266 Código:
1 : 250 Escala: Jul 16 2024 Fecha: Lámina:
A nivel metropolitano, la iniciativa se destaca por su enfoque en la conectividad, integrando el nuevo parque museo con el entorno urbano inmediato y la red de transporte público. Inspirado por la idea de conectar áreas urbanas mediante sistemas de servicios, este parque se convertirá en un nodo de interacción cultural y social. La proximidad a la línea 2 del metro facilita el acceso y fomenta la cohesión entre los barrios circundantes, haciendo que el parque museo no solo sea un destino, sino un punto de encuentro dinámico para residentes y visitantes.








En el sector barrial, el proyecto se propone como una extensión de los espacios públicos previos, incorporando elementos de
intermedios dentro del parque museo promueve la interacción social y cultural, fortaleciendo los lazos comunitarios y proporcionando un entorno accesible y acogedor.

TALLER 5
Detonante urbano
Barclay + Draxl + Santillana
E1. Inmersión
E2. Engranaje tipo ideal
E3. El programa público
E4. El programa de vivienda de estudiantes
E5. vista ilustrativa
El proyecto arquitectónico busca revitalizar el espacio público en las proximidades del campus de la PUCP, integrando múltiples usos en un solo lugar. Mediante la creación de áreas para leer, estudiar, comprar, comer, hacer deporte, socializar y vivir, se propone un espacio dinámico que responda a las necesidades tanto de los estudiantes como de los habitantes del barrio. Al combinar estos usos con opciones de vivienda estudiantil, el proyecto no solo ofrece una solución habitacional, sino que también promueve la interacción social y el uso activo de la ciudad, desdibujando las fronteras entre lo privado y lo público para crear un entorno urbano más inclusivo.
CASA SANTILLANA

FACULTAD DE CIENCIAS SOCIALES PUCP UTEC


Esta etapa incluia visitas tres edificios emblemáticos, seleccionados por sus cualidades no solo formales, sino también conceptuales y funcionales, que puedan inspirar y detonar ideas para el propio diseño.




La arquitectura se centra en mejorar la calidad de vida de las personas que habitarán sus espacios, poniendo al ser humano en el corazón de cada diseño. El enfoque parte de la creación de espacios que, con las proporciones adecuadas de luz y la armonía entre elementos arquitectónicos, proporcionen condiciones óptimas para las funciones específicas que se llevarán a cabo.
En esta unidad, nos enfocaremos en el núcleo de vivienda para estudiantes y su relación con los espacios comunes. Haciendo que estos espacios compartidos se conecten con las unidades habitacionales, asegurando una experiencia de vida integral y cohesionada.




En el proyecto, entendemos la profundidad de comprensión de los usos, las interacciones y relaciones espaciales entre ellos, imaginándonos como futuros usuarios de los espacios que estamos diseñando. A través de este enfoque, buscamos crear un entorno donde los espacios públicos y privados se integren de manera armoniosa, potenciando la calidad de vida de sus ocupantes.

Photoshop + Diagrmación de paneles
Hernández
Con este curso se potencia las habilidades de representación y comunicación visual en proyectos arquitectónicos mediante el aprendizaje de herramientas clave. A través de Photoshop, los participantes aprenderán técnicas de postproducción para mejorar la calidad y el impacto visual de planimetrías y renders. Con Illustrator, se enfoca en la diagramación efectiva de paneles de presentación, organizando la información de manera clara y profesional. Este taller equipará a los arquitectos con las habilidades necesarias para comunicar sus ideas.





Intervenciones en la Periferia
Flores + Rodríguez
E1. Los sistemas urbanos
E2. Programas y propuestas
E3. El proyecto urbano
E4. Proyecto Interescalar - Metropolitano
E5. Proyecto Interescalar - Barrial
E6. Panel Parque Museo
La vinculación entre la universidad y la sociedad para generar conocimiento crítico y propositivo sobre la situación urbana y arquitectónica de comunidades marginadas y vulnerables de la ciudad. Se generan ideas y propuestas de transformación urbana y arquitectónica que son discutidas y aprobadas colectivamente. Estas propuestas se desarrollan en detalle y se presentan como una devolución concreta a la comunidad, buscando mejorar sus condiciones de vida y fomentar la inclusión social a través de soluciones arquitectónicas y urbanísticas viables.






República: Arquitectura, urbanidad y ciudad
Corro + Kahatt + Morelli
E1. Emplazamiento y volumetría
E2. La secuencia narrativa
E3. Tectónica, materialidad y cerramientos
E4. Panel Gobierno Regional
Este proyecto busca aprovechar el potencial de la región de Pasco, y específicamente de Oxapampa, para fomentar un desarrollo económico y social sostenible mediante la diversificación de actividades más allá de la minería. Al enfocar la atención en la riqueza natural, cultural e histórica de Oxapampa, el proyecto plantea convertirla en la nueva capital de la región, con el fin de promover el turismo, la agricultura y la conectividad regional. De este modo, se pretende crear un entorno urbano que integre la identidad cultural de la zona con infraestructuras modernas, mejorando la calidad de vida de sus habitantes y potenciando su rol como núcleo estratégico para conectar la costa y la selva del Perú.
















































































































































































Planta urbana



















































































































0 5 20





En la integración de los edificios estatales con el espacio público urbano, promoviendo una conexión fluida con su entorno inmediato. Propone diseñar edificios que, mediante su disposición y forma, inviten a la apropiación ciudadana y a la interac ción social, evitando estructuras cerradas o aisladas. La volumetría debe ser abierta y accesible, permitiendo que la arqui tectura se extienda hacia las plazas y calles, creando transiciones suaves entre lo público y lo privado, y fortaleciendo así la cohesión social y la seguridad en la ciudad.











El proyecto se origina con la premisa de crear una experiencia inmersiva en un espacio cívico, además de proporcionar a la ciudad áreas de uso colectivo que fomenten actividades sociales. Con el propósito de forjar un lugar memorable, se busca desencadenar una sensación de asombro mediante la plataforma que alberga el espacio cívico, otorgándole un realce y configurando un entorno interior que se integre con el ambiente circundante. Esta sensación se amplifica al generar espacios abiertos entre volúmenes en los niveles superiores.
El núcleo principal del proyecto se concibe como una amplia plaza elevada central, resguardada por voladizos y terrazas que la rodean. La secuencia espacial se inicia con una plaza de bienvenida cultural en el exterior del edificio, estableciendo una conexión entre la galería de exposiciones y su entorno. Luego, se accede a través de gradas hasta la gran plaza central que aglutina diversos flujos, los cuales están sujetos a la espontaneidad. Y al final de este recorrido en el primer nivel, se encuentra una plaza más pública orientada hacia el río, donde se sitúan todos los establecimientos comerciales.
El recorrido invita a experimentar esta transición de escala desde el exterior hacia el interior, ya que los accesos más importantes se realizan a través del espacio memorable. El objetivo es crear un entorno que fomente la interacción social y cultural, incorporando elementos arquitectónicos que faciliten la integración de este espacio con la identidad y la vida cotidiana de la comunidad en Oxapampa.





















































Subgerencia de planeamiento
Subgerencia de acondicionamiento territorial

























Subgerencia de presupuesto








































Subgerencia de programación e inversiones




































El Taller República propone que la arquitectura de los edificios estatales debe ser realmente “pública” para consolidar la vida urbana y combatir la inseguridad ciudadana en las ciudades del Perú. Para ello, es fundamental evitar la segregación del espacio público mediante barreras y, en su lugar, integrar estos edificios al tejido urbano, fomentando espacios cívicos abiertos e inclusivos.







































































Dirección


Recepción y sala de espera


Dirección


















































































































































Subgerencia



Gerencia













































































Maqueta del proyecto

Detalles constructivos de cerramiento
Se plantea el uso de materiales locales y sostenibles que reflejen la identidad cultural del lugar y que, a su vez, sean duraderos y de bajo mantenimiento. Los cerramientos deben ser transparentes y permeables, promoviendo la visibilidad y el contacto visual con el entorno, lo que facilita una relación directa con el espacio urbano. Esta estrategia busca eliminar las barreras físicas y psicológicas entre los edificios públicos y la comunidad, fomentando la participación activa y el sentido de pertenencia.


Isometría constructiva
