Portfolio Arquitectura / Estefany Parra

Page 1

portafolio

ARQUITECTURA

contenido

02 01 PRÁCTICAS
PROFESIONALES TRABAJO DE GRADO
01

Prácticas profesionales

empresa

ACA ENTRABE SAS

Entrabe Arquitectos es un estudio de arquitectura enfocado en diseño Arquitectónico y centra su oficio en el trabajo colaborativo y asociativo.

Dentro del portafolio de proyectos ENTRABE ARQUITECTOS se encuentran proyectos de orden educativo, institucional, residencial y de espacio publico. Esta dinámica de enfrentar diferentes tipos de proyecto permite estar en constante actualización y evolución.

Texto e imágenes tomadas de la página oficial de la empresa.

Universidad de la Sabana Edificio Ad Portas

Pre escolar móvil

Universidad Javeriana Edificio Jorge Hoyos CIEDI Bachillerato
01 AGENDAS SEMANALES SEMANA 1 SEMANA 5
03 02 SEMANA 6 SEMANA 11 SEMANA 12 SEMANA 18

SEMANA 1

La primera semana inició con un ejercicio rápido de modelado y presentación de una remodelación en una casa colonial. Existía un modelo base de la espacialidad, se agregó una oficina que anteriormente no estaba contemplada, y el modelado detallado tuvo en cuenta ventanería, puertas y mobiliario con la finalidad de transmitir la idea del espacio, la materialidad se referenció con imágenes y la información más necesaria eran las medidas generales de los elementos mencionados para transmitir una idea general de la manera de construirlos.

SEMANA 1 - SEMANA 5 10 01

La intervención se realiza con el objetivo de contrastar para resaltar manteniendo un lenguaje moderno que conviva con las características actuales del lugar. La perfilería se elabora con la estrategia de reinterpretación de los arcos de medio punto que posee la vivienda actualmente, proponiendo un contraste por materialidad y percepción del marco que bordea la ventanería y las puertas.

SEMANA 1 - SEMANA 5 11

El mueble de la sala de juntas se conforma de gabinetes cerrados con una elevación del piso hasta la altura de los muros divisorios que mantienen de diferentes medidas permitiendo la conservación de elementos de diferentes tamaños, además posee un cuerpo central que consta de un botellero.

El mueble de la oficina dialoga con la altura del vano de la ventana y permite guardar variedad de elementos. Las ventanas conservan la diagonal actual que se proyecta hasta el mobiliario y establece las curvas como transición de la residencia actual con la propuesta.

SEMANA 1 - SEMANA 5 12

Sofá

Baño

Puerta plegable Mueble sala de juntas

Mueble oficina

SEMANA 1 - SEMANA 5 13

SEMANA 2

Durante una semana completa se realizó el desarrollo de una propuesta de vivienda localizada en Sindamanoy, Chía. La implantación consistía en la localización de un volumen longitudinal paralelo a las curvas de nivel y dos volúmenes que soportaban el primero a través de un juego de niveles desde so proyección perpendicular a la pendiente de la topografía. La toma de decisiones se realizó en conjunto con la elaboración de la maqueta para resolver conflictos espaciales de una manera ágil, eficaz y contundente.

SEMANA 1 - SEMANA 5 14 01
SEMANA 1 - SEMANA 5 15
Maqueta proyectual
SEMANA 1 - SEMANA 5 16
SEMANA 1 - SEMANA 5 17
Renders interiores y exteriores

SEMANA 3

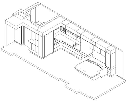
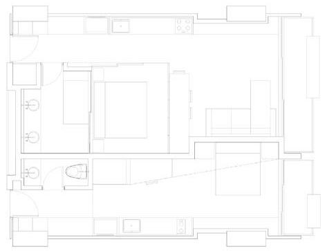
El mobiliario dual se elabora con la finalidad de que el apartamento de 43m2 permita el desarrollo de diferentes actividades desde la flexibilidad que posee el mobiliario que se integra al espacio. El mobiliario se apoya en los muros longitudinales, estableciendo voladizos y retrocesos, y ocupando parcial o totalmente el muro dependiendo de la función que corresponde en cada uno de los momentos. El mobiliario consta de: Mueble tv, cama individualescritorio, mueble de aseo, mueble de ropas, alacena, mesa retráctil, 2 armarios y cama doble - sofá.

SEMANA 1 - SEMANA 5 18 01
SEMANA 1 - SEMANA 5 19

SEMANA 4

Se continúa con el modelado y renderizado del apartamento de 33m2 con los mismos principios de mobiliario dual que permita abarcar varias actividades en el interior de la vivienda.

En segundo lugar se realiza el modelado y renderizado de la remodelación de una cocina que incluye un vínculo con la sala de estar a partir del mobiliario que resuelve problemas funcionales para los clientes como: localización y uso de proyector, tocadiscos, perchero, cristalería y botellero.

SEMANA 1 - SEMANA 5 20 01
SEMANA 1 - SEMANA 5 21

Remodelación sala de estar y cocina

El mueble de la sala se elabora con la materialidad de un mueble existente en madera de roble. Tiene en cuenta diferentes cambios de altura en concordancia con la barra de la cocina, el escritorio y mueble actual que permite la posibilidad de leerlo como un solo espacio.

SEMANA 1 - SEMANA 5 22

El mueble de la cocina tiene en cuanta medidas específicas para los condimentos, cajón para cubiertos, cristalería, canecas de basura, lavadero, estufa y platero actual y permite un dialogo con el mueble existente al costado derecho, además se vincula con el mueble proyectual en la sala.

SEMANA 1 - SEMANA 5 23

SEMANA 5

Existe un diseño de Plan Urbano General en el lote La Bolsa en Girardot, el cual busca generar una relación con el municipio vecino Ricaurte, a partir de la proyección de un puente que vincule la vía proyectada perimetral al Río Bogotá y una vía proyectada en el plan maestro que permita la descongestión del municipio por la alta demanda de turistas. El puente se localiza en la zona dónde el Río Bogotá tiene un ancho menor que en el resto del recorrido, aproximadamente 50m en sección, y se maneja una inclinación topográfica de 2m.

SEMANA 1 - SEMANA 5 24 01
Referente: Rossgraben Bridge

Ricaurte

Río Bogotá

La propuesta proyecta diferentes niveles para el peatón, la bicicleta y los carriles vehiculares con el objetivo de permitir la visual al Río desde cualquier medio de transporte y no obstaculizarse entre sí, permitiendo la relación de borde con un parque proyectual que reguarda la ronda.

Río Bogotá

SEMANA 1 - SEMANA 5 25
Río Bogotá Girardot Ricaurte Girardot Ricaurte Girardot Río Bogotá Río Bogotá
Ricaurte Girardot

Axonometría Plan Urbano General

Ricaurte Girardot

SEMANA 1 - SEMANA 5 26

Ricaurte

Renders exteriores - Puente y espacio público

SEMANA 1 - SEMANA 5 27
Girardot

SEMANA 6

La semana 6 se completa a partir de la sumatoria de diferentes actividades realizadas a lo largo de las semanas anteriores por tiempo extra invertido en la finalización de los diversos proyectos que no se repuso durante las semanas anteriores. Dicho tiempo se distribuye de la siguiente manera: Un día y 2 horas en la entrega de las dos primeras semanas, un día en el modelado del apartamento de Cali de 53m2, un día en el modelado del puente para afianzar conocimientos en el programa y 6 horas invertidas en el levantamiento de la remodelación de la cocina.

SEMANA 6 - SEMANA 11 28 02
SEMANA 6 - SEMANA 11 29

Hubo cambios inesperados con el diseño de la planimetría base relacionada con: la recepción, oficina y sala de juntas localizada en Medellín, y los apartamentos de Cali. Las modificaciones obligaron a realizar cambios en los modelos de la siguiente manera: el mueble del lavamanos y el mueble de la sala de juntas en Medellín, y plantear una nueva lógica de funcionamiento en el apartamento de 43 m2 en Cali que pudiera insertarse en los otros apartamentos. También se realizó la revisión de áreas del Plan Urbano General propuesto en Girardot.

Modificación mobiliario Sala de juntas - Medellín

SEMANA 6 - SEMANA 11 30 02
SEMANA 7

Revisión de áreas Lote La Bolsa - Girardot

Apto 43 m2 - Antiguo

Apto 43 m2 - Nuevo

SEMANA 6 - SEMANA 11 31

SEMANA 8

La actualización de las plantas permitió el aprovechamiento de nichos que surgieron a partir de desfaces en los muros. Conceptualmente se implementa la configuración de marcos alrededor de los nichos, diferenciados a través de la materialidad, trabajando conjuntamente con desniveles en el cielorraso. El balcón comienza a tejerse con el mobiliario, creando continuidades desde la perspectiva del peatón y posibilitando un acercamiento a la propuesta de fachada del edificio en conjunto. El funcionamiento es necesario para la localización de accesorios en el render.

SEMANA 6 - SEMANA 11 32 02
Apartamento 43m2
SEMANA 6 - SEMANA 11 33

SEMANA 9

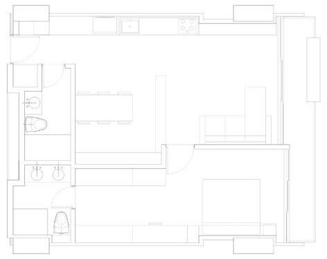
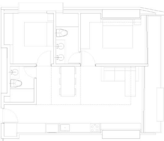
Se implementa el mismo concepto de diseño en los otros apartamentos, teniendo en cuenta las particularidades de cada uno. La modificación de la planta general del conjunto de apartamentos provoca el surgimiento de una segunda tipología de apartamento de 86m2 con dos alcobas y una ventana que permite la visual completa hacia los cerros de Cali, sumada a la panorámica del balcón. Además se realiza el modelo y acotado de la estructura de la remodelación del mesón de la cocina por medio de ángulos metálicos.

SEMANA 6 - SEMANA 11 34 02

Apartamento 33m2

Apartamento 53m2

SEMANA 6 - SEMANA 11 35

Planta apartamento 86m2 Versión 1

SEMANA 6 - SEMANA 11 36

Planta apartamento 86m2 Versión 2

SEMANA 6 - SEMANA 11 37

SEMANA 10

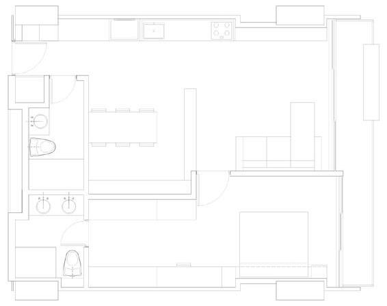
La actualización de las plantas es necesaria a raíz de los cambios que se realizaron a partir de los modelos 3D. La plantas se realizan en Photoshop recreando lo más real posible las texturas de los materiales y otorgando un acercamiento a la organización de mobiliario que se propone, mostrando el mobiliario fijo que va incluido. Además se realiza el modelo y acotado de la carpintería de la remodelación de la cocina tomando las medidas guía iniciales y dividiendo los cajones según las especificaciones de los herrajes.

SEMANA 6 - SEMANA 11 38 02
Carpintería Remodelación

Planta apartamento 86m2 Versión 1

Planta apartamento 53m2 y apartamento 33m2

SEMANA 6 - SEMANA 11 39

SEMANA 11

Esta semana consistió en la finalización de la postproducción de las plantas en Photoshop y la adaptación de unas axonometrías y la modificación de un render para mostrar los muebles incluidos con el apartamento. La reunión con el equipo que apoya la construcción de P-122 la torre de apartamentos que se construirá en Cali, permitió la finalización de toma de decisiones para proceder con el envío de la información necesaria para empezar con el proceso de venta y la adecuación del apartamento modelo para la sala de venta.

SEMANA 6 - SEMANA 11 40 02
Render Taller Origen Modificación de colores
SEMANA 6 - SEMANA 11 41

SEMANA 12

El último entregable consiste en el diseño de las fachadas y las zonas comunes. El modelado de las torres inició con varias versiones de la combinación de los apartamentos de 33m2, 43m2 y 53m2, el apartamento de 86m2 posee una localización especifica en todos los pisos debido a la localización del punto fijo. El concepto de fachada inicia con la implementación de marcos en un ritmo que marca las esquinas opuestas con mayor verticalidad y un ritmo en un nivel de 2:1:2, evitando que se repita en ambos extremos en la misma torre.

SEMANA 12 - SEMANA 18 42 03
Torre 1
Opciones de fachada

Modelo actual Torres, cubierta y punto fijo

SEMANA 12 - SEMANA 18 43

SEMANA 13

La remodelación de la cocina se fue desarrollando con varios incidentes con los contratistas. Cada actividad se contrató por independiente y hubo algunos maestros que no cumplían con el tiempo acordado para el trabajo, ni con la calidad de los resultados esperados. Estas situaciones alargaron el proceso general. Sin embargo, actividades como: la demolición, la construcción del muro, las instalaciones eléctricas y la instalación del nuevo acabado del piso, tuvieron un desarrollo impecable acorde con el tiempo estipulado.

SEMANA 12 - SEMANA 18 44 03
Piso laminado a prueba de agua Resolución de esquinas Guardaescobas 10cm Tabletas de 5,2mm
SEMANA 12 - SEMANA 18 45
10cm Encuentro con el mobiliario Estructura Ángulos metálicos Mesón Porcelanato 2cm
Guardaescobas

SEMANA 14

Durante la semana 14 se decidió participar en la Bienal Iberoamericana 2022 con el proyecto del Edificio Ad Portas ubicado en la Universidad de la Sabana que se encuentra actualmente en construcción. En conjunto con Felipe Uribe se tomaron decisiones de diagramación y se eligieron las fotografías que mejor representaban el proyecto, teniendo en cuenta el avance de la construcción y el objetivo de la bienal, enfocada en espacios habitables, calidad de los materiales y aspectos ambientales que aporten a la sostenibilidad.

Opciones de fachada Torre - Vista al parque

SEMANA 12 - SEMANA 18 46 03
SEMANA 12 - SEMANA 18 47 Diagramación final

SEMANA 15

La composición de la fachada de los Apartamentos en Cali se retomó con la modificación del diseño a partir de decisiones estructurales y de presupuesto que permitieran reducir costos de acuerdo a las posibilidades en la fachada general. La presentación se realizó mostrando las posibilidades desde el apartamento tipo, continuando con las modificaciones en el ritmo tomando como muestra 4 niveles que permitan visualizar las opciones acordes con la parte financiera. Además se modificó el modelo 3D del mobiliario del apartamento de 35m2.

Modificación mobiliario Apto 35m2

SEMANA 12 - SEMANA 18 48 03

Opciones de fachada

Componentes de fachada

Ritmo escogido 1 caja por cada nivel

SEMANA 12 - SEMANA 18 49

Las amenidades localizadas en la cubierta se dividieron en dos zonas: Jacuzzis y BBQ-bar. Los Jacuzzis implementan una vegetación de alto porte para darle privacidad, la zona BBQ usa como referente los quinchos argentinos que involucran la cocción como una actividad primordial en el intercambio social. La vegetación localizada en el borde del edificio es de bajo porte para permitir la visual de los cerros de Cali, y se realiza un juego de luz por medio del movimiento de los módulos localizados en el cielorraso de la pergola.

SEMANA 12 - SEMANA 18 50 03
SEMANA 16
Jacuzzi esquinero Jacuzzi junto al jardín japones
SEMANA 6 - SEMANA 11 51
Quincho Argentino Zona bar Zona DJ

Jardineras de borde

Zona bar

La presentación de las amenidades de cubierta se realizó por medio de una axonometría blanca renderizada que permitía mostrar cada parte de la cubierta por capas separadas. La cubierta está conformada por: zona barrestaurante, zona de jacuzzi, jardineras perimetrales que protegen el borde del edificio y la privacidad en los jacuzzis, sendero principal, 3 jardines con funciones distintas: yoga, zen y zona deportiva, la pérgola y cubierta del punto fijo. Finalmente se actualizaron los renders con los cambios de la semana anterior.

Sendero

Zona jacuzzi

Jardines

SEMANA 12 - SEMANA 18 52 03
SEMANA 17
SEMANA 12 - SEMANA 18 53
bar
Zona
Zona jacuzzi

SEMANA 18

Durante la semana 18 la empresa decidió presentar dos proyectos a premiaciones distintas: El edifico Ad Portas a la bienal colombiana de arquitectura, y la Casa du Vélo al premio Oscar Niemeyer. Las bases para participar eran distintas y los formatos de presentación eran 39 diapositivas para la bienal y 2 pliegos para el premio Oscar Niemeyer, ambos con los documentos adjuntos que consistían en la memoria descriptiva, las imágenes y planos del proyecto en baja resolución, imagen principal en alta resolución, cesión de derechos de los autores y ficha técnica.

Diapositivas muestra Presentación Ad Portas

SEMANA 12 - SEMANA 18 54 03

Diagramación pliegos Casa du Vélo

SEMANA 12 - SEMANA 18 55
02

Trabajo de grado

Diseño desde la identidad territorial: Recuperación de espacios colectivos para la manifestación de la tradición comercial agrícola en Barbosa, Santander

TRABAJO DE GRADO 58
TRABAJO DE GRADO 59
TRABAJO DE GRADO 60
TRABAJO DE GRADO 61
TRABAJO DE GRADO 62

ANEXOS

Libro

https://issuu.com/_estefany.p/docs/trabajo_de_grado_libro_digital

https://www.youtube.com/watch?v=V16jHV74V_g

digital Video recorrido
TRABAJO DE GRADO 63

portafolio

Maryam Estefany Parra Orjuela

Turn static files into dynamic content formats.

Create a flipbook
Issuu converts static files into: digital portfolios, online yearbooks, online catalogs, digital photo albums and more. Sign up and create your flipbook.