
Post War Architecture
-Restoring the cap after the war
TIME: 11.2023-05.2024
SITE: China, Abu Baker AI Seddeg, Gaza, State of Palestine, Dimen Village DESIGNER: Zhang Xinyi-All Design
f the house is to be a real house, the house must be like a small city, and if it is to be a real city, the city must be like a big house . ”


his project is a design for post-war refugee camps, focusing on rapid damage repair. It considers pre-war life, post-war changes, and human needs, ensuring infrastructure fulfillment
while blurring public-private boundaries. Connected by a main route and branch roads, the site links main buildings to smaller ones, achieving a harmonious blend. Using waste and locally sourced materials, modular units are created for rapid construction and camp building.
The project incorporates aspectsof different age groups, transforming urbanism and humanism into architectural forms.
7






One can fish on the seaside boardwalk and pack up the catch and send it to the living quarters.
Place
TIPS:
Cement is produced by recycling broken buildings, collecting,rubble, and using clay for recycling.
TIPS:
Part of the
is sent to the living area, part of the material is sent to the storage area.
throughPassingvehiclespass checkpointstoachievedisinfetion, checksunloading,security functions.andother
TIPS:
People live together in one space to achieve a shared life after the war,and its internal space meets the normal daily life.
Space Processing Plant Reaidential Area Area Under Construction
By exposing the structure, the roof creates a space for cultivation to meet the needs of the later food supply.
After the war, the hospital meet the first aid needs and the later maintenance function of theinjured after the war.








The market crowded with people, the noise of various languages interwoven together, forming a symphony of life. Despite thecrowds, people are still walking around with enthusiasm, feeling the unique charm of the market.
The plantation is like a green wall. As soon as people walked in, people are attracted by the vibrant scene, and the garden isfull of all kinds of vegetables. Market and Pantation

Construction of New Buildings and Industrial Development
There were lots of people working on top of the house and under it. Some of them in the delivery of bricks, saw a handthrowing bricks thrown out of the bricks, the bottom of the receiving, unhurried, their actions are so skiled, with so tacitunderstanding. Some were transporting cement, shoveling it into buckets and sending it up one by one.
From here, the whole factory was a tangled mass of strucures: derrick, arch, trestle, reinforced concrete and stone edifices,some of which seemed to float, Like some huge bubbles, some are neat and symmetrical, with a simple style and thedignified spirit inherent in the building.


High-rise Building Of Commercial Complex
-Twisted skyscraper
TIME: 05.2024-09.2024
SITE: China, Jiangsu Province, Nanjing City, Xinjiekou
DESIGNER: Zhang Xinyi-All Design
T“ he title is completely inappropriate. There is no nude person on the canvas. No matter how carefully you look or from what angle you view it, you can only see a piece of canvas. ”
Situated in the prominent Xinjiekou district of Nanjing City, Jiangsu Province, the People's Republic of China, this project occupies a prestigious location. As a renowned commercial hub within Nanjing, Xinjiekou provides a strategic advantage due to its superior geographical positioning. Consequently, the project has yielded a multifunctional commercial edifice that encompasses retail, leisure, exhibition, and innovative business ventures, catering to the diverse requirements of the populace for employment, shopping, and entertainment.




Xinjiekou is located in Zhongshan East Road, Xuanwu District, Nanjing City, Jiangsu Province. It is a famous commercial center in China and a famous business district with nearly a hundred years of history.
The bronze statue of Mr. Sun Yat-sen is placed in the center of Xinjiekou Road and has witnessed the historical years of Nanjing.
There are many old residential compounds and narrow alleys around Xinjiekou, which have preserved the architectural style of many historical buildings, creating a striking contrast with the surrounding commercial complexes.
Xinjiekou has complete educational facilities, and there are many primary schools, junior high schools and senior high schools to meet the basic needs of society.
INSPIRATION SOURCE
Inspiration source: Nude Descending a Staircase.
In this painting, the painter does not concretely reproduce a nude woman walking down the stairs. Instead, he abstractly presents the afterimages of the entire process of a person walking down the stairs.
CONCEPT EXTRACTION

EXTRACTION OF KEY VOLUMES VOLUME CONNECTION
Approximately five human figures can be seen on the painting. They descend from the upper left corner of the picture and turn away at the lower right corner. Their twisting torsos, buttocks, stretching legs, and swinging arms in motion form a series of trajectories interspersed and overprinted by geometric surfaces.
The human body is transformed into three parts: head, torso, and limbs. The movements of the human body are transformed into the torsion of volumes.
VOLUME STREAMLINE
Explore the overlapping relationship of the head, torso, and limbs of the human body from the top view, and explore the twisting direction and angle of an individual.
SHOULDER POINT GENERATION AND ROTATION
Explore the transformation relationship between the movements of five human bodies and volumes from the front view, and find the connection lines and intersection points of the three parts of the human body.
SELF-CUTTING EPIDERMIS GENERATION




































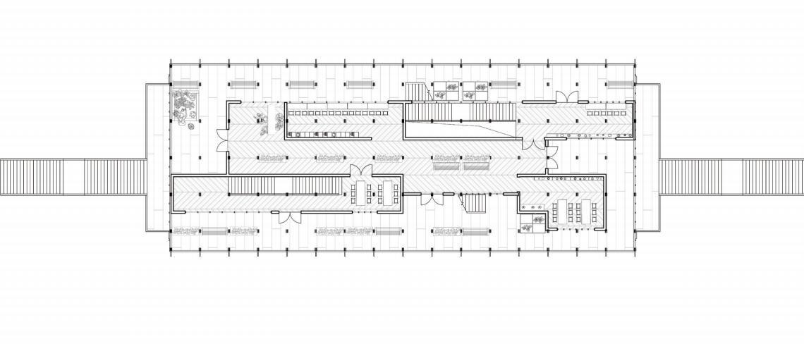
Landscape node area: Provide people with a space for rest and getting close to nature.
Work area.
Garden communication area: The large glass curtain wall and the split-level space provide people with a space for communication and experiencing sunlight.
Leisure office area: The large glass curtain wall and the free furniture arrangement provide people with a flowing work space.
Flowing viewing area: The changeable route planning and irregular walls form a flowing browsing space.
Characteristic exhibition hall: The unique sphere wraps the internally changeable geometric space and provides people with different viewing experiences. Casual exhibition area: With casual exhibition arrangements and free furniture arrangements, it provides people with novel browsing routes.
Work area.
Framed view and opposite view area: The stairs passing through the wall and the internal split-level space form a spatially interlaced place for people's vision, providing the changeable architectural space from different perspectives.
Work area.
Cultural Architecture Design
Zhang Xinyi-All Design
The power rice comes from life,and the power of life c come from rice. ”
The initiative is situated in the Jinci District of Taiyuan City, an area rich in cultural landmarks and educational facilities. It draws upon the legacy of Jinci rice cultivation. Following its establishment, the project has been dedicated to the development of a rice field museum, the advance ment of rice field cultural heritage, the augmentation of interactive learning experiences for local students, and the cultivation of a symbiotic relationship between humanity and nature.















DETAILED DRAWING

Glass
Shared Space Architecture -Interactive Bridge
TIME: 12.2024-2.2025
SITE: China, Guizhou Province, Qiannan Miao and Dong Autonomous Prefecture, Dimen Village DESIGNER: Zhang Xinyi-All Design
The wind and rain bridge is not only a part of the life of the dong people, but also a symbol of dong culture. It embodies the dong people's reverence and compliance with nature, as well as their pursuit and yearning for a better life. ”

























