Lets Connect...
Greetings! I'm Zoe Vincent, currently pursuing a Bachelor of Fine Arts in Interior Design at the University of North Texas My interest in design took root early in my life, inspired by my grandmother, an accomplished interior designer in Dallas. As time progressed, my enthusiasm for the fundamental aspects of design intensified, ultimately guiding my decision to pursue a career in this dynamic field My design philosophy revolves around vibrant color palettes that infuse joy and engagement into spaces through the artful use of patterns and textures.

TABLE OF CONTENTS






I hold the belief that dynamic material choices can cultivate an environment that sparks inspiration and joy, whether in a workspace, a hospitality setting, or beyond
Security Service Headquarters
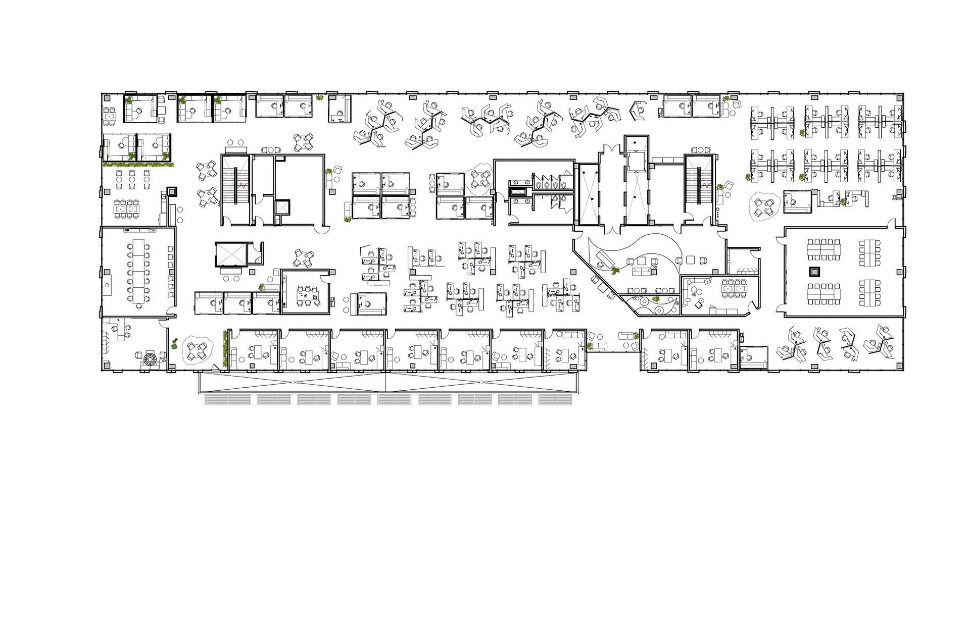
The intention of the Security Service federal credit union office design is to place the corporations’ values at the forefront of each design decision; by implementing an environment of trust, security, and safety through design elements such as private offices, a wellness space, and privacy considerations within workstations; employees can rely on these principles to meet their daily needs to complete tasks
Creating a connection with nature throughout the office design is also another vital element to the wellbeing of employees through biophilic elements such as a living wall in the food service space, leading them to a sense of tranquility while problem solving and working through critical thinking while also incorporating the use of task lighting and low glare lighting options within zones for more relaxed communication


Privacy considerations for confidential information being displayed on computers is implemented throughout spaces, with the highest importance being the financial accounting department. This department is in a more disclosed space but still slightly open for circulation and communication purposes




Warm materials implemented throughout each space developing an interaction with cool tones, marrying the two to create an environment that connects with nature and results in employee wellbeing.
The touches of blue evoke improved thinking, and the stimulation of concentration, all while promoting a calm atmosphere










HG Sply Co.
Personal Contributions: Concept Ideation, Bubble Diagraming, Renderings, Material Selection, Elevations
East Austin is looking for a restaurant and bar catering to young professionals that provides an outlet away from the work atmosphere with the creation of an environment that unites vibrancy and possibility, while drawing inspiration from the principles of prospect and refuge theory. At HG SPLY Co., we aim to offer more than just a meal; we aspire to provide an experience that stimulates the senses
Central to our mission is the concept of personal seating, where each guest can enjoy their meal in a space that feels intimate and personal We understand the importance of comfort and privacy, and our personal seating arrangements allow for a more relaxed and enjoyable dining experience
In addition to our focus on personal seating, we believe in providing a lively atmosphere that encourages social interaction and connection To achieve this, we have implemented vibrant lumineers throughout the space, highlighted through the bar location, creating an ambiance that is both inviting and energizing. The use of red notes is also implemented throughout HG Sply Co. to encourage an increase in appetite













Vode Lighting Office
The envisioned design principles for Vode are crafted to encourage an engaging and communicative culture within the workspace Central to this vision is the emphasis on collaboration, where employees are encouraged to exchange ideas, brainstorm together, and build upon each other’s strengths
One of the key features of the office extension is the dedicated sector designed to showcase Vode’s innovative lighting products. This space serves not only as a showroom but also as a platform for sparking discussions about lighting design, technology, and applications



The office extension is designed to provide an open work environment helpful to spontaneous interactions and exchanges The layout incorporates flexible workspaces, and collaborative zones, where employees can comfortably work, or simply engage in casual conversations This open-plan design encourages fluid communication and collaboration across teams, departments, and hierarchical levels, promoting a sense of unity and shared purpose. Lastly, collaboration is facilitated within conference rooms by integrating flexibility into the furniture with ergonomic features, creating a relaxed environment that encourages users to feel at ease and express themselves more freely







