PORTFOLIO
ARCHITECTE JUNIOR


FORMATIONS
![]()


FORMATIONS
Architecte Diplomé d’Etat


Vaucresson 92420
06 81 20 57 81
Architecture & Arts
MASTER
2022-2024
Ecole Nationale Supérieure d’Architecture - Paris LaVillette DE - Diplôme d’ É tat - Félicitations du jury
ANNÉE DE CÉSURE
2022
Folkuniversitetet - Kalmar, Suède
Diplôme CLES B2 - Perfectionnement Anglais
École du Centre Pompidou - Paris, France
MOOC - Art moderne, contemporain, création numérique
LICENCE
2018-2021
Ecole Nationale Supérieure d’Architecture - Marseille DEEA - Diplôme d’études en architecture
BACCALAURÉAT
2016-2018
Lycée Corneille - La Celle-Saint-Cloud, France
Options - Sciences de l’ingénieur & Art plastique - Mention Bien
ASSISTANTE ARCHITECTE - Agence H2o_architectes
3 mois - 2023 - Paris, France
Phase concours : maquettiste et modélisation 3D (musée & résidence étudiante)
Phase études : plan de site et surfaces de planchers (reconversation & logements)
Phase chantier : Suivi des réunions et coordination des OPR (réhabilitation)
Phase livraison : Suivi et élaboration des plans de vente (logements)
MONITRICE NUM É RIQUE - Atelier Numérique ENSA Paris-LaVillette
2 ans - 2024 - Paris, France
Encadrement des étudiants dans l’utilisation d’outils numériques
Animation d’ateliers sur les logiciels de modélisation et de rendu
ASSISTANTE ARCHITECTE - Agence Palissad Architectures
2 mois - 2021 - Paris, France
Dessin technique : Réalisation de plans et coupes (l’EHPAD & logements)
Dessin paysage urbain : (réhabilitation toiture terrasse & Bureaux)
Architecture d’intérieur : observation du métier (réhabilitation bureaux)
Phase concours : Maquettes et visuels 3D (bureaux et restaurant)
ASSISTANTE CONDUCTEUR CHANTIER - Eiffage Construction
1 mois - 2020 - Paris, France
Suivi des travaux (Gros et Second oeuvre) Réunion de chantier



Portfolio

zoeeoz.architecture@outlook.com
Leadership, Organisation et Communication
RESPONSABLE ÉVÉNEMENTIEL - UNEAP
1 an- 2023 - Paris, France
Organisation des événements «Archi’volontaires»
Coordination de formations inter-écoles
Gestion des partenariats avec des acteurs externes
GRAPHISTE - BDA
2 mois - 2021 - Marseille, France
Création d’illustrations et d’affiches pour divers projets
Conception de logos et de flyers pour promouvoir des événements
Contribution à l’organisation d’événements en art et architecture
Développement Durable, Social & Environnemental
ANIMATRICE - Centre de Loisirs La Farandole
2017 - 2024 - Vaucresson, France
Animation : Encadrement d’Accueil collectif de mineurs
Ateliers création : Imaginer sa ville, concevoir son école et sa classe
ASSISTANTE CHERCHEUR - Linnæus University
6 mois - 2022 - Kalmar, Suède
Sensibilisation environnementale : propreté des plages et des océans
Responsable événementiel & logistique : découverte du milieu marin
Compte-rendu et Réception des travaux (Quartier du Grand Canal - ZAC) Créative Tâches manuelles





d’équipe






MASTER - PROJET FIN D’ETUDE
Localisation :
ZAC Seine Liberté - 92110 Clichy
Programme :
Élaboration d’un programmation avec les habitants
Deux parcs avec une nouvelle trame paysagère
Revalorisation des berges de Seine
Réhabilitation d’un immeuble de bureaux
Groupe scolaire
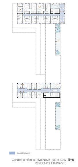
Résidence étudiante
Centre d’accueil d’urgence
Espace culturel et restauration







Plan projeté - Des parcs à la promenade le long des berges de Seine
LIBERTÉ

Échanges - Acteurs du projet


Temporalité du projet - Saison et Journée

Entretiens - Habitants et futurs usagers

Façade existante donnant sur la rue Pierre

Détails - État existant structure

Façade projetée et réhabilitée sur la rue Pierre

















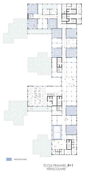
Programme - Un ensemble solidaire, mixte et reversible





Détails structures de la façade et des intérieurs - Salles de classe avec et pour les enfants - Faire école
TOITURE VÉGÉTALISÉE ÉTANCHÉITÉ
FAUX PLAFOND
BOIS PANNEAU
CONTRE PLAQUÉ
OSSATURE BOIS
BLOC TERRE CRUE
ISOLATION
CHAPE
PARQUET BOIS/ISOLANT
SOUBASSEMENT BÉTON
DALLE BÉTON
DRAINAGE
VIDE SANITAIRE


Perspectives - De l’infiltration à la création des communs
HABITER LE PERTUIS EN CHARENTE-MARITIME
MASTER - PROJET SEMESTRE 9
Localisation :
Avenue de la Citadelle - 17480 Île d’Oléron
Programme :
Prévisualisation 2025 / 2050 / 2100
Réaménagement des nouvelles îles
École « les pieds dans l’eau »
Parc inondable
Transformation du port






Charente-Maritime 2100 - Redéfinition et émergence des insularités par le nouveau trait de côte


d’Antioche - Un territoire qui se fragmente en un archipel d’îles


Plan Existant - Un paysage portuaire entre patrimoine et ostréiculture

Plan urbain - Une école les pieds dans l’eau et un nouveau port


Coupe - État actuel submergé 2025 - Île Château d’Oléron
JARDIN INONDABLE ÉCOLE



L’Archipel d’antioche - Transformation d’un territoire plat par la submersion marine


NOUVEAU PORT
Plan Projeté - La zone innondable comme opportunité pédagogique

Coupe - État projeté submergé 2025 - Île Château d’Oléron

FRAGMENTATION ET CONNEXION DES ESPACES PUBLICS
LICENCE - PROJET SEMESTRE 4
Localisation :
Parc du Palais Longchamps - 13004 Marseille
Programme :
Équipements publics et culturels
Logements et espaces pour chercheurs
Bibliothèque et auditorium
Espaces administratifs et ateliers
Revalorisation du parc et restauration




Sol existant du parc Béton lisse - Terasse Béton désactivé Arbres remarquables Prairie
Plan paysager - Organisation des sols projetés



Plan RDC - Organisation des fonctions des espaces projetés
Maquette numérique - Perspective projetée des modules autour de l’aqueduc dans le parc

Façade - Modules longeant l’aqueduc, proposant des circulations extérieures

Coupe - Circulations extérieures à travers le parc et souterraines reliant tous les modules

Façade - Modules intégrés à la topographie du parc et en harmonie avec l’aqueduc


MASTER - PROJET SEMESTRE 8
Localisation :
34 Avenue Edouard Vaillant - 93500 Pantin
Programme :
Atelier de maroquinerie
Centre de santé
Habitations
Espace paysager




















Élévation intérieure - Maroquinnerie et Habitations

Vue projetée des ateliers d’artisans et habitations

Élévation sur la rue denis papins - Maroquinnerie et Habitations









LICENCE - PROJET SEMESTRE 5
Localisation :
452 Avenuve de Mazargues - 13008 Marseille
Programme :
12 T3
6 T2
6 T4
Espaces extérieurs mutualisés Espaces partagés
Commerces




Plan RDC - Espaces partagés






Plan logement - Aménagement projeté T3

Répartitions des logements

Stimmung intérieur - Vue projeté T3
MASTER - PROJET SEMESTRE 7
Localisation :
Parc de la Villette, 75019 Paris
Programme :
Création d’une extension de l’école ENSAPLV
Conception d’une structure flottante et navigable
Espaces modulaires : ateliers, réfectoire, exposition
Aménagement du parc, du quai vers le bateau












Vue depuis le quai entre opacité et transparence
RÉHABILITATION D’UNE ANCIENNE FRICHE INDUSTRIELLE FERROVIAIRE
LICENSE - PROJET SEMESTRE 6
Localisation :
191 Boulevard de la Valbarelle - 13011 Marseille
Programme :
Centre d’art et de formation « La Fabrique »
Espaces associatifs et culturels
Création de logements
Équipements sportifs
Passerelle piétonne et cyclable
Espaces paysagers et naturels
Réhabilitation des matériaux d’origine











Plan RDC : Création d’espaces récréatifs à partir des halles ferroviaires réaménagées

Plan R+1 Passerelle créative reliant le centre artistique à la manufacture



RECONVERSION EN MUSÉE DE LA MAISON DE LA PRESSE
AGENCE H20 - PROJET CONCOURS
Localisation :
2 rue du Pont de Lodi - 75006 Paris
Programme :
Transformation d’une école élémentaire
Musée de la Maison de la Presse
Espaces ateliers, formations et extérieurs













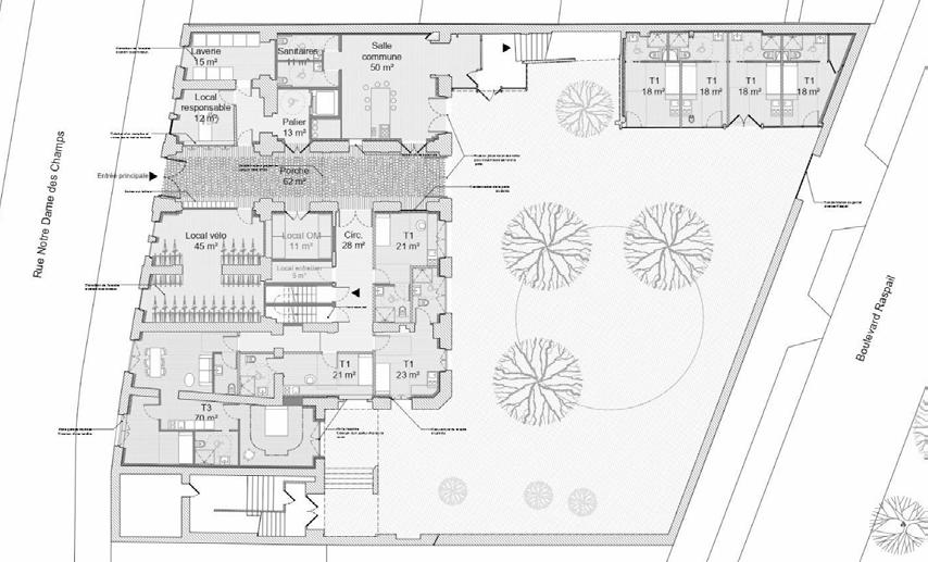
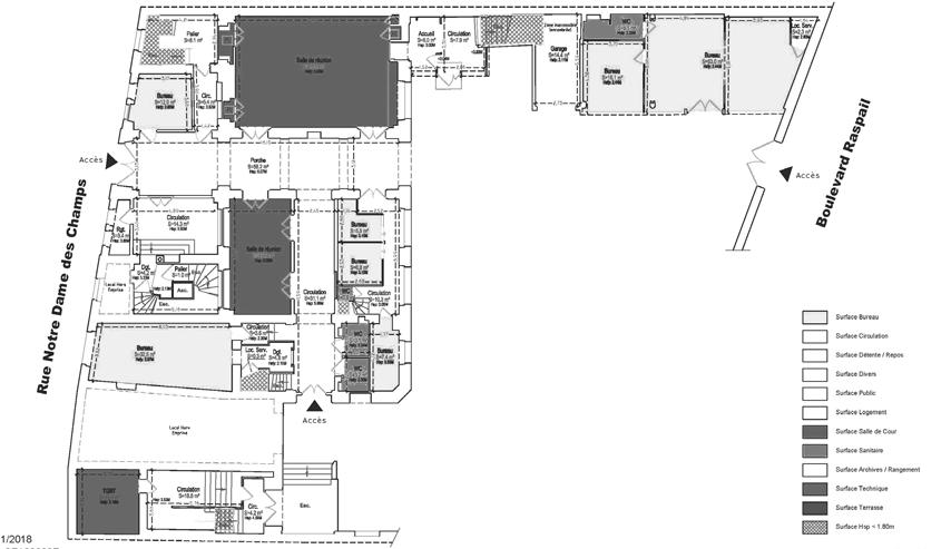
AGENCE H20 - PROJET CONCOURS
Localisation :
96 Bd Raspail - 75006 Paris
Programme :
Transformation de bureaux et laboratoire
Espaces commun et espaces extérieurs
14 logements chercheurs (T2 à T3)
41 logements étudiants (T1)





Plan RDC de l’état projeté

Plan RDC de l’état existant

Vue depuis l’entrée de la résidence étudiante

Vue depuis la cours intérieure de la résidence étudiante
Localisation :
Centre de Loisirs La Farandole
92420 - Vaucresson
Programme : Construire sa ville et son environnement
Découvrir et comprendre son espace Imaginaire et fabrication collective

DESSINE, COUPE, COLLE LA VILLE EST À TOI ! 22.06.2022
fête du centre de loisirla farandole à vaucresson 92420. Viens avec ta créativité, repars avec des étoiles dans les yeux ! Ensemble, construisons une ville où tout devient possible ! Deviens bâtisseur de mondes fantastiques !
(1) Une plongée dans l’imaginaire : «Les enfants exploreront leur imagination pour créer des bâtiments, des rues, des parcs et même des habitants fantastiques. Chaque idée a sa place dans cette ville collective !»
(2) Découverte et apprentissage «En plus de s’amuser, les enfants découvriront les bases de l’urbanisme et les secrets de la conception d’une ville. Une manière ludique de s’interroger sur l’environnement qui nous entoure.»
(3) Un atelier multi-activités «Dessin, découpage, collage, et construction cet atelier mélange les techniques pour laisser libre cours à la créativité.»
(4) : Une ville collaborative «Chaque enfant devient architecte d’une partie de la ville. Ensemble, leurs idées s’assemblent pour donner vie à un monde unique, surprenant et coloré.»






ÉCOLE ÉLÉMENTAIRE
MASTER - PROJET FIN D’ÉTUDE
Localisation :
École Edmée Chandon
92110 - Clichy
Programme :
Construire son école en plan et en coupe
Travailler sur les couleurs et les matières
Re-découvrir les esapces d’une école







PROJET - PERSONNEL ET ASSOCIATIF
Localisation :
Lieux - 92420 Vaucresson
Thèmes : Architecture avec patrimoine et modernité
Urbanisme entre espace urbain et naturel
Exposition et webinaire expérimentals






DU PAVILLON SCANDINAVE

AFFICHE
PROJET - PERSONNEL ET ASSOCIATIF
Localisation :
Lieux - 92420 Vaucresson
Thèmes :
Espaces et objets : design mobilier
Atelier : recontres et formations
Évènements et expositions : habiter







T O P I E U R B A I N E

MASTER - PROJET SEMESTRE 6
Localisation : ENSA - Marseille
Résumé :
«À quoi sert l’utopie ? À cela : elle sert à avancer.»
L’utopie et la dystopie, en tant qu’outils de réflexion, servent à avancer en anticipant l’avenir. À travers le cinéma, elles permettent d’explorer le futur de l’architecture et de l’urbanisme, soulevant des questions sur leur impact sur la conception de la ville réelle et ses possibles évolutions.

MASTER - PROJET SEMESTRE 9
Localisation : ENSA - Paris La Villette
Résumé :
“Une image vaut mille mots.» Les crises planétaires, telles que la montée des eaux, influencent nos imaginaires collectifs et modèlent notre rapport à l’environnement. Ces représentations, bien que fictives, façonnent notre compréhension du monde et orientent nos actions, notamment en matière d’urbanisme et d’architecture face aux risques climatiques.

