Architecture & Urban Landscape Studies Portfolio by Zoe Hunt

Page 1

Zoë Hunt

architecture & urban landscape studies

Architecture & Urban Landscape Studies Completing the Puzzle of Mission Hill............. .03 Layered Learning.................... ..........................................13 Co-Housing Community............... ..............23 Chinatown Branch Library................ ...................33 Additional Works Photography................................... .41 Contents

Completing the Puzzle of Mission Hill

Fall 2022

Northeastern University

Professor Jessy Yang

Program: Urban Design for section of Mission Hill

User: Surrounding Residents

Site: Boston, MA

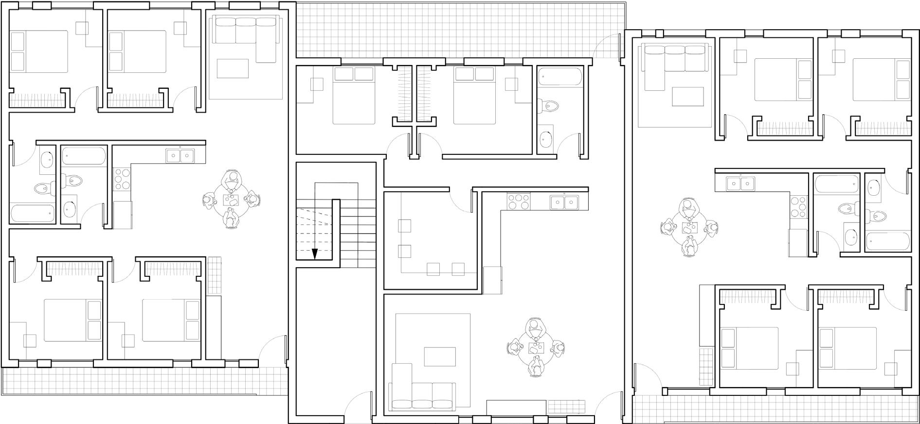
The goal of this project is to create a new urban design for a portion of the Mission Hill Neighborhood, currently used mainly for parking lots by the Wentworth Institute of Technology. By relating the new design to Mission Hill’s historical block structure, the design attempts to add new housing and community programming to the neighborhood in a way that feels like a continuation of what is already there.

03
100 ft 200 ft 300 ft 400 ft
04 Site Analysis: Floating Perimeter Built-Out Surface Parking Open Block Types: Zoë Hunt 200 ft 600 ft 400 ft 800 ft
05
Types: Vehicular Streets Pedestrian Streets Completing the Puzzle of Mission Hill 75 ft 225 ft 150 ft 300 ft
Urban Framework Strategy: Circulation
06 Zoë Hunt A B C PrentissStreet AlbertStreet HoradanWay Residential Lane McGreevyWay Turquoise Way Tremont Street Terrace Street TremontStreet RoundaboutWay SmithStreet Parker Street 50 ft 150 ft 100 ft 200 ft
07 A B C Completing the Puzzle of Mission Hill
Malcolm X Blvd
08 Zoë Hunt Built Out Perimeter Smith Street
09 Completing the Puzzle of Mission Hill Floating Perimeter Built Out Horadan Way Residential Lane 20 ft 60 ft 40 ft 80 ft

Native Trees should be planted within site, and open space should be used as much as possible to allow for planting of bigger species.

Bioswales are used where possible, creating a desirable outdoor environment within the apartment complexes.

Building Height should align to existing buildings.

Inset entrances and balconies should be created for apartments to break down the scale of the building.

Take advantage of windowless facade and use as space for a mural by a local artist.

10 Zoë Hunt

Fenestration should relate to both Mission Main and Alice Taylor Complexes whiles also taking on its own identity.

Large Plazas should be placed around community buildings to encourage public use and allow for events and activities to take place.

Row House stoops should combine entryways for both parcels to allow for more use of the shared front lawn.

Community gardens are placed in ideal location for nearby residents.

11 Completing the Puzzle of Mission Hill

Layered Learning

Spring 2022

IE University, semester abroad

Program: Community & Cultural Center

User: Surrounding Residents

Site: Madrid, Spain

buildings and the Colegio Oficial de Arquitectos de Madrid (COAM), both of which inform the overall design. The building consists of nine cultural, community, and athletic programs, chosen at random.

13
50 ft 100 ft 150 ft 200 ft
15
Layered Learning Proposed Building Mass Typical Courtyard Building
COAM Colegio Oficial de Arquitectos de Madrid Courtyard Buildings Site
16 Zoë Hunt
Urban Farming Height Aligns with Neighborhood Research Lab Workshop Space Workshop Space

Soccer Field: 28 m

Rhythmic Gymnastics: 15 m

Height Aligns with COAM

8.5 m

Urban Farming

Discotheque Exhibition Space

Soccer & Rhythmic Gymnastics

17 Layered Learning 10 ft 20 ft 30 ft 40 ft

Access

Viewing Platform easy access to view indoor soccer games and rhythmic gymnastic routines

21.47 m 20.35 m 6.52 m 14.60 m 13.58 m 20.21 m 6.99 m 28.14 m 5.72 m 27.29 m Squash Court
Bathrooms Workshop Space Exhibition Space +0.0 m -4.7 m -6.0 m 10 ft 20 ft 30 ft 40 ft
Underground
Underground
19 Layered Learning
Urban Farming Outdoor Reading Area Workshop Space +0.0 m +0.0 m 10 ft 20 ft 30 ft 40 ft
Layered Learning 21

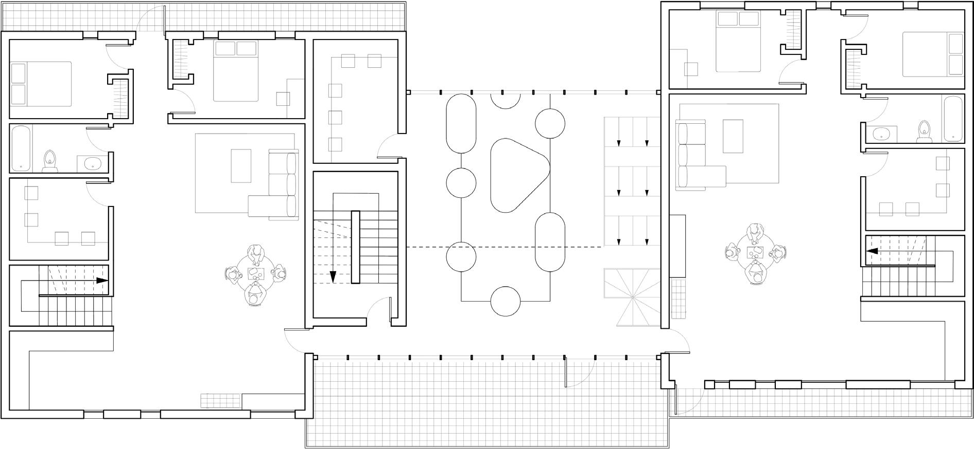
Co-Housing Community

Spring 2021

Northeastern University

Professor Kyle Barker

Northeastern University and surrounding lower-income families. Childcare is often a struggle for both demographics, so the design of each module revolves around a central playroom, accessible by each unit. Through co-housing, the design attempts to make childcare less of a burden for these residents.

23
24 Zoë Hunt
25 Co-Housing Community 3 ft 6 ft 9 ft 12 ft

Play Spaces

26
Mat Play Tables Play Climbing Structure Zoë Hunt
Play
Co-Housing Community 27
28
Zoë Hunt
2nd Floor 1st Floor
29 3rd Floor 4th Floor Co-Housing Community 4 ft 8 ft 12 ft 16 ft
30 Zoë Hunt
Hemenway Street Jarvis Street
Co-Housing Community 31 StStephenStreet 12 ft 24 ft 36 ft 48 ft

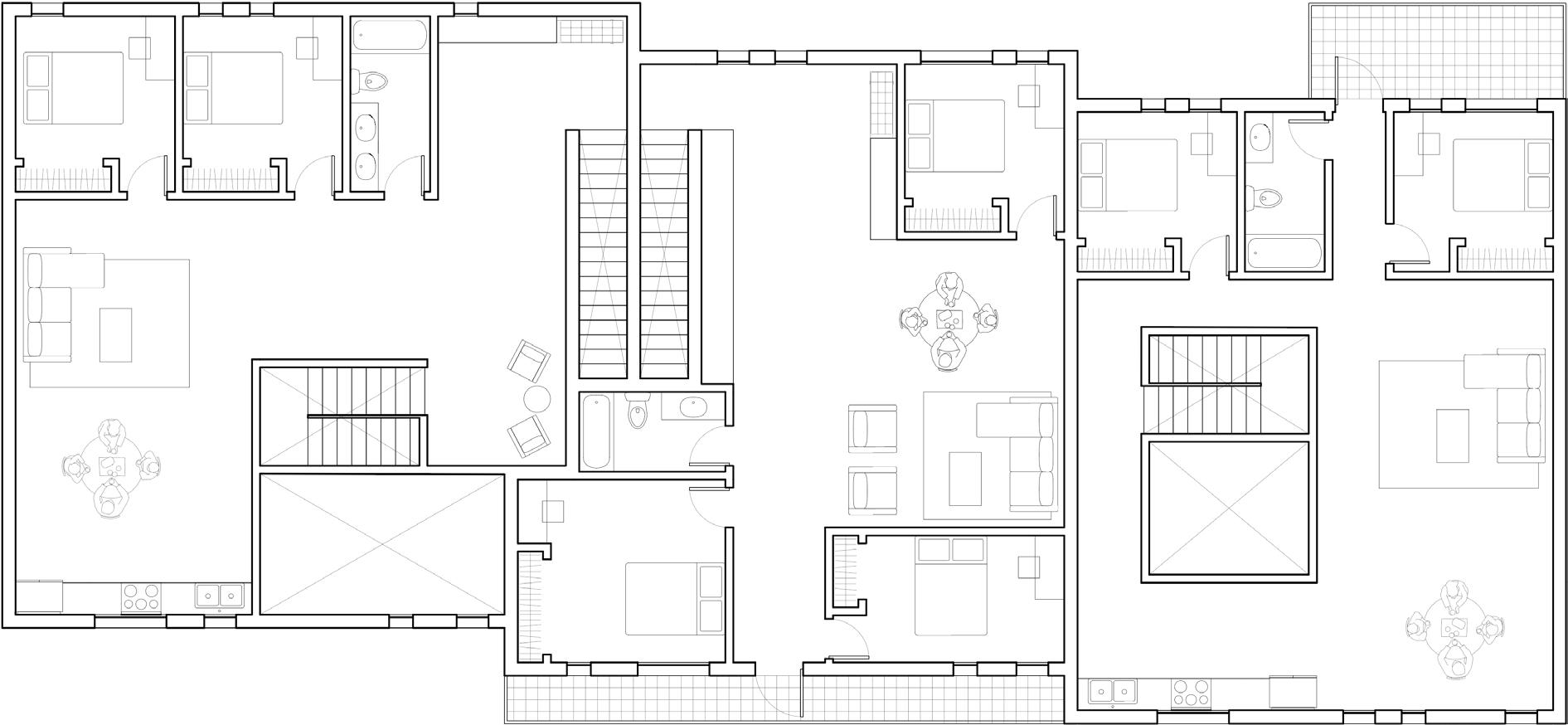
Boston Public Library - Chinatown Branch

Fall 2019 - Fall 2020

Northeastern University

Professors Chana Haouzi & Nicholas Brown

Program: Library & Community Center

User: Chinatown Residents

Site: Boston, MA

The goal of this project is to create a library for Boston’s Chinatown, one of the city’s only neighborhoods without its own permanent branch. Chinatown has been subjected to increasing encroachment, gentrification, and segmenting, especially with the construction of I-93. This library attempts to connect to the rest of the neighborhood through it’s geometry and fenestration.

33
50 ft 100 ft 150 ft 200 ft
34 1874 1938 2023 1874 1938 2023 1890 1917 1960 Hotels Circulation Retail Housing Real Estate Trusts Restaurants Parking Garages Highways Parks Zoë Hunt I-93 I-90

Representation

In 1870, some of the first Chinese immigrants arrived in Boston. In the middle of current-day Chinatown lies Ping On Alley; the first place of settlement for these new immigrants. The strict immigration laws meant there were very few Chinese women or Asians in Boston. This created an environment where they felt disconnected from American life, relying on Ping On Alley for a sense of belonging. Though the alley is an extremely important site for the neighborhood, there is almost no indication of the site’s importance or location.

Encroachment

When the Tufts University and New England Medical Center expanded into Chinatown, its construction eventually took over ⅓ of the entire neighborhood. This essentially cuts the neighborhood in two, separating the heart of Chinatown from some essential neighborhood programs like the Chinese Progressive Association, the Wang YMCA, and the Boston Chinatown Neighborhood Center.

35
BPL - Chinatown Branch
36 Zoë Hunt

“Anchoring” the building to its surrounding context

BPL - Chinatown Branch 37
38 Zoë Hunt 15 ft 30 ft 45 ft 60 ft
39 BPL - Chinatown Branch
Floor - Specialized Programs
Floor - Main Reading Space
Floor - Community Hub Basement - Staff Offices 10 ft 20 ft 30 ft 40 ft
3rd
2nd
1st
41
Photography 2018 - Present
New Haven, CT
42 Zoë Hunt
Monterey Peninsula, CA Monterey Peninsula, CA
Photography 43
Mount Mitchell, NC Monterey Peninsula, CA

Zoë Hunt

Phone: 203. 242. 6884

Email: hunt.z@northeastern.edu

Website: zoehunt.xyz

Turn static files into dynamic content formats.

Create a flipbook
Issuu converts static files into: digital portfolios, online yearbooks, online catalogs, digital photo albums and more. Sign up and create your flipbook.