Zhichao Charles Deng Portfolio

Page 1


PORTFOLIO OF

Selected works 2019-2025

ZHICHAO CHARLES DENG

B.Arch / M. Arch Tsinghua University School of Architecture

M.Arch II Harvard University Graduate School of Design

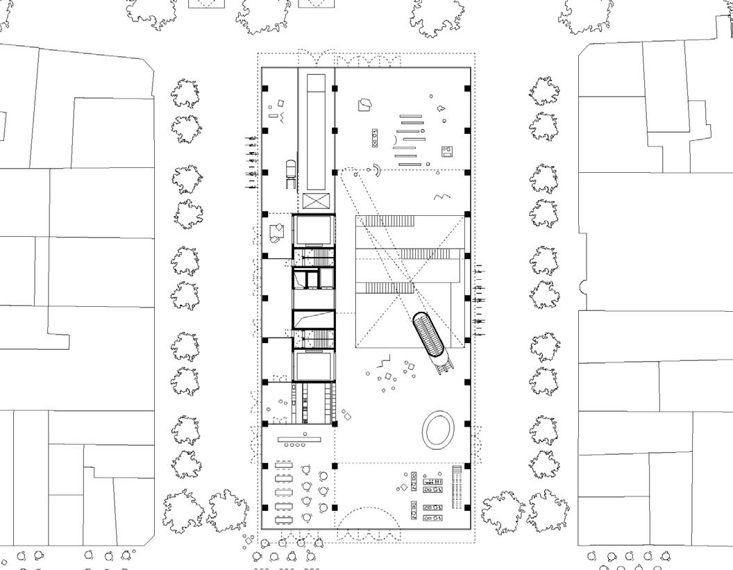
7 separate brick towers derive from the old El dorado as an affordable housing community, at New York City, NY, United States

Stones as Houses, Houses as Stones Seven Towers

Ten-person senior home with megalithic limestone spoliated form local quarry in a wildernes near Melides, Portugal

Edge Gallery

Adaptive reuse of the old Coal Loader industrial site as a new experimental art foundation at Waverton, Sydney, Australia

A modest and prostrating Library before Koutoubia Mosque for only one person each time in Marrakech, Morocco

A series of Buddhist spaces dispersed in natural landscape, based on the research into architectural syntax of both La Tourette Monastery and Chinese Calligraphy in Eveux, France

The new Contemporary Art Museum rises in translucent brick, weaving light, art, and the Scheldt’s edge into a dialogue in Antwerp, Belgium

7 separate towers with porous ground-level spaces, diverse housing types, and a harmonious blend of historic charm and contemporary functionality.

Harvard UniversityGraduate School ofDesign Option studio 1301 2023.09 - 2023.12

Instructor:Kersten Geers & David Van Severen Site: New York City,USA

Individual Work

The El Dorado, an iconic Art Deco twin-tower apartment building on Central Park West Avenue, built in 1929-1931, boasts a unique design by architects Margon & Holder and Emery Roth. With 189 units and twin towers rising from a base, the structure creates an imposing presence, isolating interior spaces.

In response to this ancestor building, a proposed transformation envisions seven separate towers with gaps between them, fostering a porous ground level for natural light, ventilation, and public interaction. Adhering to zoning laws, two towers maintain a height of 150 meters, preserving elements of the original design. Towers ascend gradually from east to west, ensuring Central Park views. Internally, windmill-like structures divide the tower core, creating shared spaces for diverse housing types, including a youth hostel, family units, and one-floor apartments. The ground floor is designated for public use, the middle for residences, and the top for a roof garden. Emphasizing simplicity, the façade mirrors El Dorado's brick design with contemporary materials, seeking to balance historic essence with modern functionality for inclusive, dynamic urban living.

Siteplan

Although el Dorado’s most striking feature is the twin towers, when you approach it from the street scale, its base occupies almost the entire block, making it an impermeable monolith, isolating the interior spaces of the building, including the residences and courtyards, from public life.

My ancestor is the El dorado, one of the four remarkable twin-tower apartment building along the Central Park West Avenue, which began construction in 1929 and was completed in 1931, and was designed by architect Margon & Holder and consulting architect Emery Roth in the Art Deco style. It is 119 meters tall and made up of 189(once 220)units in total, 30 stories, with 11-story twin towers rising from a 19-story base.

StandardplanofElDorado:monolithoraclusteroftowers

In the standard plan, it can be seen as sev-eral independent tow-ers, each with its own core strungwithtwoorthree apartments forming a vertical unit, separated bywallsandcompletely unconnect-ed to each other. Thus, in the conceptual mod-el, I have represented it as seven separate plas-ter towers.

Sectionandwestelevation:duality&symmetria

10 20m 0 15

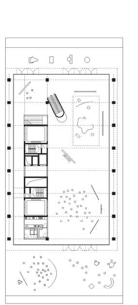
In my proposal, the site is also divided into seven completely separated towers, creating gaps between them.

Because I provided more public space, two of the towers reach a maximum height of 150 meters, in accordance with the zoning law of the site, and they also retain elements of the twin towers in the skyline. The towers rise gradually from east to west, so that each individual tower has a view of Central Park and constitutes a kind of miniature model of Manhattan.

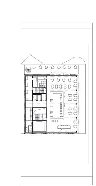
OpentothePublic

The ground floor is all public space, the center is residential, and the top floor is a shared roof garden. Now the site becomes a porous shared space where natural light, ventilation, and the public can move in and out freely.

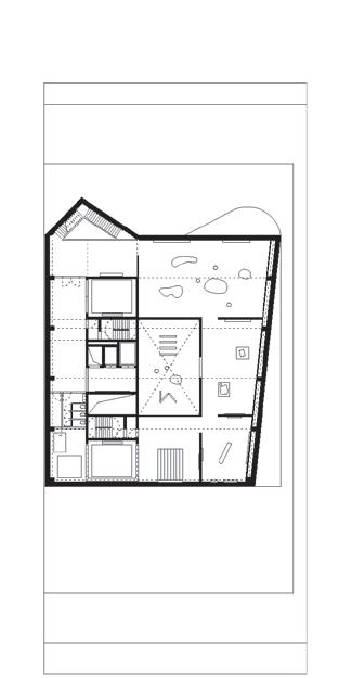
Dividing the core of the tower into 3-5 in the shape of a windmill, thus forms a shared space in the center and offering the possibility of free combinations of house types. In the hope that different groups of people and different lifestyles can coexist on the site.

Sharedspaceonthegroundfloor
Sharedlivingroomfortwoapartments
Roofgardenforalltheresidents

Facadedetail

1 window anchor

2 insulation glazing, aluminium frame

3 90/53.7/203 mm brickface, stack bond

10 mm reinforced mortar joint

50 mm cavity wall tie

100 mm thermal insulation breather membrane

200 mm poured concrete 15 mm gypsum board

4 10 mm parquet

46 mm screed with underfloor

heating pipe

25 mm thermal insulation

5 mm extruded polystyrene

resilient layer

5 mm levelling compound

250 mm reinforced concrete slab

suspended ceiling: 15 mm gypsum board

The structure and elevations are kept as simple as possible, emphasizing the sense of massing. Like the eldorado, the façade is made of brick, with a concrete structure covered with facebricks, and similar proportions of windows, but with a more contemporary choice of materials.

Stones as Houses Houses as Stones

Ten-person senior home in a wildernes with megalithic limestone spoliated form local quarry

Harvard University Graduate School of Design Option Studio Long Living Spolia 2024.02-2024.05

Instructor: Lina Ghotemeh Site: Melides, Portugal

Individual Work

Megaliths have been used since ancient times to build colossal-scale spaces like Stonehenge, temples, churches and city walls. But can these massive, cold stones hold the subtle, soft and warm human emotions? This project in southern Portugal aims to answer this by creating a home for ten elderly people. In the vast 60-hectare wilderness, I found a natural clearing and subcontiously enclosed it with stones in a ring, reflecting the primal structure of human tribes, which might fulfill the basic emotional needs of communal living.

Stones as Houses: The building materials come from local area. Limestone from a nearby quarry, cut on-situ with only a water jet, was transported in large pieces(1.5m-3.0m) to form the central courtyard and shared spaces. The concept was “Contemporary Spolia”, derived from the Latin word for “spoils” or “booty,” involves repurposing architectural elements from previous constructions or demolished structures. In this project the aim was to simplify all secondary processing of the stone to reduce the carbon footprint.

Houses as Stones: The stone rooms, serving as basic sleeping units, are integrated among the boulders, becoming an integral part of the structure that forms the shared spaces, and creating a design where personal spaces support collective spaces, reflecting the elderly living patterns I observed in Melides.

The project utilizes models of varying scales and materials to develop and express the architecture. These include foam, plaster powder, cast plaster, 3D printing, grass powder, and acrylic paint.

Site Model 1:500 - Clearing in the Forest

The project is located in a wilderness area near the small town of Meilides, Portugal, characterized by sandy podzol soil, sparse woodland and some linear traces of artificial planting. At the center of the site, a narrow path leads to a 30-meter-radius clearing in the forest, where towering trees form a natural enclosure, creating an ideal site.

Spolia is used today both practically and ideologically. Practically, it involves recycling architectural materials for sustainable construction, reducing carbon footprints by sourcing locally. Ideologically, it offers a way to embrace history, learn from it, and acknowledge past mistakes.

Massive stones are softly stacked into a curved wall, preserving their raw texture while creating a space distinct from their own nature. The circular form is the most primal and subconscious response of human tribes to the wilderness, establishing a polar origin within the site—a space that encloses human life and measures the land within the realm of perception.

Contemporary Spolia
Raw stone in the quarry of Fatima,Portugal
Stone blocks after water-cutting
Plaster model mimic the texture of limestone
Plaster model; the curved stone wall
Stone Ring: the Polar System
traditional spolia contemporary spolia related architectural concepts fields involved in this project
Entrance Space: Surrounded by the forest and Reaching into the Forest Lightly

Physical Model 1:200 - Wood Encloses Stone

Enclosed by a natural wood boundary, the structure features two concentric stone rings. The outer ring, made of functional stone rooms as serving spaces, defines the house’s perimeter, while the inner ring encloses a shared courtyard for elderly gatherings. The roof and rings are porous where gaps and openings maintain connection between different spactial layers, with greenery growing in between.

The largest “stones”, facing the courtyard, serve as private sleeping spaces, which blurs the boundaries between stone and house, material and function, solid and space.

A lightweight wooden structure is grafted onto the multi-layered stone framework, with the size and orientation of the massive stone blocks defining the structural system. Every stone—whether as walls, spaces, or furniture—collectively supports the roof and shelters the shared spaces. This reflects the project’s central metaphor: ten elders coming together to build a communal home, each contributing as an integral part of the whole.

Beneath the sheltering roof, the intense sunlight of southern Portugal filters selectively into green spaces orcaststexturedshadowson limestonewalls.Betweenthetwostoneringslies afluid,accessiblelivingspace.

Massive stones are bound with mortar made from stone powder, allowing for reinforcement with steel rods. The ground is compacted with rammed local podzol earth, while furniture, steps, and ramps are crafted from carefully chosen large stones, preservingtheir roughness and the sense of timeembeddedwithin.

Physical Model 1:50

03 EdgeGallery

Adaptive reuse of the old Coal Loader industrial site as a new experimental art foundation

University of New South Wales (exchange)

Undergraduate Core studio IV 2019.09 - 2019.12

Instructor: Prof. Jesse Lock-hart, Prof. Ainslie Murray Site: Sydney, Australia

individual work redeveloped in 2022

Uncountable industrial sites along the shoreline of Sydney harbour silently witnessed the long history of colonialization and industrialization of this city. But now as Sydney has already stepped into its post-industrialization era, those sites have become heritages or ruins waiting to be reactivated and adaptively reused. The Coal Loader Site in Waverton is one of them, which was used to be a transportation centre of coal with a concrete platform, four arch tunnels beneath, and a steel-sturctured transportation system.

In this studio, I deeply excavates the site history, and combines it with my own experience from the site visit . And therefore I proposes the concept of this architecture : "new intervention as the anchor of the old collective memory". Rather than making revolutionary changes to the industrial site, five lightweight steel structures were poetically implanted on the edge of the coal loader to remind visitors of the spatial narrative of the old coal transmission trajectory.

Plan, section and status quo of the Coal Loader

From History to Experience, From Memory to Space

Walking through the long and dark tunnels while looking at the machanical fragments inside provides visitors with a vibe to calm down, and reminds them about the history of the site.

In the histroy, there once were plenty of steel-structured installations like pylons, cranes, conveyer belts etc. Each of those machines had different spacial relationships with the platfrom and the tunnels, forming a specific routes for coals to transport.

Site plan: the distribution of industrial sites along the shoreline of Sydney
The Coal Loader Site in Waverton is one of the most important sites, which was used to be a transportation centre of coal with a concrete platform, four arch tunnels beneath, and a steel-sturctured transportation system.
(drawings provided by universiy)

Physical model 1:300

A series of abstract cubes planted in the platform in different angles to create new spatial relationships between tunnels, pla tforms and the sea. And a final decision was made that all the new interventions should only be plugged at the edge of the platform in order to minimize the damage to it.

01

The tower, as a landmark at the entrance, connects the crowds arriving from different elevations and provides ample light to the reception below/

03

Open to the platform above the site to undertake lectures, performances, public exhibitions and other community public activities.

05 Quay

A quay revived the mean of arrival and departure in the industrial age.

The largest art exhibition space, the diverse space provides a variety of exhibition modes.

Close to the sea, the space hanging on the edge of the heritage has a strong contrast of light and shade.

All of this five architectures have a light-weighted steel structure, which is same to the machines that once operated here, and a semi-transparent surface with polycarbonate and glass panels, creating extreme contrast to the old, heavy platform as well as the dark spaces in the tunnels.

The five new spaces were separate if observed on the platform and may be also operated separately in order to hold public events on the platform. But if experienced through the tunnel 1 beneath the platfrom, those five installations would become one continuous gallery, and shared a same visiting routes which origins from the route of coal. The new structure becomes a symbolization of the site's history.

Old - New Contrast - Symbiosis
02 MAIN GALLERY
Public Performance Space
04 Heritage Centre
Tower/ Reception

The sectional relationship of each space corresponds to the spatial trajectory of coal transportation in the industrial era. As the visitor walks through the gallery in succession, the new architecture itself becomes a spatial montage of historical narratives

Ascending Pouring Falling Shipping away

The five new spaces were separate if observed on the platform and may be also operated separately in order to hold public events on the platform. But if experienced through the tunnel 1 beneath the platfrom, those five installations would become one continuous gallery, and shared a same visiting routes which origins from the route of coal. The new structure becomes a symbolization of the site's history. Inside - out

03 Exit-Marrakech Library

AmodestandprostratingLibrarybefore KoutoubiaMosqueforoneperson.

Tsinghua University

AIAC international design studio 2022 2022.05-2022.09

Instructor: Prof. Xiaoqing Cheng, Prof. Huan Zou

Site: Marrakech, Morocco

individual work

photos in page 11 originally from internet and google earth

All the world 's a library,and all the men and women merely readers. Disputes caused by cultural and religious differences have become the crux of the current era. However, as the research of philologist Angelika Neuwirth points out, the Quran has a rich homology with the Bible in text. Perhaps a cultural space for observing and reading to understand others is what we need now.

Located in the center of Medina in Marrakesh, the Kutubia Mosque is nearly a thousand years old with a name means "book market". To the north, there is a ruin of an earlier mosque. The project's site is located on the north side of the ruins, which catches sight of the mosque (spirit), the streets of Medina (life), and an Islamic cemetery (death) from three directions.

This project establishes a library(and book market) of only one person at a time, exploring the relationship between outsiders and locals, individuals and groups, seeing and being seen. A personal-scale circulation, threading the personal reading spaces and worship spaces, while wanders through the various spaces for Islamic collective life.

Site plan: A triangle of religion, life and death

Traditonal islamic spaces and activities

Publice cemetry
Koutoubia Mosque
Medina streets
Riad (house with yard)
Halqa (busk)
Mosque
Cemetry
Souk (street commerce)
Hammam (public bath)

The special location of the site and its boundary shape define the triangular form of the building. In the meanwhile, in order to intervene in the site as humbly as possible, the architecture chooses to be semi-underground, with only one corner raised. The architecture face s three directions with different expressions.

There is a subtle difference of angle between the axes of the old mosque ruin and the existing Koutoubia, which is due to the d iscipline of the Qur'an on urban spaces. Therefore, the new architecture uses void and volume to deal with different axes, generating various in -between spaces, which then become a Riad-style courtyard space.

Perspective from the minaret of Koutoubia Mosque

All the world 's a library,and all the men and women merely readers.

Outsider - Locals

Individual - Collective

Seeing - Being Seen

This project establishes a library of only one person at a time, exploring the relationship between outsiders and locals, individual and groups, seeing and being seen. A personal-scale circulation, threading the personal reading spaces and worship spaces, while wanders through the various spaces for Islamic collective life.

04La Tourette Samghārāma (सँघाराम)

A series of Buddhist spaces dispersed in natural landscape, based on the research into architectural syntax of both La Tourette Monastery and Chinese Calligraphy

Tsinghua University

Undergraduate Core studio VI 2020.02 - 2020.04

Instructor: Prof. Jiyuan Zhang, Prof. Xiaojun Bu (founders of Atelier Alter Architects)

Site: Evieux, France

Individual work redeveloped in 2022

The project is an communication between Eastern and Western religious spaces. The project consists of three parts: a study of La Tourette Monastery and its site, a research of the architectural syntax of Eastern spaces (with calligraphy as an example), and a final design.

In the classical architectural analysis, the project reveals that the Monastery of Latourette is a modern interpretation of the spatial layout of the Acropolis, and applies this approach in this project's site plan. In addition, the research interprets Le Corbusier's monastery with the human scale of 1.83m and extracts his modular grid.

In the second part, the project sees topological spaces in Oriental calligraphy, and obtains a series of unique forms through the study of the tension between the strokes.

The final design applies the topological grid of calligraphy to the space of La Tourette Monastery, and then studies, the spatial transformation after Eastern syntax intervenes, through diagram and physical model. And the outcome is a contemporary Samgharama (Buddhist temple and garden) in the woods and valley on the south side of Latourette Monastery.

Site plan: a sacred place

1 La tourette monastery 2 the old monastery 3 fountaine 4 woods 5 grassland 6 soil 7 tea house 8 lecture hall 9 dormitory 10 buddist hall

Section: topography

The old monastery and La tourette monastery has a special positional relationship that could match the plan of Acropolis (Propylaea & Parthenon) so that the whole site could be considered as a classical sacred place. The new samghārāma(monk's garden/temple) also respect this law by choosing the position of Erechtheion Temple as the begining and entrance. Simultaneously, the samghārāma's own plan and circulation also match ancient Chinese temples.

Two different type of grid: Le corbusier & Calligraphy

La tourette monastery was strictly designed with human scale--1.83m & 2.26m, and with an orthogonal grid. While in oriental culture, grid could have a much more open and tensional form. The curvature of 横(horizontal strokes) and 竖(vertical strokes) correspond with each other, and create a kind of topological grid that bends and opens up to the void .

forms extracted from calligraphy

The transformation of space under the grid of calligraphy
Physical Research Model
Sacristy Chapel Canteen Dormitory
Tea House
Lecture Hall
Dormitory
Buddha Hall
Perspective section of the monks' dormitory
Ground floor plan: an open space to nature
Buddha hall
Section A-A

A Museum Shored 06

OFFICE Kersten Geers David Van Severen Site: Antwerp, Belgium

2024.08 - 2024.10 (with SO-IL)

Team Member:

Kersten Geers, David Van Severen, Justine Rossillion, Charles Andres, Aicha-Louise Wenger, Tim Anderberg, Edoardo Massa

Contribution:

Model and Video Making, Plan and Section Drawings

Professional Work

This project is located in Antwerp, Belgium, at the International Museum of Contemporary Art in the Flanders region, aiming to become an important cultural catalyst for Flanders. It is situated on the site of the former Court of Appeal on Waalsekaai, with one side facing the Scheldt River in Antwerp and the other side adjacent to the newly completed urban green park. The new building has a total floor area of approximately 18,500 square meters, which is twice the size of the existing museum, including exhibition spaces, research facilities, social activities, and supporting amenities.

The architecture stacks a series of minimalist, semi-transparent volumes, with facades made of Antwerp’s most famous brick material, creating varying textures and different levels of transparency.

The project features an expansive escalator and elevator system that connects the museum’s vertical circulation, enabling visitors to access a range of exhibition halls and public city-view terraces. The brick curtain filters external light, providing visitors with the opportunity to appreciate the art while simultaneously enjoying the stunning views of Antwerp.

Physical Model with Removable Facades 1:200

This project is located in Antwerp, Belgium. It is situated on the site of the former Court of Appeal on Waalsekaai, with one side facing the Scheldt River and the other side adjacent to the newly completed urban green park.

The architecture stacks a series of minimalist, semi-transparent volumes, with facades made of Antwerp’s most famous brick material, creating varying textures and different levels of transparency.

Brick and Transparency
Where Art Flows Between River and Green

A Tower Shored: A Vertical Art City

The project features an expansive escalator and elevator system that connects the museum’s vertical circulation, enabling visitors to access a range of exhibition halls and public city-view terraces. The brick curtain filters external light, providing visitors with the opportunity to appreciate the art while simultaneously enjoying the stunning views of Antwerp.

OTHER WORKS

Glimpse: A Short Sci-fi Movie About Ecological Future Cities

MIT Media Lab MAS.S66 City Sci-fi Fall'23 Project Instructor: Gabriela Bila Advincula, Luis Alberto Alonso Pastor, Kent Larson

Collaborator: Baiting Chen, Benedetta Zuccarelli Contribution: Concept Design, World Architecture, 3D Modeling (Rhino+GH), Cinema 4D Rendering, Editing 2023.9-2023.12 Link: https://www.media.mit.edu/posts/city-sci-fi-fall-23-students-projects/

A Maze-Ing: Interactive Self-Generating Maze

Harvard University GSD6338 Intro to Computational Design Fall'23 Project Instructor: Jose Luis García del Castillo y López

Collaborator: Shiqi Zhang, Amber Zeng Contribution: Concept Design, Coding(C# in Grasshopper), Editing 2023.10

Link: https://www.youtube.com/watch?v=cvBH0_VdnQ4

OTHER WORKS

Jingdezhen Office Building/ Chongren Art Center

SHELT-AIR: Inflatable Installation for Seismic Contigency

Image: ThierryGedeon

Zhichao Charles Deng

Beijing, China | Cambridge, MA, USA zhichaodeng@gsd.harvard.edu +1 6178036158 | +86 13683209870 29-12-1998

EDUCATION

Harvard University, Cambridge, MA

Master of Architecture II

Distinction in Option Studio 1301 with OFFICE KGDVS

Tsinghua University, Beijing

Master of Architecture, GPA:3.85/4.00

Bachelor of Architecture, GPA: 3.78/4.00

University of New South Wales, Sydney

International Student Exchange Program

Distinction in Architecture Design Studio IV and Exhibition Design

PROFESSIONAL EXPERIENCE

OFFICE Kersten Geers David Van Severen, Brussels

Intern Architect

Explored facade design for the M HKA through physical modeling, and produced final presentation models with a model video.

Contributed to the Paris Zac Rive Gauche from concept to unit layouts, and independently produced the final Jesmonite-cast model and section drawings.

Supported the publication team with exhibition materials, assisted in rapid competition projects, coordinated and interpreted for China-based projects. Proactively handled various ad-hoc tasks.

Studio Zhu Pei, Beijing

Intern Architect

Earned the title of Excellent Intern.

Led the model making and collaborated with structure engineer in Jingdezhen Office Building Project.

Played a key role in the design process of Chongren Art Center and its modeling experiments.

Researched and interpreted the plan of Unité ‘habitation Marseille in Langfang Artists’ Housing Project

Atelier Teamminus, THAD, Beijing

Intern Architect

Facilitate communications with construction team for Chinese Pavilion of Venice Biennale 2020.

Conducted a field research and designed independently an underground market for the renovation of PanJiaYuan Antique market.

Worked on 3d modeling and renderings for the design of Student Center of Tsinghua University.

AA Visiting School, Ring of Fire, Tokyo

Workshop Member

Proposed design concept and produced diagrams.

Worked in an international team on the 1:1 scale physical model and material experiments.

SKILLS & ADDITIONAL INFORMATION

Language Skill

Publication Mandarin Chinese (native), English (Excellent,TOEFL:111/120), French (basic) Rhino (+GH), AutoCAD, Vectorworks, Adobe PS/AI/ID/PR, Enscape, Sketch Up, Cinema4D, blender Model Making, Video Editting 3d Printing, Laser/water Cutting

Zhichao Deng, Oreintal Meditation Park and Visitor Center of Sainte Marie de La Tourette[J], ArchiCreation, 2020, No.214(03):204-209.

Zhichao Charles Deng

B.Arch / M. Arch Tsinghua University School of Architecture

M.Arch II Harvard University Graduate School of Design

Turn static files into dynamic content formats.

Create a flipbook
Issuu converts static files into: digital portfolios, online yearbooks, online catalogs, digital photo albums and more. Sign up and create your flipbook.