ucl architecture

Page 1

Portfolio Selected work 2020-2023 Table of Contents Zhen Cheng Bachelor of design University of Melbourne Tle: +86 13806175308 E-mail: 1537882453@qq.com 01 02 03 04 05 06 Eco-corridor Foc School Falling wing Garden library Water way Other work Community design School design Pavilion design Library design Pavilion design

Eco-corridor

Community design

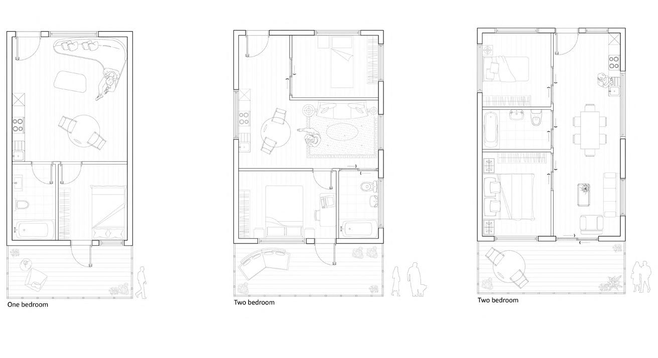
The project aims to integrate the relationship between nature, architecture, and residents using green areas. The neighborhood will form an area that blends with its surroundings and connects different parts of the community. On top of this, the green roofs compensate for the loss of green space and also serve to protect the environment. Also, the project’s visual design will have a certain coherence, integrating the internal circulation of the buildings with the external circulation of the streets. Utilizing green roofs and eco-corridors to maintain the actual ecological value of the site, and adding the circulation of the water system within it, allows for a more low-carbon and environmentally friendly lifestyle.

Studio name: Epsilion

Level: Year 3

Year: 2023.08

Tutor name: Stephanie Wills steph.wills@unimelb.edu.au

Type: Group work for analyse part Individual work for design

Place requirement

Processing

01
Ensure population capacity throughout the community Reduce footprint increased height. Make the part into the whole. Segment zoning by function. Generate draft massing.
key moment Isometric

Final isometric

requirement
Personality
Room
Typology
1. Town house 2. Laundry 3. Bicycle parking 4. Shared kitchen 5. Shared living room 6. Apartment
1 1 2 2 3 3 4 4 5 6 6 7 7 7 7
Room plan
7. Garden
Overall plan
Legend
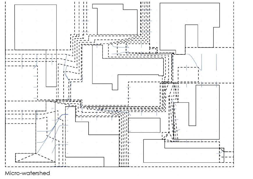
Processing Plants Sustainable systems Exploded diagram
Section Interior Lighting Green roof

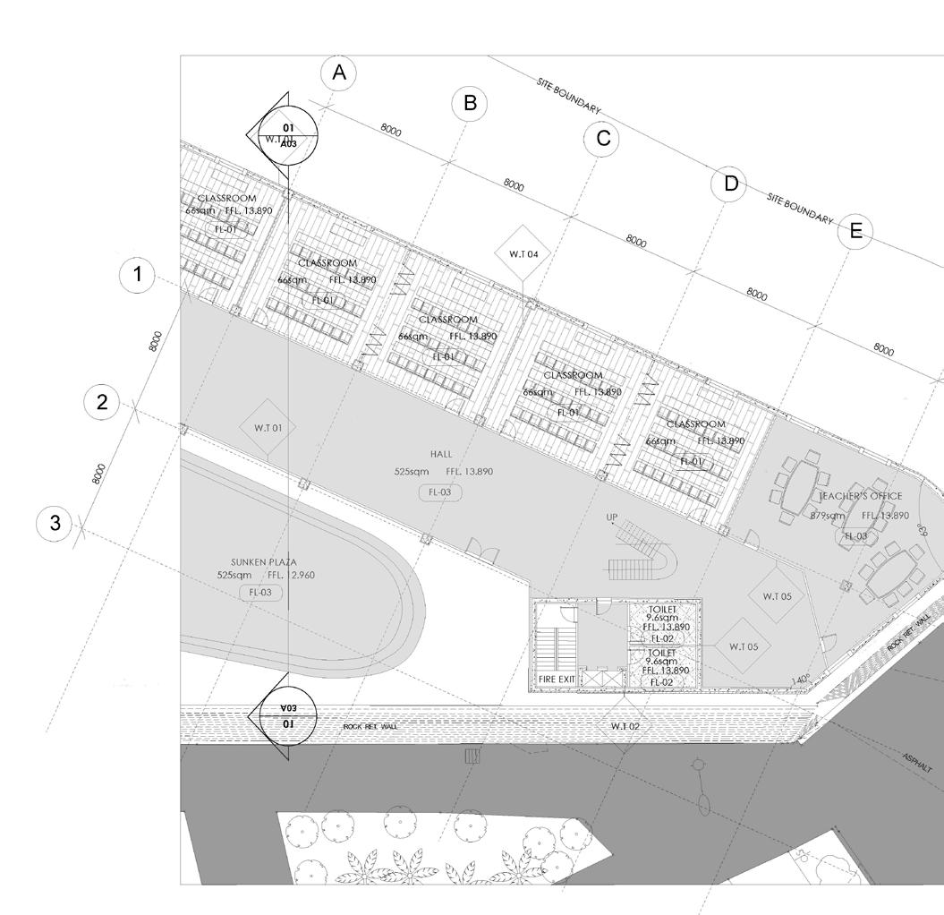
Because of the pandemic’s impact in the last two years, many districts have had online classes conducted to continue students’ programs. After investigation, it was found that there are certain prerequisites such as equipment and technology to conduct online classes. Some poor or backward areas cannot afford this method. Therefore, this project aims to design a school in an economically underdeveloped area that can satisfy the student’s education and help the local economic develop ment according to the local situation. It also en sures that the education model in these areas can develop in line with the rest of the world.

Level: Year 3

Year: 2023.10

Tutor name: ciciqinyunxiqb@gmail.com

Type: Individual work

Concept

In order to make it possible for students in backward areas to have the same standard of teaching and learning as those in other parts of the world, and also to provide employment for the local people, a comprehensive open campus was designed, in which a school with space for computer labs, a small farm, and accommodation for the teaching staff was provided.

surrounding streetscape. Encourages social inter action and outdoor learning Flexible teaching spaces allow for a variety of teaching practices.

Encourages a close connection to the community, history and landscape with reference to the surrounding streetscape. Encourages social interaction and outdoor learning Flexible teaching spaces allow for a variety of teaching practices.

Environmental Teaching

Environmental Teaching

Environmental Teaching

Inspires teachers and students to inhabit the space in a variety of creative ways to foster chil dren's curiosity for learning. Focuses on conservation agriculture, soil regeneration and sustainable indigenous timber.

Inspires teachers and students to inhabit the space in a variety of creative ways to foster children's curiosity for learning. Focuses on conservation agriculture, soil regeneration and sustainable indigenous timber.

Inspires teachers and students to inhabit the space in a variety of creative ways to foster children's curiosity for learning. Focuses on conservation agriculture, soil regeneration and sustainable indigenous timber.

Mutual aid in society

Mutual aid in society

Mutual aid in society

Reduces distance to school issues. Resources for local civic gatherings and bricks to build the school are made on-site by local masons, providing employment and training opportunities in the area.

Reduces distance to school issues. Resources for local civic gatherings and bricks to build the school are made on-site by local masons, providing employment and training opportunities in the area.

Reduces distance to school issues. Resources for local civic gatherings and bricks to build the school are made on-site by local masons, providing employment and training opportunities in the area.

02

The

The

Build

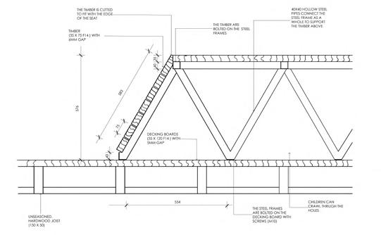
The roof form was determined according to the natural climate of the time.

Dry latrine Students dormitories Students dormitories Classrooms Classrooms Classrooms Classrooms Teacher office secretary office Storage Multipurpose space Basic houses Basic houses Basic houses Basic houses Basic houses Basic houses Basic houses Basic houses Basic houses Meeting room Library Computers room Laboratory Strategy Plan Functionality Public place Wall painting Pastoralist area Renewable resource Culture and history Special education Orchards Bricks Bamboo Multi-functional learning area Teaching area Accommodation
houses Breeding and planting areas site partitioning Left-right zone Main Road connections Circulation Use of colours Street lights Multifunctional table Adaptation to the terrain Seismic defences Air circulation Detail Zones 01 Original site Near the road 02 Zoning Determine the location of the functional layout 03 Massing 04 Roof The roof form was determined according to the natural 01 Original site Near the road 02 Zoning Determine the location of the functional layout 03 Massing Build massing of different heights according to 04 Roof The roof form was determined according to the natural climate of the time. 01 Original site Near the road 02
location
the functional layout 03 Massing Build massing of different heights according to different kinds of houses
roof
climate
time. 05 Green space 06 Detail 01 Original site Near the road 02 Zoning
layout 03 Massing
massing of different heights according to different kinds of houses
Multi-functional
Zoning Determine the
of
04 Roof The
form was determined according to the natural
of the
Determine the location of the functional
Build
04 Roof
05 Green space 06 Detail 02 Zoning Determine the location of the functional layout different to houses 04 Roof
roof form was determined according to the natural climate of the time.
Near the road
01 Original site
03 Massing
massing
heights
05 Green space Programmatic diagram Strategy
01 Original site Near the road 05 Green space Add native plants on both sides of the road and around open spaces.
Zoning Determine the location of the functional layout
Detail Add
details
interior.
of different
according to different kinds of houses
Processing
02
06
furniture
to the
03 Massing
Roof
Build massing of different heights 04
roof form was determined according
the natural climat
to

1. Information room

2. Meeting room

3. Library

4. Small meeting room

5. Classroom

6. Restaurant

7. Director and secretary office

8. Teacher office

9. School medical center

10. Bathroom

11. Dormitories

12. Storeroom

13. Animal area

14. planting area

15. Open-air amphitheater

16. Football pitch

17. Multipurpose space

18. Laboratory

19. Computers room

1 1 2 2 3 3 4 4 4 5 5 5 5 5 5 6 7 8 9 10 10 10 10 12 13 14 15 17 18 19 16 11 11
Plan
Legend A A B C B C
Section A

The roof structure of the building can be seen in these two pictures. Instead of fitting perfectly to the walls, this roof retains voids and slopes at an angle. This was designed according to the local climatic conditions. It can lower the room’s temperature to cool down naturally by letting the air circulate sufficiently while ensuring a certain amount of sunshine.

Section
Section B
C
Rendering Entryway Classroom
Final axonometric drawing Rendering
Atrium of the teaching area Dormitories

Falling wing

Pavilion design

My concept of this pavilion is to give people a comfortable and free space and to have different feelings in different time periods. The inspiration for this pavilion comes from the wings of birds. The metal frame is used as the structural support of the exhibition hall, so that the entire design can be placed on the ground smoothly. And use these frames to connect the surrounding layers of glass. Sunlight can also pass through these gaps to produce different light and shadow effects on the ground, giving visitors a different feeling. Small lights are installed at the top and bottom of the pavilion, allowing listeners to have a better visual experience when watching the quartet at night.

Studio name: digitail design

Level: Year 2

Year: 2022.05

Tutor name: Saran kim saran.kim@unimelb.edu.au

Type: Individual work

Computation workflow

Design matrix

Surface and waffle

There are many openings on this design wall, and visitors can have different visual experiences through different opening positions. At the same time, these openings can also make more changes in light and shadows.

There is an empty area running through from top to bottom, which can ensure that the entire model can be illuminated so that visitors can feel the changes in illumination at different times.

Because it has become a waffle structure, the effect of light and shadow will be more obvious. These blank spaces in the upper part allow more light to pass through, making the visual experience of visitors richer.

Although the light seen from the left and right sides has not changed much, the wall structure is not as flat as the original, so the shadow on the wall will also make the design look richer.

This iterative exercise allowed me to test multiple times and make further improvements and choices. In this process, you can change the geometric shape, size, rotation angle, point attract or, and other conditions often and then cut out a model that conforms to your concept. The concept of selection is based on the relationship between solids and gaps and the influence of these conditions on the quality of the space, such as compressibility and porosity.

03
Basic Geometry XY Rotation Z Rotation Point Attractor 1.0 2.0 4.0 3.0 1.01-Speres Radius 16 2.01-XY Rotation 0.0 3.01-Point Attractor -0.65,-1.36,0.09,0.50 4.01-Z Rotation 0.0 1.02-Cube Edge Length 10 2.02-XY Rotation 0.2 3.02-Point Attractor -0.74,0.85,-1.05,0.98 4.02-Z Rotation 0.3 1.03-Cone Radius 16 Height 15 2.03-XY Rotation 0.5 3.03-Point Attractor -1.47,0.00,0.083,-0.72 4.03-Z Rotation 0.6 1.04-Pyramid Edge Length 18 2.04-XY Rotation 0.8 4.04-Z Rotation 0.8 5.01-Internal scale 0.2 6.01-External scale 5 7.01-Boolean Intersection 7.05-Boolean Difference 5.02-Internal scale 0.6 6.02-Internal scale 8 7.02-Boolean Difference 7.06-Boolean Difference 5.03-Internal scale 0.9 6.03-Internal scale 13 7.03-Boolean Difference 7.07-Boolean Difference 6.04-Internal scale 16 7.04-Boolean Difference 7.08-Boolean Difference Internal scale External scale Boolean Result 5.0 6.0 7.0
ideas through process
Generating
Rendering
Waffle and massing Lasercut nesting of XY and radial waffles Daytime

I first chose pufferfish as my pavilion. By modifying the shape of the curve, comparing different iterative cutting effects, I selected a preliminary assembly similar to my ideal. Due to the complexity of this complex, I manually selected some areas for modification and made a more simplified pavilion. Taking into account the problem of my material selection, I made a frame inside this pavilion, and finally came up with this model.

Sunsets Evening
Diagram Design Iterations

04 Garden library

Library design

The library designed here is an adjacent project to Greenline, on the edge of the CBD and the South Bank.This piece of Enterprize Park is the primary location for contrasting Melbourne's CBD and Southbank. It is also a practical first step for the Greenline project.

Forecasts show that the Greenline is expected to generate more than $1 billion in economic activity and create up to 1,000 jobs over the project's life. Mayor Sally Karp said the Greenline would deliver one of the city's most significant transformations since the completion of the Southbank Promenade in 1990 and the opening of Federation Square in 2002. Regarding the facade, I referenced a Korean dream king project whose facade of this project has a wave shape that fits well with my wave inspired by this arc of the river's waves.

Studio name: Delta

Level: Year 3

Year: 2023.02

Tutor name: Virginia Mannering virginia.mannering@unimelb.edu.au

Type: Individual work

Concept

Processing

CONCEPT- Build a garden library in the middle of the viaduct by the river in accordance with local greenline policy. The shape is that of a water wave, made of glass. A garden is built in the middle to increase the green area.

Site Analysis
Site Circulation Wave Shape Greenline Detail
Site Tram Train Car Ship Footpath Water pollution Sound pollution
Exploded Isometric
Children reading area
Reading Lounge
Facade
Floor Plan
First
Second Floor Plan

Rendering

Section A Section B Study area Bookshelves maze
Detail Isometric
Indoor Garden

Water way

Pavilion design

In the design of this area, the planning is relatively neat. Both the pavilion and the green area use square and square graphics, and there is no curve. The entrance of this pavilion is in the south, at the location marked on the map. There will be roads around all the pavilions, making it easy for visitors to walk. At the same time, each exhibition hall is connected to a green area, ensuring that this area has a good ecology and enough space for tourists. The greenspace area that receives sunlight is divided into several situations, and different light areas can be provided according to different seasons, different time periods, and different preferences of tourists. Let visitors have more choices.

Studio name: Beta

Level: Year 2

Year: 2022.02

Tutor name: Dylan Newell

dylannew@unimelb.edu.au

Type: Individual work

Collages

Layout plan

Sun analysis

05
Plan Legend Analysis
Plant Render
Analysis
Wind
diagram
Exploded
Isometric

Seasonal render

Sectional persepective

06

Other work

Title: M2&M4

Studio name: FoDR

Level: Year 1

Year: 2020.06

Tutor name: Mitchell Ransome mitchell.ransome@unimelb.edu.au

Type: Individual work

Title: M3

Studio name: FoDR

Level: Year 1

Year: 2020.06

Tutor name: Mitchell Ransome mitchell.ransome@unimelb.edu.au

Type: Individual work

Title: Deck

Studio name: Alchemy

Level: Year 1

Year: 2020.09

Tutor name: Paul Di Nello paul.di@unimelb.edu.au

Type: Individual work

Title: School

Studio name: CD

Level: Year 2

Year: 2022.10

Tutor name: Aleks Baltovski aleks.baltovski@unimelb.edu.au

Type: Individual work

Title: Lake Wendouree House

Studio name: CA

Level: Year 2

Year: 2022.06

Tutor name: Lisa Cummins lisa.cummins@unimelb.edu.au

Type: Individual work

Title: Dandenong Ranges

Studio name: EBS

Level: Year 2

Year: 2021.09

Tutor name: Nancy Mase masen@unimelb.edu.au

Type: Individual work

Client Profile:

The Henrys is a family of two adults and three children. They want to have an environmentally friendly home in Dandenong Ranges. Their family is very environmentally conscious and hopes to avoid the use of fossil fuels as much as possible. In terms of travel, the Henrys family like to ride bicycles everywhere, which can reduce carbon emissions and actively participate in the recycling activities of surrounding recyclables.

Turn static files into dynamic content formats.

Create a flipbook
Issuu converts static files into: digital portfolios, online yearbooks, online catalogs, digital photo albums and more. Sign up and create your flipbook.