Casos arquitectónicos de hospitales nacionales e internacionales tipo II

Page 1

ANALISIS DE CASOS ARQUITECTONICOS HOSPITAL

TIPO II

CÁTEDRA:

INTEGRANTES:

INTEGRANTES

U19308493

LAURA

CULLANCO, LUCERO

Me considero una persona responsable y empática; me gusta sorprender con mis habilidades. Tengo muchos ideales para con la sociedad y sobre todo siempre aprender de mis errores en mi diario vivir.

U18302536 RIVAS RAMOS, ESTEFANI

Soy una persona amable, empática y siempre busco resolver cualquier problema en bienestar de todos.

Tengo muchas metas y una de ellas es culminar esta hermosa carrera para desarrollarme profesionalmente

U18310036

SALAS CONDORI, HUBER

Dicen que soy ocurrente y algo persistente en buscar una solución. Lo que puedo asegurar es que soy sociable cuando se requiere y perfeccionista cuando hay algo mas por mostrar.

Palabras clave: crecimiento profesional.

U19103868

ZEVALLOS PAYANO, JEAN

He de considerarme una persona perseverante, alguien empeñoso y proactivo. Atravieso una de las mejores etapas de la carrera el cual, me ha aleccionado de tal manera que disfruto de lo que hago a nivel profesional.

DEFINICIÓN DE HOSPITAL

Establecimiento destinado a brindar asistencia médica, incluidas intervenciones quirúrgicas, estancia durante la recuperación y en el que también se practican la investigación y la enseñanza médica.

INTRODUCCIÓN

El diseño y entendimiento de la arquitectura hospitalaria es muy compleja, cargada de reglamentación necesaria para su funcionamiento, por eso, analizaremos algunos referentes de establecimientos de salud, 3 nacionales y 3 internacionales.

PROBLEMÁTICA DEL TEMA

Necesitamos conocer las características y particularidades de la arquitectura hospitalaria para afrontar el diseño arquitectónico de las siguientes unidades académicas.

OBJETIVO DE LA INVESTIGACIÓN

Conocer el funcionamiento de algunos establecimientos de salud de categoría 2, atreves de ejemplos de proyectos ya existentes, dentro y fuera del Perú.

• • • • • • • •

HOSPITALES NACIONALES TIPO II

UBICACIÓN

Año 2007

Características:

- 120camas de hospitalización

Área 17307 m2

ARQ. GLADYS HISHIKAWA ARQ. SERGIO SAITO OKADA

ACCESIBILIDAD

Ingreso Principal

Ingreso Emergencia

POSICIONAMIENTO

Volumen Apoyado

TOPOGRAFÍA

CLIMA

EMPLAZAMIENTO

VIAS VEHICULARES

• Vía principal

• Vía secundaria

Terreno con 3% de pendiente.

• Templado desértico.

• TMA 17

°C y 22

°C.

• PMA 15.7 mm

• Viviendas de 4 y 5 pisos.

• Centro de atención primaria.

ORIENTACIÓN

• La fachada principal tiene orientación Sur - Este

ANÁLISIS CONTEXTUAL HOSPITAL LUIS NEGREIROS LIMA NORTE - CALLAO UNIVERSIDAD TECNOLOGICA DEL PERÚ
MG. ARQ. OMAR WINCHO CHILQUILLO
DE DISEÑO ARQUITECTONICO IX ( CURSO INTEGRADOR II) ANALISIS DE CASOS HOSPITAL TIPO II GRUPO #01: ZEVALLOS PAYANO, JEAN LAURA CULLANCO, LUCERO RIVAS RAMOS, ESTEFANI SALAS CONDORI, HUBER
DOCENTE:
TALLER
Lima - Perú Distrito de Callao Av Pacasmayo y Tomas Valle
L- 01

HOSPITAL LUIS NEGREIROS LIMA NORTE - CALLAO

PRINCIPIOS ORDENADORES, ORGANIZADORES Y FORMA

ANÁLISIS FORMAL VOLUMÉTRICO

movimiento / juego de volúmenes con sustracciones y jerarquías

El ingreso principal es jerarquizado con un volumen de mayor altura con una fachada en diagonal.

Volúmenes con forma rectangular

RELACIONES ESPACIALES

Un gran hall en forma de “L”, conecta el exterior con los espacios médicos y administrativos de manera ortogonal, obedeciendo al trazo de las circulaciones privadas y publicas.

PRINCIPIOS

COMPOSITIVOS

Equilibrio

Movimiento

Proporción

Agrupación

Continuidad

UNIVERSIDAD TECNOLOGICA DEL PERÚ DOCENTE: MG. ARQ. OMAR WINCHO CHILQUILLO TALLER DE DISEÑO ARQUITECTONICO IX ( CURSO INTEGRADOR II) ANALISIS DE CASOS HOSPITAL TIPO II GRUPO #01: ZEVALLOS PAYANO, JEAN LAURA CULLANCO, LUCERO RIVAS RAMOS, ESTEFANI SALAS CONDORI, HUBER
L- 02

ZONIFICACIÓN PROGRAMACIÓN

LEYENDA

LEYENDA

UNIVERSIDAD TECNOLOGICA DEL PERÚ
MG. ARQ. OMAR WINCHO CHILQUILLO TALLER DE DISEÑO ARQUITECTONICO IX ( CURSO INTEGRADOR II) ANALISIS DE CASOS HOSPITAL TIPO II
#01: ZEVALLOS PAYANO, JEAN LAURA CULLANCO, LUCERO RIVAS RAMOS, ESTEFANI SALAS CONDORI, HUBER
DOCENTE:
GRUPO
1. Acceso público 2. Acceso emergencias 3. Acceso servicios 4. Bloque 1 hospital 5. Bloque 2 administración 6. Bloque servicios 7. Estacionamiento visitantes 8. Estacionamiento emergencia 9. Áreas verdes 10 Hall de ingreso 1.
Recepción general
2. Diagnóstico 3. Emergencias 4. Patología 5. Administración 6. Auditorio 7. Consulta externa 8. Méd. física y Rehabilitación
1 2 3 5 4 6 7 8 9 10 10 9 7
9. Servicios generales 10 Estacionamientos
NEGREIROS LIMA NORTE
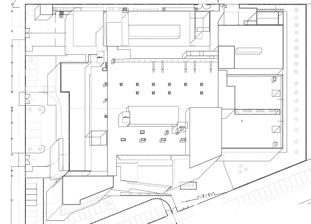
CALLAO ANÁLISIS FUNCIONAL - ESPACIAL L- 03
HOSPITAL LUIS
-

CIRCULACIÓN

LEYENDA

UNIVERSIDAD TECNOLOGICA DEL PERÚ DOCENTE: MG. ARQ. OMAR WINCHO CHILQUILLO TALLER DE DISEÑO ARQUITECTONICO IX ( CURSO INTEGRADOR II) ANALISIS DE CASOS HOSPITAL TIPO II GRUPO #01: ZEVALLOS PAYANO, JEAN LAURA CULLANCO, LUCERO RIVAS RAMOS, ESTEFANI SALAS CONDORI, HUBER
1. Acceso público 2. Acceso emergencias 3. Acceso servicios 4. Escaleras PLANTA PRIMER NIVEL 5. Ascensores 6. Corredor colectivo 7. Corredor restringido 1 8. Corredor restringido 2 PLANTA SEGUNDO NIVEL
HOSPITAL LUIS NEGREIROS LIMA NORTE - CALLAO ANÁLISIS FUNCIONAL - ESPACIAL L- 04
PLANTA TERCER NIVEL

MODULACIÓN ESTRUCTURAL

ILUMINACIÓN Y VENTILACIÓN

Este nosocomio utiliza el sistema aporticado, debido al uso de vigas y columnas de mayor dimensión, en donde las vigas tienen apoyos a mayor distancia.

MATERIAL (EXTERIOR)

La ventilación cruzada sucede gracias a unas rejillas ubicadas en los bordes de la cobertura y la iluminación natural es posible, debido a utilización del muro cortina y grandes ventanales.

MATERIAL (INTERIOR)

UNIVERSIDAD TECNOLOGICA DEL PERÚ DOCENTE: MG. ARQ. OMAR WINCHO CHILQUILLO TALLER DE DISEÑO ARQUITECTONICO IX ( CURSO INTEGRADOR II) ANALISIS DE CASOS HOSPITAL TIPO II GRUPO #01: ZEVALLOS PAYANO, JEAN LAURA CULLANCO, LUCERO RIVAS RAMOS, ESTEFANI SALAS CONDORI, HUBER
SOL
CORTINA
L- 05
VIENTO MURO
COBERTURA METÁLICA CELOSIAS METÁLICAS PANELES ACÚSTICOS CLARABOYA ANÁLISIS TECNICO CONSTRUCTIVO HOSPITAL LUIS NEGREIROS LIMA NORTE - CALLAO

UBICACIÓN:

1. ÓRGANO DE DIRECCIÓN

- Dirección

2. ÓRGANO DE CONTROL

- Órgano de Control Institucional

3. ÓRGANO DE ASESORÍA

- Unidad de Planeamiento Estratégico

- Unidad de Epidemiología y Salud Ambiental

4. ÓRGANO DE APOYO

Hosp. atención general con intern.

- Unidad de Administración

- Unidad de Estadística e Informática

- Unidad de Apoyo a la Docencia e Investigación

DOCENTE:

GRUPO

LEYENDA

ACCESO AL HOSP. FLUJO INTENSO FLUJO MEDIO FLUJO BAJO

5. ÓRGANO DE LÍNEA

- Servicio de Consulta externa y Hospitalización

- Servicio de Medicina

- Servicio de Cirugía y Anestesiología

- Servicio de Pediatría

- Servicio de Gineco-Obstetricia

- Servicio de Odontoestomatología

- Servicio de Enfermería

- Servicio de Emergencia

- Servicio de Apoyo al Diagnóstico

- Servicio de Apoyo al Tratamiento

ASOLAMIENTO:

UNIVERSIDAD TECNOLOGICA DEL PERÚ
MG. ARQ. OMAR WINCHO CHILQUILLO
II
TALLER DE DISEÑO ARQUITECTONICO IX ( CURSO INTEGRADOR II) ANALISIS DE CASOS HOSPITAL TIPO
LUCERO
HUBER
#01: ZEVALLOS PAYANO, JEAN LAURA CULLANCO,
RIVAS RAMOS, ESTEFANI SALAS CONDORI,
Perú
09 – 10 - 1966 32 500 m2
La Libertad Chepén - Chepén
Cat. II - 1
ANÁLISIS CONTEXTUAL HOSPITAL MINSA – CHEPÉN L- 06
UNIVERSIDAD TECNOLOGICA DEL PERÚ DOCENTE: MG. ARQ. OMAR WINCHO CHILQUILLO TALLER DE DISEÑO ARQUITECTONICO IX ( CURSO INTEGRADOR II) ANALISIS DE CASOS HOSPITAL TIPO II GRUPO #01: ZEVALLOS PAYANO, JEAN LAURA CULLANCO, LUCERO RIVAS RAMOS, ESTEFANI SALAS CONDORI, HUBER ZONIFICACIÓN: Chepén CONTEXTO: 1 4 5 3 2 1 TOTTUS 2 EMTRAFESA 3 PECSA 4 CLÍNICA ESSALUD 6 7 8 9 5 IE CG NORIEGA 6 OV. MOCHICA 7 PLAZA SAN MARTIN 8 PQ. CIENCIA Y TEC 9 DEPINCRI CHEPEN HOSPITAL MINSA – CHEPÉN ANÁLISIS FUNCIONAL - ESPACIAL L- 07

ZONIFICACIÓN DE EDIFICACIÓN:

CIRCULACIÓN:

Atención médico integral para niños

Residencia mujeres

Residencia médica

Administración

Asesoría legal, atenciones varias

Psicología

Laboratorio, rayos X, fisioterapia

Jef. Enfermería, dep. Logística

Hosp. Obstetricia y ginecología

Hosp. Pediatría

Hosp. Medicina y Cirugía

URPA

Farmacia

Esterilizaciones, sala de operaciones

Emergencia

Centro obstétrico

Caja de emergencia, defensa nacional

ITS y casa de espera materna

Morgue, almacén, lavandería

Jef. Mantenimiento

Talleres de mantenimiento

Eje principal

Eje secundario

Eje trasversal

AMBIENTES:

MATERIALIDAD:

COMPOSICIÓN

Concreto Porcelanato blanco Hidro pintura crema

INGRESO PRINCIPAL

SERVICIOS HIGIÉNICOS

Hidro pintura dorada Hidro pintura blanca

SUELO

Concreto pulido Porcelanato blanco Terrazo marrón

ABASTECIMIENTO DE OXÍGENO

Concreto

CIELLORRASO

HABITACIONES CUÁDRUPLES

Hidro pintura blanca

CUBIERTA

Drywall

CENTRO DE VACUNACIÓN

DOCENTE: MG. ARQ. OMAR WINCHO CHILQUILLO

GRUPO

Concreto

SALA DE ESPERA

Hidro pintura blanca

Calamina metálica

UNIVERSIDAD TECNOLOGICA DEL PERÚ
TALLER DE DISEÑO ARQUITECTONICO IX ( CURSO INTEGRADOR II) ANALISIS DE CASOS HOSPITAL TIPO II
#01: ZEVALLOS PAYANO, JEAN LAURA CULLANCO, LUCERO RIVAS RAMOS, ESTEFANI SALAS CONDORI, HUBER
L- 08
LEYENDA HOSPITAL MINSA – CHEPÉN ANÁLISIS FUNCIONAL - ESPACIAL

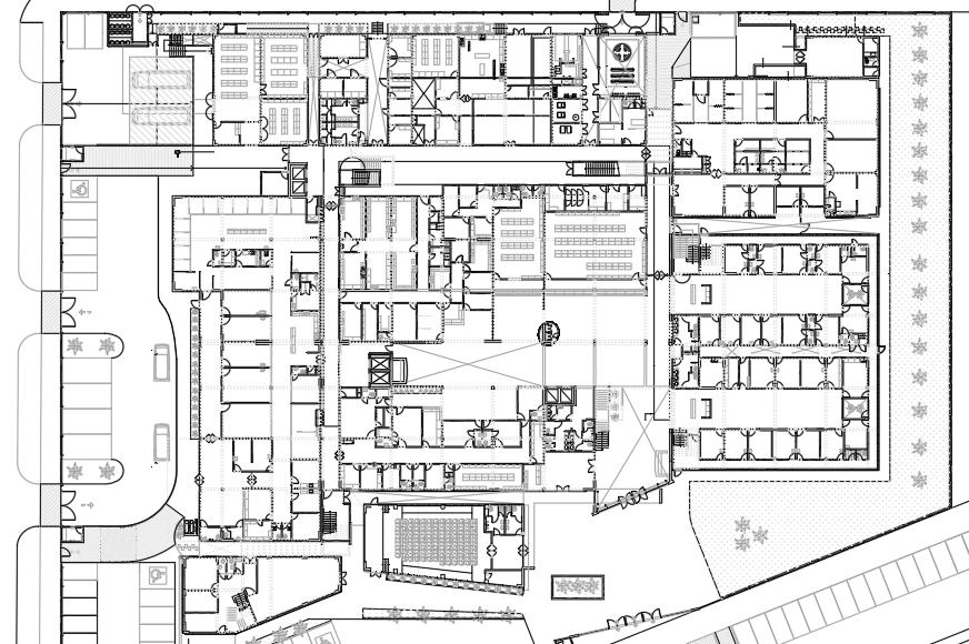
HOSPITAL EMERGENCIA ATE VITARTE

Fundación:

- Inicio de Construcción Marzo 2013

- Finalizado en Junio 2018

Área de terreno:

- 14,231.76m²

Área techada:

- 20,036.00m²

Clasificación:

- Hospital nivel complejidad del tipo 11-2 (Minsa 2018)

Características:

- 78 camas UCI y 263 camas de hospitalización

UBICACIÓN

ORIENTACIÓN

El sol esta en la tarde en dirección del Oeste y hay sombra en la fachada Este y esta en estación de verano

• Vía principal

• Vía secundaria

UNIVERSIDAD TECNOLOGICA DEL PERÚ DOCENTE: MG. ARQ. OMAR WINCHO CHILQUILLO TALLER DE DISEÑO ARQUITECTONICO IX ( CURSO INTEGRADOR II) ANALISIS DE CASOS HOSPITAL TIPO II GRUPO #01: ZEVALLOS PAYANO, JEAN LAURA CULLANCO, LUCERO RIVAS RAMOS, ESTEFANI SALAS CONDORI, HUBER ANÁLISIS CONTEXTUAL
5880 (Carretera Central) – Distrito de Ate Vitarte,Lima este. VIAS VEHICULARES
L- 09

HOSPITAL EMERGENCIA ATE VITARTE

incidencia solar

- Orientación este y oeste

Humedad Relativa

- máx.. 93mm

- min. 64mm

Vientos - Sur - Suroeste

Temperatura

- máx verano 32°C

- min. Invierno 8°C

POSICIONAMIENTO

El objeto arquitectónico se apoya en el terreno

ACCESIBILIDAD

El terreno cuenta con 3 frentes de fachada por la av.

Nicolás Ayllón, la av. La Estrella y la av. José Carlos Mariátegui, por el cual se pueden plantear accesos que faciliten el tránsito del usuario, como también los accesos vehiculares y de emergencia que permite la llegada desde cualquier dirección hacia el terreno.

DOCENTE: MG. ARQ. OMAR WINCHO CHILQUILLO TALLER DE DISEÑO ARQUITECTONICO IX ( CURSO INTEGRADOR II) ANALISIS DE CASOS HOSPITAL TIPO II GRUPO #01: ZEVALLOS PAYANO, JEAN LAURA CULLANCO, LUCERO RIVAS RAMOS, ESTEFANI SALAS CONDORI, HUBER ANÁLISIS CONTEXTUAL
1 2 3
Avenida Carretera Central Av. José Carlos Mariátegui Calle Unión
CLIMA UNIVERSIDAD TECNOLOGICA DEL PERÚ L- 10

HOSPITAL EMERGENCIA ATE VITARTE

ZONIFICACIÓN

SOTANO

UPS Servicios Generales

UPS Anatomía Patológica

UPSS Nutrición y Dieta

TALLER DE DISEÑO ARQUITECTONICO IX ( CURSO INTEGRADOR II)

ANALISIS DE CASOS HOSPITAL TIPO II

Área verde

DOCENTE: MG. ARQ. OMAR

WINCHO CHILQUILLO

PRIMER NIVEL

UPSS Consulta Externa

UPS Emergencia

UPS Administración

UPSS Diagnostico por Imágenes

UPS Farmacia

UPSS Rehabilitación

UPSS Servicios Generales

Área verde

GRUPO #01: ZEVALLOS PAYANO, JEAN LAURA CULLANCO, LUCERO RIVAS RAMOS, ESTEFANI SALAS CONDORI, HUBER

ANÁLISIS FUNCIONAL - ESPACIAL
UNIVERSIDAD TECNOLOGICA DEL PERÚ L- 11

HOSPITAL EMERGENCIA ATE VITARTE

ZONIFICACIÓN

SEGUNDO NIVEL

UPSS Consulta Externa

UPS Obstétrico

UPSS Centro de Hemoterapia

UPSS Servicios Generales

UPSS Quirúrgico

UPS Administración Confort

TERCER NIVEL

UPSS Unidad de Cuidados

Intensivos

UPS Administración

ARQ. OMAR WINCHO
CURSO INTEGRADOR II) ANALISIS DE CASOS HOSPITAL TIPO II
#01: ZEVALLOS PAYANO, JEAN LAURA CULLANCO, LUCERO RIVAS RAMOS, ESTEFANI SALAS CONDORI, HUBER ANÁLISIS FUNCIONAL - ESPACIAL
DOCENTE: MG.
CHILQUILLO TALLER DE DISEÑO ARQUITECTONICO IX (
GRUPO
UNIVERSIDAD TECNOLOGICA DEL PERÚ L- 12

HOSPITAL EMERGENCIA ATE VITARTE

UNIDAD DE ADMINISTRACION

ZONIFICACIÓN PROGRAMACIÓN

UPS CONSULTA EXTERNA

CUARTO NIVEL

QUINTO NIVEL

Cuenta con las UPSS requeridas por la Norma Técnica de Salud, Se pudo contemplar los siguientes servicios de atención para el área de Consulta Externa: Cardiología Dermatología, Gastroenterología, Ginecología y Obstetricia, Traumatología, Pediatría, Urología, Medicina General, Oftalmología, Oncología y Control de TBC, ITS/VIH en ambientes semi-aislados

AYUDA AL DIAGNOSTICO

DIRECCION

AREAS ADMINISTRATIVAS

ADMISION

CONSULTORIOS

FARMACIA

PATOLOGIA CLINICA

ANATOMIA PATOLOGICA

HEMOTERAPIA

DIAGNOSTICO POR IMÁGENES

EMERGENCIA

UPSS Hospitalización

TALLER DE DISEÑO ARQUITECTONICO IX ( CURSO INTEGRADOR II)

ANALISIS DE CASOS HOSPITAL TIPO II

DOCENTE: MG. ARQ. OMAR

WINCHO CHILQUILLO

EMERGENCIA Y CUIDADOS CRITICOS

HOSPITALIZACION

CENTRO OBSTETRICO

ANESTESIOLOGIA Y CENTRO

QUIRURGICO MEDICINA FISICA Y REHABILITACION

UNIDAD DE CUIDADOS INTENSIVOS GENERAL UNIDAD DE CUIDADOS INTENSIVOS NEONATAL ADMIS.

HOSPITALIZACION

AREA DE APOYO CLINICO

ZONA DE INGRESO

ZONA SEMIRIGIDA

ZONA DE CONTROL E INGRESO (ZONA NEGRA)

ZONA SEMIRIGIDA

ZONA RIGIDA

AREAS DE APOYO

CONTROL E INGRESO

AREA ADMINISTRATIVA

TERAPIA FISICA

TERAPIA LENGUAJE

TERAPIA OCUPACIONAL

ZONA NEGRA

UNIDAD DE ESTERILIZACION

ZONA GRIS

ZONA BLANCA

OTROS SERVICIOS

CONFORT

CONFORT DE PERSONAL

NUTRICION NUTRICION Y DIETA

SERVICIOS GENERALES

LAVANDERIA Y ROPERIA

VESTUARIOS Y SERVICIOS HIGIENICOSDE PERSONAL MANTENIMIENTO Y TALLERES

ALMACEN GENERAL

LIMPIEZA

VIGILANCIA

AREA DE EQUIPOS

GRUPO #01: ZEVALLOS PAYANO, JEAN LAURA CULLANCO, LUCERO RIVAS RAMOS, ESTEFANI SALAS CONDORI, HUBER

ANÁLISIS FUNCIONAL - ESPACIAL
UNIVERSIDAD TECNOLOGICA DEL PERÚ L- 13

HOSPITAL EMERGENCIA ATE VITARTE

CIRCULACIÓN

PRIMER NIVEL ANÁLISIS FUNCIONAL - ESPACIAL

Escaleras Rampas

Jardín

Corredor longitudinal (colectivo)

Corredor longitudinal (restringido)

Corredor longitudinal (mixto)

Acceso colectivo - usuario

Acceso restringido (medico y funcionarios)

UNIVERSIDAD TECNOLOGICA DEL PERÚ L- 14

DOCENTE: MG. ARQ. OMAR WINCHO CHILQUILLO TALLER DE DISEÑO ARQUITECTONICO IX ( CURSO INTEGRADOR II) ANALISIS DE CASOS HOSPITAL TIPO II GRUPO
ZEVALLOS
JEAN
#01:
PAYANO,
LAURA CULLANCO, LUCERO RIVAS RAMOS, ESTEFANI SALAS CONDORI, HUBER
Acceso de servicio (carga y descarga) SEGUNDO NIVEL TERCER NIVEL CUARTO NIVEL QUINTO NIVEL

MODULACIÓN ESTRUCTURAL

Descripción Estructural: Sistema porticado de columnas y vigas sobre cimentación en zapatas, actualmente se encuentran habilitados elementos prefabricados para el empleo de muros divisorios y para ampliaciones.

MATERIALIDAD (EXTERIOR)

MATERIALIDAD (INTERIOR)

ILUMINACIÓN Y VENTILACIÓN

Se percibe una ventilación natural en los ambientes requeridos como las UPSS UCI, HOSPITACION, entre otros (HALL)

DOCENTE: MG. ARQ. OMAR WINCHO CHILQUILLO TALLER DE DISEÑO ARQUITECTONICO IX ( CURSO INTEGRADOR II) ANALISIS DE CASOS HOSPITAL TIPO II GRUPO #01: ZEVALLOS
JEAN
PAYANO,
LAURA CULLANCO, LUCERO RIVAS RAMOS, ESTEFANI SALAS CONDORI, HUBER
Concreto Vidrio templado Cielo raso Aluminio Zócalo sanitario Cielo raso
HOSPITAL EMERGENCIA ATE VITARTE ANÁLISIS TECNICO CONSTRUCTIVO
UNIVERSIDAD TECNOLOGICA DEL PERÚ L- 15

HOSPITALES INTERNACIONALES TIPO II

HOSPITAL LA LINEA DE LA CONCEPCIÓN - ESPAÑA

ACCESIBILIDAD

Ingreso principal

Ingreso emergencia

POSICIONAMIENTO

UBICACIÓN

Volumen Apoyado

Av. Menéndez y Pelayo, ronda norte, 11300, la línea de la concepción

Año 2017

VIAS VEHICULARES

• Vía principal

• Vía secundaria

España Área: - 34,675m²

Cadiz

TOPOGRAFÍA

Terreno de pendiente entre 0.2 y 0.3%

Planho Consultores

CLIMA

• Típicamente mediterráneo.

• La temperatura media anual

24

°C y 16

°C.

ORIENTACIÓN

• La fachada principal se orienta para el lado Sur - Este.

• Su posicionamiento, se asienta en el terreno (sin sótanos).

MG. ARQ. OMAR WINCHO CHILQUILLO
DE DISEÑO
( CURSO INTEGRADOR II) ANALISIS DE CASOS HOSPITAL TIPO II GRUPO #01: ZEVALLOS PAYANO, JEAN LAURA CULLANCO, LUCERO RIVAS RAMOS, ESTEFANI SALAS CONDORI, HUBER
DOCENTE:
TALLER
ARQUITECTONICO IX
Europa
ANÁLISIS CONTEXTUAL
UNIVERSIDAD TECNOLOGICA DEL PERÚ L- 16

HOSPITAL LA LINEA DE LA CONCEPCIÓN - ESPAÑA

PRINCIPIOS ORDENADORES DE COMPOSICION VOLUMÉTRICA Y FORMA

Composición inicial parte de volúmenes interceptados por bloques que generan espacios

ANÁLISIS FORMAL VOLUMÉTRICO

ANÁLISIS DE FACHADA Y VOLÚMENES

VOLÚMENES CON FORMA RECTANGULAR

GIROS ESTRATEGICOS DE BLOQUES PARA CREAR ESPACIOS POLIVALENTES

VOLUMENES CON FORMA DE PARALELEPIPEDO

RITMO / REPETICIÓN EN SUS VENTANAS

UBICACIÓN DE 4 BLOQUES TRANSVERSALES DISTRIBUIDOS SEGUN SU FUNCION QUE EVITA CRUCES INNECESARIOS

DOCENTE: MG. ARQ. OMAR WINCHO CHILQUILLO TALLER DE DISEÑO ARQUITECTONICO IX ( CURSO INTEGRADOR II) ANALISIS DE CASOS HOSPITAL TIPO II GRUPO #01: ZEVALLOS PAYANO, JEAN LAURA CULLANCO, LUCERO RIVAS RAMOS, ESTEFANI SALAS CONDORI, HUBER
UNIVERSIDAD TECNOLOGICA DEL PERÚ L- 17

Instalaciones

Residuos

Almacén

A. Patológica

Cocina

Lavandería

Esterilización

Salud mental

Salud mental II

Salud Preventiva

Vestuario

Archivos

Informática

Adminisión Consultas

Farmacia A rehabilitación Auditoria

Ser. Religioso

Cafetería

Bloque Quirúrgico

Hospitalización

Paritorio

Urgencias

Radiodiagnóstico

Laboratorio Consultas

Dirección

Administración

Cafetería

DOCENTE: MG. ARQ. OMAR WINCHO CHILQUILLO TALLER DE DISEÑO ARQUITECTONICO IX ( CURSO INTEGRADOR II) ANALISIS DE CASOS HOSPITAL TIPO II GRUPO #01: ZEVALLOS PAYANO, JEAN LAURA CULLANCO, LUCERO RIVAS RAMOS, ESTEFANI SALAS CONDORI, HUBER
HOSPITAL LA LINEA DE LA CONCEPCIÓN - ESPAÑA ANÁLISIS FUNCIONAL - ESPACIAL
ZONIFICACIÓN
PRIMERA PLANTA
UNIVERSIDAD TECNOLOGICA DEL PERÚ L- 18

TERCERA

PLANTA

Hospitalización Pediátrica

Hospitalización Obstétrica

Circulación

TERCERA, CUARTA Y QUINTAA PLANTA

DOCENTE: MG. ARQ. OMAR WINCHO CHILQUILLO TALLER DE DISEÑO ARQUITECTONICO IX ( CURSO INTEGRADOR II) ANALISIS DE CASOS HOSPITAL TIPO II GRUPO #01: ZEVALLOS PAYANO, JEAN LAURA CULLANCO, LUCERO RIVAS RAMOS, ESTEFANI SALAS CONDORI, HUBER HOSPITAL LA LINEA DE LA CONCEPCIÓN - ESPAÑA ANÁLISIS FUNCIONAL - ESPACIAL
SEGUNDA PLANTA
Hospitalización convencional Circulación CUARTA Y QUINTA PLANTA
Instalaciones Circulación
PRIMER
FLUJOS
SEGUNDA PLANTA
PLANTA CIRCULACIÓN
Ambulatoria Clínica
UNIVERSIDAD TECNOLOGICA DEL PERÚ L- 19
Servicios

MODULACIÓN ESTRUCTURAL

La estructura del edificio es de hormigón, con losas macizas de 32 cm de espesor. El módulo, en general 7.50 x 6.60 m.

MATERIAL (EXTERIOR)

CUBIERTA CON ACABADO DE GRAVA DE ALTA REFLEXIÓN

ILUMINACIÓN Y VENTILACIÓN

CELOSÍAS METÁLICAS

CRISTAL TEMPLADO DE 10MM

MATERIAL (INTERIOR)

FALSO CIELO RASO DE SUPERBOARD

ACRISTALAMIENTO PINTURA PLÁSTICA

Interior con iluminación natural y vista a patio.

la fachada acristalada para la captación de luz natural

LAMINA DE MADERA MACHIHEMBRADA

ZOCALOS REVESTIDOS CON VINILICO

ESTRUCTURA DE ALUMINIO

FACHADA CON PIEDRA NATURAL (ARENISCA GRIS)

DOCENTE: MG. ARQ. OMAR WINCHO CHILQUILLO TALLER DE DISEÑO ARQUITECTONICO IX ( CURSO INTEGRADOR II) ANALISIS DE CASOS HOSPITAL TIPO II GRUPO #01: ZEVALLOS PAYANO, JEAN LAURA CULLANCO, LUCERO RIVAS RAMOS, ESTEFANI SALAS CONDORI, HUBER
- ESPAÑA
CONSTRUCTIVO
HOSPITAL LA LINEA DE LA CONCEPCIÓN
ANÁLISIS TÉCNICO
UNIVERSIDAD TECNOLOGICA DEL PERÚ L- 20

UBICACIÓN

América del Sur Brasil - Paraná Ciudad Campo Largo

ACCESIBILIDAD

Vía principal

Carga pesada

Año 2014 Área 55,300 m2

TALLER DE DISEÑO ARQUITECTONICO IX (

Antonio Abrao Arquitectura

Manoel Coelho Arquitectura

DOCENTE:

Vía secundaria

TOPOGRAFÍA

• Terreno casi plano con 5% de pendiente

CLIMA

ACCESIBILIDAD

ORIENTACIÓN

• Húmedo Tropical

• La temperatura media anual 25

y 30

°C.

°C

• El entorno urbano cuenta con amplias veredas, con fácil acceso al hospital tanto vehicular como peatonal.

Carga liviana UNIVERSIDAD

• La fachada principal se orienta para el lado Sur - Este.

• Su posicionamiento, se asienta en el terreno (sin sótanos).

HOSPITAL DO ROCIO - BRASIL ANÁLISIS CONTEXTUAL
MG. ARQ. OMAR WINCHO CHILQUILLO
INTEGRADOR II)
CASOS HOSPITAL TIPO II GRUPO #01: ZEVALLOS PAYANO, JEAN LAURA CULLANCO, LUCERO RIVAS RAMOS, ESTEFANI SALAS CONDORI, HUBER
CURSO
ANALISIS DE
TECNOLOGICA DEL PERÚ L- 21

PRINCIPIOS ORDENADORES, ORGANIZADORES Y FORMA

ritmo / repetición en los volúmenes creando espacios de llenos y vacíos

volúmenes con forma paralelepípedo

la fachada de la entrada principal contempla la jerarquía, resaltándose por el envolvente rectangular que la envuelve

contempla una repetición de volúmenes tanto en la zona norte como sur

un espacio de otro lo tiene por encadenamiento a medida que se va expandiendo de manera vertical; en donde en la primera planta se aprovecha para ordenar las áreas de cada unidad hospitalaria.

PRINCIPIOS

COMPOSITIVOS

Equilibrio

Movimiento

Proporción

Jerarquía

Contraste

DOCENTE: MG. ARQ. OMAR WINCHO CHILQUILLO TALLER DE DISEÑO ARQUITECTONICO IX ( CURSO INTEGRADOR II) ANALISIS DE CASOS HOSPITAL TIPO II GRUPO #01: ZEVALLOS PAYANO, JEAN
ANÁLISIS FORMAL VOLUMÉTRICO UNIVERSIDAD TECNOLOGICA DEL PERÚ L- 22

ZONIFICACIÓN PROGRAMACIÓN

LEYENDA

1.parque lago

2.acceso público

3.acceso ambulatorio

4.acceso servicios

5.bloque 1 hospital

6.bloque 2 ambulatorio

7.bloque 3 servicios

8.bloque 4 servicios

9.estacionamiento visitantes

10.estacionamiento servicio

11.bosque

12.helipuerto

1, recepción general

2, cafetería

3, recepción de diagnostico

4, recepción de enfermería

5, recepción de primeros auxilios

6, recepción de UCI

7, sal AUCI 1

8, sal AUCI 2

9, sal AUCI 3

LEYENDA

10, uci

11, estar medico

12, sala de pediatría

13, sala de neonatal

14, centro quirúrgico

15, farmacia general

16, cafetería

17, salón comunal

18, unidad de emergencia

19, primeros auxilios

20, centro de diagnostico e imagen

21, departamento de servicios estériles

22, jardines

PLANTA PRIMER NIVEL
ANÁLISIS FUNCIONAL - ESPACIAL
TECNOLOGICA DEL PERÚ L- 23
UNIVERSIDAD

LEYENDA

escaleras

rampas

jardín

techo verde

corredor longitudinal (colectivo)

corredor longitudinal (restringido)

corredor longitudinal (mixto)

acceso colectivo-usuario

acceso restringido (médicos y funcionarios)

acceso de servicio (carga y descarga)

DOCENTE: MG. ARQ. OMAR WINCHO CHILQUILLO TALLER DE DISEÑO ARQUITECTONICO IX ( CURSO INTEGRADOR II) ANALISIS DE CASOS HOSPITAL TIPO II GRUPO #01: ZEVALLOS PAYANO, JEAN
CIRCULACIÓN
PLANTA TERCER NIVEL HOSPITAL DO ROCIO - BRASIL ANÁLISIS FUNCIONAL - ESPACIAL UNIVERSIDAD TECNOLOGICA DEL PERÚ L- 24
PLANTA PRIMER NIVEL PLANTA SEGUNDO NIVEL

MODULACIÓN ESTRUCTURAL

Como Sistema estructural de la edificación, utilizan el aporticado; este sistema brinda grandes espacios para diversos usos, en la cual se denotan por las magnitudes de las columnas como vigas y las grandes luces, como se aprecian en la imagen.

MATERIAL (EXTERIOR)

MATERIAL (INTERIOR)

ILUMINACIÓN Y VENTILACIÓN

Contempla una ventilación como iluminación natural ya que se encuentra rodeado de un bosque de araucaria y los pinos típicos de Paraná.

DOCENTE: MG. ARQ. OMAR WINCHO CHILQUILLO TALLER DE DISEÑO ARQUITECTONICO IX ( CURSO INTEGRADOR II) ANALISIS DE CASOS HOSPITAL TIPO II
LAURA CULLANCO, LUCERO RIVAS RAMOS, ESTEFANI SALAS CONDORI, HUBER revestimiento de paneles de metal revestimiento de paneles de PVC concreto celosía metálicas cristal templado de 10mm Pintura colores claros y pasteles Cerámica antideslizante Cristal templado de 10mm Paneles acústicos de madera cielo raso de drywall
ANÁLISIS TÉCNICO CONSTRUCTIVO HOSPITAL DO ROCIO - BRASIL UNIVERSIDAD TECNOLOGICA DEL PERÚ L- 24
Acero inoxidable

HOSPITAL UNIVERSITARIO DE VALLADOLID - ESPAÑA ANÁLISIS CONTEXTUAL

ACCESIBILIDAD

Vía principal

UBICACIÓN

Europa España – Ciudad Castilla y León

TOPOGRAFÍA

CLIMA

ACCESIBILIDAD

ORIENTACIÓN

Año 2014 Área 50,000 m2

TALLER DE DISEÑO ARQUITECTONICO

Pardo Tapia Arquitectura

Salvador Mata Arquitectura

DOCENTE: MG. ARQ. OMAR WINCHO CHILQUILLO

• Terreno casi plano con 5% de pendiente

• Húmedo, nublado

• La temperatura media anual 26°C y 29°C.

• El entorno urbano cuenta con amplios caminos, con fácil acceso al hospital tanto vehicular como peatonal.

• La fachada principal se orienta para el lado Nor - Este.

• El posicionamiento de la edificación es deprimida.

SALAS
IX ( CURSO INTEGRADOR II) ANALISIS DE CASOS HOSPITAL TIPO II GRUPO #01: ZEVALLOS PAYANO, JEAN LAURA CULLANCO, LUCERO RIVAS RAMOS, ESTEFANI
CONDORI, HUBER
Vía secundaria Carga liviana Provincia Valladolid
UNIVERSIDAD TECNOLOGICA DEL PERÚ L- 25
Carga ligera

PLANTA PRIMER NIVEL

LEYENDA

1.Acceso general acceso público acceso ambulatorio acceso servicios

2, bloque hospital

3. bloque antiguo hospital

1,Recepción general

2,Recepción de diagnostico

3,Recepción de enfermería

4,Recepción de primeros auxilios

5,Recepción de UCI

6,Salas UCI

7,Unidad de emergencia

HOSPITAL
DE VALLADOLID - ESPAÑA
MG. ARQ. OMAR WINCHO CHILQUILLO
DE DISEÑO ARQUITECTONICO IX ( CURSO INTEGRADOR II) ANALISIS DE CASOS HOSPITAL TIPO II GRUPO #01: ZEVALLOS PAYANO, JEAN LAURA CULLANCO, LUCERO RIVAS RAMOS, ESTEFANI SALAS CONDORI, HUBER
UNIVERSITARIO
DOCENTE:
TALLER
ZONIFICACIÓN PROGRAMACIÓN
1 2 3 ANÁLISIS FUNCIONAL - ESPACIAL 7 7 1 2 3 5 6 4 6 UNIVERSIDAD TECNOLOGICA DEL PERÚ L- 26
LEYENDA

CIRCULACIÓN

LEYENDA

escaleras

LEYENDA

corredor longitudinal (colectivo)

corredor longitudinal (restringido)

corredor longitudinal (mixto)

acceso colectivo-usuario

acceso restringido (médicos y funcionarios)

acceso de servicio (carga y descarga)

DOCENTE: MG. ARQ. OMAR WINCHO CHILQUILLO TALLER DE DISEÑO ARQUITECTONICO IX ( CURSO INTEGRADOR II) ANALISIS DE CASOS HOSPITAL TIPO II GRUPO #01: ZEVALLOS
JEAN
PAYANO,
LAURA CULLANCO, LUCERO RIVAS RAMOS, ESTEFANI SALAS CONDORI, HUBER
PLANTA PRIMER NIVEL
PLANTA TERCER NIVEL HOSPITAL UNIVERSITARIO DE VALLADOLID - ESPAÑA ANÁLISIS FUNCIONAL - ESPACIAL UNIVERSIDAD TECNOLOGICA DEL PERÚ L- 27
PLANTA SEGUNDO NIVEL

HOSPITAL UNIVERSITARIO DE VALLADOLID - ESPAÑA ANÁLISIS TÉCNICO CONSTRUCTIVO

MODULACIÓN ESTRUCTURAL

MATERIAL (EXTERIOR)

MATERIAL (INTERIOR)

concreto

Como Sistema estructural de la edificación, utilizan el aporticado; este sistema brinda grandes espacios para diversos usos, en la cual se denotan por las magnitudes de las columnas como vigas y las grandes luces, como se aprecian en la imagen.

ILUMINACIÓN Y VENTILACIÓN

Contempla una ventilación como iluminación natural, por su misma posición, teniendo un mejor rendimiento energético.

DOCENTE: MG. ARQ. OMAR WINCHO CHILQUILLO TALLER DE DISEÑO ARQUITECTONICO IX ( CURSO INTEGRADOR II) ANALISIS DE CASOS HOSPITAL TIPO II GRUPO #01: ZEVALLOS
PAYANO, JEAN LAURA CULLANCO, LUCERO RIVAS RAMOS, ESTEFANI SALAS CONDORI, HUBER
Paneles de revestimiento para cielo raso Pintura colores claros y pasteles Céramica antideslizante Claraboyas para caminerias internas
UNIVERSIDAD TECNOLOGICA DEL PERÚ L- 28

hemos podido observar proyectos distintos de un mismo rubro y uso con particularidades que se rigen a la normativa técnica de construcción de cada país pero con precisiones supervisadas por normativa técnica del sector salud.

1 2 3 4

Ante lo analizado, las edificaciones de salud internacionales, muy aparte de su arquitectura y esbeltez, sus normas de salud para Tipo II son superiores, llegando estas a hospitales de enseñanza de Tipo III; ello nos hace reflexionar que en los hospitales peruanos hacen falta mejorar ciertas unidades y equipos de trabajo para un mejor bienestar para la ciudadanía.

Por lo expuesto en los casos, se puede notar una diferencia con la cantidad de ambientes entre las edificaciones nacionales e internacionales, dejando en claro que se debe analizar la composición y complejidad de los hospitales peruanos.

Caso nacional: HOSPITAL DE EMERGENCIA ATE VITARTE, fue diseñado para la atención del 40% de la población en Ate Vitarte, sin embargo, su nivel de atención no es el adecuado que este hospital atiende a más del 70% de la población de Ate, por lo que no satisface la densidad poblacional del distrito.

- SALAS CONDORI, HUBER
CONCLUSIONES
- ZEVALLOS PAYANO, JEAN - RIVAS RAMOS, ESTEFANI - LAURA CULLANCO, LUCERO

REFERENCIAS

• https://www.archdaily.com.br/br/872443/hospital-do-rocio-manoel-coelho-arquitetura-e-design

• https://www.archdaily.com.br/br/779076/hospital-universitario-de-valladolid-pardo-tapia-arquitectosplus-salvador-mata

• https://www.transparencia.gob.pe/enlaces/pte_transparencia_enlaces.aspx?id_entidad=19857&id_te ma=34&ver=D

• http://www.essalud.gob.pe/hospital-ii-luis-negreiros-del-callao-celebra-iv-aniversario/

• https://www.minsa.gob.pe/Recursos/OGTI/geominsa/est_san/eess_estra//17_La%20Libertad/3Chepen%20Pacasmayo.pdf

• https://www.archdaily.pe/pe/894399/hospital-general-de-la-linea-de-la-concepcion-planhoconsultores

TALLER DE DISEÑO ARQUITECTONICO IX

Turn static files into dynamic content formats.

Create a flipbook
Issuu converts static files into: digital portfolios, online yearbooks, online catalogs, digital photo albums and more. Sign up and create your flipbook.