


![]()



Puji Syukur saya panjatkan pada Tuhan Yang Maha Esa karena berkat rahmatnya saya dapat menyelesaikan project dan portofolio Studio Perancangan Arsitektur 5 ini tepat waktu.
Sebelumnya saya ingin berterima kasih kepada Bapak Nutrian Galupamudia, ST., MT selaku koordinator dosen kelas Studio Perancangan Arsitektur 5 atas ilmu dan materi- materi yang


Gelanggang Remaja - Youth Center

1321031005
Dosen Pembimbing::
NoehRaizalTarigan,ST,MT
LokasiPerancangan:
Jl Raya Jkt Jl Pakupatan No.KM.7, Panancangan, Kec. Cipocok Jaya, Kota Serang, Banten42124
LuasLahan: 14000m2
ZENSpo merupakan sebuah gelanggang remaja untuk menunjang berbagai kegiatan remaja seperti olahraga, dan aktivitas kreativitas bagi para remaja baik itu dalam skala besar ataupun kecil
Gelanggang remaja ini terbagi menjadi 2 massa berbeda berdasarkan kegiatan, yaitu gedung olahraga dan gedung kesenian yang masing- masing memiliki 2 lantai dan satu basementpadaareagedungolahraga
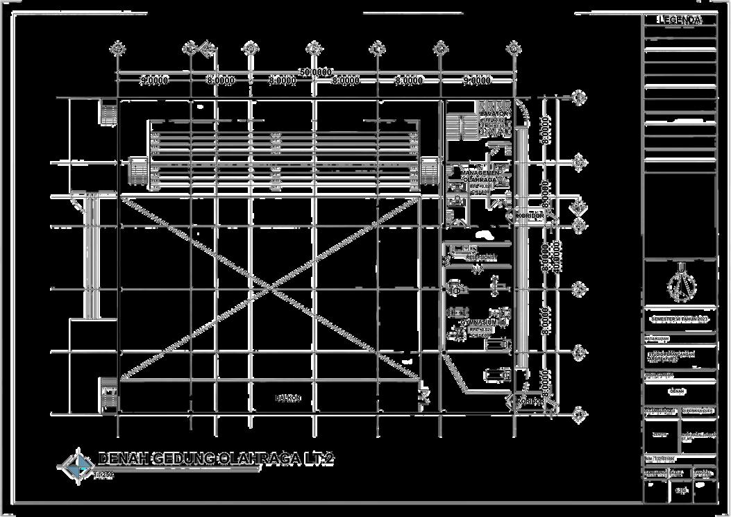
Pada gedung olahraga terdapat basement, dengan lantai 1 yang memiliki 1 lapangan multifungsi yang terdapat 3 macam jenis olahraga, yaitu bulu tangkis, futsal dan basket, difasilitasi juga ruangpelatih,areabilas,lavatory,ruanggantidanlokersertaklinik, ,resepsionist,ruangpengelola,areabelanja,sertacoffeshop,Pada lantai2terdapatareatribunpasif,lavatorydanjugaruanggym.
Pada gedung kesenian lantai 1, terdapat area pengelola, resepsionist, lobby, perpustakaan, mushola, serta mini market. Lantai 2 yaitu adalah lantai utama yang mana pada lantai ini terdapat beberapa macam ruang diataranya, aula, ruang podcast,ruangsenitari,danjugaruangsenilukis



Memiliki kawasan yang sangat strategis karenaletaknyabertempatandijalanutama dandiapitolehbeberapauniversitas


A N G I N / U D A R A



Angin / udara yang bergerak dari arah barat hingga timur site dapat dimanfaatkan sebagai salah satu sumber udaraalamiuntukbangunan

V E G E T A S I
Vegetasi pada bagian t menjadi penghalang mas matarahari berlebih, menjadi titik utama dari landscape berupa taman dan playground Pada sisi- sisi tapak dari berbagaiarahjugaditanamkanberbagai pohon, guna menjadikan kawasan lebih sejuk dan asri karena daerah tersebut memilikicuacayangpanasdanberpolusi
M A T A H A R I Mu ar me ma ta be

Kebisinganyangpalingtinggiberasaldari kendaraan di jalan raya ditanamkan vegetasi siarea sisi tapak berpotensi mengurangi kebisinganyangmenjadidayatarikpengunjung
Luas Lahan 14 000m2= 1 40 Ha KDB : 60% (14 000 x 60%)=8 400m2
KLB : 3,5 (14 000 M2 x 3,5) = 84 000 M2
KTB : 70% (14 000 m2 x 70% = 9 800 m2
KDH : 30% (14 000m2 x 30%) = 2 100 m2
GSB : 5 Meter
Lebar Pedestrian : 2 Meter
Lebar Drainase : 2 Meter
GSB: 1/2 Lebar Jalan : 5 Meter
Lebar Jalan Utama 2 Arah : 20 Meter


Concept
Menggunakan konsep desain Industrial modern, membuat bangunan ini terekspose dari segi tampilandanstrukturnya
Meskipun terdiri dari 2 massa berbeda, namun kedua massa tetap dapat terhubung karena disatukan dengan penghubung berupa koridor yang beradaditengah-tengahkeduamassa, dapat digunakan pengunjung untuk berpindah dari gedung satu ke gedung lainnya
Massa bangunan terbagi berdasarkan jenis kegiatan penggunjung


Masa terbentuk dari persegi panjang, yang pada akhirnya massa dipecah untuk mengoptimalkan sirkulasi dan cahaya.

Dipecah menjadi 2 massa dengan bentuk dasar yang merespon bentuk site.

Kemudian mengalami transformasi subraktif dan aditif pada massa sebagai bentuk penyesuaian terhadap tapak
Hasil akhir massa bangunan yang dinaikkan untuk memenuhi fungsi ruang serta penambahan koridor dan secondary skin untuk fasad, guna privasi dan penghubunh bangunan serta penghalau silau matahari dari barat.
1 GedungOlahraga
2 GedungKesenian
3 ServiceArea
4.PlayGround
5.DropOff
6 Taman
7 ParkiranMobil&Sepeda







GedungOlahraga POTONGAN
GedungOlahraga

POTONGAN A-A
GedungKesenian


POTONGAN B-B GedungKesenian
















Struktur Truss
Dak Beton
Balok Anak
30x30
Cladding
Perforated
Metal
Cladding
Perforated
Metal
Balok 60x30
Gedung Kesenian


Sloof Kolom 30x30
Pondasi Tiang
Pancang

Balok 60x30
Sloof Kolom 30x30
Pondasi Tiang
Pancang











Area Lapangan & Tribun



Ruang Podcast






Koridor : Bangunan Olahraga ke Bangunan Kesenian


