Zeynep Altın Portfolio 2024

Page 1


Portfolio 2024

Zeynep Altın
Lapidarium
Grad Sticks and Stones Museum
Fabrik
Villa Hayit
Edenhof Wohnbau Bildungszentrum

Lapidarium

Monte Sant’Angelo, Foggia Bachelor Entwerfen | Stadtstruktur Apulia Museum

Die abgelegene und historische Stadt Monte Sant’Angelo, gelegen in den Bergen Apuliens, steht vor einer demografischen Herausforderung. Die Bevölkerung altert zunehmend, da die junge Generation in größere Städte abwandert, um dort bessere berufliche Möglichkeiten zu finden. Um dieser Entwicklung entgegenzuwirken, hat der Stadtrat beschlossen, einige Gebäude zu renovieren. Das prominenteste dieser Gebäude ist ein altes Kino, das aus massiven Betonwänden besteht. Um die Stadt für den Tourismus attraktiver zu machen, soll dieses Kino in ein Lapidarium umgewandelt werden.

Das Konzept basiert auf dem Kontrast zwischen offenen und hellen Ausstellungsräumen und geschlossenen, dunklen Räumen, die durch eine Innenterrasse verbunden werden. Die Aufteilung sieht vor, die Ausstellungsräume (weiß) und die Funktionsräume (schwarz) in den Grundrissen klar zu trennen.

Typologie of Monte Sant’Angelo

Konzept

Kontrast zwischen offenem und belichtetem Ausstellungsraum und geschlossenen und dunklen Räume durch Innenterasse. Aufteilung der Ausstellungsraum (weiß) und Funktionsräume (schwarz) auf die Grundrisse

Konzept & Lageplan 1:2000

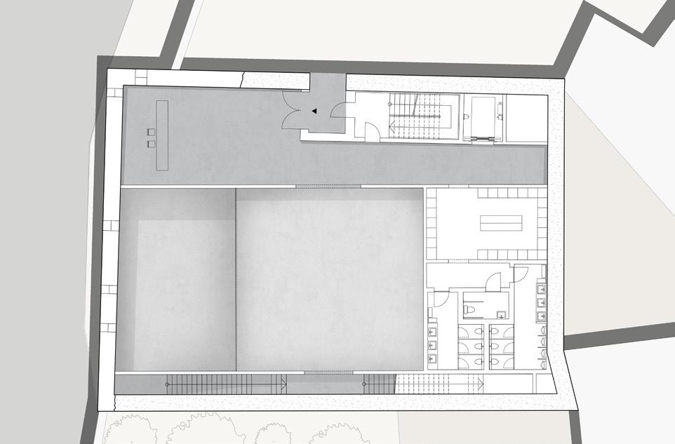
1. Obergeschoss, Erdgeschoss, 1. & 2. Untergeschoss 1:500

Ansicht Nord 1:500

Ansicht Ost 1:500

Schnitt A-A 1:500

Schnitt B-B 1:500

Modellfoto Innenperspektive

9264 GRAD

Grad, Slowenien

Großes Entwerfen | Birck Academy Goricko Ziegelproduktionsanlage mit Kollege: Joel Profe

In Goričko, Slowenien, sollte eine Ziegelakademie errichtet werden. Das zentrale Thema des Projekts war Upcycling, und auf dem Baugelände befand sich ein altes Gebäude, das aus Ziegeln bestand. Um die Geschichte des Standorts zu bewahren und so ressourcenschonend wie möglich zu arbeiten, wurde ein Großteil der ursprünglichen Struktur erhalten. Einige Ziegel sowie neue Ziegel, die aus Abfallmaterialien hergestellt wurden, fanden in der Akademie Verwendung. Das Thema „Material“ steht im Mittelpunkt des Projekts. Die Mission des Projekts besteht darin, vorhandene Materialien bestmöglich wiederzuverwenden und eine Produktionsund Testanlage für Flugascheziegel aus Industrieabfällen zu schaffen. Diese Industrieabfälle werden aus einem Umkreis von maximal 100 km gesammelt. Neben der Produktion von Ziegeln aus Abfallmaterialien ist es das Ziel, die bestehenden Gebäude auf dem Gelände upzucyceln. Vor der Konzeptentwicklung wurde eine Fallstudie zum Experimentalhaus von Alvar Aalto durchgeführt. Auf Basis der Erkenntnisse aus der Fallstudie sowie der Analyse des Baugeländes und seiner Umgebung entstand das „Patchwork“Konzept. Verschiedene Patchwork-Formationen und Ziegeltypen wurden getestet und in den Bau der Akademie integriert. Am Ende wurde eine voll funktionsfähige Ziegelproduktionsakademie geschaffen, die sowohl die Geschichte des Standorts als auch die Forschung am Material widerspiegelt.

Inhalt des Flugascheziegel Quarry

Herstellung des Flugascheziegel

PHASE 1

Phase 1

reference research

Referenzrecherche

PHASE 2 experiments

Phase 2 Experimente

PHASE 3

Phase 3

location analysis

Bauplatz Analyse

PHASE 4

Phase 4

fragment design

Fragmentdesign

Konzept - Ziegel

Alvar Aalto

Alvar Aalto

Experimental House

Experimental House

experiments with brick sizes and bonds

Experimente mit Ziegelgrößen und Verbände

agricultual patterns of the building location

landwirtschaftliche Muster des Standorts

patchwork of bonds

Patchwork von Verbände

patchwork of bricks

Patchwork aus Ziegeln

Konzept - Fassade

Konzept - Fassade

1) Entfernen des Daches, der tragenden Strukturen und der irreparablen Teile der Ziegelwände

4) Konstruktion des Archivgebäudes

2) Erhaltung der restlichen Wandkonstruktionen und Nutzung der Dachkonstruktionen als Stürze zur Abstützung, Positionierung der Neubauten im Hauptgebäude

5) Fertigstellung des Ziegelproduktionsgebäudes mit Ergänzung der Fassade und des Innenausbaus

3) Konsturktion des Produktionsgebäudes mit der permanenten Tragkonstruktion und temporären Wänden

6) Konstruktion der Werkstatt, des Cafés und des Pavillons

Axonometrien aller Gebäude

Erdgeschoss

Schnitt 1-1

Detailschnitt: Fassade des Produktionsgebäudes

Sticks and Stones Lindabrunn, Österreich

Großes Entwerfen | Shelter Lindabrunn modulare Dachkonstruktion für Veranstaltungen im Freien mit Kolleg*innen: Jonas Gündar, Gabriela Garstenauer

Eine Gruppe von Bildhauern beauftragte den Bau einer temporären Struktur, um ihre aus natürlichen Elementen errichtete Bühne sowie ihre Werkstätten vor den Wetterbedingungen der Region zu schützen. Die Arbeiten fanden in einem BildhauerRetreat in Lindabrunn, Niederösterreich, statt. Die Aufgabe stellte Anforderungen: Die temporären Pavillons sollten von der Gruppe innerhalb eines Tages aufgebaut und wieder abgebaut werden können und in ihren zwei Schiffscontainern gelagert werden.

Die Lösung fand sich in einer Interpretation der selbsttragenden DaVinci-Brücke, basierend auf dem Prinzip von Leonardo DaVinci. Es wurden Experimente durchgeführt, um mehrere Brückenstrukturen zu schaffen, die auf unterschiedliche Weise miteinander verbunden werden konnten, um eine organische Form oder eine Kuppel zu erzeugen. Diese Experimente wurden später durch parametrisches Design und visuelle Programmierung in Rhino und Grasshopper mit dem Plug-In Karamba 3D unterstützt.

Am Ende wurden Dachstrukturen geschaffen, die sowohl für Unterhaltungszwecke wie Konzerte oder Versammlungen als auch zum Schutz der Bildhauer vor den Wetterbedingungen während ihrer Arbeit genutzt werden konnten.

Konzept

experimetelle Struktur, die mit Leonardo Prinzip gebaut wird

Experimente

Experimente

Experimente

Experimente mit dem Modell, um das Grundprinzip auf verschiedene Weise zu realisieren

Einheiten

verschiedene Strukturen, die mit Hebelstabwerkmodule, Koppelstäbe und Hüllenmodule gebaut werden können

Verformung durch Hülle

gesamte Verformung

Verformung durch Windlast 0,5 kN/m²

Verformung durch Lautsprecher (24,3 kg & 38,3 kg)

Last der Lautsprecher (24,3 kg & 38,3

max. Verformung 23.79 cm

0. Schwerkraft: 4.32 cm

1. Last der Hülle: 2.06 cm

2. Windlast: 12.65 cm

3. Lautsprecher (24,3kg): 2.01cm

4. Lautsprecher (38,3kg): 2.75 cm

3D Modellierung und Statische Berechnungen mit Rhino-Grasshopper und Karamba Plug-In

Last der Hülle (3 kg/m²)
kg)
Windlast (0,5 kN/m²)

Bauplatzanalyse

Stützpunkte Kunstwerke

Sichtachsen Bewegungsraum

Lageplan
Schnitt

Verbindung Details

gelagerte Einzelteile und mögliche Kombinationen

Edenhof Wien, Österreich

Großes Entwerfen | Hardware Software Bildungszentrum mit Kollegin: Esra Altaş

Lageplan

Die zentrale Idee des Entwurfsstudios trägt den Namen „Hardware/ Software“. Hardware bezieht sich auf die dauerhafte Konstruktion des Gebäudes, während Software den funktionalen und flexiblen Teil repräsentiert, der die Nutzung in den Vordergrund stellt. Das Projekt, ein Bildungszentrum in einem neu entwickelnden Teil Wiens, bewahrt das bestehende Gebäude auf dem Baugelände, um Abfall und Umweltauswirkungen eines Abrisses zu vermeiden.

Das alte Dorfgebäude, ursprünglich in L-Form errichtet, wird zum quadratischen Gebäude ergänzt und bildet die „Hardware“ des Projekts. Hier befinden sich die Klassenzimmer und privaten Bereiche des Zentrums, gebaut aus Ziegeln. Im Kontrast dazu steht der multifunktionale Innenhof, die „Software“, wo Aktivitäten wie Flohmärkte, Kinoabende, Freizeitgestaltung und Ausstellungen stattfinden können. Die Stahlkonstruktion des Daches über dem Hof kann je nach Wetterbedingungen flexibel angepasst werden.

Bauplatz Analyse städtebauliches Konzept

Bauplatz

0. Bestand

Bestandsgebäude

1. Vervollständigung

Umbau - Vervollständigung

2. Feste Funktionen vs. Multifunktionalität (Hardware/Software)

zweigeschossiges Bildungszentrum

3. Aufteilung der Funktionen

Ausführung der klappbaren Dachkonstruktion über dem Innenhof

4. Proportionale Division Tools and Concept Bauprozess

Erdgeschoß - Vorher

Erdgeschoß - Nachher

Breitenfurter Straße
Breitenfurter Straße
Schnitt A-A
1. Fully Closed (0.8-2°)
2. Semi-Opened
3. Fully Opened (90°)

Hayıt Datça, Türkei

Privatprojekt Wohnbau

Die Auftraggeber wünschten den Bau einer Villa auf ihrem privaten Grundstück für ihre Familie und Gäste. Das Baugelände befindet sich in der touristischen Küstenstadt Datça, die bekannt ist für ihre Oliven- und Mandelproduktion. Die Stadt ist auch für ihre strengen Bauvorschriften bekannt, da es sowohl Naturschutzgebiete als auch archäologische Stätten gibt. Die maximale Bebaubarkeit eines Grundstücks ist auf 150 Quadratmeter begrenzt. Zudem gibt es strikte Vorgaben für die Fassadengestaltung: Es darf entweder in Stein gebaut oder komplett weiß gestrichen werden.

Der Hauptwunsch der Kunden bestand darin, zwei separate Apartments für Gäste im Erdgeschoss und eine größere Wohnung für die Familie im Obergeschoss zu bauen. Außerdem wollten sie Solarpaneele nutzen und ein Satteldach errichten, um diese zu platzieren, da in der Region häufig Stromausfälle auftreten. Das Baugelände ist ursprünglich ein Olivenhain, und die Bäume sollen nicht gefällt werden, sodass der mittlere Teil des Grundstücks für die Bebauung vorgesehen ist.

Das Gebäude wurde entsprechend den Bauvorschriften der Gemeinde entworfen und hier im Stil des österreichischen Standards für Einreichpläne präsentiert.

Lageplan

+0,15=14.19

+0,40=14.44

+0,43=14.47

Grundriss 1. Obergeschoss

Ansicht Südost

Ansicht Südwest

Ansicht Nordwest

Haus Altin Datça

Ansicht Norwest Ansicht Nordost

Ansicht Nordost & Nordwest

PROJ-NR: 1 100

DATUM:

C:\Users\zalti\Desktop\Projekte\Datça\3D.rvt 09.02.2024 ZA 30-01

PLAN-NR: GEZ: DER AUSFÜHRENDE IST VERPFLICHTET, ALLE BESTANDSMASSE UND PLANKOTEN VOR ARBEITSBEGINN ZU ÜBERPRÜFEN. DIESE ZEICHNUNG IST UNSER GEISTIGES EIGENTUM UND UNTERLIEGT DEM URHEBERRECHT. EINE VERVIELFÄLTIGUNG, AUSHÄNDIGUNG AN DRITTE PERSONEN ODER ÜBERLASSUNG AN KONKURRENZFIRMEN IST UNTERSAGT.

UND UNTERLIEGT DEM URHEBERRECHT. EINE VERVIELFÄLTIGUNG, AUSHÄNDIGUNG AN DRITTE PERSONEN ODER ÜBERLASSUNG AN KONKURRENZFIRMEN I

Baustelle

Zeynep ALTIN

curriculum vitae

Adresse: 1150, Wien

E-Mail: zaltin95@gmail.com

Geburtsdatum: 1995

www.linkedin.com/in/zeynep-altin-72b095213

Berufserfahrung

04.2022-04.2024

Architektin

BEX Architektur, Wien

Aufgaben

• Zeichnung von Entwurfs-, Einreich- und Ausführungspläne

• 3D Projekt Darstellung

• Aushilfe mit diversen Bürotätigkeiten

09.2021 - 03.2022

Praktikantin

Baumeisterbetrieb von Dipl.-Ing. (FH) Kiymet Adali, Wien

Aufgaben

• Zeichnung von Einreichpläne

• 3D Projekt Darstellung

• Aushilfe mit diversen Bürotätigkeiten

08. 2015 - 09. 2015

Praktikantin

Meteksan Druck und technische Industrie Handel GmbH., Ankara

Aufgaben

• Bucheinbanddesign

• Unterstützung der Kunden bei der endgültigen Entscheidung über ihre Produkte

Fähigkeiten

CAD-Programme

AutoCAD

Revit

Rhino & Grasshopper

SketchUp

ARCHICAD

Adobe CC

Adobe Illustrator

Adobe InDesign

Adobe Photoshop

Sontiges

Microsoft Office Suite

Unity 3D

QGis

Ausbildung

seit 2020

2014-2020 2009-2013

Sonstiges

08. 2017 - 09. 2017

Sprachkenntnisse

Turkisch

Englisch

Deutsch

Technische Universität Wien, Architektur MSc

Technische Universität Wien, Architektur BSc

Staatliches Anatolisches Gymnasium Ümitköy, Ankara

Super Adobe Workshop mit Obaruhu Architecture & Art

Muttersprachlerniveau

Turn static files into dynamic content formats.

Create a flipbook
Issuu converts static files into: digital portfolios, online yearbooks, online catalogs, digital photo albums and more. Sign up and create your flipbook.