Zak Iljas Kosseifi - Portfolio 2024

Page 1


Ž AK ILJAS KOSSEIFI

Politecnico di Milano M.A Holy Spirit of Kaslik B.Sc

One merely looks at a building and should realize the dynamic nature it imposes on itself and its surrounding. Spaces are regarded as static entities, however most fail to understand their importance. When architects design, they have an opportunity to leave a lasting impact. An achievement in itself and architects are gifted with this in every building they design. This is why we study architecture: we have the ability to change, to impact, to inspire every individual who comes in contact with our projects.

ŽAK ILJAS KOSSEIFI

Laurea Magistrale Politecnico di Milano

Bachelor Degree Holy Spirit University of Kaslik

PROFESSIONAL OFFICE WORK:

RELEVANT EXPERIENCE

E-mail: jacques.elias@outlook.com

BIM Architect - BIM department at D&D Engineering Building Factory | Jan 2024 - present Milan (in Office)

Supporting member of the BIM team for the development and coordination of tender sendoffs with BIM Revit and AutoCAD Architecture for a variety of international large scale stadiums, and local residential complexes. 2,000 sqm to 40,000 sqm | Projects cost from +10M to +100M EUR.

BIM Architect + Visual Programmer at Design International | May 2022 - Dec 2023 Milan (in Office) London (Online)

Worked on international projects in the Middle East, Eruope and Asia with CAD to Rhino+Grasshopper to BIM; from concept development to handling master files for render handoffs, as well as using Revit for tender handoffs. 1,000 sqm to 40,000 sqm | Projects cost from +1M to +50M EUR.

FREELANCE ONLINE WORK:

BIM Modeler at Studio Archemi | Sep 2023 - Dec 2023

Residential project for tender sendoff of the Lamarmora Residential Complex with BIM Revit. Responsibility consisted of handling 100+ sheets along with coordination of central model changes with structural & lead design team. 3,000 sqm | Project cost +20M EUR.

BIM Consultant - Schematic Design at PASP - Zhilproekt | Jan 2022 - Feb 2022

Worked along side Andrei Tuterev and his team as an international design consultant and concept architect for a competition located in Voronezh, regarding an old bread factory on which a new residential and commercial project is planned on being erected. The main focus was to reintroduce the previous bread factory’s spirit into the project and neighbouring site.

LANGUAGES

English

Arabic

Russian

French

Italian

EDUCATION

Politecnico di Milano

Laurea Magistrale in Architettura delle Costruzioni

Silver Merit-Based Scholarship

Holy Spirit University of Kaslik

B.Sc. in Architectural Studies

Application Entrance Scholarship

SKILLS SUMMARY

Revit

AutoCAD

Adobe Suite

Rhinoceros 3D

Grasshopper

Lumion 2023

COMPETITIONS

YAC- Young architects competition FINALIST

SPACES FOR FASHION - Architecture

BDF - Beirut Design Festival FINALIST

A+ AWARDS - Product Design Phone:

WORKFLOW

HANDSKETCHES

[ Digital or traditional sketching for quick analysis studies, perspective and orthographic views ]

AUTOCAD

[ 2D drafting of general plan layouts and for further detailing during final construction phases ]

RHINOCEROS 5, 6 OR 7

[ Modelling masses for conceptual studies to detailing and masterfile handoffs for rendering purposes ]

GRASSHOPPER

[ Parametric generative designs, incorporating efficiency and fast paced changes from small scale families to large scale project ]

REVIT (ALL VERSIONS)

[ BIM modeling small scale and large scale projects ]

LUMION 10 TO 12.5

[ Mass vegatation placement, people and master renders for almost every project done both academicaly and professionaly ]

ADOBE CREATIVE SUITE

[ Photoshop, Illustrator and InDesign for general post processing touch ups or additional illustrations on renders and presentations ]

AI IMPLEMENTATION

[ MidJourney, DALLE.3, Invoke AI, RendAIr]

RHINO
LUMION

COMPETITION

FREELANCE

ACADEMIC

[ PROJECT 1, 2, 3 ]

PROFESSIONAL

[ PROJECT 4, 5, 6, 7, 8, 9, 10 ]

KELLS PRIORY COMPETITION

HOST : YOUNG ARCHITECTS COMPETITION

TYPE : MIXED USE

SITE : KELLS PRIORY, IRELAND

PARTNER : ELENA MELIAKOVA

A photograph catches a glimpse of the past, while architecture projects its spirit by materializing the metaphysical plane with not what has remained, but with the ignored pre-existing state of the site.

Kells Priory is reinstated from its past with contemporary settings of our current timeline.

CONCEPT

PRE-EXISTING

PRE-EXISTING PAST PRESENT FUTURE

Time is a construct that enables itself as a barrier, separating a plane of existence that is deemed unreachable by physical

Time is a construct that enables itself as a barrier, separating us from a plane of existence that is deemed unreachable by physical means. A photograph catches a glimpse of the past, while architecture projects its spirit by materializing the metaphysical plane with not what has remained, but with the ignored pre-existing state of the site.

A photograph catches a glimpse of the past, while architecture spirit by materializing the metaphysical plane with not what has but with the ignored pre-existing state of the site.

Kells Priory is reinstated from its past with contemporary settings of our current timeline.

Kells Priory is reinstated from its past with contemporary settings of our current timeline.

CONCEPT

SPACES FOR FASHION COMPETITION

HOST : YOUNG ARCHITECTS COMPETITION

TYPE : MIXED USE

SITE : ITALIA

PRIZE: FINALIST MENTION

RHINO LUMION

WEave

LUXURY PIZZERIA FREELANCE

CLIENT : PRIVATE

TYPE : COMMERCIAL

SITE : COLOGNE, GERMANY

RHINO

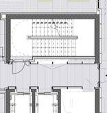
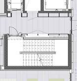
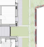
SUSTAINABLE AUDITORIUM PROJECT 3

ACADEMIC TERM: SUSTAINABLE ARCHITECTURE CONSTRUCTION STUDIO | 2021-2022

PROFESSORS: BOFFI GIACOMO, BRUNETTI GIAN LUCA, SCAIONI MARCO

THEME: AUDITORIUM FOR A MUSIC SCHOOL

SITE: VIA GALLLARATE 15, MILAN, ITALY

PARTNERS: ELENA MELIAKOVA, OKAN XHEMAILI

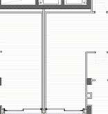
Wall Section B-B 1:20

Hallway below Mezzanine
Auxiliary to Auditorium
Hallway below Mezzanine

PROJECT 4

KINGDOM CENTER MALL

ARCHITECTURE OFFICE : DESIGN INTERNATIONAL | 2022-2023

TYPE : MALL REFURBISHMENT

SITE : RIYADH, SAUDI ARABIA

SOFTWARE: RHINO 3D+GRASSHOPPER, LUMION 12

ROLE: MODELING EXISTING MALL , SCRIPTING DESIGN AND HANDLING MASTERFILE FOR RENDER HANDOFF

PROJECT 5

DUBAI FESTIVAL CITY

ARCHITECTURE OFFICE : DESIGN INTERNATIONAL | 2022-2023

TYPE : MALL REFURBISHMENT

SITE : DUBAI, UAE

SOFTWARE: RHINO 3D+GRASSHOPPER, LUMION 12

ROLE: CONCEPT DESIGN FOR FOODCOURT AND MALL AREAS, SCENE VISUALIZATIONS

PROJECT 6

DRESDEN MALL REFURBISHMENT

ARCHITECTURE OFFICE : DESIGN INTERNATIONAL | 2022-2023

TYPE : MALL REFURBISHMENT

SITE : DRESDEN, GERMANY

SOFTWARE: RHINO 3D+GRASSHOPPER, LUMION 12

ROLE: CONCEPT DESIGN FOR FOODCOURT AND MALL AREAS, SCENE VISUALIZATIONS

PROJECT 7

GUGLIELMETTI MALL

ARCHITECTURE OFFICE : DESIGN INTERNATIONAL | 2022-2023

TYPE : MALL REFURBISHMENT

SITE : MILANO, ITALY

SOFTWARE: LUMION 12, AUTODESK REVIT

ROLE: CONCEPT DESIGN FOR FOODCOURT AND MALL AREAS, SCENE VISUALIZATIONS

PROJECT 8

GASLINI CHILDREN HOSPITAL

ARCHITECTURE OFFICE : DESIGN INTERNATIONAL | 2022-2023

TYPE : HOSPITAL DESIGN

SITE : GENOVA, ITALY

SOFTWARE: RHINO 3D+GRASSHOPPER, LUMION 12, AUTODESK REVIT

ROLE: CONCEPT DESIGN, SCRIPTING AND SCENE VISUALIZATIONS

FEATURED ON RAI NEWS

FEATURED ON IL SOLE 24

PROJECT 9

CEVAHIR MALL

ARCHITECTURE OFFICE : DESIGN INTERNATIONAL | 2022-2023

TYPE : MALL REFURBISHMENT

SITE : ISTANBUL, TURKEY

SOFTWARE: RHINO 3D+GRASSHOPPER, LUMION 12

ROLE: SCRIPTING EXTENSION CANOPIES AND VISUALIZING SCENES FOR CLIENTS

PROJECT 11

LAMARMORA - RESIDENTIAL COMPLEX

ARCH/ENG OFFICE : STUDIO ARCHEMI | 2023-2024

TYPE : RESIDENTIAL COMPLEX, 4000 SQM

SITE : MILAN, ITALY

ROLE: 100+ SHEETS FOR THE FINAL EXECUTIVE PHASE (PROGETTO ESECUTIVO)

Turn static files into dynamic content formats.

Create a flipbook
Issuu converts static files into: digital portfolios, online yearbooks, online catalogs, digital photo albums and more. Sign up and create your flipbook.
Zak Iljas Kosseifi - Portfolio 2024 by Zak Iljas Kosseifi - Issuu