Portfolio architecture 2025

Page 1


SOMMAIRE

01 02 03 04 05

Chalet à Ovronnaz

Transformation et rénovation d’un chalet avec extension.

Maison héxagonale

Construction d’une villa en bois avec piscine et garage extérieur.

Champs Libre

Concour d’un complexe d’hébergement collectif et semi collectif.

Maison de mode

Conception d’une maison de mode (projet universitaire).

Photographie

CHAOUACHI ZAKARIA

Contact: zack.chaouachi@outlook.com . Instagram: zack_chaouachi Whatsapp:+41 767 283 462 . Portable:+216 48 013 428

“Architecte diplômé avec expérience en suisse, familier avec les normes SIA et les techniques constructives locales. J’ai contribué activement à des projets variés en phase d’exécution et de chantier. Doté d’une solide pratique de la modélisation BIM et des outils de conception, je souhaite intégrer une équipe exigeante pour allier ma rigueur technique à un apprentissage continu”

06/2023 – 07/2024

10/2022 – 04/2023

01/2022 – 09/2022

06/2020 – 08/2020

08/2018 – 09/2018

EXPERIENCES

DESSIMOZ architectes, Suisse:Stage professionnel.

MFR architectes,France:Stage professionnel.

Arcadus, Tunis:Stage professionnel.

Polyline, Tunis:Stage 2éme cycle d’architecture.

A2D, Tunis: Stage 1er cycle d’architecture.

ETUDES

Diplôme National d’Architecture: Validation des stages professionnels avec la mention “trés bien et les félicitations du jury”

Mémoire de fin d’études: Sujet: Le gaming et les sports éléctroniques comme outil d’éducation sociale. Validée avec la mention “trés bien et les félicitations du jury”

Baccaluréat séction mathématiques: Lycée pilote des arts Radhia El Haded, Tunis.

WORKSHOPS

05/2019 01/2019 07/2018 05/2018

Workshop de semaine de strcuture: Organisé par l’ESAD.

Workshop design espace “Maison de la mode”: Organisé par l’ESAD et l’ESSTED.

Atelier d’été: Dans le cadre de l’insertion de l’ile de Djerba dans la liste du patrimoine mondial de l’humanité (UNISCO).

Journée de l’architecture subsaharienne: Théme: Valeur de l’architecture et l’architecture de valeur.

“CHALET A OVRONNAZ”

Localisation : Ovronnaz, Suisse.

Bureau: Dessimoz Architectes.

Procédure: Mandat directe.

Présentation du prjet:

Il s’agit d’un projet de rénovation et d’extension d’un chalet situé dans le domaine skiable d’Ovronnaz, en Suisse. Le chalet existant, composé de deux maisons individuelles distinctes, sera rénové en ajoutant une extension, offrant un espace de vie plus cohérent et fonctionnel.

L’extension, réalisée en bois, s’intègre harmonieusement à l’architecture alpine traditionnelle tout en apportant une touche contemporaine. La toiture a été entièrement rénovée afin d’améliorer l’isolation et la durabilité du bâtiment. Par ailleurs, les murs en pierre ont été renforcés à l’aide de tirants en bois, garantissant une meilleure stabilité structurelle tout en conservant le caractère authentique du chalet.

L’ensemble de la menuiserie, tant intérieure qu’extérieure, a été remplacé pour optimiser le confort thermique et acoustique, tout en mettant en valeur les matériaux nobles et naturels. Ce projet vise ainsi à conjuguer le charme de l’ancien avec les exigences de confort et de performance énergétique modernes.

Taches confiées:

-Elaboration de plans d’éxécution et de détails.

-Coordination techniques avec les mandatiares.

-Rédaction de cahiers soumissions.

-Gestion des appels d’offres, soumissions et négociations.

-Préparation des contrats SIA.

-Etablissemnt de planning chantier et PV.

-Suivie de planification financiére du projet.

-Suivie administratif du projet.

Logiciels utilisés: -Vectorworks, Sketcchup, Lumion.

PLAN RDC

Couverture en toles.

-Lattage -contre lattage

-Fibre de bois

-Plattelage existant

-Isolation entre chevrons

-Isolation complémentaire

Lambris ép 1,5cm.

Tirants de renforcement structurel.

Doublage en bois

COMPOSITION OSSATURE:

-Bardage vertical. -Lattage horizontal. -Lattage horizontal. -Fibre de bois ép. -Isolation entre ossature. -Panneau OSB.

-Lattage technique. -Lambris.

COMPOSITION RADIER INTERIEUR :

-Chape ciment poncée ép. 8cm

-Isolation Swisspor PURPremium. -Isolation Swisspor EPS 30. -Béton armé. Axono éclatée.

COUPE A-A
COUPE D-D

COMPOSITION TOITURE NEUVE :

- Lattage 2,7/6cm

- Contrelattage 6/6cm

- Fibre de bois 6cm

- Isolation entre chevrons 14/20cm

- Lattage technique ép. 2,7cm

- Lambris ép. 1,5cm

COMPOSITION OSSATURE ANNEXE :

- Bardage vertical ép. 2cm

- lattage horizontal 2,7/6cm

- lattage horizontal 2,7/6cm

- Fibre de bois ép. 6cm

- Isolation entre ossature bois ép.14cm

- Panneau OSB ép. 1,5cm

- Lattage technique ép. 6cm

- Lambris ép. 1,5cm

COMPOSITION RADIER NEUF:

- Chape ciment poncée ép. 8cm

- Isolation Swisspor PUR-Premium ép. 6cm

- Isolation Swisspor EPS 30 ép. 4cm

- Radier en béton armé ép. 20cm

- Isolation Swisspor XPS 500SF ép. 14cm

Détail 1.

COUPE A-A
COUPE D-D

COMPOSITION PLANCHER NEUF :

- Finition parquet ép. 2cm

- Chape liquide anhydrite ép. 6cm

- Isolation Swisspor EPS 30 ép. 2cm

- Isolation Swisspor EPS-T ép. 2cm

- Lambris ép. 2,1cm

- Solive section. 18cm

COMPOSITION TOITURE EXISTANTE :

- Lattage 2,7/6cm

- Contrelattage 6/6cm

- Fibre de bois ép. 4cm

- Plattelage existant ép. 3cm

- Isolation entre chevrons existant 12/12cm

- Isolation compl. ép. 6cm

- Lambris ép. 1,5cm

Tirants pour renforcer les murs éxistant.

Détail 2.
Détail 3.
FACADE OUEST
FACADE NORD
FACADE SUD
Façade sud
Coupe A-A
Coupe B-B

“MAISON HEXAGONALE”

Localisation : Mont sur Lauanne, Suisse.

Bureau: Dessimoz architectes. Procédure: Mandat directe.

Présentation du projet:

Ce projet s’agit de la construction d’une villa contemporaine en bois sur quatre niveaux, intégrant un garage extérieur et une piscine. Son architecture singulière repose sur une volumétrie hexagonale, offrant une lecture dynamique des façades et un dialogue harmonieux avec son environnement. Le rez-de-chaussée abrite un espace de vie ouvert avec salon, salle à manger, cuisine et buanderie, tandis que l’étage est dédié aux chambres d’enfants avec salle de bain. Les combles accueillent une suite parentale avec chambre, salle d’eau, dressing et espace de travail s’ouvrant sur un balcon baignoire. Le sous-sol, quant à lui, comprend un local technique et une cave. Principalement construite en bois, la villa intègre des éléments en béton armé pour le sous-sol et la cage d’escalier, assurant robustesse et stabilité. La toiture en tuiles plates et les façades en crépi renforcent son intégration paysagère, tandis que le jardin, planté de diverses essences, enrichit son cadre de vie.

Taches confiées:

-Elaboration de plans d’éxécution et de détails.

-Coordination techniques avec les mandatiares.

-Rédaction de cahiers soumissions.

-Gestion des appels d’offres, soumissions et négociations.

-Préparation des contrats SIA.

-Etablissemnt de planning chantier et PV.

-Suivie de planification financiére du projet.

-Suivie administratif du projet.

Logiciels utilisés: -Vectorworks, Sketcchup, Lumion.

© Vincent Jendly photographe.

Plan masse.

La villa posséde un vaste jardin paysager, riche en essences variées. À l’entrée, le garage extérieur assure un accès fluide, tandis que la toiture de la maison et du garage est équipée de panneaux solaires pour une production d’énergie durable. Depuis le salon, de larges baies vitrées offrent une vue dégagée sur la piscine, créant une continuité harmonieuse entre intérieur et extérieur tout en optimisant l’apport de lumière naturelle. L’aménagement extérieur favorise une circulation fluide et met en valeur l’architecture unique de la villa dans son environnement.

Visualisation 3D de la maquette en bois.

RDC Plan étage

d’entré

Le choix minutieux des matériaux bruts – béton brut pour la cage d’escalier, chape flottante poncée au rez-de-chaussée, chêne massif pour l’escalier et de l’Hêtre le parquet de l’étage – met en valeur la pureté des lignes et la géométrie du projet, notamment l’escalier, conçu comme un écho à la forme hexagonale de la villa.

© Crédit photos: Vincent Jendly photographe.

Escalier
Salon
Hall
Coupe F-F.
Façade ouest.
Coupe A-A.
Façade est.
Façade nord.

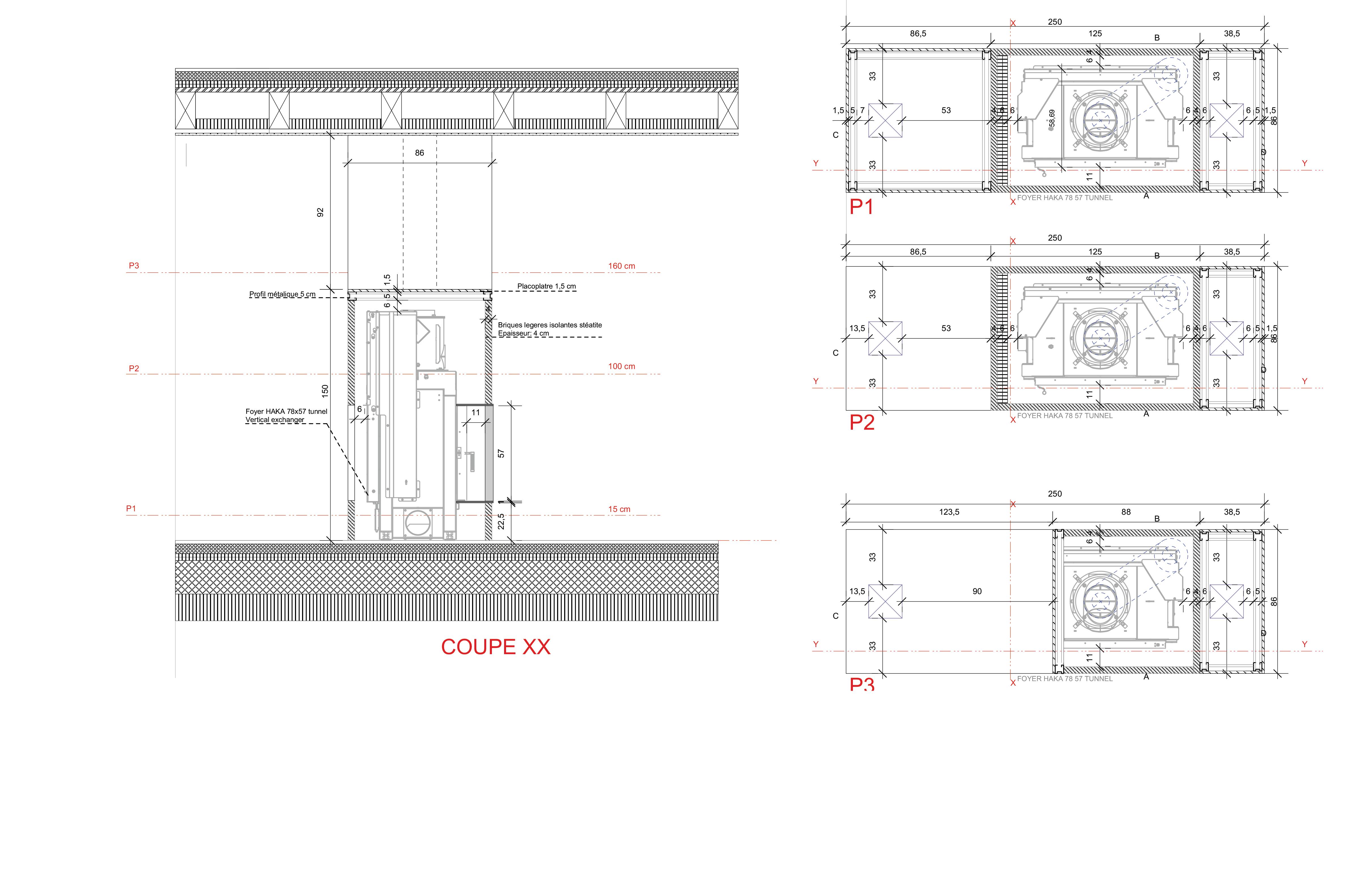
Détail cheminée.

Coupe X-X
Coupe Y-Y

“CHAMPS LIBRE”

Localisation : Champs-sur-marne, France.

Bureau: MFR Architectes.

Procédure: Concour.

Désciption du projet:

Le projet comprend 94 logements répartis sur deux bâtiments disposés en vis-à-vis, centrés autour d’un cœur d’îlot abondamment végétalisé. Conçu avec une structure hybride, il associe 50 % de bois et 50 % de béton. Ce choix structurel se reflète également dans le traitement des façades : le soubassement en béton est habillé de maxi-briques, tandis que les niveaux en structure bois sont revêtus d’un bardage en bois.

Le premier bâtiment adopte une typologie semi-collective, avec des logements accessibles par des escaliers extérieurs donnant sur le cœur d’îlot. Ces escaliers sont intégrés dans une cage en lames de bois, créant une transition harmonieuse entre l’architecture et le paysage. La toiture est exploitée en espaces de vie partagés sous forme de rooftops. Le second bâtiment, de typologie collective, s’élève sur sept niveaux. Les trois derniers niveaux, en attique, jouent avec les volumes pour dynamiser la façade, complétée par des balcons suspendus maintenus par des tirants.

Les toitures des deux bâtiments sont végétalisées, contribuant à l’insertion paysagère du projet. L’ensemble s’intègre harmonieusement à son site et dialogue avec son environnement, assurant ainsi une continuité paysagère fluide.

Taches confiées:

-Elaboration des éléments graphique.

-Collaboration avec l’équipe sur une maquette numérique en BIM 1.

-Visualisation architecturale.

-Recherches volumétriques.

-Recherches sur la matérialité.

-Elaboration du carnet graphique.

Logiciels utilisés:

-Revit, autocad Sketchup, Enscape.

© Crédit visualisation:YAM.

Fiche de lot

Entre continuité urbaine et continuité de paysage, La nature omniprésente.

Morphologie

Un bâti en résonance avec son contexte hétérogène. Un épannelage varié en «politesse» vis-à-vis du bâti environnant. Une Skyline rythmée et raisonnée.

Parcours

Depuis l’espace public vers chez soi, du collectif vers l’intime, des parcours différenciés et optimisés pour tous les usages.

VerslanouvellevoieBelAir

Espaces extérieurs privatifs

En continuité de l’espace intérieur, le logement « augmenté » vers l’extérieur : la pièce en plus, depuis les rdc jusqu’aux toîts habités.

façade est bâtiment collectif- 200e

façade ouest bâtiment semi-collectif- 200e

CHAMP LIBRE - ZAC Les Hauts de Nesles - lot NM5 PHASE CONCOURS - décembre 2022
CHAMP LIBRE - ZAC Les Hauts de Nesles - lot NM5 - Champs-sur-Marne

Paysages

Du sol aux toitures, des jardins privés aux terrasses partagées, la biodiversité rythme les parcours.

Orientations

Une grande majorité des logements sont traversants ou double-orientés. La lumière et des vues pour tous !

Gestion des eaux de pluie

Une gestion de rétentions et de tamponnements en 4 étapes.

Toiture intensive, noue, bassin en gravier et bassin de rétention

Système constructif

Une mixité structurelle au service d’une ambition d’habiter, du logement évolutif au plan élargi.

Façade nord

CHAMP

Menuiserie Extérieure Bois

Revêtement de sol (2cm)

Chape béton sur résilient acoustique (6cm)

Isolation (8cm) suivant notice acoustique

Plancher CLT suivant étude structure 2xBA13 peint

Pare-Vapeur

Doublage ITI + 2 BA13

MOB 145mm isolé

Pare-Pluie

Ossature bardage Bois pré-grisé double liteaunage

Chape béton sur résilient acoustique (6cm)

Plancher BA suivant étude structure

ITI

Enduit hydrofuge

Maxi-brique 22x22x6.5cm

Tasseau bois

Dalles bois 50x50cm sur plots Etanchéité pente 3%

Isolation suivant étude thermique

Tasseau bois pré-grisé © Crédit visualisation:YAM.

Détail constructif

Ossature Acier
Tiran Acier

Façade nord-sud

CHAMP
CHAMP

“MAISON DE LA MODE”

Localisation :Parc du Bélvedére Tunis, Tunisie. Exerice universitaire:3éme année. Workshop design espace.

Ce projet universitaire portait sur la conception d’une maison de mode intégrant plusieurs espaces dédiés à la création et à la mise en valeur du design. Le programme fonctionnel comprend une salle d’exposition, des espaces de défilé intérieur et extérieur, un atelier de design, une salle polyvalente ainsi que des logements pour les designers. L’accent a été mis sur la qualité des espaces intérieurs afin de favoriser une atmosphère dynamique et inspirante pour les créateurs de mode. Mon approche conceptuelle repose sur une trame hexagonale en plan, que j’ai ensuite transformée en volumes fragmentés et brisés, apportant ainsi une dimension sculpturale et expressive à l’architecture. Inspiré par les formes organiques de la nature, j’ai cherché à concevoir un projet qui s’inscrit avec caractère dans son environnement tout en s’intégrant harmonieusement à son paysage naturel. L’architecture dialogue avec son contexte en créant des espaces fluides et immersifs, où la lumière et la matière participent pleinement à l’expérience des usagers.

Logiciels utilisés: -Revit, Sketcchup, Autocad,Lumion.

Façade sud
Façade nord
Coupe A-A
Défilé intérieur
Salle d’epositions

Turn static files into dynamic content formats.

Create a flipbook
Issuu converts static files into: digital portfolios, online yearbooks, online catalogs, digital photo albums and more. Sign up and create your flipbook.