art & design

Page 1

Stage 1 : sketches

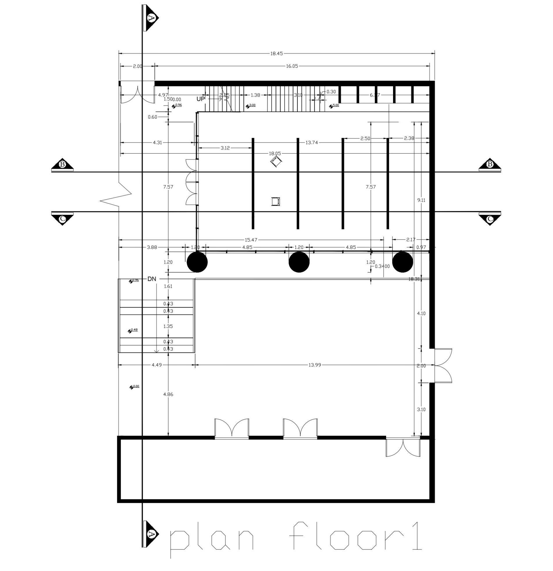
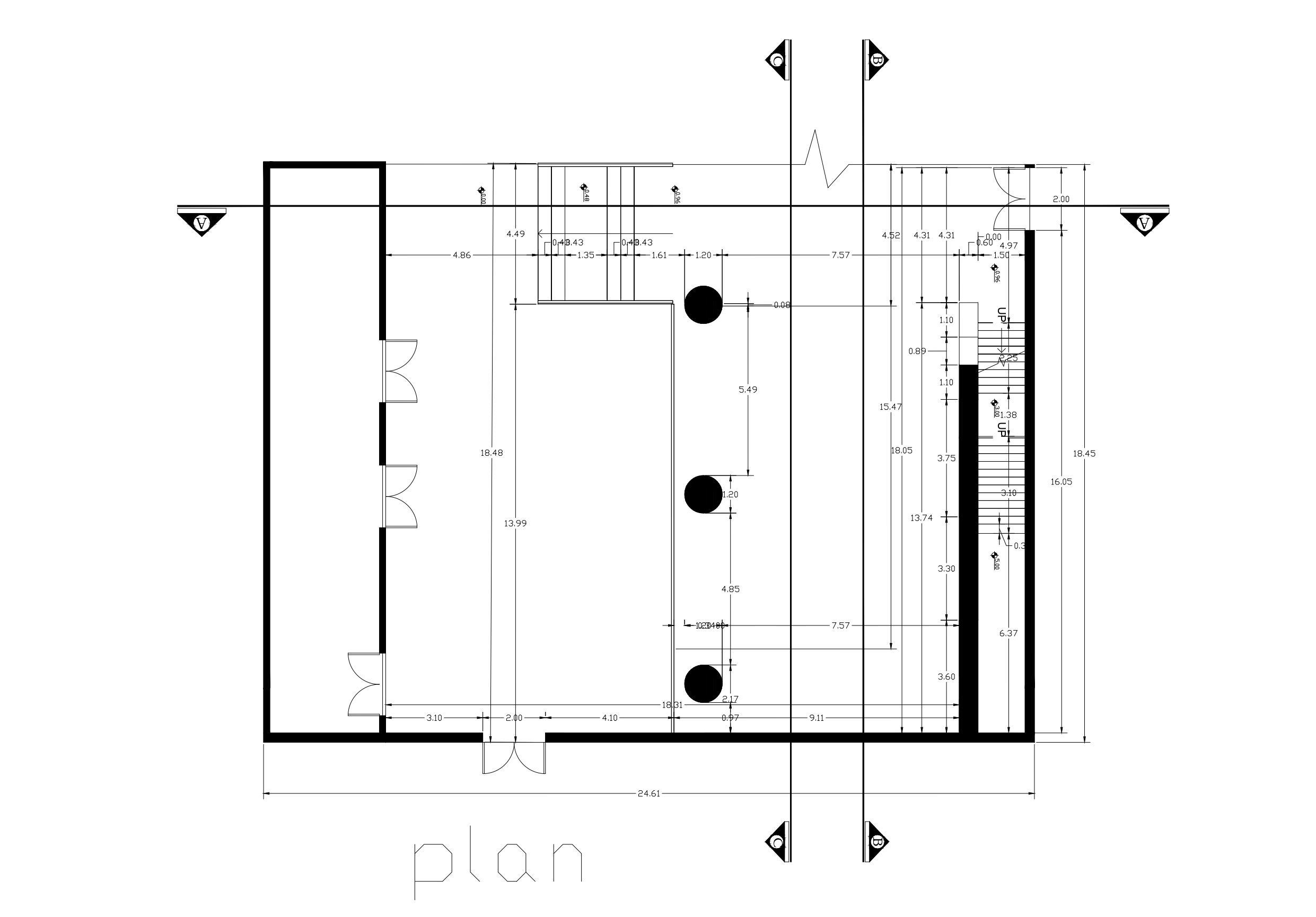
Stage 2 : AutoCAD drawing

Stage 3 : edit AutoCAD drawing

Stage 4 : render shots

Sections

Exterior

Interior

THANK YOU♡

Turn static files into dynamic content formats.

Create a flipbook
Issuu converts static files into: digital portfolios, online yearbooks, online catalogs, digital photo albums and more. Sign up and create your flipbook.
art & design by Zaina abd01 - Issuu