Sem 6 Design Portfolio

Page 1

ARCHITECTURAL DESIGN PROJECT 06 ZAIN ABDUL HANNAN | S064171 PORTFOLIO
ZAIN ABDUL HANNAN INTERESTS COMPUTER PROGRAMS CINEMATOGRAPHY DRONE PILOT PHOTOGRAPHY READING ARCHITECTURE 3D VISUALIZATION @xaaanu +960 9704040 xain251@gmail.com
Content About CONCEPT LOCATION PLAN DESIGN DEVELOPMENT SITE PLAN FLOOR PLANS ELEVATION SECTIONAL PERSPECTIVE SECTIONAL BLOWUPS FLOOR PLAN BLOWUPS STRUCTURAL ELEMENTS MODEL PICTURES Master plan Individual design

Master plan

Revitilization through diversion

Male’ city is a jungle. everyday can feel slow and monotone when you are stuck in the same continous loop. the everyday ccyle of life in the city is void of interesting & spontanous interactions. our aim is to revitalize the life of everyday citizen by divert ing peopel toward a state of bliss, so that they can greater appreciate the complexi ties of modern day life.

PAGE 4
PAGE 5 SITE DETAIL

S.W.O.T

PAGE 6
PAGE 7

PERSPECTIVES

PAGE 8
SITE PLAN

Individual project - Stimulate

NARRATIVE

People living in male city has a very monotone lifestyle. The existing buildings and public spaces do not give a stimulation that draws peoples attentions during their daily activities. This lifestyle makes people live a solitary life. And the communities to have a low social capital that they can depend on.

The intent is to stimulate the senses by allowing for interactions through an energetic environment. Thus, creating a better social capital within the community.

PAGE 9
Lifestyle Lively Lifestyle Residential units Residential units Communal space
Stimulate the mind of people by incorporating spaces that encourage people to interact with one another and is more lively, energetic. Monotone
buildings
PROGRAM Communal space Residential units Residential units Balcony Balcony Balcony Residential units Main building PAGE 10 Public area Public area Public area Commercial Commercial Commercial Commercial Commercial Commercial Residential Residential Residential Residential Residential Residential Residential Residential Residential Residential Residential Residential Connected Indirectly connected

DEVELOPMENT

SITE AREA .

1. 30000 m2 site with an open space in the front and back.

ORIENTATION

2. Site front is facing the city of male’ and the back is facing sea side.

NATURAL LIGHT/ VENTILATION

3. Sides curved out strategically to allow natural light to enter the build ing and make it more lively. Total build up area after cut out is 1842 m2.

Communal areas

RESIDENTIAL UNIT ORIENTATION

4. All units are arranged in a way that each unit can get access to ether the sea view or the cityscape view.

COMMUNAL AREAS

5. Communal areas placed in between apartments to improve visual connections and sunlight reachability.

BALCONY

6. Balcony's area is extended differently in each floor. Due to different layout of each floor.

SUSTAINABILITY

7. Kinetic solar panel facade incorporated to the outer walls. Water collected from the roof to water the plants.

PAGE 11
PAGE 12 SITE
PLAN

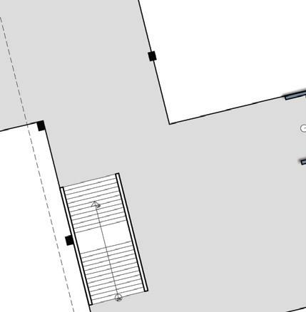
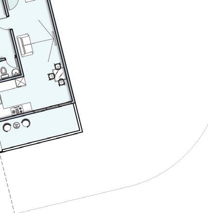
FLOOR PLANS

PAGE 13
FIRST FLOOR PLAN

SECOND FLOOR PLAN

THIRD FLOOR PLAN

FOURTH FLOOR PLAN

FIFTH FLOOR PLAN

PAGE 18

SIXTH FLOOR PLAN

SEVENTH FLOOR PLAN

EIGHT FLOOR PLAN

NINTH FLOOR PLAN

Blow up - 3

Voids in the building allow for much easier ventilation and also allows natural light to enter all the levels of the building.

Water storage unit that collects water from the roof and transfers to planter box in all the levels through an irrigation system

Each floors balcony are a cantilevered in a different distance depending on the roof of the floor below.

Blow up - 2

Blow up - 1

PAGE 23

Concrete tree columns

6m Height ground floor to create a lofty open feeling.

Ground floor made to a public domain where people can interact and relax

BLOWUP -
PAGE 24
1
PAGE 25
level
Concrete tree columns Mezzanine
beds for BLOWUP - 2

Tempered glass railing bolted to the slabs

Children can gather and play in the communal spaces

PAGE 26
BLOWUP - 3
BLOWUP PLAN 2 Sitting room Sitting room Kitchen/ Dinning Kitchen/ Dinning Balcony Balcony Balcony Balcony Toilet Toilet Toilet Bedroom 1 Master bedroom Tempered glass railings Wooden deck balcony Gravel on balcony and public spaces Tile floor finishes Services UNIT 1 70 SQM UNIT 2 114 SQM PUBLIC SPACE 1 (Spaces between two apartments) Master bedroom PAGE 28
PAGE 27 PUBLIC SPACE 2 (Space next to unit 3) Sitting room Kitchen/ Dinning Balcony Toilet Toilet Toilet Bedroom 1 Bedroom 2 UNIT 3 133 SQM Master bedroom BLOWUP PLAN 1
PAGE 29 BLOWUP PLAN 3
PAGE 30 ELEVATION

STRUCTURAL ELEMENTS

Shear walls in all the residential levels so that due to columns not much view is lost.

Lifts acts as cores that keeps the building stable

Columns that support cantilevered balcony

First and fourth floor slabs thicker to hold more structural weight.

PAGE 31
PAGE 32 MODEL PICS
PAGE 33

Turn static files into dynamic content formats.

Create a flipbook
Issuu converts static files into: digital portfolios, online yearbooks, online catalogs, digital photo albums and more. Sign up and create your flipbook.
Sem 6 Design Portfolio by Zain Abdul Hannan - Issuu