Z.Terry Portfolio

Page 1

Zachery Terry ARCHITECTURE

Select Professional Work WSP

NATIONAL INSTITUTES OF HEALTH VACCINE RESEARCH CENTERBUILDING 40A NORTH Bethesda, Maryland 65,000 Gross Square Foot Laboratory Facility expansion. Role: Architectural Designer and Production Support Services Provided: • Interior and Exterior Rendering and Editing • 3D BIM Modeling of Revit Equipment families • 2D Construction Detail Drawings • 2D Elevation Drawings • 3D and 2D Section Drawings Collaborative effort Project Rendering
PAGE INTENTIONALLY LEFT BLANK
NEW YORK PUBLIC HEALTH LAB, New York, New York 230,000 Gross Square footage Laboratory facility Role: Architectural Designer and Production Support Services Provided: • Laboratory Programming • Laboratory Planning • Room Data Sheets • 3D BIM Modeling of Revit Equipment families Collaborative effort Project Rendering
PAGE INTENTIONALLY LEFT BLANK

ALLIED HEALTH BUILDING
93,000 Gross Square. Footage Laboratory Education Facility Role: Architectural Designer and Production Support Services Provided: • Laboratory and Classroom Planning
3D BIM Modeling of Revit Equipment families
WIREGRASS GEORGIA TECHNICAL COLLEGE,
Valdosta, Georgia
2D Construction Detail Drawings
2D Section Drawings Collaborative effort Project Modeling
PAGE INTENTIONALLY LEFT BLANK
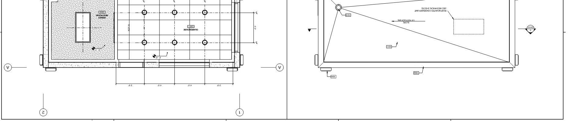
MEDCOM Sleep Suite Walter Reed Army Institute of Research (WRAIR) Fort Detrick-Glen Annex, Silver Springs, Maryland 5,000 Square Foot Sleep Study Suite renovation. Role: Project Architect and Architectural Designer Services Provided: • Multidisciplinary Coordination • Vendor and Contractor Coordination • Construction Document Management • 3D BIM Modeling of Revit Equipment families • 2D Construction Detail Drawings • 2D Elevation Drawings • 2D Section Drawings
PAGE INTENTIONALLY LEFT BLANK
Role: Architectural Designer and Production Support Services Provided: • Laboratory Planning • 3D BIM Modeling of Revit Equipment families • Radiology Suite Planning & Design Collaborative effort Project Rendering
Uniformed Services University of Health Sciences (USUHS) Education and Research Building, Bethesda, Maryland 477,000 Gross Square. Footage Education and Research building.
PAGE INTENTIONALLY LEFT BLANK

Zachery

Terry

ARCHITECTURE

Select Professional Work Ware Malcomb

PAGE INTENTIONALLY LEFT BLANK

Zachery Terry REVIT MODELING

Select Professional Work Taylor Workshop

PAGE INTENTIONALLY LEFT BLANK

Zachery Terry GRAPHIC DESIGN

WSP Social Marketing Committee Event Coordinator

Turn static files into dynamic content formats.

Create a flipbook
Issuu converts static files into: digital portfolios, online yearbooks, online catalogs, digital photo albums and more. Sign up and create your flipbook.
Z.Terry Portfolio by Zachery Terry - Issuu