Seoul Facade

Page 1

Godo Zabur Singh

S5 Interim Presentation
Seoul, South Korea
Seoul South Korea
Seoul, South Korea
Seoul, South Korea
Seoul, South Korea

Climate of Seoul

Seoul, South Korea
Source from climate consultant Seoul, South Korea
Source from climate consultant, https://www.worldweatheronline.com/ Seoul, South Korea
Source from climate consultant

Building skin design strategies

1. Glazing percentage

- south: up to 50% à maximize solar gain in winter and sun is at high at summer

- west, east: 30 ~ 50%

- north: 30 %

2 .Sun protection

- mobile sun protection (between winter and summer)

- west, east: block low sun (highest radiation incidence in summer)

- internal sun protection is sufficient

3. Heat protection Glazing

- Triple heat protection glazing

4. Good thermal Insulation

- insulation layer 20-30 cm

- thermal bridges should be avoided

Diagram from building to suit the climate a handbook Seoul, South Korea

Site Selection

Seoul, South Korea
from google map
Picture
Seoul, South Korea
21 December 21 March 21 September Sun Path Analysis 21 June Seoul, South Korea

Site Analysis

Seoul, South Korea

Architecture Practices

A popular trend in contemporary Korean residential architecture is to borrow architectural elements from the traditional Korean home, called Hanok, while giving the structures a modern touch

Seoul, South Korea

Korean Vernacular Architecture: ‘Hanok’

Passive design

P1 roof with eaves

P2

P3

Culture

C1 Intermediate space

C2 Sedentary culture

P2 Facing Door & Window P3 Lifted on platform C1 Intermediate space P1 Roof C2 Sedentary culture wood Baked sand paper Stone (granite) facing large windows or door lifted house by stone platform
Picture from http://awon.kr/2015/inner.php?sMenu=main Seoul, South Korea

Passive System from Korean Vernacular Architecture

P1: Shade of roof

P2: Facing large door and window

Seoul, South Korea

Form Context

Seoul, South Korea
Picture from http://awon.kr/2015/inner.php?sMenu=main
Design Process
Seoul, South Korea
Deep roof

Wooden

Picture from http://awon.kr/2015/inner.php?sMenu=main
Design Process
South Korea
structure Seoul,

Design Process

Intermediate

Picture from http://awon.kr/2015/inner.php?sMenu=main
South Korea
terrace Seoul,
Picture from https://m.post.naver.com/viewer/postView.nhn?volumeNo=11204453&memberNo=26341231
Polycarbonate Paper Seoul, South Korea
Design Process

Design Process

Picture from http://awon.kr/2015/inner.php?sMenu=main

Detail from https://helaform.com/en/folding-doors-transform-according-need/

Folding sliding door
Seoul, South Korea

Function Climate

Seoul, South Korea
1 pm, 21, July, 2020
Seoul, South Korea 1 pm, 21, January, 2020
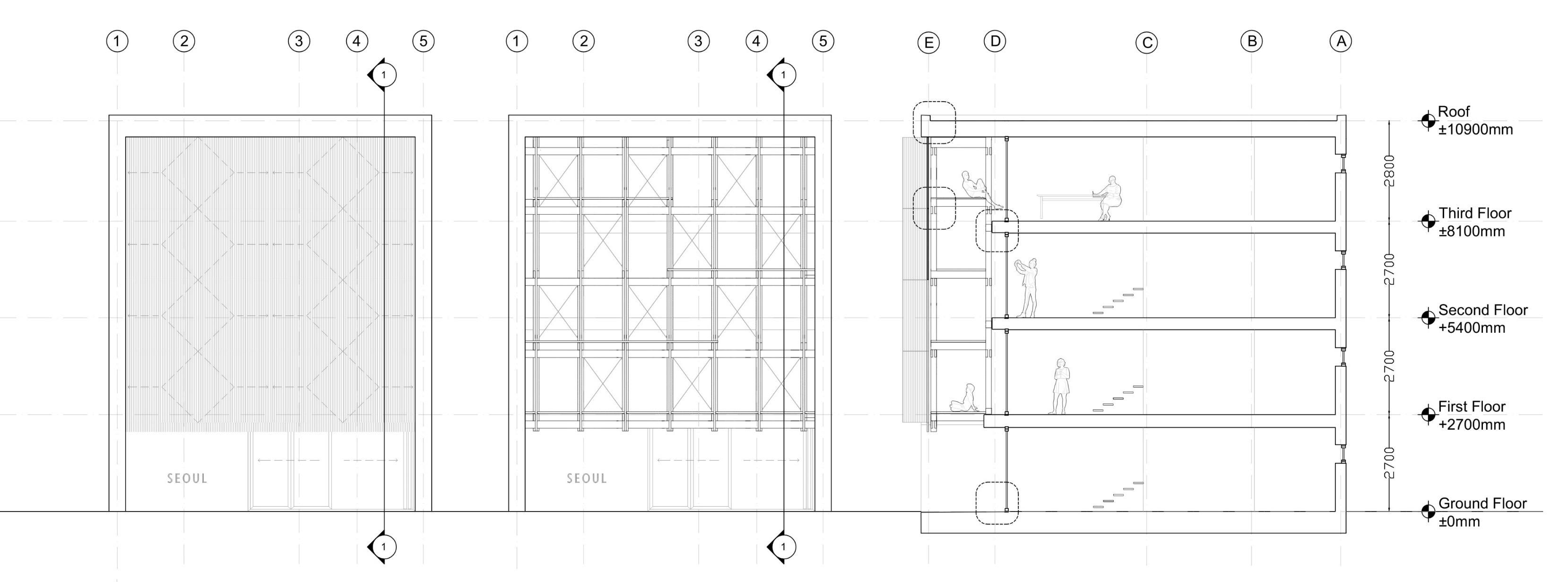
Seoul, South Korea Elevation
Seoul, South Korea
Seoul, South Korea
Seoul, South Korea
Section AA’ Isometric Section AA’
Exploded Section AA’

Facade Details

Physical Model Visualization

Turn static files into dynamic content formats.

Create a flipbook
Issuu converts static files into: digital portfolios, online yearbooks, online catalogs, digital photo albums and more. Sign up and create your flipbook.
Seoul Facade by zabur godo - Issuu