Portfolio-24 Yuvraj Desai

Page 1

PORTFOLIO

Yuvraj Desai

Selected Works B.Arch 24

What is the point of a teacup without tea?

TEL +91 9879079272 EMAIL 20sa156.yuvrajj@gmail.com
Y U V R A J J D E S A I

ACADEMICS

2018

2020

X Grade (GSEB)

V.R. Shah Smruti High School, Ahmedabad

XII Grade (GSEB)

Divine Life School, Ahmedabad

Present Bachelor of Architecture

D.C. Patel School of Architecture

LANGUAGE

Gujarati Hindi English

WORKSHOPS

Structural Systems Workshop

Turning Torso

RangShala by Youth Serve Foundation

Wall murals

BIM Workshop by Kaarwan

Introduction to BIM and Revit

CO - CURRICULAR

2021-2022 Cultural Representative

Student Council, A.P.I.E.D.

2022-2023 Cultural Head

Student Council, A.P.I.E.D.

C I R R I C U L U M V I T A E

DOCUMENTATION

2021 Traditional Housing

Vaso, Gujarat

2022 Contextual

K ishanpole Bazar Street

Jaipur, Rajasthan

2022 Institutes

Bharat Bhavan & IIFM

Bhopal, Madhya Pradesh

2022 Institutes

Norbulingka Institute

Sambhavna Institute

Dharamshala, Himachal Pradesh

PROFICIENCIES

Softwares

Autocad

Sketchup

V-ray

Lumion

Adobe Photoshop

Adobe Indesign

Adobe Illustrator

MS Office

Manual

Hand Drafting

Sketching

Model making

Photography

C O N T E N T 1. Kaushal Kendra 2. Weaving Community 3. Exploring Jaipur 4. The Link 5. Decoding Dharamshala 6. Learning on The Slopes 7. The Basics 8. Miscellaneous Skill Development Center, Jaipur 09 Community Center, Kochi RSP, Jaipur Student Housing, Anand RSP, Dharamshala Primary School, Asha Basic Design 16 28 26 38 40 44 46

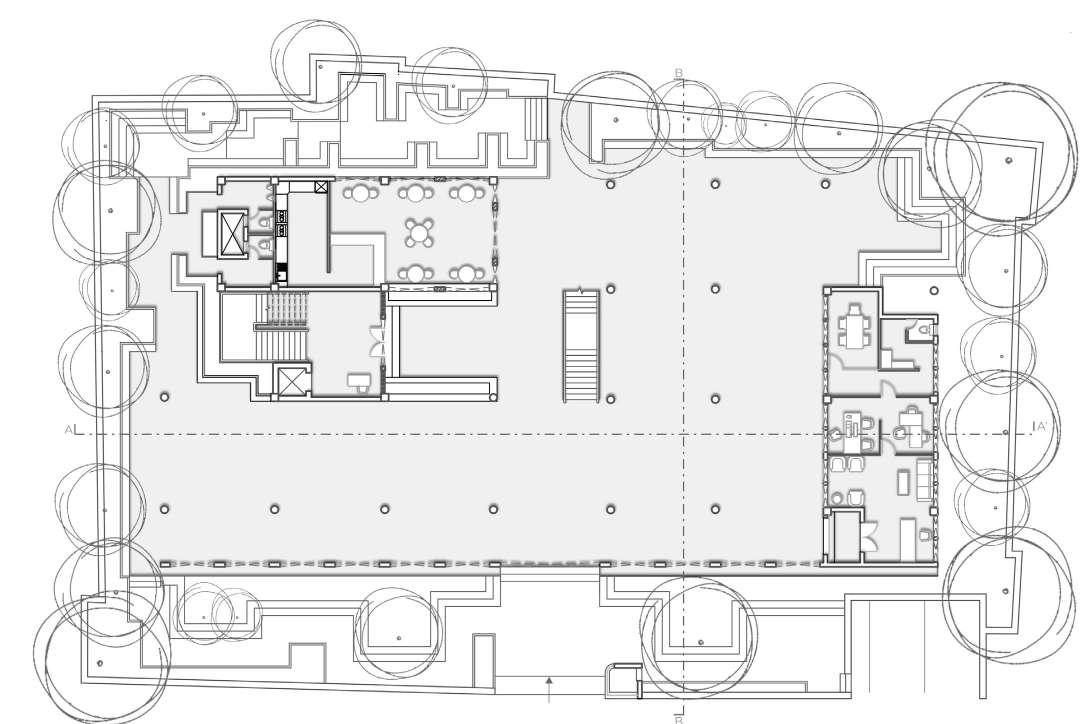
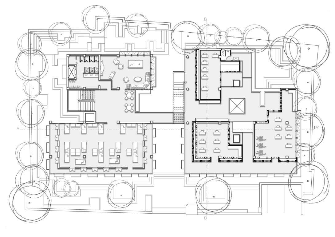
01. Kaushal Kendra

Skill Developpment Center, Jaipur

Tucked within the charming Kishanpole Bazaar, this skill development centre emerges as an artistic refuge where people may immerse themselves in timeless crafts such as blue pottery, miniature painting, and textile creation. The bottom level, which is embellished with beautiful arches, transforms into an open-air exhibition area, encouraging guests to explore the bright masterpieces inside. Ascending to the first level, one finds workshops furnished with a simple, earthy appeal evocative of typical Jaipur homes. Participants engage in hands-on learning activities in this setting, surrounded by the aroma of creation.

Beyond its artistic appeal, the centre acts as a haven for visitors, providing dormitory rooms for those who come to participate in its enlightening seminars. The structure, adorned with luscious flora on all sides, celebrates nature while keeping its interiors cool and pleasant.

Skill Development Center | Semester 4 | 2021 9
1 2 3 1 4 5 5 5 6 7 8 9 10 Skill Development Center | Semester 4 | 2021 10 Ground Floor First Floor 6. Dormitory 7. Textile workshop 8. Blue pottery workshop 9. Miniature Painting 10. Entertainment 1. Exhibition space 2. Cafeteria 3. Open air cafeteria 4.. Admin 5. W/c

Second Floor

5 6 10 Skill Development Center | Semester 4 | 2021 11
Abstraction of Jharokhas into Planter boxes in the facade
Skill Development Center | Semester 4 | 2021 12
Workshop Space Bridge connecting the workshops to dormitory Exhibition space adorned with arches
Skill Development Center | Semester 4 | 2021 13
Section BB’ Section AA’
Skill Development Center | Semester 4 | 2021 15

02. The Link Student Housing, Anand

In this studio, we’re introducing an innovative student community living concept—a unique blend of diverse housing options with comprehensive amenities. to establish an environment that honors individuality while actively fostering both independent and collaborative living.

location: vallabh vidhyanagar

site area: 4,700sqm

ground coverage: >40%

male occupants: 150

female occupants: 150

Housing | Semester 7 | 2023 16

Primary focus was on spacious rooms flooded with natural light, providing students with tranquil spaces for study, contemplation, and relaxation. However, we also envisioned lively communal areas as centers for collaboration and development. These spaces were carefully designed to foster interaction, creativity, and skill-building, offering everything from comfortable lounges with luxurious decor to dynamic shared areas buzzing with the excitement of shared learning. Each corner invited students to come together, connect, and flourish.

Form Development:

Housing | Semester 7 | 2023 17

Capsule living

These capsules offer students an avant-garde living experience, seamlessly meeting all their needs in a compact, personal space. With mobile capsules choreographed to create a dynamic architectural narrative, this design embodies efficiency and fosters privacy, allowing students to thrive in their environment.

c- section

Precast concrete

Aluminium cladding

200x200 Box section

c channel and sealant

12 mm Thick glass

Housing | Semester 7 | 2023 18

4 Sharing Unit

64 sqm

In the expansive design, adjustable shelves effortlessly transform spaces into private sanctuaries or areas for collaboration. Outside, a lush balcony beckons residents to immerse themselves in nature amid campus life.

The lines between personal retreat and shared community blur, creating an adaptable living space. It embodies thoughtful architecture, seamlessly blending flexibility and serenity to offer a truly harmonious experience.W

2 Sharing Unit

24sqm

Spacious layout with ample space for study and relaxation. Yet its balcon stands out, adorning planter box which connects two adjoining units, creating opportunities for interaction between the residents.

Plan Iso-view Plan
Housing | Semester 7 | 2023 19
Iso-view
Ground Floor Plan First Floor Plan Fourth Floor Plan Housing | Semester 7 | 2023 20
The Link Housing | Semester 7 | 2023 21
Housing | Semester 7 | 2023 22
Section AA’ Section BB’
Housing | Semester 7 | 2023 23

03. Weaving Community

Community Center, Kochi

Responding to the brief, the goal is to create a community center in Ernakulam that seamlessly intertwines with nature and community life. At its heart lies a spacious community hall, drawing people together for gatherings and festivities. Inspired by the essence of South Indian traditional homes, the center emanates warmth and familiarity through its human-scale architecture. Natural

elements are seamlessly integrated into the design, nurturing a symbiotic relationship with the surrounding landscape.Architecturally, the center offers a contemporary interpretation of traditional design principles, featuring courtyard spaces, verandas, and sloping roofs that echo the region’s architectural heritage.

2 3 1 4 5 6 7 8 9 10 11` 11` 12` 13` 6
Community Center | Semester 3 | 2021 26 1. Admin 2. CMeeting room 3. Courtyard 4.. Waiting area 5. Community hall 6. Open Air function space 7. Kitchen 8. Backstage entry 9. Wash area 10. Backstage 11. W/c 12.Service entry Site Plan

Terracotta clay tiles slopped roof

Concrete Flat roof

MS C section rafters and purlins

MS L section Trusses

M20 grade concrete columns

Laterite stone blocks

Primary Material: Laterite Stone Block

Dimensions: 380x230x180mm

In Kerala, a versatile and cost-effective building material reigns supreme, offering durability, sustainability, aesthetic charm, and ease of use. Its abundant availability and low cost have made it a timeless favorite in the region’s architecture.

Secondary Material: Concrete and Steel

Community Center | Semester 3 | 2021 27
LVL. 0 LVL. +630 LVL. +1550 LVL. +3050 1500 150 2600 150 500 500 920 1800 7130 10020 5320 LVL. +5950 LVL. +7800 LVL. +10000 B C E B C E 3700 5000 START POINT PROPOSED BUILT UP 23900 23800 13400 20300 14300 16200 69000 47600 9600 11700 14000 15800 A B C D E F G H J K L 14800 4900 10800 11000 19900 10300 5000 12000 5000 18400 15300 1100 25000 12200 5200 12000 M N O P Q R S T 81100 82200 66900 11700 8200 15100 4400 80° 101° 142° 138° 159° 91° 88° 154° 1 2 3 1 2 3 i ii A B C D E F G H J K L N 5300 3700 2200 2500 3200 2200 2200 4200 800 5000 25300 9700 5300 40000 40300 4000 4000 4000 12300 16000 G' 2000 1800 1' 1' 5000 2300 10MM THICK MS GUSSET PLATE WELDED TO BASE PLATE WITH 6MM FILLET WELD OVER FULL LENGTH ON BOTH SIDES TRUSS DIAGONAL MEMBER WELDED WITH GUSSET PLATE TRUSS BOTTOM CHORD WELDED WITH GUSSET PLATE 12MM Ø Plain MS Truss Anchor Stud 600MM Long in U Shape DETAIL A STEEL ANGLE SECTIONS WELDED ON BOTH SIDES 110 50 300X450MM THK. MS BASE PLATE ON RCC COLUMN 5MM THICK 140MM Ø STEEL WASHER 15X140MM SLOT BOTTOM CHORD WELDED PS WITH GUSSET PLATE Working | Semester 6 | 2023 28 Setting Out Plan Excavation Plan Section BB’ Detail A Detail A
2570 2150 150MM BBCC COMPACTED EARTH 50MM SAND FILLING 100MM PCC 100MM RCC SLAB 50 MM DPC 10MM MORTAR 20 MM THK. KOTA STONE 300MM THK. LATERITE STONE BLOCK 150MM RCC SILL DRIP MOULD VATTA 100X75 TEAK WOOD FRAME 80X40 WINDOW SHUTTER 65MM BUTT HINGE 265MM LINTEL ANGLE STEEL TRUSS100X40 STEEL C SECTION 12MM CORRUGATED GI SHEET 10 MM THK. GUSSET PLATE GI SHEET RAINWATER CHANNEL 10MM THK. SUPPORT PLATE 8MM TOUGHENED GLASS A C E G H I E G H I 5000 3850 2150 4 5 6 7 6 7 iii 8 4000 4000 4000 4000 12000 24200 24300 13000 29000 30400 5300 3700 2200 2500 3200 2200 2200 4200 800 5000 5200 19800 10300 5000 40000 40300 5 4 A B C D E F G H J K L N G' 2000 1800 5000 1 2 3 5 6 7 i ii iii 9 A B C D E F G H I J K L M N A B C D E F G H I J K L M N 5300 3700 2200 2500 3200 2200 2200 4200 800 5000 1200 3800 25300 9700 5300 40000 40300 12300 12000 2200 1800 2000 2000 8000 4000 2500 1500 5000 16000 13000 29000 30400 5300 3700 2200 2500 3200 2200 2200 4200 800 5000 1200 3800 5200 19800 10300 5000 40000 40300 1000 1200 900 1200 1200 1200 1200 1800 1000 1000 1200 1000 1000 1000 1000 1800 1200 1200 1200 1200 1200 1000 700 1200 1200 3500 1200 1200 1200 1200 1200 1200 1000 800 1000 1400 3500 3500 3600 LVL 0 LVL +450 LVL +700 LVL +700 LVL +700 LVL +1150 4m Wide Service Path 2 3 4 5 6 7 C1 C2 C3 C3' C4 C5 C10 C9 C8 C7 C6 C16 C12 C13 C14 C15 C21 C20 C19 C18 C23 C24 C25 C26 C32 C31 C30 C29 C33 C34 C35 C36 C17 C27 C28 C11 C22 1 8 G' G' 1' 1' 43400 45100 2200 2200 1800 1800 C1,C2,C3, C3',C4,C5 300x400 C6,C7,C8, C9,C10 C6,C9,C10:300x400 C7,C8: 300 C11,C12,C13, C14,C15,C16 C11,C12,C15:300x400 C13,C14,C16: 300 C17,C18,C19,C20,C21 C18,C21,C22:300x400 C17,C19,C20: 300 C23,C24,C25,C26,C27 C23,C26,C10:300x400 C24,C25,C27: 300 C28,C29,C30,C31,C32 C29,C30, C31,C32:300x400 C28: 300 C33,C34,C35,C36 300x400 1000 1000 5400 3700 C22 C21,C23,C32,C33 C3,C8,C13,C20,C24 C3:300x400 C8,C13,C20,C24: 300 C3' C31,C34 C31,C34 C4,C7,C14,C19,C25 C7,C14,C19,C25: 300 C5,C6,C15,C18, C26,C29,C36 300x400 C16,C17, C27,C28 300 150MM Long 10MMØ G.I J-Bolt with Limpet & Rubber Washer (TYPICAL) PURLIN FIXED WITH CLEAT BY 10MM Ø BOLTS CLEAT 150MM LONG BOLTED WITH TOP CHORD WITH 10MM Ø BOLTS C.G.I Sheet (20 SWG) TRUSS TOP CHORD PGI SHEET (20 SWG) RAIN WATER GUTTER 100MM Ø NUT BOLT 200 200 LEGENDS NO TYPE WIDTH SILL LINTEL DISCREPTION MATERIAL 01 02 03 04 05 D1 850 HYDRAULIC 2100 D2 3500 2100 G1 1850 D4 1000 D5 850 2100 FOLDABLE PIVOTED WOOD WOOD IRON WOOD SINGLE SHUTTER 2100 W1 1200 DOUBLE SHUTTER 900 2100 WOOD GLASS DOOR WINDOW SCHEDULE DOUBLE SHUTTER 06 07 W2 650 SINGLE SHUTTER 600 2100 WOOD 07 V1 1000 VENTILATION WITH EXHAUST 1600 2100 GLASS ALUMINIUM Working | Semester 6 | 2023 29 Center Line Plan Detail B
GROUND FLOOR LEVEL +0 MM LVL +600 MM LVL +1350 MM LVL +2700 MM LVL 400 300 5600 300 1100 300 5900 1700 8200 DETAIL A DETAIL B DETAIL C 10 11 12 13 14 50x50 S.S HANDRAIL 12MM THK. TINTED GLASS RISER 150 TREAD 325 40X40X800 S.S BALUSTER 20MM KOTA STONE FINISH DETAIL C RCC 10 MM THK. MORTAR 20MM THK. KOTA STONE FLOORING 6MM DIA. SCREW 6MM THK. S.S PLATE(75X75) 50MM S.S RAILING VELDING JOINT 6MM THK. S.S PLATE (60X30MM) 40X40XS.S BALUSTER Working | Semester 6 | 2023 30 Section CC’ Detail A Detail C Detail B
50 100 300 350 250 100 850 150 1500 270 2500 150 20 MM THK. KOTA STONE FLOORING 100 MM PCC 100MM RCC FLOOR SLAB 150MM BBCC COMPACTED EARTH 350x300 PLINTH BEAM 350x300 GROUND BEAM 150 MM SKIRTING 300 MM LATERITE STONE BLOCK WALL 100 MM RCC SLAB 150 MM CONCRETE LINTEL 100 MM CONCRETE SILL 150MM RCC BEAM A B C 150MM RCC BEAM 12 MM THK. CGI SHEET 100x40 STEEL C-SECTION ANGLE STEEL TRUSS 10MM THK. GUSSET PLATE 10 MM TK. SUPPORT PLATE ANGLE CLEAT TO SUPPORT C-SECTION PURLIN BASE WELDED TO STEEL ANGLE SECTION VERTICAL ANGLE WELDED TO STEEL PLATE BOLTED ON RCC BEAM 100 MM RCC SLAB DRIP MOULD 10 MM PLASTER 110 MM BRICK MASONRY PARAPET 20 MM WATER PROOFING 10 MM MORTAR 10 MM CHINA MOSAIC VATTA 20 MM THK. KOTA STONE FLOORING 100 MM PCC 100MM RCC FLOOR SLAB 150MM BBCC COMPACTED EARTH 350x300 PLINTH BEAM 150 MM SKIRTING 300 MM LATERITE STONE BLOCK WALL 20 MM THK. KOTA STONE FINISH 50 MM DPC GROUND LEVEL Working | Semester 6 | 2023 31 Detail B Detail C Detail A Section AA’ Elevational view
CEMENT MORTAR 100MM RCC SLAB START POINT 300 300 1 2 3 4 5 2 3 4 5 6 7 8 300X300 NON SLIPPERY FLOORING TILE R R R R R R R R C35 F G 8 F G W2 D1 8 W2 800 700 800 200 400 300 2400 1800 900 600 TOILET 2400X1800 LVL. +1600 300Ø Ø55 NAHNI TRAP SLOPE SLOPE T T' U U' F G 8 8 F G C35 COUNTERTOP WASH BASIN WALL HUNG W.C. HEALTH FAUCET SHOWER 2200 D1 ELEVATION PLAN SECTION AA' DETAIL A door closer body Guide stopper Mortar to join laterite stone to wooden frame A A' ELEVATION PLAN SECTION AA' D1-HYDRAULIC DOOR 900 100 2100 IN OUT IN OUT 1200 1500 ELEVATION PLAN SECTION AA' DETAIL A door closer body Guide stopper Mortar to join laterite stone to wooden frame A A' ELEVATION PLAN SECTION AA' D1-HYDRAULIC DOOR 900 100 2100 IN OUT IN OUT 1200 1500 Guide stopper Mortar to join laterite stone to wooden frame DETAIL B DETAIL DETAIL D DETAIL E R.C.C LINTEL WOODEN FRAME 100 MM ALUMINIUM TRACK 100 MM PIVOT SET 75X35MM TH. WOODEN SHUTTER FRAME 75X125 MM T.W FRAME HINGE P.C.C 100 MM ALUMINIUM TRACK BOTTOM PIVOT SET 75X125 MM T.W.FRAME 75X35MM TH.WOODEN SHUTTER FRAME HINGE P.C.C 100 MM ALUMINIUM TRACK GUIDE ROLLER 75X125 MM T.W.FRAME 75X35MM TH.WOODEN SHUTTER FRAME HINGE (SCALE 1:4) (SCALE 1:4) (SCALE 1:4) (SCALE 1:4) A A' ELEVATION PLAN SECTION AA' D1-HYDRAULIC DOOR 900 100 2100 3500 EQ EQ EQ PLAN ELEVATON PLAN IN OUT D2-FOLDABLE IN OUT ELEVATION PLAN SECTION arm door closer body Guide stopper channel Mortar to join laterite stone to wooden frame A ELEVATION PLAN SECTION AA' 900 2100 IN OUT IN OUT 1200 1500 12MM GLASS door closer body stopper Mortar to join laterite stone to wooden frame DETAIL B DETAIL DETAIL D DETAIL E R.C.C LINTEL WOODEN FRAME 100 MM ALUMINIUM TRACK 100 MM PIVOT SET 75X35MM TH. WOODEN SHUTTER FRAME 75X125 MM T.W FRAME HINGE P.C.C 100 MM ALUMINIUM TRACK BOTTOM PIVOT SET 75X125 MM T.W.FRAME 75X35MM TH.WOODEN SHUTTER FRAME HINGE P.C.C 100 MM ALUMINIUM TRACK GUIDE ROLLER 75X125 MM T.W.FRAME 75X35MM TH.WOODEN SHUTTER FRAME HINGE (SCALE 1:4) (SCALE 1:4) (SCALE 1:4) (SCALE 1:4) A A' ELEVATION PLAN SECTION AA' D1-HYDRAULIC DOOR 900 100 2100 3500 EQ EQ EQ PLAN ELEVATON PLAN IN OUT D2-FOLDABLE IN OUT ELEVATION PLAN SECTION AA' DETAIL A arm door closer body channel Mortar to join laterite stone to wooden frame A A' ELEVATION PLAN SECTION AA' D1-HYDRAULIC DOOR 900 100 2100 IN OUT IN OUT 1200 1500 30Ø C.W SUPPLY PIPE 50Ø SAN PIPE 450X350 WASHBASIN PTRAP 230 THK PLUMBIMG WALL 18MM THK. GRANITE TOP DETAIL A START POINT 1 2 3 2 3 4 5 6 R 7 8 9 R CONCEALED CISTERN 110MM THK. PLUMBING WALL WALL MOUNTED WC WITH CONCEALED CISTERN P TRAP 100MM SAN. PIPE START POINT 1 2 3 2 3 4 5 6 R 7 8 9 R Working | Semester 6 | 2023 32
and Window
Plan Flooring Plan Section TT’ Section UU’
Door
details Washroom details
LVL+1150 KITCHEN STORAGE 2.2X2.2M2 LVL+1150 UTILITY AREA 5X5.5M2 LVL+1150 D4 D4 D4 A B 1 2 3 4000 4000 5300 4700 4100 3900 5300 1200 1200 2400 1000 2500 2600 1200 300 4100 8000 8000 900 700 DETAIL A 300MM THK. WALL SINK START POINT 01 02 03 04 05 06 08 09 01 02 03 04 05 06 SOFT CLOSE CONCEALED HINGE 35MM KOTA STONE 10 MM THK. MORTAR 20 MM THK. BLACK GRANITE TOP 2O MM THK. GRANITE 10MM THK. GLOSSY 300X600 CERAMIC TILES 18MM GRANITE FACIA 10 MM THK. MORTAR DRIP MOULD 12 MM THK. PLYWOOD SHUTTER C R.C.C LINTEL WOODEN FRAME 100 MM ALUMINIUM TRACK 100 MM HANGER WOODEN SHUTTER 75X125 MM T.W FRAME HINGE TRACK T.W.FRAME TH.WOODEN 100 MM PIVOT SET 100 MM BOTTOM PIVOT SET 100 MM HANGER ISO MATERIC VIEW PIVOT SET BOTTOM PIVOT SET HANGER GUIDE NOTES ROLL NO 20SA156 DATE : CHECKED BY : SUB : STUDIO VI SHEET NO NAME : YUVRAJ DESAI N SCALE :- 1:125 DRAWING TITLE :- MEZZANINE FLOOR PLAN DRAWING NO:LEGENDS NO TYPE WIDTH SILL LINTEL DISCREPTION MATERIAL 01 02 03 04 05 09 10 D1 850 HYDRAULIC 2100 D2 3500 2100 D3 1850 D4 1000 D5 850 2100 FOLDABLE PIVOTED WOOD WOOD IRON WOOD SINGLE SHUTTER 2100 W1 1200 DOUBLE SHUTTER 900 2100 W2 1000 1350 1800 MIX WOOD GLASS DOOR WINDOW SCHEDULE WOOD DOUBLE SHUTTER 06 07 08 D6 D7 600 900 2100 2100 SINGLE SHUTTER SINGLE SHUTTER LAMINATE COMPACTED W3 650 SINGLE SHUTTER 600 2100 WOOD 1.ALL DIMENSIONS ARE IN MM 2. ALL DIMENSION SHOULD BE CROSS CHECKED AND ANY DISCREPANCY IF FOUND TO BE BROUGHT TO THE NOTICE OF THE ARCHITECTS BEFORE EXECUTION BY THE CONTRACTORS 3. DRAWINGS ARE NOT TO BE SCALED ONLY WRITTEN DIMENSIONS PREVAIL 4. ARCHITECTURAL AND STRUCTURAL DRAWING TO BE READ TOGETHER 2100 EQ B C D E SECTION C R.C.C LINTEL WOODEN FRAME 100 MM ALUMINIUM TRACK 100 MM HANGER WOODEN SHUTTER 75X125 MM T.W FRAME HINGE TRACK T.W.FRAME TH.WOODEN 100 MM PIVOT SET 100 MM BOTTOM PIVOT SET 100 MM HANGER ISO MATERIC VIEW PIVOT SET BOTTOM PIVOT SET HANGER GUIDE NOTES ROLL NO : 20SA156 DATE : CHECKED BY : SUB : STUDIO VI SHEET NO : NAME : YUVRAJ DESAI N SCALE :- 1:125 DRAWING TITLE :- MEZZANINE FLOOR PLAN DRAWING NO:LEGENDS NO TYPE WIDTH SILL LINTEL DISCREPTION MATERIAL 01 02 03 04 05 09 10 D1 850 HYDRAULIC 2100 D2 3500 2100 D3 1850 D4 1000 D5 850 2100 FOLDABLE PIVOTED WOOD WOOD IRON WOOD SINGLE SHUTTER 2100 W1 1200 DOUBLE SHUTTER 900 2100 W2 1000 1350 1800 MIX WOOD GLASS DOOR WINDOW SCHEDULE WOOD DOUBLE SHUTTER 06 07 08 D6 D7 600 900 2100 2100 SINGLE SHUTTER SINGLE SHUTTER LAMINATE COMPACTED W3 650 SINGLE SHUTTER 600 2100 WOOD 1.ALL DIMENSIONS ARE IN MM 2. ALL DIMENSION SHOULD BE CROSS CHECKED AND ANY DISCREPANCY IF FOUND TO BE BROUGHT TO THE NOTICE OF THE ARCHITECTS BEFORE EXECUTION BY THE CONTRACTORS 3. DRAWINGS ARE NOT TO BE SCALED ONLY WRITTEN DIMENSIONS PREVAIL 4. ARCHITECTURAL AND STRUCTURAL DRAWING TO BE READ TOGETHER 2100 EQ B C D E SECTION DETAIL C R.C.C LINTEL WOODEN FRAME 100 MM ALUMINIUM TRACK 100 MM HANGER WOODEN SHUTTER 75X125 MM T.W FRAME HINGE ALUMINIUM TRACK T.W.FRAME TH.WOODEN FRAME 100 MM PIVOT SET 100 MM BOTTOM PIVOT SET 100 MM HANGER ISO MATERIC VIEW PIVOT SET BOTTOM PIVOT SET HANGER GUIDE (SCALE 1:4) NOTES ROLL NO 20SA156 DATE CHECKED BY : SUB : STUDIO VI SHEET NO : NAME YUVRAJ DESAI N SCALE :- 1:125 DRAWING TITLE :- MEZZANINE FLOOR PLAN DRAWING NO:LEGENDS NO TYPE WIDTH SILL LINTEL DISCREPTION MATERIAL 01 02 03 04 05 09 10 D1 850 HYDRAULIC 2100 D2 3500 2100 D3 1850 D4 1000 D5 850 2100 FOLDABLE PIVOTED WOOD WOOD IRON WOOD SINGLE SHUTTER 2100 W1 1200 DOUBLE SHUTTER 900 2100 W2 1000 1350 1800 MIX WOOD GLASS DOOR WINDOW SCHEDULE WOOD DOUBLE SHUTTER 06 07 08 D6 D7 600 900 2100 2100 SINGLE SHUTTER SINGLE SHUTTER COMPACTED LAMINATE W3 650 SINGLE SHUTTER 600 2100 WOOD 1.ALL DIMENSIONS ARE IN MM 2. ALL DIMENSION SHOULD BE CROSS CHECKED AND ANY DISCREPANCY IF FOUND TO BE BROUGHT TO THE NOTICE OF THE ARCHITECTS BEFORE EXECUTION BY THE CONTRACTORS 3. DRAWINGS ARE NOT TO BE SCALED ONLY WRITTEN DIMENSIONS PREVAIL 4. ARCHITECTURAL AND STRUCTURAL DRAWING TO BE READ TOGETHER 2100 EQ B C D E SECTION R.C.C LINTEL WOODEN FRAME 100 MM ALUMINIUM TRACK 100 MM HANGER WOODEN SHUTTER 75X125 MM T.W FRAME HINGE 100 MM PIVOT SET 100 MM BOTTOM PIVOT SET 100 MM HANGER ISO MATERIC VIEW PIVOT SET BOTTOM PIVOT SET HANGER GUIDE NOTES ROLL NO : 20SA156 DATE CHECKED BY : SUB : STUDIO VI SHEET NO NAME : YUVRAJ DESAI N SCALE :- 1:125 DRAWING TITLE :- MEZZANINE FLOOR PLAN DRAWING NO:LEGENDS NO TYPE WIDTH SILL LINTEL DISCREPTION MATERIAL 01 02 03 04 05 09 10 D1 850 HYDRAULIC 2100 D2 3500 2100 D3 1850 D4 1000 D5 850 2100 FOLDABLE PIVOTED WOOD WOOD IRON WOOD SINGLE SHUTTER 2100 W1 1200 DOUBLE SHUTTER 900 2100 W2 1000 1350 1800 MIX WOOD GLASS DOOR WINDOW SCHEDULE WOOD DOUBLE SHUTTER 06 07 08 D6 D7 600 900 2100 2100 SINGLE SHUTTER SINGLE SHUTTER COMPACTED COMPACTED W3 650 SINGLE SHUTTER 600 2100 WOOD 1.ALL DIMENSIONS ARE IN MM 2. ALL DIMENSION SHOULD BE CROSS CHECKED AND ANY DISCREPANCY IF FOUND TO BE BROUGHT TO THE NOTICE OF THE ARCHITECTS BEFORE EXECUTION BY THE CONTRACTORS 3. DRAWINGS ARE NOT TO BE SCALED ONLY WRITTEN DIMENSIONS PREVAIL 4. ARCHITECTURAL AND STRUCTURAL DRAWING TO BE READ TOGETHER 2100 EQ B C D E SECTION Mortar to join laterite stone to wooden frame DETAIL B DETAIL C DETAIL D DETAIL E R.C.C LINTEL WOODEN FRAME 100 MM ALUMINIUM TRACK 100 MM PIVOT SET SHUTTER FRAME 75X125 MM T.W FRAME HINGE R.C.C LINTEL WOODEN FRAME 100 MM ALUMINIUM TRACK 100 MM HANGER 75X125 MM T.W FRAME HINGE P.C.C 100 MM ALUMINIUM TRACK BOTTOM PIVOT SET 75X125 MM T.W.FRAME 75X35MM TH.WOODEN SHUTTER FRAME HINGE P.C.C 100 MM ALUMINIUM TRACK GUIDE ROLLER 75X125 MM T.W.FRAME 75X35MM TH.WOODEN SHUTTER FRAME HINGE 100 MM PIVOT SET PIVOT SET ISO MATERIC VIEW PIVOT SET BOTTOM PIVOT SET HANGER GUIDE (SCALE 1:4) (SCALE 1:4) (SCALE 1:4) (SCALE 1:4) NOTES ROLL NO 20SA156 DATE CHECKED BY SUB STUDIO VI SHEET NO NAME YUVRAJ DESAI N SCALE :- 1:125 DRAWING TITLE :- MEZZANINE FLOOR PLAN DRAWING NO:LEGENDS 01 10 HYDRAULIC 3500 2100 WOOD SHUTTER DOOR WINDOW SCHEDULE 06 07 D6 600 2100 SINGLE SHUTTER W3 650 SINGLE SHUTTER 600 2100 WOOD CROSS CHECKED AND ANY DISCREPANCY IF BEFORE EXECUTION BY THE SCALED ONLY WRITTEN DIMENSIONS PREVAIL 4. ARCHITECTURAL AND A A' ELEVATION PLAN SECTION AA' D1-HYDRAULIC DOOR 900 100 2100 2100 3500 EQ EQ EQ EQ B C D E PLAN ELEVATON SECTION PLAN IN OUT D2-FOLDABLE IN OUT DETAIL B DETAIL C DETAIL D DETAIL E R.C.C LINTEL WOODEN FRAME 100 MM ALUMINIUM TRACK 100 MM PIVOT SET 75X35MM TH. WOODEN SHUTTER FRAME 75X125 MM T.W FRAME HINGE R.C.C LINTEL WOODEN FRAME 100 MM ALUMINIUM TRACK 100 MM HANGER WOODEN SHUTTER 75X125 MM T.W FRAME HINGE P.C.C 100 MM ALUMINIUM TRACK BOTTOM PIVOT SET 75X35MM TH.WOODEN SHUTTER FRAME HINGE P.C.C 100 MM ALUMINIUM TRACK GUIDE ROLLER 75X35MM TH.WOODEN SHUTTER FRAME HINGE ISO MATERIC VIEW BOTTOM PIVOT SET GUIDE (SCALE 1:4) (SCALE 1:4) (SCALE 1:4) (SCALE 1:4) ROLL NO 20SA156 CHECKED BY SUB STUDIO VI SHEET NO NAME YUVRAJ DESAI N SCALE :- 1:125 DRAWING TITLE :- MEZZANINE FLOOR PLAN DRAWING NO:02 10 D2 3500 2100 FOLDABLE WOOD SINGLE SHUTTER DOOR WINDOW SCHEDULE 07 D7 2100 SINGLE SHUTTER W3 SINGLE SHUTTER WOOD EQ EQ EQ EQ PLAN Mortar to join laterite stone to wooden frame DETAIL B DETAIL C DETAIL D DETAIL E R.C.C LINTEL WOODEN FRAME 100 MM ALUMINIUM TRACK 100 MM PIVOT SET 75X35MM TH. WOODEN SHUTTER FRAME 75X125 MM T.W FRAME HINGE R.C.C LINTEL WOODEN FRAME 100 MM ALUMINIUM TRACK 100 MM HANGER WOODEN SHUTTER 75X125 MM T.W FRAME HINGE P.C.C 100 MM ALUMINIUM TRACK BOTTOM PIVOT SET 75X125 MM T.W.FRAME 75X35MM TH.WOODEN SHUTTER FRAME HINGE P.C.C 100 MM ALUMINIUM TRACK GUIDE ROLLER 75X125 MM T.W.FRAME 75X35MM TH.WOODEN SHUTTER FRAME HINGE 100 MM BOTTOM PIVOT SET 100 MM HANGER PIVOT SET BOTTOM PIVOT SET HANGER GUIDE (SCALE 1:4) (SCALE 1:4) (SCALE 1:4) (SCALE 1:4) ROLL NO 20SA156 DATE CHECKED BY SUB STUDIO VI SHEET NO NAME YUVRAJ DESAI SCALE :- 1:125 DRAWING TITLE :- MEZZANINE FLOOR PLAN DRAWING NO:LEGENDS 04 09 D1 850 2100 D4 1000 WOOD 2100 W2 1000 1350 1800 MIX DOOR WINDOW SCHEDULE WOOD D6 BEFORE 3. DRAWINGS ARE NOT TO BE SCALED ONLY WRITTEN DIMENSIONS PREVAIL STRUCTURAL DRAWING TO BE READ TOGETHER A ELEVATION PLAN SECTION AA' 900 2100 2100 3500 EQ EQ EQ EQ D E PLAN ELEVATON SECTION PLAN IN OUT IN OUT KITCHEN STORAGE 2.2X2.2M2 LVL+1150 UTILITY AREA 5X5.5M2 LVL+1150 D4 600X1500 MM KOTA STONE START POINT START POINT 01 02 01 02 03 04 05 R R R R R R R R D4 D4 50MM DPC LAYER 20MM THICK MORTAR 600X1500 35MM THK. KOTA STONE FLOORING 75MM BRICKWORK 35MM KOTA STONE 12MM PLYWOOD SHUTTER SOFT CLOSE CONCEALED HINGE 50MM DPC LAYER 20MM THICK MORTAR 600X1500 35MM THK. KOTA STONE FLOORING 75MM BRICKWORK 35MM KOTA STONE 12MM PLYWOOD SHUTTER SOFT CLOSE CONCEALED HINGE 35MM KOTA STONE 10 MM THK. MORTAR 20 MM THK. BLACK GRANITE TOP 2O MM THK. GRANITE 10MM THK. GLOSSY 300X600 CERAMIC TILES 1OMM MORTAR 30MM CW PIPE 50MM OUTLET PIPE P TRAP DETAIL B DETAIL C Working | Semester 6 | 2023 33 Kitchen details Plan Flooring Plan Detail A Detail C Detail B
Community Center | Semester 3 | 2021
Skill Development Center | Semester 4 | 2021 37
Street Elevations Of Kishanpole Bazaar

Norbulingka Institute

The Norbulingka Institute stands as a guardian of Tibetan arts and crafts, nestled amidst serene gardens, bustling workshops, and time-honored architecture. Here, master craftsmen meticulously hone ancient skills such as thangka painting, wood carving, and metalwork, providing guests with a cultural voyage immersed in tranquility.

Entrance Section
05. Decoding Dharamshala RSP Dharamshala
Site Section (studios and workshops) Site Section (Temple, Library and Norling House) RSP Dharamshala | 2022 38

Cafeteria Section through serving area and staircase

Cafeteria Section through dining area, Kitchen and classroom upstairs

Sambhavna Institute

Crafted by architect Didi Contractor, the Sambhavna Institute in Dharamshala embodies the principles of sustainable living and holistic wellness. Its natural architecture seamlessly integrates with the environment, providing a sanctuary for learning and revitalization using traditional techniques and local resources, fostering the well-being of both mind and body.

RSP Dharamshala | 2022 39

06. Learning on the Slopes

Primary School, Asha

Nestled among hills and greenery, Nature’s Classroom seamlessly integrates education with its natural surroundings on sloping terrain, immersing students in nature’s splendor. They explore a natural playground, sparked by curiosity amidst flowing streams and rustling leaves. Built sustainably with local materials and passive design techniques, the school minimizes its ecological footprint, deepening its bond with nature.

Spatial Arrangement

Arranging in response to the contours

Indevidual unit

Opening up

Welcoming the nature

Primary School | Semester 5 | 2022 40
Site plan Primary School | Semester 5 | 2022 41
Primary School | Semester 5 | 2022 42
Section AA’ Section BB’
Primary School | Semester 5 | 2022 43

07. The Basics

Understanding Platonic Solids

meticulously design connectors that harmonize with the shapes and proportions of both solids, all while mastering the concept of scale.

Through folding paper and assembling physical models to scale, they grasp the essence of these geometric wonders

Basic Design l 2020-22 44

The Abstraction

The task was to create a 3D abstraction from a painting which capture space and volume

The soaring conical elements offer security and tranquility with their graceful curves, embracing all within with comforting shelter.

The monumental sharp edges carve through the space, leaving an indelible impression of strength and grandeur.

Basic Design | 2020-22 45
08. Miscelleneous Miscellaneous 46
Miscellaneous 47

YUVRAJ DESAI

20sa156.yuvrajj@gmai.com

Turn static files into dynamic content formats.

Create a flipbook
Issuu converts static files into: digital portfolios, online yearbooks, online catalogs, digital photo albums and more. Sign up and create your flipbook.