YU-HSIANG FU PORTFOLIO

Page 1

YU-HSIANG FU PORTFOLIO

Interior and Industrial designer

Focus on creating branded and engaging environments.

INNISFREE

NYC Flagship Store

A new flagship store in NYC for Korean beauty brand Innisfree that brings the natural and light feel of Jeju Island into concrete jungle

Client - Innisfree, AmorePacific Group

Program - Retail

Location - New York, US

Area - 1,500 sqft.

Status - Complete, October 2018

My Role - Designer & Project Manager, Mapos Architects

Photography - Garrett Rowland

Awards -

NYCxDesign Awards 2019, Large Retail Category: Honoree

Retail Design Institute Awards 2018, Winner for Class of 2018 & Innovative Store Planning/ Circulation.

Architizer A+Awards 2019, Concepts-Plus-Architecture+Branding Category: Special Mention

VMSD’s Retail Renovation Competition 2019, First Place Winner

ARCHMARATHON Awards 2020, Interior Design Category: Special Mention

Innisfree NYC store / retail / 01

Concept Story

(Big Idea)

“LOCALIZATION”

BringJejuIsland natureandlight intoconcretejungle, NewYorkCity

The primary challenge was to effectively convey the natural and light feel of the world’s leading K-Beauty brand while embracing the context of New York City, a place known for the juxtapositions of glamour, grittiness, bright lights, and scaffolding.

Innisfree NYC Store / retail / 02
New York City Grit & Glamour City Pocket Park Jeju Island Nature and Light

Concept Diagram

Key Elements -

1. The Island -

To represent “Jeju Island” serving as the central curation table with stories about all natural ingredients.

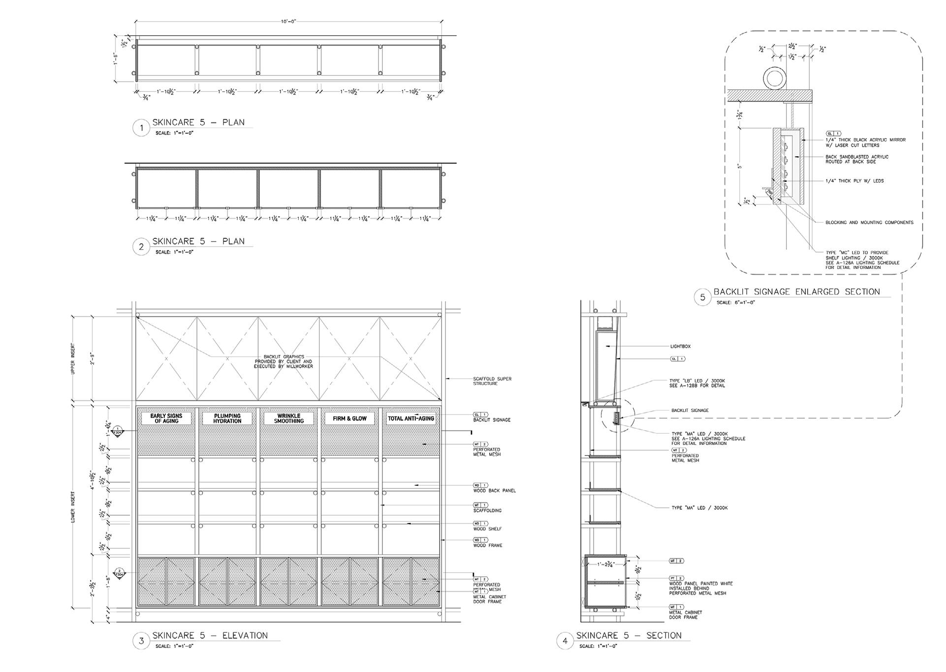
As one of common cityscape in fast-paced New York City, while the lower half of the scaffold is entirely dedicated to Innisfree’s bright and colorful product offering.

The upper half of the scaffold becomes a deconstructed plant wall and abstracted cityscape.

4. Bubble Light -

The lighting floating above The Island is a cluster of 35 randomly placed and sized spheres, inspired by the brand’s images of bubbles rising up through volcanic water.

Innisfree NYC Store / retail / 03
2. Scaffold - 3. Greenery - Existing Site The Island Bubble Light Scaffold Greenery

Floor Plan

Innisfree NYC Store / retail / 04
1. Window Promotion 2. Island Curation Table 3. Wall Display Shelving 4. Point of Sale Counter 5. Freestanding Display Fixture 6. Brand Video Screen 7. Jeju Lounge
3 3 4 6 7 8 2 1 3 5 5 3
8. Staircase
Innisfree NYC Store / retail / 05

Material Palette

Selected materials convey the natural and light feel of Jeju Island while embracing the context of New York City, a place known for the juxtapositions of glamour, grittiness, bright lights, and scaffolding.

Innisfree NYC Store / retail / 06
1. Polished Concreate 2. Basalt Rock 3. Brand Color 4. Metal Scaffolding 5. Perforated Metal Mesh 6. Ribbed Glass 7. Greenery 8. Stainless Steel Metal Plate Tile 9. Hexagon Stone Tile
1 2 3 4 5 6 7 8 9 10
10. Hickory Veneer

Complete PhotosThe Island Curation Table

“TheIsland”representsJejuIslandtobe acentralorganizingthemeofthestore.

Innisfree NYC Store / retail / 07

Detail Drawing -

The Island Curation Table

Innisfree NYC Store / retail / 08

Complete PhotosWall Display Shelving

While the lower half of the scaffoldisentirelydedicated toInnisfree’sbrightand colorfulproductoffering, theupperportionbecomesa deconstructedplantwalland abstractedcityscape.

Innisfree NYC Store / retail / 09

Detail Drawing -

Display Shelving

Innisfree NYC Store / retail / 10
Wall

RESIDENCE W

An apartment renovation in Qinpu, Taiwan that embraces the tranquility through a tactile palette of materials and refined craftsmanship.

Client - Private, Mr. Wang

Program - Residential

Location - Taoyaun, Taiwan

Area - 1,370 sqft.

Status - Complete, February 2021

My Role - Lead Designer & Project Manager

Photography - Suiyu Studio

Residence W is designed by fws_work to bring a sense of tranquility to a home overlooking the city of Qinpu, known for its fast development and transportation hub. fws_work designs with tactile materials such as plaster and oak wood as the essential backdrop, accompanied with woven cane, ribbed glass, encaustic ceramic tiles and linen furnishings to form the sensory warmth. In addition, the refined craftsmanship is revealed in the consistent millwork details throughout. The selective material palette and joinery details evoke Wang’s memories of the country home in childhood as well as Mediterranean retreats during travels.

Residence W / residential / 01

Floor Plan

Residence W / residential / 02
1. Entry 2. Living Area 3. Reading
4.
5.
6.
7.
8.
13.
1 2 4 5 6 7 8 10 11 12 13 14 9 3
Area
Dining Area
Kitchen
Hallway
Workout Room Master Bedroom
9.
Walk-in-Closet 10. Master Bathroom
11.
Guest Bedroom
12.
Guest Bathroom Bathroom 14. Balcony

Concept Diagram

Existing Beam

Visual Division

Circulation

Utilize the existing heavy structural beam to visually divide the open-plan space. Kitchen Area

The existing heavy structural beam is clad with oak wood panels, which soften the visual heaviness of the structural beam.

The intuitive circulation is defined by the freestanding fixtures such as the half-height division connecting to the reading desk and the extended kitchen counter.

Residence W / residential / 04
Dining Area Reading Area Living Area

fws_workcombinestheentry,kitchen,reading,diningand livingareasinalight-filledopen-planspacetoenhancethe spaciousnessandflexibility,whilefocusingoncreatingthe intuitivecirculation,basedonWang'sroutines.

Residence W / residential / 04

Material Palette

Designedwithtactilematerials suchasplasterandoakwoodasthe essentialbackdrop,accompanied withrattan,ribbedglass,encaustic ceramictilesandlinenfurnishings toformthesensorywarmth.

Residence W / residential / 05
1. Plaster Wall 2. Flax Sheer Curtain 3. Paint Color Ceiling 4. White Oak Millwork 5. Ribbed Glass 6. Rattan 7. Floor Tile 8. Wood Floor 9. Shou Sugi Ban Wood Millwork
1 2 2 2 3 3 3 4 5 6 7 8 9 10
10. Cement Wall Tile

Complete PhotosEntry & Living Area

Theselectivetactilematerialpaletteandjoinerydetailsevoke

Wang'smemoriesofthecountryhomeinchildhoodaswellas

Mediterraneanretreatsduringtravels.

Residence W / residential / 06

Complete PhotosKitchen & Dining Area

Black-stained wood millwork, encaustic ceramic wall tiles, leather handles and stoned countertop shape the moody kitchen and extended bar counter. The darkness of the kitchen and bar counter fosters a pure state of immersion, that allows Wang to dive into his passions on cooking and whisky tasting.

Residence W / residential / 07

Complete Photos / DiagramsHallway

Existing Partition

The partial partition wall was replaced by layers of rattan panels and ribbed glass to bring the sunlight into the hallway, while providing privacy and sound insulation for the room. The lined-up joinery from walls to the ceiling creates depth and dimension when the light shines on.

Residence W / residential / 08
Demolition Bring Sunlight

Complete PhotosReading Area

Thewoodtrellisceilingconnectingtothefull-height bookshelfcoversthereadingarea,accompaniedby thefreestandinghalf-heightdivisiontodefinethe readingareaintheopen-planspace.

Residence W / residential / 09

Complete PhotosMaster Bedroom

Inadditiontotheneutralpaletteconsistentwiththeopenarea,thedeepteal colorblurstheboundarybetweentheupperwallandtheceiling,andbrings asenseofserenityintothemasterbedroom.

Residence W / residential / 10

AMALI

FIDI Restaurant Concept

An upscale Mediterranean restaurant for Downtown Manhattan that brings together historic European references and the legacy of the Italian American community on New York City

Client - Amali Restaurant Group

Program - Hospitality

Location - New York City

Area - 5,200 sqft.

Status - Concept, June 2018

My Role - Designer, Mapos Architects

Rendering - Yu-Hsiang Fu

Amali FIDI Restaurant Concept / hospitality / 01

Concept Story

(Big Idea)

Circus Maximus Italian Futurism Terrazzo

The Circus Maximus was a large stadium erected to accommodate massive crowds for sports and entertainment events during the time of the Roman Empire.

Celebrating the aesthetic, themes, and underlying influences of the Italian Futurist movement.

Utilizing terrazzo, a material treatment developed by Venetian tile workers to reuse marble scraps, was brought to New York by Italian immigrants during the early 20th century.

Amali FIDI Restaurant Concept / hospitality / 02

Floor Plan

Amali FIDI Restaurant Concept / hospitality / 03
1. Entry 2. Host Stand 3. Bar 4. Dining Area 5. Flexible Private Dining 6. Outdoor Dining
1 1 2 2 3 4 5 5 6 7
7. Fountain

Anintegratedfeaturechandelierbecomesthevisual

anchorofthespace,amajordesignfeaturethat takesadvantageoftheceilingheightanddraws attention from outside

Amali FIDI Restaurant Concept / hospitality / 02

Material Palette

Amali FIDI Restaurant Concept / hospitality / 05
1. Terrazzo with oversized mixed marble scraps 2. Terrazzo 3. Mesh Curtain 4. Mixed Marble 5. Brass 6. Ribbed Glass 7. Leather
1 2 3 4 4 4 5 6 7 8
8. Light Wood

RenderingCentral Bar & Outdoor Dining

Asimpletrellistoreceiveplantgrowth,lighting,andprovide protection/privacyfromthebusysurroundings

Amali FIDI Restaurant Concept / hospitality / 06

INNISFREE

Seoul Flagship Store & Global Retail Rollout Concept

A new global retail design store concept for Korean beauty brandInnisfree that brings together “The New Natural” and the look and feel of a ceramics workshop

Client - Innisfree, AmorePacific Group

Program - Retail

Location - Seoul, South Korea & Worldwide

Area - 1,250 sqft.

Status - Complete, June 2019

My Role - Designer & Project Manager, Mapos Architects

Rendering - Yu-Hsiang Fu

Awards -

Retail Design Institute Awards 2019, Winner for Class of 2019

Innisfree Seoul Store & Global Retail Concept / retail / 01

Concept Story

(Big Idea)

“NEW NATURAL”is

Honest and Authentic

SimpleandUnderstated

LightandAiry

BeautifullyImperfect

FlexibleandPlayful

comes to life in the “StudioWorkshop”

The Workshop is a raw space where beautiful objects are crafted by hand. Each space is unique and local. It is a space defined by process. There is time and patience in the making. But the results are worth the wait.

The Studio is where natural materials and ingredients are transformed into functional objects and effective products. The results vary infinitely in color and texture. The results are unique and constantly evolving.

Innisfree Seoul Store & Global Retail Concept / retail / 02
Honest and Authentic Beautifully Imperfect Studio Workshop

Floor Plan

Innisfree Seoul Store & Global Retail Concept / retail / 03
1. Window Promotion 2. Island Curation Table 3. Wall Display Shelving 4. Point of Sale Counter 5. Freestanding Display Fixture 6. Brand Video Screen (Attractor Wall) 7. Jeju Lounge 8. Wash Basin 9. Makeup Wall Display (Secondary Attractor Wall)
10 11 9 1 1 2 3 3 3 3 5 5 5 5 8 5 5 5 6 7 4 3 3
10. Makeup Carrels 11. Storage

Complete Photos - Storefront

Thecustomer’sfirstimpression ofthestorecomesatthefaçade, whichiscomposedofhundredsof customhandmadeceramictiles, brokenupoccasionallybythesparkle ofintegratedlighting.Thethree dimensional texture of the tiles evoke thenaturalvolcanicrockgeometries alongthecoastofJejuIsland.

Innisfree Seoul Store & Global Retail Concept / retail / 04
Innisfree Seoul Store & Global Retail Concept / retail / 05

Material Palette

The surfaces and materials of the interior architecture are raw, unfinished, and beautifully imperfect, like a studio workshop. It always strives to be authentic to its context, expressing the local nature of each space, and allowing the fixtures and the product to be the true stars.

The fixtures are simple, humble, and utilitarian in nature. Like a studio workshop, they mobile and light in feel. They allow the content and product to be the star. They are highly modular, giving end users limitless flexibility.

Special superstar fixtures reside at the front of the shop, expressing the unique materials of Jeju Island. Like a piece of unique art, they always indicate to passerby and those who enter that this could only be an Innisfree Store.

3.

4.

5.

7.

Innisfree NYC Store / retail / 06
1. Concreate Floor 2. Greenery Powder-Coated Paint / Overall Fixture Brand Color Green Wood Tambour 6. Brown Onggi Ceramic Basalt Rock 8. Encaustic Cement Tile 9. Expanded Metal Mesh 10. Perforated Metal Mesh
1 2 3 3 4 4 4 5 6 7 8 8 9 11 10
11. White Ash

Complete PhotosWall Display & Speciaty Fixtures

Thewashbasinisinspiredbytheutilitarianworkshopsinkwith itsdeepwidebasinandapproachfrommultiplesides.

Innisfree Seoul Store & Global Retail Concept / retail / 07

DiagramSignage & Visual Guideline

Innisfree Seoul Store & Global Retail Concept / retail / 08
Primary Wayfinding Banners Primary Wayfinding Banners Primary Wayfinding Banners Video of Jeju Island Product Promotion Product Promotion Product Promotion Product Promotion Product Promotion Product Promotion Product Promotion Shelving Shelving Plants Plants Plants

Complete PhotosMakeup Wall Display & Carrels

Toguidetheoveralldesign,wedevelopedtheconceptof“The NewNatural,”asetofprinciplesfocusedonthecreationofa simpleandunderstatedspacethroughthedeploymentofhonest andauthenticmaterials,colors,andmethodsofassembly.

Innisfree Seoul Store & Global Retail Concept / retail / 09

Custom Fixture Design -

Specialty Fixtures

Innisfree Seoul Store & Global Retail Concept / retail / 10
Curation Table Wash Basin Worktable Makeup Carrels Point of Sale & Gift Wall Mask Bar & Grab-n-Go

Rollout Store Design - Premium Store Types

We transformed the new retail concept into five store types with different budget. The result was a 500+ pages design guide book, including all architectectural and fixtures’ guidelines for five store types - Flagship, Premium, Standard, Mart and Dutyfree store.

Innisfree Seoul Store & Global Retail Concept / retail / 11

Rollout Store Design - Mart/Duty Free Store Types

Innisfree Seoul Store & Global Retail Concept / retail / 12

YU-HSIANG FU

Interior and Industrial designer focused on creating branded and engaging environments.

yuhsiangfu.interior@gmail.com

Turn static files into dynamic content formats.

Create a flipbook
Issuu converts static files into: digital portfolios, online yearbooks, online catalogs, digital photo albums and more. Sign up and create your flipbook.
YU-HSIANG FU PORTFOLIO by YU-HSIANG FU - Issuu