YRUMA ARCHITECTURE PORTFOLIO

Page 1

YRUMA, JOHN OLIVER CERBITO ARCHITECTURE & DESIGN

PORTFOLIO
2023

TABLE OF CONTENT

01 02 03 04

ROXAS DOMESTIC AIRPORT

A Proposed Roxas City Airport Development

ECO-TOURISM RESORT

TULUN-AN: Madyaas Cultural Eco-tourism Center

COMMUNITY ENRICHMENT FACILITY

SULOY: Growing Food. Growing Community. Growing Resilience.

SHOPPING CENTER

HAMAKA: A Proposed Taytay Garment And Woodwork Shopping Center

01 ROXAS AIRPORT

A PROPOSED ROXAS CITY AIRPORT DEVELOPMENT

Brgy. Gubu-an, Roxas City, Capiz Architectural Design 8 - 2022 (Collaboration)

The redevelopment of Roxas Domestic Airport fosters transparency, encourages tourism and cultural appreciation, and integrates an energy-efficient and user-friendly design. This involves reimagining the airport's layout, incorporating a flexible planning approach to create adaptable and inviting spaces that cater to user needs. Additionally, it employs ecofriendly construction strategies using locally available materials to achieve an energyefficient airport.

Software Used

Revit 2022 + Enscape + Photoshop

ORTHOGRAPHIC PERSPECTIVE

FORM CONCEPT

ORTHOGRAPHIC PERSPECTIVE

The building form is inspired by Surambao, the traditional fishing practice of the local fishermen in Roxas City. The structure of Surambao is made of bamboo that has two curvilinear bamboos that serve as mechanisms to lift the net to get from the water to catch fish. The building form imitates the strength and flexibility of bamboo by taking advantage of the wind direction to reduce the impact of the wind on the building while at the same time maximizing the sun orientation.

EXTERIOR PERSPECTIVE 1
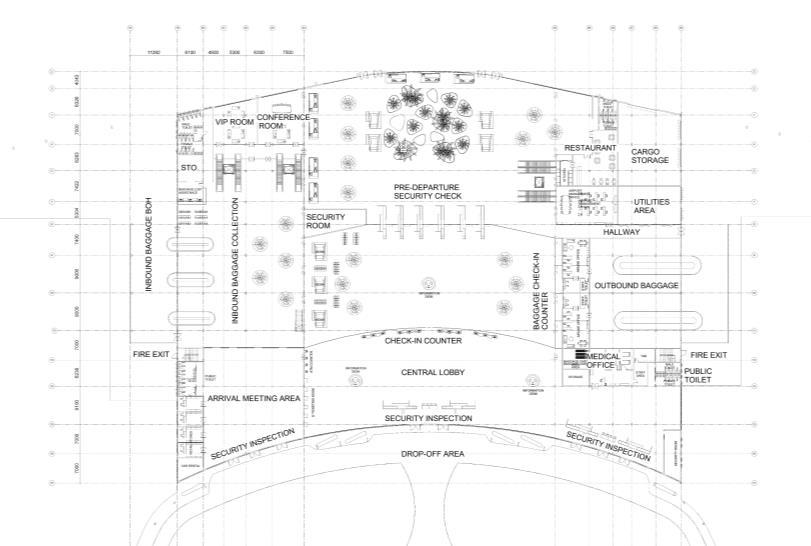
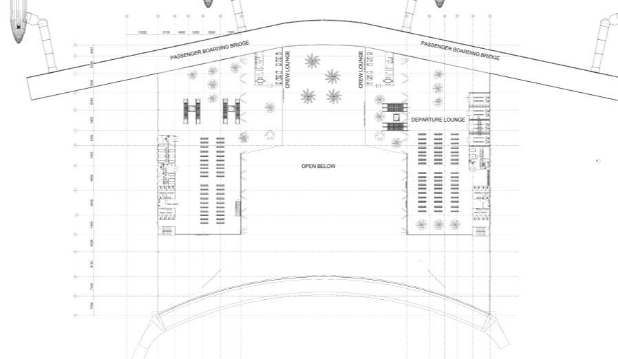
LEGEND: 1. Airport Passenger Terminal 2. Airport Parking 3. Public Transport Terminal 4. Airport Hotel 5. Control Tower 6. Fire Station 7. Civil Aviation Building 8. Apron 9. Airport Hangar 10. Taxiway 11. Airport Runway GROUND FLOOR PLAN SECOND FLOOR PLAN FRONT ELEVATION REAR ELEVATION LEFT SIDE ELEVATION RIGHT SIDE ELEVATION SITE DEVELOPMENT PLAN

LONGITUDINAL SECTION

CROSS SECTION

LOBBY & CHECK-IN COUNTER

DEPARTURE LOUNGE

ARRIVAL
PERSPECTIVE 2
RETAIL & LANDSCAPE
EXTERIOR
SECURITY CHECK

DROP-OFF AREA

BOARDING GATE

HOTEL PERSPECTIVE

HOTEL LOBBY
CONTROL TOWER PERSPECTIVE

MADYAAS CULTURAL ECO-TOURISM RESORT

Brgy. Pook Kalibo, Aklan

Community Architecture & Urban Design – 2021 (Collaboration)

Madyaas cultural eco-tourism resort serve as the cultural tourism hub of Kalibo to unveil the ancient culture and tradition of the Ati tribe to the present generation. Through the modern movement base in the traditional ideology of Ati tribe. This embodies the values of the design and attributes of Ati vernacular Architecture that can see in to the tangible and intangible character of the forms and spaces in the design.

02 TULUN-AN
AERIAL PERSPECTIVE
Software Used Revit 2021 + Enscape + Photoshop

LAND USED CLASSIFICATION

LOCATION MAP SITE LOACATION
ROAD ACCESS
S I T E A N A L Y S I S
MICROCLIMATE
SENSORY
SITE DEVELOPMENT PLAN 1. PARKING 2. TERMINAL 3. UTILITIES 4. MAIN BUILDING 5. RESTAURANT 6. ALFRESCO DINING AREA 7. BINALAYBAY MUSEUM BLDG 8. AMPHITHEATER 9. STAGE/ PLAZA 10. LEISURE AREA (FOOD BOTH/FOOD ZONE 11. E]NTRANCE 12. ARTS & CRAFTS BAZAAR 13. DROP- OFF AREA 14. ARTS & CRAFT STUDIO WORKSHOP & TESDA WORKSHOP 15. RITUAL AREA 16. ATI TRIBAL HALL 17. ORGANIC GARDEN 18. ATI- HOUSES 19. NATURE ACTIVITY AREA 20. HEALTH CARE CLINIC 21. MEDITATION AREA 22. SPA CENTER 23. FITNESS ZONE 24. GARDEN AREA 25. POND 26. SWIMMINF POOL 27. BOARDWALK & MANGROVES AREA 28. PUBLIC SPACE 29. VIE DECK 30. BEACH AND COTTAGE 31. PAVILION 32. SPACE FOR FUTURE EXTENSION

Software Used

Revit 2021 + Enscape + Photoshop

KALIBO EXHIBHITION HALL
BINALAYBAY MUSEUM EXTERIOR PERSPECTIVE
FRONT ELEVATION ATI TRIBE GALLERY HERITAGE SITE GALERY

RESTAURANT PERSPECTIVE

MAIN BUILDING PERSPECTIVE

MASSAGE THERAPY

NAIL AND HAIR DRESSING

DRESS MAKING
LIVELIHOOD
PUBLIC AREA BOARDWALK & MANGROVES AREA BEACH & SWIMMING POOL

03 SULOY

GROWING FOOD. GROWING COMMUNITY. GROWING RESILIENCE. A PROPOSED COMMUNITY ENRICHMENT FACILITY

Brgy. New Kawayan, Tacloban City, Leyte

Architectural Design 6 Final Plate - 2021 (Collaboration)

The community enrichment facility will be a center that brings the people from the resettlement areas together to create and foster healthy relationship among them and contribute to its growth. It will also provide basic commodities for the people of the community including food, health services, and sanitation and hygiene to make the zone a livable one. Nevertheless, it will be a readily operational building that can serve as a haven of the people once a disaster comes in.

FORM CONCEPT

SULOY, which can be translated in English as “offshoot”, is a stem growing laterally from the main stem of a plant. It was used as the form concept to mimic and adopt the strengths and resiliency of the bamboo.

CONCEPTTO VISUALS FORM EXTERIORFORM SPLITTING ADDITIVE MODIFICATION FINALFORMMODIFICATION
LEGEND: 1 MAIN ENTRY 2 PWD PARKING 3 PARKING 4 DROPOFF 5 BUILDABLE AREA 6 GARDEN 7 MINIPARK 8 SERVICE DROPOFF 9VEGETATION 10 MRF 11 LAUNDRY 12 MANHOLE 13 WATER TANKS 14 SOLAR PANELS SITE DEVELOPMENT
PLAN

GROUND FLOOR PLAN

The design challenge is to create a sustainable multipurpose facility that may also serve as an evacuation center capable of accommodating 50 families or 250 people. Whether in ordinary times or during calamities, the center must symbolize the strong bond of the community and the people even during crisis

TENT DESIGN 2.3X2.3 M

SECOND FLOOR PLAN

EXTERIOR PERSPECTIVE

AERIAL PERSPECTIVE
Model and Render using Revit Architecture 2021

04 HAMAKA SHOPPING CENTER

A PROPOSED TAYTAY GARMENT AND WOODWORK SHOPPING CENTER

Brgy. San Juan, Taytay, Rizal Thesis Dissertation - 2023

The proposed project is a commercial shopping place for retail and wholesale located in the Municipality of Taytay Rizal. This will serve as a relocation of affected tiangge vendors for the future development of MRT 4, and it is also intended to cater a different local item of Taytayenos that is significant to their culture and livelihood that will help boost tourism and encourage more visitors from the neighboring municipalities, through integrating its culture and enhancing social interaction in the design in order to attract more vendors and provide a great shopping experience to its customers.

Software Used

Revit 2023 + Enscape

CONVERGENCE - Fusing Taytay’s

Intangible and Tangible Culture.

This idea signifies the place where the shopping center for garment and woodwork products integrates with festival culture to form a shopping place that has a sense of place and identity to draw more shoppers in order to help the physical commerce of Taytay to flourish again.

Cuadricula Pattern Planning Concept

BUILDING FORM CONCEPT

BAHAY KUBO PLANNING CONCEPT

The form of the building of tiangge was inspired in bahay kubo to create a shopping center that will tell the story of the origin of Taytay tiangge

SITE EVOLUTION OF DESIGN CONCEPT
FINAL BUILDING FORM

FLOOR PLAN ON SITE

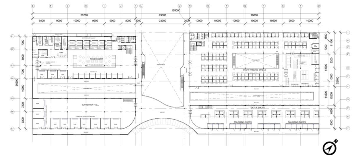
GROUND FLOOR PLAN

SECOND FLOOR PLAN

INDOOR LEASABLE AREA

INDOOR LEASABLE AREA

MULTI - PURPOSE PAVILION

INDOOR LEASABLE AREA

SERVICE AREAS

INDOOR LEASABLE AREA

SITE DEVELOPMENT PLAN

FRONT ELEVATION

RIGHT ELEVATION LEFT ELEVATION

BUYING FLATFORM AREA

BUYING FLATFORM AREA

PASILYO

BUYING FLATFORM AREA

BUYING FLATFORM AREA

PASILYO

BUYING FLATFORM AREA

TRANSFORMED MODULAR STALL

SINGLE UNIT DESIGN

BUYING FLATFORM AREA

NATURAL STONE TILE

AERIAL PERSPECTIVE

EXTERIOR PERSPECTIVE

STANDING SEAM METAL ROOF

COCO WOOD PLANK STAINED GLASS
CONCRETE WOOD PALLET
Software Used Revit 2021 + Enscape + Photoshop

EXTERIOR PERSPECTIVE

DROP-OFF AREA

PARKING & TRANSPORT TERMINAL

OUTDOOR PARK

BRISE SOLEIL DESIGN

MULTI-PURPOSE AREA MAIN

BALCONY

ENTRANCE
The Brise Soleil design was inspired by hand sewing cross stitch; it was made in a wooden palette to showcase the talent of Taytayeῆos in carpentry, while the use of warm colors provided a sense of enthusiasm to the shoppers.
INTERIOR PERSPECTIVE
Software Used Revit 2021 + Enscape + Photoshop

Turn static files into dynamic content formats.

Create a flipbook
Issuu converts static files into: digital portfolios, online yearbooks, online catalogs, digital photo albums and more. Sign up and create your flipbook.
YRUMA ARCHITECTURE PORTFOLIO by John Oliver Yruma - Issuu