PORTFOLIO
Se ected Works 2021 - 2024
ABOUT ME
EDUCATION
JUL 2021 - NOV 2024
(+60)16-8687854
y z yap@outlook com Cheras,W ayahPersekutuanKuaaLumpur
https//ssuucom/yizyap
Studyng abroad in KL from Sarawak n search of more opportuntes A hghly motivated ndivdual that s passionate n creatve thinking and handicraft works Abe to consstenty perform and producehghqualtyportfo ostestamenttotherab ities
UCSI Un vers ty BACHELOR OF ARTS (HONOURS) IN INTERIOR ARCHITECTURE
-CGPA3 46 -UCSISchoarshpRecpient
EXPERIENCE Intern POW IDEAS | ART PRINTING WORKS (APW) JAN - JUN 2024
ACHIEVEMENTS
BestSustanabeDesgn nInterorArchtectureFna Year Semester
1stRunnerUp"StarofTheSea" MyStarfshFoundatonsProjectforHappiness
Top3DesgnStudoin nterorArchitecture
StudoWorkExhibt nJalanAor&SABEGa ery
nternatona Taekwon-DoFederatonBlackBet2ndDan
Member
MIID | MALAYSIAN INSTITUTE OF INTERIOR DESIGNERS 2022 - PRESENT
JULY - NOV 2024
JULY - DEC 2022
Des gn Team Publ cat on Lead QUARTER | INTERIOR ARCHITECTURE FINAL EXHIBITION
Invoved n the desgn team and ve bu d of Star of the Sea n transfo mng Pangkors oca c a e cuture n o sustanabe moduar fu nturetha nteg ates unctona ywthc eatv ytoenhanceand osteraconducve earnngenv onmentfo knderga tene sto expo e ea n andg ow
Committee
PAW'S EDEN | COLLAB
Taskedwthb ans ormng plannng,desgnngandprocu ementofadustabedogwheecha stobeusedtoassstparapegcdogs to wak Asss ed n the p ocurement of ns ructon manua to assst owne s of parapegc pets to fu ther imp ove on adustabe wheechars
{ D e s i g n s t a t e m e n t }
Pot terra embod es the Pottery Craftmanship center s commitment towards harmon ous y ntegrating pottery with nature, creating a susta nab e ecosystem between the tradit onal craft of pottery and nature, whereby art sans and hobby sts a ke are ab e to m ngle w th natura e ements to cu minate n funct ona yet artist c p eces Th s ntegrat on fosters a deep connect on between craft and nature P O T . T E R R A
SPCA Se agor, Jalan Ker a Air Lama, Ukay He ghts, 68000 Ampang, Selangor, Malays a
{ F u r n i t u r e d e t a i l }
{ P r o g r a m s t u d y } POTTERY
{ P e r s p e c t i v e } { P e r s p e c t i v e }
{ E l e m e n t x F u n c t i o n }
Design Stud o 5 is tasked with upgrad ng the Star of the Sea K ndergarten on Pangkor sland The focus s on mprov ng functiona ity, aesthet cs and the overal exper ence of the space through a des gn approach rooted n the " new vernacu ar " theme Th s approach emphasizes ocal context culture, and materia s wh le incorporat ng modern funct ona ty and sustainab ity
The " new vernacu ar " concept seeks to create spaces f rm y grounded in cu tural and reg onal dentity wh e adapt ng to chang ng user needs Environmenta stewardsh p s prior tized through natura light vent lat on, and susta nab e pract ces The design philosophy a ms to str ke a balance between trad t on and nnovation, respecting the past wh e embrac ng the future
海星幼⼉园 l Star of the Sea Kindergarten, Pangkor Island 179A-2, Sungai Pinang Kecil, 32300 Pulau Pangkor, Perak, Malaysia
LEARN PLAY
{ M o d u l e }
F u n c t i o n }
ssemb e Manua V deo
Wa W ndow Hammock + Open ng
Leave gaps between wall system - a ow the ad ustment of the c ass s ze accord ng to the number of students by rearranging the partit on
M A K E R S P A C E
Wall system
- a ow cross-vent at on
- a we com ng feeling that nvites the community to use the makerspace and simp e tools provided The community is a so ab e to drop off waste wood or p astic n mater al storage These materia s are able to be reused n the workshop
Fo ding door - to close up the pr vate space wh e nobody s n the makerspace Th s a so prevents kids from accidenta y go ng into the machinery area
FLOOR PLAN | LEARN
SCALE 1:75
STAR OF THE SEA
Learn
- the partitions are able to move the wh teboard up and down which prov des ease for teachers and ch dren to write on t
- the wal system a so a ows for better a r venti at on C O N F I G U R A T I O N
Play
- the tab e and chair are n one piece wh ch a ows teachers to move the table and chair under the p atform at the s de, which act as sta rs for ch dren to climb up the platform
- the wa system can be put down for ch dren to lie or jump on This also connects the c assroom w th the outdoor area
Event
- the partitions are ab e to move around the mu t purpose ha for exhib t artwork
- the wa system a ows ch dren to reach the bar h gh, which able for them to se something dur ng the char ty bazaar
Ceremony
- the tab e and chair n one p ece move to in front of the stage wh ch can be a d fferent evel of p atform for parents and v sitors to s t
SECTION A-A | LEARN
SCALE 1:75



Unparal eled predicament art nstallation is intended to give the audience a g impse into the experience Syb Kathigasu had to went through during the invasion of Japanese troops in Papan Inspired by the site itse f, the use of plaster and timber are used to portray the vintage aspects of Papan Th s nstallation is intends to show the cho ces Sybil had to make The use of carved plaster of paris shows uncertainty of cho ces where Syb could have been a pass ve citizen and live n peace for the time being The interactive plaster carvings are to be pulled out by the aud ence to know what goes on at the other side, however, elements of fear are a so portrayed, te ing you that bravery is needed to break the uncerta nty By putting back the plaster to its orig na place signals the action of backing out after looking at the After opening up all the nteract ve plaster carvings the audience can opt to move to the other side, g ving the mean ng of relentless bravery even after looking through each of the fears much ke how Sybil choose certain death to f ght the Japanese The other s de of the model represents al the positive ideals Syb s fighting for such as Elements of religion, humanity, justice fam ly are shown In the end, this art instal ation hopes to prov de awareness about the story and to share the influence of Syb to the wor d



Home is safe, w th no fear or anxiety caused by the Japanese dur ng WW2 Sybil saved a ot of Papan s villagers and guerri as from Japanese torture
Incomp ete and abandoned shop house. Small pieces of bui d ng structure elements in the midd e
Hope Papan can return to ts lively g ory A row of shop houses that shows ts completeness. F U
47&49 Main Road of Papan V llage, pusing, Perak, Malaysia
Integration between humans and the env ronment We are a l interconnected To create an asymmetr ca ba ance space that carries out the idea of balance between life and harmony among humans and nature
This model represents the process of waste management, peop e w throw it into the correct bin, but not a w undergo recycl ng, and some will st l end up in landfills As marbles enter the mode t has a chance of e ther go ng nto the landfill or nto the recycl ng p ant By not recycling the g ass waste in the andf l, we have to mine for raw mater a s to produce g ass products, resu ting in the reduction of sand Marb es represent different types of recyc ab e g ass As the marb es bui d up, the cotton representing sand reduces But we can actual y recyc e the glass waste to manufacture glass products el minat ng the need for new raw materia s
Hope of Eden s a River Educational Awareness Centre that is ocated at TMR3 w th its main function of fac tating the “R ver Re ef Program” wh ch strives to provide a platform for students oca s and v sitors a ike to learn and to recognize the d re state of the K ang R ver and what steps can be taken by everyone to start the healing process
The bui ding is designed with transparency and nterconnection between humans and the env ronment hence the name The overa design of the bu d ng takes nto cons derat on the physical and visua sensory inputs with nature by ncorporating a courtyard w th flora occupy ng most of t by hav ng open ngs a ong most of the per meter that al ows the ntegration and bond ng between humans and the env ronment and through a mostly transparent brary that encourages fasc nation of the unique elements of nature The nterior of the building seeks to prov de a sense of tranqu l and purity to v sitors promot ng further apprec at on with nature
{ P e r s p e c t i v e }
F O L D + A B L E
{ F i r s t F l o o r P l a n } { G r o u n d F l o o r P l a n }
A man s stand ng in the m dd e of the model, ooking nto h s own ref ect on n the m rror, the m rror imitates the different modes of a cat s eye, where when the cat is n a state of distress, ts pup s will contract and vice versa, the eft mirror represents the contracted pup s and the r ght mirror represents the d ated pup s
This model s inspired by Jun Ong s artwork wh ch is based on the concept Quantum Entang ement Quantum Entanglement s where 2 or more partic es are ab e to change their quantum state no matter how for apart they are from each other, even faster than the speed of light
For my mode i app ed the same design concept of using mirrors represent ng the particles and the g ass rods representing the pathway of ght The glass rods surround ng the man m tates the movement of ght reflecting off of the cats eye n d fferent angles And the background is nsp red by a few of Jun Ong s artworks
{ B l o w u p d e t a i l }
{ F u r n i t u r e d e t a i l }
A peg board s placed next to the shelf wh ch s right beh nd the desk so they can be eas y accessed whi e work s being done whereas its adjacent she f can be a source of muse where the exh bits are being d sp ayed
Trained n Arch tecture and constant y researches the nuances of man pulat ng art f cial ight to affect h s scu ptures Jun Ongs art sty e s m n ma stic and mostly nvo ves b ack and wh te palettes wh ch have deep roots in concept and mean ng Jun Ong is frequent y co aborat ng w th engineers, and video artists alike to imp ement his v sion and to nvoke emot ons when peop e view h s artworks which appl es un que p acemak ng effects with the he p of wh te fluorescent tubes
BUBBLE DIAGRAM
D n ng room and ving room are accessib e from the entrance
Workspace s separated from the liv ng room by a fo ding door where the workspace can be extended to the iv ng area f more space is needed K tchen is connected to the dining room and laundry s next to the k tchen Ha way acts as an area connecting the bedrooms, to et storage and d n ng room The master bedroom has its own to let for conven ence and workspace cannot be accessed direct y from there for the purpose of work life separation
46, Ja an Alor Buk t Bintang, 50200 Kuala Lumpur, Ma aysia
LIVING ROOM
Materials ke rattan and timber are used for the furniture to g ve the liv ng room touch of nature The curves on the wall correspond to the cat s eye n Project 2 A p ay area furn shed w th t mber s ded cated for the cat in the liv ng room where the artist can look from the workspace through a transparent fo ding door Th s provides the art st opportunities to observe the cat while not being disturbed
KITCHEN & DINING ROOM
Entering the res dence, a p ant and a float ng rattan seat n the dining room come into the view which g ves the res dence a touch of nature The ratan seat ng s connected to the ceiling w th two rods where a round m rror is p aced on the wall Correspond ng to Project 2 the m rror resembles the cat s eye whereas the rods embody the pup of the cat s eye The mirror a so depicts the ref ect on of ght The furniture is most y made of rattan and timber as the element of nature has been taken into cons derat on The bar area s ts in between the k tchen and d n ng room, provid ng a p ace to ch while en oy ng a drink
DESIGN STATEMENT
Pro ect 2 comes from Jun Ong’s artwork titled as Quantum wh ch s inspired by the concept of quantum entanglement where 2 or more particles can change their states regard ess of d stance n pro ect 2 the cat eyes represent the particles, chang ng ght or dark states Whereas n project 3 the m rror in the d ning room and the curved cab net n the workspace adopts a circu ar design that resembles a cat s eye Most furniture s made of rattan and timber as he s fond of nature The resident has dark and dul co ours as Jun Ong s known to be a m n malist c person
{ F l o o r p l a n } { S e c t i o n }
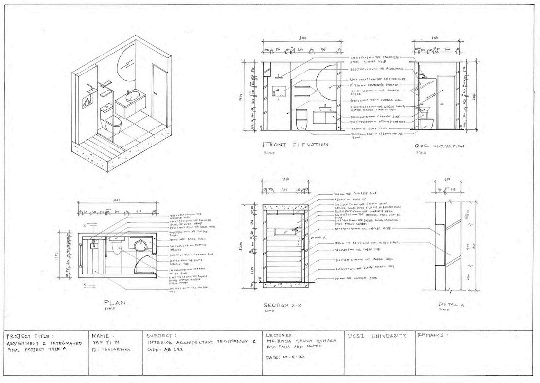
FLOOR PLAN
SCALE 1:50
SECTION X-X
SCALE 1:50
SECTION Y-Y
SCALE 1:50
SECTION Z-Z
SCALE 1:50
{ L e t t e r i n g }
{ F u r n i t u r e s k e t c h e s }
{ R e n d e r e d d r a w i n g }
{ E x p l o d e d a x o n o m e t r i c }
{ M o d e l s }
S i g n a g e }