PORTFOLIO







![]()





























Using s mple and clean lines to create a space that vibes with younger individuals as a comfortab e space to hang out or work





































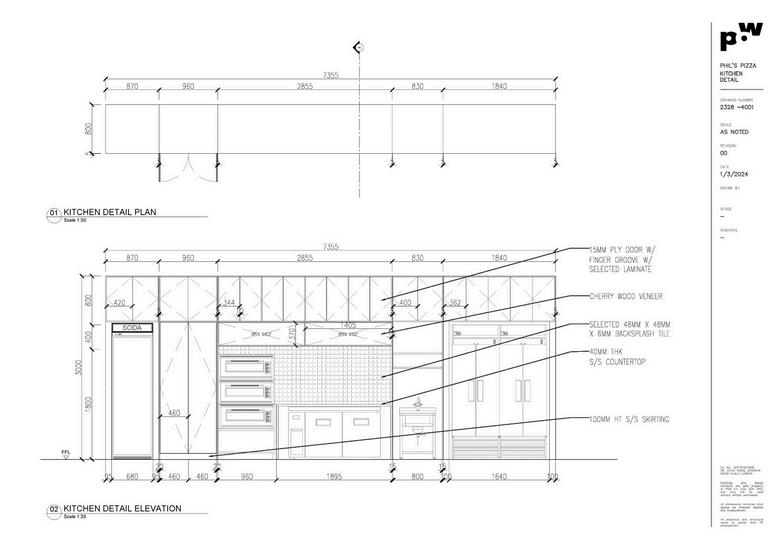
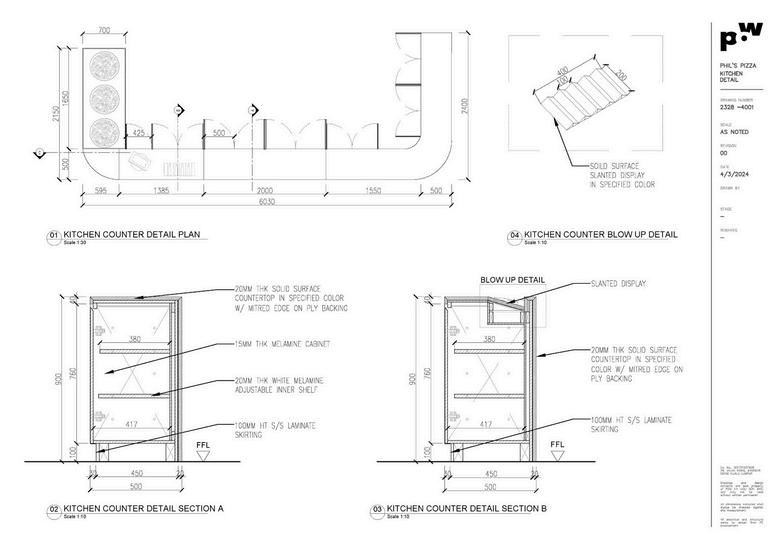
Phil's Pizza gasket Alley is a retail store located in The
Insp red by the Beach Boys and the v be of SemuaHouse, the intention is to create a space that s easy and relaxed whilst giving a good t me to customers


























































